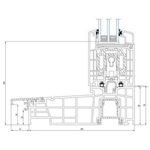
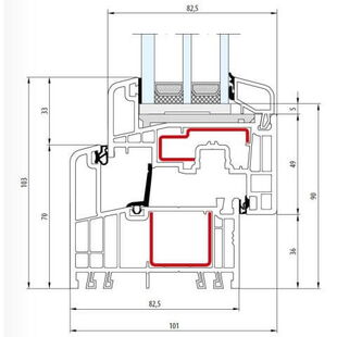
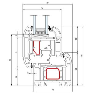
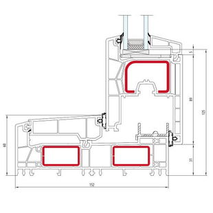
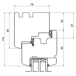
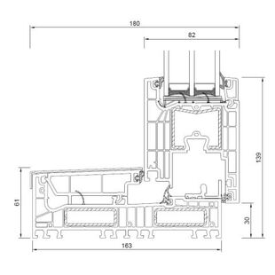
Detailtekeningen en profieldoorsneden

Succes bij een bouwproject begint met een goede en grondige planning. Dit is echter alleen volledig mogelijk wanneer u er zeker van kunt zijn dat uiteindelijk alles tot op de millimeter nauwkeurig past. Detailtekeningen en profieldoorsneden zijn hierbij bijzonder waardevol, omdat zij inzicht geven in de exacte opbouw en afmetingen van een bouwelement. Om u optimaal te ondersteunen in de voorbereiding, stellen wij voor al onze aluplast-, ALUPROF-, DRUTEX-, Gealan- en SALAMANDER-profielsystemen de bijbehorende detailtekeningen beschikbaar. Voor een duidelijk overzicht zijn de doorsneden gesorteerd op materiaal en profiel­systeem. Naast doorsnedetekeningen voor kozijnen vindt u ook details van diverse aanvullende producten, zoals vensterbankaansluitingen of koppelingen, op de betreffende detailpagina’s. Ook voor de verschillende rolluiksystemen zijn gedetailleerde doorsneden beschikbaar.

Inhoudsopgave - Deze onderwerpen kunt u verwachten

Profieldoorsneden voor kunststofsystemen

DRUTEX kunststofsystemen

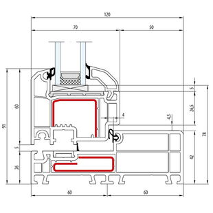
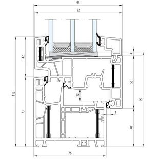
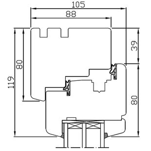
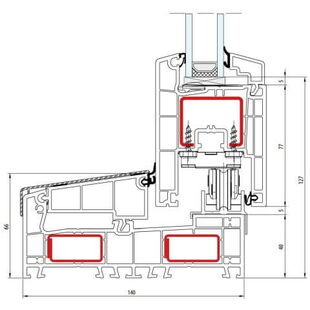
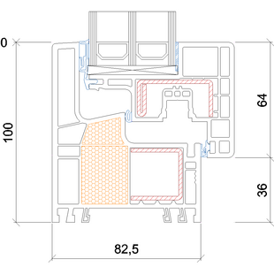
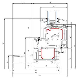
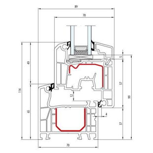
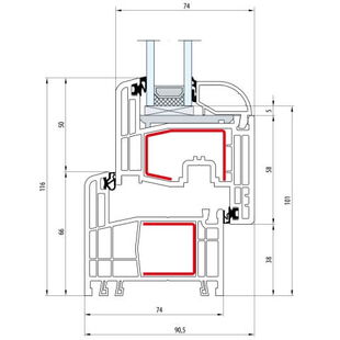
Profiel Iglo 5

Kunststof profiel Iglo 5 Classic

Iglo 5 detailtekeningen

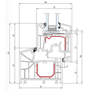
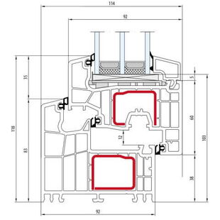
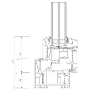
Profiel Iglo Light

Kunststof profiel Iglo Light

Iglo Light detailtekeningen

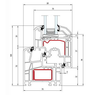
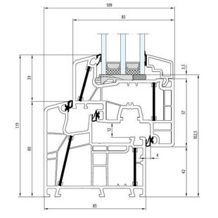
Profiel Iglo Energy

Kunststof profiel Iglo Energy Classic

Iglo Energy detailtekeningen

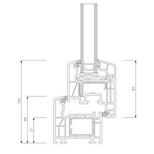
Profiel Iglo Edge

Kunststof profiel Iglo Edge

Iglo Edge detailtekeningen

Profiel Iglo Energy AluCover

Kunststof profiel Iglo Energy AluCover

Iglo Energy AluCover detailtekeningen

Profiel Iglo EXT

Kunststof profiel Iglo EXT

Iglo EXT detailtekeningen

Profiel Iglo Premier

Kunststof profiel Iglo Premier

Iglo Premier detailtekeningen

Profil Iglo Edge Slide

Drutex Iglo Edge Slide profieldoorsnede

Iglo Edge Slide detailtekeningen

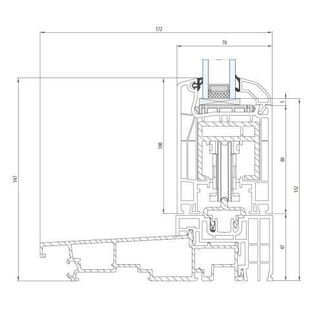
Profiel Iglo HS

Kunststof profiel Iglo HS met dorpel

Iglo HS detailtekeningen

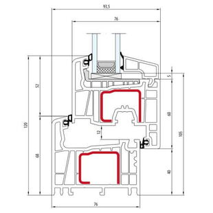
aluplast kunststofsystemen

Profiel IDEAL Neo

Kunststof profiel IDEAL Neo

IDEAL Neo detailtekeningen

Profiel IDEAL 4000

Kunststof profiel IDEAL 4000

IDEAL 4000 detailtekeningen

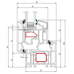
Profiel IDEAL 5000

Kunststof profiel IDEAL 5000

IDEAL 5000 detailtekeningen

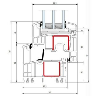
Profiel IDEAL 7000

Kunststof profiel IDEAL 7000

IDEAL 7000 detailtekeningen

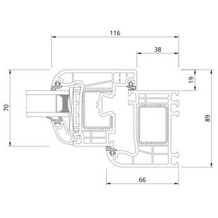
Profiel IDEAL 8000

Kunststof profiel IDEAL 8000

IDEAL 8000 detailtekeningen

Profiel energeto neo

Kunststof profiel energeto neo

energeto neo detailtekeningen

Profiel energeto 8000

Kunststof profiel energeto 8000

energeto 8000 detailtekeningen


Profiel IDEAL 4000 85mm

Kunststof profiel IDEAL 4000 85mm

IDEAL 4000 85mm detailtekeningen

Profiel IDEAL 4000 Casement

Kunststof profiel IDEAL 4000 Casement

IDEAL 4000 Casement detailtekeningen

Profiel IDEAL 4000 Monoblock

Kunststof profiel IDEAL 4000 Monoblock

IDEAL 4000 Monoblock detailtekeningen

Profiel IDEAL 4000 NL blokprofiel

Kunststof profiel IDEAL 4000 NL blokprofiel

IDEAL 4000 NL detailtekeningen

Profiel IDEAL 70 Casement

Kunststof profiel IDEAL 70 Casement

IDEAL 70 Casement detailtekeningen

Profiel IDEAL 7000 NL blokprofiel

Kunststof profiel IDEAL 7000 NL blokprofiel

IDEAL 7000 NL detailtekeningen

Profiel IDEAL Nordline

Kunststof profiel IDEAL Nordline

IDEAL Nordline detailtekeningen


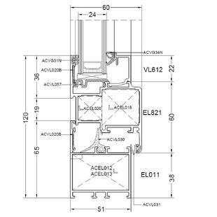
Gealan kunststofsystemen

Profiel Gealan S 8000

Kunststof profiel Gealan S 8000

Gealan S 8000 detailtekeningen

Profiel Gealan S 9000

Kunststof profiel Gealan S 9000

Gealan S 9000 detailtekeningen

Profiel Gealan Lumaxx

Kunststof profiel Gealan Lumaxx S 9000

Gealan Lumaxx detailtekeningen

Profiel Gealan Linear

Kunststof profiel Gealan Linear

Gealan Linear detailtekeningen

Profiel Gealan Kontur

Kunststof profiel Gealan Kontur

Gealan Kontur detailtekeningen

Profiel Gealan Kubus

Kunststof profiel Gealan Kubus

Gealan Kubus detailtekeningen

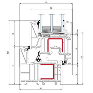
SALAMANDER kunststofsystemen

Profiel greenEvolution 76

Kunststof profiel greenEvolution 76

greenEvolution 76 detailtekeningen

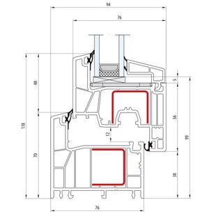
Profiel bluEvolution 82

Kunststof profiel bluEvolution 82

bluEvolution 82 detailtekeningen

Profiel bluEvolution 92

Kunststof profiel bluEvolution 92

bluEvolution 92 detailtekeningen

Profiel Streamline 76

Kunststof profiel Streamline 76

Streamline 76 detailtekeningen

SCHÜCO kunststof kozijnen

Profiel Schüco CT-70

Kunststof profiel Schüco CT-70

Schüco CT-70 detailtekeningen

Profiel Schüco LivIng 82

Kunststof profiel Schüco LivIng 82

Schüco LivIng 82 detailtekeningen

Profiel Schüco LivIng Alu Inside

Kunststof profiel Schüco LivIng Alu Inside

Schüco LivIng Alu Inside detailtekeningen

Profieldoorsneden voor houtsystemen

Profiel Softline-68

Houtprofiel Softline 68 kozijn met vleugel

Softline 68 detailtekeningen

Profiel Softline-78

Houtprofiel Softline 78 kozijn met vleugel

Softline 78 detailtekeningen

Profiel Softline-88

Houtprofiel Softline 88 kozijn met vleugel

Softline 88 detailtekeningen

Profieldoorsneden voor aluminiumsystemen

Aluprof aluminiumsystemen

Profiel MB-70HI

Aluminium kozijnprofiel MB-70HI

MB-70HI detailtekeningen

Profiel MB-86 SI

Aluminium kozijnprofiel MB-86 SI

MB-86 SI detailtekeningen

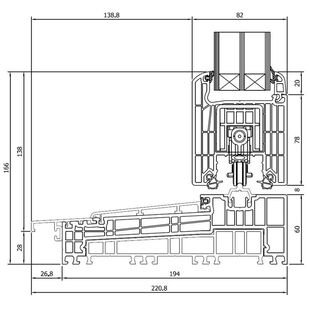
Profiel MB-77 HST

Hefschuifpui profiel MB-77 HST

MB-77 HST detailtekeningen

Profiel MB-77 HI HST

Hefschuifpui profiel MB-77 HI HST

MB-77 HI HST detailtekeningen

Aliplast aluminium systemen

Profiel Econoline

Aluminium kozijnprofiel Econoline

Econoline detailtekeningen

Profiel Superial

Aluminium kozijnprofiel Superial

Superial Detailzeichnungen

Profieldoorsneden voor hout-aluminium systemen

Profiel Duoline-68

Hout-aluminiumprofiel Duoline 68

Duoline 68 detailtekeningen

Profiel Duoline-78

Hout-aluminiumprofiel Duoline 78

Duoline 78 detailtekeningen

Profiel Duoline-88

Hout-aluminiumprofiel Duoline 88

Duoline 88 detailtekeningen

Profieldoorsneden voor aluminium-staal systemen (FM deuren)

Profiel FM deuren

FM aluminium deur P 90

FM deuren detailtekeningen

Profieldoorsneden voor rolluiken en raffstores

DRUTEX rolluiksystemen

Premium-Line rolluiksystemen

Voorzetrolluik PST

Detailtekeningen voorzetrolluik PST

Detailtekeningen rolluik PST

Voorzetrolluik PRL

Detailtekeningen voorzetrolluik PRL

Detailtekeningen rolluik PRL

Voorzetrolluik POL

Detailtekeningen voorzetrolluik POL

Detailtekeningen rolluik POL

Voorzetrolluik POS

Detailtekeningen voorzetrolluik POS

Detailtekeningen rolluik POS

Voorzetrolluik PIT

Detailtekeningen voorzetrolluik PIT

Detailtekeningen rolluik PIT

Aluprof rolluiksystemen

Voorzetrolluik SP-E

Detailtekeningen voorzetrolluik Aluprof SP-E

Detailtekeningen Aluprof SP-E

Voorzetrolluik SK

Detailtekeningen voorzetrolluik Aluprof SK

Detailtekeningen Aluprof SK

Voorzetrolluik SKP

Detailtekeningen voorzetrolluik Aluprof SKP

Detailtekeningen Aluprof SKP

Voorzetrolluik SKO-P

Detailtekeningen voorzetrolluik Aluprof SKO-P

Detailtekeningen Aluprof SKO-P

BeClever opbouwrolluik profieldoorsneden

Opbouwrolluik BeClever CleverBox

Detailtekeningen opbouwrolluik BeClever CleverBox

Detailtekeningen BeClever CleverBox

Decco opbouwrolluik profieldoorsneden

Opbouwrolluik Decco Thermo Box

Detailtekeningen opbouwrolluik Decco Thermo Box

Detailtekeningen Decco Thermo Box

Exte opbouwrolluik profieldoorsneden

Opbouwrolluik Exte Elite XT

Detailtekeningen opbouwrolluik Exte Elite XT

Detailtekeningen Exte Elite XT

Opbouwrolluik Exte Expert XT

Detailtekeningen opbouwrolluik Exte Expert XT

Detailtekeningen Exte Expert XT

Opbouwrolluik Exte Exakt

Detailtekeningen opbouwrolluik Exte Exakt

Detailtekeningen Exte Exakt

Profieldoorsneden voor buitenjaloezieën en geveljaloezieën

Buitenjaloezieën SKB Styroterm

Buitenjaloezieën SKB Styroterm

Buitenjaloezieën SKB Styroterm detailtekeningen

Profieldoorsneden voor roldeuren en rolhekken

Roldeur BGR SK

Roldeur BGR SK 250

Rolldeur PST

Roldeur PST hoekig 45°

Met nauwkeurige planning en deskundig advies naar het doel

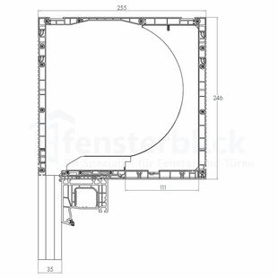
Online configurator maataanduiding
Maatinstellingen in de kozijnenconfigurator

Laat niets aan het toeval over! Bij een bouwproject kunnen er talloze dingen misgaan en vaak is het nodig om ter plekke plannen aan te passen of te improviseren. Met een grondige voorbereiding kunnen fouten echter meestal worden voorkomen.

Bij maatwerkproducten zoals de veelzijdige en individueel geproduceerde kozijnen van kozijnenblik.nl is het extra vervelend wanneer iets niet past, omdat aanpassingen achteraf vaak lastig zijn. Met behulp van de profieldoorsneden kunt u dit al in de planningsfase voorkomen.

De nauwkeurige detailtekeningen van de profielen, inclusief de verschillende aanvullende systemen, helpen u om vooraf goed te plannen en rekening te houden met alle details. In de praktische online configurator kunt u vervolgens eenvoudig en comfortabel alle afmetingen en opties exact naar uw wensen instellen. Mocht u toch nog vragen hebben of bepaalde details onduidelijk zijn, neem dan gerust contact met ons op per e-mail of telefonisch. Ons vriendelijke team van deskundige adviseurs helpt u graag verder om uw detailvragen te beantwoorden en uw bouwproject tot een succes te maken!

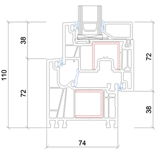
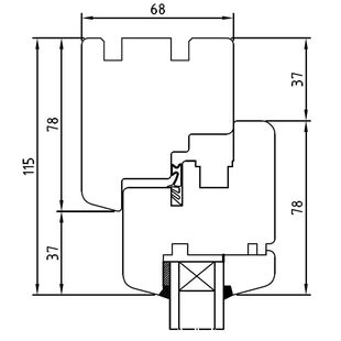
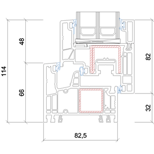
Kozijnendetails en technische tekeningen

Vaak zijn de kwaliteitsverschillen van een profiel of de werking van bepaalde mechanismen alleen zichtbaar in een gedetailleerde doorsnede van het kozijn. Zodat werkelijk elk detail van uw kozijn aan uw verwachtingen voldoet, stelt kozijnenblik.nl alle kozijntekeningen en profieldoorsneden voor alle kozijnsystemen beschikbaar.

Uw persoonlijke wensen staan altijd centraal bij het ontwerp van kozijnen. Alleen wanneer vorm en kleur harmoniëren met het type woning ontstaat er een stijlvol totaalbeeld. Afhankelijk van de bouwstijl en uw persoonlijke smaak kunt u bij de keuze van nieuwe kozijnen en deuren kiezen uit verschillende profielgeometrieën, profielvormen en designlijnen.

Of het nu gaat om kunststof, hout, hout-aluminium of volledig aluminium – de exacte afmetingen zijn voor elk model inzichtelijk. Zo kunt u de montage zorgeloos en tot op de millimeter nauwkeurig plannen.

De technische tekeningen bevatten daarnaast ook informatie en maatvoering van vensterbankaansluitprofielen, koppelingen, kaderverbredingen, glas- en afdeklijsten en andere aanvullende opties. Zelfs rolluiken zijn tot in het kleinste detail uitgewerkt. Bovendien is voor elk materiaal een PDF-bestand beschikbaar om te downloaden. Neem gerust contact met ons op bij vragen of voor aanvullende details en profiteer van maximale planningszekerheid voor uw bouwproject!

Gratis levering

Bij een bestelling van 10 ramen of meer in Nederland!

Vraag nu een offerte voor ramen aan