Detailzeichnungen Raffstore EO allgemein

Inhaltsverzeichnis:

Raffstore Typen und Einbauvarianten

Standard Raffstore-System mit verschiedenen Lamellen-Typen

Raffstore C80 Einbauvariante Querschnitt

Raffstore C80 Einbauvariante

Raffstore C80F Einbauvariante Querschnitt

Raffstore C80F Einbauvariante

Raffstore Z90 Einbauvariante Querschnitt

Raffstore Z90 Einbauvariante

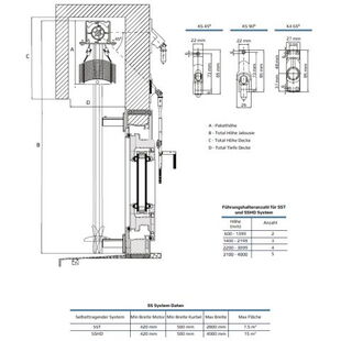
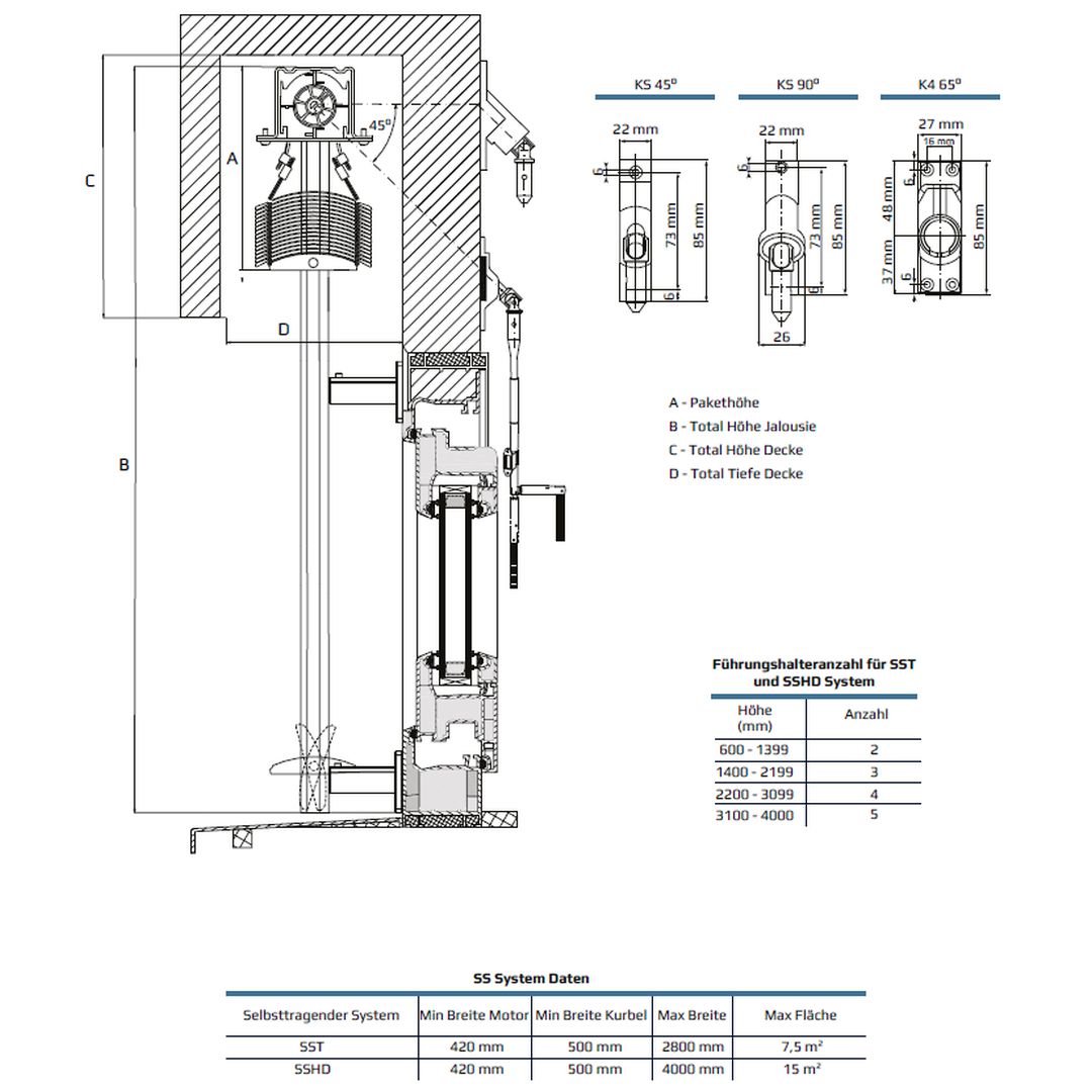
Raffstore Selbsttragende Systeme

Raffstore Selbsttragende Systeme Querschnitt

Raffstore Selbsttragende Systeme

Raffstore Selbsttragendes System Führungsschiene SST Querschnitt

Selbsttragendes System Führungsschiene SST

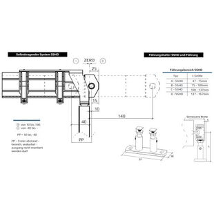
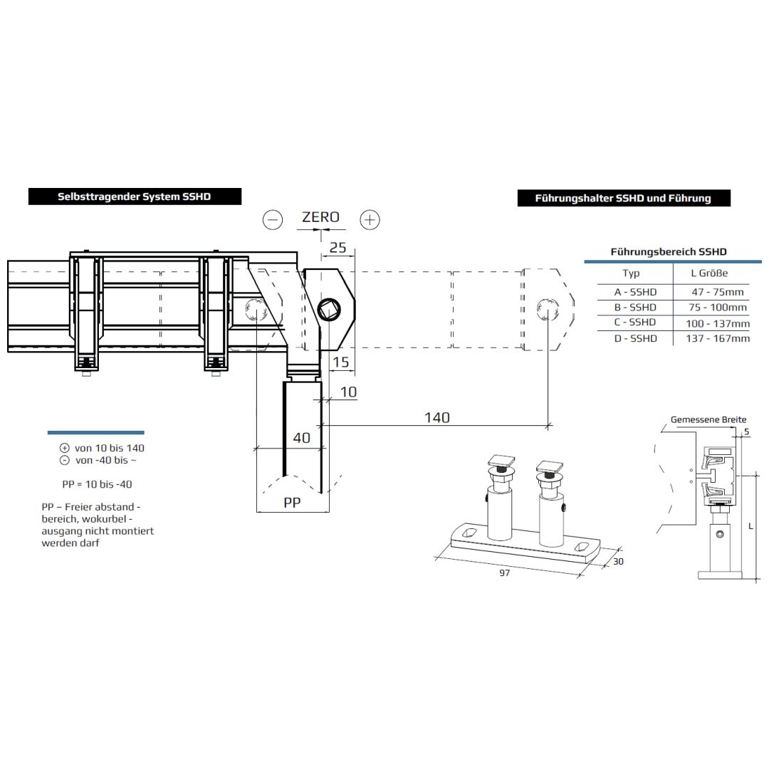
Raffstore Selbsttragendes System Führungsschiene SSHD Querschnitt

Selbsttragendes System Führungsschiene SSHD

Raffstore Ovalsystem OV

Raffstore Ovalsystem OV Querschnitt

Raffstore Ovalsystem OV

Führungsschiene Typ 7 Ovalsystem OV Querschnitt

Führungsschiene Typ 7 OV

Führungsschienen-Distanzhalter Typ OV Querschnitt

Distanzhalter Typ OV

Raffstore Unterputz-System PT - Führungsschienen

Führungsschienen PT Unterputz-Einbau

Führungsschiene PT Unterputz - Einbau

Führungsschienen PT Unterputz-Einbau Querschnitt

Führungsschiene PT Unterputz - Einbau Querschnitt

Führungsschiene Typ 8 PT Querschnitt

Führungsschienen Typ 8 PT

Raffstore-Systeme Einzelteile

Raffstore Abdeckblenden

Raffstore Abdeckblenden Typ 1A

Abdeckblende 1A

Raffstore Abdeckblenden Typ 1B

Abdeckblende 1B

Raffstore Abdeckblenden Typ 1C

Abdeckblende 1C

Raffstore Abdeckblenden Typ 2

Abdeckblende 2

Raffstore Abdeckblenden Typ 3A

Abdeckblende 3A

Raffstore Abdeckblenden Typ 3B

Abdeckblende 3B

Raffstore Abdeckblenden Typ 3C

Abdeckblende 3C

Raffstore Abdeckblenden Typ 3D

Abdeckblende 3D

Raffstore Abdeckblenden Typ 4

Abdeckblende 4

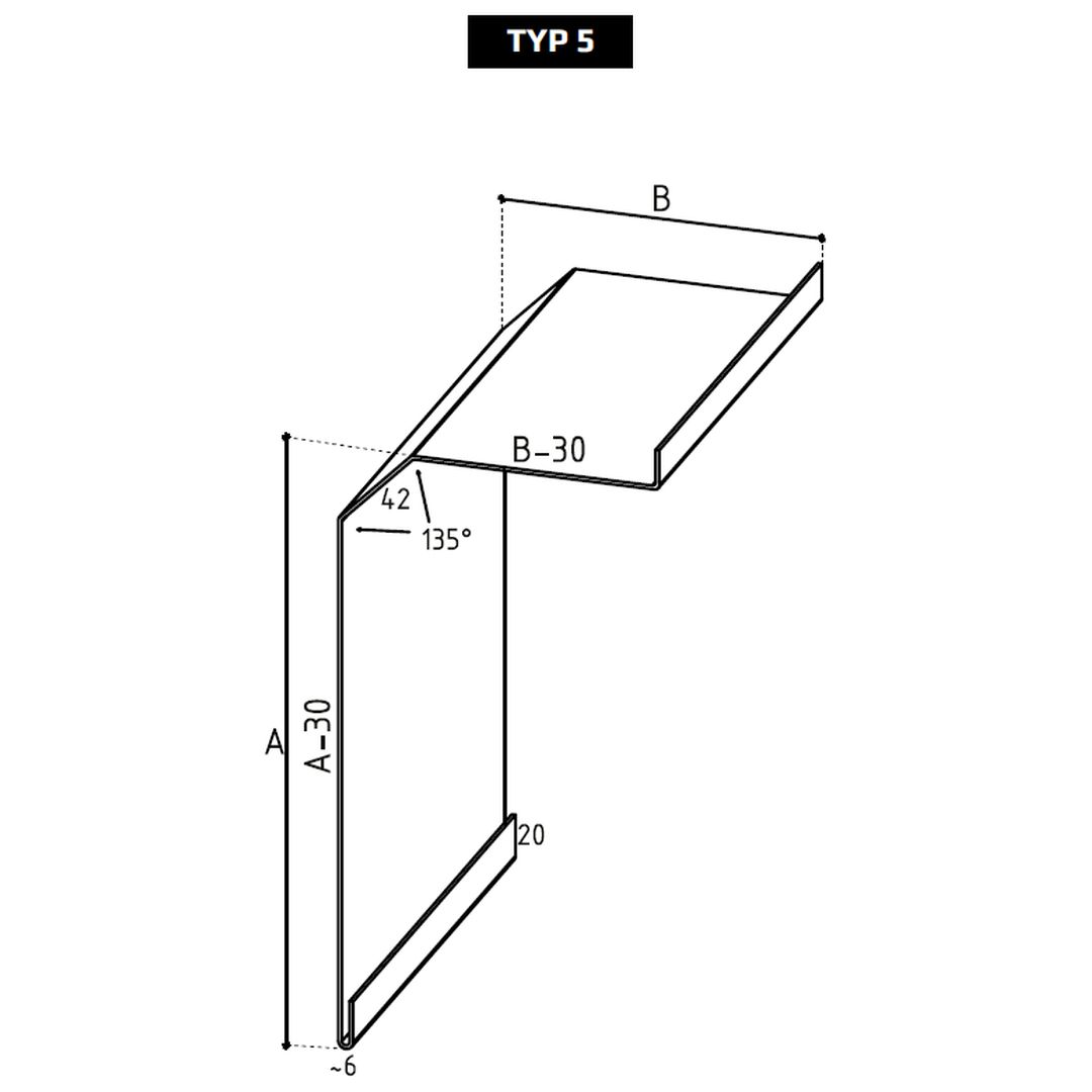
Raffstore Abdeckblenden Typ 5

Abdeckblende 5

Raffstore Abdeckblenden Typ 6-220 OVAL

Abdeckblende 6-220 OVAL

Raffstore Abdeckblenden Typ 6-280 OVAL

Abdeckblende 6-280 OVAL

Raffstore Konsolen der Oberschiene

Raffstore Konsole der Oberschiene Typ 1

Konsole der Oberschiene Typ 1

Raffstore Konsole der Oberschiene Typ 1a

Konsole der Oberschiene Typ 1a

Raffstore Konsole der Oberschiene Typ 2

Konsole der Oberschiene Typ 2

Raffstore Konsole der Oberschiene Typ 2a

Konsole der Oberschiene Typ 2a

Raffstore Konsole der Oberschiene Typ 2P

Konsole der Oberschiene Typ 2P

Raffstore Konsole der Oberschiene Typ 2aP

Konsole der Oberschiene Typ 2aP

Raffstore Konsole der Oberschiene Typ 3

Konsole der Oberschiene Typ 3

Raffstore Konsole der Oberschiene Typ 3a

Konsole der Oberschiene Typ 3a

Raffstore Konsole der Oberschiene Typ 4

Konsole der Oberschiene Typ 4

Raffstore Konsole der Oberschiene Typ 4a

Konsole der Oberschiene Typ 4a

Raffstore Konsole der Oberschiene Typ 4p

Konsole der Oberschiene Typ 4P

Raffstore Konsole der Oberschiene Typ 4aP

Konsole der Oberschiene Typ 4aP

Raffstore Konsolen der Oberschiene Führungselemente

Raffstore Konsole der Oberschiene Führungselement NS/BK Querschnitt

Führungselement NS/BK

Raffstore Konsole der Oberschiene Führungselement NS+80/BK Querschnitt

Führungselement NS+80/BK

Raffstore Konsole der Oberschiene Führungselement NS45/BK45 Querschnitt

Führungselement NS45/BK45

Raffstore Konsole der Oberschiene Führungselement NS und NS+80 / BK

Führungselement NS und NS+80/BK

Raffstore Konsole der Oberschiene Führungselement NS45/BK45

Führungselement NS45/BK45

Raffstore Führungsschienen

Raffstore Führungsschiene Typ 1

Führungsschiene Typ 1

Raffstore Führungsschiene Typ 2

Führungsschiene Typ 2

Raffstore Führungsschiene Typ 3

Führungsschiene Typ 3

Raffstore Führungsschiene Typ 4

Führungsschiene Typ 4

Raffstore Führungsschiene Typ 4b

Führungsschiene Typ 4b

Raffstore Führungsschiene Typ 5 SST

Führungsschiene Typ 5 SST

Raffstore Führungsschiene Typ 6 OV

Führungsschiene Typ 6 OV

Raffstore Führungsschiene Typ 7 OV

Führungsschiene Typ 7 OV

Raffstore Führungsschiene Typ 8 PT

Führungsschiene Typ 8 PT

Raffstore Führungsschiene Typ 9 SSHD

Führungsschiene Typ 9 SSHD

Raffstore Führungsschiene Typ 10 SC45

Führungsschiene Typ 10 SC45

Raffstore Führungsschienen-Distanzhalter

Raffstore Führungsschienen-Distanzhalter Typ N

Führungsschienen-Distanzhalter Typ N

Raffstore Führungsschienen-Distanzhalter Typ TL

Führungsschienen-Distanzhalter Typ TL

Raffstore Führungsschienen-Distanzhalter Typ TLW

Führungsschienen-Distanzhalter Typ TLW

Raffstore Führungsschienen-Distanzhalter Typ SST

Führungsschienen-Distanzhalter Typ SST

Raffstore Führungsschienen-Distanzhalter Typ SSHD

Führungsschienen-Distanzhalter Typ SSHD

Raffstore Führungsschienen-Distanzhalter Typ OV

Führungsschienen-Distanzhalter Typ OV

Raffstore Führungsschienen-Distanzhalter Typ SC45

Führungsschienen-Distanzhalter Typ SC45

Lamellenformen und -typen für Raffstore

Raffstore Lamelle C80

Lamellentyp C80

Raffstore Lamelle C80F Flach

Lamellentyp C80F Flach

Raffstore Lamelle Z90

Lamellentyp Z90

Arretierung von Lamellen

Raffstore Lamellen Arretierung ARET 2

Arretierung ARET 2 - Standard

Raffstore Lamellen Arretierung ARET 5

Arretierung ARET 5

Raffstore Lamellen Arretierung Stahlseil

Arretierung Stahlseil

Raffstore mit Seilführung

Raffstore-Lamelle C-80 L mit Seilführung

Lamelle C-80 L mit Seilführung

Raffstore-Lamelle C-80F L mit Seilführung

Lamelle C-80F L mit Seilführung

Raffstore-Lamelle Z-90 L mit Seilführung

Lamelle Z-90 L mit Seilführung

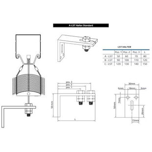
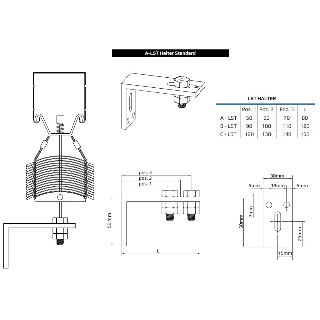
Raffstore Seilführung A-LST Halter

Seilführung A-LST Halter

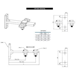
Raffstore Seilführung LSP Halter beidseitig

Seilführung LSP Halter

Raffstore Seilführung LPD Halter Boden

Seilführung LPD Halter Boden

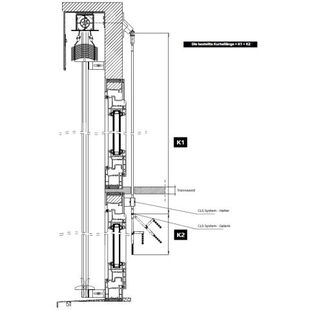
Steuerung mit Kurbel

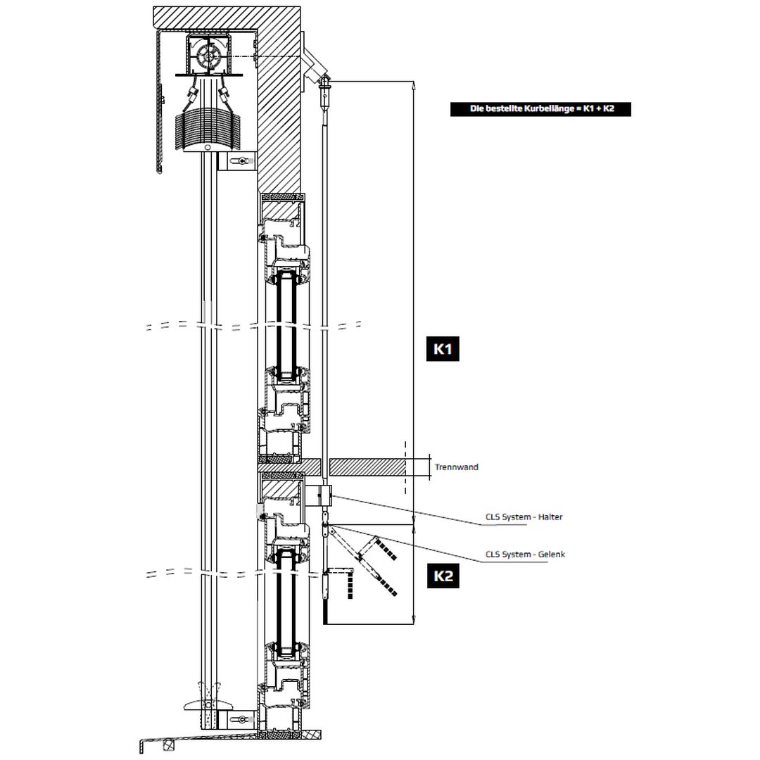
Raffstore mit Gelenkkurbel CLS

Gelenkkurbel CLS

Raffstore mit KDZ Kurbel

Kurbel KDZ

Verbindungsmöglichkeiten von Raffstores

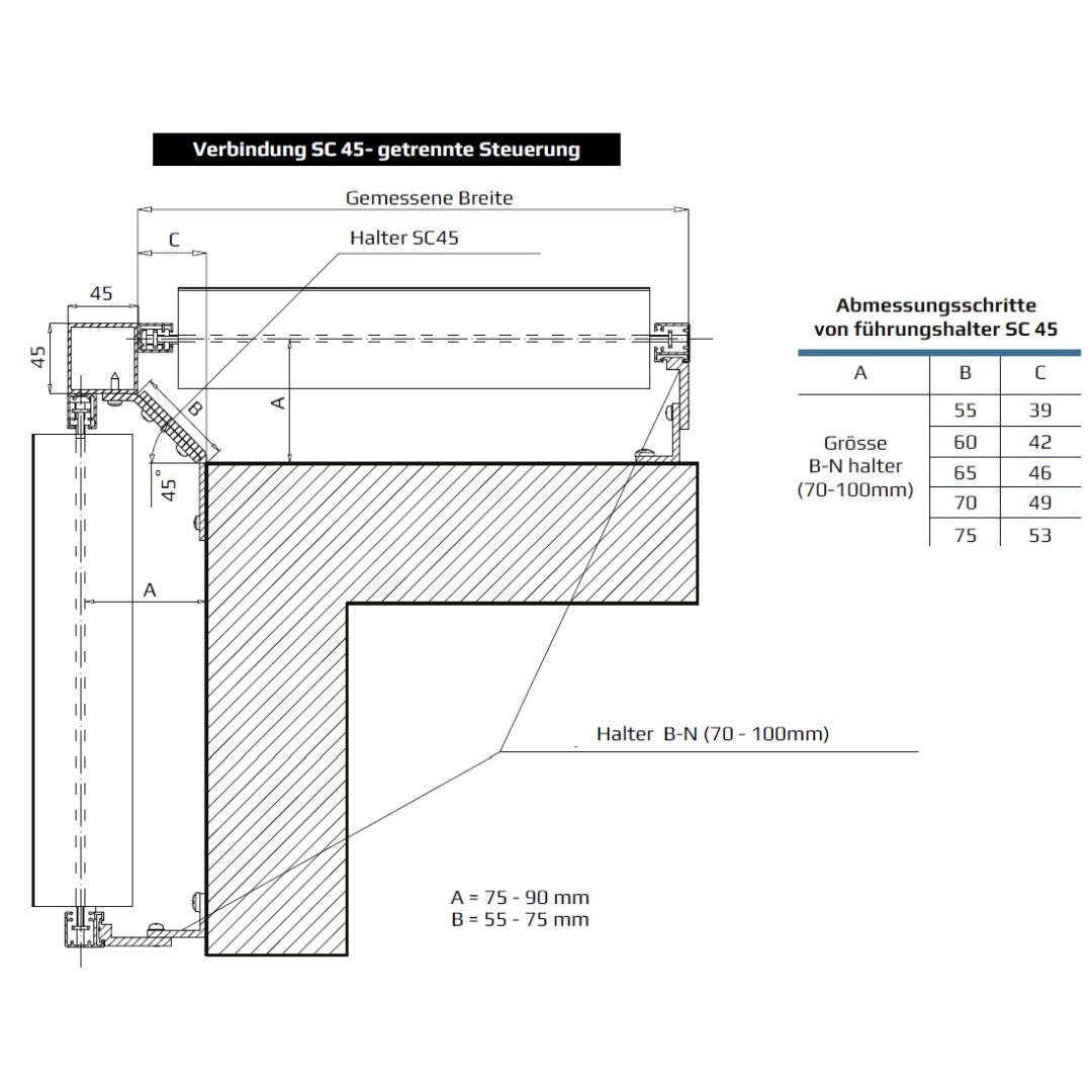
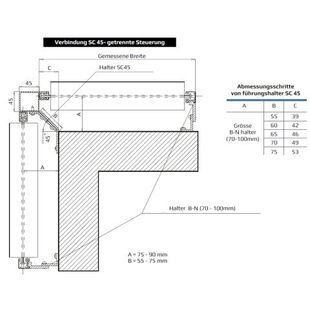
Raffstore Verbindung SC45 getrennte Steuerung

Verbindung SC45 getrennte Steuerung

Raffstore Verbindung JC90 gemeinsame Steuerung

Verbindung JC90 gemeinsame Steuerung

Raffstore Verbindung JC45 gemeinsame Steuerung

Verbindung JC45 gemeinsame Steuerung

Raffstore Verbindung JC180 gemeinsame Steuerung

Verbindung JC190 gemeinsame Steuerung

Raffstore Verbindung JC90 und JC45 Muster-Beispiel

Beispiel - Verbindung JC90 und JC45

Raffstore Verbindung JC180 Muster-Beispiel

Beispiel - Verbindung JC180

Buitenjaloezieën op maat configureren

Buitenjaloezieën eenvoudig en comfortabel online configureren en bestellen bij kozijnenblik.nl!

Das könnte Sie auch interessieren:

Raffstore SKB Styroterm

Detailzeichnungen Raffstoer SKB Styroterm

Raffstore-Systeme SKB Styroterm - Flexible Beschattung und effektive Dämmung.

Detailzeichnungen Raffstore SKB Styroterm

Raffstore CleverBox

Detailzeichnungen Aufsatz-Raffstore CleverBox

Hochstabiler Aufsatz-Raffstore CleverBox für jeden Tag.

Detailzeichnungen Raffstore CleverBox