Eenvoudig en comfortabel Gealan kozijn S9000 online configureren en bestellen bij kozijnenblik.nl
Kunststof kozijn - Gealan S 9000
Optimale statica voor grote constructies
- 6-kamersysteem met 82,5mm opbouwdiepte
- 3 dichtingsniveaus van EPDM
- 3-voudig / 4-voudig glas
- Glaspakketten tot 54mm
- Veiligheidsbeslag met paddenstoelvergrendeling
- Optioneel: Glas met STV-technologie en kleuring van het oppervlak met acrylcolor-technologie
vanaf 40,52 €
incl. 21% BTW excl. verzendkosten
Productbeschrijving
Gealan S 9000 – Optimale statica voor grote kozijnconstructies met hoge warmte-isolatie
De kwaliteitsprofielen S9000 bieden een sterke statica en maken in combinatie met de STV-technologie bijzonder grote constructies mogelijk, zelfs zonder dwarsbalken. De Gealan S 9000 kozijnen hebben een 6-kamersysteem met een opbouwdiepte van 82,5 mm en 3 dichtingsniveaus (MD). De grote inbouwdiepte maakt maximale glaspakketten mogelijk van tot 54 mm met STV-technologie en tot 52 mm met klassieke beglazing. Bij de STV-droogbeglazings-technologie wordt het glas met de vleugelrand verlijmd, waardoor bijzonder hoge vleugelconstructies mogelijk worden. De kleeftechniek STV® maakt het mogelijk om elementen tot een hoogte van 2,50 m in wit en tot 2,40 m in kleur te realiseren. Voor een bijzonder grote kleurvariëteit is er een breed scala aan decorfolie beschikbaar voor de profielen. Tegelijkertijd is het ook mogelijk om de buitenkant te kleuren met de acrylcolor-technologie. De acrylcolor-technologie verhoogt ook de weerstand tegen beschadigingen en krassen. Overtuig uzelf van het energiezuinige profiel S9000 en configureer eenvoudig uw wenskozijnen online in de kozijnconfigurator.
Voordelen van het kunststof kozijn Gealan S 9000:
Profiel:
Hoge kwaliteit 6-kamersysteem met een inbouwdiepte van 82,5 mm voor uitstekende warmte-isolatie en veiligheid. Grote versterkingskamer met stalen wapening.
Beglazing:
De beglazing kan worden gekozen uit een breed scala aan speciale glazen met een glasdikte tot 54 mm. Grote keuze uit warmte-isolatie-, geluidsisolatie-, privacy- en inbraakwerende beglazingen.
Dichtingen:
De kunststof profielen hebben 3 dichtingsniveaus met een middenafdichting (MD) van EPDM.
Beslag:
Veiligheidsbeslag met paddenstoelvergrendeling. Voor een langere levensduur werken de beslagonderdelen in de zogenaamde droge kamer.
Grote keuze aan kleuren voor Gealan kozijnprofielen
Kozijn Gealan S 9000 op maat
Uitstekende statische eigenschappen met Gealan STV®
Het profiel systeem van Gealan kan worden uitgebreid met de innovatieve kleeftechnologie Gealan-STV®.
Het betreft de Statische-Droog-Beglazings technologie, waarbij het glas en de vleugelrand droog worden verlijmd. Zo wordt de stabiliteit van het glas op het vleugelraam overgedragen en wordt de algehele stabiliteit van het element verhoogd.
Bovendien wint het hierdoor aan een langere levensduur en een optimale functionaliteit. De kleeftechnologie waarop Gealan-STV® is gebaseerd, wordt niet alleen in de kozijnbouw toegepast, maar ook in de autobouw, in hernieuwbare energieën, in huishoudelijke apparaten en in de luchtvaart.
Kleurige kozijnen met GEALAN-acrylcolor®
Acrylcolor is een hoge kwaliteit oppervlakte die bijzondere eigenschappen biedt voor kozijn- en deurprofielen, waarmee kunststof kozijnen worden verzegeld met duurzaamheid en bescherming.
Acrylcolor ontstaat door een co-extrusieproces waarbij het witte PVC-onderlichaam en het gekleurde acrylglas (PMMA) met elkaar versmelten. Acrylglas bewijst zich door zijn kwaliteit als een hoogwaardig product in de automobielindustrie (achterlichten) evenals in de interieurarchitectuur.
Kozijnen met GEALAN-acrylcolor® voldoen aan de hoogste technische en functionele eisen voor innovatieve, gekleurde oppervlakken.
Premiumdorpel GEALAN-COMFORT®: Toegankelijkheid opnieuw gedefinieerd
De GEALAN-COMFORT® Premiumdorpel stelt nieuwe normen in ontwerp en functionaliteit voor een barrièrevrije woning. Deze innovatieve dorpel valt op door zijn vloerniveau, waardoor een naadloze en esthetisch aantrekkelijke overgang tussen binnen- en buitenruimtes wordt gecreëerd.
Geschikt voor alle raamvarianten van het systeemplatform S 9000, biedt GEALAN-COMFORT® een vloeiende, struikelvrije toegang die vooral van belang is voor mensen met beperkte mobiliteit. De integratie van een krachtige mechanische afdichtingsdichting garandeert bovendien een uitstekende afdichting tegen slagregen en wind.
Dit modulaire systeem combineert technische innovaties met eenvoudige verwerking om eigentijdse en comfortabele overgangsoplossingen voor nieuwbouw en renovaties te bieden, die voldoen aan de toegankelijkheidsnormen volgens DIN 18040.
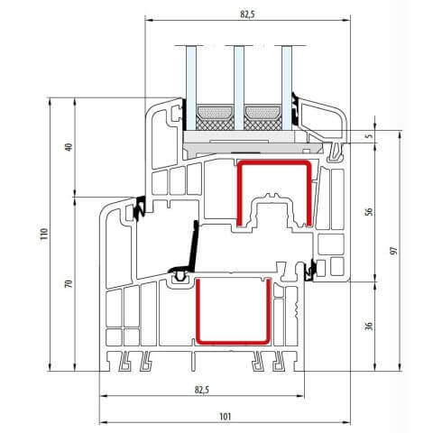
Technische doorsneden en detailtekeningen
Neemt u het ook graag tot in de kleinste details? Plan dan nu uw bouwproject tot in de puntjes met de praktische profielsneden en andere technische tekeningen van het Gealan S 9000 profiel. Hier worden niet alleen verschillende mogelijkheden getoond, maar kunt u ook de mechanismen van de profielfunctionaliteit bekijken en de verschillen tussen verschillende profielen beoordelen. Daarnaast worden de mogelijke extra profielen zoals bankaansluitingen, raamverbredingen of koppelingen voor het Gealan S9000 systeem opgesomd. Zo voegt het kozijnsysteem zich perfect in elke omgeving in. Dankzij de diverse detailtekeningen kunt u een nauwkeurige planning maken en zo een optimaal montageresultaat behalen.
Gratis levering
Bij een bestelling van 10 ramen of meer in Nederland!
Andere kozijnsystemen van Gealan:
Gealan Kozijn | Gealan S 8000 | Gealan Lumaxx® | Gealan Linear® | Gealan Kontur® | Gealan Kubus® | Gealan S 9000 NL | Gealan Kontur® met Alu-Vosatzschale | Gealan S 9000 met Alu-Vosatzschale
Samenvatting: Productinformatie
Kunststof kozijn Gealan S 9000
Het Gealan S9000 kozijn van hoogwaardig kunststof bestaat uit een 6-kamersysteem met een opbouwdiepte van 82,5mm en beschikt over 3 dichtingsniveaus. Optioneel met STV-droogbeglazings-technologie en kleuring met acrylcolor-technologie.
- Merk: Gealan
- Profiel: S 9000
- Materiaal: Kunststof kozijn
- Breedte: vanaf 360 mm
- Hoogte: vanaf 395 mm
- Kleur: Wit (andere kleuren mogelijk)
- Beschikbaarheid: Leverbaar
- Staat: Nieuw
- Prijs: Op aanvraag
- Online winkel: kozijnenblik.nl
