Eenvoudig en comfortabel Aluplast IDEAL Neo 76 mm kozijnen online configureren en bestellen bij kozijnenblik.nl
Kunststof kozijnen – Aluplast IDEAL Neo AD en MD 76 mm
Design en technologie komen samen
- Inbouwdiepte van 76 mm
- Dubbel / triple glas
- Glaspakketten tot 52 mm
- Veiligheidsbeslag Roto NT
- Kubistische designvorm
Verschil tussen Ideal Neo AD / MD:
- AD: 5-kamer (kozijn), 6-kamer (vleugel)
- AD: 2 afdichtingsniveaus van EPDM
- AD: Aanzichtbreedte 110 mm
- MD: 6-kamer (kozijn), 6-kamer (vleugel)
- MD: 3 afdichtingsniveaus van EPDM (Secure Inside)
- MD: Aanzichtbreedte 110 mm
vanaf 25,40 €
incl. 21% BTW excl. verzendkosten
Productbeschrijving
Aluplast IDEAL Neo AD/MD 76 mm – design ontmoet technologie
De IDEAL Neo kenmerkt zich door extreem slanke profielaanzichten met een kubistisch design. De systeemserie IDEAL Neo is verkrijgbaar in 2 varianten:
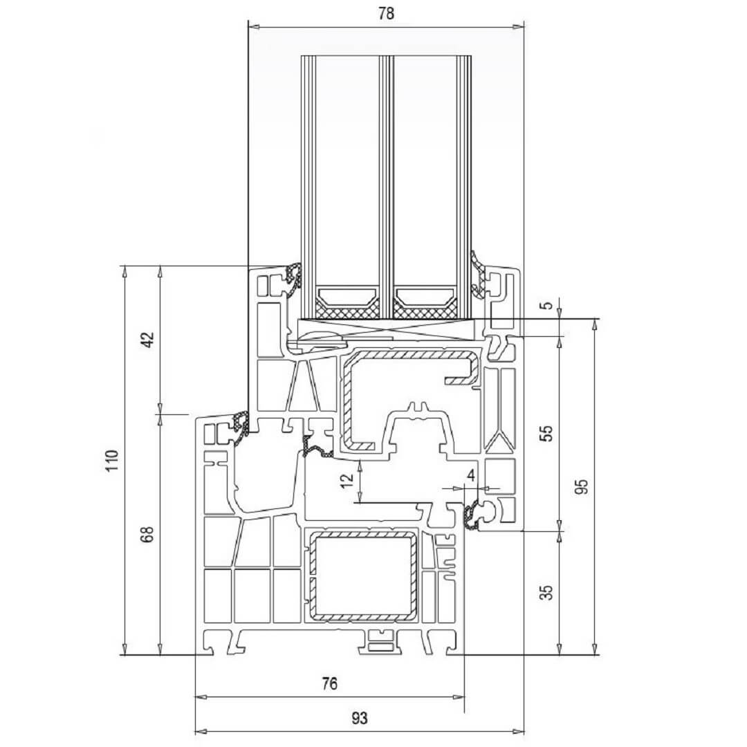
Het Aluplast IDEAL Neo AD kozijn beschikt over een 5-kamersysteem in het kozijn en een 6-kamersysteem in de vleugel, met een inbouwdiepte van 76 mm en 2 afdichtingsniveaus (AD). De aanzichthoogte bedraagt 110 mm. De profielen met een inbouwdiepte van 76 mm bieden bovendien veel mogelijkheden bij de keuze van glaspakketten met een glasdikte tot 52 mm. Daarnaast beschikt het IDEAL Neo AD-profiel over een volledige staalversterking in het kozijn, waardoor de veiligheidsbeslagen direct in staal worden bevestigd.
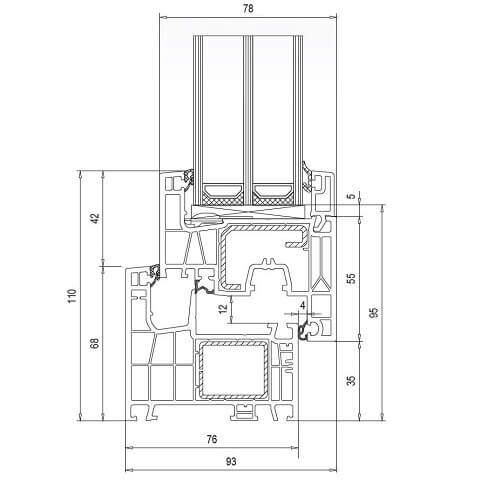
Het Aluplast IDEAL Neo MD kozijn heeft een 6-kamersysteem in zowel het kozijn als de vleugel, eveneens met een inbouwdiepte van 76 mm. De geringe aanzichthoogte van slechts 110 mm zorgt voor veel natuurlijk licht in de ruimte, wat bijdraagt aan een hoger wooncomfort. Daarnaast is het IDEAL Neo MD-profiel uitgerust met een afdichtingssysteem bestaande uit twee aanslagdichtingen en een middendichting (MD). Als derde afdichting in het kozijn zorgt de rondomlopende middenstijl enerzijds voor verbeterde thermische isolatiewaarden en anderzijds voor extra inbraakwerendheid door het moeilijker ophevelen van de vleugel. Voor een langere levensduur werken de beslagen in de zogenoemde droge kamer.
Standaard worden de IDEAL Neo kozijnen uitgevoerd met dubbel glas. Voor betere isolatiewaarden wordt driedubbel glas in combinatie met een warme rand aanbevolen. Dit helpt energie te besparen, grondstoffen te ontzien en CO₂-uitstoot te verminderen. De isolerende afstandhouder verbetert niet alleen de thermische prestaties van het glas, maar verkleint ook het risico op voortijdige condensvorming aan de glasrand. Configureer nu eenvoudig uw Aluplast kozijnen online, volledig naar uw eigen wensen!
Voordelen van het kunststof kozijn Aluplast IDEAL Neo 76 mm:
Profiel:
Hoogwaardig 5-/6-kamerprofiel met een inbouwdiepte van 76 mm voor uitstekende thermische isolatie en veiligheid. Grote verstevigingskamer met staalversterking.
Beglazing:
De beglazing kan worden gekozen uit een breed assortiment speciaal glas met een glasdikte tot 52 mm. Ruime keuze uit thermisch isolerend glas, geluidswerend glas, privacyglas en inbraakwerend glas.
Afdichtingen:
De kunststof profielen hebben 2 afdichtingsniveaus (AD) of 3 afdichtingsniveaus (MD) van EPDM, voor optimale bescherming.
Beslag:
Veiligheidsbeslag van Roto NT. Een grote verstevigingskamer met staalversterking zorgt bovendien voor de benodigde stabiliteit.
Kunststof kozijn Aluplast IDEAL Neo – verschil tussen de thermische varianten AD en MD
Kunststof kozijn Aluplast IDEAL Neo AD – profielaanzichten
Kunststof kozijn Aluplast IDEAL Neo MD – profielaanzichten
Grote keuze aan kleuren voor Aluplast kozijnprofielen
Aluplast IDEAL Neo 76 mm kozijnen op maat
Technische doorsneden en detailtekeningen
Maakt u het ook graag precies? Plan dan nu uw bouwproject tot in de kleinste details met de praktische profieldoorsneden en andere technische tekeningen van het profiel IDEAL Neo. Hier worden niet alleen verschillende mogelijkheden getoond, maar kunt u ook de mechanismen van de profielfunctionaliteit inspecteren en de verschillen tussen de verschillende profielen beoordelen. Daarnaast worden de mogelijke extra profielen zoals vensterbankaansluitingen, profielverbreidingen of koppelingen voor het IDEAL Neo systeem vermeld. Zo past het kozijnsysteem perfect in elke omgeving. Dankzij de uitgebreide detailtekeningen kunt u een nauwkeurige planning maken en zo een optimaal montage-resultaat behalen.
Kunststof kozijnen Aluplast IDEAL Neo AD/MD - Vergelijking technische doorsneden
Aluplast IDEAL Neo 76 mm kozijnen op maat
Eenvoudig en comfortabel Aluplast IDEAL Neo 76 mm kozijnen online configureren en bestellen bij kozijnenblik.nl
Andere kozijnsystemen van Aluplast:
Aluplast kozijnen | Aluplast IDEAL 4000 | Aluplast IDEAL 5000 | Aluplast IDEAL 7000 | Aluplast IDEAL 8000 | Aluplast energeto 8000
Samenvatting: productinformatie
Kunststof kozijnen IDEAL Neo AD/MD 76 mm
Het Aluplast IDEAL Neo kozijn met een inbouwdiepte van 76 mm is opgebouwd uit een 5-/6-kamerprofiel en beschikt over 2 respectievelijk 3 afdichtingsniveaus. Met de moderne beslagen met paddenstoelvergrendeling worden hoge veiligheidsprestaties en energiebesparing behaald.
- Merk: Aluplast
- Profiel: IDEAL Neo
- Materiaal: Kunststof kozijnen
- Breedte: vanaf 360 mm
- Hoogte: vanaf 395 mm
- Kleur: Wit (andere kleuren mogelijk)
- Beschikbaarheid: Leverbaar
- Staat: Nieuw
- Prijs: Individueel configureerbaar
- Online shop: kozijnenblik.nl





