Configureer en bestel eenvoudig en comfortabel Aluplast ramen en deuren online bij kozijnenblik.nl
Aluminium kozijn Aliplast Superial (Standard, i en i+)
Stabiele oplossing met innovatieve warmte-isolatie
- 3-kamersysteem van hoogwaardig aluminium
- 3 systeemvarianten: ST, i en i+
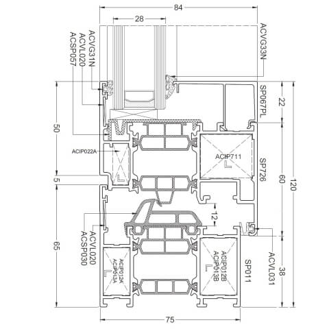
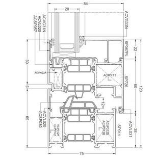
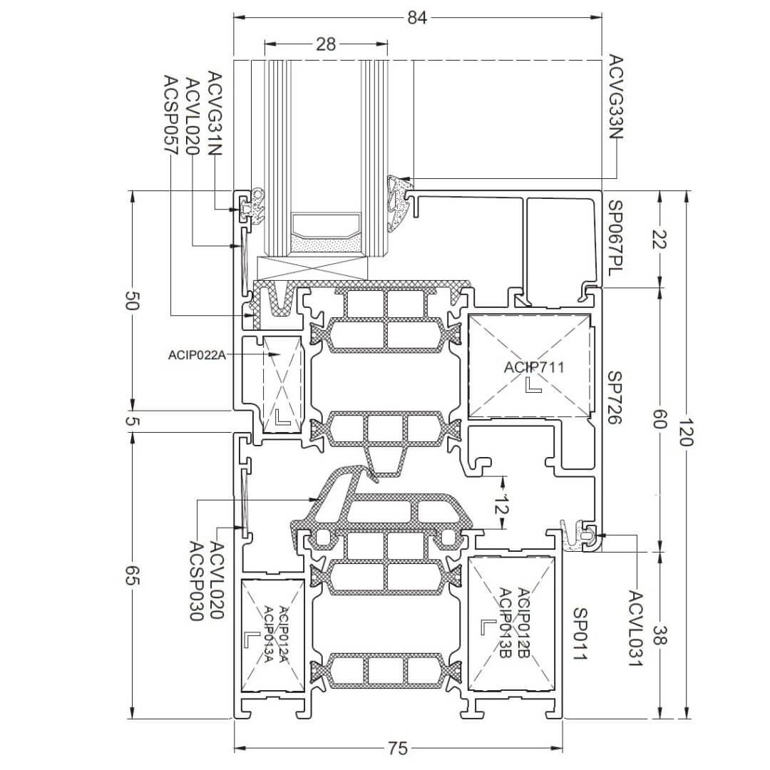
- Inbouwdiepte van het frame: 75 mm
- Vleugeldiepte: 84 mm
- Maximale glasdikte tot 61 mm
- Thermische scheiding voor uitstekende warmte-isolatie
vanaf 142,21 €
incl. 21% BTW excl. verzendkosten
Productbeschrijving
Uitstekende warmte-isolatie en veelzijdigheid op alle niveaus
De Aliplast serie Superial bestaat uit een 3-kamersysteem met thermische scheiding en kenmerkt zich door een verhoogde warmte-isolatieprestatie. Het aluminium systeem Superial is verkrijgbaar in de varianten Standard, SU en OUT. Daarnaast kan de warmte-isolatie worden verbeterd met de uitvoeringen i en i+. Een SP i+ kozijn heeft speciale warmte-isolatie-inlagen die tussen de isolatiestegen en rondom de glazen worden ingebouwd. Deze verhogen de warmte-isolatieparameters. Superial i+ kozijnen kunnen zowel in openbare gebouwen als in eengezins- of meergezinswoningen worden gebruikt. Voor een verborgen, van buiten onzichtbaar kozijn, is de variant SP SU bedoeld. Deze versie maakt het mogelijk om kozijnen in een aluminium of glazen gevel in te bouwen zodat ze "verborgen" zijn. Het aluminium profiel SP OUT is ontwikkeld voor kiepkozijnen en naar buiten openende kozijnen. Het bijzondere aan deze variant is dat het binnenoppervlak van het kozijn en het raam gelijk loopt, zodat het volledige binnengebied vrij te gebruiken is. De kleuraanpassing van de Aliplast serie Superial kan worden gedaan volgens uw persoonlijke wensen en ideeën dankzij de bijna eindeloze kleurkeuze van RAL-kleuren, structurele kleuren, houtkleuren Aliplast Wood Colour Effect, anodisatie of dubbelkleurige afwerkingen.
Voordelen van het Aliplast Superial kozijn:
Profiel:
3-kamersysteem van aluminium met thermische scheiding; optioneel met warmte-isolatie-inlagen en isolatiestegen in de varianten i en i+
Beglazing:
2- tot 3-voudige isolerende beglazing tot een dikte van 61 mm; optioneel kunnen speciale glazen worden toegepast
Afdichtingen:
Afdichtingen met hoge weerstand tegen vocht en weersomstandigheden
Beslag:
Hoogwaardige merksluitingen voor duurzame functionaliteit en hoge inbraakbeveiliging
Aluminium kozijn Aliplast Superial - Verschil thermische varianten Superial ST, i en i+
Aluminium systeem Aliplast Superial Standard - Profielweergaven
Aluminium systeem Aliplast Superial i+ - Profielweergaven
Breed scala aan kleuren voor meer kleurnuances
Die präsentierten Farben und Maserungen können von der Realität abweichen. (Klicken Sie auf Ihre Wunschfarbe)
Technische doorsnedes en detailtekeningen
Bij de planning van uw bouwproject is precisie van essentieel belang. Onze gedetailleerde beschrijvingen en technische tekeningen van het Aliplast Superial profiel bieden u inzicht in de exacte afmetingen en dimensies van de elementen. We bieden een uitgebreide verzameling van plannen en detailtekeningen die u helpen bij de montage en het vergelijken van de technische eigenschappen van het Aliplast Superial profiel. Ook kunnen de verschillen tussen de thermische varianten Standard, i en i+ worden vastgesteld. Als u bijvoorbeeld rolluiken overweegt en beperkte zijruimte heeft, kan het nodig zijn om het frame te verbreden om de gordijnrol op te nemen. De exacte afmetingen en verschillende koppelvarianten worden gedetailleerd weergegeven in de bijbehorende doorsnedes. Neem bij behoefte contact op met onze technische adviseurs voor het ontvangen van de doorsnedes en profieldoorsneden.
Aliplast kozijnen en deuren op maat
Meer producten van Aliplast:
Aliplast kozijnen | Aliplast Superial | Aliplast Econoline | Aliplast Genesis 75 | Aliplast Star 90 | Aliplast Superial 800 deuren | Aliplast Econoline deuren
Samenvatting: Productinformatie
Aluminium kozijn Aliplast Superial
Het hoogwaardige aluminium profiel Aliplast Superial bestaat uit drie kamers met thermische scheiding. De variant i+ heeft speciale warmte-isolatie-inlagen. Zo worden uitstekende warmte-isolatiewaarden bereikt. Daarnaast biedt het aluminium systeem diverse ontwerpmogelijkheden.
- Merk: Aliplast
- Profiel: Superial
- Materiaal: Aluminium
- Kleur: Wit (andere RAL-kleuren mogelijk)
- Beschikbaarheid: Leverbaar
- Staat: Nieuw
- Prijs: Op aanvraag
- Online winkel: kozijnenblik.nl








