4-delige hefschuifpui met panoramisch uitzicht op het terras

Hefschuifpuien op maat

Het premiumproduct onder de panoramaschuifpuien! Stap binnen in een wereld vol licht en gezelligheid. De royale elementen van hefschuifpuien laten uw woning baden in helder daglicht en verhogen uw wooncomfort. Een stabiele constructie met een maximaal glasoppervlak en optimaal gebruiksgemak wordt hier gecombineerd met slimme technische details. Speciaal vervaardigd beslag en geleiderails maken het mogelijk om de deurvleugel kinderlijk eenvoudig, zonder krachtinspanning, te openen en te sluiten.

Hef-schuifdeuren in verschillende materialen

Hef-schuifdeuren in verschillende materialen

Bij kozijnenblik.nl stel je jouw hef-schuifdeur volledig samen op basis van je persoonlijke wensen en de bouwkundige situatie. Een van de belangrijkste keuzes is het materiaal en het profiel, omdat deze van invloed zijn op energie-efficiëntie, weersbestendigheid, levensduur, onderhoud, veiligheid, stabiliteit en geluidsisolatie. In de online configurator kun je kiezen uit hef-schuifdeuren van kunststof en aluminium. Hef-schuifdeuren van hout of de combinatie hout-aluminium kun je eveneens bij ons aanvragen. Onze vakspecialisten adviseren je graag en stellen vrijblijvend een offerte voor je op.

In de HS-configurator bepaal je daarnaast het type en de afmetingen. Zo kun je onder andere het aantal vleugels en de openingsrichting kiezen. Verder selecteer je de beglazing en de kleur en kun je diverse accessoires toevoegen. Het grote voordeel van de online configurator is de volledige prijstransparantie: bij elke stap zie je direct de actuele prijs. Configureer vandaag nog jouw nieuwe hef-schuifdeur en ontvang snel een reactie van onze medewerkers.

In 5 stappen naar jouw nieuwe hef-schuifdeur – zo werkt het

1. Materiaal & profiel

Kunststof, hout of aluminium – kies een van de materialen en bepaal vervolgens het gewenste profiel.

2. Type en afmetingen

Stem de grootte, vorm en openingsrichting van de hef-schuifdeur af op jouw woning – of het nu gaat om een klassieke rechthoek of een speciale vorm.

3. Kleuren en glas

Geef je woning een eigen uitstraling met een kozijnkleur of decor. Met de keuze van de beglazing bepaal je het wooncomfort.

4. Accessoires

Met uitgebreid accessoires voor je hef-schuifdeur stel je alles helemaal naar wens samen: van roeden en rolluiken tot extra veiligheidsopties.

5. Hef-schuifdeur online bestellen

Dank veilige betaalmogelijkheden en een transparant kostenoverzicht stel je jouw nieuwe schuifdeur zorgeloos samen. Levering is gratis vanaf 10 kozijnen. Alle bestellingen worden zorgvuldig gecontroleerd door ons vakpersoneel.

Hef-schuifdeuren: advies, nuttige informatie en tips

Aluminium hef-schuifdeur in de wintertuin
Inhoudsopgave - Deze onderwerpen komen aan bod

Hef-schuifdeuren kenmerken zich door hun grote panorama-schuifpuien. De royale glaspartij zorgt voor veel lichtinval, zelfs op donkere winterdagen, en laat elke ruimte lichter aanvoelen. Zo ontstaat een aangename sfeer die uitnodigt tot ontspannen én werken. Ben je bezig met een nieuw woonconcept of staat er een renovatie op de planning, dan zijn hef-schuifdeuren van kozijnenblik.nl een verstandige investering. Energiebesparende profielen, isolerende beglazing en hoogwaardige afdichtingssystemen zorgen onder andere voor een uitstekende thermische isolatie. Dit resulteert in lagere stookkosten in de winter en aangenaam koele temperaturen in de zomer. Ook op het gebied van veiligheid zit je goed dankzij hoogwaardige veiligheidsbeslagen. Bovendien kan het vervangen van kozijnen en deuren in sommige gevallen worden gesubsidieerd.

Waarom hef-schuifdeuren kopen? Voordelen van het terrasdeursysteem

Hef-schuifdeuren bieden dankzij hun grote glasoppervlakken een uniek uitzicht en een enorme lichtinval. Zelfs de donkerste winterdagen worden zo gevuld met natuurlijk licht. Op die manier ontstaat een warme en positieve sfeer die inspireert in het dagelijks leven. Dankzij het ruimtebesparende openingsmechanisme nemen hef-schuifdeuren geen plaats in beslag in de woonruimte en bieden ze veel vrijheid bij de inrichting. Uitstekende thermische isolatie wordt gegarandeerd door meervoudige beglazing, een innovatief afdichtingssysteem en hoogwaardige profielen. Ook de ruime keuze aan materialen draagt hieraan bij. De hoge kwaliteit van alle onderdelen komt tot uiting in de stabiliteit en lange levensduur van de elementen.

Voordelen van hefschuifpuien

  • Comfortabele bediening zonder krachtinspanning – ook bij grote en zware vleugels
  • Flexibele indeling en voldoende vrije ruimte dankzij het hef-schuifmechanisme
  • Innovatief afdichtingssysteem, hoogwaardig profiel en HR-glas voor optimale energie-efficiëntie
  • Ruime materiaalkeuze: voordelig kunststof, isolerend hout en robuust aluminium
  • Grote glaspartijen voor een vriendelijke, lichte sfeer in huis waar je graag blijft zitten

Nadelen van hefschuifpuien

  • Geen kiepfunctie
  • Hoge aanschafkosten

Hefschuifpuien kenmerken zich door:

Betrouwbare veiligheid voor jouw woning
Hoogwaardig veiligheidsbeslag biedt optimale inbraakbeveiliging met een driepuntshaakvergrendeling bij kunststof hef-schuifdeuren, evenals praktische microventilatiehaken voor veilig kierstand-ventileren, ook wanneer je niet thuis bent.

Duurzame stabiliteit
Voor de profielen worden uitsluitend materialen van indrukwekkende kwaliteit gebruikt. Ze zijn bijzonder robuust en duurzaam en worden volgens hoge standaarden geproduceerd. Zo kunt u langdurig genieten van uw schuifdeuren.

Optimaal bedieningscomfort
Een blijvend soepele werking wordt gegarandeerd door het hoogwaardige HS-beslag. Grote en zware vleugels kunnen met minimale kracht moeiteloos worden bediend en ook het onderhoud blijft zeer beperkt.

Voordelen van aluminium hefschuifdeuren

Vrije vormgeving
Dankzij de bijzonder ruimtebesparende constructie staat niets een individuele indeling van de ruimte in de weg. Planten, banken of andere meubels hoeven bij het openen van de HS-deur niet meer verplaatst te worden, omdat de deurvleugels niet de ruimte in draaien.

Uitstekende energie-efficiëntie
De combinatie van hoogwaardige profielen, emissiearm gecoate glaspakketten en een effectief afdichtingssysteem zorgt voor uitstekende thermische isolatiewaarden. Mogelijke koudebruggen worden voorkomen door thermische onderbrekingen.

Hefschuifpuien op maat

Eenvoudig en comfortabel hefschuifpuien online configureren en bestellen tegen scherpe prijzen bij kozijnenblik.nl

Werking: zo werkt een hefschuifdeur

Een geleiderail, een onderdorpel en een speciaal mechanisme in de deurkruk vormen de belangrijkste onderdelen van een hefschuifpui.

Om een hefschuifpui te openen, wordt de kruk in de juiste stand gedraaid. Daardoor wordt de vleugel licht opgetild en komt deze uit de gesloten en luchtdichte positie. Vervolgens schuift het element zijwaarts over de onderdorpel, wat een zwevend effect geeft.

Doordat het element over de rail beweegt en is uitgerust met looprollen, is er nauwelijks kracht nodig om de deur te openen en te sluiten. Bij het sluiten wordt de deur weer neergelaten, waardoor een optimale afdichting en winddichtheid opnieuw worden gegarandeerd.

Vergelijking van een parallel schuif-kiepdeur, een hefschuifpui en een vouwschuifdeur

De term schuifdeur omvat verschillende deursystemen: de parallel schuif-kiepdeur, de hefschuifpui en de vouwschuifdeur. Elk type deur heeft een eigen openingsmechanisme. Bij de parallel schuif-kiepdeur wordt de deur eerst gekanteld en vervolgens over twee looprails langs het vaste deel geschoven. Bij een hefschuifpui wordt de vleugel door het bedienen van de kruk, die is voorzien van een geïntegreerd mechanisme, opgetild. Met behulp van loopwielen kan deze daarna vrijwel zonder krachtinspanning over de geleiderails worden verplaatst. Bij een vouwschuifdeur kunnen de afzonderlijke delen dankzij het harmonica-effect worden ingevouwen en opzij geschoven.

Daarnaast verschillen de deursystemen ook op het gebied van toegankelijkheid en energie-efficiëntie. Zo kunnen hefschuifpuien en vouwschuifdeuren drempelloos worden geplaatst, terwijl dit bij parallel schuif-kiepdeuren niet mogelijk is. Hiervoor kan wel een lage dorpel worden toegepast. Meer informatie hierover is te vinden op de betreffende productpagina’s.

Hout-aluminium parallel schuif-kiepdeur
Hout-aluminium parallel schuif-kiepdeur
Hout-aluminium hefschuifpui
Hout-aluminium hefschuifpui
Houten vouwschuifdeur
Houten vouwschuifdeur

Wat kosten hefschuifpuien? Prijsvergelijking met de configurator

Bepalend voor de prijs van een hefschuifpui zijn het profielmateriaal en de afmetingen van de deur. Hoe groter de hefschuifpui, hoe hoger de prijs. Kunststof is bijvoorbeeld goedkoper dan hout, aluminium of de combinatie hout-aluminium. Hout behoort tot de natuurlijke materialen met een hoger prijsniveau, terwijl kunststof duidelijk voordeliger is in productie en verwerking. Daarnaast hebben ook het type beglazing, de kleur en diverse extra’s invloed op de prijs, zoals roeden, rolluiken of horren. Een hefschuifpui met dubbele beglazing is prijstechnisch aantrekkelijker dan een uitvoering met drievoudige of viervoudige beglazing. Ook geluidswerende of inbraakwerende eigenschappen, die eveneens van invloed zijn op de prijs, kunnen worden toegevoegd. In onze online configurator stelt u uw nieuwe hefschuifpui individueel en volledig transparant samen.

Overzicht: prijzen en kosten van hefschuifpuien

Materiaal Merk Profiel Prijs vanaf
Kunststof hefschuifpui Drutex IGLO HS EUR 2.490
Kunststof hefschuifpui Salamander HST evolutionDrive 82 EUR 3.190
Kunststof hefschuifpui Aluplast HST 85 Basic EUR 2.990
Kunststof hefschuifpui Aluplast HST 85 Premium EUR 3.290
Aluminium hefschuifpui Drutex MB-77HS EUR 3.790
Aluminium hefschuifpui Drutex MB-70HS HI EUR 4.490

Welk materiaal kiezen voor hefschuifpuien? De juiste materiaalkeuze

Een van de belangrijkste keuzes bij de aankoop van een hefschuifpui is het profielmateriaal. Dit bepaalt essentiële eigenschappen zoals energie-efficiëntie, geluidsisolatie en veiligheid. Ook materiaalcombinaties zoals kunststof-aluminium hefschuifpuien zijn mogelijk. Hieronder hebben we de belangrijkste kenmerken van de materialen die geschikt zijn voor een hefschuifpui voor u op een rij gezet.

Kunststof hefschuifpui

Het populairste materiaal bij onze klanten voor kozijnen en deuren is kunststof. Het is voordelig in aanschaf en breed toepasbaar. Afhankelijk van de gekozen uitvoering kan een profiel moeiteloos uitgroeien tot een premiumproduct. Kunststof elementen bieden uitstekende thermische isolatie, waardoor je op energiekosten kunt besparen. Het aantal kamers in een profiel beïnvloedt de warmte- en geluidsisolatie. Wil je een kunststof hefschuifpui zo veilig mogelijk maken, dan is het aan te raden om een stalen kern en veiligheidsbeslag toe te voegen. Dat verhoogt de stabiliteit en verbetert de inbraakwerendheid.

Houten hefschuifpui

Hout is bij uitstek geschikt voor de passiefbouw, omdat het van nature uitstekende thermische isolatie-eigenschappen heeft die geen enkel ander materiaal in dezelfde mate biedt. Houten elementen beschikken over zeer goede isolatiewaarden en warmen niet op door zonnestraling. Dankzij de houtnerf straalt hout “warmte” uit en geeft het elke ruimte een gezellige en charmante uitstraling. Bovendien is hout een hernieuwbare grondstof en daarmee milieuvriendelijk. Daarnaast zijn houten hefschuifpuien constructief zeer stabiel. Een nadeel is dat ze regelmatig met beits of lak moeten worden onderhouden, zodat het materiaal duurzaam en robuust blijft.

Aluminium hefschuifpui

De bijzondere statische eigenschappen, weersbestendigheid, het design en het geringe onderhoud maken aluminium tot een aantrekkelijk totaalpakket. Aluminium is zowel interessant voor openbare gebouwen als voor particuliere woningen. Enerzijds vragen intensief gebruikte toepassingen om hoge kwaliteit, anderzijds verdienen aluminium elementen zich op lange termijn terug doordat ze nauwelijks slijtage vertonen. Het is een modern bouwmateriaal dat licht van gewicht en onderhoudsarm is. Een nadeel is dat aluminium duurder is dan kunststof en van nature een lagere isolatiewaarde heeft. Deze kan echter worden verbeterd met speciale thermische onderbrekingen.

Hout-aluminium hefschuifpui

De combinatie van hout en aluminium bundelt de voordelen van beide materialen en vormt een hoogwaardig premiumproduct. De binnenzijde is van hout en de buitenzijde van aluminium. Hout zorgt voor een warme, luxe uitstraling en nodigt uit tot comfortabel wonen. Dankzij de hoge isolatiewaarde bespaar je in de winter op stookkosten en blijft het in de zomer aangenaam koel. De buitenzijde van stabiel en weerbestendig aluminium beschermt het hout, waardoor het minder onderhoud nodig heeft. Het aluminium oppervlak is bovendien glad en eenvoudig schoon te maken. Zo’n sterke combinatie valt vanzelfsprekend in het hogere prijssegment.

Welke fabrikant is geschikt voor hefschuifpuien?

Hefschuifpuien worden door verschillende grote fabrikanten geproduceerd. Wie online zoekt, raakt al snel het overzicht kwijt. Wij, kozijnenblik.nl, als experts in kozijnen en deuren, helpen u graag ook bij deze stap. Net als u stellen wij hoge eisen aan kwaliteit. ALUPLAST staat bekend om de series IDEAL en energeto. Het is een familiebedrijf dat gespecialiseerd is in kunststofsystemen. Het assortiment is breed: van instapmodellen tot premiumproducten. De Poolse systeemleverancier ALUPROF onderscheidt zich met stabiele aluminiumconstructies. Ook hier staat innovatie hoog in het vaandel. DRUTEX behoort tot de marktleiders op het gebied van kunststofsystemen en kan tot wel 7.000 kozijnen per dag produceren. Daarnaast maken zij ook kozijnen en deuren van hout, aluminium of hout-aluminium. Een andere gerenommeerde fabrikant, SALAMANDER, met de series Streamline, Brügmann en evolutionDrive, staat voor zeer energiezuinige kozijn- en deursystemen. Kwaliteit, service, leverbetrouwbaarheid en een uitgebreide productcatalogus zijn ook hier vanzelfsprekend.

Welke afmetingen hebben hefschuifpuien? Populaire maten

De toegang tot balkon, terras of tuin is van groot belang. Lichtinval, frisse lucht en zicht naar buiten hangen hier nauw mee samen. Hefschuifpuien van kozijnenblik.nl combineren comfort, individualiteit, flexibiliteit en hoge kwaliteit. Zo wordt de buitenruimte eenvoudig bereikbaar en oogt het interieur lichter en vriendelijker.

Populaire breedtematen voor hefschuifpuien zijn 2 m, 3 m, 4 m en 5 m. Toch wordt elke woning individueel ontworpen, waardoor er in feite geen vaste standaardafmetingen voor hefschuifpuien bestaan. Zowel persoonlijke wensen en voorkeuren als de bouwkundige situatie ter plaatse verschillen per project en per klant.

Onze populairste hefschuifpui-maten

Hefschuifpui 2 m

Hefschuifpui 2 m

Hefschuifpui 3 m

Hefschuifpui 3 m

Hefschuifpui 4 m

Hefschuifpui 4 m

Hefschuifpui 5 m

Hefschuifpui 5 m

Welke kleur is geschikt voor hefschuifpuien?

Een hefschuifpui wordt geïntegreerd in de gevel en moet daarom qua kleur passen bij de rest van de woning. Daarnaast benadrukt de kleur van een hefschuifpui het ontwerp en de uitstraling van het gebouw. In onze hefschuifpui-configurator ontdekt u alle beschikbare kleuren en kunt u verschillende opties, zoals afmetingen, type of glas, geheel naar uw persoonlijke wensen samenstellen. Klassiek wit, modern antraciet, stijlvol grijs of rustiek bruin? Dit zijn de populairste kleuren bij onze klanten. Welke kleur spreekt u aan? Afhankelijk van het profielmateriaal kan de afwerking verschillen. Kunststof hefschuifpuien worden bijvoorbeeld voorzien van decorfolies. Voor hefschuifpuien van hout of aluminium is er een breed scala aan RAL-lakken of natuurlijke houtlasuren beschikbaar. Voor een metalen uitstraling kan ook worden gekozen voor een anodiseerafwerking.

Onze populairste kleuren voor hefschuifpuien

Kunststof hefschuifpui in antraciet
Kunststof hefschuifpui in Golden Oak
Kunststof hefschuifpui in grijs
Kunststof hefschuifpui in wit

Productvideo - Drutex IGLO kunststof hefschuifpui

Magazine: meer onderwerpen rondom de uitrusting van hefschuifpuien

Zweven als op wolken – hefschuifpuien

Houten hefschuifpui in bruin
Gewoon lekker achteroverleunen en genieten

Het grote verschil tussen een hefschuifpui en een parallel schuif-kiepdeur of andere terrasdeuren zit in de manier van openen. De deurvleugel wordt niet simpelweg over rails geschoven, maar verplaatst zich op speciale loopwagens. Het doordachte systeem van hefschuifpuien bestaat uit een geleiderail, een onderdorpel en een speciaal mechanisme in de deurkruk.

Om de deur te openen, wordt de kruk in de juiste stand gezet, waardoor de vleugel licht wordt opgetild. Vervolgens rolt de deurvleugel op uiterst stabiele loopwagens zijwaarts over de onderdorpel en wekt daarbij de indruk alsof hij zweeft.

Dankzij dit systeem is er vrijwel geen krachtinspanning nodig en zijn zelfs zware deurvleugels moeiteloos te bedienen.

Een bijkomend voordeel is de hoge dichtheid van het systeem. Bij het sluiten wordt de deurvleugel weer neergelaten, waardoor deze uitstekend beschermt tegen wind en slagregen. Wilt u meer weten over schuifpuien? Neem dan gerust contact met ons op.

Hefschuifpuien – speciaal op u afgestemd

4-delige kunststof hefschuifpui in antraciet
Pure elegantie met een 4-delige hefschuifpui in antraciet

Ontdek de volledige ontwerpvrijheid van terras-schuifpuien! De geavanceerde techniek van hefschuifpuien maakt het mogelijk om individuele wensen te realiseren en het systeem perfect aan te passen aan uw situatie.

Afhankelijk van de breedte van de muuropening bepaalt u eerst uit hoeveel delen het systeem bestaat en kiest u vervolgens de gewenste openingsrichtingen.

Daarbij zijn vaste elementen in combinatie met schuivende delen mogelijk, maar ook uitsluitend beweegbare elementen voor maximale flexibiliteit.

Zelfs bij hoekopstellingen, zoals bij serres of wintertuinen, is het hefschuifsysteem de juiste keuze. De vleugels kunnen zonder storende hoekstijl haaks op elkaar worden gesloten.

Voor nog meer inspiratie kunt u een kijkje nemen in onze online configurator of contact met ons opnemen. Wij adviseren u graag over de nieuwste trends.

Terras met grijze aluminium hefschuifpuien in de winter

Aluminium hefschuifpui in grijs naar het terras

Individuele opties en accessoires voor hefschuifpuien

Types hefschuifpuien

Types hefschuifpuien en openingsvarianten

Kleuren

Kleurenkeuze voor schuifpuien

Afmetingen

2-delige hefschuifpui

Beglazing

Driedubbele beglazing

Roeden

Binnenliggende roeden in goud

Rolluiken

Opbouwrolluik voor de hefschuifpui

Buitenjaloezie

Buitenjaloezie voor hefschuifpuien

GU-beslag

Beslag voor hefschuifpuien

Terrasdeurgrepen

Hefschuifpui-greep in zilver

Elektrische aandrijving voor hefschuifpuien

Elektrische aandrijving

Montagemateriaal

Montage- en onderhoudsproducten

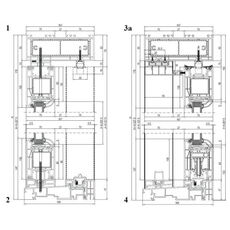
Detailtekeningen

Profieldoorsnede voor hefschuifpuien

Gratis levering

Bij een bestelling van 10 ramen of meer in Nederland!

Nu hefschuifpuien online configureren