Eenvoudig en snel Drutex Duoline 78 kozijnen en deuren online configureren en bestellen bij kozijnenblik.nl
Hout-Alu kozijnen - Drutex Duoline-78
Elegantie en moderniteit met Hout-Alu profielen
- Hoogwaardig dennen- of merantihout
- Meervoudig verlijmd kozijn met een inbouwdiepte van 78 mm
- TPE dichtingslagen
- Maximale glasdikte tot 50 mm
- Markant ontwerp en eenvoudige montage
vanaf 229,69 €
incl. 21% BTW excl. verzendkosten
Productbeschrijving
De perfecte combinatie van ontwerp en functionaliteit!
Hout-Aluminium kozijnen bieden de unieke mogelijkheid om de sterkte van aluminium te combineren met de esthetiek van hout, en zijn daarmee de ideale oplossing voor iedereen die van de karakteristieke charme wil genieten zonder concessies te doen aan onderhoudsgemak. Het massieve houten profiel is gemaakt van drie- of vierlaags verlijmd dennen- of merantihout met natuurlijke warmte-isolerende eigenschappen. Binnenin profiteert u van een aangename warmte en een gezellige sfeer. De stabiele Mira Contour aluminium opbouwschil verhoogt daarentegen de stabiliteit en de statische parameters van het kozijn. Het is extreem weersbestendig en eenvoudig te reinigen. Voor veiligheid zorgen naast deze robuuste constructie de veiligheidsbeslagen van het bedrijf MACO. Ze zijn uitgerust met twee veiligheidspilzzapfen-vergrendelingen en kunnen naar wens worden aangepast aan verschillende weerstandsclasses. Het ontwerp van de Duoline-78 kozijnen is uiterst flexibel: voor het houten profiel heeft u een ruime keuze aan transparante en dekkende verflagen, terwijl de aluminium schalen in elke gewenste RAL-kleur kunnen worden gelakt. Zo kunt u elke ruimte een heel bijzondere uitstraling geven.
Flyer - Hout-Alu kozijnen Duoline (0,45 MiB)
Doorgaan naar detailtekeningen - Duoline-78
Uw voordelen in één oogopslag
Aluminium-buitenkap - Het systeem is uitgerust met weersbestendige aluminiumkappen Mira Contour. De buitenkappen verhogen de sterkte van de profielen en zorgen voor een aantrekkelijk ontwerp.
Beglazing - Maximale glasdikte tot 50 mm. Dit maakt glaspakkettoepassingen mogelijk van 1-, 2- en zelfs 3-kammersystemen.
Dichtingen - Standaard geleverd met TPE- en EPDM-dichtingen.
Profiel - Het profiel, gemaakt van dennen- of merantihout, staat voor een hoge bestendigheid en uitstekende warmte-isolatie. Het houten profiel is meervoudig verlijmd en heeft een inbouwdiepte van 78 mm.
Grote kleurenkeuze aan beitsen voor de houten profielen
Bij onze Hout-Alu kozijnen is de structuur van het hout aan de binnenkant zichtbaar in de standaarduitvoering. De gebruikte verflagen voor beitsen zijn oplosbaar in water en milieuvriendelijk. Door extra implementaties en primers wordt de levensduur van onze houten producten verder verhoogd. Daarnaast zijn de houten kozijnen, afhankelijk van uw wensen, ook verkrijgbaar in alle dekkende kleuren van het RAL-kleurenspectrum.
Die präsentierten Farben und Maserungen können von der Realität abweichen. (Klicken Sie auf Ihre Wunschfarbe)
Drutex Duoline 78 kozijnen en deuren op maat
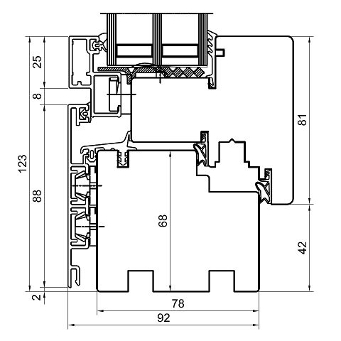
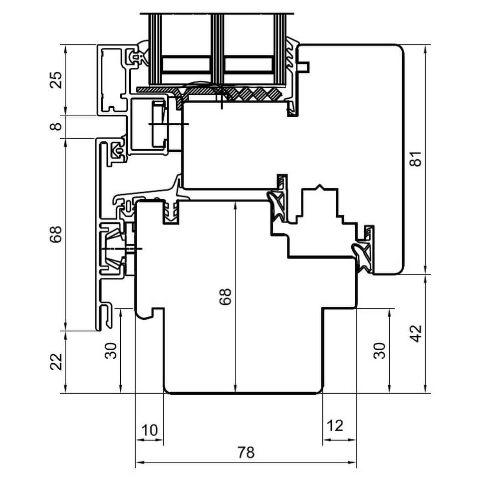
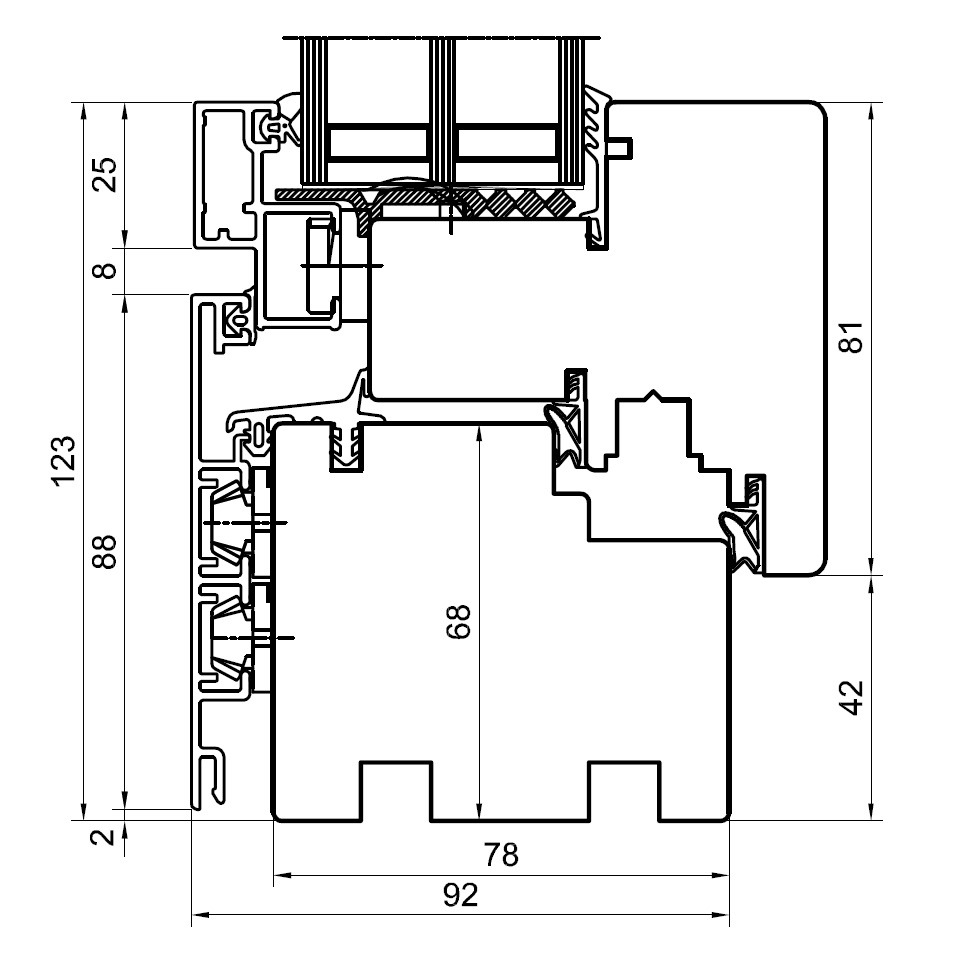
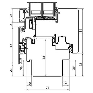
Technische dwarsdoorsneden en detailtekeningen
Plan uw bouwproject tot in het kleinste detail! Onze uitgebreide technische tekeningen en profielsneden helpen u bij het optimaal voorbereiden van het bouwproject, zodat de verschillende stappen soepel verlopen. De gedetailleerde profielopbouw van Duoline-78, de afmetingen en de verschillende dichtingslagen zijn hierin aangegeven. Zo wordt u niet alleen een expert voor uw eigen kozijnen, maar kunt u zich ook vertrouwd maken met de voordelen van de profielen. Vooral bij Hout-Alu kozijnen wordt er een brug geslagen tussen traditie en moderniteit. Hier bieden filigrane en toch expressieve Helima-roeden uitkomst. De respectieve afmetingen vindt u ook in de detailtekening.
Doorgaan naar detailtekeningen - Duoline 78
Gratis levering
Bij een bestelling van 10 ramen of meer in Nederland!
Meer producten van Drutex:
Drutex Kozijnen | Drutex Voordeuren | Drutex Rolluiken | Drutex Duoline-68 | Drutex Duoline-78 | Drutex Duoline-88 | Drutex Duoline HS
Samenvatting: Productinformatie
Hout-Alu Kozijn Duoline-78
Het innovatieve Duoline kozijn van Drutex combineert de voordelen van de twee materialen hout en aluminium. Het meerlaags verlijmde houten profiel heeft een inbouwdiepte van 78mm.
- Merk: Drutex
- Profiel: Duoline-78
- Materiaal: Hout-Aluminium
- Breedte: vanaf 330 mm
- Hoogte: vanaf 350 mm
- Kleur: Wit (RAL-kleuren configureerbaar)
- Beschikbaarheid: Leverbaar
- Staat: Nieuw
- Prijs: op aanvraag
- Online-Shop: kozijnenblik.nl





