Eenvoudig en comfortabel Salamander bluEvolution 82 kozijnen online configureren en bestellen bij kozijnenblik.nl
Kunststof kozijnen – Salamander bluEvolution 82
Energie-efficiëntie tegen scherpe prijzen
- 6-kamersysteem met 82 mm bouwdiepte
- 3 EPDM-afdichtingsniveaus
- Dubbele / driedubbele beglazing
- Glaspakketten tot 53 mm
- Veiligheidsbeslag met paddenstoelnokvergrendeling
vanaf 40,52 €
incl. 21% BTW excl. verzendkosten
Productbeschrijving
Salamander Brügmann bluEvolution 82 – klassiek design met uitstekende energie-efficiëntie
Kies voor echte kwaliteit met kunststof kozijnen van Brügmann bluEvolution 82! Dit hoogwaardige profiel is geschikt voor passiefbouw, heeft 6 kamers en is uitgevoerd met een systeem van drie afdichtingsniveaus (MD). Het kunststof profiel is verkrijgbaar in de designvariant Classic-Line (CL). Met driedubbele beglazing en een warme kant bespaart u extra energie – en dus ook geld. Voor veiligheid en stabiliteit zorgen robuuste staalversterkingen en merksluitingen met paddenstoelnokvergrendeling. Zo wordt bijvoorbeeld het openwrikken van de raamvleugel voorkomen. Kies uit een grote variatie aan kleuren en decors voor een individuele uitstraling met een persoonlijke touch. Ook de afmetingen bepaalt u zelf en past u eenvoudig aan uw wensen aan. Bestel uw Salamander-ramen uit de Brügmann bluEvolution 82-serie direct online!
Voordelen van het kunststof kozijn Salamander bluEvolution 82:
Profiel:
Hoogwaardig 6-kamerprofiel met 82 mm inbouwdiepte voor uitstekende thermische isolatie en stabiliteit. Grote versterkingskamer met staalversterking.
Beglazing:
De beglazing kan worden gekozen uit een breed aanbod aan speciale glassoorten met een glasdikte tot 53 mm. Ruime keuze uit warmtewerend, geluidswerend, privacy- en inbraakwerend glas.
Afdichtingen:
De kunststof profielen beschikken over 3 afdichtingsniveaus met een middenafdichting (MD) van EPDM.
Beslag:
Veiligheidsbeslag met paddenstoelnokvergrendeling. Voor een langere levensduur werken de beslagdelen in de zogeheten droge kamer.
Kunststof kozijnen Salamander Brügmann bluEvolution 82 – profielaanzichten
Grote kleurkeuze voor de raamprofielen
Brügmann bluEvolution 82 kozijnen op maat
Energiebesparing dankzij optimale thermische isolatie
De Salamander-ramen Brügmann bluEvolution 82 staan voor uitstekende thermische isolatie, mogelijk gemaakt door het hoogwaardige 6-kamerprofiel en de 3 afdichtingsniveaus met een middenafdichting (MD) van EPDM. Dankzij de royale bouwdiepte van 82 mm kunnen beglazingen met een maximale glasdikte tot 53 mm worden toegepast. Bij een configuratie met emissiearme driedubbele beglazing in combinatie met de warme kant zijn U-waarden haalbaar zoals bij passiefhuisramen. De warme afstandhouder verbetert de isolatie van de ruiten en vermindert het risico op condensvorming door koudebruggen.
Meer informatie over raamglas
Hoogwaardige raambeslag voor extra veiligheid
Dankzij de grote inbouwdiepte van de ramen uit de bluEvolution 82-serie en de solide staalversterking van het profiel kunnen ook grote constructies worden gerealiseerd met behoud van hoge veiligheidsnormen. Een belangrijke rol hierbij speelt het raambeslag. De bluEvolution 82-ramen worden uitgerust met beproefd merksluitwerk zoals MACO Multi Matic of Siegenia Titan. De veiligheids-paddenstoelnokvergrendelingen maken het openwrikken van de vleugel moeilijker, zorgen voor een soepele bediening en regelen bovendien de aandrukkracht. Desgewenst kunnen de ramen worden uitgevoerd in verschillende veiligheidsklassen, zoals RC1 of RC2. In combinatie met gelaagd veiligheidsglas kunnen de ramen optimaal worden afgestemd op de situatie ter plaatse.
Meer informatie over raambeslag
Raamdesign – unieke charme en functionaliteit
Naast de uitstekende oplossingen op het gebied van energiebesparing en veiligheid bieden de hoogwaardige kunststof Salamander-profielen bluEvolution 82 ook aantrekkelijke designmogelijkheden. De kunststof kozijnen kunnen aan één zijde, aan beide zijden of in de Duo-Color-uitvoering met decorfolies worden uitgevoerd. Voor de kernkleur kunt u kiezen uit wit, bruin en karamel. Een innovatieve optie is de kernkleur antraciet voor het profiel. Voor een hoge kwaliteit en nauwkeurige productie van de ramen zijn de V-Super- en V-Perfect-technologieën beschikbaar. Hierdoor zijn de verbindingsnaden van de profielen vrijwel onzichtbaar.
bluEvolution 82 Alu – de perfecte symbiose van vorm en veelzijdigheid
Duurzaamheid, onderhoudsgemak en energiebesparing – het combineren van de sterke punten van aluminium en kunststof was nog nooit zo eenvoudig. De aluminium voorzetkap biedt perfecte bescherming tegen weersinvloeden en overtuigt met een vrijwel onbeperkte kleurkeuze. Terwijl voor de binnenzijde decorfolies kunnen worden gekozen, is de aluminium voorzetkap verkrijgbaar in een breed scala aan RAL-kleuren. De aluminium schalen dragen, naast de esthetiek, ook bij aan verbeterde energie-efficiëntiewaarden. Geef uw ramen niet alleen een elegante aluminium uitstraling, maar creëer tevens een hoog niveau van veiligheid, duurzaamheid en stabiliteit.
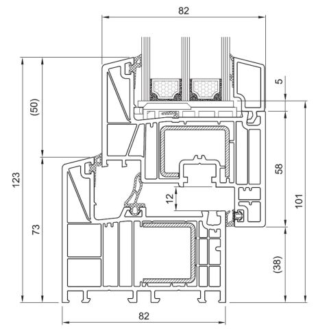
Technische doorsneden en detailtekeningen
Voor uw eigen bouwproject is het belangrijk dat u elk detail exact kunt plannen. Daarom stellen we uitgebreid materiaal beschikbaar, waaronder detailtekeningen en profieldoorsneden. Daarmee kunt u de 6 kamers van het bluEvolution 82 kunststof kozijn bekijken, de exacte afmetingen achterhalen en verschillende glasdiktes met elkaar vergelijken. Vooral bij moderne brede glaspartijen wordt de maximale belastingsbreedte van ramen vaak overschreden, waardoor meerdere losse ramen gekoppeld moeten worden, of bijvoorbeeld een raam met een balkondeur. Zo ontstaat de benodigde stabiliteit en daarmee een betrouwbare statica. De technische tekeningen bevatten ook de maatvoering voor slimme hoekverbindingen – voor een indrukwekkend panorama-uitzicht rondom.
Verder naar detailtekeningen – bluEvolution 82
Brügmann bluEvolution 82 kozijnen op maat
Eenvoudig en comfortabel Salamander bluEvolution 82 kozijnen online configureren en bestellen bij kozijnenblik.nl
Duurzaamheid – PVC als het ideale, duurzamere materiaal voor kozijnen
De raamprofielen van Salamander zijn vervaardigd uit duurzaam en milieuvriendelijk PVC en kunnen worden afgewerkt met innovatieve realMaterial-oppervlakken. Daarmee bieden wij u de mogelijkheid om uw kozijnen met een lage CO₂-voetafdruk volledig naar wens vorm te geven en perfect af te stemmen op uw woning – zowel aan de binnen- als aan de buitenzijde. De productie vindt plaats met inachtneming van strenge ecologische normen en een steeds groter wordend aandeel hernieuwbare energie, waaronder het gebruik van een eigen waterkrachtcentrale! Bij fensterblick.de, met jarenlange ervaring, kunt u erop vertrouwen dat onze producten niet alleen van hoge kwaliteit zijn, maar al tijdens de productie een milieubewuste aanpak volgen. Wij bij Fensterblick houden de focus op wat echt telt – en u geniet van hoogwaardige kozijnen voor een kristalhelder uitzicht!
Meer kunststofproducten van Salamander:
Salamander kozijnen | Salamander bluEvolution 92 | Salamander evolutionDrive 82 | Salamander greenEvolution flex | Salamander Streamline 76 | Salamander bluEvolution 82 Greta
Meer kozijnsystemen van Salamander:
Salamander kozijnen | greenEvolution kozijnen | Salamander Streamline 76 | Salamander bluEvolution 92 | Salamander greenEvolution 76 | Salamander greenEvolution 76 free | Salamander greenEvolution 76 box | Salamander greenEvolution 76 curve | Salamander bluEvolution 82 Aluschale
Samenvatting: productinformatie
Kunststof kozijnen bluEvolution 82
Het Salamander bluEvolution 82 kozijn van hoogwaardig kunststof bestaat uit een 6-kamerprofiel en beschikt over 3 afdichtingsniveaus. In combinatie met driedubbele beglazing met warme kant is het ook geschikt voor woningen in passiefbouw.
- Merk: Salamander
- Profiel: bluEvolution 82
- Materiaal: kunststof kozijnen
- Breedte: vanaf 360 mm
- Hoogte: vanaf 395 mm
- Kleur: wit (andere kleuren mogelijk)
- Beschikbaarheid: leverbaar
- Conditie: nieuw
- Prijs: op aanvraag
- Online shop: kozijnenblik.nl






