Eenvoudig en comfortabel Salamander Streamline 76 Kozijnen online configureren en bestellen bij kozijnenblik.nl
Kunststof kozijnen - Salamander Streamline 76
Merkkwaliteit tegen voordelige prijzen
- 5-kamersysteem met 76 mm bouwdiepte
- 2 afdichtingsniveaus van EPDM
- 2-voudige / 3-voudige beglazing
- Glaspakketten tot 48 mm
- Veiligheidsbeslag met paddenstoelvergrendeling
vanaf 30,39 €
incl. 21% BTW excl. verzendkosten
Productbeschrijving
Salamander Streamline SL 76 – zo wordt wonen een plezier
De moderne kunststof Kozijnen uit de Salamander Streamline-serie vormen een perfecte symbiose van energie-efficiëntie, bedieningscomfort en onderhoudsgemak. Met het meerkamersysteem en een 2-voudige of 3-voudige isolatiebeglazing bespaart u merkbaar op stookkosten en geniet u van een gezond binnenklimaat. Bovendien beschikken de Salamander Streamline 76 Kozijnen over 2 afdichtingsniveaus met aanslagdichting (AD), die beschermen tegen weersinvloeden. Het kunststof kozijn heeft een bouwdiepte van 76 mm. Het weerbestendige oppervlak is bijzonder duurzaam en eenvoudig te reinigen. Afhankelijk van de uitvoering heeft u de keuze uit de designserie Classic-Line (CL) en Round-Line (RL). Voor nog meer variatie kan bijvoorbeeld ook de vleugel van de CL-serie worden gecombineerd met de glaslat van de RL-serie. Hoogwaardige merkbeslagen met paddenstoelvergrendeling en veiligheids-sluitplaten zorgen voor blijvende functionaliteit en de nodige veiligheid. Dankzij diverse decorfolies geeft u uw Salamander Kozijnen een heel persoonlijke uitstraling. U kunt kiezen uit krachtige kleuren, houtlooks en voelbare structuren. Stel nu online uw Salamander Streamline 76 samen!
Verder naar detailtekeningen - Salamander Streamline 76
Voordelen van het kunststof kozijn Salamander Streamline 76:
Profiel:
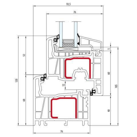
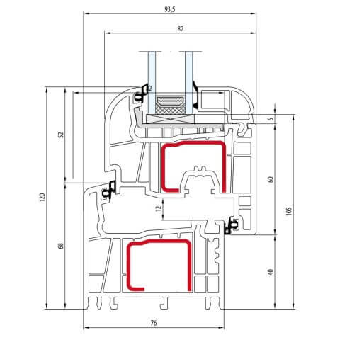
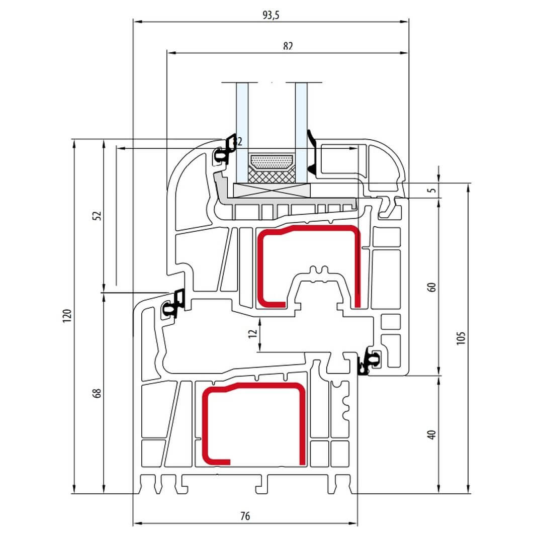
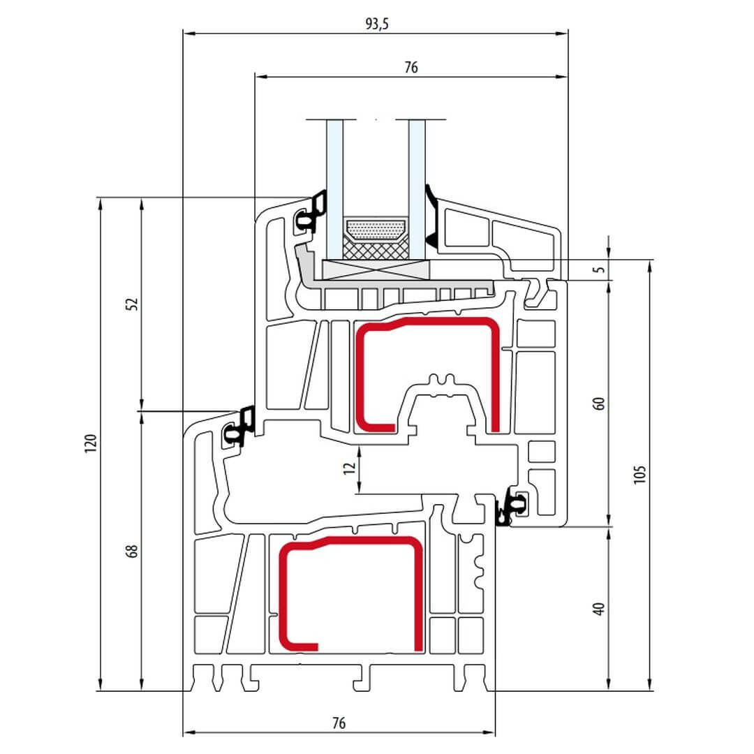
Hoogwaardig 5-kamerprofiel met een inbouwdiepte van 76 mm voor uitstekende warmte-isolatie en stabiliteit. Grote versterkingskamer met stalen versterking.
Beglazing:
De beglazing kan worden gekozen met een glasdikte tot 48 mm. Grote keuze uit warmtewerende, geluidswerende, privacy- en inbraakwerende beglazing.
Afdichtingen:
De kunststof profielen beschikken over 2 aanslagafdichtingen (AD) van EPDM, die optimale bescherming bieden.
Beslag:
Veiligheidsbeslag met paddenstoelvergrendeling. Een grote versterkingskamer met stalen versterking zorgt voor de vereiste stabiliteit.
Kunststof kozijnen Salamander Streamline 76 - verschil tussen Classic-Line en Round-Line
Salamander Streamline 76 Classic-line - Profielaanzichten
Salamander Streamline 76 Round-line - Profielaanzichten
Grote kleurkeuze voor de kozijnprofielen
Kozijnen Salamander Streamline 76 op maat
Energiebesparing met optimale warmte-isolatie
De Salamander Streamline 76-profielen beschikken over een 5-kamersysteem met een bouwdiepte van 76 mm en een afdichtingssysteem met 2 aanslagdichtingen van EPDM, waardoor de kozijnprofielen al een doeltreffende barrière vormen tegen ontsnappende warmte. Om de thermische isolatie te verbeteren en merkbaar kostbare energie te besparen, kunt u naast dubbele beglazing ook kiezen voor driedubbele beglazing met een low-e-coating. Voor nog betere prestaties zijn warme afstandhouders beschikbaar. De zogenaamde warme rand verhoogt bovendien de temperatuur van het kozijn aan de kamerzijde en beperkt daardoor de condensatie van waterdamp in dit gebied.
Meer informatie over kozijnbeglazing
Hoogwaardig kozijnbeslag voor meer veiligheid
De veiligheid van het kozijn hangt af van een groot aantal factoren. Een belangrijke rol speelt daarbij het beslag van het kozijn. De Salamander Streamline 76 kozijnen worden uitgerust met het beproefde merkbeslag van MACO Multi Matic of Siegenia Titan. De veiligheidsnokken en sluitplaten maken het openwrikken van de vleugel moeilijker en zorgen bovendien voor een optimale aandrukkracht en een soepele bediening. Op verzoek kunnen de kozijnen worden voorzien van verschillende veiligheidsklassen, zoals RC 1 (voorheen WK1) of RC 2 (voorheen WK 2). In combinatie met Gelaagd glas kunnen de kozijnen optimaal worden afgestemd op de situatie ter plaatse. Voor een bijzondere uitstraling en een hoger draagvermogen zijn ook verdekt liggende beslagoplossingen verkrijgbaar.
Meer informatie over kozijnbeslag
Kozijndesign - Unieke charme en functionaliteit
De hoogwaardige Salamander-profielen SL 76 van pvc kenmerken zich door een sneeuwwitte kleur. De glanzende profielen zijn bovendien weerbestendig en onderhoudsvriendelijk. Om de kunststof Kozijnen of de gevel van uw woning een individuele uitstraling te geven, kunt u kiezen uit een breed assortiment decors en kleuren. Voor houtachtige kleuren is bovendien de Full-Color-fineeroplossing beschikbaar, waarbij voor een uniforme uitstraling ook inkepingen, vleugelranden en andere raamelementen van decorfolie worden voorzien. Voor een naadloze overgang in de hoeken kan bij de kunststofprofielen de innovatieve verbindingstechnologie V-Perfect worden toegepast. Hierdoor krijgen de kunststof Kozijnen van Salamander Streamline 76 een vrijwel onzichtbare lasnaad.
Technische doorsneden en detailtekeningen
Ontdek alle voordelen van het SALAMANDER Streamline 76-systeem dankzij de gedetailleerde profieldoorsneden! Hier vindt u afmetingen, opbouw, modelvarianten en beglazingspakketten om de planning van uw nieuwe Kozijnen nauwkeurig mogelijk te maken. Dat geeft u niet alleen zekerheid, maar maakt ook de latere montage aanzienlijk eenvoudiger, omdat elk kozijn exact op uw wensen is afgestemd. Daarnaast vindt u diverse mogelijkheden voor kaderverbreding, zodat ook speciale muuropeningen optimaal met uw gewenste Salamander Streamline 76-profiel kunnen worden uitgevoerd – bijvoorbeeld bij oudere woningen met muurverspringingen of wanneer u meer ruimte nodig heeft om de bandopwinder van het rolluik onder te brengen. De technische tekeningen helpen u om de exacte maten te bepalen. Zo kunt u werkelijk tot in het kleinste detail plannen en uw ideeën nauwkeurig realiseren.
Meer informatie over detailtekeningen - Streamline 76
Streamline Alu - De perfecte symbiose van vorm en veelzijdigheid
Duurzaamheid, onderhoudsgemak en energiebesparing – nog nooit was het zo eenvoudig om de sterke punten van aluminium en kunststof te combineren. De aluminium voorzetkap biedt perfecte bescherming tegen weersinvloeden en overtuigt met een vrijwel onbeperkte kleurvariatie. Terwijl voor de binnenzijde decorfolies kunnen worden gekozen, is voor de aluminium voorzetkap een ruime keuze aan RAL-kleuren beschikbaar. Naast de esthetiek verbeteren de aluminium schalen ook de energie-efficiëntiewaarden. Geef uw Kozijnen niet alleen een elegante aluminium look, maar creëer ook een hoog niveau van veiligheid, duurzaamheid en stabiliteit.
Kozijnen Salamander Streamline 76 op maat
Eenvoudig en comfortabel Salamander Streamline 76 Kozijnen online configureren en bestellen bij kozijnenblik.nl
Duurzaamheid – PVC als het ideale, duurzamere materiaal voor kozijnen
De raamprofielen van Salamander zijn vervaardigd uit duurzaam en milieuvriendelijk PVC en kunnen worden afgewerkt met innovatieve realMaterial-oppervlakken. Daarmee bieden wij u de mogelijkheid om uw kozijnen met een lage CO₂-voetafdruk volledig naar wens vorm te geven en perfect af te stemmen op uw woning – zowel aan de binnen- als aan de buitenzijde. De productie vindt plaats met inachtneming van strenge ecologische normen en een steeds groter wordend aandeel hernieuwbare energie, waaronder het gebruik van een eigen waterkrachtcentrale! Bij fensterblick.de, met jarenlange ervaring, kunt u erop vertrouwen dat onze producten niet alleen van hoge kwaliteit zijn, maar al tijdens de productie een milieubewuste aanpak volgen. Wij bij Fensterblick houden de focus op wat echt telt – en u geniet van hoogwaardige kozijnen voor een kristalhelder uitzicht!
Meer kozijnsystemen van Salamander:
Salamander Kozijnen | greenEvolution Kozijnen | Salamander bluEvolution 82 | Salamander bluEvolution 92 | Salamander greenEvolution 76 | Salamander greenEvolution 76 free | Salamander greenEvolution 76 box | Salamander greenEvolution 76 curve | Salamander bluEvolution 82 aluminium schaal | Salamander bluEvolution 82 Greta
Samenvatting: Productinformatie
Kunststof kozijnen Streamline 76
Het Salamander Streamline 76 AD Kozijnen van kunststof beschikt over een 5-kamerprofiel met 2 afdichtingsniveaus. Dankzij het moderne beslag met paddenstoelvergrendeling worden hoge prestaties op het gebied van veiligheid en energiebesparing bereikt.
- Merk: Salamander
- Profiel: Streamline 76
- Materiaal: Kunststof kozijnen
- Breedte: vanaf 360 mm
- Hoogte: vanaf 395 mm
- Kleur: Wit (andere kleuren mogelijk)
- Beschikbaarheid: Leverbaar
- Staat: Nieuw
- Prijs: Op aanvraag
- Online-shop: kozijnenblik.nl







