Detailzeichnungen Salamander Brügmann bluEvolution 82

Kunststofffensterprofil Brügmann bluEvolution 82 Querschnitte

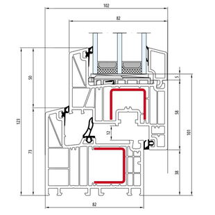
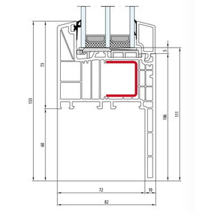
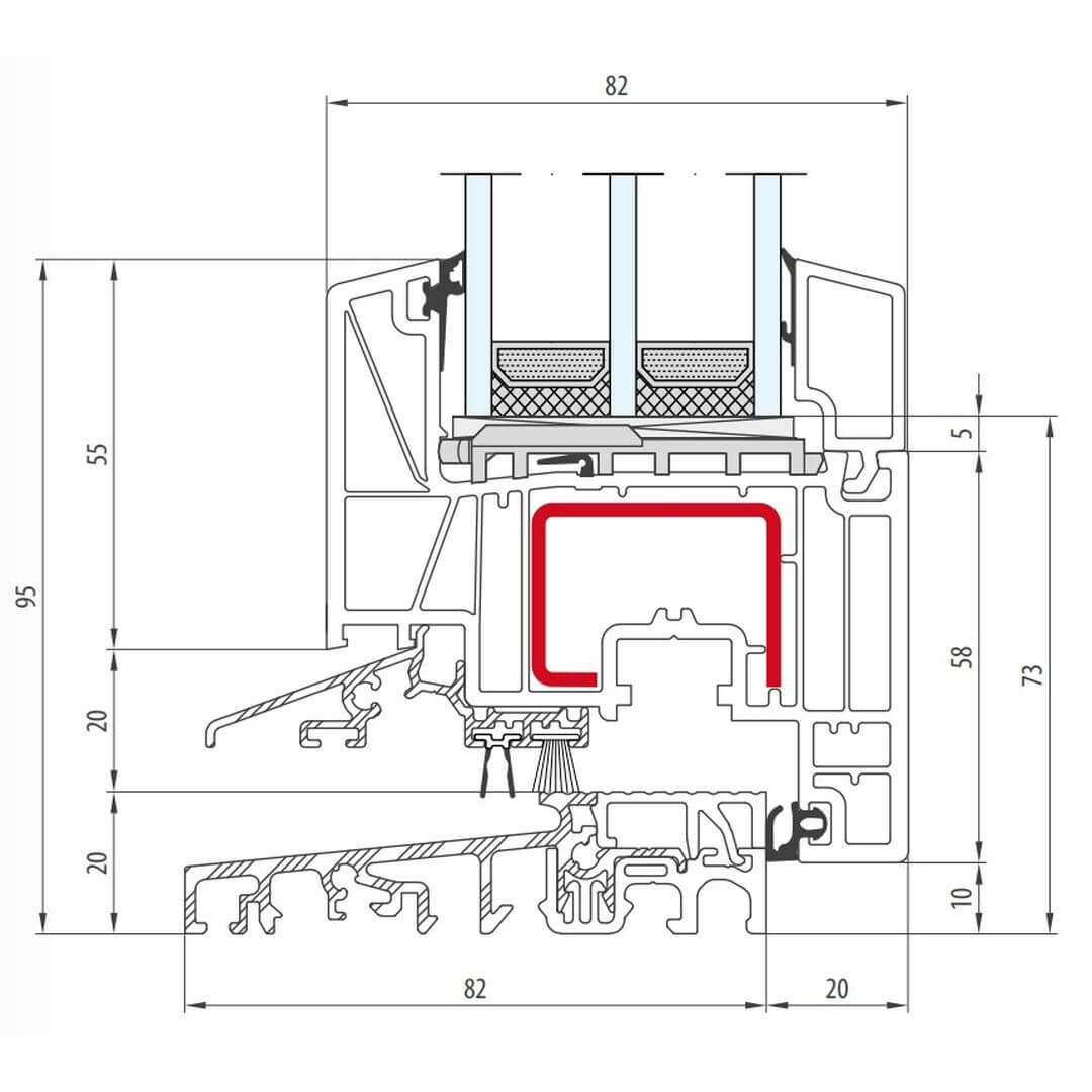
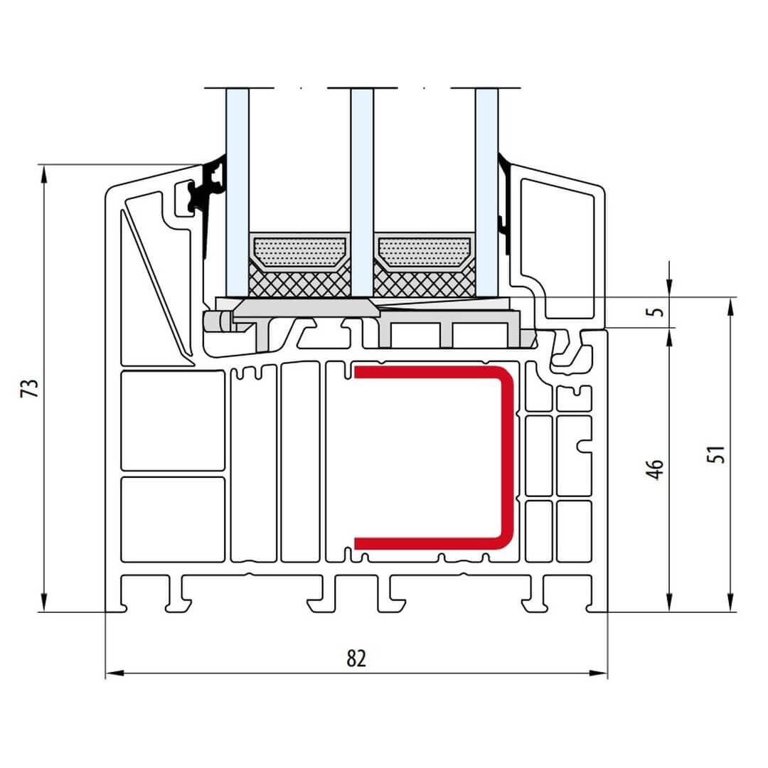
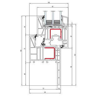
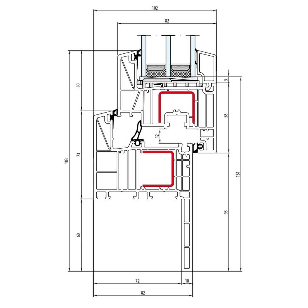
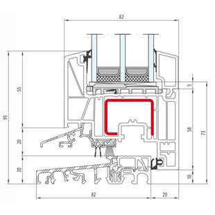
Salamander bluEvolution 82 Festverglasung 73mm - HO9020

bluEvolution 82 Festverglasung 73mm - HO9020

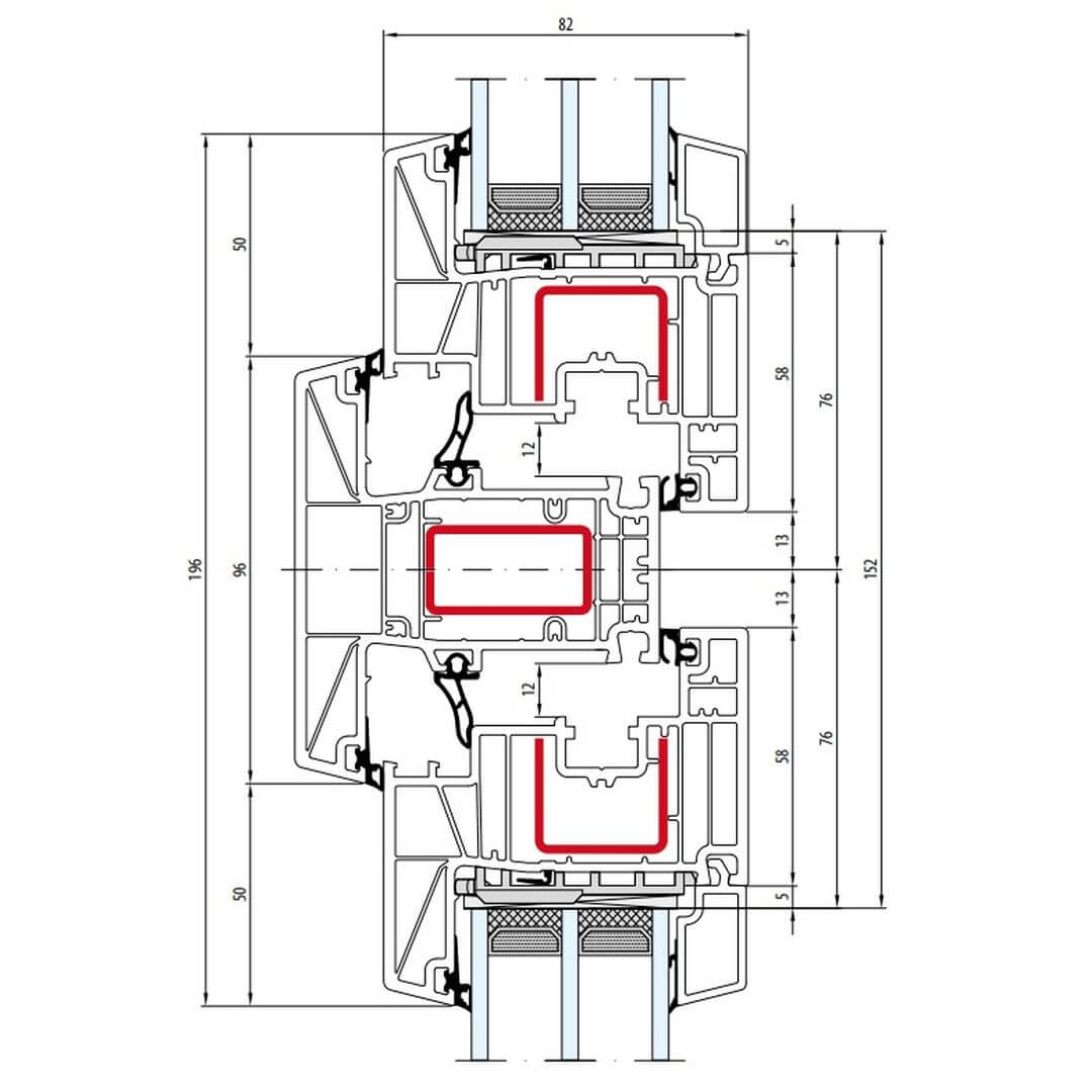
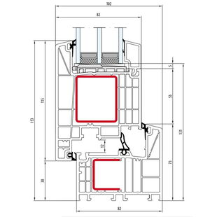
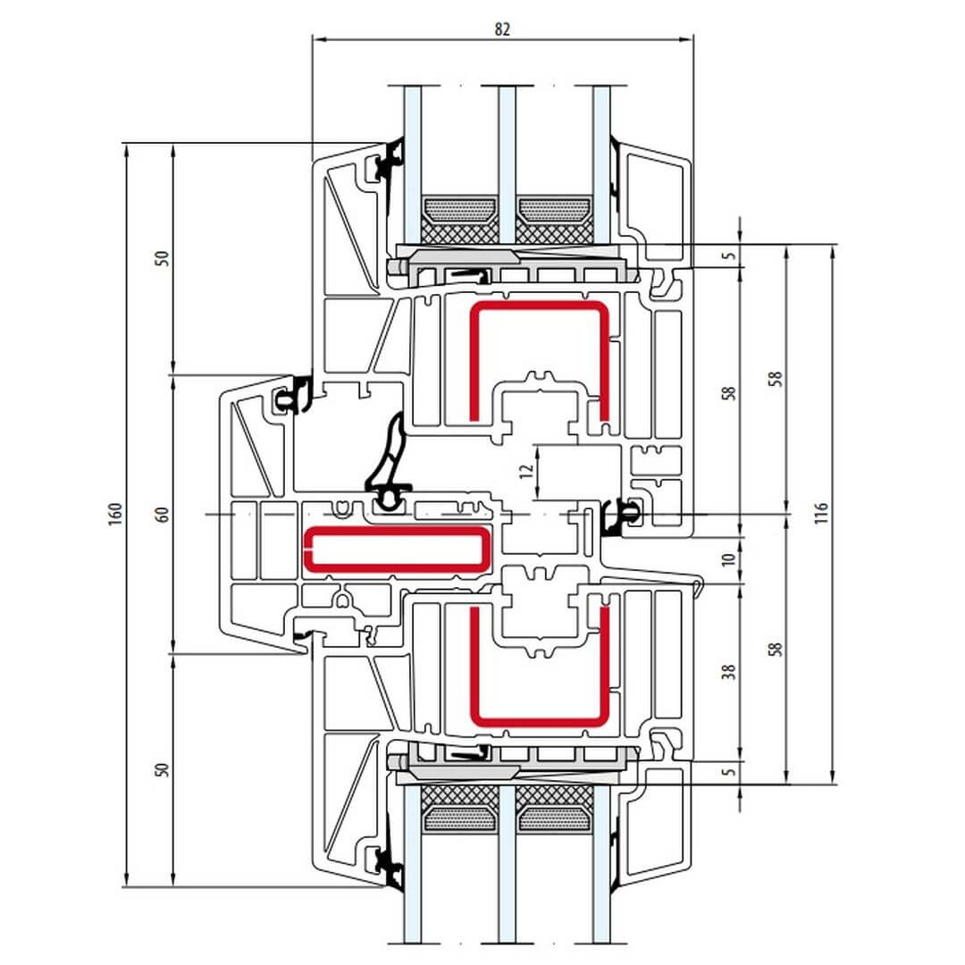
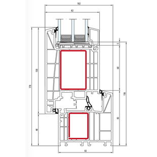
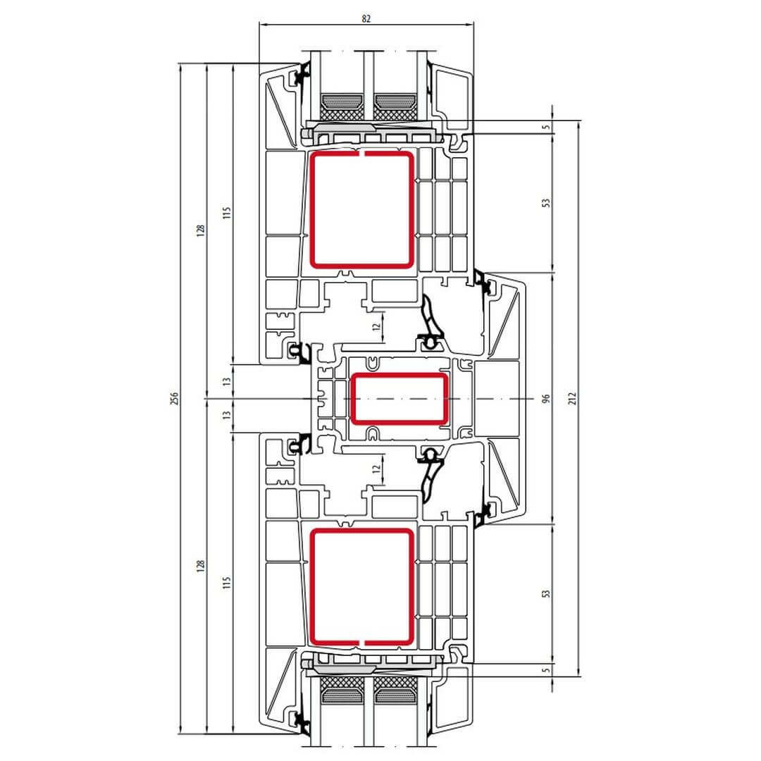
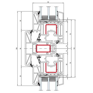
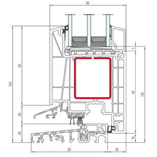
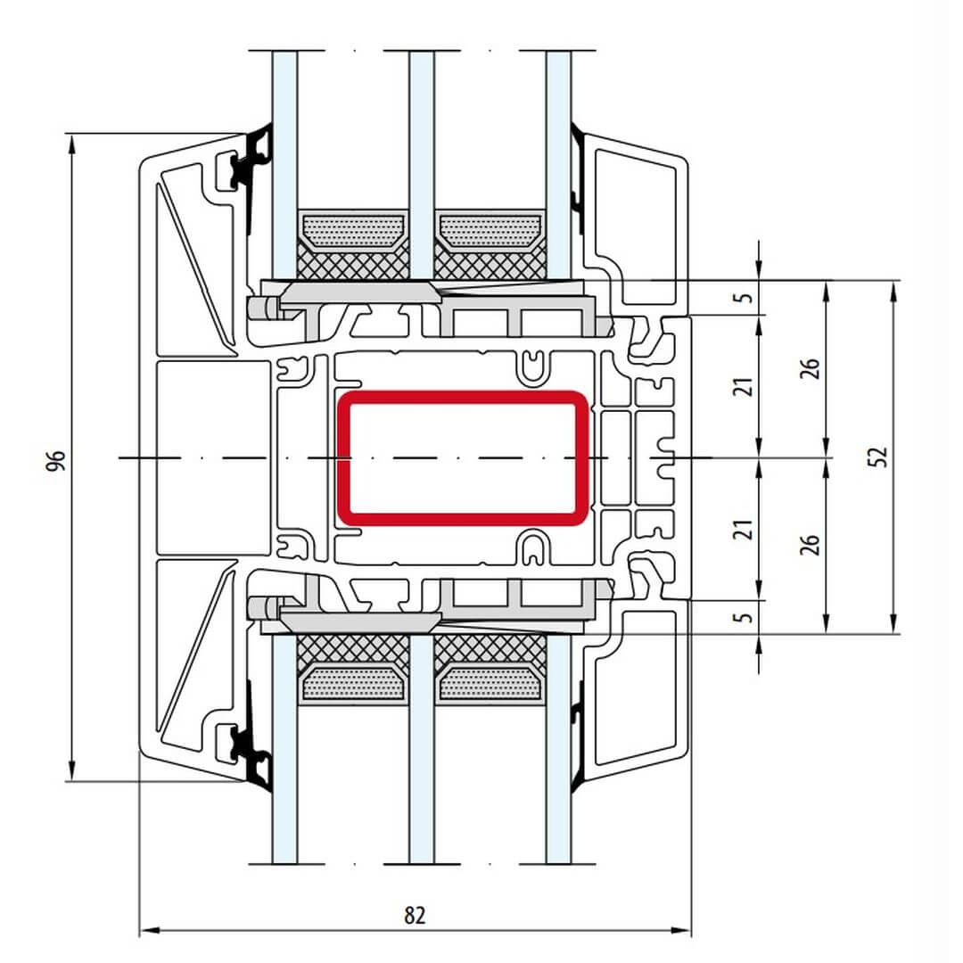
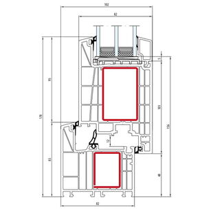
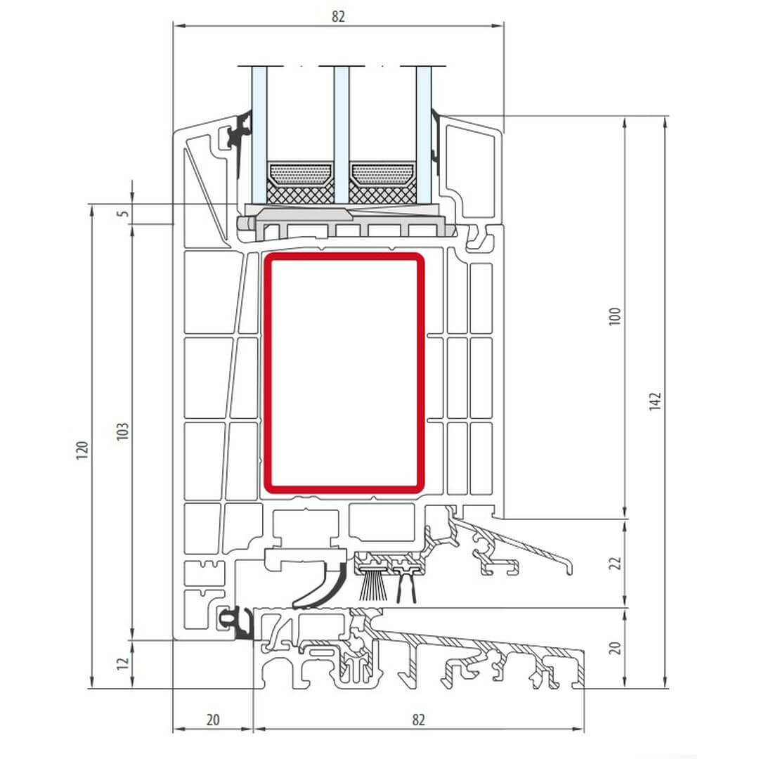
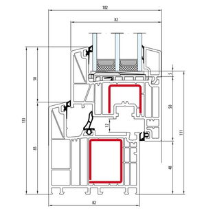
Salamander bluEvolution 82 Fenster Classic-Line 123mm - HO9020 - HO8521

bluEvolution 82 Fenster Classic-Line 123mm - HO9020 - HO8521

Kunststofffenster bluEvolution 82 mit Türrahmen (HO9030)

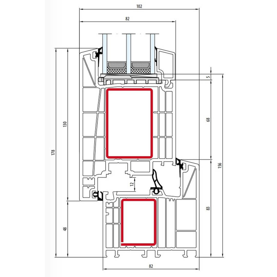
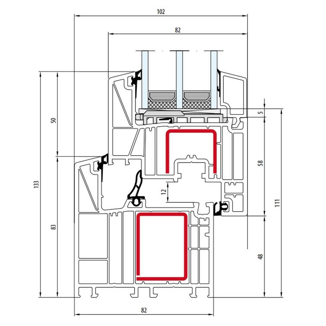
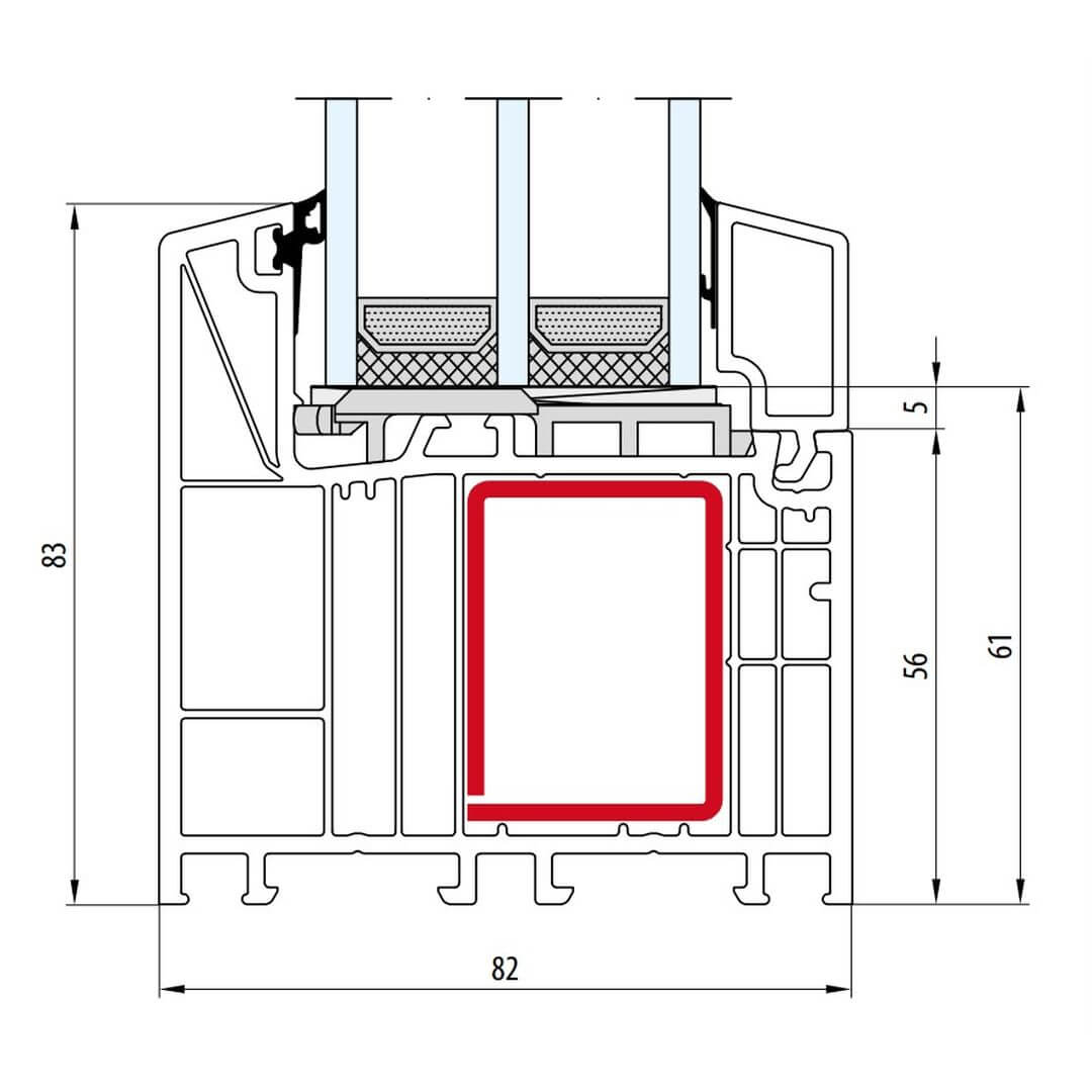
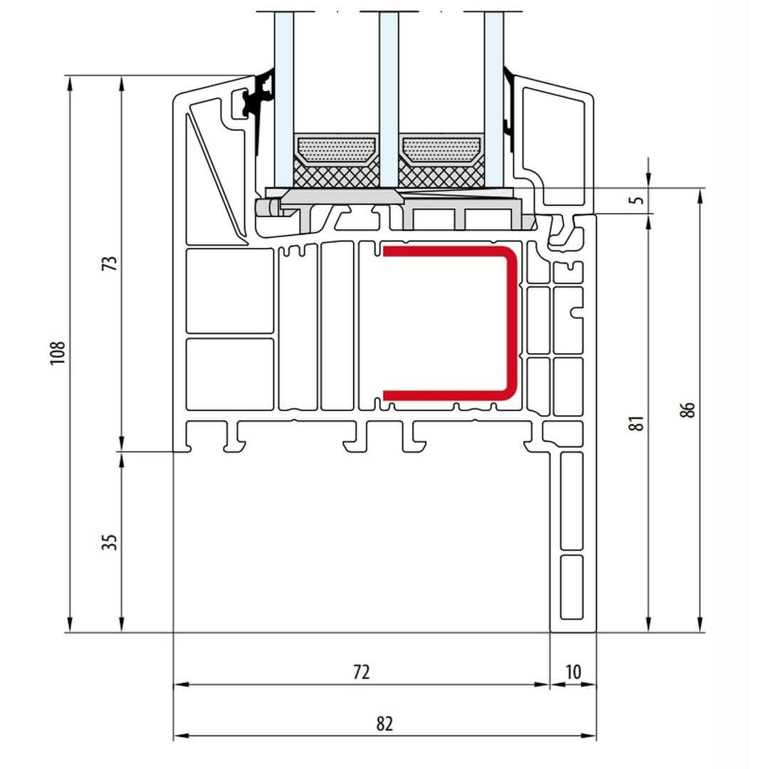
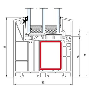
Salamander bluEvolution 82 Classic-Line Festverglasung- HO9030

bluEvolution 82 Classic-Line Festverglasung 83 mm- HO9030

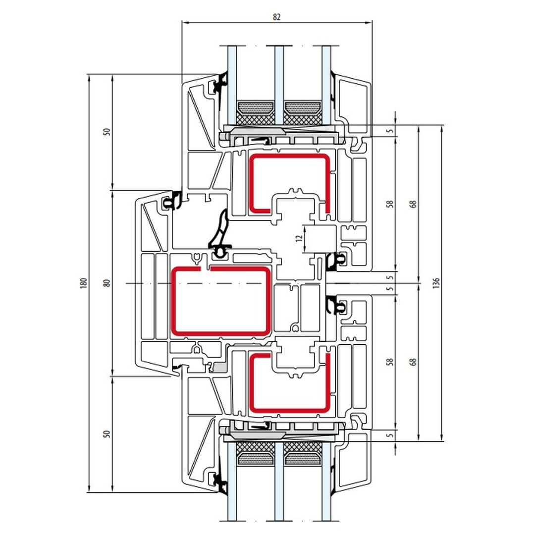
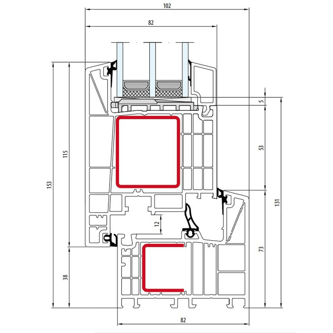
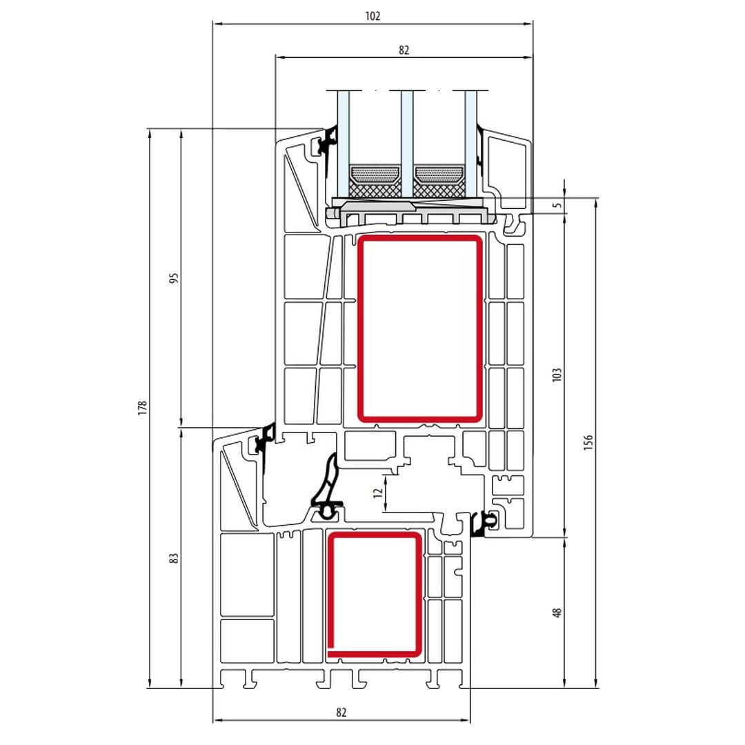
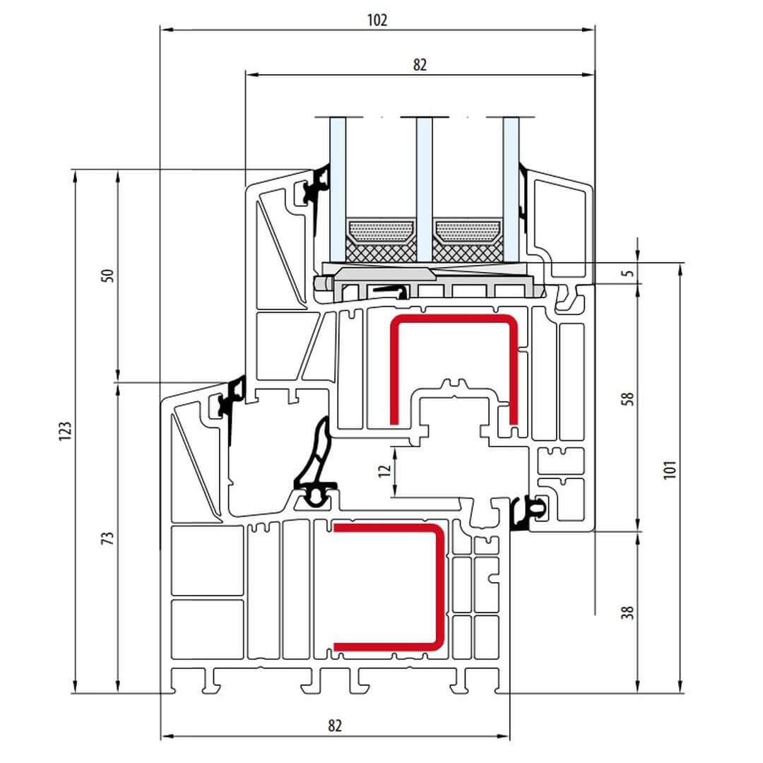
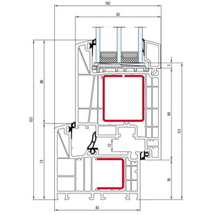
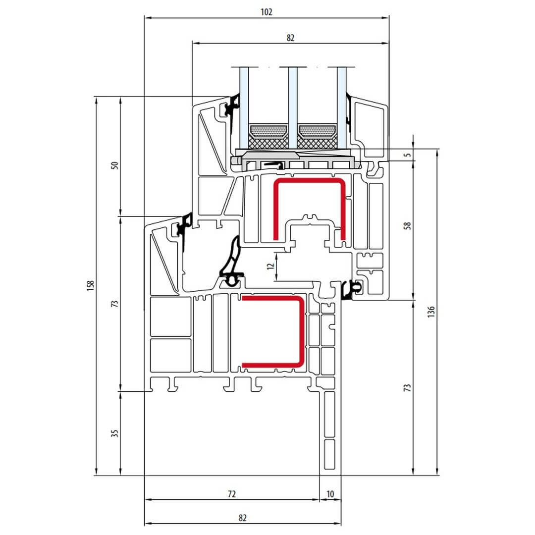
Salamander bluEvolution 82 Fenster Classic-Line 133 mm - HO9030 - HO8521

bluEvolution 82 Fenster Classic-Line 133 mm - HO9030 - HO8521

Kunststofffenster bluEvolution 82 mit Rennovationsrahmen

Salamander bluEvolution 82 Renovation Festverglasung Flosse 35mm - HO9110

bluEvolution 82 Renovation Festverglasung Flosse 35mm - HO9110

Salamander bluEvolution 82 Renovation Fenster Classic-Line Flosse 35mm - HO9110 - HO8521

bluEvolution 82 Renovation Fenster Classic-Line Flosse 35mm - HO9110 - HO8521

Salamander bluEvolution 82 Festverglasung Flosse 60mm - HO9100

bluEvolution 82 Renovation Festverglasung Flosse 60mm - HO9100

Salamander bluEvolution 82 Renovation Fenster Classic-Line Flosse 60mm - HO9100 - HO8521

bluEvolution 82 Renovation Fenster Classic-Line Flosse 60mm - HO9100 - HO8521

Kunststofffenster bluEvolution 82 mit Pfosten 96mm

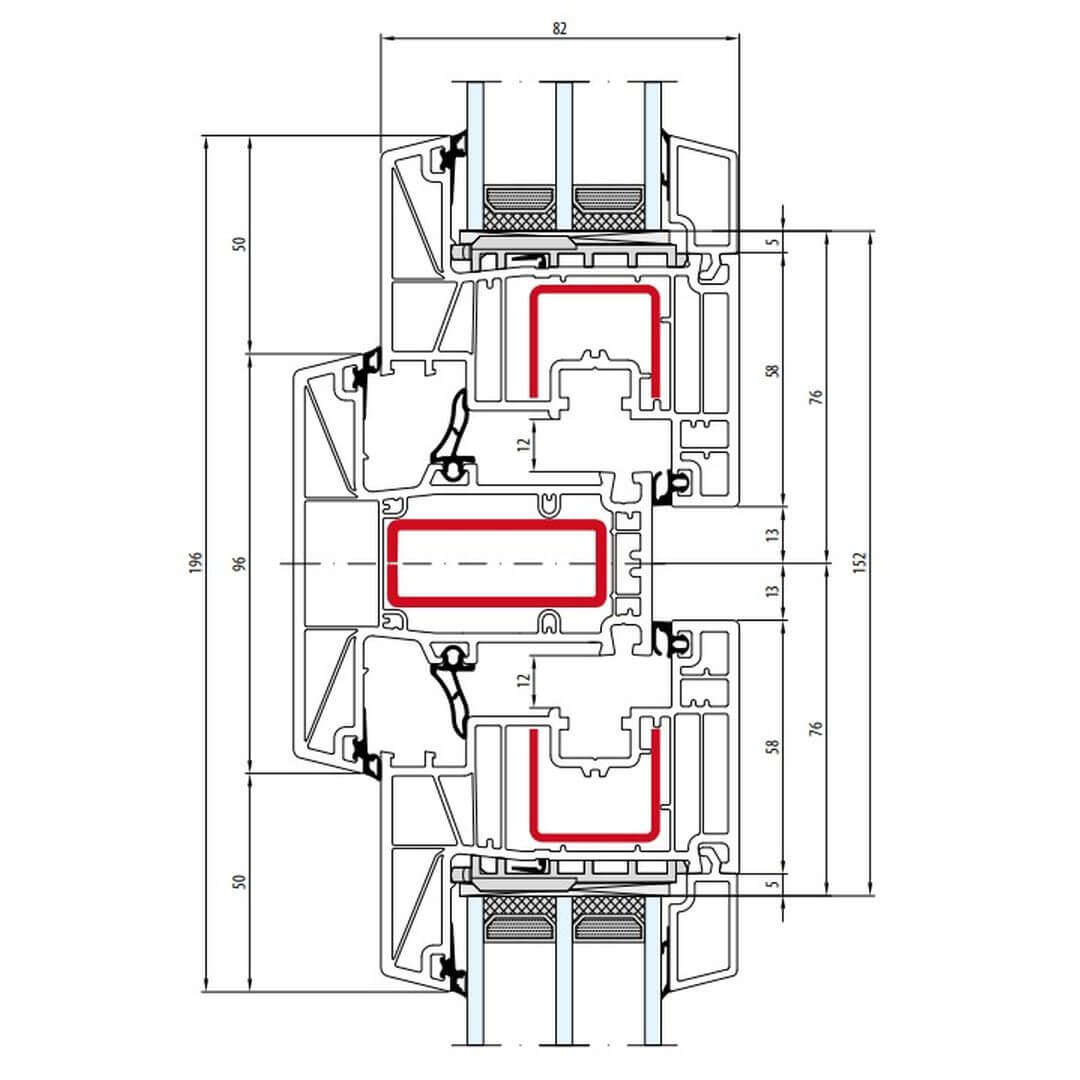
Salamander bluEvolution 82 Pfosten 96mm - HO9310

bluEvolution 82 Pfosten 96mm - HO9310

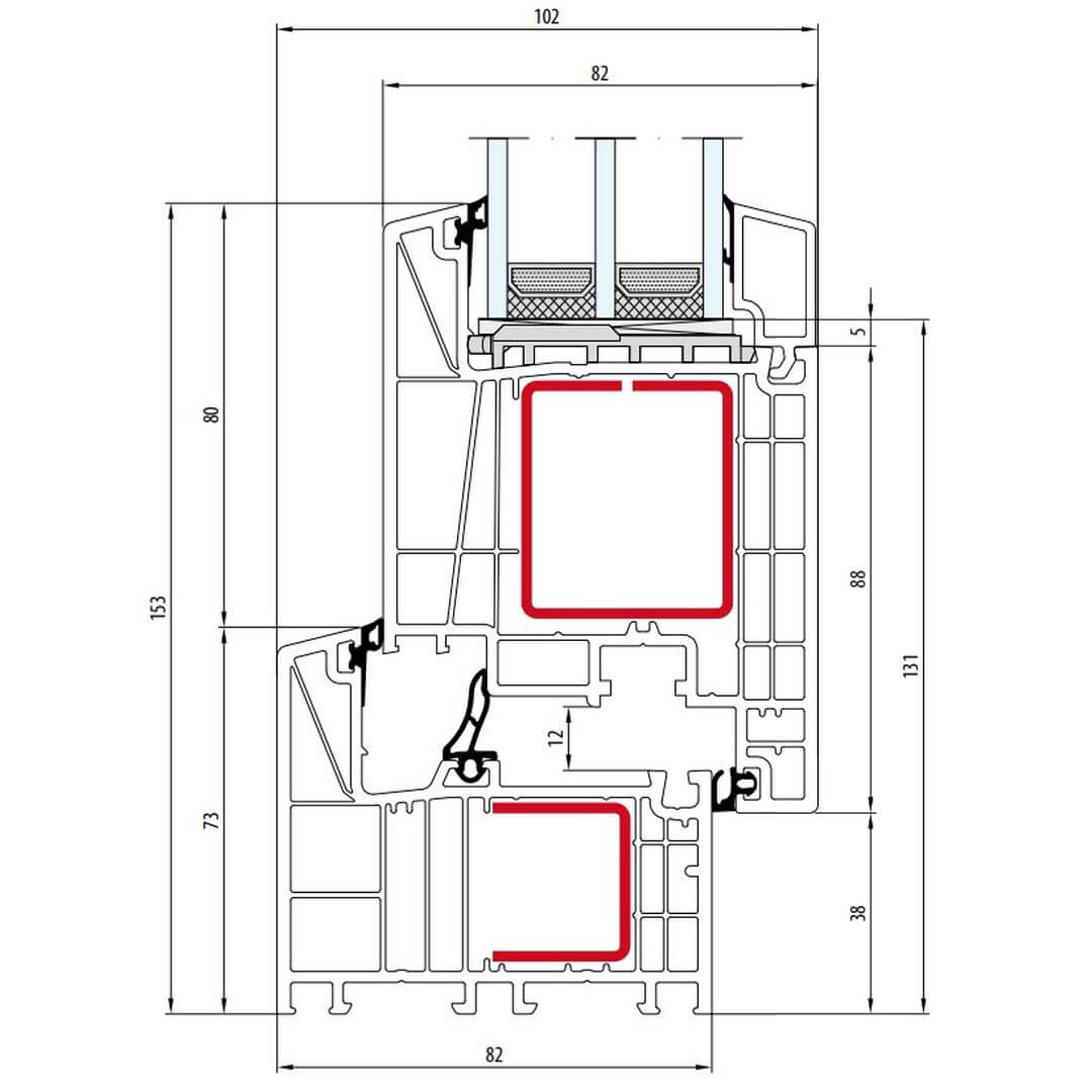
Salamander bluEvolution 82 Fenster Classic-Line 85mm Pfosten 96mm - HO9310 - HO8521

bluEvolution 82 Fenster Classic-Line 85mm Pfosten 96mm - HO9310 - HO8521

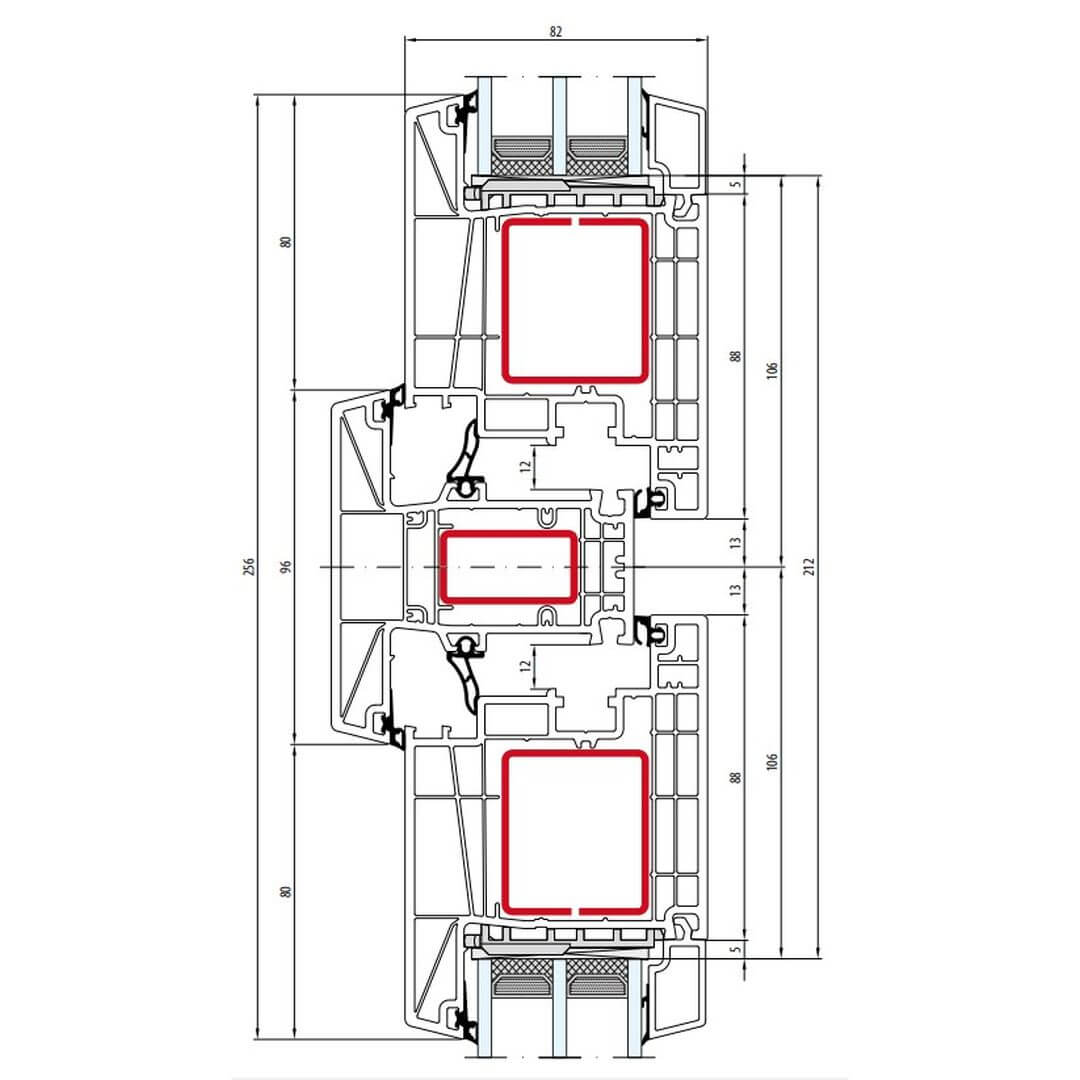
Salamander bluEvolution 82 Pfosten 96mm - HO9320

bluEvolution 82 Pfosten 96mm - HO9320

Salamander bluEvolution 82 Fenster Classic-Line Pfosten 96mm - HO9320 - HO8521

bluEvolution 82 Fenster Classic-Line 85mm Pfosten 96mm - HO9320 - HO8521

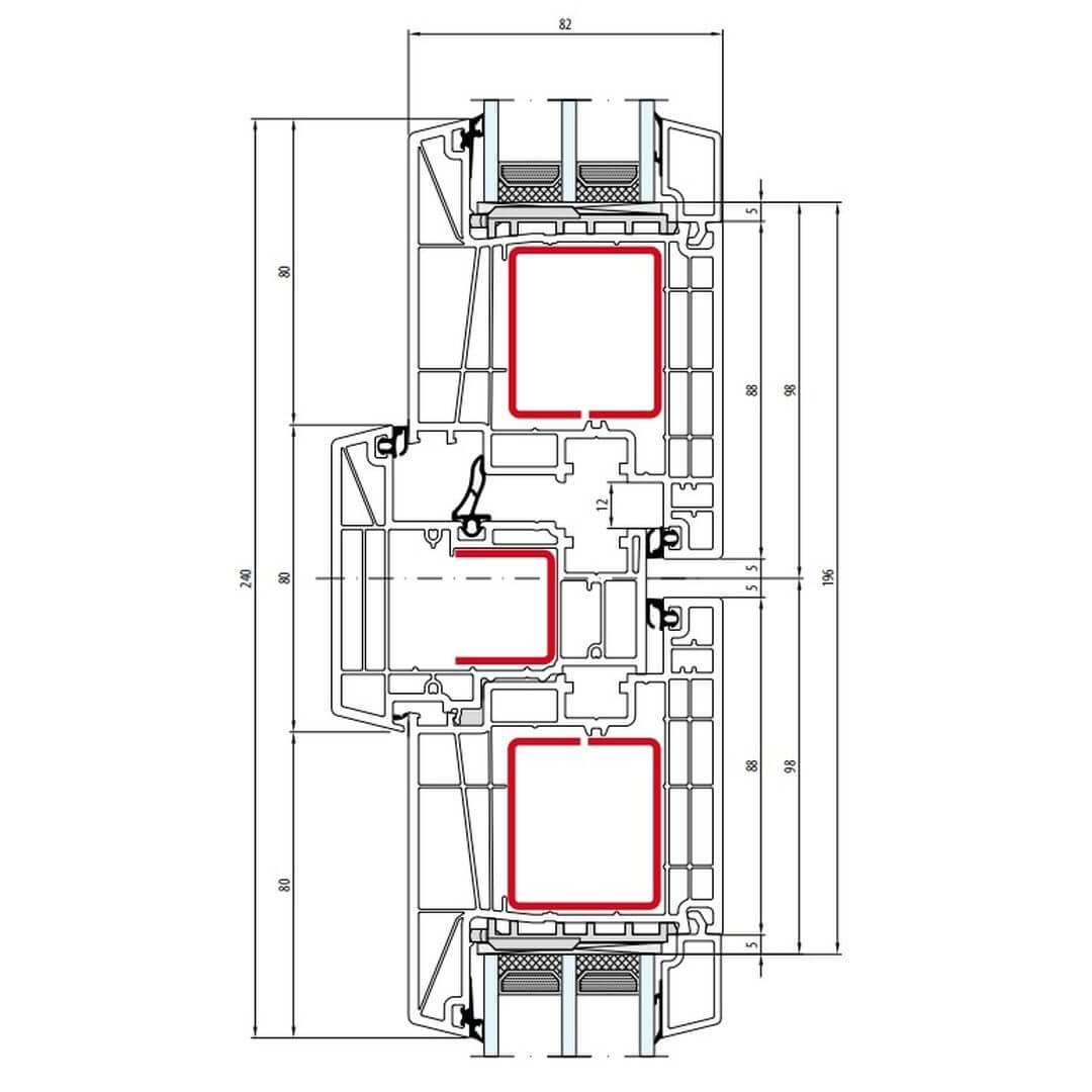
Kunststofffenster bluEvolution 82 mit Pfosten 116mm (Breit - Große Konstruktionen)

Kunststofffenster bluEvolution 82 mit Stulp 80mm

Salamander bluEvolution 82 Fenster Classic-Line 85mm Stulp 80mm - HO9800 - HO8521

bluEvolution 82 Fenster Classic-Line 85mm Stulp 80mm - HO9800 - HO8521

Kunststofffenster bluEvolution 82 mit Stulp (Sonderkonstruktionen auf Anfrage)

Salamander bluEvolution 82 Fenster Classic-Line 85mm Stulp 60mm - HO9810 - HO8521

bluEvolution 82 Fenster Classic-Line 85mm Stulp 60mm - HO9810 - HO8521

Kunststoff Balkontür bluEvolution 82

Salamander bluEvolution 82 Fenster Classic-Line 123mm - HO9020 - HO8521

bluEvolution 82 Balkontür Classic-Line mit Blendrahmen - HO9020 - HO8521

Salamander bluEvolution 82 Balkontürschwelle 20mm Classic-Line - HO8521

bluEvolution 82 Balkontürschwelle 20mm Classic-Line - HO8521

Kunststoff Terrassenflügel bluEvolution 82

Salamander bluEvolution 82 Terassentür innen öffnend Classic-Line 153mm- HO9020 - HO8530

bluEvolution 82 Terassentür innen öffnend Classic-Line 153mm- HO9020 - HO8530

Salamander bluEvolution 82 Terassentürschwelle 20mm innen öffnend Classic-Line - HO8530

bluEvolution 82 Terassentürschwelle 20mm innen öffnend Classic-Line - HO8530

Salamander bluEvolution 82 Pfosten 96mm Terassentür innen öffnend Classic-Line - HO9320 - HO8530

bluEvolution 82 Pfosten 96mm Terassentür innen öffnend Classic-Line - HO9320 - HO8530

Salamander bluEvolution 82 Terassentür aussen öffnend Classic-Line 153mm- HO9020 - HO8540

bluEvolution 82 Terassentür aussen öffnend Classic-Line 153mm- HO9020 - HO8540

Salamander bluEvolution 82 Pfosten 96mm Terassentür außen öffnend Classic-Line - HO9320 - HO8540

bluEvolution 82 Pfosten 96mm Terassentür außen öffnend Classic-Line - HO9320 - HO8540

Terrassenflügel bluEvolution 82 mit Stulp 80mm

Salamander bluEvolution 82 Stulp 80mm Terassentür innen öffnend Classic-Line - HO9800 - HO8530

bluEvolution 82 Stulp 80mm Terassentür innen öffnend Classic-Line - HO9800 - HO8530

Kunststoff bluEvolution 82 PSK Parallel-Schiebe-Kipp-Tür

Kunststoff Haustür bluEvolution 82

Salamander bluEvolution 82 Tür innen öffnend Classic-Line - HO9030 - HO8550

bluEvolution 82 Tür innen öffnend Classic-Line - HO9030 - HO8550

Salamander bluEvolution 82 Türschwelle 20mm innen öffnend Classic-Line - HO8550t

bluEvolution 82 Türschwelle 20mm innen öffnend Classic-Line - HO8550t

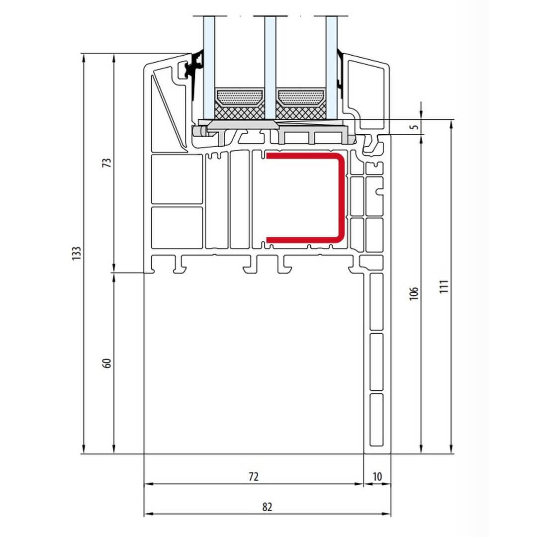
Salamander bluEvolution 82 Pfosten 96mm Tür innen öffnend Classic-Line - HO9320 - HO8550

bluEvolution 82 Pfosten 96mm Tür innen öffnend Classic-Line - HO9320 - HO8550

Salamander bluEvolution 82 Tür außen öffnend Classic-Line - HO9030 - HO8560

bluEvolution 82 Tür außen öffnend Classic-Line - HO9030 - HO8560

Salamander bluEvolution 82 Türschwelle 20mm außen öffnend - HO8560

bluEvolution 82 Türschwelle 20mm außen öffnend - HO8560

Salamander bluEvolution 82 Pfosten 96mm Tür außen öffnend Classic-Line - HO9320 - HO8560

bluEvolution 82 Pfosten 96mm Tür außen öffnend Classic-Line - HO9320 - HO8560

Türflügel bluEvolution 82 mit Stulp 80mm

Salamander bluEvolution 82 Stulp 80mm Tür innen öffnend Classic-Line - HO9800 - HO8550

bluEvolution 82 Stulp 80mm Tür innen öffnend Classic-Line - HO9800 - HO8550

Zusatzprofile für Salamander Brügmann bluEvolution 82 Querschnitte

Kunststoff Sprossenarten - bluEvolution 82

Innenliegende SZR Sprossen / Helima Sprossen

Drutex Iglo SZR Sprosse 8mm

Innenliegende Sprosse 8mm

Drutex Iglo SZR Sprosse 18mm

Innenliegende Sprosse 18mm

Drutex Iglo SZR Sprosse 26mm

Innenliegende Sprosse 26mm

Drutex Iglo SZR Sprosse 45mm

Innenliegende Sprosse 45mm

Aufgesetzte / Aufgeklebte Sprossen

Salamander 416 302 - aufgesetzte Sprossen - 27mm

416 302 - aufgesetzte Sprossen - 27mm

Salamander 416 304 - aufgesetzte Sprossen - 45mm

416 304 - aufgesetzte Sprossen - 45mm

Salamander 416 306 - aufgesetzte Sprossen - 65mm

416 306 - aufgesetzte Sprossen - 65mm

Glasteilende Sprossen - Kämpfer

Salamander bluEvolution 82 Pfosten 96mm - HO9320

bluEvolution 82 Kämpfer-Sprosse 96mm - HO9320

Kunststoff Anschlussprofile - bluEvolution 82

Kunststoff Bankanschlussprofile

Salamander NP8020 - Fensterbankanschluss - 30mm

NP8020 - Fensterbankanschluss - 30mm

Salamander NP0400 - Fensterbankanschluss - 40mm

NP0400 - Fensterbankanschluss - 40mm

Kunststoff Bankanschlussprofile auf Anfrage

Salamander NP0300 - Fensterbankanschluss - 20x30mm

NP0300 - Fensterbankanschluss - 20x30mm

Kunststoff Steinbankanschlussprofile

Salamander NP0360 - Steinbankanschluss - 40mm

NP0360 - Steinbankanschluss - 40mm

Salamander NP0380 - Steinbankanschluss - 60mm

NP0380 - Steinbankanschluss - 60mm

Kunststoff Anschlussprofile (bündig)

Salamander NP0320 - Bankanschlussprofil - 30mm

NP0320 - Bankanschlussprofil - 30mm

Salamander NP0370 - Bankanschlussprofil - 40mm

NP0370 - Bankanschlussprofil - 40mm

Kunststoff Fensterbank-Anschlussprofile

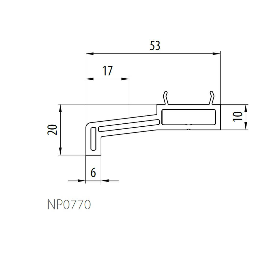
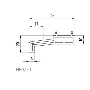
Salamander NP0770 Fensterbank aussen 53mm

NP0770 Fensterbank aussen 53mm

Salamander NP0820 Fensterbank aussen 155mm

NP0820 Fensterbank aussen 155mm

Salamander NP0960 Fensterbank aussen 86mm

NP0960 Fensterbank aussen 86mm

Salamander ES0960 Fensterbank Endkappen

ES0960 Fensterbank Endkappen

Kunststoff Rahmenverbreiterung - bluEvolution 82

Salamander NP8200 Rahmenverbreiterung 10mm

NP8200 Rahmenverbreiterung 10mm

Salamander NP8300 Rahmenverbreiterung 30mm

NP8300 Rahmenverbreiterung 30mm

Salamander NP8500 Rahmenverbreiterung 50mm

NP8500 Rahmenverbreiterung 50mm

Salamander NP8700 Rahmenverbreiterung 150mm

NP8700 Rahmenverbreiterung 150mm

Kunststoff Kopplungen - bluEvolution 82

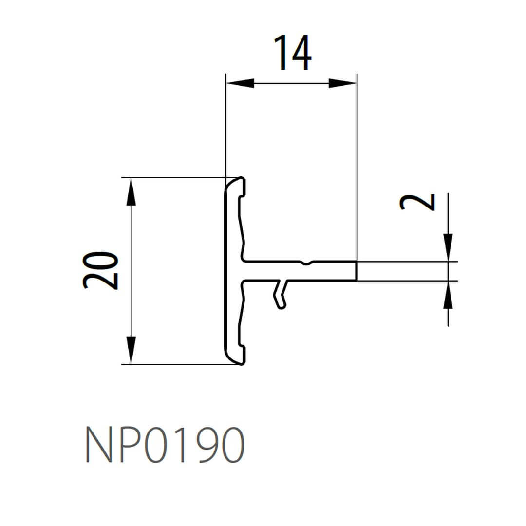
Salamander NP0190 - H-Kopplung universal

NP0190 - H-Kopplung universal

Salamander NP8110 Federkopplung

NP8110 Federkopplung

Salamander NP8140 Statikkopplung 6mm

NP8140 Statikkopplung 6mm

Salamander NP8120 Statikkopplung 20mm

NP8120 Statikkopplung 20mm

Salamander NP8170 Statikkopplung 16mm

NP8170 Statikkopplung 16mm

Kopplung von Eck-Elementen - 90° und Variabel

Salamander NP0100 Eckkopplung 90 Grad

NP0100 Eckkopplung 90 Grad

Salamander NP8160 NP8150 Eckkopplung variabel

NP8160 - NP8150 Eckkopplung variabel

Salamander 416 240 Eckkopplung 135 Grad

416 240 Eckkopplung 135 Grad

Salamander 416 269 - 416 311 Statikprofil

416 269 - 416 311 Statikprofil

Kunststoff Abdeckleisten - bluEvolution 82

Aluplast Flachleisten aus Kunststoff Auswahl 65025100, 6465050, 65025080, 65025070, 65025050, 65025040, 65025030

65025100, 6465050, 65025080, 65025070, 65025050, 65025040, 65025030 - Flachleiste aus Kunststoff Auswahl

Salamander Flachleisten mit Dichtlippe 406 312, 406 315

406 312, 406 315 - Flachleiste mit Dichtlippe Auswahl

Aluplast Deckleisten mit Hohlkammerprofil Auswahl

Hohlkammerprofil Deckleiste Auswahl

Winkelprofile aus Kunststoff 73100060, 73080050, 73060040, 73020020

73100060, 73080050, 73060040, 73020020 - Winkelprofil aus Kunststoff

Salamander Winkelprofile aus Kunststoff 406 321, 406 320, 406 319

406 321, 406 320, 406 319 - Winkelprofil aus Kunststoff

Salamander Hohlkammer Winkelprofil aus Kunststoff 406329, 406325

406329, 406325 - Hohlkammer Winkelprofil aus Kunststoff

Aufsatzrollladen Zubehör - Salamander

Salamander Einseitige Führungsschiene 33mmfür Aufsatzrollladen Detailzeichnung

Einseitige Führungsschiene 33mm für Aufsatzrollladen

Salamander Einseitige Führungsschiene 48mm für Aufsatzrollladen Detailzeichnung

Einseitige Führungsschiene 48mm für Aufsatzrollladen

Salamander Aufsatzrollladen Führungsschiene Aufdoppelung 20mm Detailzeichnung

Aufsatzrollladen Führungsschiene Aufdoppelung 20mm

Salamander Beidseitige Führungsschiene 74mm für Aufsatzrollladen Detailzeichnung

Beidseitige Führungsschiene 74mm für Aufsatzrollladen

Kunststoff Weitere Profile - Salamander

Salamander 406 670 Verkleidungsprofil

406 670 Verkleidungsprofil

Salamander 406 316 Abdeckleiste

406 316 Abdeckleiste

Salamander kozijnen en deuren op maat

Configureer en bestel eenvoudig en comfortabel Aluplast ramen en deuren online bij kozijnenblik.nl

Das könnte Sie auch interessieren:

Kunststofffenster greenEvolution 76

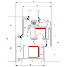
Detailzeichnungen Kunststofffenster greenEvolution 76

Kunststofffenster greenEvolution 76 besitzen eine Bautiefe (Rahmen) von 76mm.

Detailzeichnungen greenEvolution 76

Kunststofffenster bluEvolution 82

Detailzeichnungen Kunststofffenster bluEvolution 92

Kunststofffenster bluEvolution 92 besitzen eine Bautiefe (Rahmen) von 92mm.

Detailzeichnungen bluEvolution 92