Detailzeichnungen Salamander Brügmann bluEvolution 92

Kunststofffensterprofil Salamander Brügmann bluEvolution 92 Querschnitte

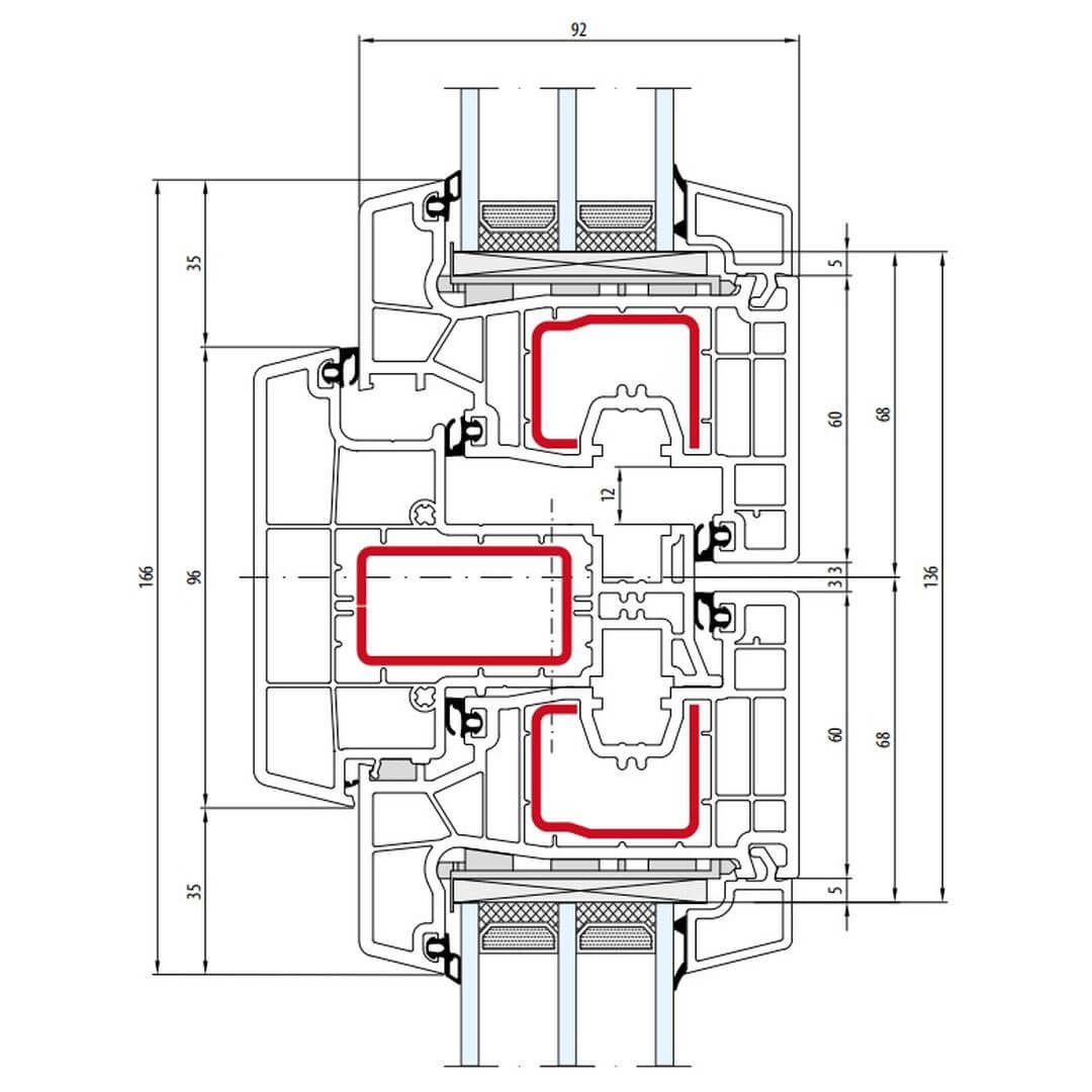
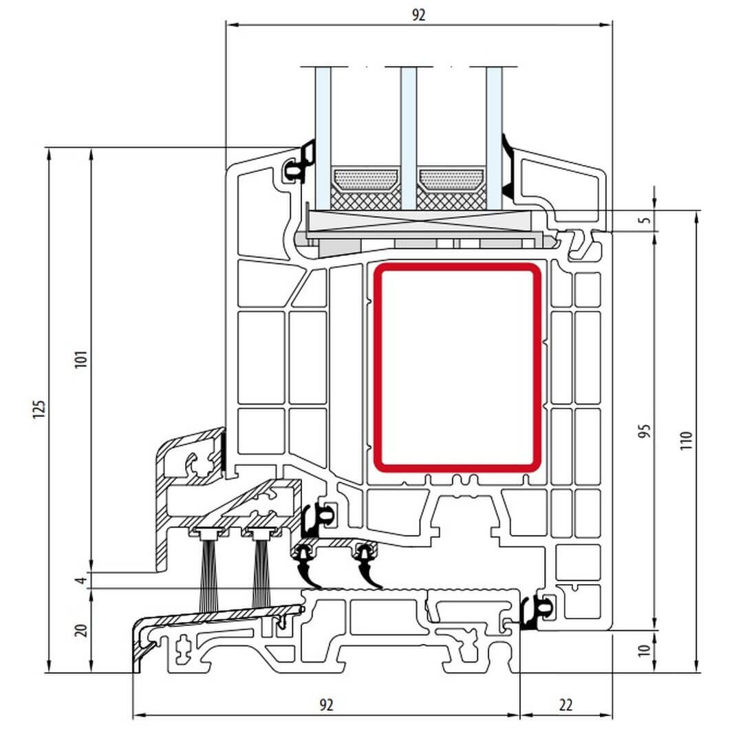
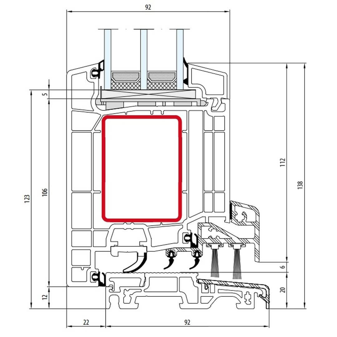
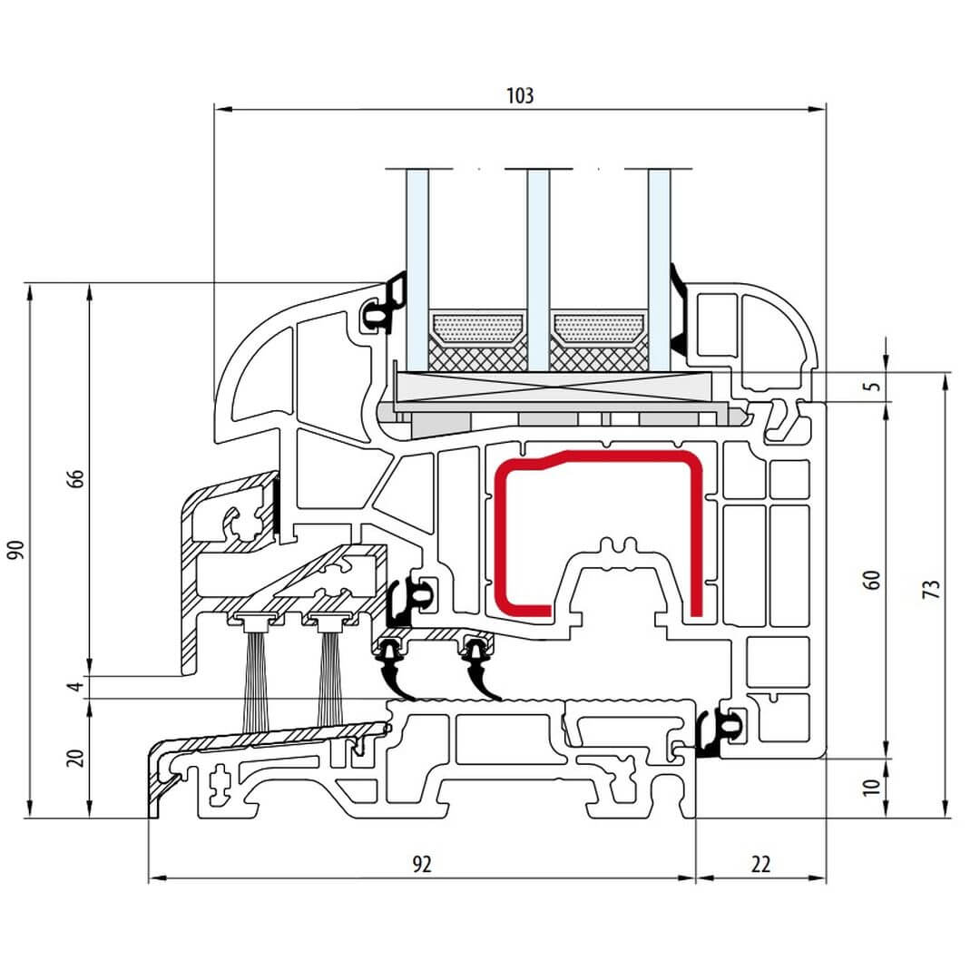
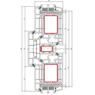
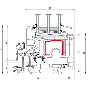
Salamander bluEvolution 92 Festverglasung 83mm - 170 820

bluEvolution 92 Festverglasung 83mm - 170 820

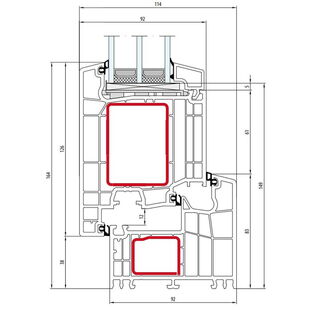
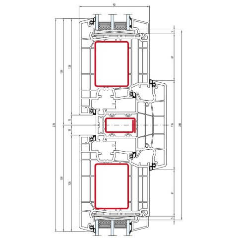
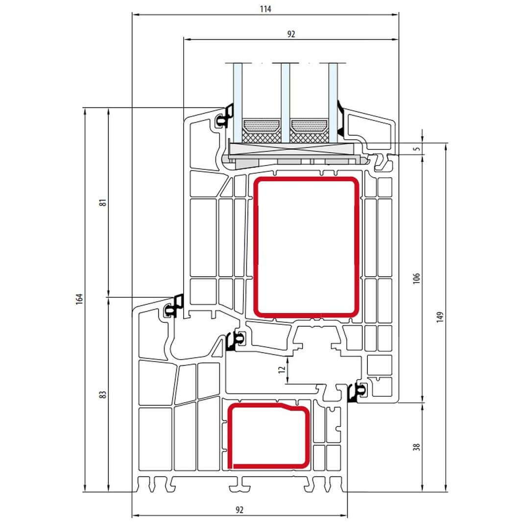
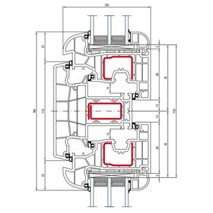
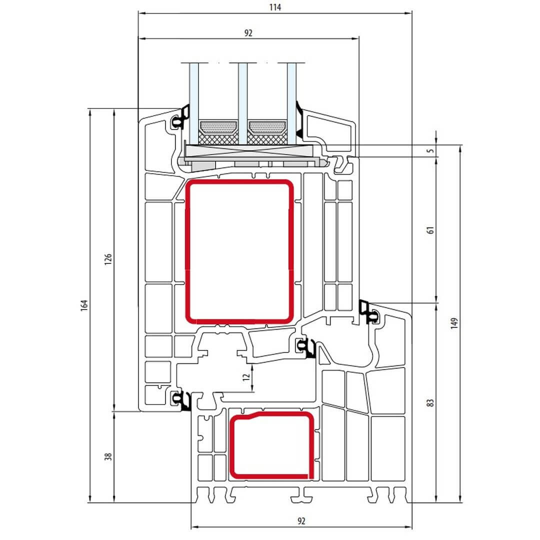
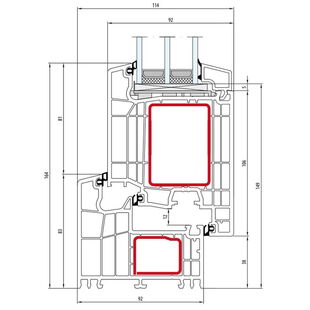
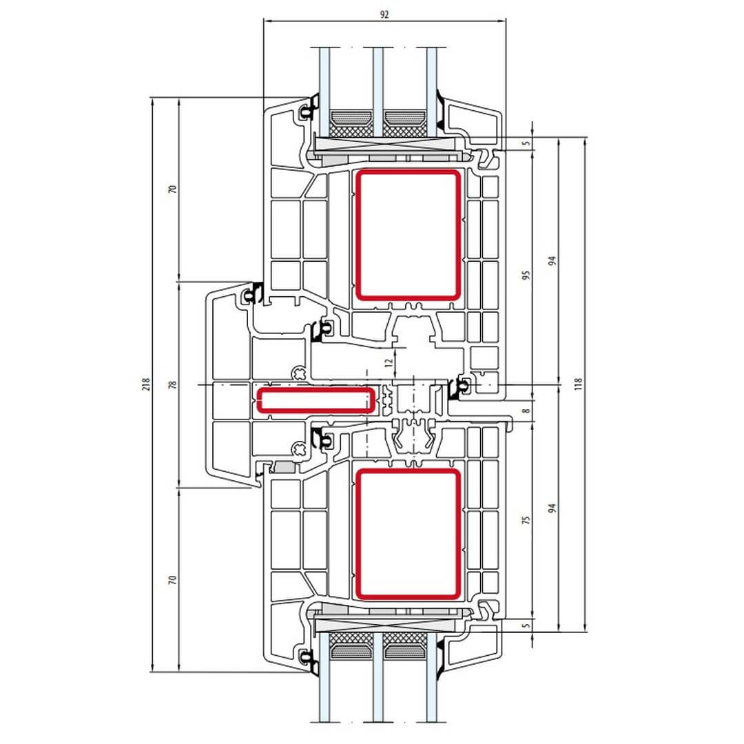
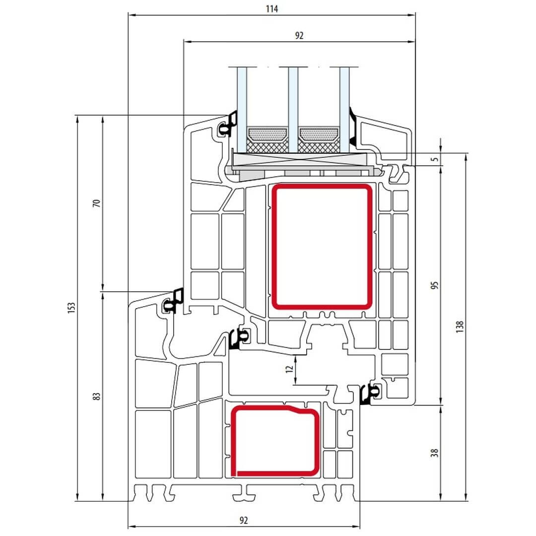
Salamander bluEvolution 92 Fenster Classic-Line 118mm - 170 820 - 171 020

bluEvolution 92 Fenster Classic-Line 118mm - 170 820 - 171 020

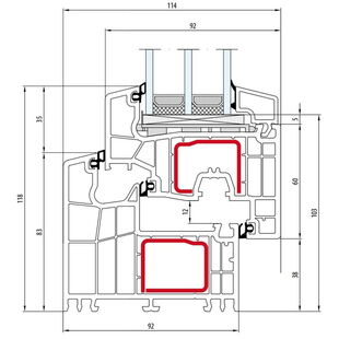
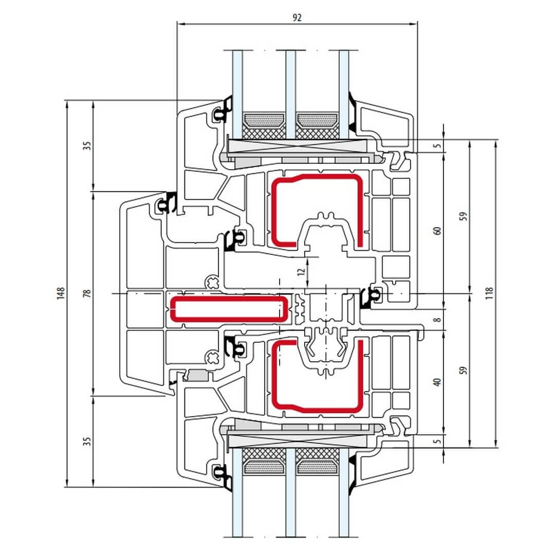
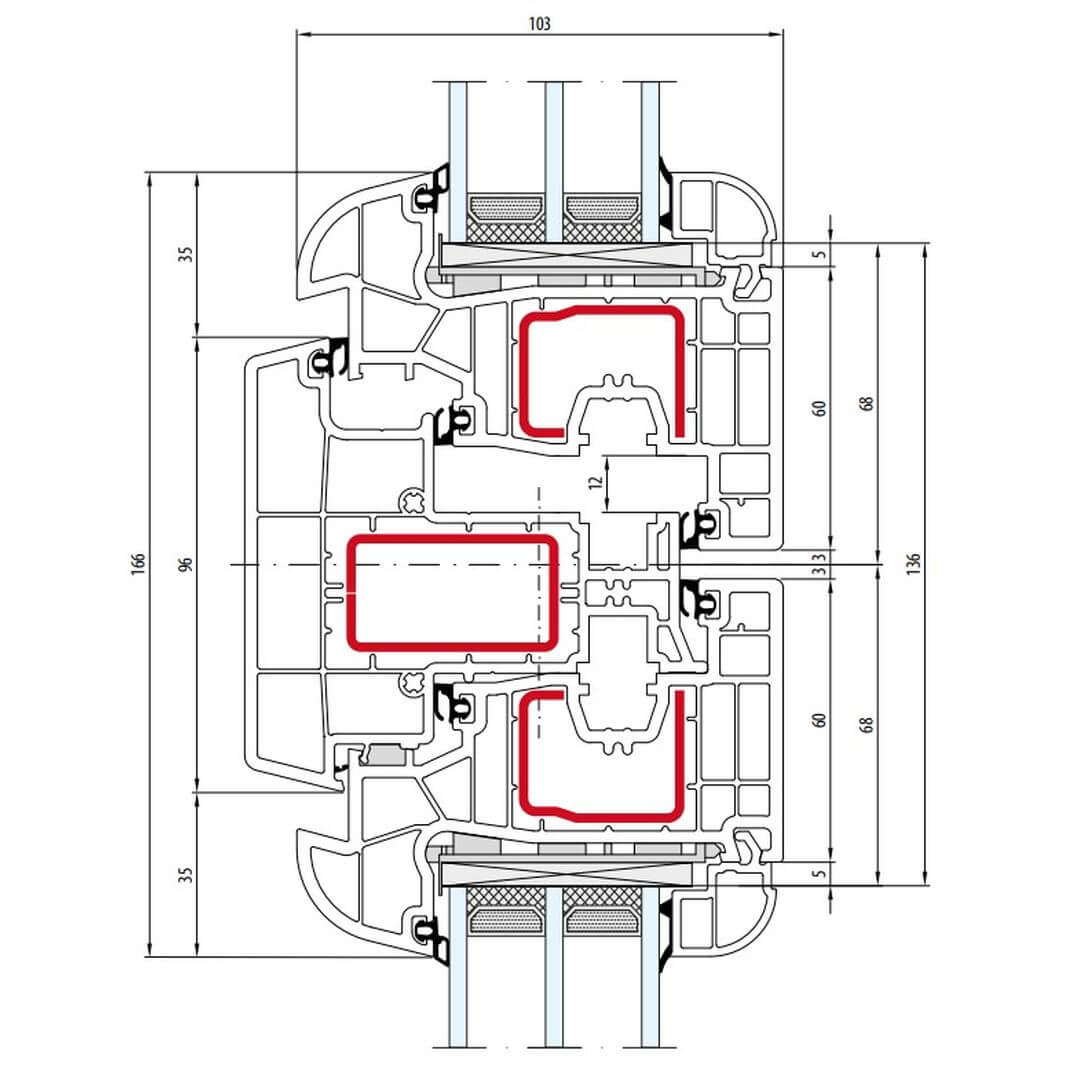
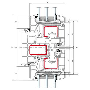
Salamander bluEvolution 92 Fenster Round-Line 118mm - 170 820 - 171 226

bluEvolution 92 Fenster Round-Line 118mm - 170 820 - 171 226

Kunststofffenster bluEvolution 92 mit Türrahmen (170 430)

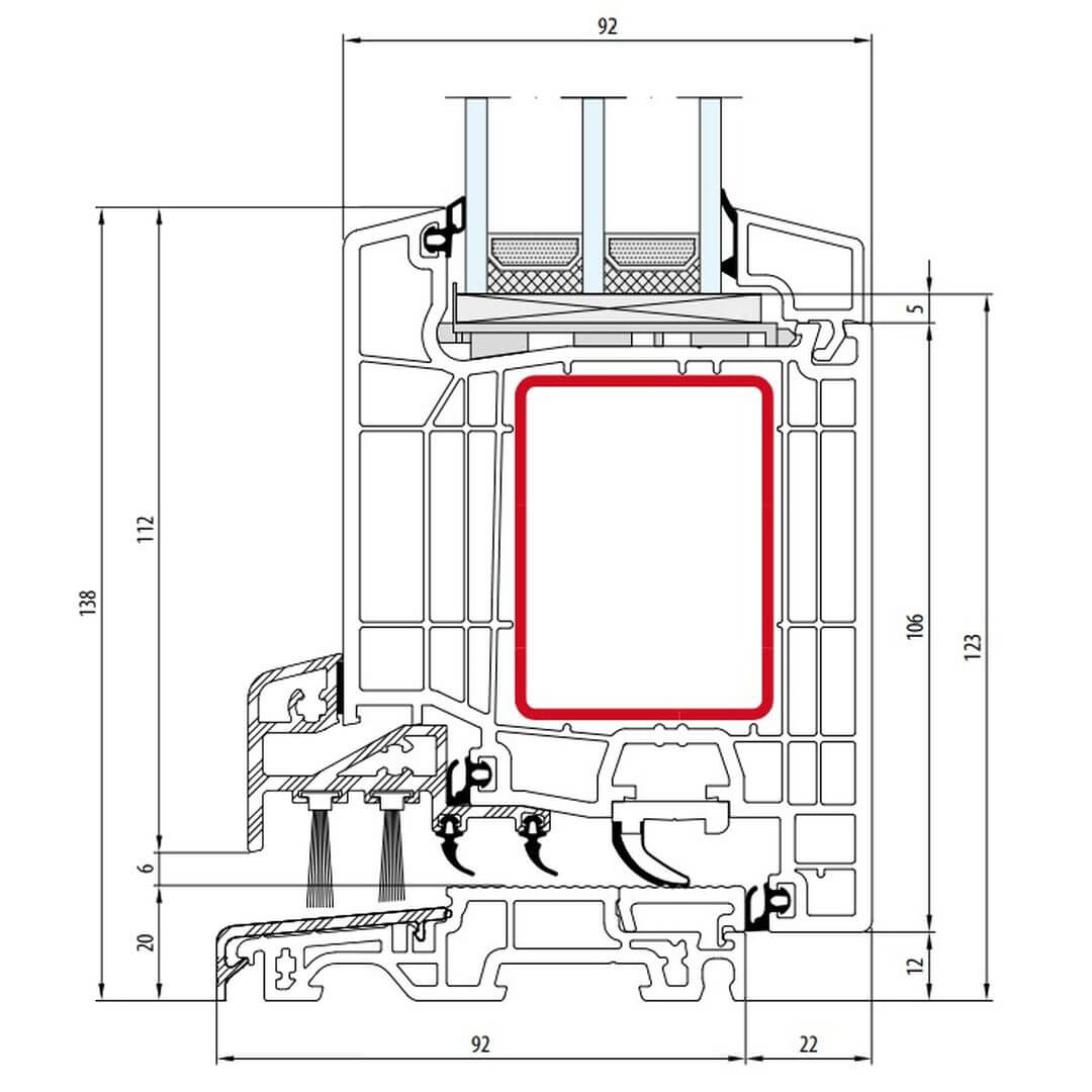
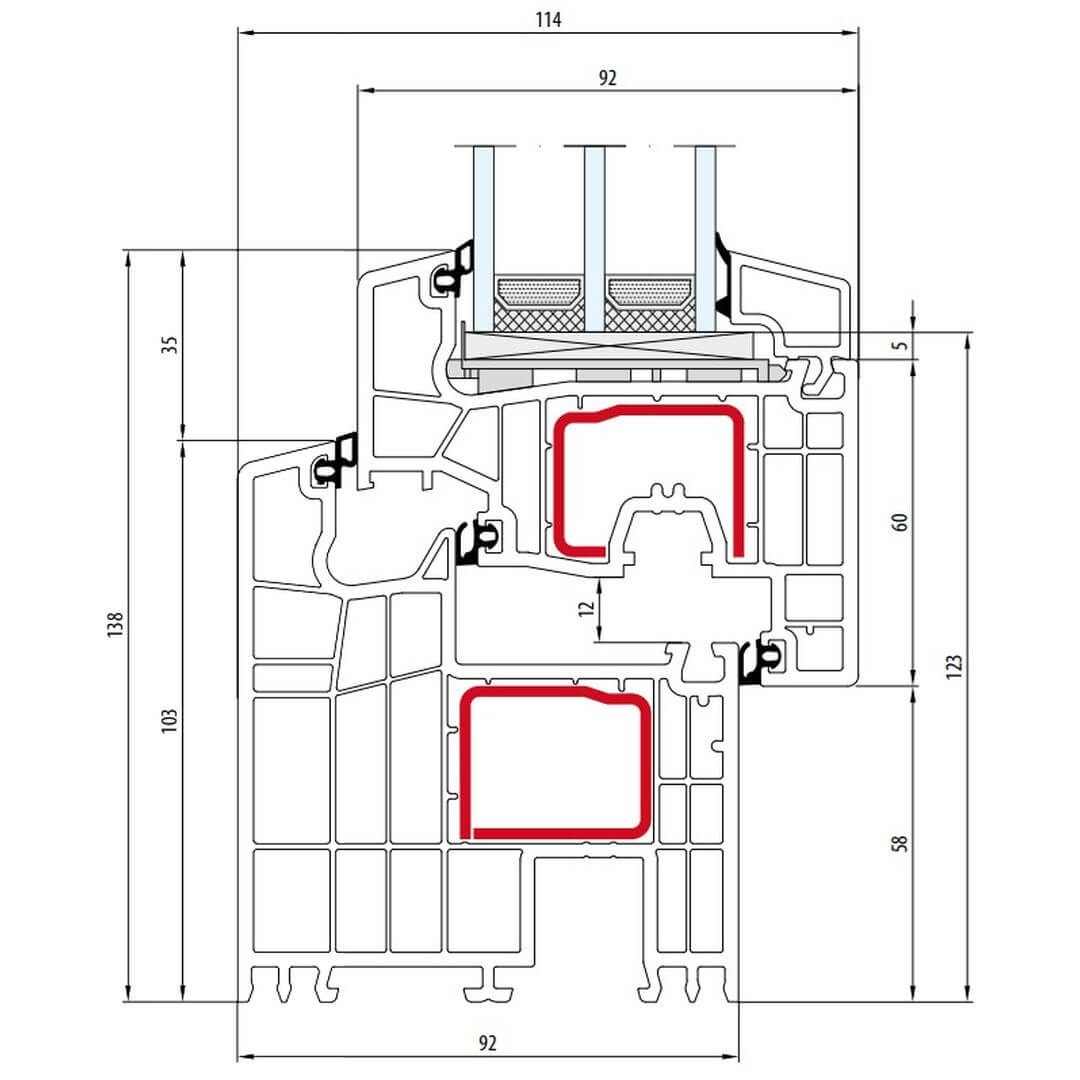
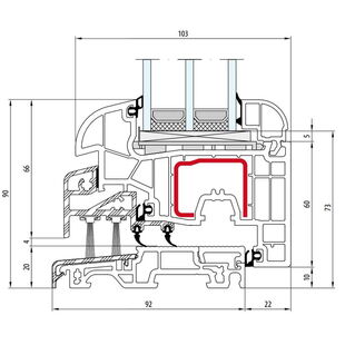
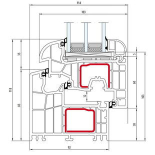
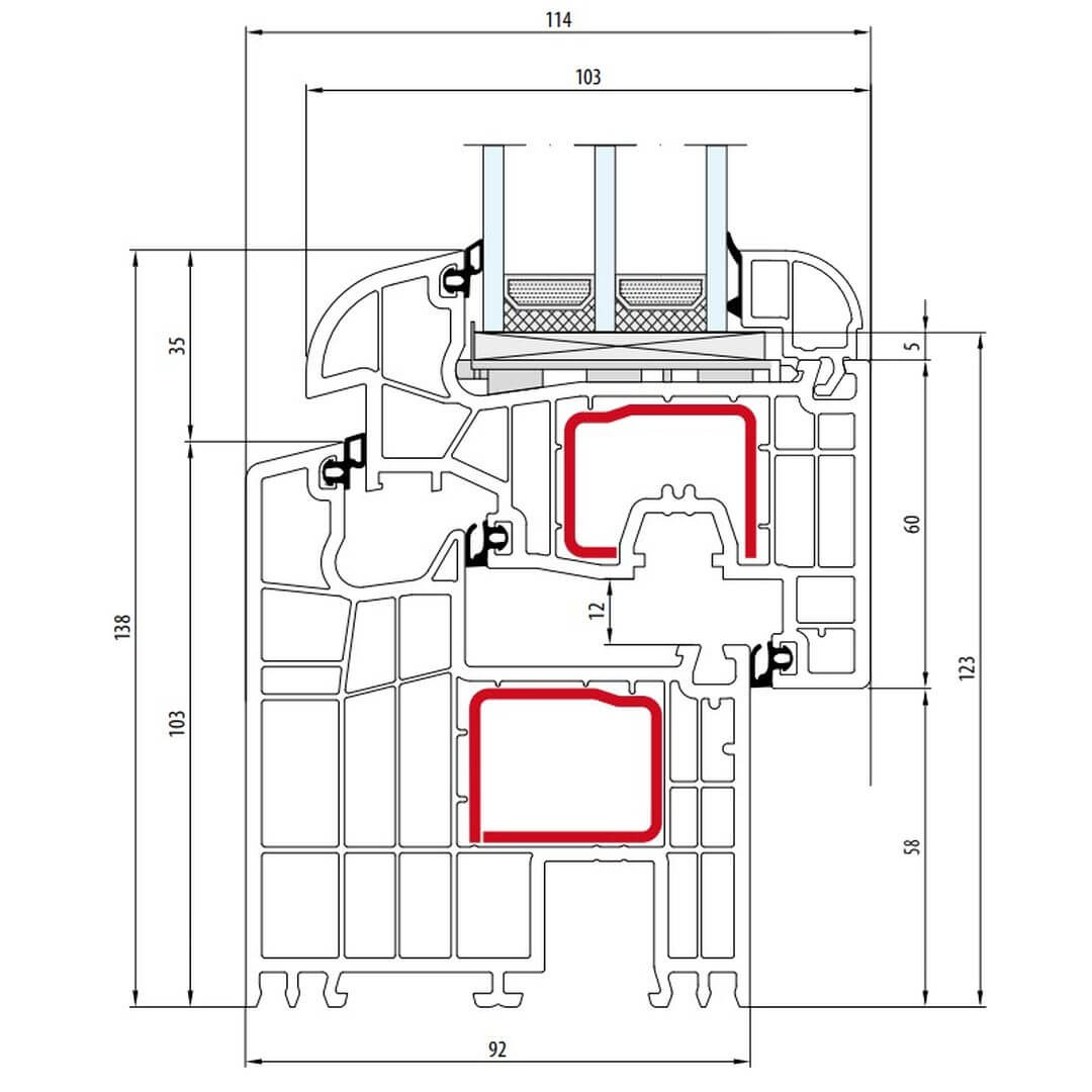
Salamander bluEvolution 92 Festverglasung 103mm - 170 430

bluEvolution 92 Festverglasung 103mm - 170 430

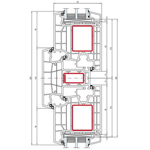
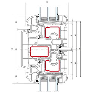
Salamander bluEvolution 92 Fenster Classic-Line 138mm - 170 430 - 171 020

bluEvolution 92 Fenster Classic-Line 138mm - 170 430 - 171 020

Salamander bluEvolution 92 Fenster Round-Line 138mm - 170 430 - 171 226

bluEvolution 92 Fenster Round-Line 138mm - 170 430 - 171 226

Kunststofffenster bluEvolution 92 mit Pfosten 116mm

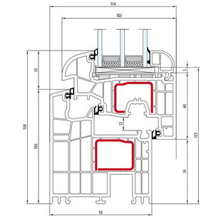
Salamander bluEvolution 92 Pfosten 116mm - 172 420

bluEvolution 92 Pfosten 116mm - 172 420

Salamander bluEvolution 92 Pfosten 116mm Fenster Classic-Line - 172 420 - 171 020

bluEvolution 92 Pfosten 116mm Fenster Classic-Line - 172 420 - 171 020

Salamander bluEvolution 92 Pfosten 116mm Fenster Round-Line - 172 420 - 171 226

bluEvolution 92 Pfosten 116mm Fenster Round-Line - 172 420 - 171 226

Kunststofffenster bluEvolution 92 mit Stulp 78mm

Salamander bluEvolution 92 Stulp 78mm Fenster Classic-Line 80mm - 176 020 - 171 020

bluEvolution 92 Stulp 78mm Fenster Classic-Line 80mm - 176 020 - 171 020

Salamander bluEvolution 92 Stulp 78mm Fenster Round-Line 80mm - 176 020 - 171 226

bluEvolution 92 Stulp 78mm Fenster Round-Line 80mm - 176 020 - 171 226

Kunststofffenster bluEvolution 92 mit Stulp (Sonderkonstruktionen auf Anfrage)

Salamander bluEvolution 92 Stulp 96mm Fenster Classic-Line 80mm - 176 030 - 171 020

bluEvolution 92 Stulp 96mm Fenster Classic-Line 80mm - 176 030 - 171 020

Salamander bluEvolution 92 Stulp 96mm Fenster Round-Line 80mm - 176 030 - 171 226

bluEvolution 92 Stulp 96mm Fenster Round-Line 80mm - 176 030 - 171 226

Kunststoff Balkontür bluEvolution 92

Salamander bluEvolution 92 Fenster Classic-Line 118mm - 170 820 - 171 020

bluEvolution 92 Balkontür Classic-Line mit Blendrahmen - 170 820 - 171 020

Salamander bluEvolution 92 Balkontürschwelle 20mm Classic-Line - 170 820 - 171 020

bluEvolution 92 Balkontürschwelle 20mm Classic-Line - 170 820 - 171 020

Salamander bluEvolution 92 Fenster Round-Line 118mm - 170 820 - 171 226

bluEvolution 92 Balkontür Round-Line mit Blendrahmen - 170 820 - 171 226

Salamander bluEvolution 92 Balkontürschwelle 20mm Round-Line - 170 820 - 171 226

bluEvolution 92 Balkontürschwelle 20mm Round-Line - 170 820 - 171 226

Kunststoff Terrassenflügel bluEvolution 92

Salamander bluEvolution 92 Terassentür innen öffnend Classic-Line 153mm - 170 820 - 171 030

bluEvolution 92 Terassentür innen öffnend Classic-Line 153mm - 170 820 - 171 030

Salamander bluEvolution 92 bluEvolution 92 Terassentürschwelle 20mm innen öffnend Classic-Line - 171 030

bluEvolution 92 Terassentürschwelle 20mm innen öffnend Classic-Line - 171 030

Salamander bluEvolution 92 Pfosten 116mm Terrassenflügel innen öffnend Classic-Line - 172 420 - 171 030

bluEvolution 92 Pfosten 116mm Terrassenflügel innen öffnend Classic-Line - 172 420 - 171 030

Terrassenflügel bluEvolution 92 mit Stulp 78mm

Salamander bluEvolution 92 Stulp 78mm Terassentür innen öffnend Classic-Line - 176 020 - 171 030

bluEvolution 92 Stulp 78mm Terassentür innen öffnend Classic-Line - 176 020 - 171 030

Kunststoff bluEvolution 92 PSK Parallel-Schiebe-Kipp-Tür

Kunststoff Haustür bluEvolution 92

Salamander bluEvolution 92 Tür innen öffnend Classic-Line - 170 820 - 171 040

bluEvolution 92 Tür innen öffnend - 170 820 - 171 040

Salamander bluEvolution 92 Türschwelle 20mm innen öffnend - 171 040

bluEvolution 92 Türschwelle 20mm innen öffnend - 171 040

Salamander bluEvolution 92 Pfosten 116mm Tür innen öffnend Classic-Line - 172 420 - 171 040

bluEvolution 92 Pfosten 116mm Tür innen öffnend - 172 420 - 171 040

Salamander bluEvolution 92 Tür außen öffnend Classic-Line - 170 820 - 371 040

bluEvolution 92 Tür außen öffnend - 170 820 - 371 040

Salamander bluEvolution 92 Türschwelle 20mm außen öffnend - 371 040

bluEvolution 92 Türschwelle 20mm außen öffnend - 371 040

Salamander bluEvolution 92 Pfosten 116mm Tür außen öffnend Classic-Line - 172 420 - 371 040

bluEvolution 92 Pfosten 116mm Tür außen öffnend - 172 420 - 371 040

Türflügel bluEvolution 92 mit Stulp 78mm

Salamander bluEvolution 92 Stulp 78mm Tür innen öffnend Classic-Line - 176 020 - 171 040

bluEvolution 92 Stulp 78mm Tür innen öffnend - 176 020 - 171 040

Zusatzprofile für Salamander Brügmann bluEvolution 92 Querschnitte

Kunststoff Sprossenarten - bluEvolution 92

Innenliegende SZR Sprossen / Helima Sprossen

Drutex Iglo SZR Sprosse 8mm

Innenliegende Sprosse 8mm

Drutex Iglo SZR Sprosse 18mm

Innenliegende Sprosse 18mm

Drutex Iglo SZR Sprosse 26mm

Innenliegende Sprosse 26mm

Drutex Iglo SZR Sprosse 45mm

Innenliegende Sprosse 45mm

Aufgesetzte / Aufgeklebte Sprossen

Salamander 416 302 - aufgesetzte Sprossen - 27mm

416 302 - aufgesetzte Sprossen - 27mm

Salamander 416 304 - aufgesetzte Sprossen - 45mm

416 304 - aufgesetzte Sprossen - 45mm

Salamander 416 306 - aufgesetzte Sprossen - 65mm

416 306 - aufgesetzte Sprossen - 65mm

Glasteilende Sprossen - Kämpfer

Salamander bluEvolution 92 Pfosten 116mm - 172 420

bluEvolution 92 Kämpfer-Sprosse 116mm - 172 420

Kunststoff Anschlussprofile - bluEvolution 92

Kunststoff Bankanschlussprofile

Salamander 416 106 Fensterbankanschluss - 30mm

416 106 - Fensterbankanschluss - 30mm

Salamander 416 100 Fensterbankanschluss - 40mm

416 100 - Fensterbankanschluss - 40mm

Kunststoff Bankanschlussprofile auf Anfrage

Salamander 416 122 Fensterbankanschluss - 20mm

416 122 - Fensterbankanschluss - 20mm

Salamander 416 131 Fensterbankanschluss - 30mm

416 131 - Fensterbankanschluss - 30mm

Salamander 416 146 Fensterbankanschluss - 40mm

416 146 - Fensterbankanschluss - 40mm

Kunststoff Steinbankanschlussprofile

Salamander 416 133 Steinbankanschluss 30mm

416 133 Steinbankanschluss 30mm

Salamander 416 142 Steinbankanschluss 40mm

416 142 Steinbankanschluss 40mm

Salamander 416 135 Steinbankanschluss 50mm

416 135 Steinbankanschluss 50mm

Kunststoff Anschlussprofile (bündig)

Salamander 406 105 Bankanschlussprofil 20mm

406 105 Bankanschlussprofil 20mm

Salamander 406 139 Bankanschlussprofil 30mm

406 139 Bankanschlussprofil 30mm

Salamander 406 140 Bankanschlussprofil 40mm

406 140 Bankanschlussprofil 40mm

Salamander 406 157 Bankanschlussprofil 60mm

406 157 Bankanschlussprofil 60mm

Kunststoff Fensterbank-Anschlussprofile

Salamander 416 115 Fensterbank aussen 165mm

416 115 Fensterbank aussen 165mm

Kunststoff Rahmenverbreiterung - bluEvolution 92

Salamander 476 164 Rahmenverbreiterung 40mm

476 164 Rahmenverbreiterung 40mm

Salamander 476 170 Rahmenverbreiterung 60mm

476 170 Rahmenverbreiterung 60mm

Kunststoff Kopplungen - bluEvolution 92

Salamander 406 255 - H-Kopplung universal

406 255 - H-Kopplung universal

Salamander 416 264 Statikkopplung 6mm 92mm

416 264 - Statikkopplung 6mm

Salamander 476 273 Statikkopplung 16mm

476 273 Statikkopplung 16mm

Salamander 416 269 - 416 311 Statikprofil

416 269 - 416 311 Statikprofil

Kopplung von Eck-Elementen - 90° und Variabel

Salamander 416 210 Eckkopplung 90 Grad

416 210 Eckkopplung 90 Grad

Salamander NP0160 - 416 251 Eckkopplung variabel

NP0160 - 416 251 Eckkopplung variabel

Salamander 416 240 Eckkopplung 135 Grad

416 240 Eckkopplung 135 Grad

Kunststoff Abdeckleisten - bluEvolution 92

Aluplast Flachleisten aus Kunststoff Auswahl 65025100, 6465050, 65025080, 65025070, 65025050, 65025040, 65025030

65025100, 6465050, 65025080, 65025070, 65025050, 65025040, 65025030 - Flachleiste aus Kunststoff Auswahl

Salamander Flachleisten mit Dichtlippe 406 312, 406 315

406 312, 406 315 - Flachleiste mit Dichtlippe Auswahl

Aluplast Deckleisten mit Hohlkammerprofil Auswahl

Hohlkammerprofil Deckleiste Auswahl

Winkelprofile aus Kunststoff 73100060, 73080050, 73060040, 73020020

73100060, 73080050, 73060040, 73020020 - Winkelprofil aus Kunststoff

Salamander Winkelprofile aus Kunststoff 406 321, 406 320, 406 319

406 321, 406 320, 406 319 - Winkelprofil aus Kunststoff

Salamander Hohlkammer Winkelprofil aus Kunststoff 406 329, 406 325

406 329, 406 325 - Hohlkammer Winkelprofil aus Kunststoff

Aufsatzrollladen Zubehör - Salamander

Salamander Einseitige Führungsschiene 33mmfür Aufsatzrollladen Detailzeichnung

Einseitige Führungsschiene 33mm für Aufsatzrollladen

Salamander Einseitige Führungsschiene 48mm für Aufsatzrollladen Detailzeichnung

Einseitige Führungsschiene 48mm für Aufsatzrollladen

Salamander Aufsatzrollladen Führungsschiene Aufdoppelung 20mm Detailzeichnung

Aufsatzrollladen Führungsschiene Aufdoppelung 20mm

Salamander Beidseitige Führungsschiene 74mm für Aufsatzrollladen Detailzeichnung

Beidseitige Führungsschiene 74mm für Aufsatzrollladen

Kunststoff Weitere Profile - bluEvolution 92

Salamander 406 670 Verkleidungsprofil

406 670 Verkleidungsprofil

Salamander 406 316 Abdeckleiste

406 316 Abdeckleiste

Salamander kozijnen en deuren op maat

Configureer en bestel eenvoudig en comfortabel Aluplast ramen en deuren online bij kozijnenblik.nl

Das könnte Sie auch interessieren:

Kunststofffenster greenEvolution 76

Detailzeichnungen Kunststofffenster greenEvolution 76

Kunststofffenster greenEvolution 76 besitzen eine Bautiefe (Rahmen) von 76mm.

Detailzeichnungen greenEvolution 76

Kunststofffenster bluEvolution 82

Detailzeichnungen Kunststofffenster bluEvolution 82

Kunststofffenster bluEvolution 82 besitzen eine Bautiefe (Rahmen) von 82mm.

Detailzeichnungen bluEvolution 82