Detailzeichnungen Salamander greenEvolution 76 AD und MD

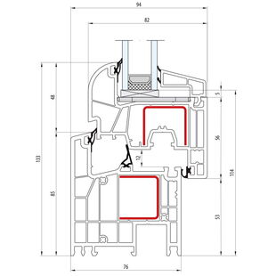
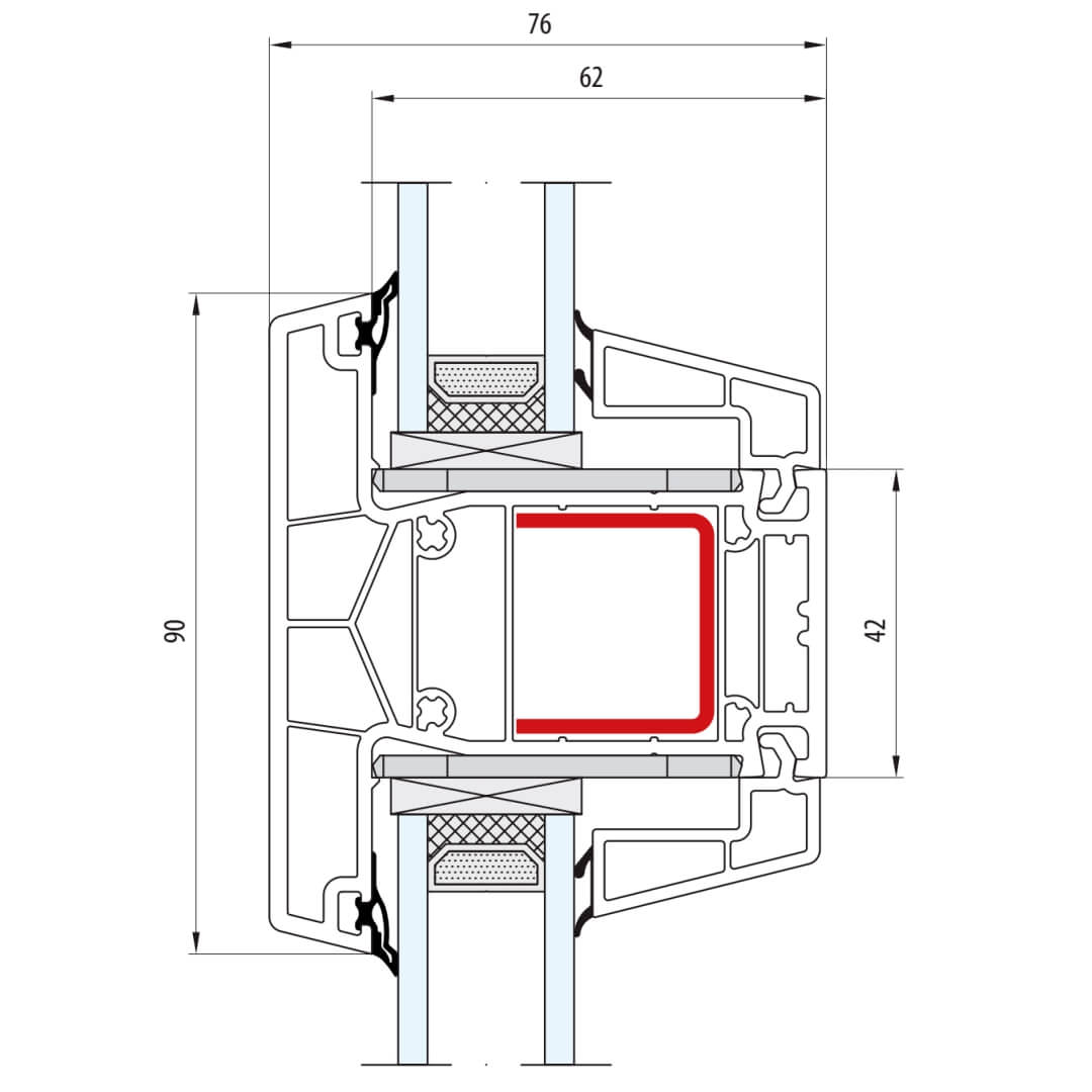
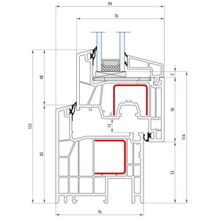
Kunststofffensterprofil greenEvolution 76 Querschnitte

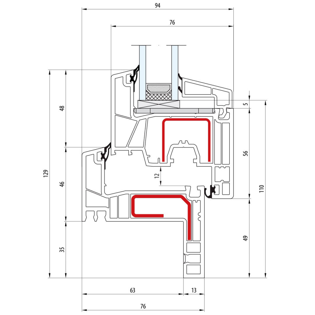
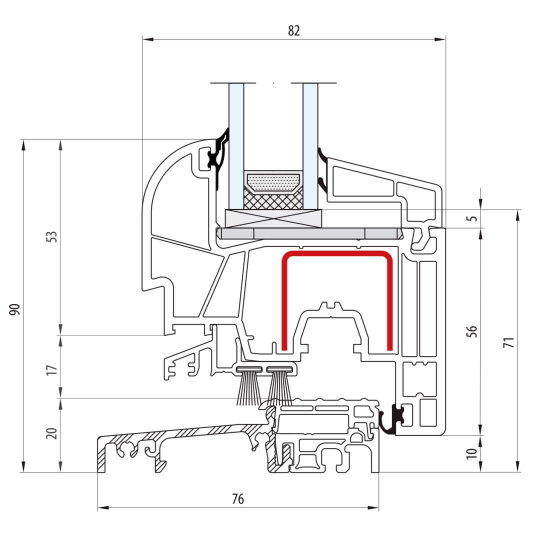
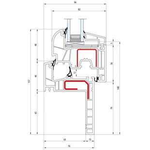
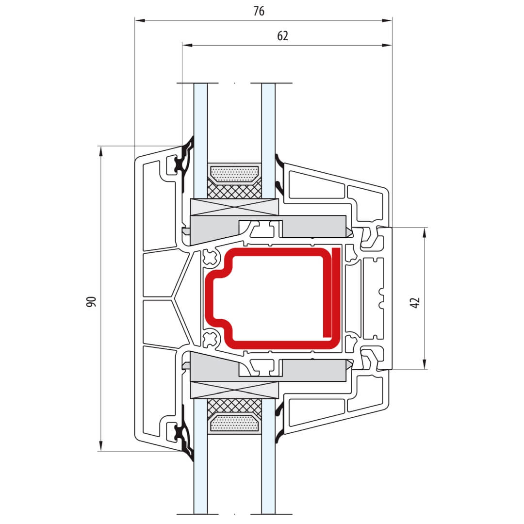
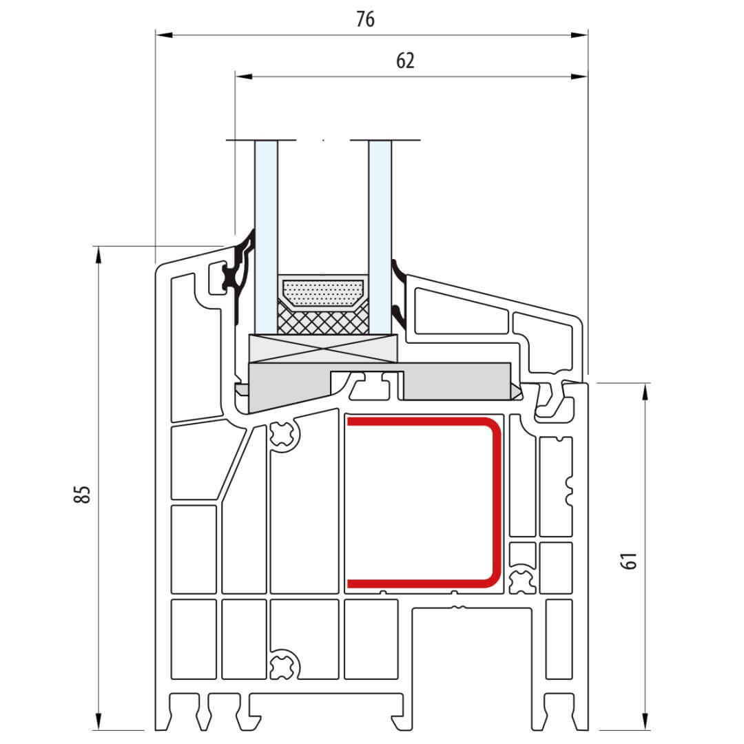
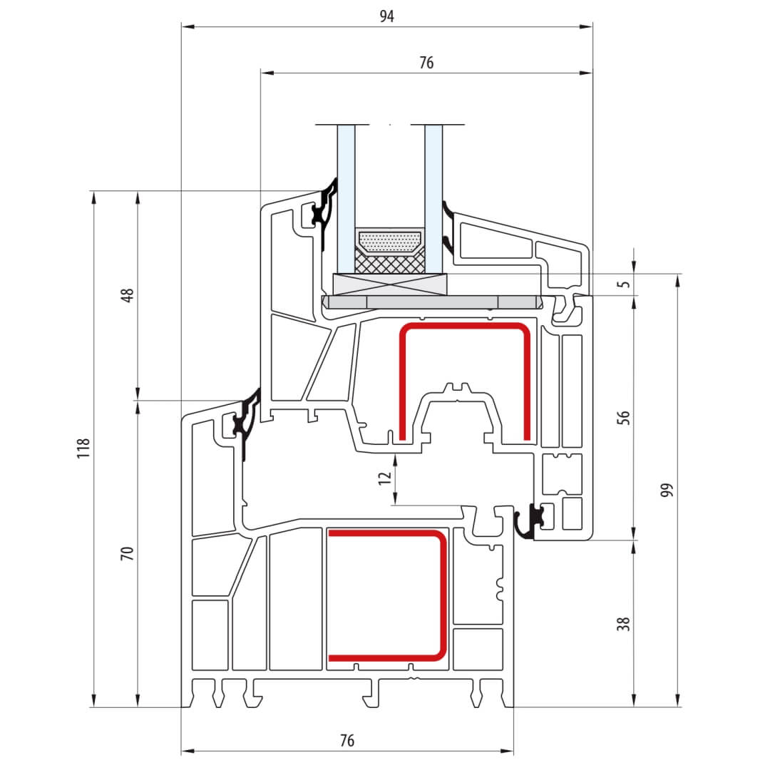
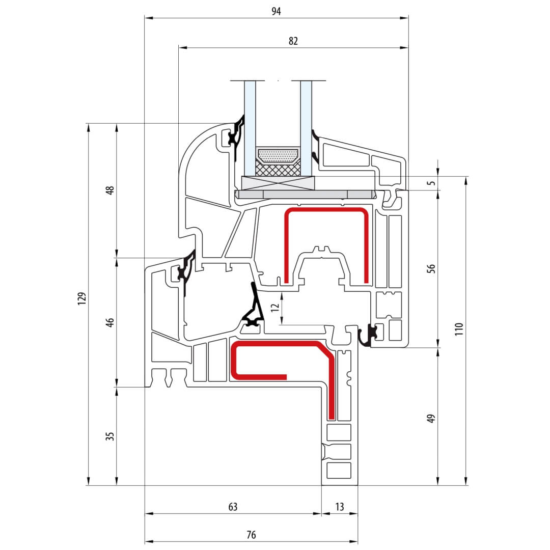
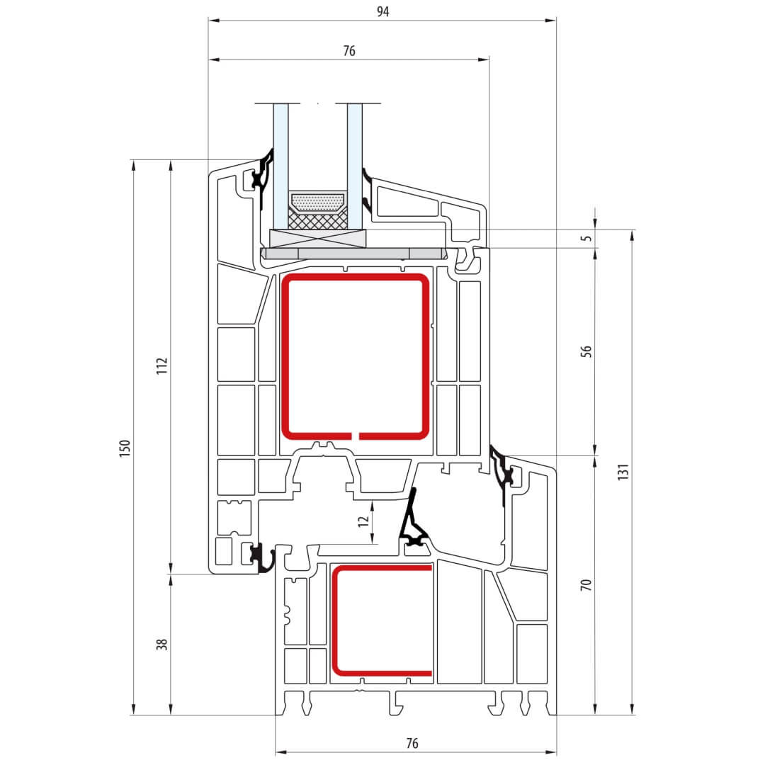
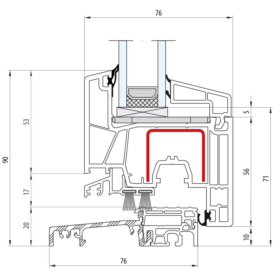
Kunststofffenster greenEvolution 76 (Anschlagsdichtung) mit Rahmen (760003)

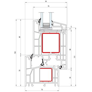
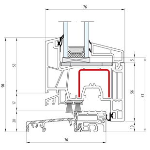
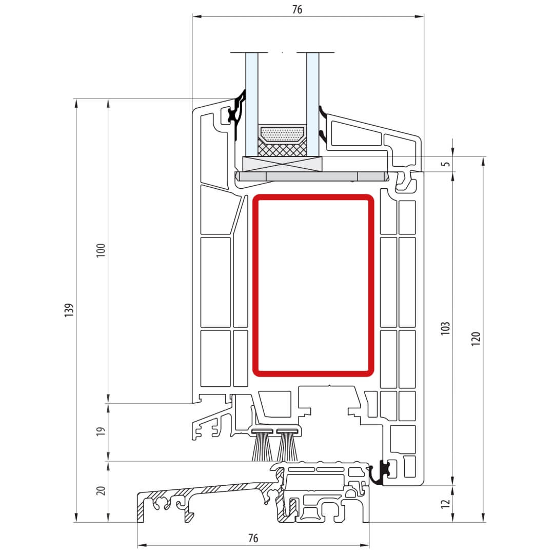
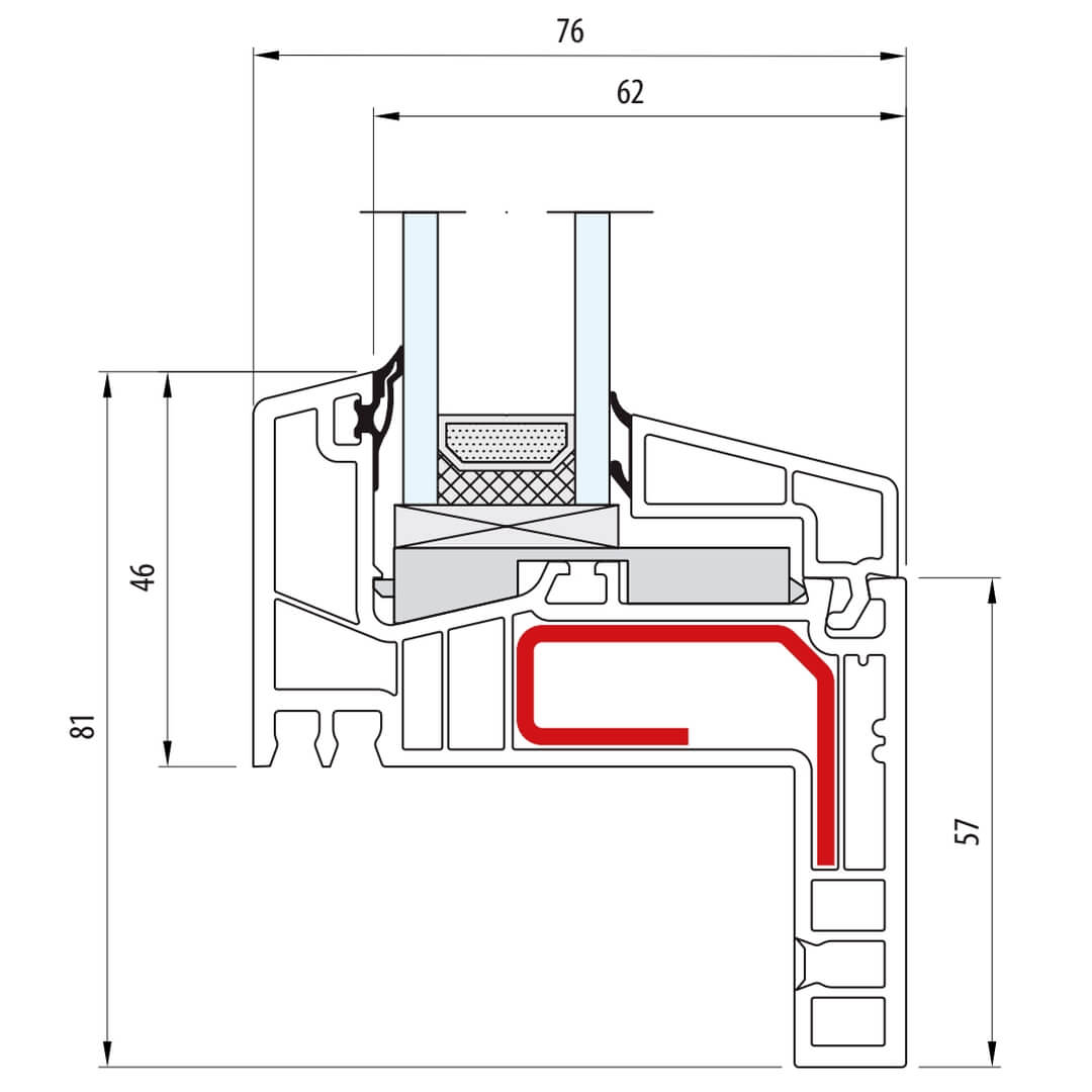
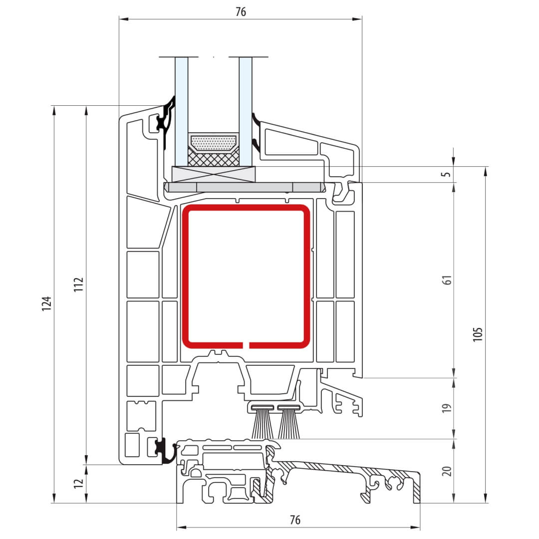
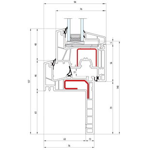
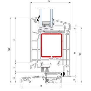
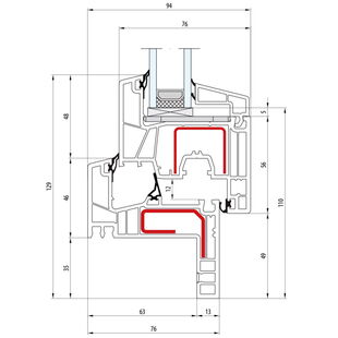
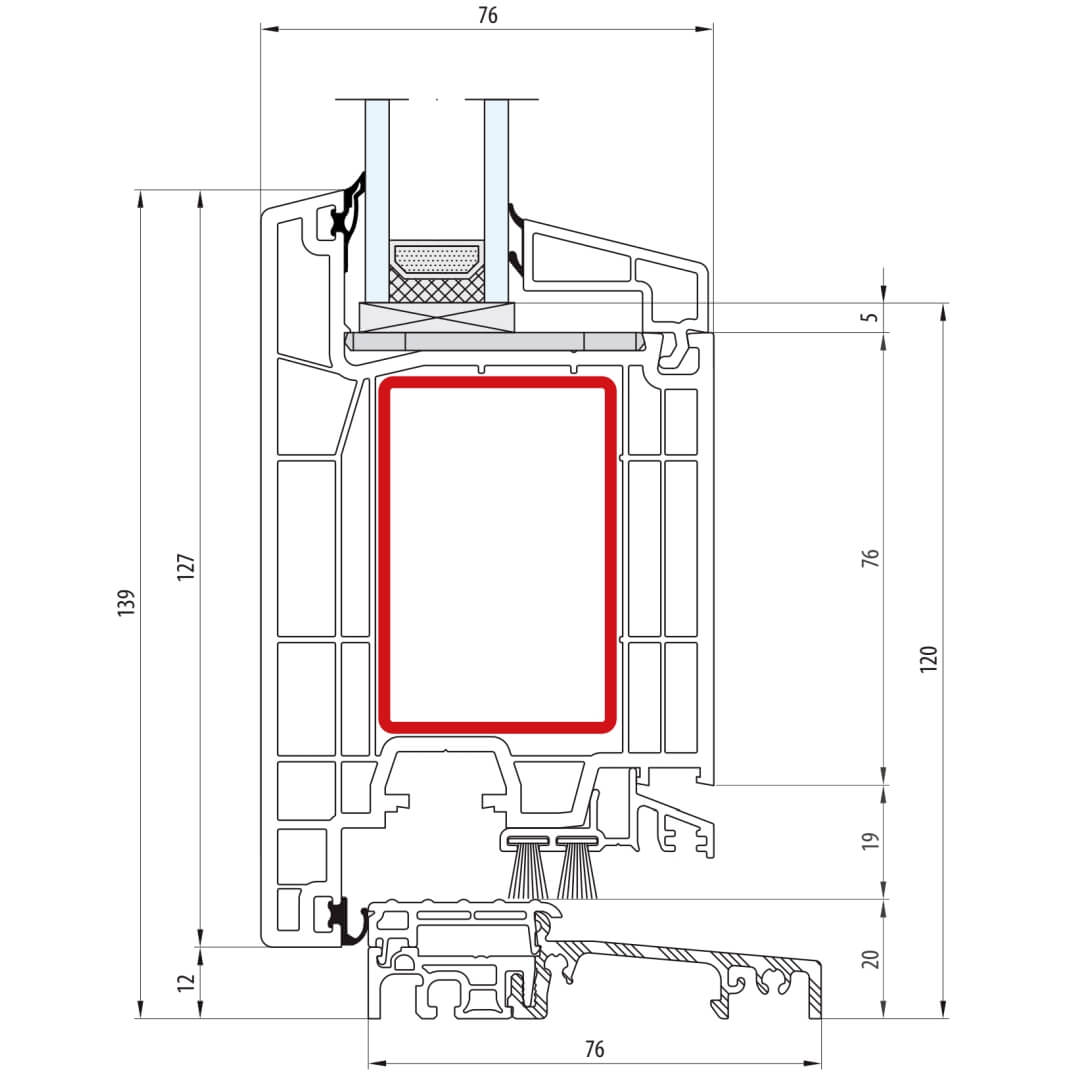
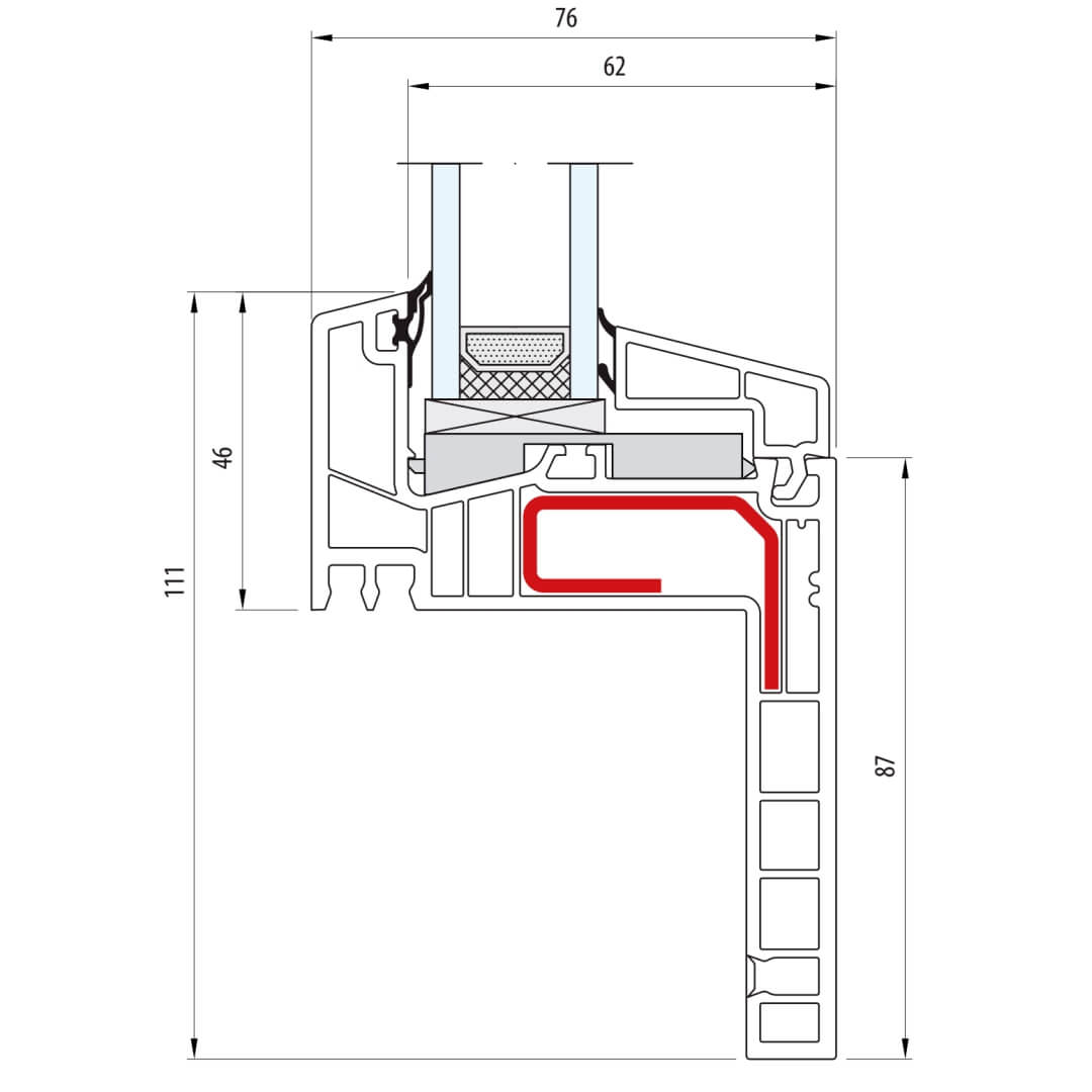
Salamander greenEvolution 76 AD Festverglasung 70mm 760003

greenEvolution 76 AD Festverglasung 70mm 760003

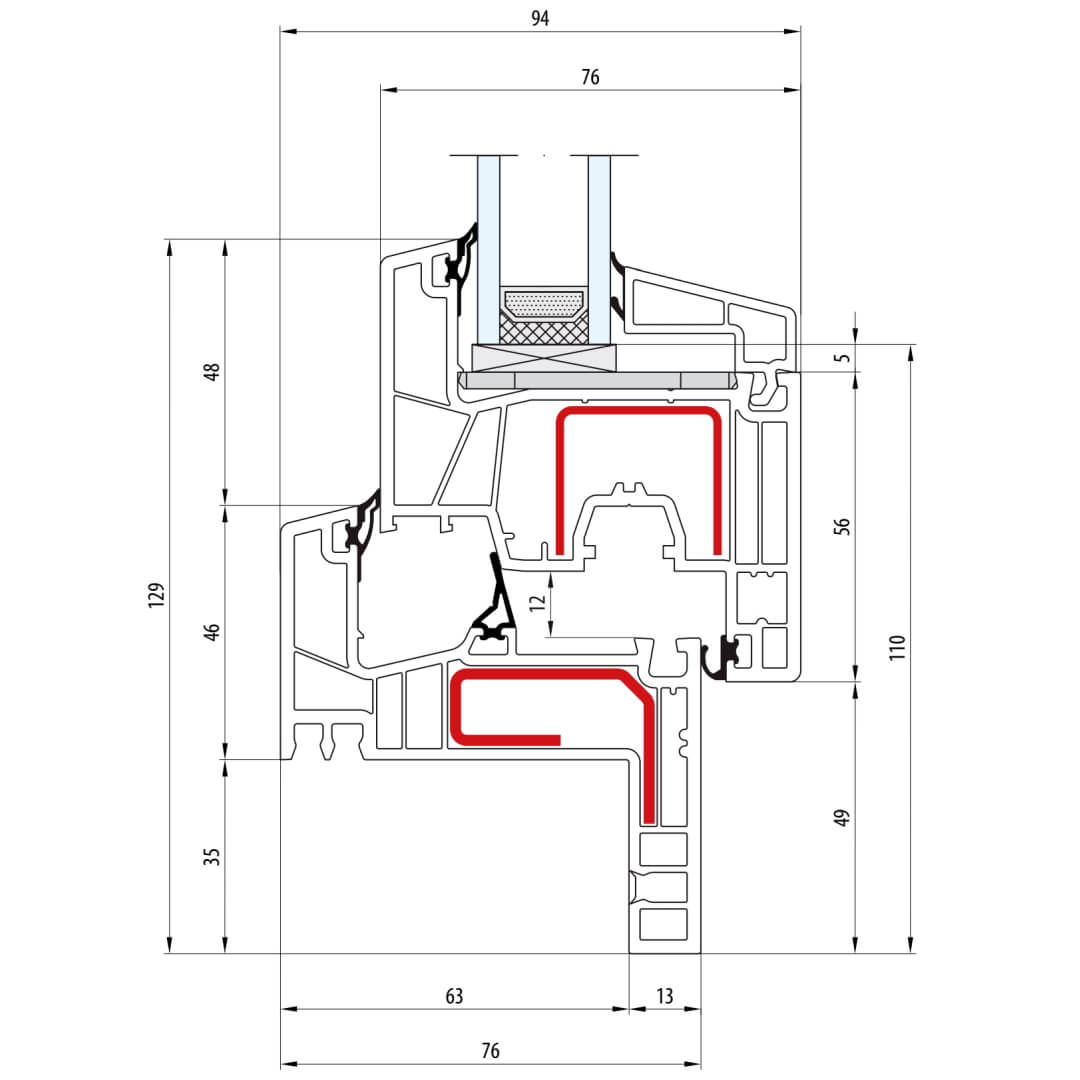
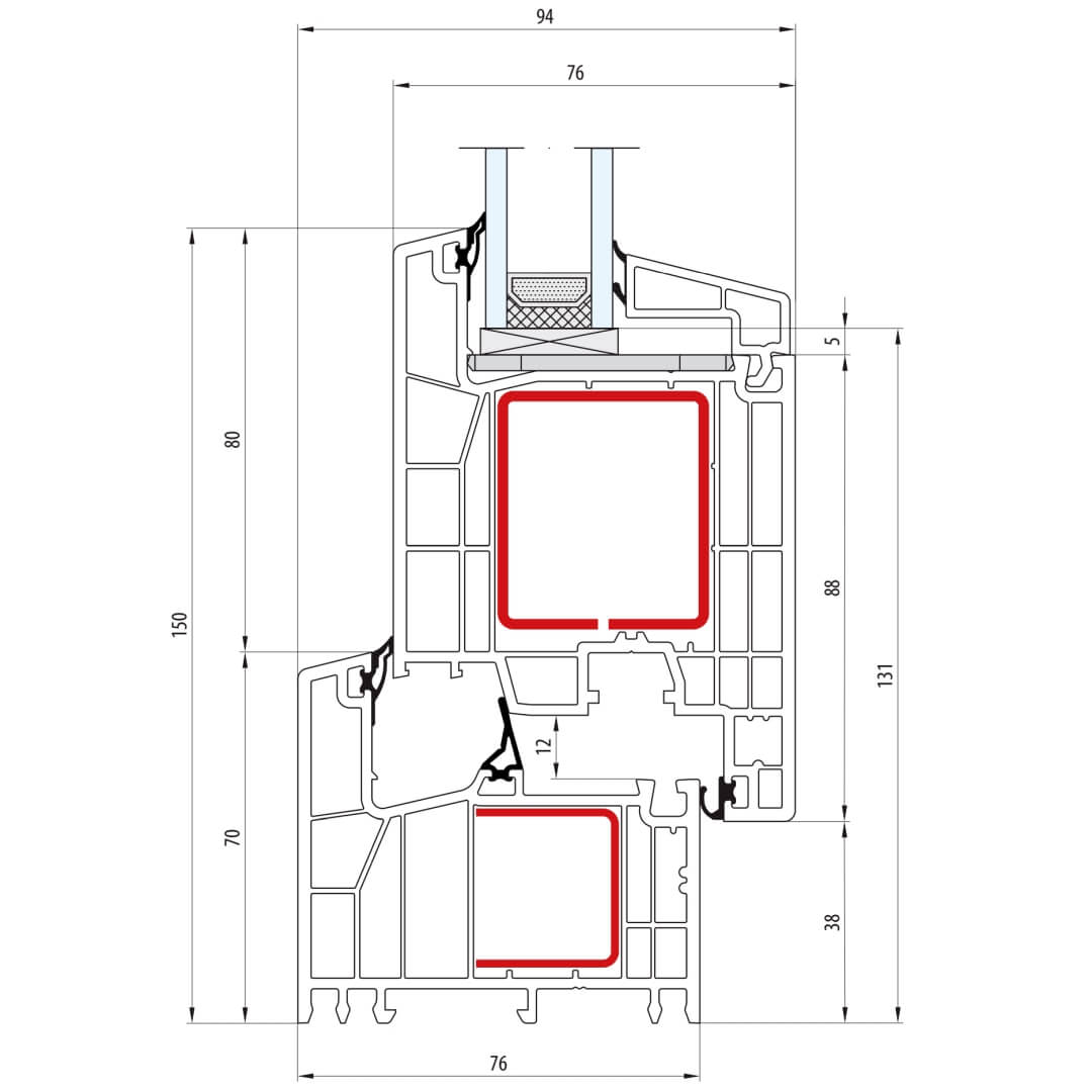
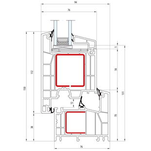
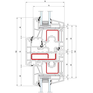
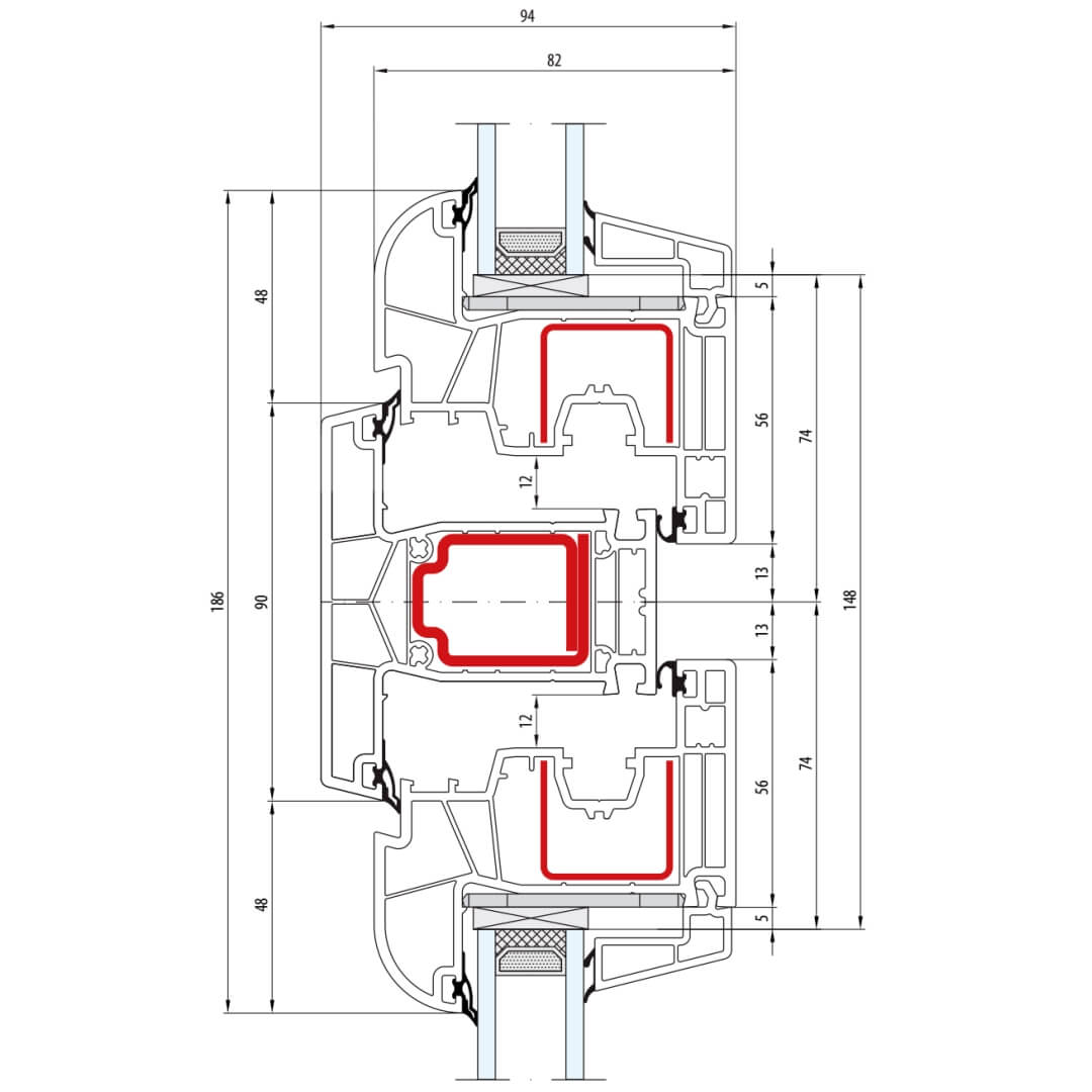
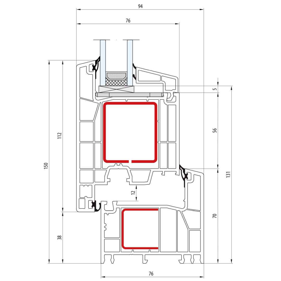
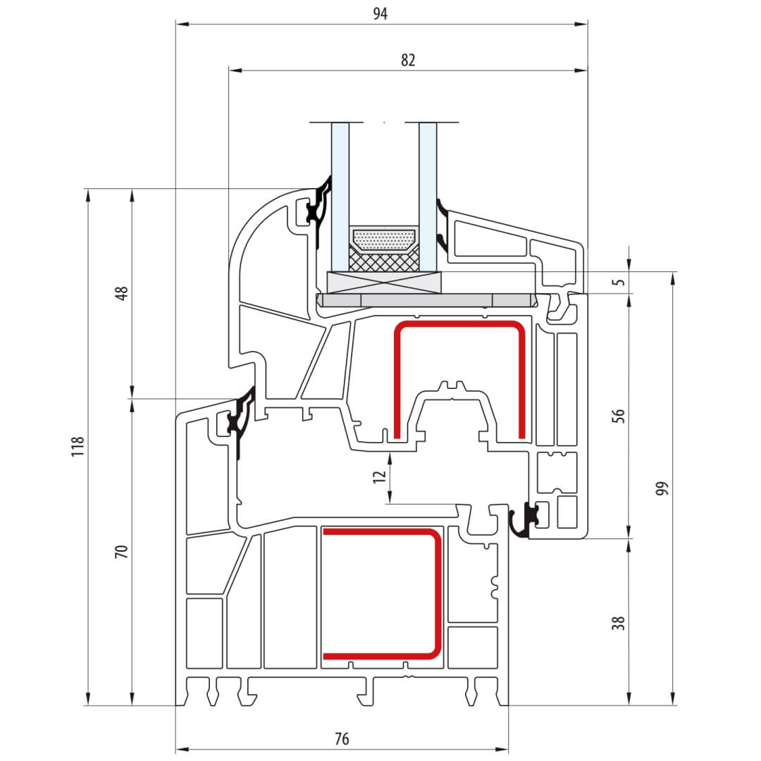
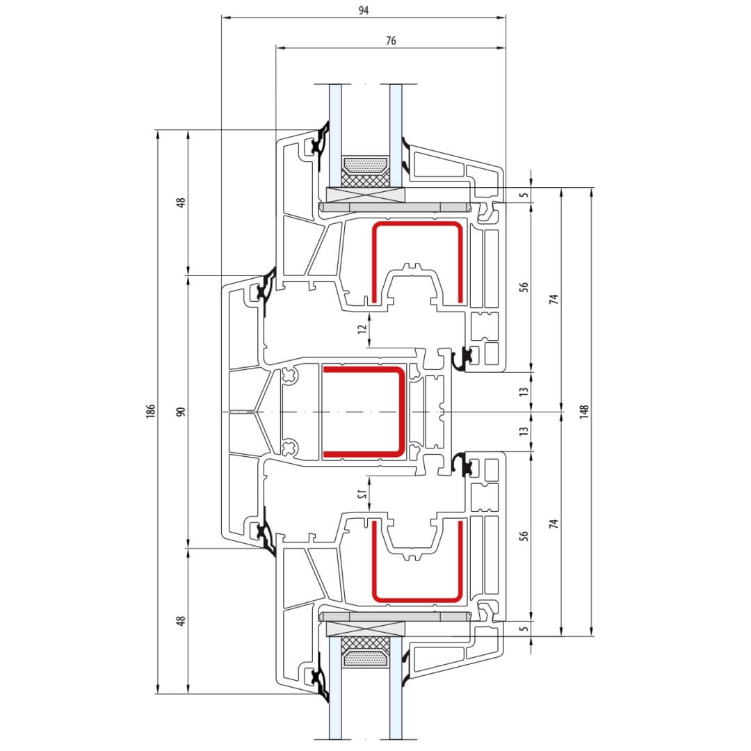
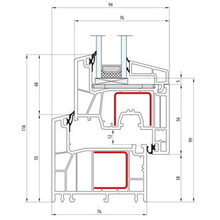
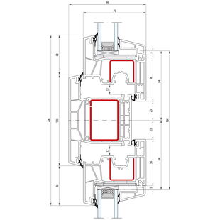
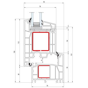
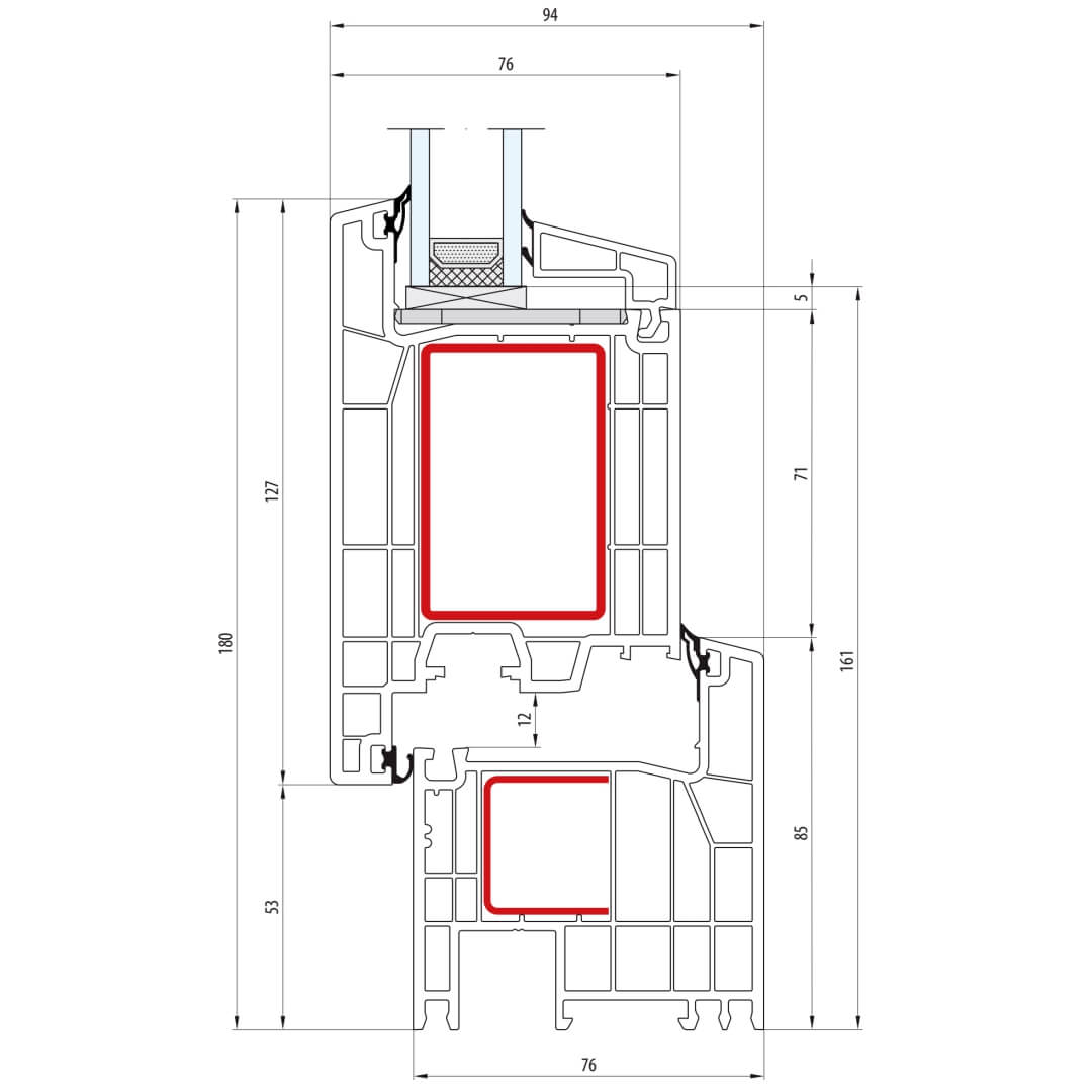
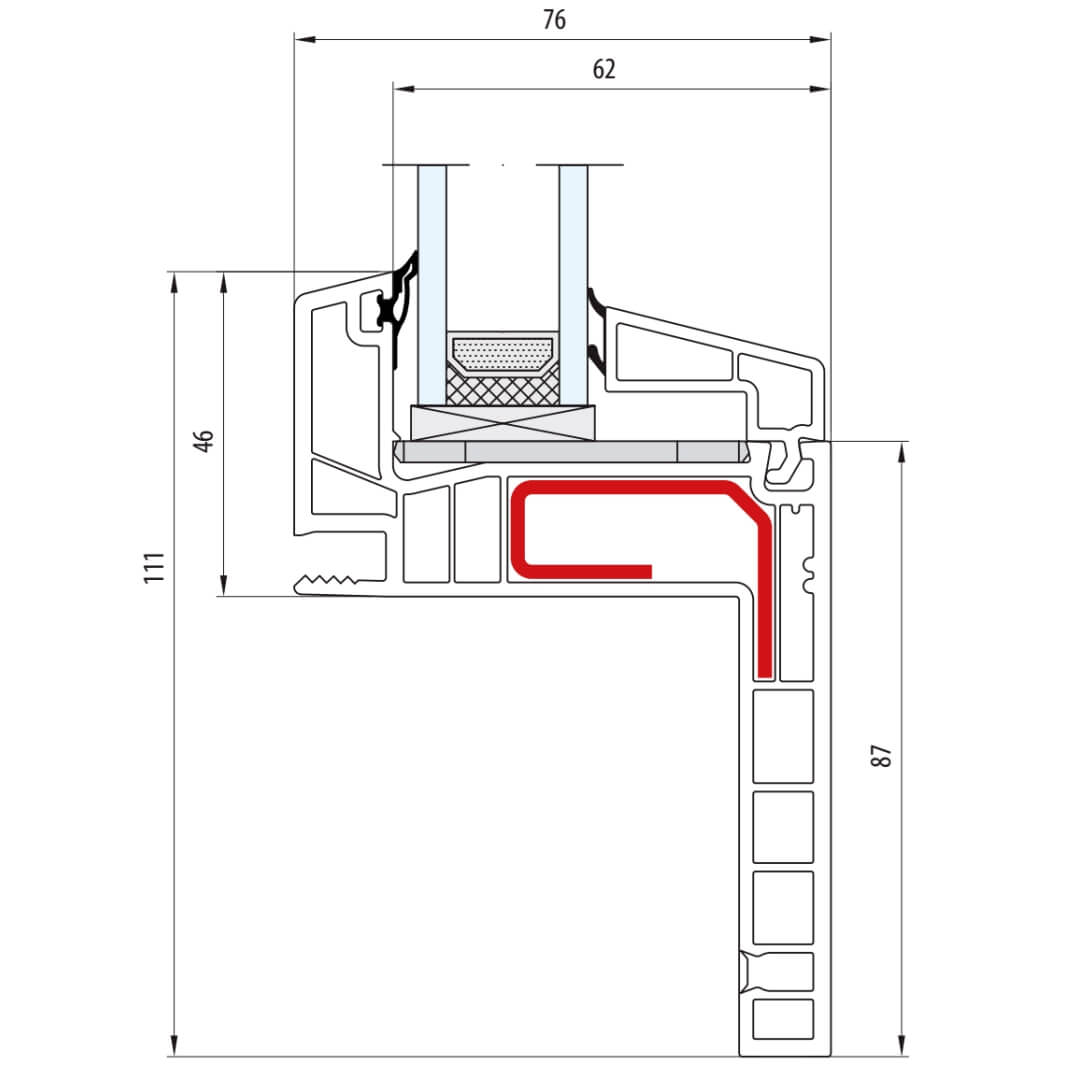
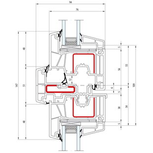
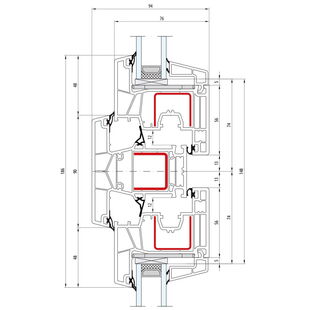
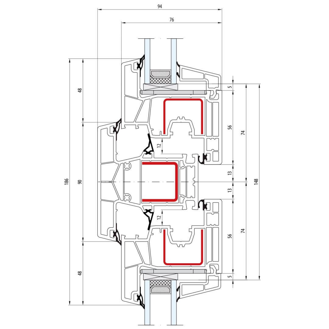
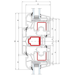
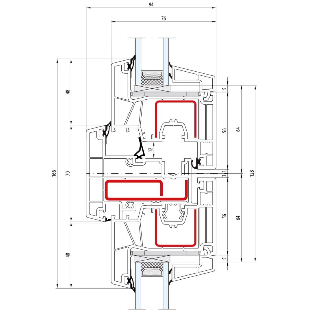
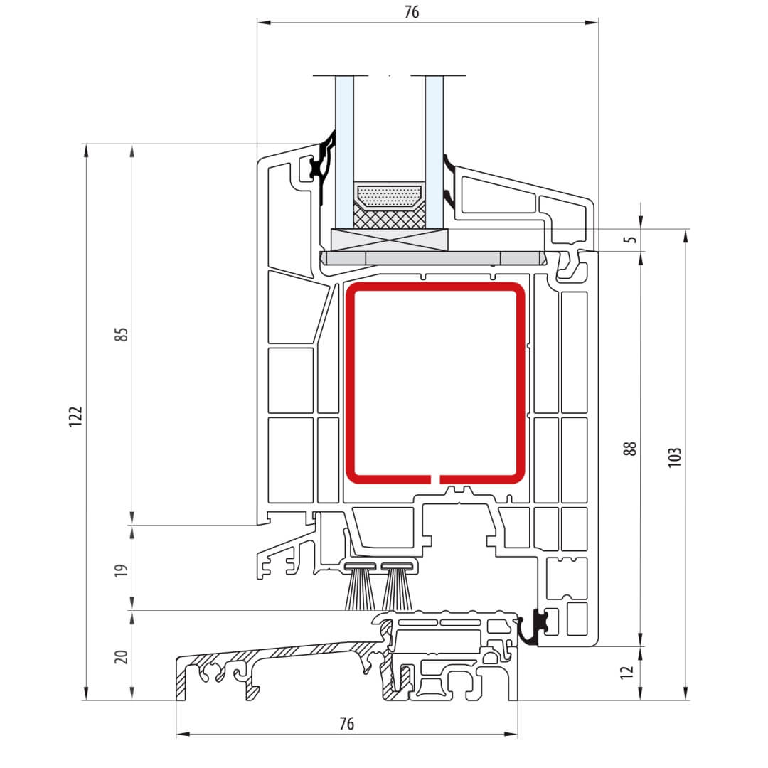
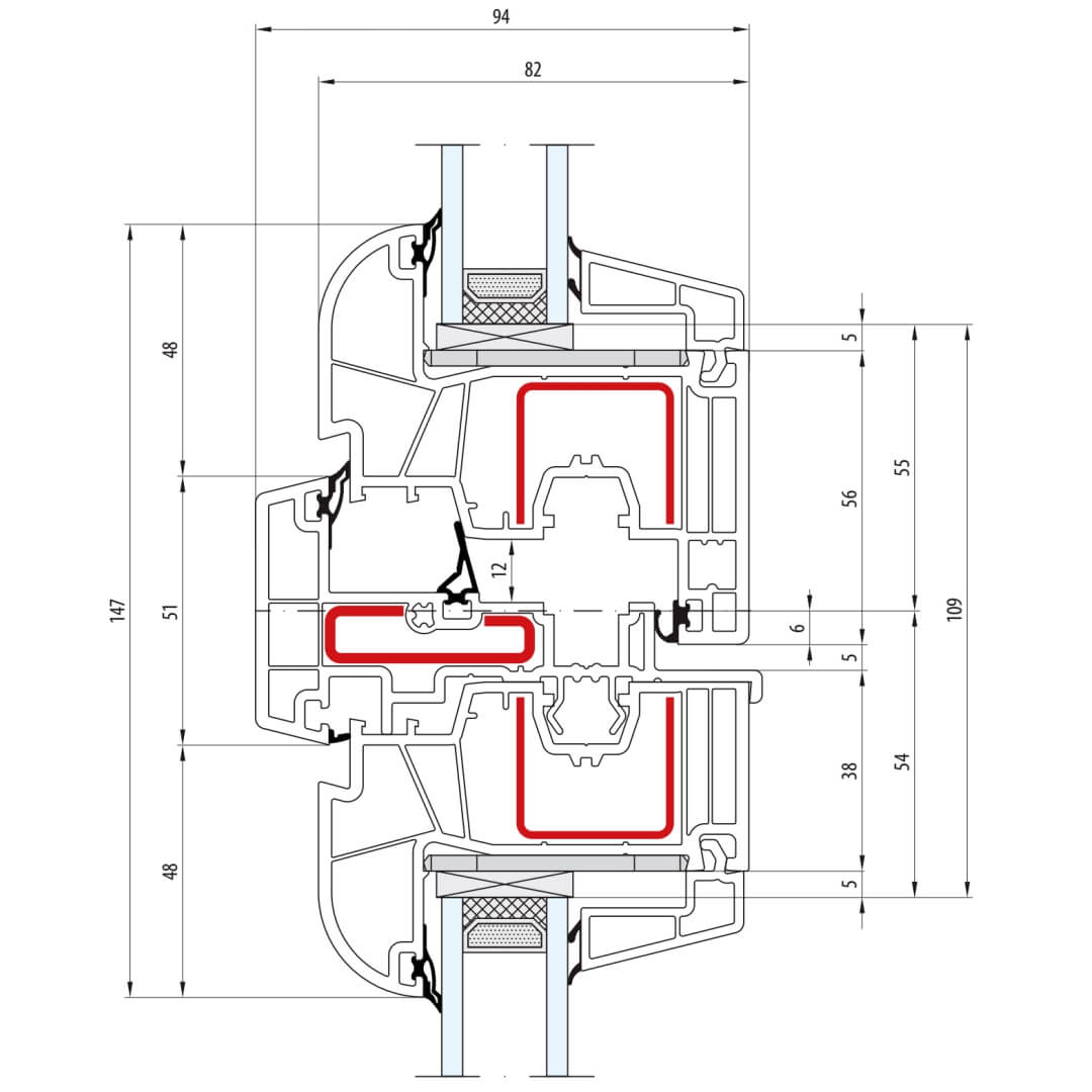
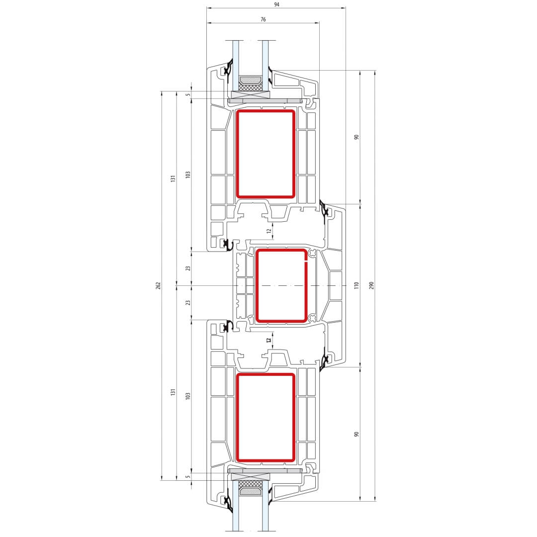
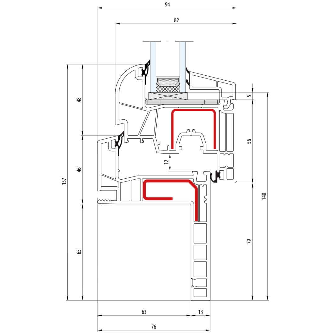
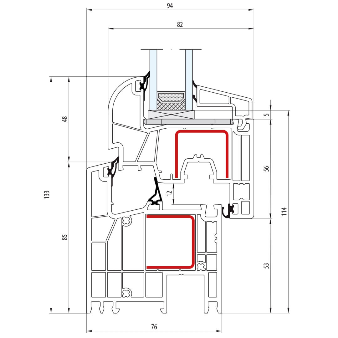
Salamander greenEvolution 76 Fenster - Classic-Line 118mm - 760003 761002

greenEvolution 76 AD Fenster - Classic-Line 118mm - 760003 - 761002

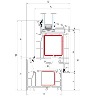
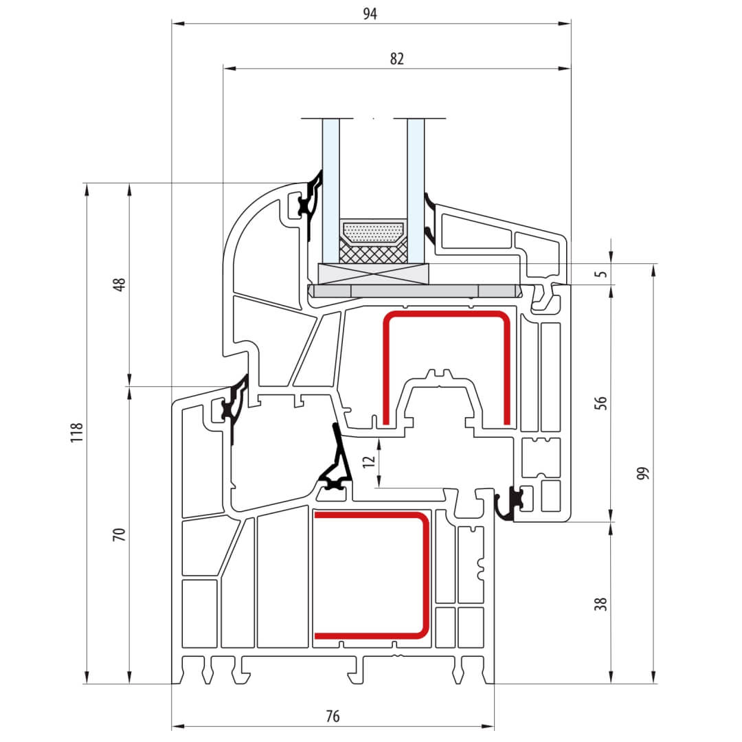
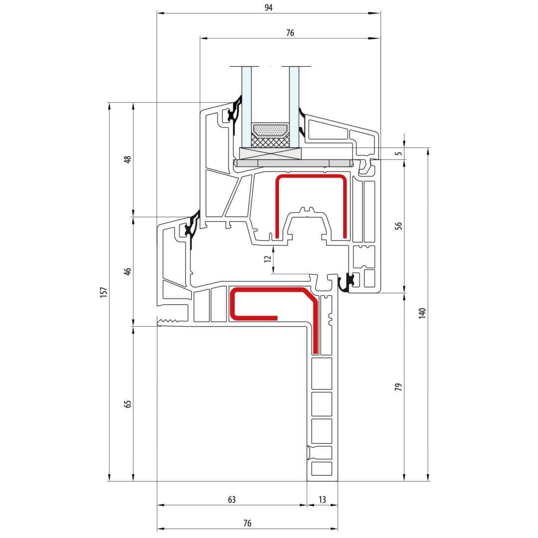
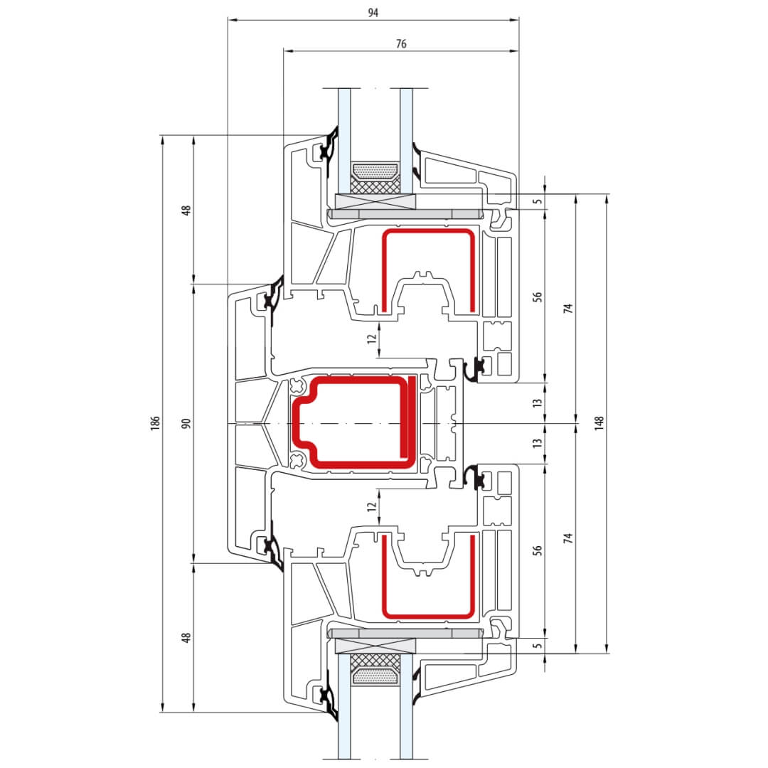
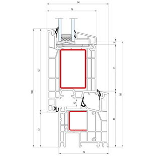
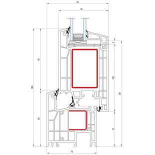
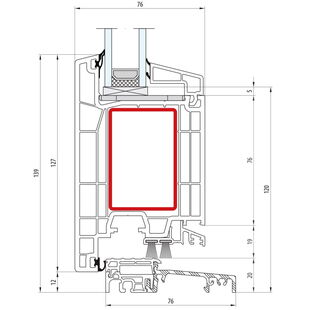
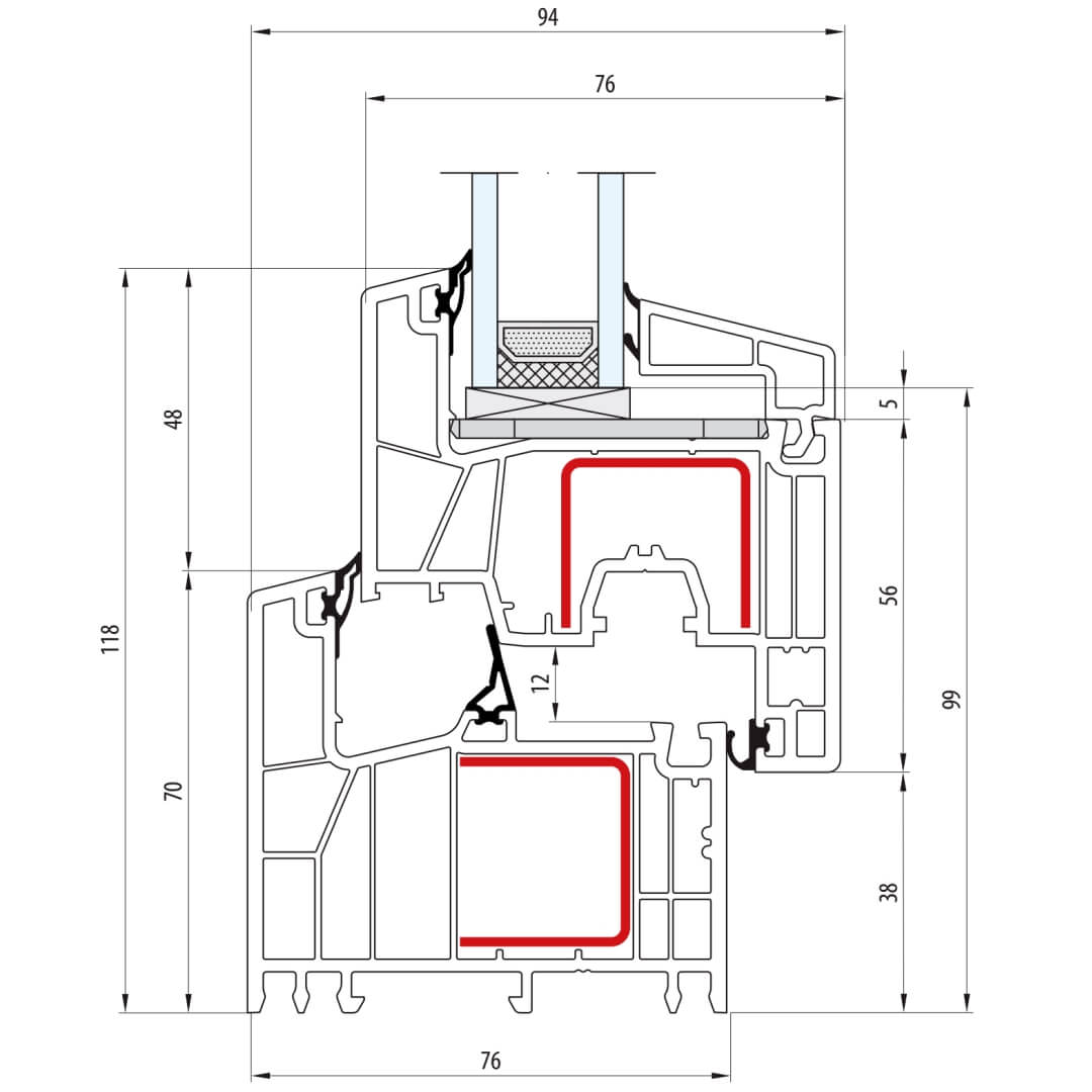
Salamander greenEvolution 76 Fenster - Round-Line 118mm - 760003 761004

greenEvolution 76 AD Fenster - Round-Line 118mm - 760003 - 761004

Kunststofffenster greenEvolution 76 MD (Mitteldichtung) mit Rahmen (760004)

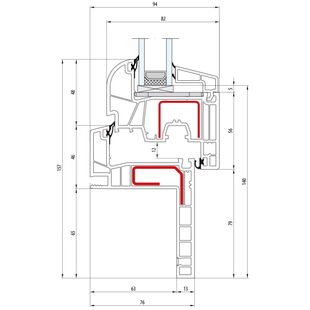
Salamander greenEvolution 76 MD Festverglasung 70mm 760004

greenEvolution 76 MD Festverglasung 70mm 760004

Salamander greenEvolution 76 Fenster - Classic-Line 118mm - 760004 761002

greenEvolution 76 MD Fenster - Classic-Line 118mm - 760004 - 761002

Salamander greenEvolution 76 Fenster - Round-Line 118mm - 760004 761004

greenEvolution 76 MD Fenster - Round-Line 118mm - 760004 - 761004

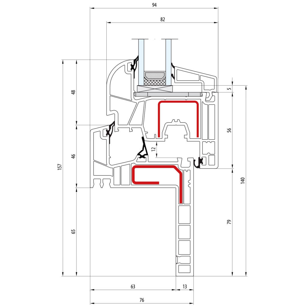
Kunststofffenster greenEvolution 76 AD mit Türrahmen (760023)

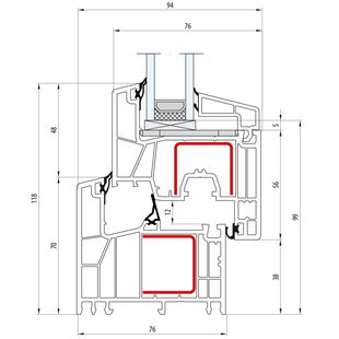
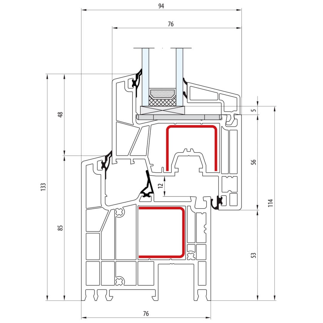
Salamander greenEvolution 76 AD Festverglasung 85mm 760023

greenEvolution 76 AD Festverglasung 85mm 760023

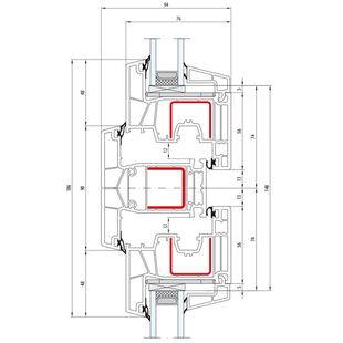
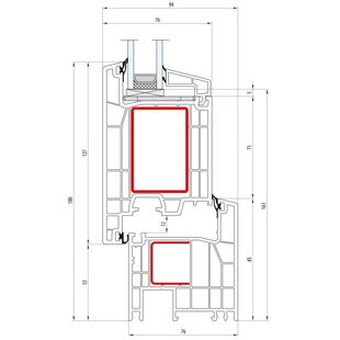
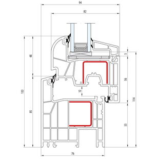
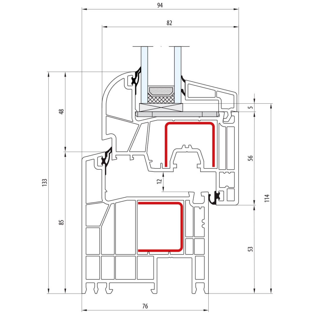
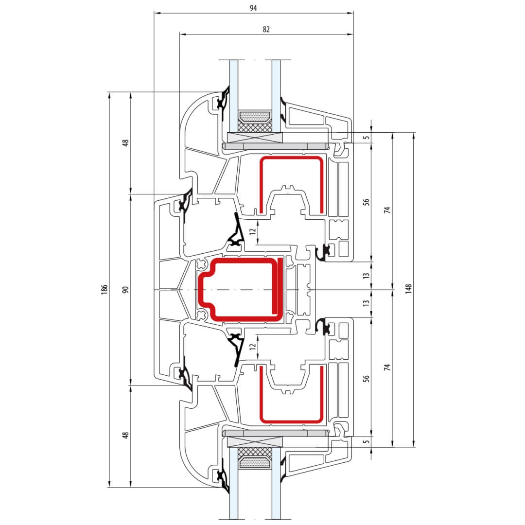
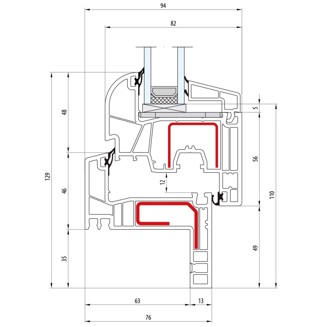
Salamander greenEvolution 76 AD Fenster - Classic-Line 133mm - 760023 761002

greenEvolution 76 AD Fenster - Classic-Line 133mm - 760023 - 761002

Salamander greenEvolution 76 AD Fenster - Round-Line 133mm - 760023 761004

greenEvolution 76 AD Fenster - Round-Line 133mm - 760023 - 761004

Kunststofffenster greenEvolution 76 MD mit Türrahmen (760012)

Salamander greenEvolution 76 MD Festverglasung 85mm 760012

greenEvolution 76 MD Festverglasung 85mm 760012

Salamander greenEvolution 76 MD Fenster - Classic-Line 133mm - 760012 761002

greenEvolution 76 MD Fenster - Classic-Line 133mm - 760012 - 761002

Salamander greenEvolution 76 MD Fenster - Round-Line 133mm - 760012 761004

greenEvolution 76 MD Fenster - Round-Line 133mm - 760012 - 761004

Kunststofffenster greenEvolution 76 mit Rennovationsrahmen

Salamander greenEvolution 76 AD Renovation Festverglasung Flosse 35 mm 760017

greenEvolution 76 AD Renovation Festverglasung Flosse 35 mm 760017

Salamander greenEvolution 76 AD Renovation Fenster CL Flosse 35 mm - 760017 761002

greenEvolution 76 AD Renovation Fenster CL Flosse 35 mm - 760017 - 761002

Salamander greenEvolution 76 AD Renovation Fenster RL Flosse 35 mm - 760017 761004

greenEvolution 76 AD Renovation Fenster RL Flosse 35 mm - 760017 - 761004

Salamander greenEvolution 76 MD Renovation Festverglasung Flosse 35 mm 760018

greenEvolution 76 MD Renovation Festverglasung Flosse 35 mm 760018

Salamander greenEvolution 76 MD Renovation Fenster CL Flosse 35 mm - 760018 761002

greenEvolution 76 MD Renovation Fenster CL Flosse 35 mm - 760018 - 761002

Salamander greenEvolution 76 MD Renovation Fenster RL Flosse 35 mm - 760018 761004

greenEvolution 76 MD Renovation Fenster RL Flosse 35 mm - 760018 - 761004

Salamander greenEvolution 76 AD Renovation Festverglasung Flosse 65 mm 760019

greenEvolution 76 AD Renovation Festverglasung Flosse 65 mm 760019

Salamander greenEvolution 76 AD Renovation Fenster CL Flosse 65 mm - 760019 761002

greenEvolution 76 AD Renovation Fenster CL Flosse 65 mm - 760019 - 761002

Salamander greenEvolution 76 AD Renovation Fenster RL Flosse 65 mm - 760019 761004

greenEvolution 76 AD Renovation Fenster RL Flosse 65 mm - 760019 - 761004

Salamander greenEvolution 76 MD Renovation Festverglasung Flosse 65 mm 760020

greenEvolution 76 MD Renovation Festverglasung Flosse 65 mm 760020

Salamander greenEvolution 76 MD Renovation Fenster CL Flosse 65 mm - 760020 761002

greenEvolution 76 MD Renovation Fenster CL Flosse 65 mm - 760020 - 761002

Salamander greenEvolution 76 MD Renovation Fenster RL Flosse 65 mm - 760020 761004

greenEvolution 76 MD Renovation Fenster RL Flosse 65 mm - 760020 - 761004

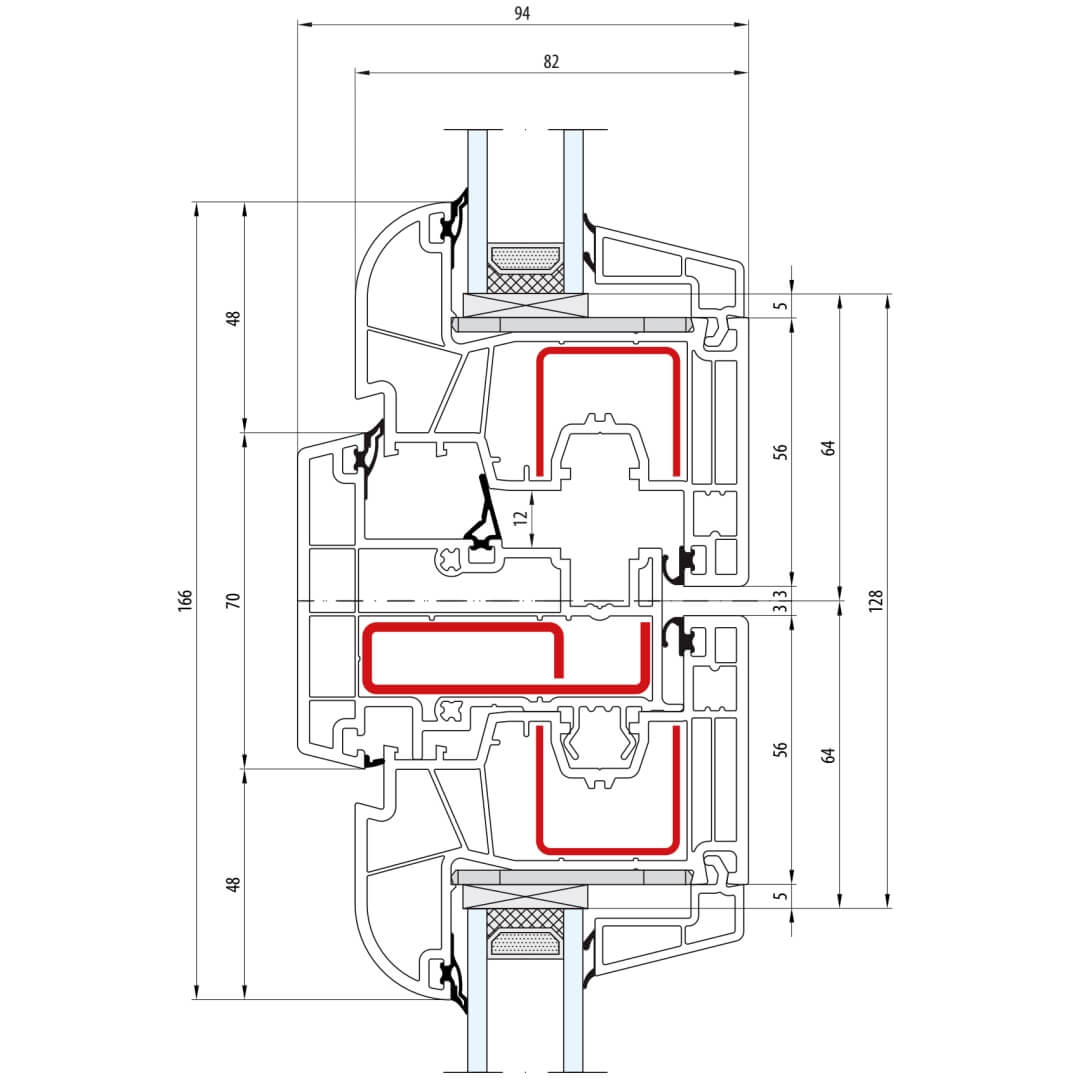
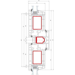
Kunststofffenster greenEvolution 76 AD/MD mit Pfosten 90mm (Schmal)

Salamander greenEvolution 76 AD Pfosten 90mm - 762005

greenEvolution 76 AD Pfosten 90mm - 762005

Salamander greenEvolution 76 AD Pfosten 90mm Fenster CL - 762005 761002

greenEvolution 76 AD Pfosten 90mm Fenster CL - 762005 - 761002

Salamander greenEvolution 76 AD Pfosten 90mm Fenster RL - 762005 761004

greenEvolution 76 AD Pfosten 90mm Fenster RL - 762005 - 761004

Salamander greenEvolution 76 MD Pfosten 90mm - 762006

greenEvolution 76 MD Pfosten 90mm - 762006

Salamander greenEvolution 76 MD Pfosten 90mm Fenster CL - 762006 761002

greenEvolution 76 MD Pfosten 90mm Fenster CL - 762006 - 761002

Salamander greenEvolution 76 MD Pfosten 90mm Fenster RL - 762006 761004

greenEvolution 76 MD Pfosten 90mm Fenster RL - 762006 - 761004

Kunststofffenster greenEvolution 76 AD/MD mit Pfosten 90mm mit Verstärkung

Salamander greenEvolution 76 AD Pfosten 90mm Verstärkung - 762007

greenEvolution 76 AD Pfosten 90mm mit Verstärkung - 762007

Salamander greenEvolution 76 AD Pfosten 90mm Verstärkung Fenster CL - 762007 761002

greenEvolution 76 AD Pfosten 90mm mit Verstärkung Fenster CL - 762007 - 761002

Salamander greenEvolution 76 AD Pfosten 90mm Verstärkung Fenster RL - 762007 761004

greenEvolution 76 AD Pfosten 90mm mit Verstärkung Fenster RL - 762007 - 761004

Salamander greenEvolution 76 MD Pfosten 90mm Verstärkung - 762008

greenEvolution 76 MD Pfosten 90mm mit Verstärkung - 762008

Salamander greenEvolution 76 MD Pfosten 90mm Verstärkung Fenster CL - 762008 761002

greenEvolution 76 MD Pfosten 90mm mit Verstärkung Fenster CL - 762008 - 761002

Salamander greenEvolution 76 MD Pfosten 90mm Verstärkung Fenster RL - 762008 761004

greenEvolution 76 MD Pfosten 90mm mit Verstärkung Fenster RL - 762008 - 761004

Kunststofffenster greenEvolution 76 AD mit Pfosten 110mm (Breit - Große Konstruktionen)

Salamander greenEvolution 76 AD Pfosten 110mm - 762009

greenEvolution 76 AD Pfosten 110mm - 762009

Salamander greenEvolution 76 AD Pfosten 110mm Fenster CL - 762009 761002

greenEvolution 76 AD Pfosten 110mm Fenster CL - 762009 - 761002

Salamander greenEvolution 76 AD Pfosten 110mm Fenster RL - 762009 761004

greenEvolution 76 AD Pfosten 110mm Fenster RL - 762009 - 761004

Kunststofffenster greenEvolution 76 mit Stulp 70mm

Salamander greenEvolution 76 Stulp 70mm Fenster Classic-Line - 766004 - 761002

greenEvolution 76 Stulp 70mm Fenster Classic-Line - 766004 - 761002

Salamander greenEvolution 76 Stulp 70mm Fenster Round-Line - 766004 - 761004

greenEvolution 76 Stulp 70mm Fenster Round-Line - 766004 - 761004

Kunststofffenster greenEvolution 76 mit Stulp 51mm (Sonderkonstruktionen auf Anfrage)

Salamander greenEvolution 76 Stulp 51mm Fenster Classic-Line - 766002 - 761002

greenEvolution 76 Stulp 51mm Fenster Classic-Line - 766002 - 761002

Salamander greenEvolution 76 Stulp 51mm Fenster Round-Line - 766002 - 761004

greenEvolution 76 Stulp 51mm Fenster Round-Line - 766002 - 761004

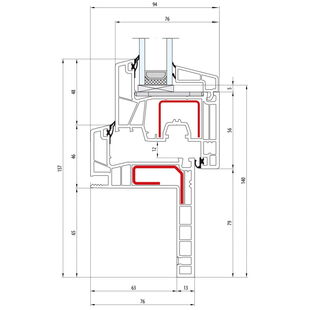
Kunststoff Balkontür greenEvolution 76

Salamander greenEvolution 76 Fenster - Classic-Line 118mm - 760003 761002

greenEvolution 76 AD Balkontür Classic-Line mit Blendrahmen - 760003 - 761002

Salamander greenEvolution 76 Fenster - Classic-Line 118mm - 760004 761002

greenEvolution 76 MD Balkontür Classic-Line mit Blendrahmen - 760004 - 761002

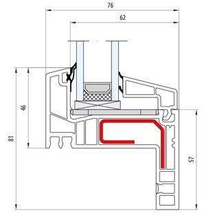
Salamander greenEvolution 76 Balkontürschwelle 20mm Classic-Line - 761002

greenEvolution 76 Balkontürschwelle 20mm Classic-Line - 761002

Salamander greenEvolution 76 Fenster - Round-Line 118mm - 760003 761004

greenEvolution 76 AD Balkontür Round-Line mit Blendrahmen - 760003 - 761004

Salamander greenEvolution 76 Fenster - Round-Line 118mm - 760004 761004

greenEvolution 76 MD Balkontür Round-Line mit Blendrahmen - 760004 - 761004

Salamander greenEvolution 76 Balkontürschwelle 20mm Round-Line - 761004

greenEvolution 76 Balkontürschwelle 20mm Round-Line - 761004

Kunststoff Terrassenflügel greenEvolution 76

Salamander greenEvolution 76 AD Terassentür innen öffnend mit Blendrahmen - 760003 - 761008

greenEvolution 76 AD Terassentür innen öffnend mit Blendrahmen - 760003 - 761008

Salamander greenEvolution 76 MD Terassentür innen öffnend mit Blendrahmen - 760004 - 761008

greenEvolution 76 MD Terassentür innen öffnend mit Blendrahmen - 760004 - 761008

Salamander greenEvolution 76 Terrassentürschwelle 20mm innen öffnend - 761008

greenEvolution 76 Terrassentürschwelle 20mm innen öffnend - 761008

Salamander greenEvolution 76 AD Terassentür außen öffnend mit Blendrahmen - 760003 - 761009

greenEvolution 76 AD Terassentür außen öffnend mit Blendrahmen - 760003 - 761009

Salamander greenEvolution 76 MD Terassentür außen öffnend mit Blendrahmen - 760004 - 761009

greenEvolution 76 MD Terassentür außen öffnend mit Blendrahmen - 760004 - 761009

Salamander greenEvolution 76 Terrassentürschwelle 20mm außen öffnend - 761009

greenEvolution 76 Terrassentürschwelle 20mm außen öffnend - 761009

Kunststoff greenEvolution 76 PSK Parallel-Schiebe-Kipp-Tür

Kunststoff Haustür greenEvolution 76

Salamander greenEvolution 76 AD Tür innen öffnend - 760023 - 761014

greenEvolution 76 AD Tür innen öffnend - 760023 - 761014

Salamander greenEvolution 76 MD Tür innen öffnend - 760012 - 761014

greenEvolution 76 MD Tür innen öffnend - 760012 - 761014

Salamander greenEvolution 76 Türschwelle 20mm innen öffnend - 761014

greenEvolution 76 Türschwelle 20mm innen öffnend - 761014

Salamander greenEvolution 76 AD Tür außen öffnend - 760023 - 761015

greenEvolution 76 AD Tür außen öffnend - 760023 - 761015

Salamander greenEvolution 76 MD Tür außen öffnend - 760012 - 761015

greenEvolution 76 MD Tür außen öffnend - 760012 - 761015

Salamander greenEvolution 76 Türschwelle 20mm außen öffnend - 761015

greenEvolution 76 Türschwelle 20mm außen öffnend - 761015

Türflügel greenEvolution 76 AD/MD mit Pfosten 90mm mit Verstärkung

Salamander greenEvolution 76 AD Pfosten 90mm Verstärkung - 762007

greenEvolution 76 AD Pfosten 90mm mit Verstärkung - 762007

Salamander greenEvolution 76 AD Pfosten 90mm Verstärkung Tür innen öffnend - 762007 - 761014

greenEvolution 76 AD Pfosten 90mm Verstärkung Tür innen öffnend - 762007 - 761014

Salamander greenEvolution 76 AD Pfosten 90mm Verstärkung Tür außen öffnend - 762007 - 761015

greenEvolution 76 AD Pfosten 90mm Verstärkung Tür außen öffnend - 762007 - 761015

Salamander greenEvolution 76 MD Pfosten 90mm Verstärkung - 762008

greenEvolution 76 MD Pfosten 90mm mit Verstärkung - 762008

Salamander greenEvolution 76 MD Pfosten 90mm Verstärkung Tür innen öffnend - 762008 - 761014

greenEvolution 76 MD Pfosten 90mm Verstärkung Tür innen öffnend - 762008 - 761014

Salamander greenEvolution 76 MD Pfosten 90mm Verstärkung Tür außen öffnend - 762008 - 761015

greenEvolution 76 MD Pfosten 90mm Verstärkung Tür außen öffnend - 762008 - 761015

Türflügel greenEvolution 76 AD mit Pfosten 110mm (Breit - Große Konstruktionen)

Salamander greenEvolution 76 AD Pfosten 110mm - 762009

greenEvolution 76 AD Pfosten 110mm - 762009

Salamander greenEvolution 76 AD Pfosten 110mm Verstärkung Tür innen öffnend - 762009 - 761014

greenEvolution 76 AD Pfosten 110mm Verstärkung Tür innen öffnend - 762009 - 761014

Salamander greenEvolution 76 AD Pfosten 110mm Verstärkung Tür außen öffnend - 762009 - 761015

greenEvolution 76 AD Pfosten 110mm Verstärkung Tür außen öffnend - 762009 - 761015

Türflügel greenEvolution 76 mit Stulp 70mm

Salamander greenEvolution 76 Stulp 70mm Tür innen öffnend - 766004 - 761014

greenEvolution 76 Stulp 70mm Tür innen öffnend - 766004 - 761014

Salamander greenEvolution 76 Stulp 70mm Tür auße öffnend - 766004 - 761015

greenEvolution 76 Stulp 70mm Tür außen öffnend - 766004 - 761015

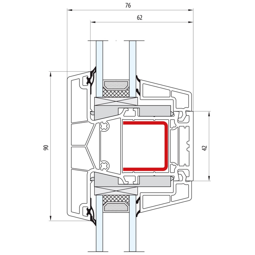
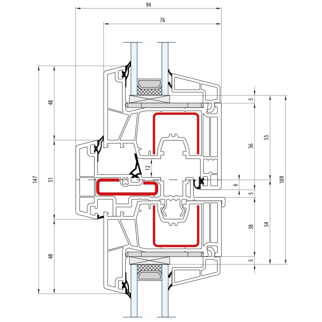
Zusatzprofile für Salamander greenEvolution 76 Querschnitte

Kunststoff Sprossenarten - greenEvolution 76

Innenliegende SZR Sprossen / Helima Sprossen

Drutex Iglo SZR Sprosse 8mm

Innenliegende Sprosse 8mm

Drutex Iglo SZR Sprosse 18mm

Innenliegende Sprosse 18mm

Drutex Iglo SZR Sprosse 26mm

Innenliegende Sprosse 26mm

Drutex Iglo SZR Sprosse 45mm

Innenliegende Sprosse 45mm

Aufgesetzte / Aufgeklebte Sprossen

Salamander 416 302 - aufgesetzte Sprossen - 27mm

416 302 - aufgesetzte Sprossen - 27mm

Salamander 416 304 - aufgesetzte Sprossen - 45mm

416 304 - aufgesetzte Sprossen - 45mm

Salamander 416 306 - aufgesetzte Sprossen - 65mm

416 306 - aufgesetzte Sprossen - 65mm

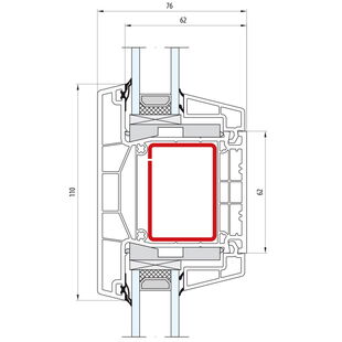
Glasteilende Sprossen - Kämpfer

Salamander greenEvolution 76 AD Pfosten 90mm - 762005

greenEvolution 76 AD Kämpfer-Sprosse 90mm - 762005

Salamander greenEvolution 76 MD Pfosten 90mm - 762006

greenEvolution 76 MD Kämpfer-Sprosse 90mm - 762006

Salamander greenEvolution 76 AD Pfosten 110mm - 762009

greenEvolution 76 AD Kämpfer-Sprosse 110mm - 762009

Kunststoff Anschlussprofile - greenEvolution 76

Kunststoff Bankanschlussprofile

Salamander 416 106 Fensterbankanschluss - 30mm

416 106 - Fensterbankanschluss - 30mm

Salamander 416 100 Fensterbankanschluss - 40mm

416 100 - Fensterbankanschluss - 40mm

Kunststoff Bankanschlussprofile auf Anfrage

Salamander 416 122 Fensterbankanschluss - 20mm

416 122 - Fensterbankanschluss - 20mm

Salamander 416 131 Fensterbankanschluss - 30mm

416 131 - Fensterbankanschluss - 30mm

Salamander 416 146 Fensterbankanschluss - 40mm

416 146 - Fensterbankanschluss - 40mm

Kunststoff Steinbankanschlussprofile

Salamander 416 133 Steinbankanschluss 30mm

416 133 Steinbankanschluss 30mm

Salamander 416 142 Steinbankanschluss 40mm

416 142 Steinbankanschluss 40mm

Salamander 416 135 Steinbankanschluss 50mm

416 135 Steinbankanschluss 50mm

Kunststoff Anschlussprofile (bündig)

Salamander 406 105 Bankanschlussprofil 20mm

406 105 Bankanschlussprofil 20mm

Salamander 406 139 Bankanschlussprofil 30mm

406 139 Bankanschlussprofil 30mm

Salamander 406 140 Bankanschlussprofil 40mm

406 140 Bankanschlussprofil 40mm

Salamander 406 157 Bankanschlussprofil 60mm

406 157 Bankanschlussprofil 60mm

Kunststoff Fensterbank-Anschlussprofile

Salamander 416 110 Fensterbank aussen 145mm

416 110 Fensterbank aussen 145mm

Salamander 416 115 Fensterbank aussen 165mm

416 115 Fensterbank aussen 165mm

Salamander 406 115 Fensterbank aussen 105mm

406 115 Fensterbank aussen 105mm

Salamander ES0960 Fensterbank Endkappen

ES0960 Fensterbank Endkappen

Salamander 416 126 Fensterbank aussen 77mm

416 126 Fensterbank aussen 77mm

Salamander 417 115 Fensterbank Endkappen

417 115 Fensterbank Endkappen

Kunststoff Rahmenverbreiterung - greenEvolution 76

Salamander 416 160 Rahmenverbreiterung 20mm

416 160 Rahmenverbreiterung 20mm

Salamander 416 163 Rahmenverbreiterung 30mm

416 163 Rahmenverbreiterung 30mm

Salamander 416 167 Rahmenverbreiterung 40mm

416 167 Rahmenverbreiterung 40mm

Salamander 416 170 Rahmenverbreiterung 60mm

416 170 Rahmenverbreiterung 60mm

Salamander 416 176 Rahmenverbreiterung 100mm

416 176 Rahmenverbreiterung 100mm

Kunststoff Kopplungen - greenEvolution 76

Salamander 406 255 - H-Kopplung universal

406 255 - H-Kopplung universal

Salamander 416 260 - H-Kopplung

416 260 - H-Kopplung

Salamander 416 264 Statikkopplung 6mm

416 264 Statikkopplung 6mm

Salamander 416 273 Statikkopplung 15mm

416 273 Statikkopplung 15mm

Salamander 416 269 - 416 311 Statikprofil

416 269 - 416 311 Statikprofil

Kopplung von Eck-Elementen - 90° und Variabel

Salamander 416 210 Eckkopplung 90 Grad

416 210 Eckkopplung 90 Grad

Salamander NP0160 - 416 251 Eckkopplung variabel

NP0160 - 416 251 Eckkopplung variabel

Salamander 416 240 Eckkopplung 135 Grad

416 240 Eckkopplung 135 Grad

Kunststoff Abdeckleisten - greenEvolution 76

Aluplast Flachleisten aus Kunststoff Auswahl 65025100, 6465050, 65025080, 65025070, 65025050, 65025040, 65025030

65025100, 6465050, 65025080, 65025070, 65025050, 65025040, 65025030 - Flachleiste aus Kunststoff Auswahl

Salamander Flachleisten mit Dichtlippe 406 312, 406 315

406 312, 406 315 - Flachleiste mit Dichtlippe Auswahl

Aluplast Deckleisten mit Hohlkammerprofil Auswahl

Hohlkammerprofil Deckleiste Auswahl

Winkelprofile aus Kunststoff 73100060, 73080050, 73060040, 73020020

73100060, 73080050, 73060040, 73020020 - Winkelprofil aus Kunststoff

Salamander Winkelprofile aus Kunststoff 406 321, 406 320, 406 319

406 321, 406 320, 406 319 - Winkelprofil aus Kunststoff

Salamander Hohlkammer Winkelprofil aus Kunststoff 406329, 406325

406329, 406325 - Hohlkammer Winkelprofil aus Kunststoff

Aufsatzrollladen Zubehör - greenEvolution 76

Salamander Einseitige Führungsschiene 33mmfür Aufsatzrollladen Detailzeichnung

Einseitige Führungsschiene 33mm für Aufsatzrollladen

Salamander Einseitige Führungsschiene 48mm für Aufsatzrollladen Detailzeichnung

Einseitige Führungsschiene 48mm für Aufsatzrollladen

Salamander Aufsatzrollladen Führungsschiene Aufdoppelung 20mm Detailzeichnung

Aufsatzrollladen Führungsschiene Aufdoppelung 20mm

Salamander Beidseitige Führungsschiene 74mm für Aufsatzrollladen Detailzeichnung

Beidseitige Führungsschiene 74mm für Aufsatzrollladen

Kunststoff Weitere Profile - greenEvolution 76

Salamander 406 670 Verkleidungsprofil

406 670 Verkleidungsprofil

Salamander 406 316 Abdeckleiste

406 316 Abdeckleiste

Salamander kozijnen en deuren op maat

Configureer en bestel eenvoudig en comfortabel Aluplast ramen en deuren online bij kozijnenblik.nl

Das könnte Sie auch interessieren:

Kunststofffenster bluEvolution 82

Detailzeichnungen Kunststofffenster bluEvolution 82

Kunststofffenster bluEvolution 82 besitzen eine Bautiefe (Rahmen) von 82mm.

Detailzeichnungen bluEvolution 82

Kunststofffenster bluEvolution 92

Detailzeichnungen Kunststofffenster bluEvolution 92

Kunststofffenster bluEvolution 92 besitzen eine Bautiefe (Rahmen) von 92mm.

Detailzeichnungen bluEvolution 92