Detailzeichnungen Alufenster Aliplast Superial

Alufenster Aliplast Superial Querschnitte

Alufenster Aliplast Superial thermische Varianten: Standard, i und i+

Aliplast Superial Variante Standard - SP815 - SP 824

Superial Variante Standard - SP815 - SP 824

Aliplast Superial Variante i - SP815 - SP 824

Superial Variante i - SP815 - SP 824

Aliplast Superial Variante i+ - SP815 - SP 824

Superial Variante i+ - SP815 - SP 824

Alufenster Aliplast Superial Fenster Querschnitte Rahmen 65mm (SP011)

Aliplast Superial Festverglasung 65mm - SP011

Superial Festverglasung 65mm - SP011

Aliplast Superial i Festverglasung 65mm - SP011

Superial i Festverglasung 65mm - SP011

Aliplast Superial i+ Festverglasung 65mm - SP011

Superial i+ Festverglasung 65mm - SP011

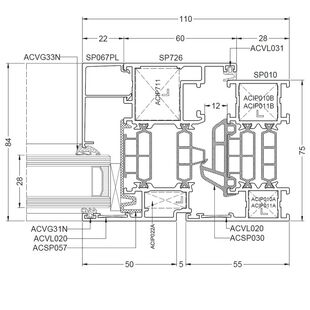
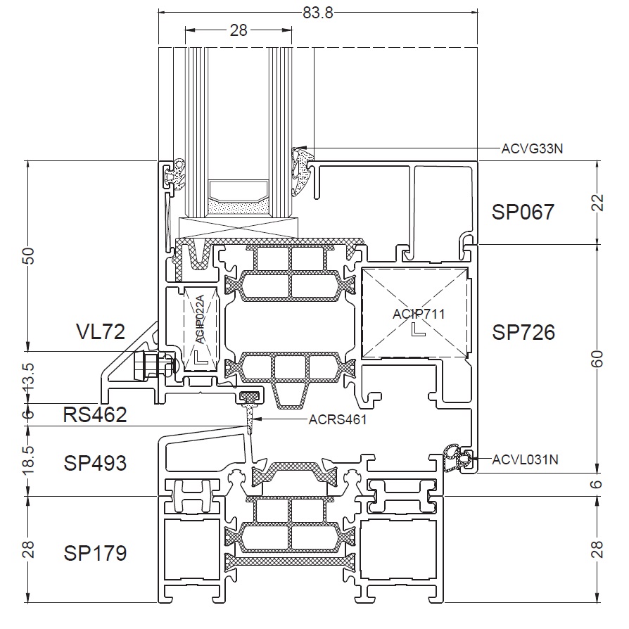
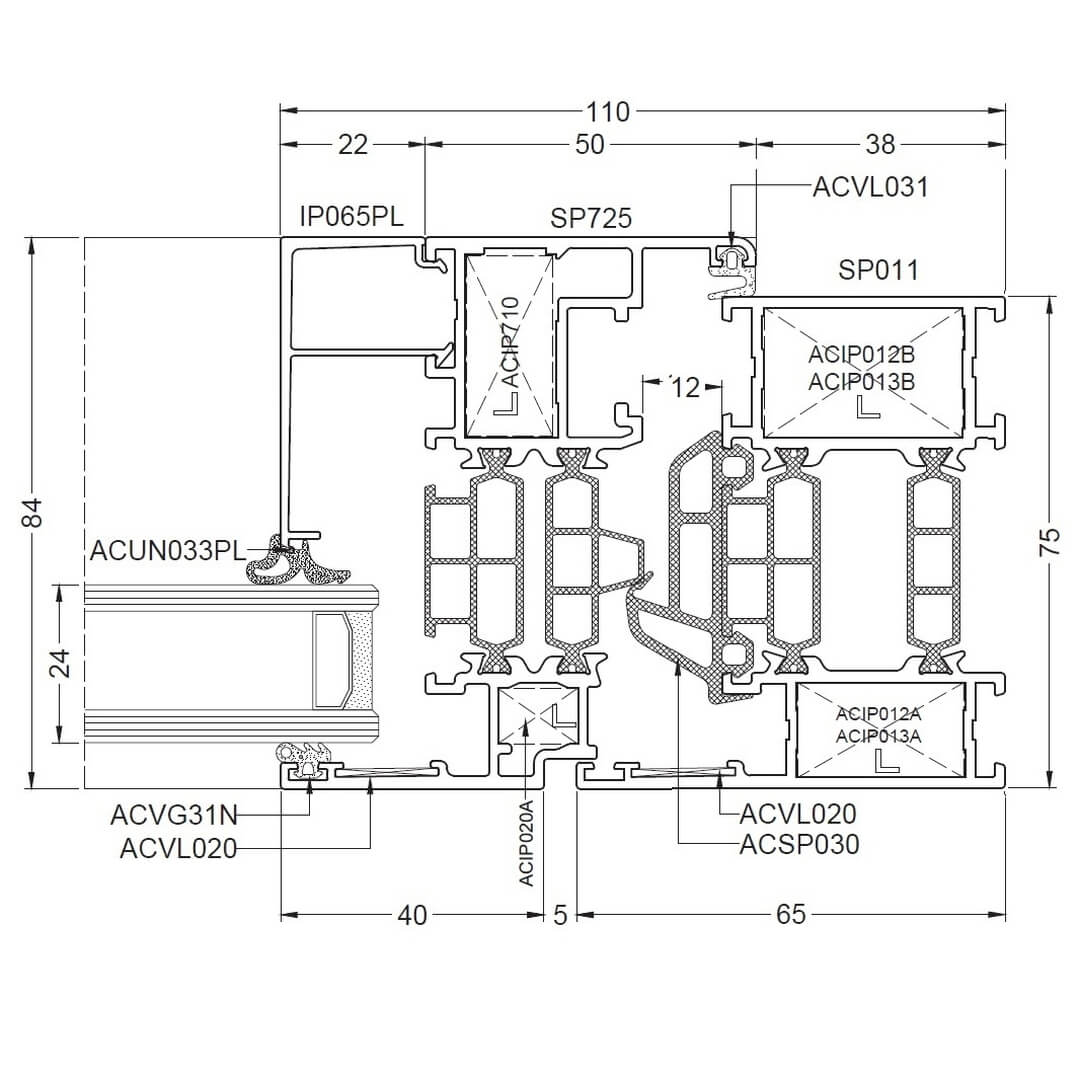
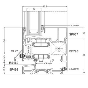
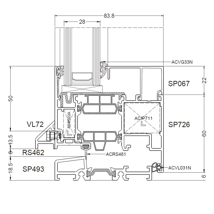
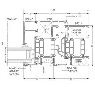
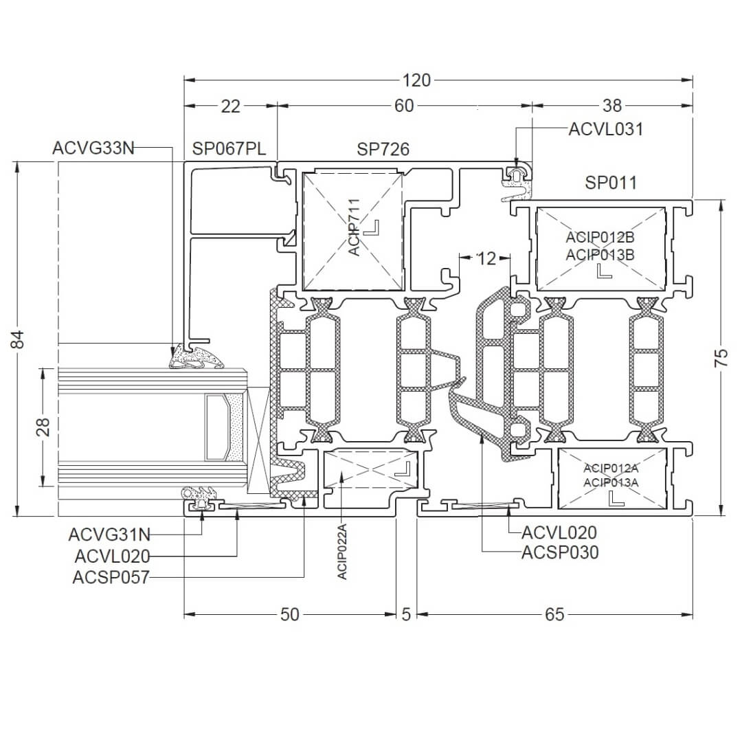
Aliplast Superial Fenster 120mm - SP011 - SP726

Superial Fenster 120mm - SP011 - SP726

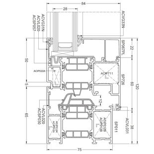
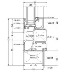
Aliplast Superial Fenster 110mm - SP011 - SP725

Superial Fenster 110mm (schmaler Flügel) - SP011 - SP725

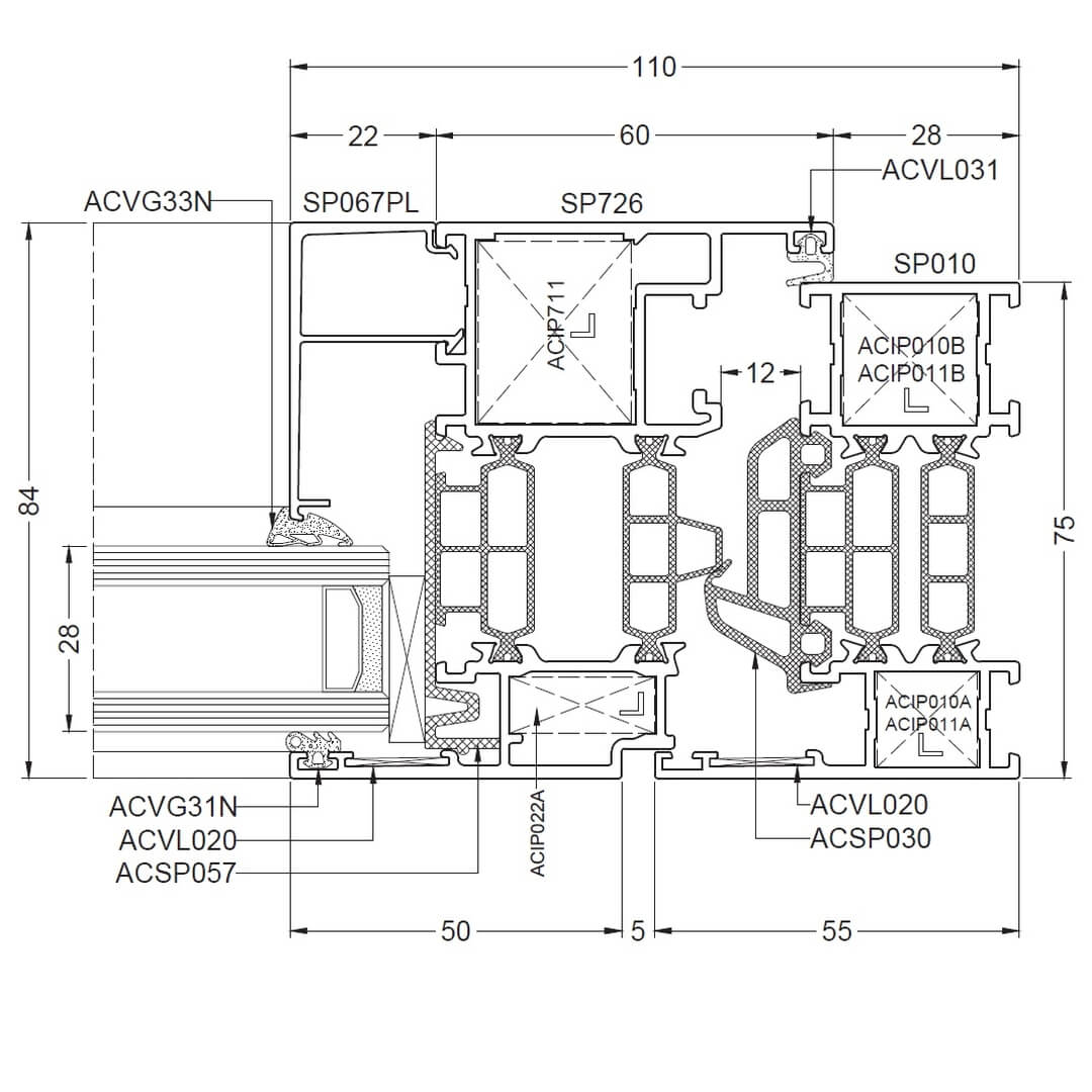
Alufenster Aliplast Superial Fenster Querschnitte Rahmen 55mm (SP010)

Aliplast Superial Festverglasung 55mm - SP010

Superial Festverglasung 55mm - SP010

Aliplast Superial Fenster 100mm - SP010 - SP725

Superial Fenster 100mm (schmaler Flügel) - SP010 - SP725

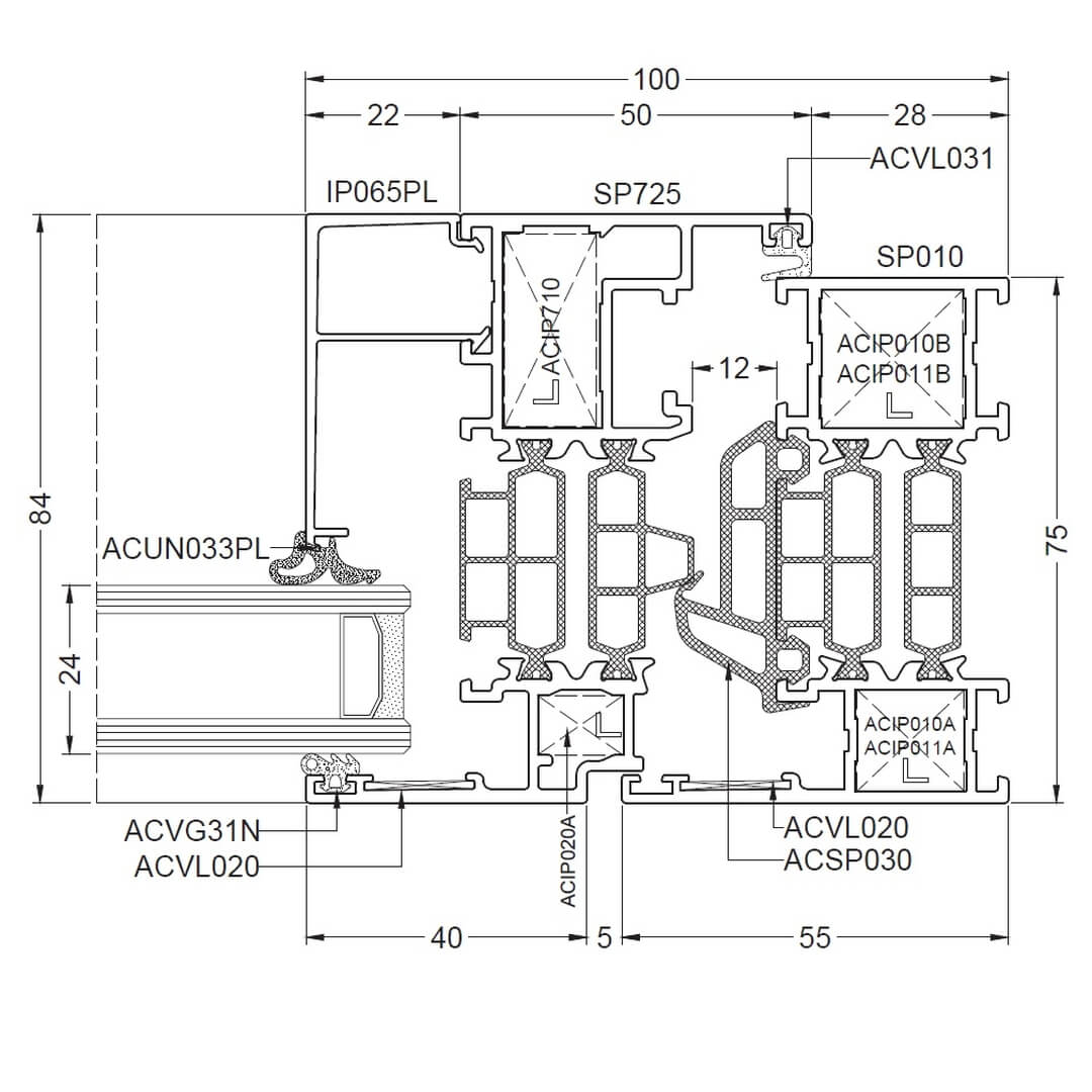
Aliplast Superial Fenster 110mm - SP010 - SP726

Superial Fenster 110mm - SP010 - SP726

Aliplast Superial mit Pfosten-Varianten

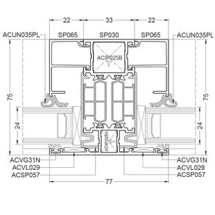
Aliplast Superial Pfosten 77mm - SP030

Superial Pfosten 77mm - SP030

Aliplast Superial i Pfosten 87mm - SP031

Superial i Pfosten 87mm - SP031

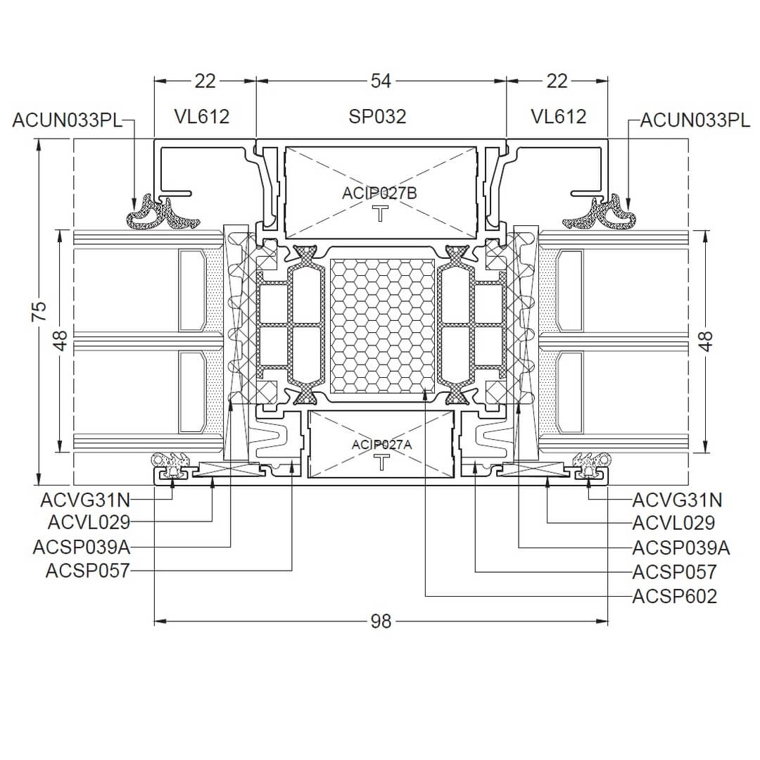
Aliplast Superial i+ Pfosten 98mm - SP032

Superial i+ Pfosten 98mm - SP032

Aliplast Superial mit Pfosten-Verstärkungen Varianten

Aliplast Superial Pfosten-Verstärkung 24mm - VL148

Superial Pfosten-Verstärkung 24mm - VL148

Aliplast Superial Pfosten-Verstärkung 44mm - VL149

Superial Pfosten-Verstärkung 44mm - VL149

Aliplast Superial Pfosten-Verstärkung 32,5mm - VL150

Superial Pfosten-Verstärkung 32,5mm - VL150

Aliplast Superial Pfosten-Verstärkung 24mm Beispiel innen - VL148

Superial Pfosten-Verstärkung 24mm Beispiel innen - VL148

Aliplast Superial Pfosten-Verstärkung 44mm Beispiel innen - VL149

Superial Pfosten-Verstärkung 44mm Beispiel innen - VL149

Aliplast Superial Pfosten-Verstärkung 32,5mm Beispiel innen - VL150

Superial Pfosten-Verstärkung 32,5mm Beispiel innen - VL150

Aluminium Balkontür Aliplast Superial

Aliplast Superial Balkontür 120mm Blendrahmen - SP011 - SP726

Superial Balkontür 120mm Blendrahmen - SP011 - SP726

Aliplast Superial Balkontürschwelle - SP493 - SP726

Superial Balkontürschwelle - SP493 - SP726

Aliplast Superial Balkontürschwelle mit Rahmenverbreiterung - SP493 - SP726 - SP179

Superial Balkontürschwelle mit Rahmenverbreiterung - SP493 - SP726 - SP179

Aluminium Aliplast Superial PSK Parallel-Schiebe-Kipp-Tür

Aluminium Haustür Aliplast Superial

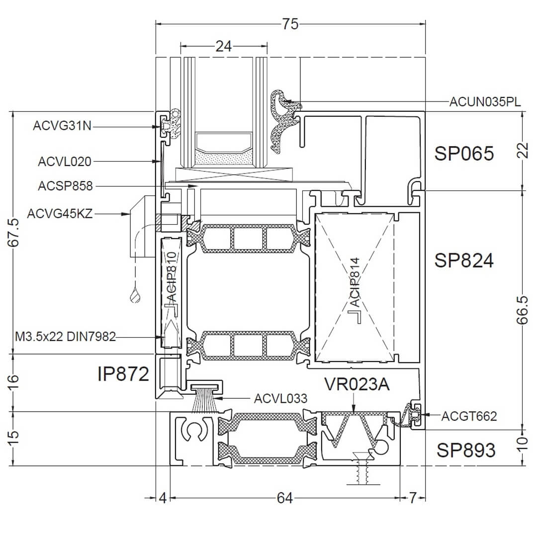
Aliplast Superial Tür innen öffnend - SP815 - SP824

Superial Tür innen öffnend - SP815 - SP824

Aliplast Superial Türschwelle innen öffnend - SP824 - SP893

Superial Türschwelle innen öffnend - SP824 - SP893

Aliplast Superial Tür außen öffnend - SP814 - SP825

Superial Tür außen öffnend - SP814 - SP825

Aliplast Superial Türschwelle außen öffnend - SP825 - SP893

Superial Türschwelle außen öffnend - SP825 - SP893

Aluminium Haustüren Aliplast Superial i+

Aliplast Superial i+ Tür innen öffnend - SP815 - SP824

Superial i+ Tür innen öffnend - SP815 - SP824

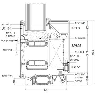
Aliplast Superial i+ Türschwelle außen öffnend - SP825 - SP893

Superial i+ Türschwelle außen öffnend - SP825 - SP893

Türflügel Aliplast Superial glasteilender Kämpfer

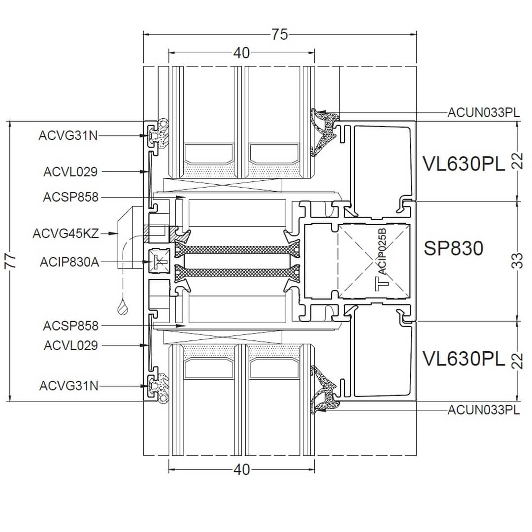
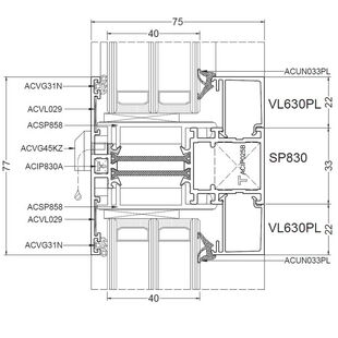
Aliplast Superial Tür glasteilender Kämpfer 77mm - SP830

Superial Tür glasteilender Kämpfer 77mm - SP830

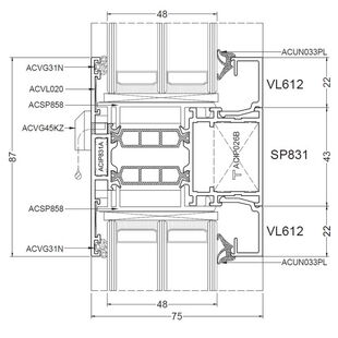
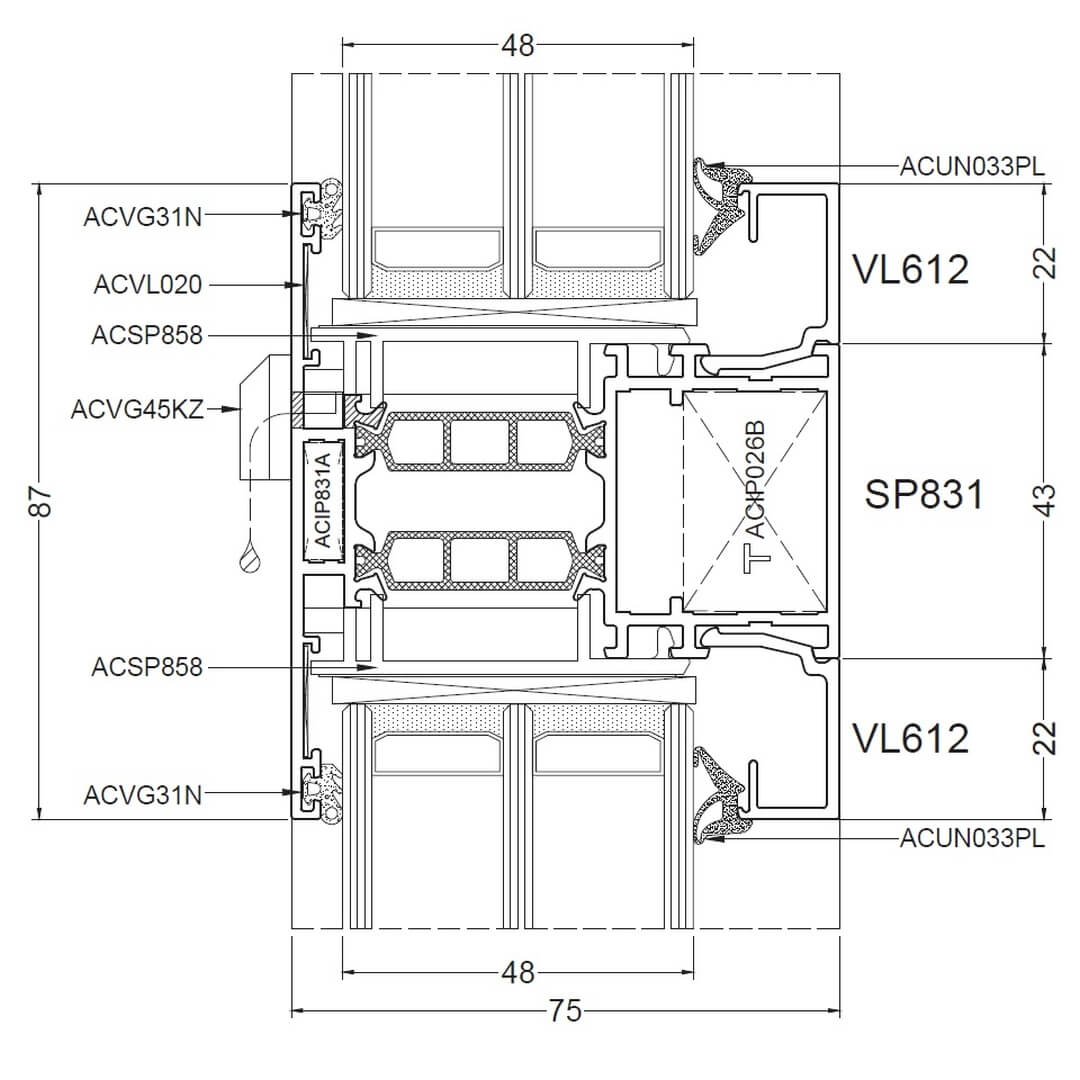
Aliplast Superial Tür glasteilender Kämpfer 87mm - SP831

Superial Tür glasteilender Kämpfer 87mm - SP831

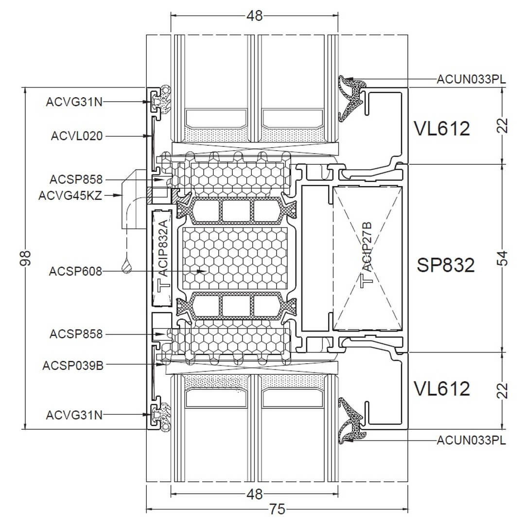
Aliplast Superial i+ Tür glasteilender Kämpfer 98mm - SP832

Superial Tür glasteilender Kämpfer 98mm - SP832

Zusatzprofile für Aliplast Superial Querschnitte

Sprossenarten - Aliplast Superial

Innenliegende SZR Sprossen / Helima Sprossen

Drutex Iglo SZR Sprosse 8mm

Innenliegende Sprosse 8mm

Drutex Iglo SZR Sprosse 18mm

Innenliegende Sprosse 18mm

Drutex Iglo SZR Sprosse 26mm

Innenliegende Sprosse 26mm

Drutex Iglo SZR Sprosse 45mm

Innenliegende Sprosse 45mm

Glasteilende Sprossen - Kämpfer

Aliplast Superial Pfosten 77mm - SP030

Superial Kämpfer-Sprosse 77mm - SP030

Aliplast Superial i Pfosten 87mm - SP031

Superial i Kämpfer-Sprosse 87mm - SP031

Aliplast Superial i+ Pfosten 98mm - SP032

Superial i+ Kämpfer-Sprosse 98mm - SP032

Anschlussprofile - Aliplast Superial

Aluminium Rahmenverbreiterung - Aliplast Superial

Aliplast SP178 - Rahmenverbreiterung - 28mm

SP178 - Rahmenverbreiterung - 28mm

Aliplast SP173 - Rahmenverbreiterung - 33mm

SP173 - Rahmenverbreiterung - 33mm

Aliplast SP174 - Rahmenverbreiterung - 43mm

SP174 - Rahmenverbreiterung - 43mm

Aliplast SP175 - Rahmenverbreiterung - 54mm

SP175 - Rahmenverbreiterung - 54mm

Aliplast SP176 - Rahmenverbreiterung - 96mm

SP176 - Rahmenverbreiterung - 96mm

Aliplast SP177 - Rahmenverbreiterung - 156mm

SP177 - Rahmenverbreiterung - 156mm

Aluminium Kopplungen - Aliplast Superial

Aliplast VL75 - H-Kopplung

VL75 - H-Kopplung

Aliplast VL75 - H-Kopplung Beispiel

VL75 - H-Kopplung Beispiel

Aliplast SP053 - Kopplung 20mm

SP053 - Kopplung 20mm

Aliplast SP054 - Kopplung 20mm mit Verstärkung

SP054 - Kopplung 20mm mit Verstärkung

Kopplung von Eck-Elementen - 90° und 135°

Aliplast SP050 - Eckkopplung 90 Grad

SP050 - Eckkopplung 90 Grad

Aliplast SP135 - Kopplung 135 Grad

SP135 - Kopplung 135 Grad

Aliplast kozijnen en deuren op maat

Configureer en bestel eenvoudig en comfortabel Aluplast ramen en deuren online bij kozijnenblik.nl

Das könnte Sie auch interessieren:

Alu-Fenster Aliplast Econoline

Detailzeichnungen Alu-Fenster Econoline

Alu-Fenster Aliplast Econoline besitzen eine Bautiefe (Rahmen) von 51mm.

Detailzeichnungen Econoline