Detailzeichnungen Alufenster Aliplast Econoline

Alufenster Aliplast Econoline Querschnitte

Aliplast Econoline Festverglasung 65mm - EL011

Econoline Festverglasung 65mm - EL011

Aliplast Econoline Fenster 120mm - EL011 - EL821

Econoline Fenster 120mm - EL011 - EL821

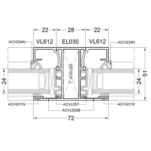
Alufenster Aliplast Econoline mit Pfosten-Konstruktionen

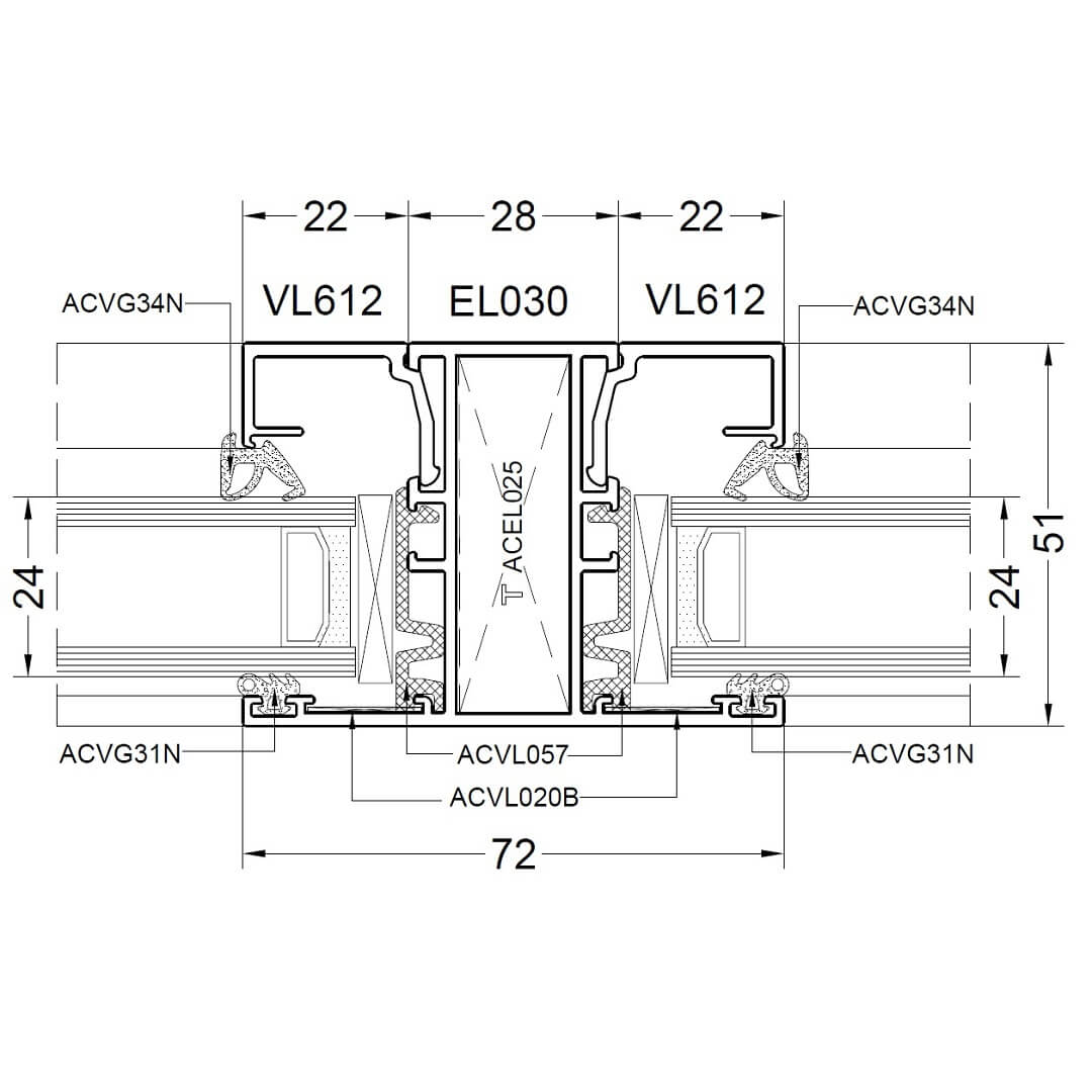
Aliplast Econoline Pfosten 72mm - EL030

Econoline Pfosten 72mm - EL030

Aliplast Econoline Pfosten 87mm - EL031

Econoline Pfosten 87mm - EL031

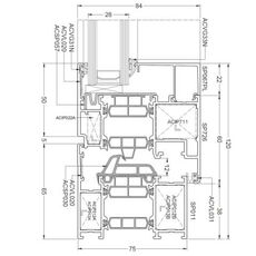
Alu Haustür Aliplast Econoline

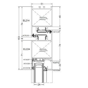
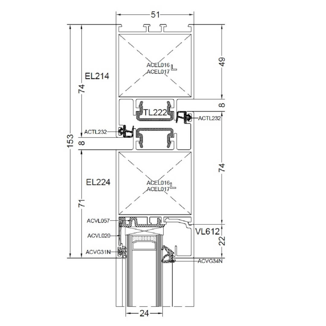
Aliplast Econoline Tür innen öffnend - EL214 - EL224

Econoline Tür innen öffnend - EL214 - EL224

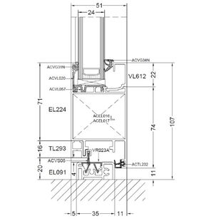
Aliplast Econoline Türschwelle innen öffnend - EL091 - EL224

Econoline Türschwelle innen öffnend - EL091 - EL224

Zusatzprofile für Aliplast Econoline Querschnitte

Sprossenarten - Econoline

Innenliegende SZR Sprossen / Helima Sprossen

Drutex Iglo SZR Sprosse 8mm

Innenliegende Sprosse 8mm

Drutex Iglo SZR Sprosse 18mm

Innenliegende Sprosse 18mm

Drutex Iglo SZR Sprosse 26mm

Innenliegende Sprosse 26mm

Drutex Iglo SZR Sprosse 45mm

Innenliegende Sprosse 45mm

Glasteilende Sprossen - Kämpfer

Aliplast Econoline Pfosten 72mm - EL030

Econoline Kämpfer-Sprosse 72mm - EL030

Aliplast Econoline Pfosten 87mm - EL031

Econoline Kämpfer-Sprosse 87mm - EL031

Alu Rahmenverbreiterung - Econoline

Aliplast TL175 - Rahmenverbreiterung 54mm

TL175 - Rahmenverbreiterung 54mm

Aliplast TL176 - Rahmenverbreiterung 96mm

TL176 - Rahmenverbreiterung 96mm

Alu Kopplungen - Econoline

Aliplast VL75 - H-Kopplung

VL75 - H-Kopplung

Aliplast VL75 - H-Kopplung Beispiel

VL75 - H-Kopplung Beispiel

Aliplast kozijnen en deuren op maat

Configureer en bestel eenvoudig en comfortabel Aluplast ramen en deuren online bij kozijnenblik.nl

Das könnte Sie auch interessieren:

Alu-Fenster Aliplast Superial

Detailzeichnungen Alu-Fenster Aliplast Superial

Alu-Fenster Aliplast Superial besitzen eine Bautiefe (Rahmen) von 75mm.

Detailzeichnungen Superial