Eenvoudig en comfortabel Kozijnen Aluplast IDEAL 7000 online configureren en bestellen bij kozijnenblik.nl
Kunststof kozijnen - Aluplast IDEAL 7000
Optimale sfeer en comfort
- 6-kamersysteem met 85 mm bouwdiepte
- 2 afdichtingsniveaus van EPDM
- 2-voudige / 3-voudige beglazing
- Glaspakketten tot 51 mm
- Roto NT veiligheidsbeslag met paddenstoelvergrendeling
- Optimaal: Kozijnenprofiel met powerdur-technologie
vanaf 35,96 €
incl. 21% BTW excl. verzendkosten
Productbeschrijving
Aluplast IDEAL 7000 – voor een optimale sfeer en wooncomfort
Kies voor het beproefde kunststofprofiel IDEAL 7000 voor optimale woonkwaliteit en een goede energie-efficiëntie. Het Kozijnen aluplast IDEAL 7000 beschikt over een 6-kamersysteem met een bouwdiepte van 85 mm en 2 afdichtingsniveaus (AD). De profielen met een inbouwdiepte van 85 mm bieden bovendien veel mogelijkheden bij de keuze van een glaspakket. Standaard worden de Kozijnen uitgerust met dubbele beglazing. Voor betere warmte-isolatiewaarden wordt driedubbele beglazing in combinatie met de warme rand aanbevolen. De isolerende afstandhouder verhoogt niet alleen de thermische prestaties van de ruit, maar vermindert ook het risico op vroegtijdige condensvorming van waterdamp op het glas. Voor een optimale energie-efficiëntie met het profiel IDEAL 7000 kan de stalen versterking in het kozijn optioneel worden vervangen door de technologie „powerdur inside”. Hierbij gaat het om speciale thermoplastische inzetstukken die zijn versterkt met het Ultradur High Speed-polymeer. Het weglaten van de stalen versterking in het frame betekent tegelijkertijd het elimineren van koudebruggen. Daardoor kunnen nog betere warmtedoorgangswaarden van de profielen worden bereikt. Configureer nu eenvoudig online uw Aluplast IDEAL 7000 Kozijnen geheel naar uw eigen wensen!
Voordelen van het kunststof kozijn Aluplast IDEAL 7000:
Profiel:
Hoogwaardig 6-kamerprofiel met een inbouwdiepte van 85 mm voor uitstekende warmte-isolatie en veiligheid. Grote versterkingskamer met stalen versterking.
Beglazing:
De beglazing kan worden gekozen uit een groot aantal speciale glassoorten met een glasdikte tot 51 mm. Ruime keuze uit warmtewerende, geluidswerende, privacy- en inbraakwerende beglazing.
Afdichtingen:
De kunststof profielen beschikken over 2 afdichtingsniveaus (AD) van EPDM, die optimale bescherming bieden.
Beslag:
Veiligheidsbeslag Roto NT met paddenstoelvergrendeling. Een grote versterkingskamer met stalen versterking zorgt bovendien voor de vereiste stabiliteit.
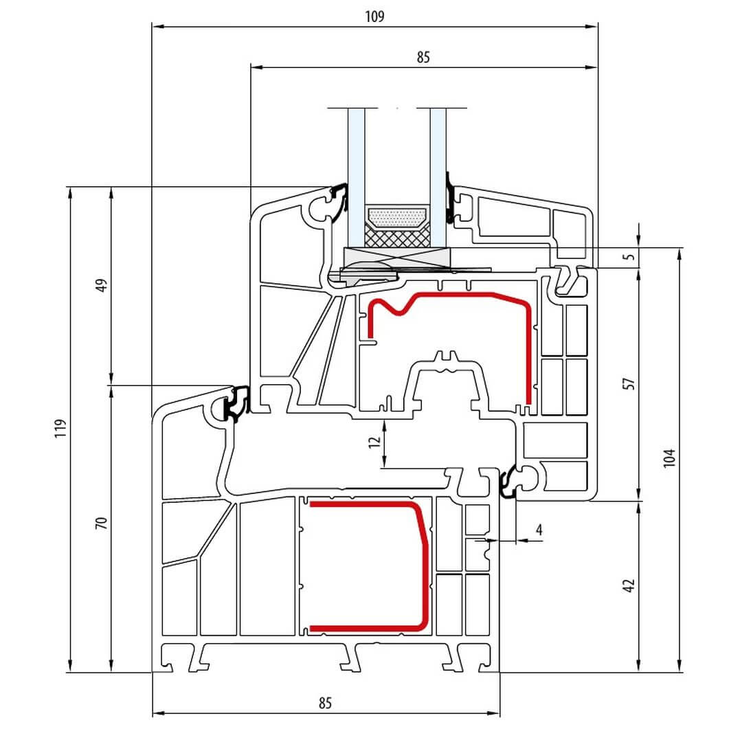
Kunststof kozijnen Aluplast IDEAL 7000 - Profielaanzichten
Grote keuze aan kleuren voor Aluplast IDEAL 7000 kozijnprofielen
Kozijnen Aluplast IDEAL 7000 op maat
Technische doorsneden en detailtekeningen
Neemt u het ook graag tot in detail? Plan dan nu uw bouwproject tot in de kleinste details met de praktische profieldoorsneden en andere technische tekeningen van het profiel Aluplast IDEAL 7000. Hier krijgt u niet alleen diverse mogelijkheden te zien, maar kunt u ook de mechanismen van de profielfunctionaliteit bekijken en de verschillen tussen verschillende profielen beoordelen. Daarnaast worden de mogelijke aanvullende profielen zoals vensterbankaansluitingen, kaderverbredingen of koppelingen voor het systeem Aluplast IDEAL 7000 opgesomd. Zo past het kozijnsysteem perfect in elke omgeving. Dankzij de uitgebreide detailtekeningen kunt u een nauwkeurige planning maken en zo een optimaal montageresultaat bereiken.
Optioneel: powerdur inside (glasvezelversterkte kunststofprofielen)
Optioneel kunnen de Kozijnen aluplast IDEAL 7000 ook met de technologie powerdure inside in het frame worden uitgerust. Profielproducent aluplast ontwikkelde in samenwerking met BASF een speciale glasvezelversterkte kunststof (powerdur), die aan de binnenzijde van de profielen voor de benodigde stabiliteit zorgt en een extra versterking van staal overbodig maakt. Met powerdur® in plaats van staal in de binnenkant van het profiel worden aanzienlijk betere isolatiewaarden bereikt. Zo zorgt het beproefde systeem Aluplast IDEAL 7000® voor optimaal wooncomfort en een hoge energie-efficiëntie.
Kozijnen Aluplast IDEAL 7000 op maat
Eenvoudig en comfortabel Kozijnen Aluplast IDEAL 7000 online configureren en bestellen bij kozijnenblik.nl
Meer kozijnsystemen van Aluplast:
Aluplast Kozijnen | Aluplast IDEAL Neo | Aluplast IDEAL 4000 | Aluplast IDEAL 5000 | Aluplast IDEAL 8000 | Aluplast energeto 8000 | Aluplast IDEAL 8000 Aluskin
Samenvatting: Productinformatie



