Einfach und bequem Fenster Aluplast energeto 8000 online konfigurieren und bestellen bei fensterblick.de
Kunststofffenster - Aluplast energeto 8000
Meisterhafte Wärmedämmung
- 6-Kammersystem mit 85mm Bautiefe
- 3 Dichtungsebenen aus EPDM
- 3-fach / 4-fach Verglasung
- Scheibenpakete bis 51mm
- Glasfaserverstärkte powerdur-Streifen
- Sicherheitsbeschlag Roto NT mit Pilzkopfverriegelung
- Optimaler Einbruchschutz und Wärmedämmung dank dritter Dichtungsebene mit umlaufenden Mittelsteg
vanaf 60,00 €
incl. 21% BTW excl. verzendkosten
Produktbeschreibung
Aluplast energeto 8000 – Meisterhafte Wärmedämmung ohne metallische Wärmebrücken
Setzten Sie auf ein völlig neuen Ansatz mit den Systemen energeto für eine ausgezeichnete Energieeffizienz! Die Kunststofffenster energeto 8000 besitzen ein 6-Kammersystem mit einer Bautiefe von 85mm und 3 Dichtungsebenen (MD). Als dritte Dichtung im Fensterrahmen sorgt der rundum verlaufende Mittelsteg einerseits für verbesserte Wärmedämmwerte, andererseits verhindert er ein schnelles Aufhebeln des Flügels. Kennzeichnend für das System aluplast energeto ist die powerdur Technologie, welche für die nötige Stabilität im Profil sorgt und eine zusätzliche Verstärkung aus Stahl überflüssig werden lässt. Dank den speziellen glasfaserverstärkten Kunststoff-Streifen im Profilinneren lassen sich wesentlich bessere Dämmwerte erzielen und metallische Wärmebrücken vermeiden. In Verbindung mit der "Bonding Inside"-Technologie, bei welcher die Verglasung im Flügel verklebt wird, wird eine deutlich höhere Stabilität erreicht. Rundum mit der Scheibe verklebte Flügel sorgen für eine größere Dichtigkeit des Fensters und eine verbesserte Wärmedämmung. Diese Technologie ermöglicht es, die Glasscheibe im Flügelprofil ein wenig tiefer als standardmäßig zu setzen, sodass möglichst keine Wärmebrücke an der Glas- und Profil-Schnittstelle entstehen, und somit der Kondensation-Effekt vermieden wird. Das System energeto 8000 weist beachtliche Wärmedämmwerte auf, was aktiv zur CO2-Reduzierung, zur Heizkosteneinsparung und somit zum Umweltschutz beiträgt.
Vorteile vom Kunststofffenster Aluplast energeto 8000:
Profil:
Hochwertiges 6-Kammerprofil mit 85 mm Einbautiefe für eine hervorragende Wärmeisolation und Sicherheit. Verstärkungskammer mit glasfaserverstärkten powerdur-Streifen.
Verglasung:
Die Verglasung kann aus einer Vielzahl von Spezialgläsern mit einer Glasstärke von bis zu 51mm ausgewählt werden. Große Auswahl von Wärmeschutz-, Schallschutz-, Sichtschutz- und Einbruchschutzverglasungen.
Dichtungen:
Die Kunststoffprofile verfügen über 3 Dichtungsebenen mit einer Mitteldichtung (MD) aus EPDM.
Beschlag:
Sicherheitsbeschlag Roto NT mit Pilzkopfverriegelung. Für eine erhöhte Lebensdauer arbeiten die Beschläge in der sog. trockenen Kammer.
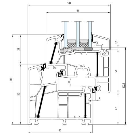
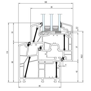
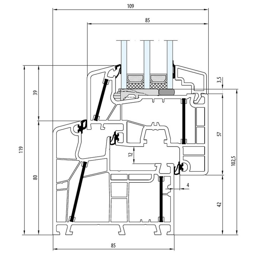
Kunststofffenster Aluplast energeto 8000 - Profilansichten
Große Auswahl an Farben für Aluplast Fensterprofile
Fenster Aluplast energeto 8000 nach Maß
Integrierte Technologien (powerdur, bonding inside und saftec inside)
Das energeto 8000 ist der Inbegriff von Energieffizienz, weshalb aluplast 3 von 4 neuartige Technologien standardmäßig im energeto 8000 verbaut. Diese bereits verbauten Technologien sind bonding-, safetec- und powerdur-inside. Nachfolgend eine kurze Erläuterung der aluplast Technologien:
bonding-inside: Dabei wird die Scheibe im Fenster rundum mit dem Profil fest verklebt - Ergebnis ist eine extrastarke Verbindung zwischen Scheibe und Flügel, um einerseits ein Aushebeln der Scheiben aus dem Flügelprofil zu verhindern und andererseits das Fenster auf Dauer formastabil zu halten.
safetec-inside: Diese Technologie vereint gleich zwei Vorteile - es handelt sich um einen rundum verlaufenden festen Mittelsteg für verbesserte Wärmedämmwerte (fungiert als dritte Dichtungsebene) und zur Verhinderung des schnellen Aufhebelns des Flügels.
powerdur-inside: Anstatt des herkömmlichen stahlverstärkten Kunststoffprofils kommt bei dieser Technologie speziell entwickelter, glasfaserverstärkter Kunststoff zum Einsatz, welcher wesentlich bessere Wärmedämmwerte realisiert.
Optional: foam-inside: Bei diesem Verfahren wird spezieller Schaum aus Polyurethan, mit der Eigenschaft sich selbst den Weg durch das Profil zu erschließen, in die Profilkammern gespritzt. Durch die Volumenexpansion werden die Hohlkammern für eine meisterhafte Wärmedämmung vollständig ausgeschäumt. Selbstverständlich ist foam-inside genauso vollständig recyclebar wie das komplette Fensterprofil.
Die Umwelt schützen und dabei Geld sparen: Energeto 8000
Wir leben in einer Zeit in der Energieeffizienz, Recycling und Umweltschutz einen großen Stellenwert einnehmen. Mit dem Kauf des aluplast energeto 8000 leisten Sie bereits schon einen Beitrag. Denn mit diesem Fenstersystem sparen Sie zweifelsfrei Heizkosten ein – das ist gut für Ihren Geldbeutel und unsere Umwelt!
Nicht ohne Grund erhielt das energeto 8000 mit foam inside das Passivhauszertifikat nach Dr. Feist. Mit einer Bautiefe von 85 mm ist energeto® 8000 speziell für das Neubausegment konzipiert. Sein Uf-Wert von 0,94 W/m²K bietet herausragende Energieeffizienz auf Passivhausniveau. Mit energeto werden Heiz- und Energeiekosten gespart. Zudem ist energeto wiederverwertbar und kann zu 100% in den stofflichen Kreislauf zurückgeführt werden.
Technische Querschnitte und Detailzeichnungen
Sie nehmen es auch ganz genau? Dann planen Sie jetzt Ihr Bauvorhaben bis ins kleinste Detail mit den praktischen Profilschnitten und weiteren technischen Zeichnungen vom Profil energeto 8000. Hier werden Ihnen nicht nur vielfältige Möglichkeiten gezeigt, sondern Sie können auch die Mechanismen der Profilfunktionalität begutachten sowie Unterschiede zwischen verschiedenen Profilen beurteilen. Zudem werden die möglichen Zusatzprofile wie Bankanschlüsse, Rahmenverbreiterungen oder Kopplungen für das System energeto 8000 aufgelistet. Danit fügt sich das Fenstersystem ideal in jede Umgebung ein. Dank der vielfältigen Detailzeichnungen können Sie eine exakte Planung vornehmen und so ein optimales Montageergebnis erzielen.
Fenster Aluplast energeto 8000 nach Maß
Einfach und bequem Fenster Aluplast energeto 8000 online konfigurieren und bestellen bei fensterblick.de
Weitere Fenstersysteme von Aluplast:
Aluplast Fenster | Aluplast IDEAL Neo | Aluplast IDEAL 4000 | Aluplast IDEAL 5000 | Aluplast IDEAL 7000 | Aluplast IDEAL 8000 | Aluplast IDEAL 4000 Aluskin | Aluplast IDEAL 5000 Aluskin | Aluplast IDEAL 8000 Aluskin
Zusammenfassung: Produktinformationen




