Eenvoudig en comfortabel Aluplast IDEAL 5000 Kozijnen online configureren en bestellen bij kozijnenblik.nl
Kunststof kozijnen - Aluplast IDEAL 5000
Sterke thermische isolatie en veiligheid
- 5-kamersysteem met 70 mm bouwdiepte
- 3 afdichtingsniveaus van EPDM
- 2-voudige / 3-voudige beglazing
- Glaspakketten tot 41 mm
- Roto NT veiligheidsbeslag met paddenstoelvergrendeling
- Optimale inbraakbeveiliging en thermische isolatie dankzij een derde afdichtingsniveau met rondomlopende middenstijl
vanaf 31,40 €
incl. 21% BTW excl. verzendkosten
Productbeschrijving
Aluplast IDEAL 5000 – het warmte-isolerende kozijn met inbraakbeveiliging in het kozijnprofiel
Kies voor een kunststof profiel met uitstekende energie-efficiëntie en extra inbraakbeveiliging! Kenmerkend voor de Aluplast IDEAL 5000 Kozijnen is het 5-kamersysteem met een bouwdiepte van 70 mm en 3 afdichtingsniveaus (MD). Als derde afdichting in het kozijn zorgt de rondom lopende middenaanslag enerzijds voor verbeterde warmte-isolatiewaarden, anderzijds voorkomt deze dat de vleugel snel kan worden opengebroken. Voor een optimale warmte-isolatie met het kunststof kozijn Aluplast IDEAL 5000 wordt 3-voudige beglazing in combinatie met de warme rand aanbevolen. De isolerende afstandhouder verbetert niet alleen de warmte-isolatie van het glas, maar vermindert ook het risico dat waterdamp voortijdig op de ruiten condenseert. Bovendien beperkt de warme rand koudebruggen bij de verbinding tussen profiel en glas. Voor een bijzonder stijlvolle uitstraling of meer licht in de ruimtes zijn ook de variant IDEAL 5000 Aluskin, met extra aluminium afdekschaal, en het systeem IDEAL 5000 Slim, met een lager kozijnprofiel, verkrijgbaar. Voor de glaslatten zijn de varianten Classic-, Soft- en Round-Line beschikbaar. Configureer nu snel en eenvoudig online uw Aluplast Kozijnen volledig naar wens!
Voordelen van het kunststof kozijn Aluplast IDEAL 5000:
Profiel:
Hoogwaardig 5-kamerprofiel met een inbouwdiepte van 70 mm voor uitstekende warmte-isolatie en veiligheid. Grote versterkingskamer met stalen versterking.
Beglazing:
De beglazing kan worden gekozen uit een breed assortiment speciale glassoorten met een glasdikte tot 41 mm. Grote keuze aan warmtewerende, geluidswerende, privacy- en inbraakwerende beglazing.
Afdichtingen:
De kunststof profielen beschikken over 3 afdichtingsniveaus met een middendichting (MD) van EPDM.
Beslag:
Veiligheidsbeslag Roto NT met paddenstoelvergrendeling. Voor een langere levensduur werken de beslagdelen in de zogenoemde droge kamer.
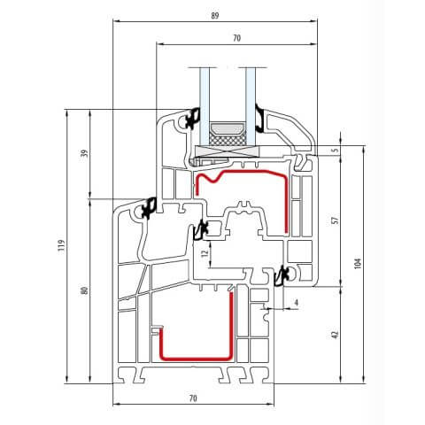
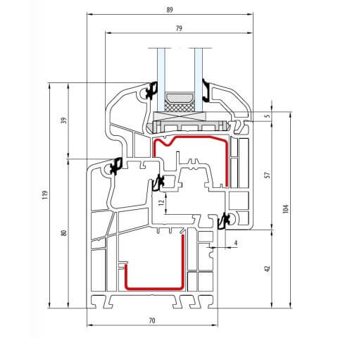
Kunststof kozijnen Aluplast IDEAL 5000 - verschil tussen Soft-Line en Round-Line
Aluplast IDEAL 5000 Slim Soft-line - Profielaanzichten
Aluplast IDEAL 5000 Slim Round-line - Profielaanzichten
Grote keuze aan kleuren voor Aluplast kozijnprofielen
Kozijnen Aluplast IDEAL 5000 op maat
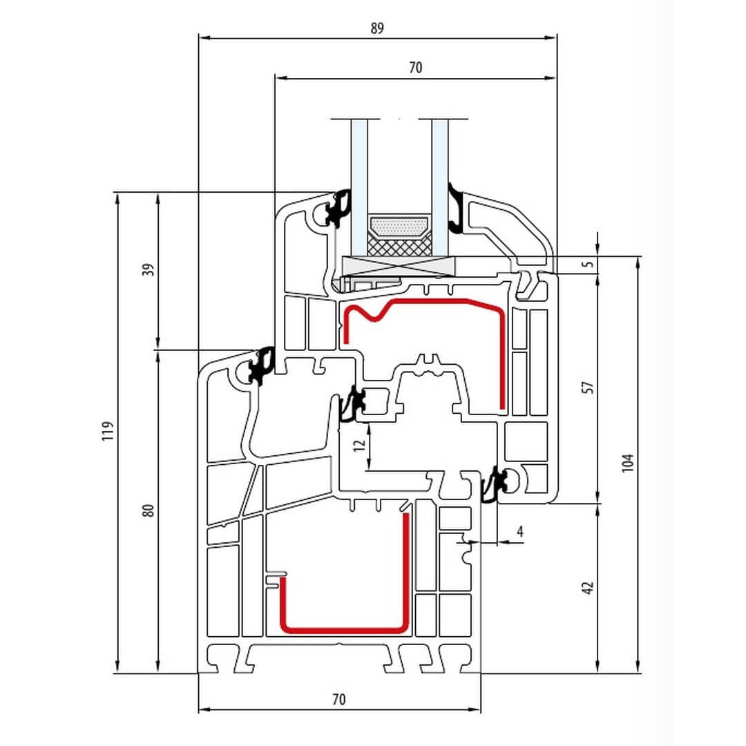
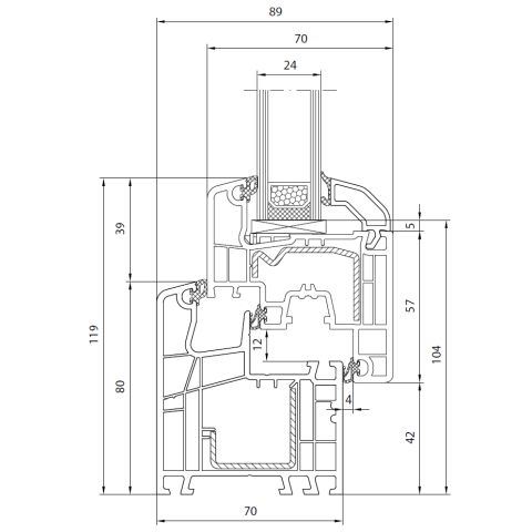
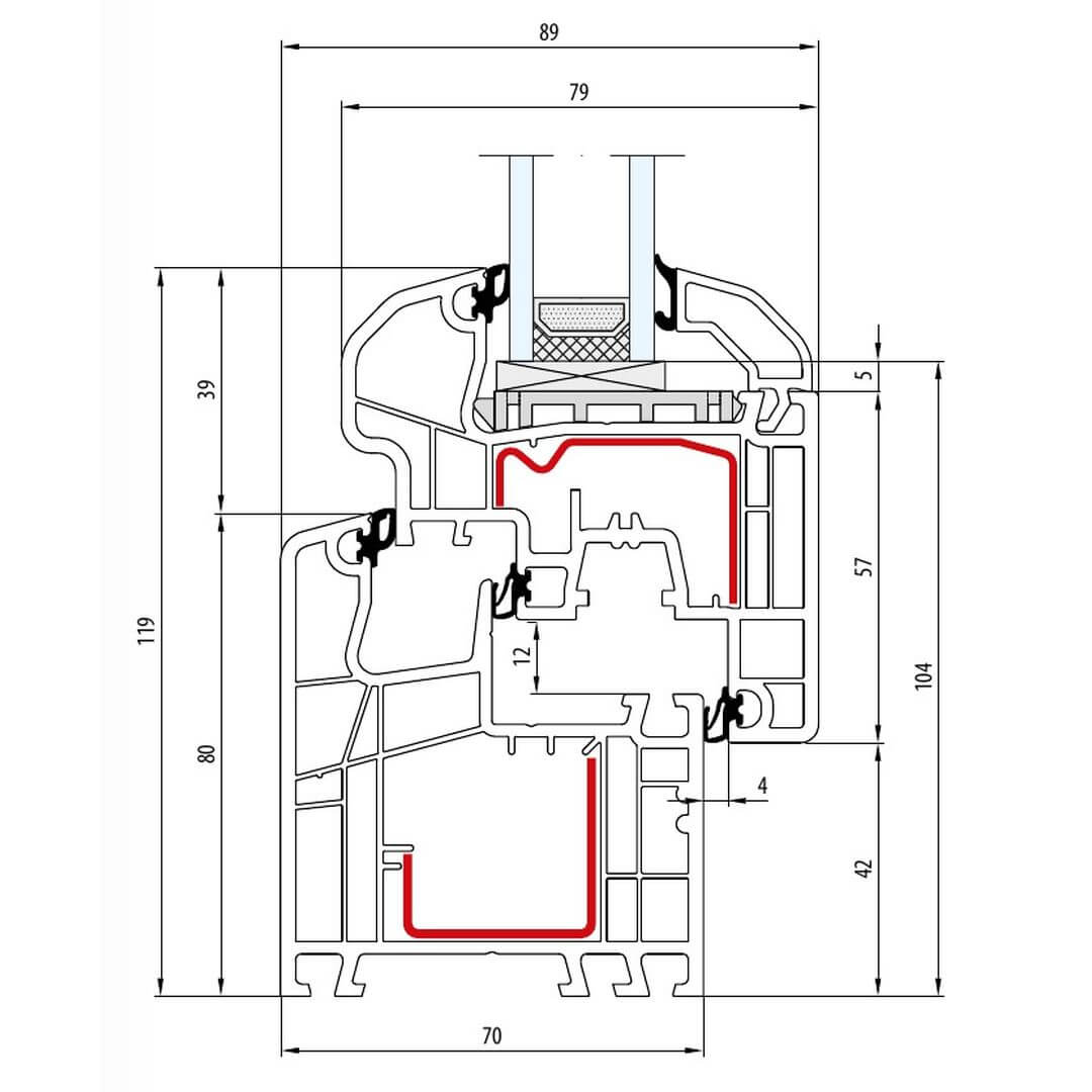
Technische doorsneden en detailtekeningen
Voordat u vol energie begint met nieuwbouw of renovatie, is het belangrijk om elk detail nauwkeurig te plannen. Zo kunt u de muuropeningen exact voorbereiden voor de montage van de Kozijnen, de precieze afmetingen bepalen en bent u op alle situaties voorbereid. Daarbij moet u niet alleen rekening houden met de afmetingen van de bouwelementen, maar ook met de specifieke eigenschappen ervan. De Aluplast IDEAL 5000 overtuigt hier met een derde afdichtingsniveau en een doorlopende middenstijl. Deze vindt u bij de profielvergelijking in de technische tekeningen, zodat u al aan de hand van de opbouw kwaliteitsverschillen kunt herkennen en de planning kunt afstemmen op uw wensen en eisen. Daarnaast vindt u hier de maximale breedte van het glaspakket, zodat u de ideale combinatie van thermische isolatie en veiligheid kunt samenstellen. Een investering die zich op de lange termijn terugbetaalt!
Verder naar detailtekeningen - IDEAL 5000
Aluplast Aluskin - Sterke voordelen van kunststof en aluminium
Slimme techniek, elegant design en een lange levensduur - de Aluskin aluminium voorzetschalen van aluplast combineren de sterke voordelen van aluminium en kunststof. Dankzij het kunststofsysteem Aluplast IDEAL 5000 worden uitstekende warmte-isolerende eigenschappen bereikt, terwijl de aluminium voorzetschalen een brede kleurvariatie bieden voor een moderne uitstraling en bovendien beschermen tegen weersinvloeden. Door deze combinatie ontstaan Kozijnen op een uitzonderlijk hoog technisch niveau. Geef uw Kozijnen niet alleen een verfijnde aluminium look, maar creëer ook een hoog niveau van veiligheid, duurzaamheid en stabiliteit.
Kozijnen Aluplast IDEAL 5000 op maat
Eenvoudig en comfortabel Aluplast IDEAL 5000 Kozijnen online configureren en bestellen bij kozijnenblik.nl
Meer kozijnsystemen van Aluplast:
Aluplast Kozijnen | Aluplast IDEAL Neo | Aluplast IDEAL 4000 | Aluplast IDEAL 7000 | Aluplast IDEAL 8000 | Aluplast energeto 8000 | Aluplast IDEAL 5000 Aluskin
Samenvatting: Productinformatie







