Detailzeichnungen Aluplast IDEAL 5000

Kunststofffensterprofil IDEAL 5000 Querschnitte

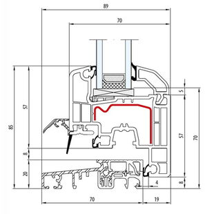
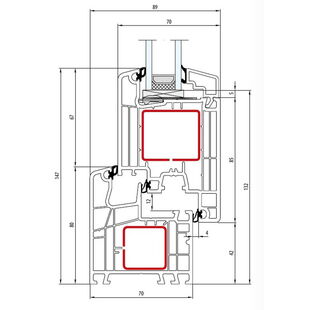
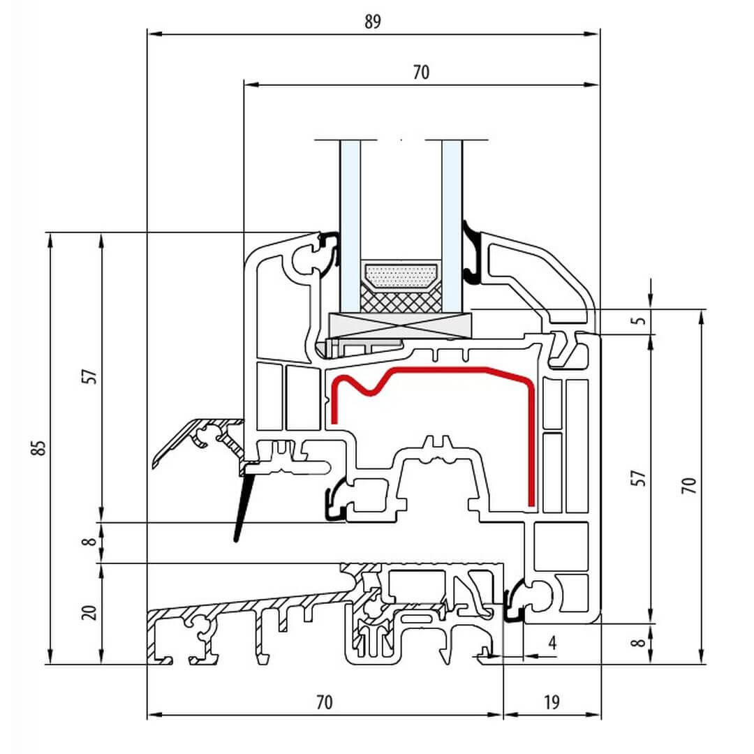
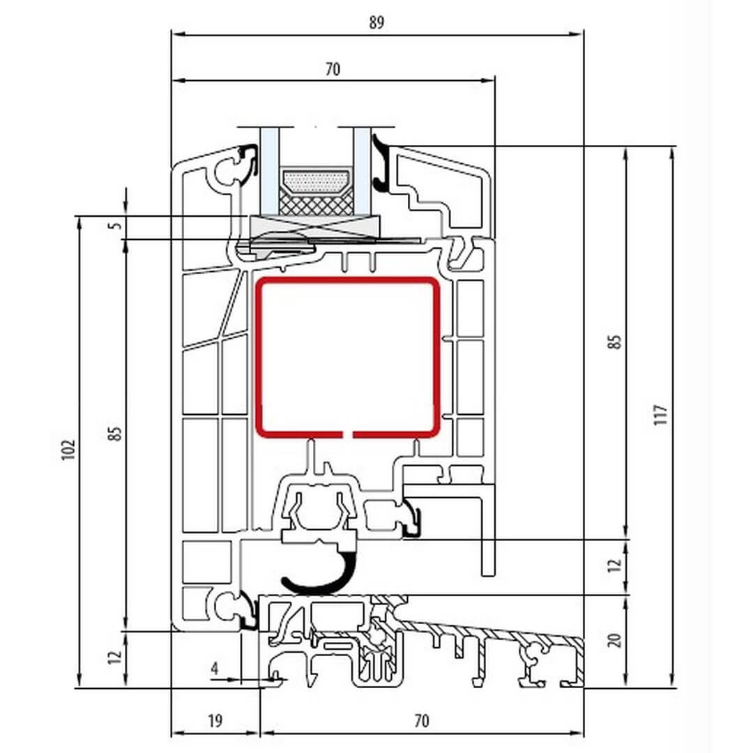
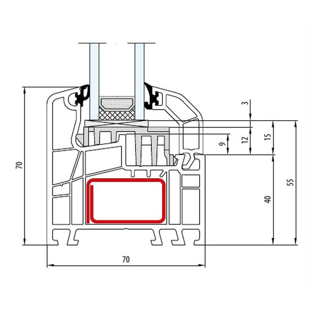
Aluplast IDEAL 5000 Festverglasung 80mm - 150x03

IDEAL 5000 Festverglasung 80mm - 150x03

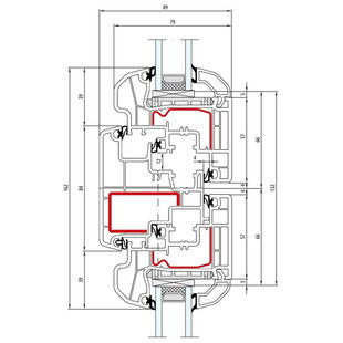
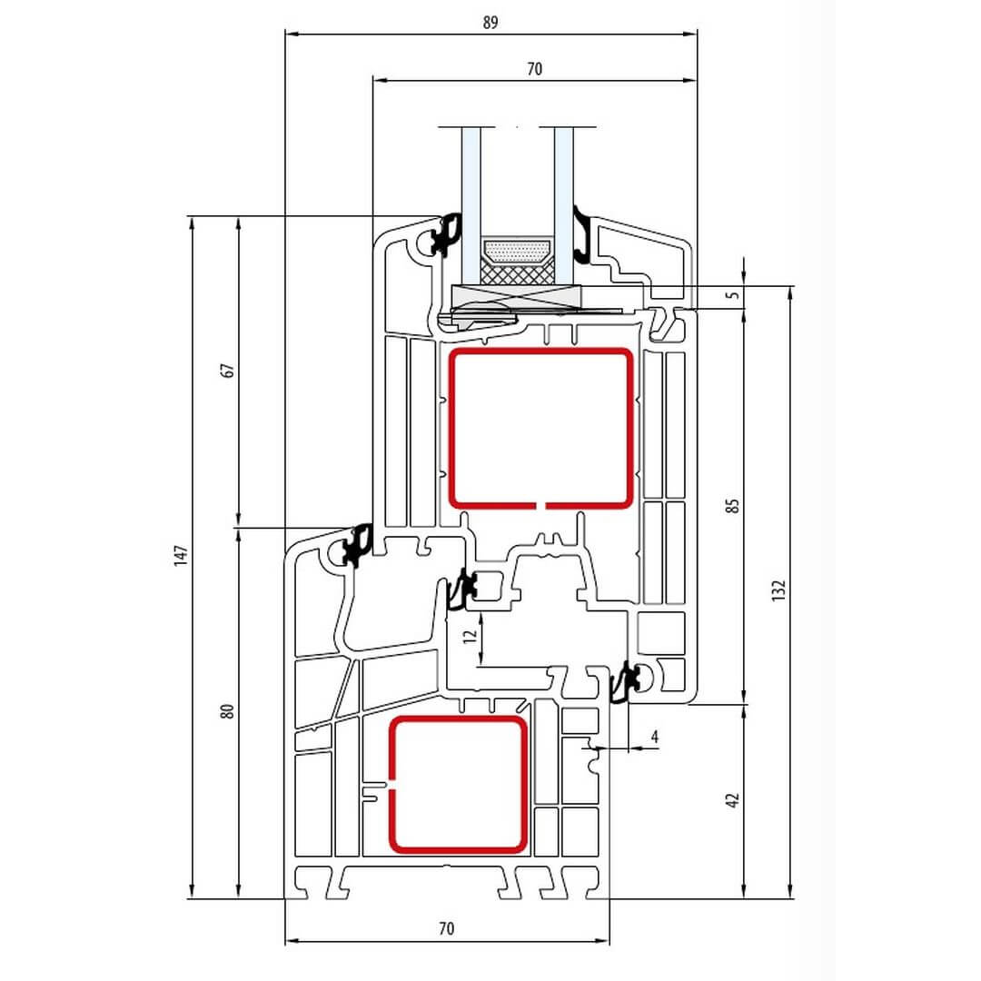
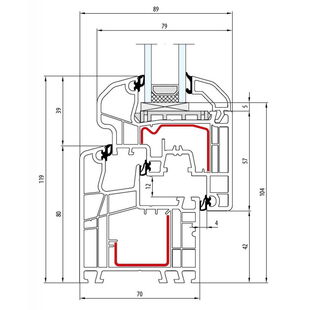
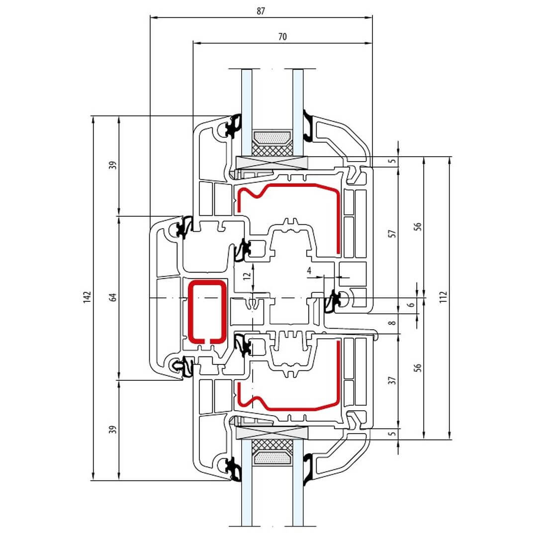
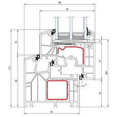
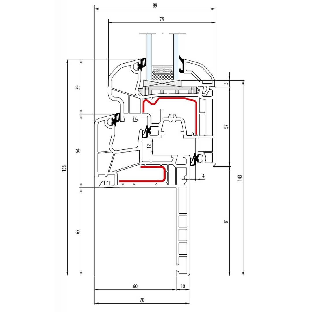
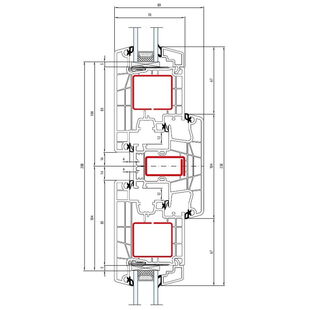
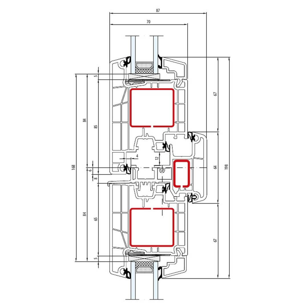
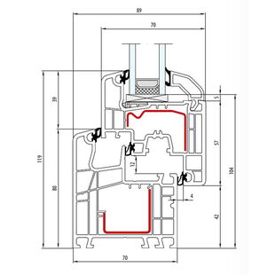
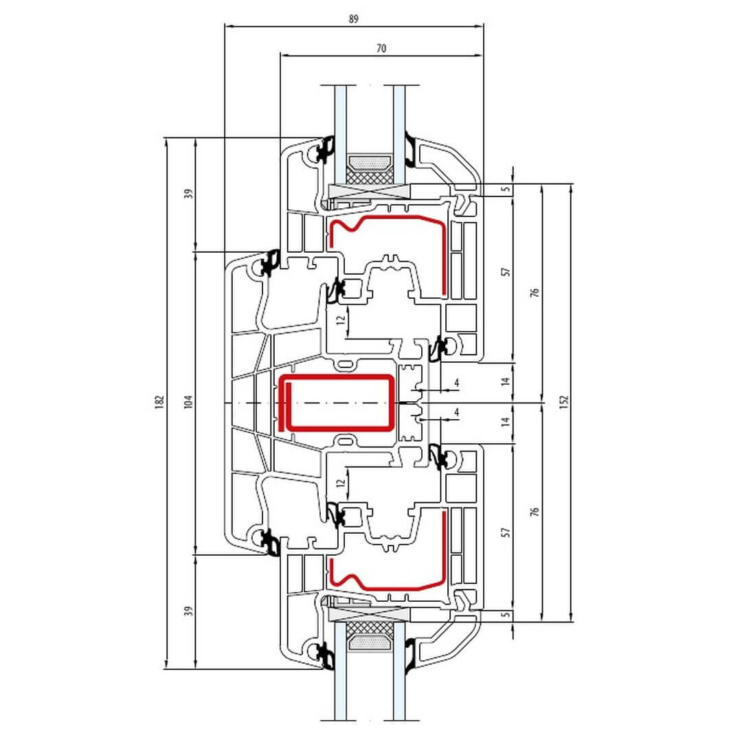
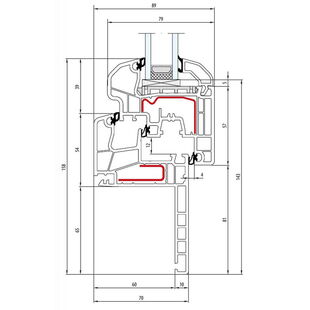
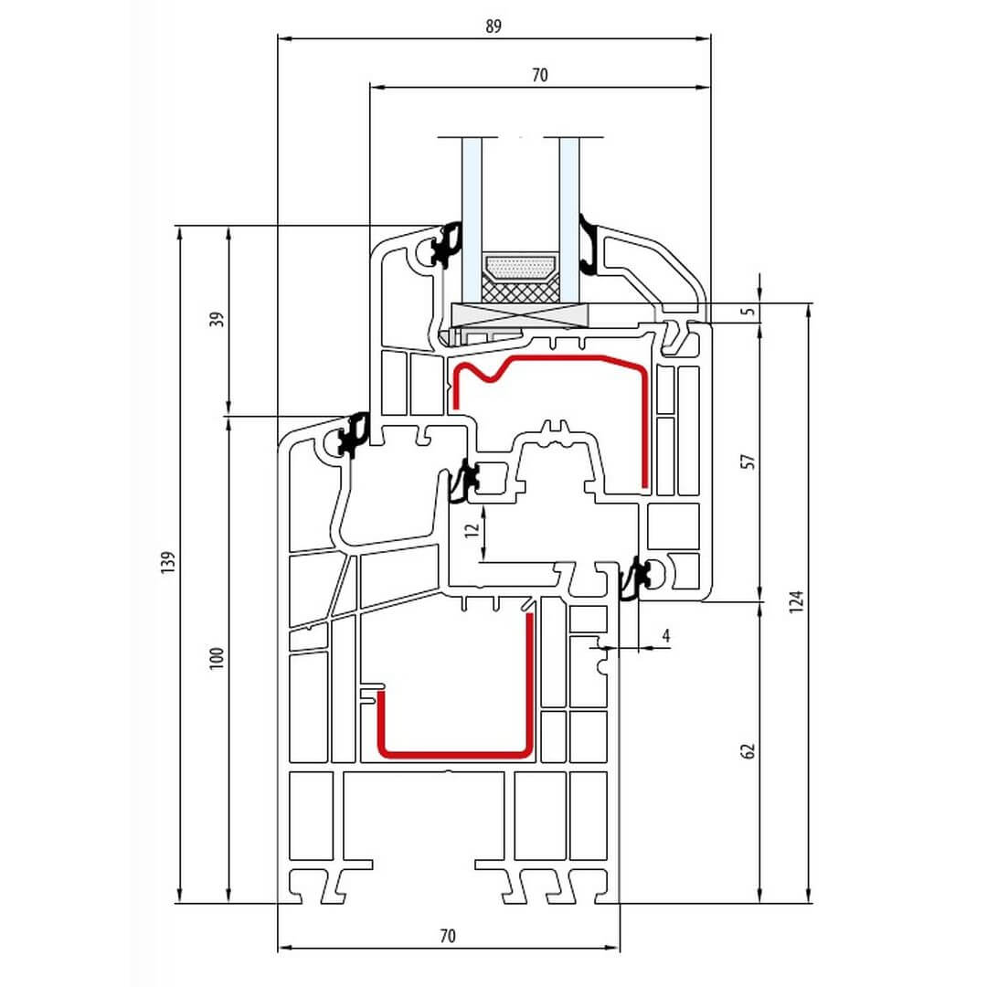
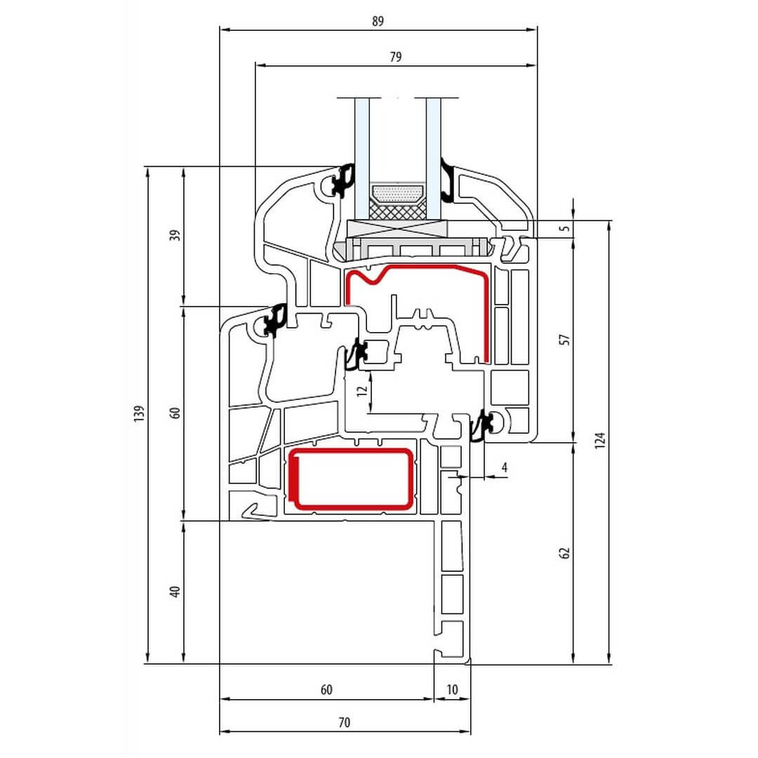
Aluplast IDEAL 5000 Fenster Classic - Line 119mm - 150x03 - 150x20

IDEAL 5000 Fenster Classic - Line 119mm - 150x03 - 150x20

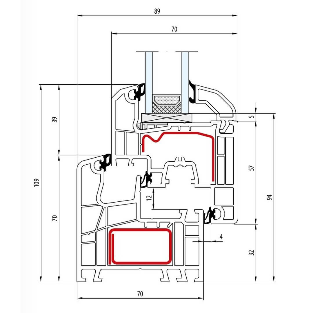
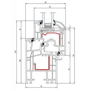
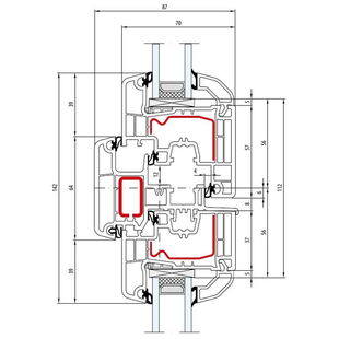
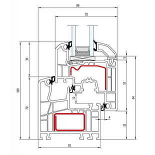
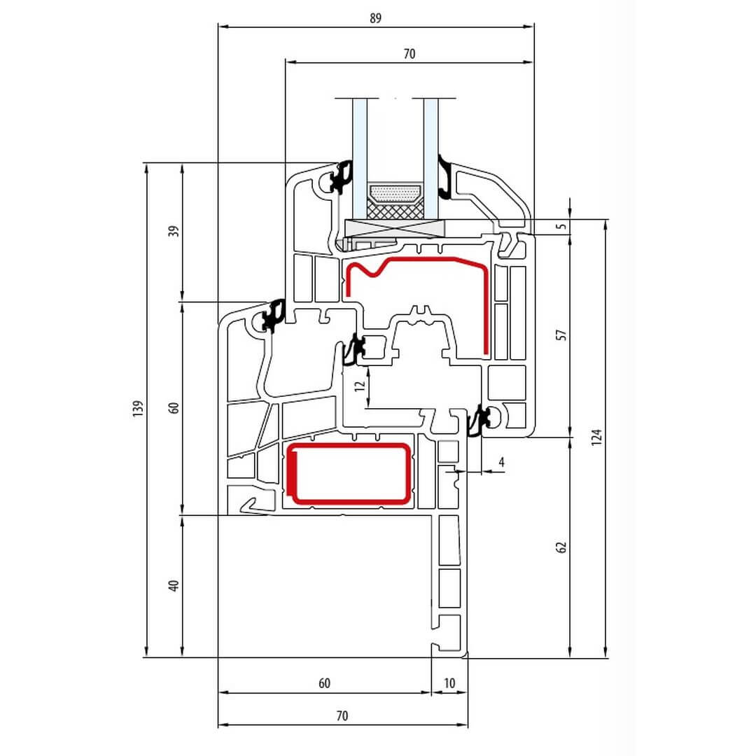
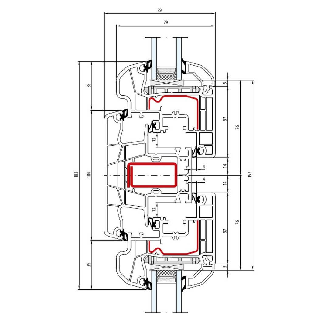
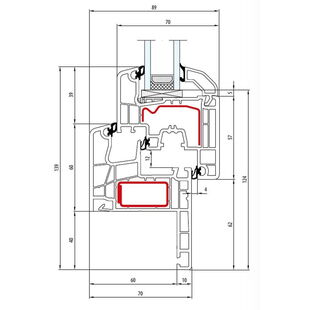
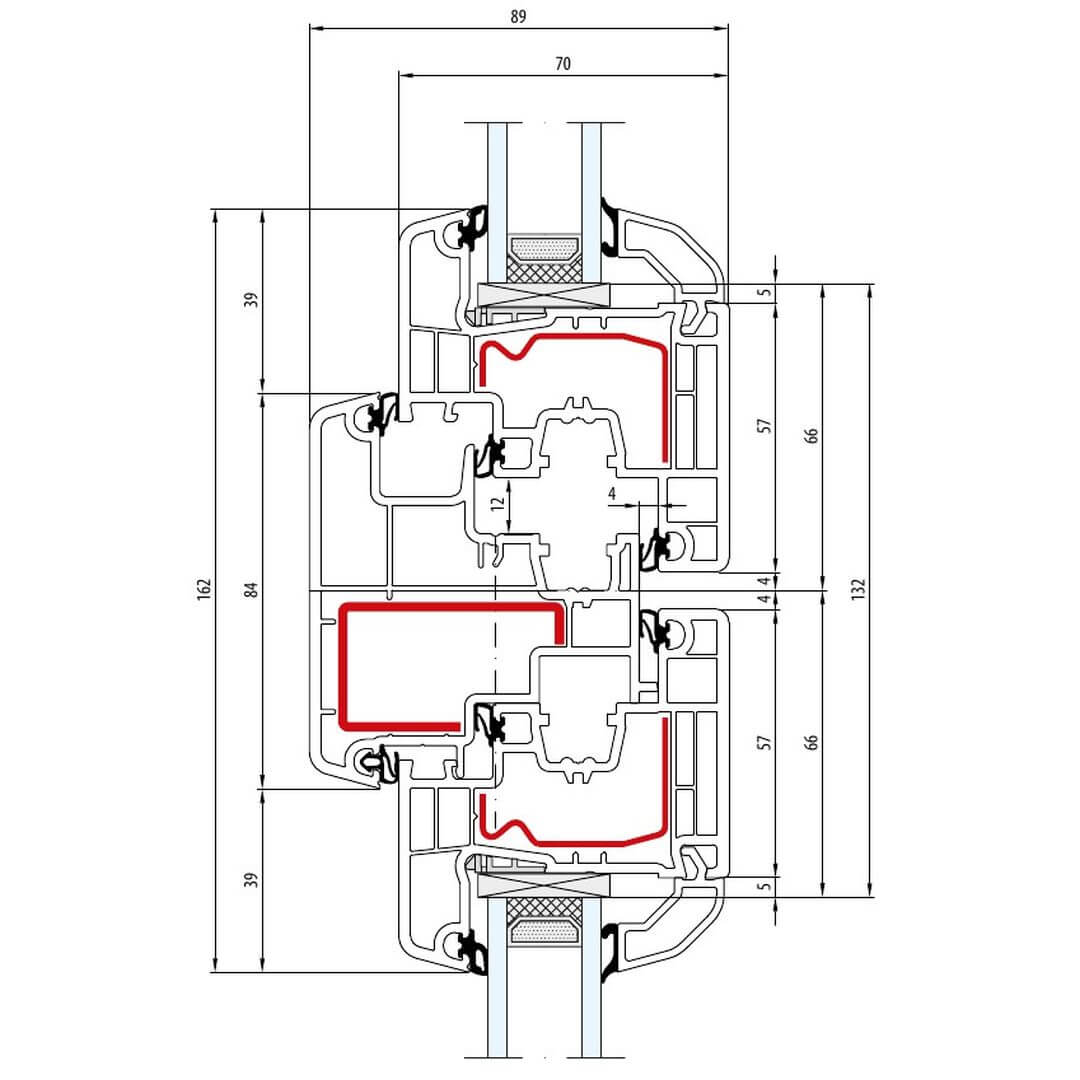
Aluplast 5000 Fenster Round - Line 119mm - 150x03 - 150x26

IDEAL 5000 Fenster Round - Line 119mm - 150x03 - 150x26

Kunststofffenster IDEAL 5000 mit Slim-Rahmen und Renovationsrahmen (150x02 und 150x04)

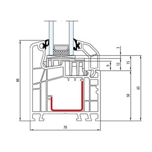
Aluplast IDEAL 5000 Festverglasung 70mm - 150x02

IDEAL 5000 Slim Festverglasung 70mm - 150x02

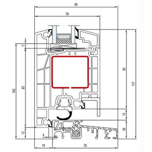
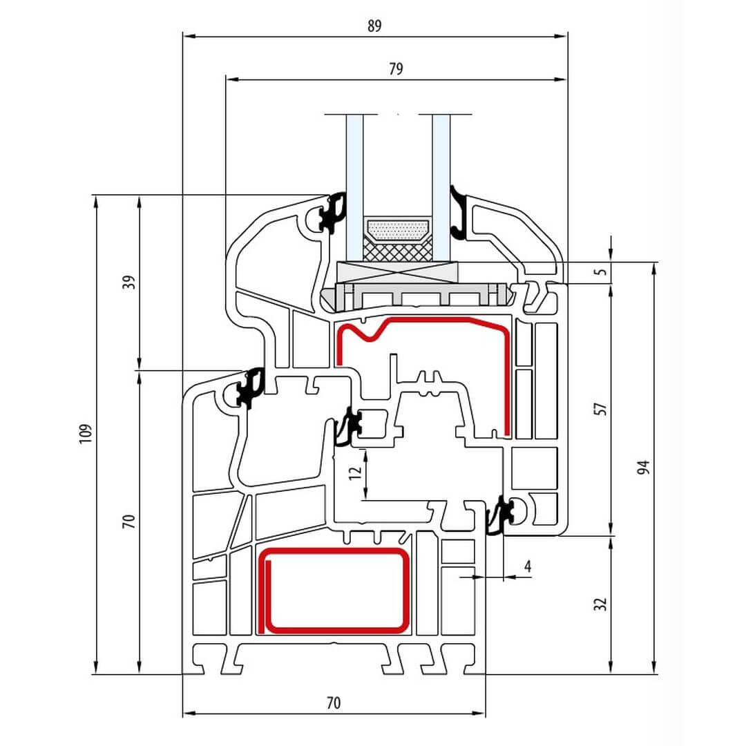
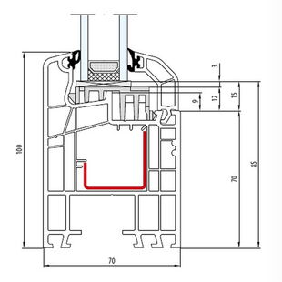
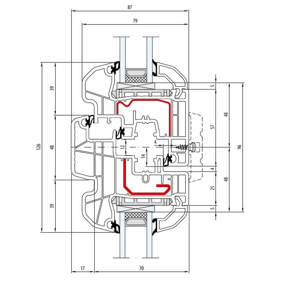
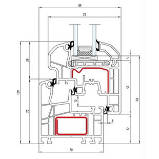
Aluplast IDEAL 5000 Fenster Soft - Line 109mm - 150x02 - 150x20

IDEAL 5000 Slim Fenster Soft - Line 109mm - 150x02 - 150x20

Aluplast IDEAL 5000 Fenster Round - Line 109mm - 150x02 - 150x26

IDEAL 5000 Slim Fenster Round - Line 109mm - 150x02 - 150x26

Aluplast IDEAL 5000 Festverglasung 100mm - 150x04

IDEAL 5000 Festverglasung 100mm - 150x04

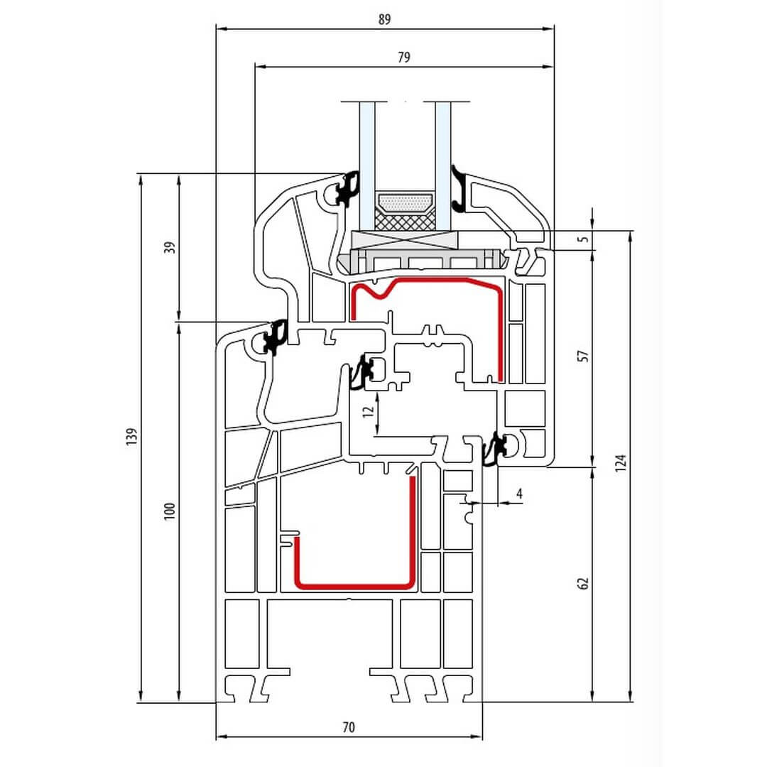
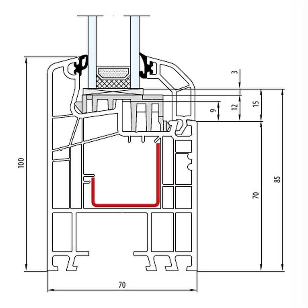
Aluplast IDEAL 5000 Fenster Classic - Line 139mm - 150x04 - 150x20

IDEAL 5000 Fenster Classic - Line 139mm - 150x04 - 150x20

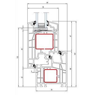
Aluplast IDEAL 5000 Fenster Round - Line 139mm - 150x04 - 150x26

IDEAL 5000 Fenster Round - Line 139mm - 150x04 - 150x26

Kunststofffenster IDEAL 5000 mit Rennovationsrahmen

Aluplast IDEAL 5000 Renovation Festverglasung Flosse 40mm - 150x11

IDEAL 5000 Renovation Festverglasung mit Flosse 40mm - 150x11

Aluplast IDEAL 5000 Renovation Fenster Classic - Line Flosse 40mm - 150x11 - 150x20

IDEAL 5000 Renovation Fenster Classic - Line Flosse 40mm - 150x11 - 150x20

Aluplast IDEAL 5000 Renovation Fenster Round - Line Flosse 40mm - 150x11 - 150x26

IDEAL 5000 Renovation Fenster Round - Line Flosse 40mm - 150x11 - 150x26

Aluplast IDEAL 5000 Renovation Festverglasung Flosse 65mm - 150x10

IDEAL 5000 Renovation Festverglasung Flosse 65mm - 150x10

Aluplast IDEAL 5000 Renovation Fenster Classic - Line Flosse 65mm - 150x10 - 150x20

IDEAL 5000 Renovation Fenster Classic - Line Flosse 65mm - 150x10 - 150x20

Aluplast IDEAL 5000 Renovation Fenster Round - Line Flosse 65mm - 150x10 - 150x26

IDEAL 5000 Renovation Fenster Round - Line Flosse 65mm - 150x10 - 150x26

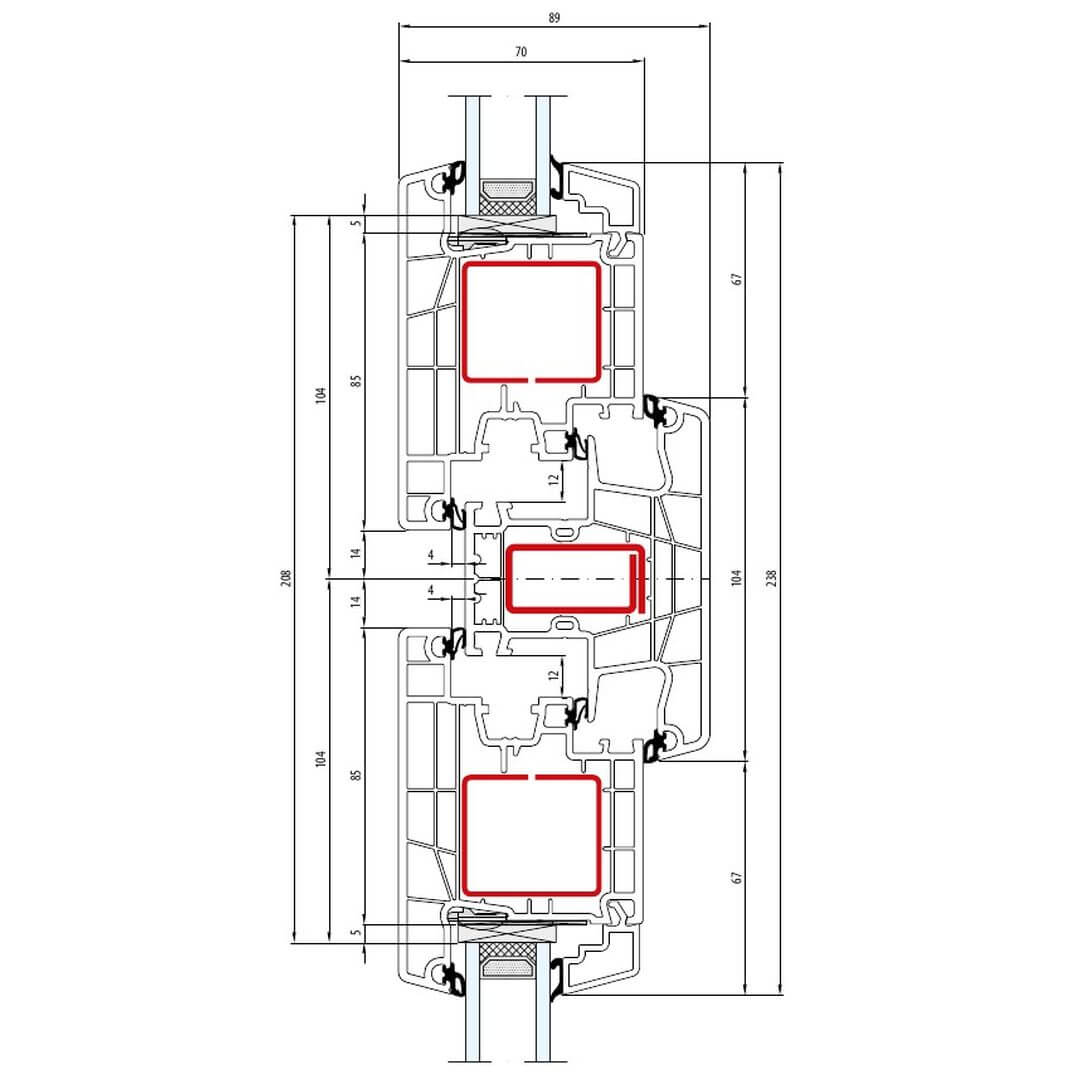
Kunststofffenster IDEAL 5000 mit Pfosten 104mm

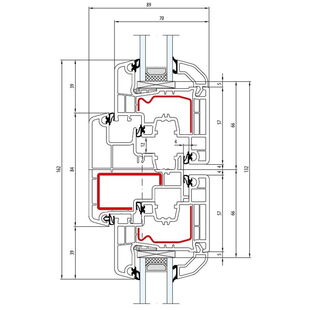
Aluplast IDEAL 5000 Pfosten 104mm Fenster Classic-Line - 150x43

IDEAL 5000 Pfosten 104mm Fenster Classic-Line - 150x43

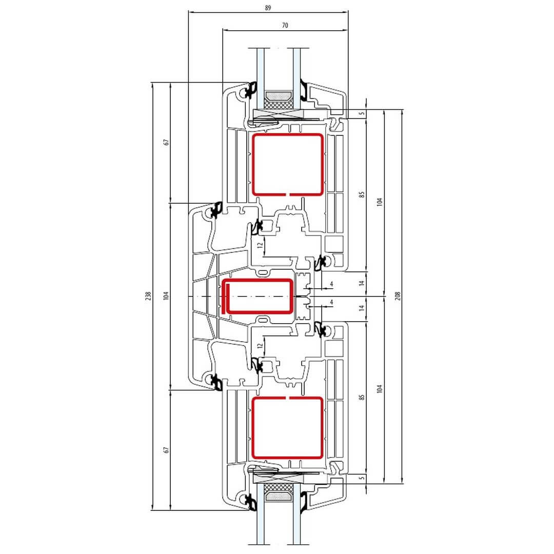
Aluplast IDEAL 5000 Pfosten 104mm Fenster Classic-Line 77mm - 150x43 - 150x20

IDEAL 5000 Pfosten 104mm Fenster Classic-Line 77mm - 150x43 - 150x20

Aluplast IDEAL 5000 Pfosten 104mm Fenster Round-Line 77mm - 150x43 - 150x26

IDEAL 5000 Pfosten 104mm Fenster Round-Line 77mm - 150x43 - 150x26

Kunststofffenster IDEAL 5000 mit Stulp 64mm

Aluplast IDEAL 5000 Stulp 64mm Fenster Classic-Line 77mm - 150x65 - 150x20

IDEAL 5000 Stulp 64mm Fenster Classic-Line 77mm - 150x65 - 150x20

Aluplast 5000 Stulp 64mm Fenster Round-Line 77mm - 150x65 - 150x26

IDEAL 5000 Stulp 64mm Fenster Round-Line 77mm - 150x65 - 150x26

Kunststofffenster IDEAL 5000 mit Stulp 84mm (Sonderkonstruktionen auf Anfrage)

Aluplast IDEAL 5000 Stulp 84mm Fenster Classic-Line 77mm - 150x67 - 150x20

IDEAL 5000 Stulp 84mm Fenster Classic-Line 77mm - 150x67 - 150x20

Aluplast IDEAL 5000 Stulp 84mm Fenster Round-Line 77mm - 150x67 - 150x26

IDEAL 5000 Stulp 84mm Fenster Round-Line 77mm - 150x67 - 150x26

Aluplast IDEAL 5000 Stulp 48mm Fenster Round-Line 77mm - 150x69 - 150x26

IDEAL 5000 Stulp 48mm Fenster Round-Line 77mm - 150x69 - 150x26

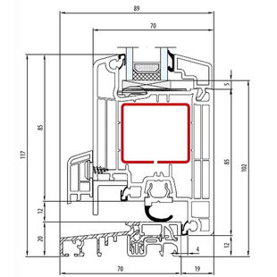
Kunststoff Balkontür IDEAL 5000

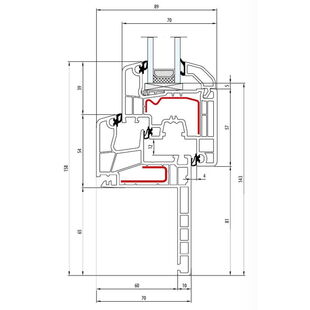
Aluplast IDEAL 5000 Balkontür Soft Line mit Blendrahmen 119mm - 150x03 - 150x20

IDEAL 5000 Balkontür Soft Line mit Blendrahmen 119mm - 150x03 - 150x20

Aluplast IDEAL 5000 20mm Balkontürschwelle Classic-Line 77mm innen öffnend - 150x20

IDEAL 5000 20mm Balkontürschwelle Classic-Line 77mm innen öffnend - 150x20

Aluplast 5000 Balkontür Round-Line mit Blendrahmen 119mm - 150x03 - 150x26

IDEAL 5000 Balkontür Round-Line mit Blendrahmen 119mm - 150x03 - 150x26

Aluplast IDEAL 5000 20mm Balkontürschwelle Round-Line 77mm innen öffnend - 150x26

IDEAL 5000 20mm Balkontürschwelle Round-Line 77mm innen öffnend - 150x26

Kunststoff IDEAL 5000 PSK Parallel-Schiebe-Kipp-Tür

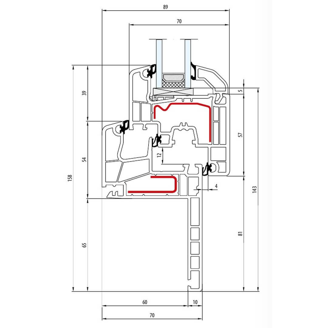
Kunststoff Haustür IDEAL 5000

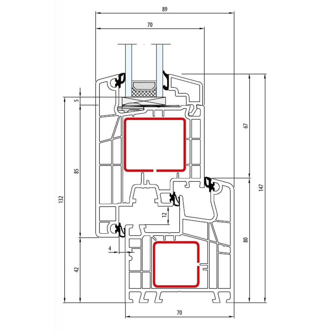
Aluplast IDEAL 5000 Tür innen öffnend Classic - Line 147mm - 150x03 - 150x30

IDEAL 5000 Tür innen öffnend 147mm - 150x03 - 150x30

Aluplast IDEAL 5000 Türschwelle 20mm innen öffnend - 150x30

IDEAL 5000 Türschwelle 20mm innen öffnend - 150x30

Aluplast IDEAL 5000 Pfosten 104mm Tür innen öffnend Classic-Line - 150x43 - 150x30

IDEAL 5000 Pfosten 104mm Tür innen öffnend - 150x43 - 150x30

Aluplast IDEAL 5000 Tür aussen öffnend Classic - Line 147mm - 150x03 - 150x31

IDEAL 5000 Tür aussen öffnend 147mm - 150x03 - 150x31

Aluplast IDEAL 5000 Türschwelle 20mm außen öffnend - 150x31

IDEAL 5000 Türschwelle 20mm außen öffnend - 150x31

Aluplast IDEAL 5000 Pfosten 104mm Tür aussen öffnend Classic-Line - 150x43 - 150x31

IDEAL 5000 Pfosten 104mm Tür aussen öffnend - 150x43 - 150x31

Türflügel IDEAL 5000 mit Stulp 64mm

Aluplast 5000 Stulp 64mm Tür innen öffnend Classic-Line - 150x65 - 150x30

IDEAL 5000 Stulp 64mm Tür innen öffnend - 150x65 - 150x30

Aluplast 5000 Stulp 64mm Tür aussen öffnend Classic-Line - 150x65 - 150x31

IDEAL Aluplast 5000 Stulp 64mm Tür aussen öffnend - 150x65 - 150x31

Zusatzprofile für aluplast IDEAL 5000 Querschnitte

Kunststoff Sprossenarten - Ideal 5000

Innenliegende SZR Sprossen / Helima Sprossen

Drutex Iglo SZR Sprosse 8mm

Innenliegende Sprosse 8mm

Drutex Iglo SZR Sprosse 18mm

Innenliegende Sprosse 18mm

Drutex Iglo SZR Sprosse 26mm

Innenliegende Sprosse 26mm

Drutex Iglo SZR Sprosse 45mm

Innenliegende Sprosse 45mm

Aufgesetzte / Aufgeklebte Sprossen

Aluplast 160376 - aufgesetzte Sprossen - 26mm

160376 - aufgesetzte Sprossen - 26mm

Aluplast 160378 - aufgesetzte Sprossen - 46mm

160378 - aufgesetzte Sprossen - 46mm

Aluplast 160479 - aufgesetzte Sprossen - 66mm

160479 - aufgesetzte Sprossen - 66mm

Glasteilende Sprossen - Kämpfer

Aluplast IDEAL 5000 Pfosten 104mm Fenster Classic-Line - 150x43

IDEAL 5000 Kämpfer-Sprosse 104mm - 150x43

Kunststoff Anschlussprofile - Ideal 5000

Kunststoff Bankanschlussprofile

Aluplast 144247 - Fensterbankanschluss - 30mm

144247 - Fensterbankanschluss - 30mm

Aluplast 120238 - Fensterbankanschluss - 50mm

120238 - Fensterbankanschluss - 50mm

Aluplast 140200 - Fensterbankanschluss - 40mm

140200 - Fensterbankanschluss - 40mm

Kunststoff Steinbankanschlussprofile

Aluplast 120206 - Steinbankanschluss - 25mm

120206 - Steinbankanschluss - 25mm

Aluplast 120208 - Steinbankanschluss - 30mm

120208 - Steinbankanschluss - 30mm

Aluplast 120209 - Steinbankanschluss - 40mm

120209 - Steinbankanschluss - 40mm

Aluplast 120210 - Steinbankanschluss - 50mm

120210 - Steinbankanschluss - 50mm

Kunststoff Anschlussprofile (bündig)

Aluplast 140277 - Bankanschlussprofil - 10mm

140277 - Bankanschlussprofil - 10mm

Aluplast 120106 - Bankanschlussprofil - 20mm

120106 - Bankanschlussprofil - 20mm

Aluplast 120236 - Bankanschlussprofil - 15mm

120236 - Bankanschlussprofil - 15mm

Aluplast 120237 - Bankanschlussprofil - 30mm

120237 - Bankanschlussprofil - 30mm

Aluplast 120102 - Bankanschlussprofil - 50mm

120102 - Bankanschlussprofil - 50mm

Kunststoff Fensterbank-Anschlussprofile

Aluplast 140229 - Fensterbank - 42,5mm - außen

140229 - Fensterbank - 42,5mm - außen

Aluplast 120190 - Fensterbank - 115,5mm - außen

120190 - Fensterbank - 115,5mm - außen

Aluplast 120246 - Fensterbank - 50mm - außen

120246 - Fensterbank - 50mm - außen

Aluplast 120248 - Fensterbank - 55mm - außen

120248 - Fensterbank - 55mm - außen

Aluplast 120249 - Fensterbank - 90mm - außen

120249 - Fensterbank - 90mm - außen

Aluplast 140238 - Fensterbank - 80mm - außen

140238 - Fensterbank - 80mm - außen

Aluplast 100220 - Fensterbank - 85mm - außen

100220 - Fensterbank - 85mm - außen

Aluplast 120108 - Fensterbank - 115mm - außen

120108 - Fensterbank - 115mm - außen

600020, 600220, 650921, 620249 - Fensterbank - Endkappe

600020, 600220, 650921, 620249 - Fensterbank - Endkappe

Kunststoff Zargenprofile

Aluplast 120196 - Zarge - 40mm - 102mm

120196 - Zarge - 40mm - 102mm

Aluplast 120270 - Zarge - 40mm - 82mm

120270 - Zarge - 40mm - 82mm

Aluplast 120195 - Zarge - 40mm - 62mm

120195 - Zarge - 40mm - 62mm

Aluplast 120194 - Zarge - 40mm - 42mm

120194 - Zarge - 40mm - 42mm

Aluplast 120193 - Zarge - 40mm - 22mm

120193 - Zarge - 40mm - 22mm

Kunststoff Rahmenverbreiterung - Ideal 5000

Aluplast 140227 - Rahmenverbreiterung - 2mm

140227 - Rahmenverbreiterung - 2mm

Aluplast 140209 - Rahmenverbreiterung - 15mm

140209 - Rahmenverbreiterung - 15mm

Aluplast 140205 - Rahmenverbreiterung - 35mm

140205 - Rahmenverbreiterung - 35mm

Aluplast 140207 - Rahmenverbreiterung - 60mm

140207 - Rahmenverbreiterung - 60mm

Aluplast 140208 - Rahmenverbreiterung - 100mm

140208 - Rahmenverbreiterung - 100mm

Kunststoff Kopplungen - Ideal 5000

Aluplast 120116 - Federkopplung

120116 - Federkopplung

Aluplast 120224 - H - Kopplung - universal

120224 - H - Kopplung - universal

Aluplast 140203 - H - Kopplung

140203 - H - Kopplung

Aluplast 140267 - H - Federkopplung - optional - Stahl

140267 - H - Kopplung - optional - Stahl

Aluplast 120219 - Statikkopplung - 9mm

120219 - Statikkopplung - 9mm

Aluplast 140218 - Statikkopplung - 21mm

140218 - Statikkopplung - 21mm

Aluplast 120109 - Statikprofil

120109 - Statikprofil

Kopplung von Eck-Elementen - 90° und Variabel

Aluplast 140243 -140244 - Eckkopplung - variabel

140243 -140244 - Eckkopplung - variabel

Aluplast 140248 - Eckkopplung - 90 Grad

140248 - Eckkopplung - 90 Grad

Aluplast 140249 - Eckkopplung - 135 Grad

140249 - Eckkopplung - 135 Grad

Kunststoff Abdeckleisten - Ideal 5000

Aluplast Flachleisten aus Kunststoff Auswahl 65025100, 6465050, 65025080, 65025070, 65025050, 65025040, 65025030

65025100, 6465050, 65025080, 65025070, 65025050, 65025040, 65025030 - Flachleiste aus Kunststoff Auswahl

Aluplast Flachleisten mit Dichtlippe 120120, 120283

120120, 120283 - Flachleiste mit Dichtlippe Auswahl

Aluplast Deckleisten mit Hohlkammerprofil Auswahl

Hohlkammerprofil Deckleiste Auswahl

Winkelprofile aus Kunststoff 73100060, 73080050, 73060040, 73020020

73100060, 73080050, 73060040, 73020020 - Winkelprofil aus Kunststoff

Aluplast Winkelprofile aus Kunststoff 120292, 120291

120292, 120291 - Winkelprofil aus Kunststoff

Aluplast Hohlkammer Winkelprofil aus Kunststoff 120299, 120297, 120289, 120284

120299, 120297, 120289, 120284 - Hohlkammer Winkelprofil aus Kunststoff

Kunststoff Weitere Profile - Ideal 5000

Aluplast 140276

140276 - Distanzprofil 40mm

Aluplast 140275

140275 - Distanzprofil 22mm

Aluplast 140107

140107 - Wetterschenkel

Aluplast kozijnen en deuren op maat

Configureer en bestel eenvoudig en comfortabel Aluplast ramen en deuren online bij kozijnenblik.nl

Das könnte Sie auch interessieren:

Kunststofffenster IDEAL 7000

Detailzeichnungen Kunststofffenster IDEAL 7000

Kunststofffenster IDEAL 7000 besitzen eine Bautiefe (Rahmen) von 85mm.

Detailzeichnungen IDEAL 7000

Kunststofffenster IDEAL 8000

Detailzeichnungen Kunststofffenster IDEAL 8000

Kunststofffenster IDEAL 8000 besitzen eine Bautiefe (Rahmen) von 85mm.

Detailzeichnungen IDEAL 8000