Detailzeichnungen Aluplast IDEAL 8000

Kunststofffensterprofil IDEAL 8000 Querschnitte

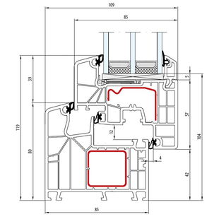
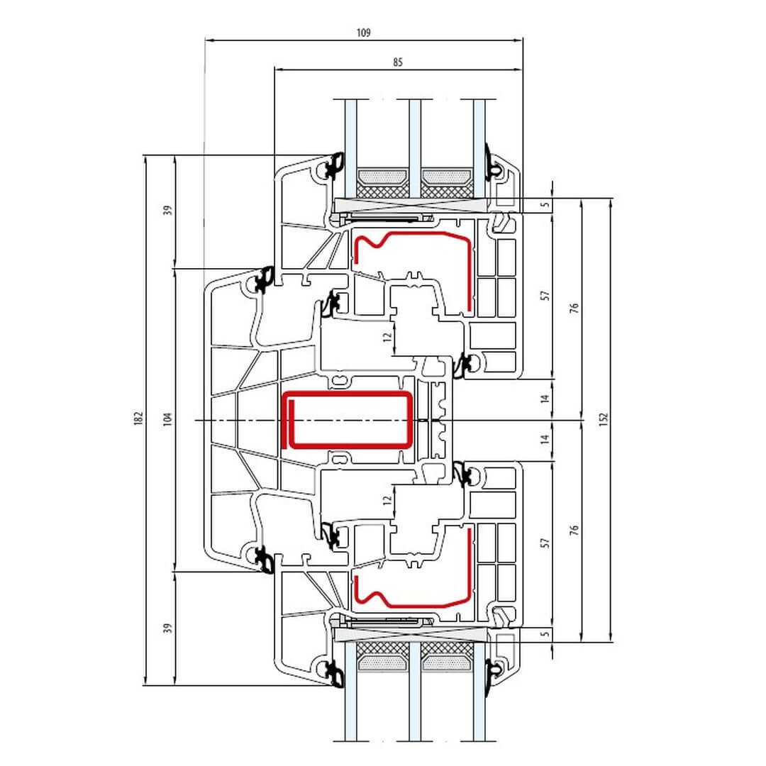
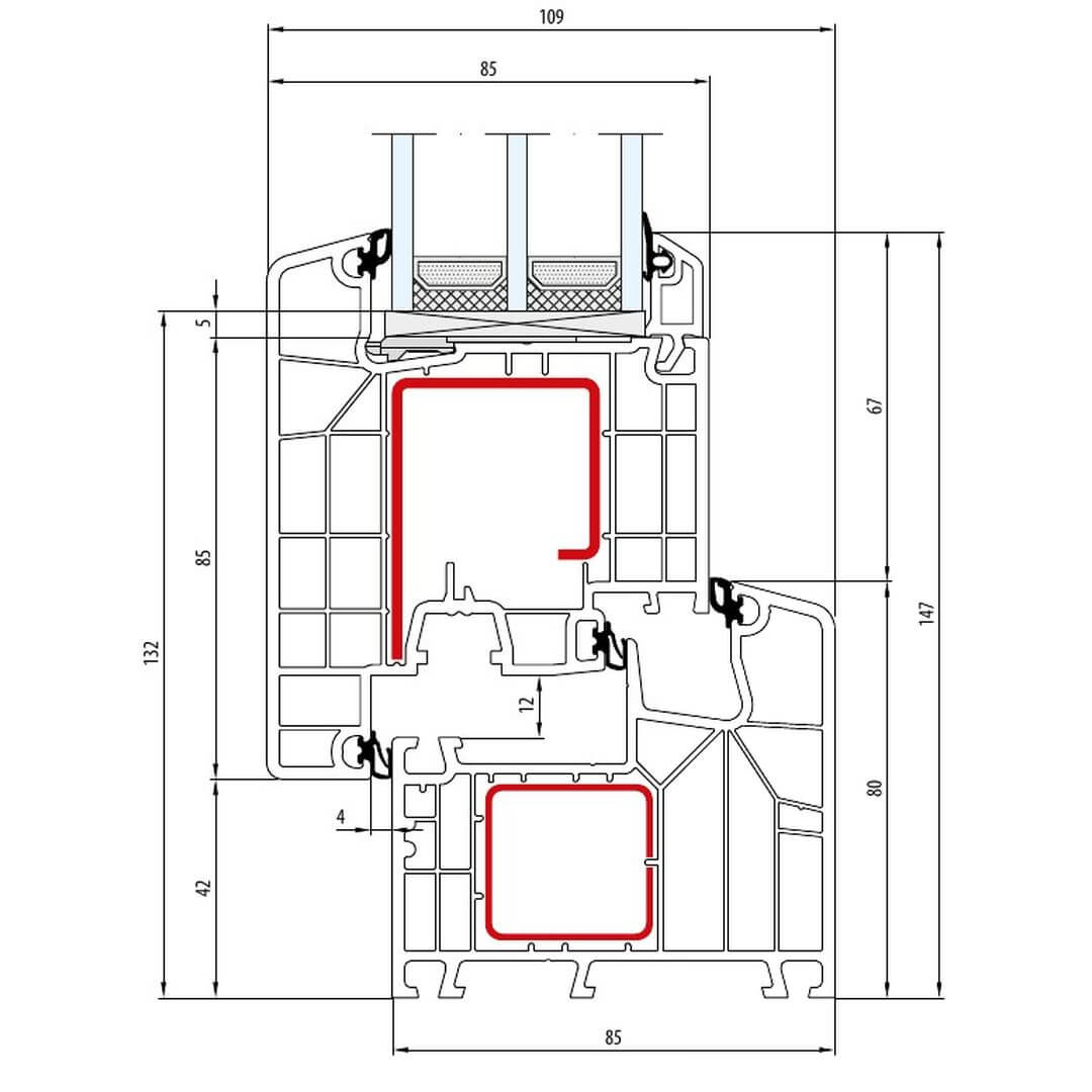
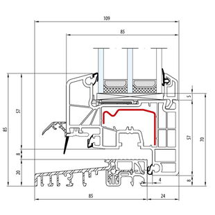
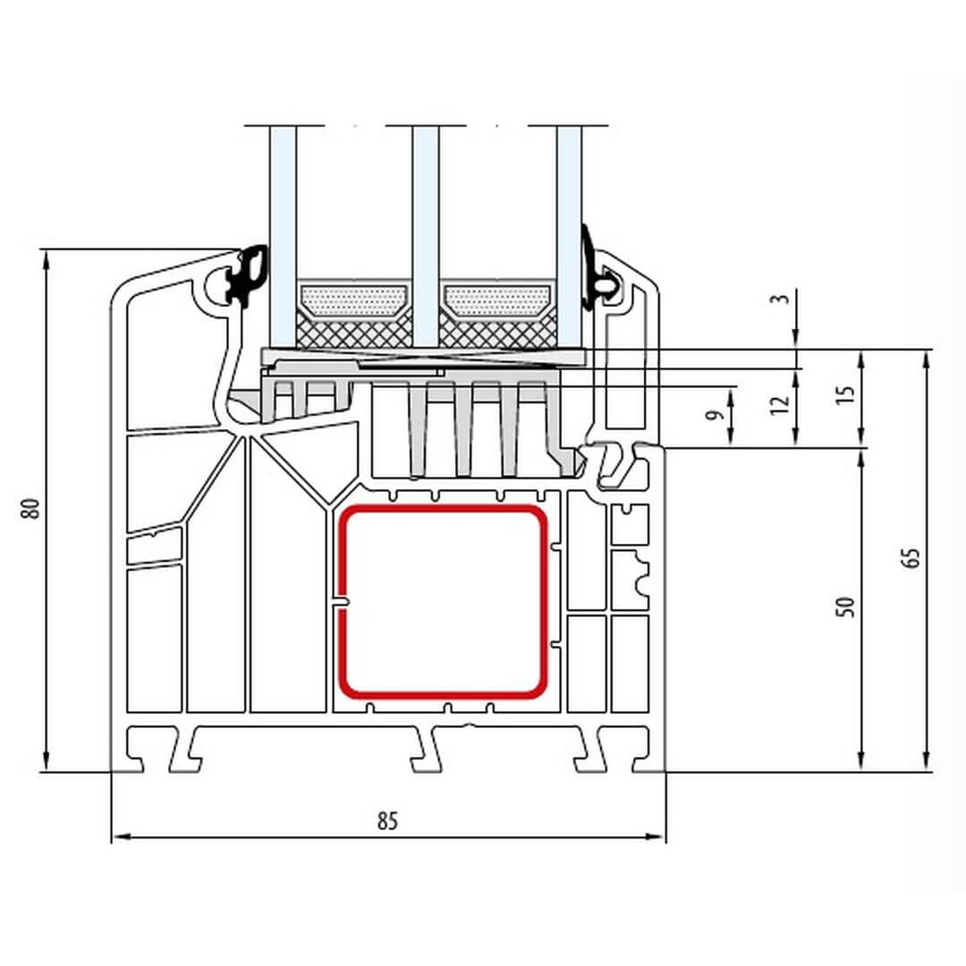
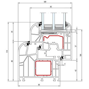
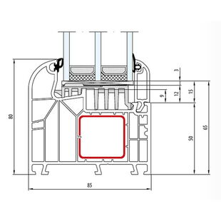
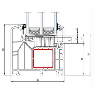
Aluplast IDEAL 8000 Festverglasung 80mm - 180x05

IDEAL 8000 Festverglasung 80mm - 180x05

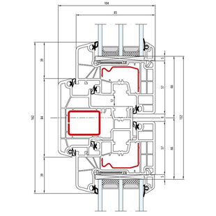
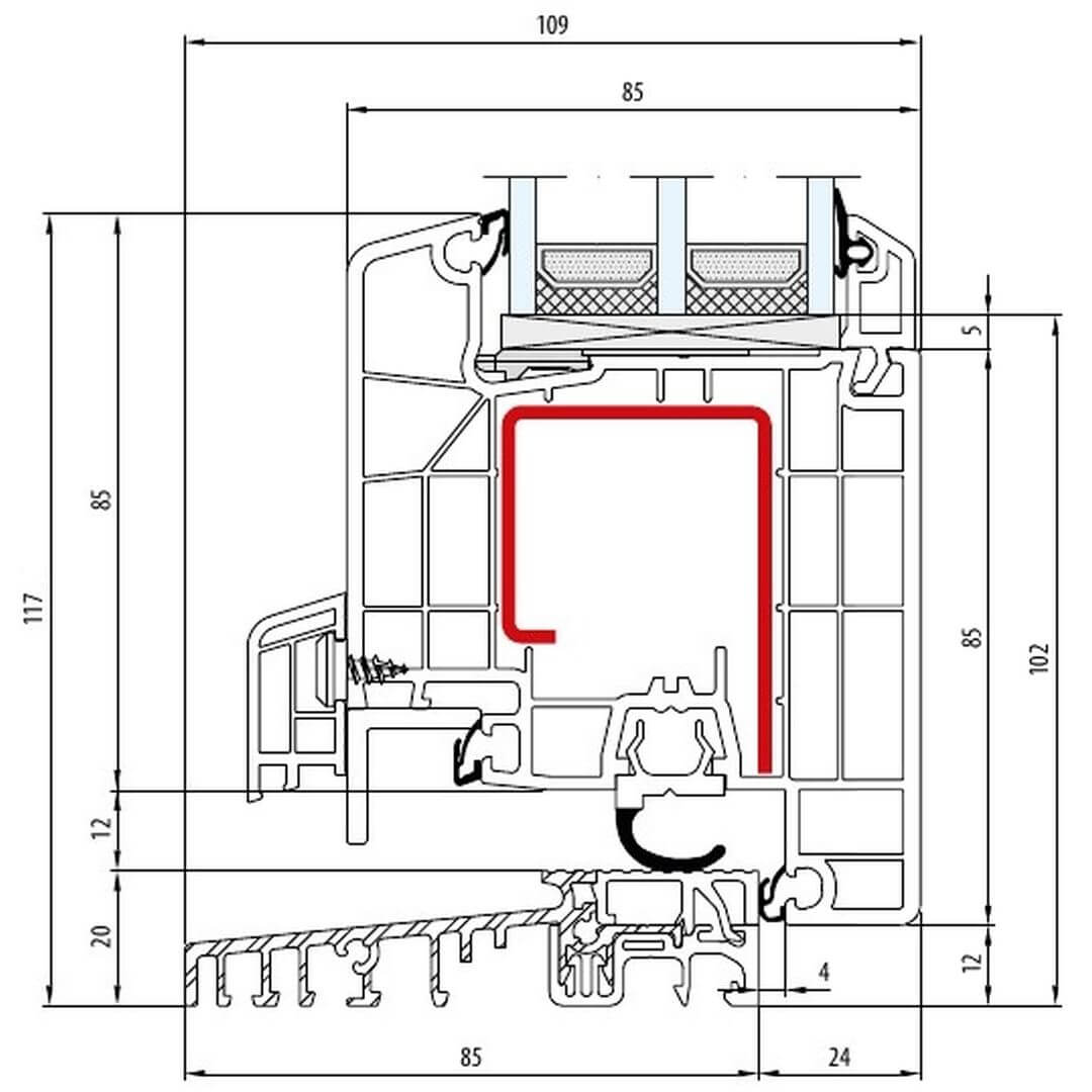
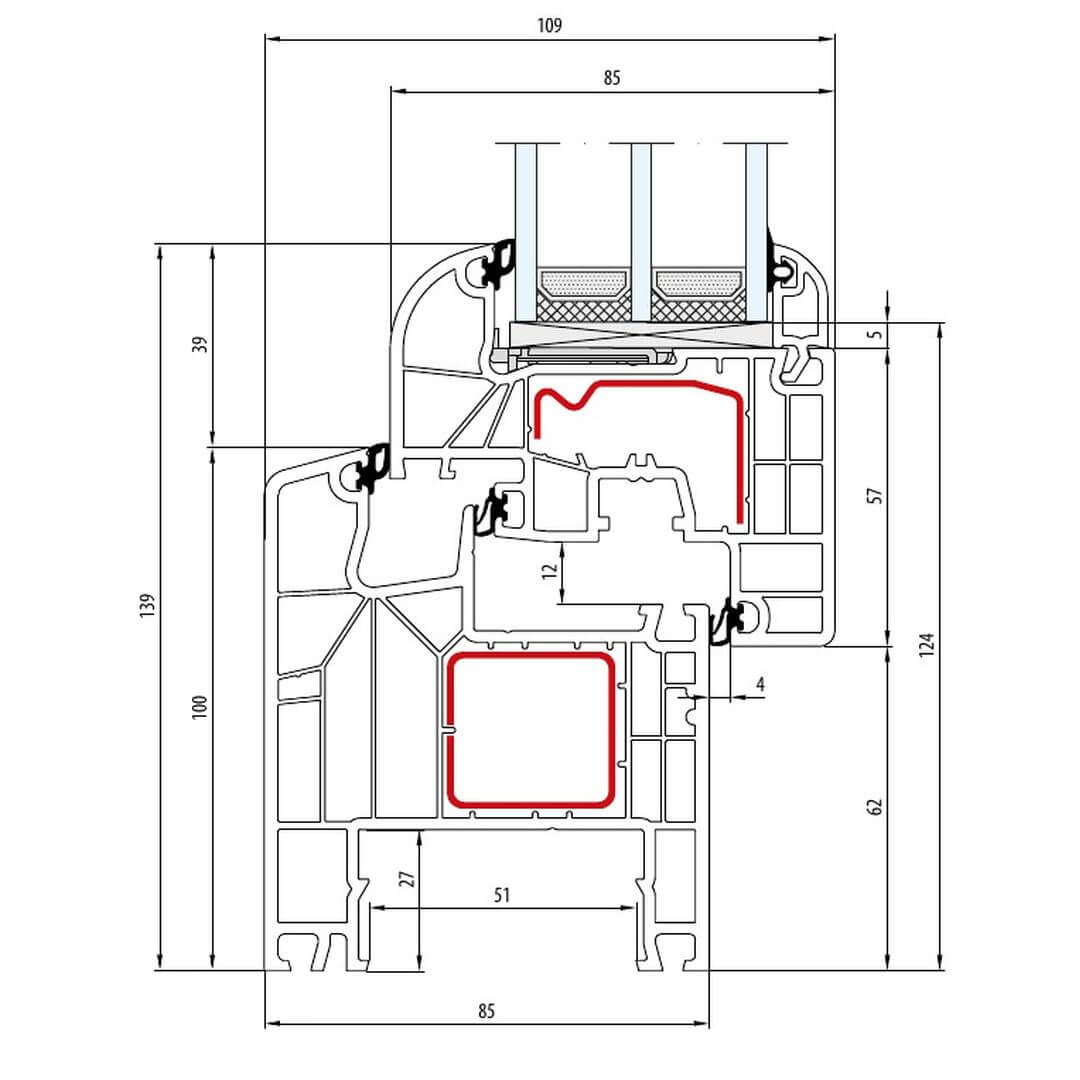
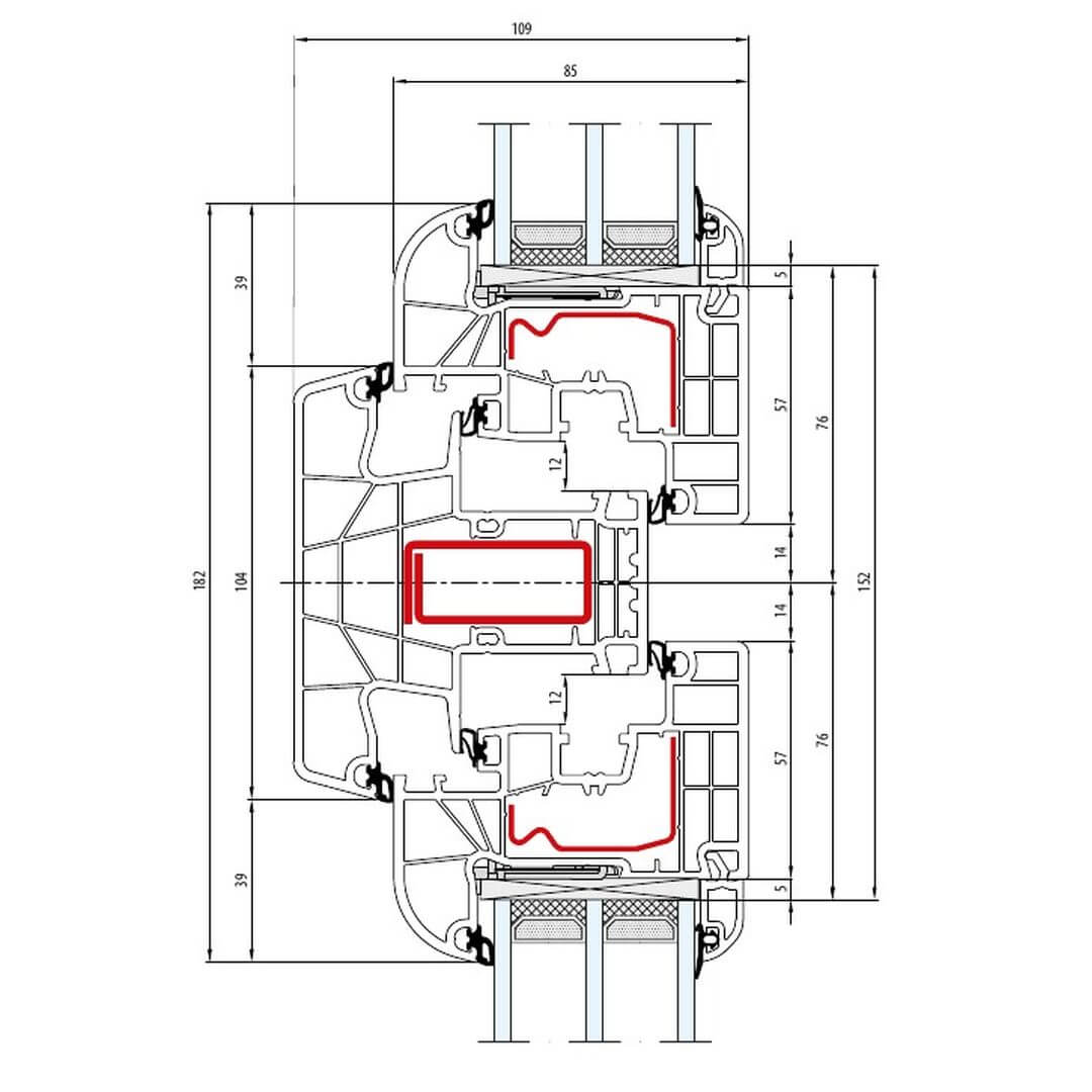
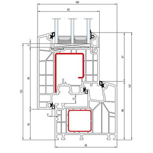
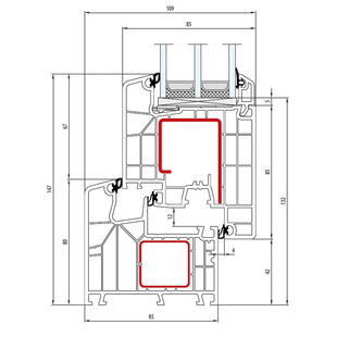
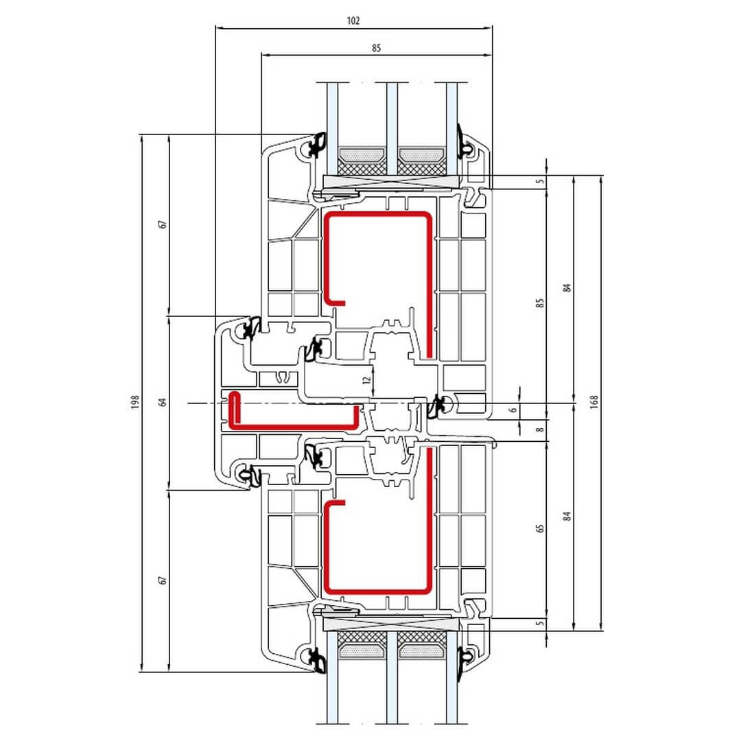
Aluplast IDEAL 8000 Fenster Classic-Line 119mm - 180x05 - 180x20

IDEAL 8000 Fenster Classic-Line 119mm - 180x05 - 180x20

Aluplast IDEAL 8000 Festverglasung Round-Line 80mm - 180x03

IDEAL 8000 Festverglasung Round-Line 80mm - 180x03

Aluplast IDEAL 8000 Fenster Round-Line 119mm - 180x03 - 180x22

IDEAL 8000 Fenster Round-Line 119mm - 180x03 - 180x22

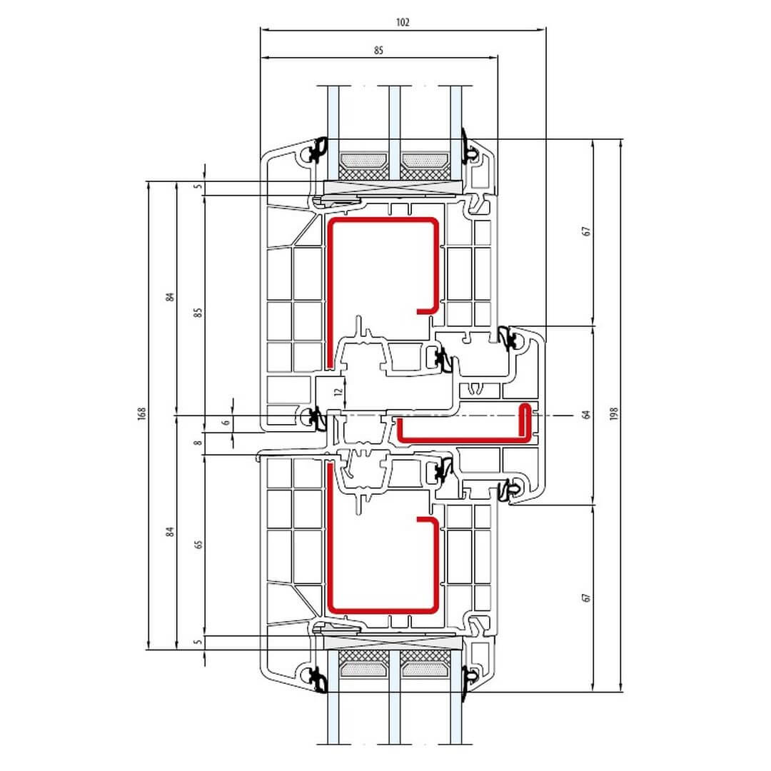
Kunststofffenster IDEAL 8000 mit Türrahmen (180x04)

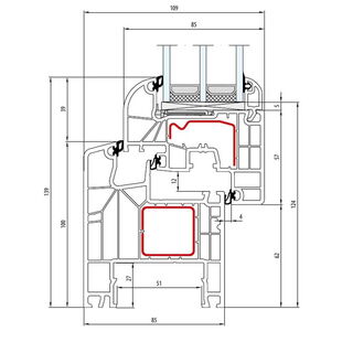
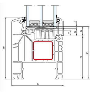
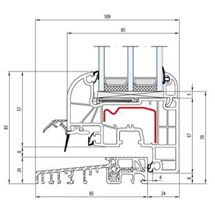
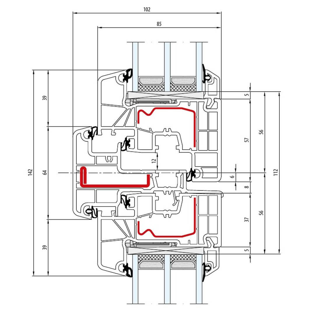
Aluplast IDEAL 8000 Festverglasung 100mm - 180x04

IDEAL 8000 Festverglasung 100mm - 180x04

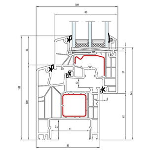
Aluplast IDEAL 8000 Fenster Classic-Line 139mm - 180x04 - 180x20

IDEAL 8000 Fenster Classic-Line 139mm - 180x04 - 180x20

Aluplast IDEAL 8000 Fenster Round-Line 139mm - 180x04 - 180x22

IDEAL 8000 Fenster Round-Line 139mm - 180x04 - 180x22

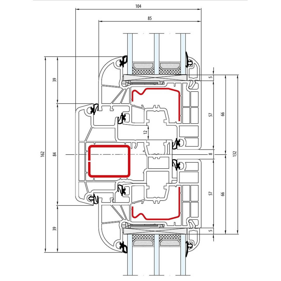
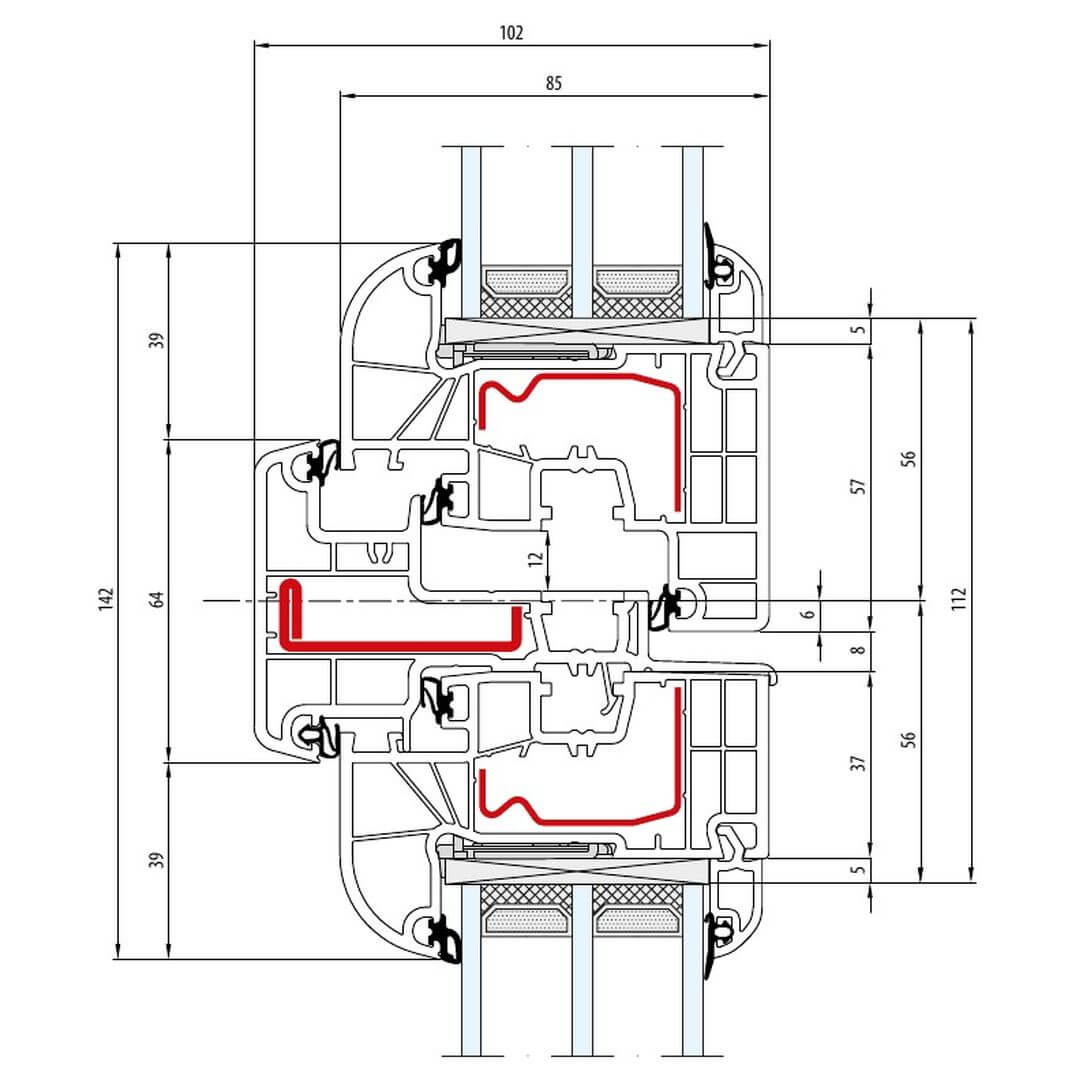
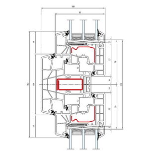
Kunststofffenster IDEAL 8000 mit Pfosten 104mm

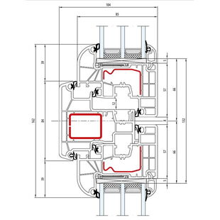
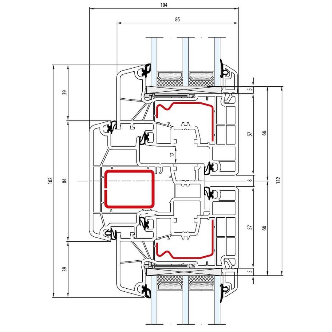
Aluplast IDEAL 8000 Pfosten 104mm - 180x44

IDEAL 8000 Pfosten 104mm - 180x44

Aluplast IDEAL 8000 Pfosten 104mm Fenster Classic-Line 77mm - 180x44 - 180x20

IDEAL 8000 Pfosten 104mm Fenster Classic-Line 77mm - 180x44 - 180x20

Aluplast IDEAL 8000 Pfosten 104mm Fenster Round-Line 77mm - 180x44 - 180x22

IDEAL 8000 Pfosten 104mm Fenster Round-Line 77mm - 180x44 - 180x22

Kunststofffenster IDEAL 8000 mit Stulp 64mm

Aluplast IDEAL 8000 Stulp 64mm Fenster Classic-Line 77mm - 180x64 - 180x20

IDEAL 8000 Stulp 64mm Fenster Classic-Line 77mm - 180x64 - 180x20

Aluplast IDEAL 8000 Stulp 64mm Fenster Round-Line 77mm - 180x64 - 180x22

IDEAL 8000 Stulp 64mm Fenster Round-Line 77mm - 180x64 - 180x22

Kunststofffenster IDEAL 8000 mit Stulp 84mm (Sonderkonstruktionen auf Anfrage)

Aluplast IDEAL 8000 Stulp 84mm Fenster Classic-Line 77mm - 180x66 - 180x20

IDEAL 8000 Stulp 84mm Fenster Classic-Line 77mm - 180x66 - 180x20

Aluplast IDEAL 8000 Stulp 84mm Fenster Round-Line 77mm - 180x66 - 180x22

IDEAL 8000 Stulp 84mm Fenster Round-Line 77mm - 180x66 - 180x22

Kunststoff Balkontür IDEAL 8000

Aluplast IDEAL 8000 Fenster Classic-Line 119mm - 180x05 - 180x20

IDEAL 8000 Balkontür Classic-Line mit Blendrahmen 119mm - 180x05 - 180x20

Aluplast IDEAL 8000 Schwelle 20mm Balkontür Classic-Line 77mm - 180x20

IDEAL 8000 Balkontürschwelle 20mm Classic-Line 77mm - 180x20

Aluplast IDEAL 8000 Fenster Round-Line 119mm - 180x03 - 180x22

IDEAL 8000 Balkontür Round-Line mit Blendrahmen 119mm - 180x03 - 180x22

Aluplast IDEAL 8000 Schwelle 20mm Balkontür Round-Line 77mm - 180x22

IDEAL 8000 Balkontürschwelle 20mm Round-Line 77mm - 180x22

Kunststoff IDEAL 8000 PSK Parallel-Schiebe-Kipp-Tür

Kunststoff Haustür IDEAL 8000

Aluplast IDEAL 8000 Tür innen öffnend Classic-Line 147mm - 180x05 - 180x30

IDEAL 8000 Tür innen öffnend 147mm - 180x05 - 180x30

Aluplast IDEAL 8000 Türschwelle 20mm innen öffnend Classic-Line 105mm - 180x30

IDEAL 8000 Türschwelle 20mm innen öffnend- 180x30

Aluplast IDEAL 8000 Stulp 64mm Tür innen öffnend Classic-Line - 180x64 - 180x30

IDEAL 8000 Stulp 64mm Tür innen öffnend - 180x64 - 180x30

Aluplast IDEAL 8000 Tür außen öffnend Classic-Line 147mm - 180x05 - 180x31

IDEAL 8000 Tür außen öffnend 147mm - 180x05 - 180x31

Aluplast IDEAL 8000 Türschwelle 20mm aussen öffnend Classic-Line 105mm- 180x31

IDEAL 8000 Türschwelle 20mm außen öffnend- 180x31

Aluplast IDEAL 8000 Stulp 64mm Tür außen öffnend Classic-Line - 180x64 - 180x31

IDEAL 8000 Stulp 64mm Tür außen öffnend - 180x64 - 180x31

Zusatzprofile für aluplast IDEAL 8000 Querschnitte

Kunststoff Sprossenarten - Ideal 8000

Innenliegende SZR Sprossen / Helima Sprossen

Drutex Iglo SZR Sprosse 8mm

Innenliegende Sprosse 8mm

Drutex Iglo SZR Sprosse 18mm

Innenliegende Sprosse 18mm

Drutex Iglo SZR Sprosse 26mm

Innenliegende Sprosse 26mm

Drutex Iglo SZR Sprosse 45mm

Innenliegende Sprosse 45mm

Aufgesetzte / Aufgeklebte Sprossen

Aluplast 160376 - aufgesetzte Sprossen - 26mm

160376 - aufgesetzte Sprossen - 26mm

Aluplast 160378 - aufgesetzte Sprossen - 46mm

160378 - aufgesetzte Sprossen - 46mm

Aluplast 160479 - aufgesetzte Sprossen - 66mm

160479 - aufgesetzte Sprossen - 66mm

Glasteilende Sprossen - Kämpfer

Aluplast IDEAL 8000 Pfosten 104mm - 180x44

IDEAL 8000 Kämpfer-Sprosse 104mm - 180x44

Kunststoff Anschlussprofile - Ideal 8000

Kunststoff Bankanschlussprofile

Aluplast 144247 - Fensterbankanschluss - 30mm

144247 - Fensterbankanschluss - 30mm

Aluplast 120238 - Fensterbankanschluss - 50mm

120238 - Fensterbankanschluss - 50mm

Kunststoff Steinbankanschlussprofile

Aluplast 120206 - Steinbankanschluss - 25mm

120206 - Steinbankanschluss - 25mm

Aluplast 120208 - Steinbankanschluss - 30mm

120208 - Steinbankanschluss - 30mm

Aluplast 120209 - Steinbankanschluss - 40mm

120209 - Steinbankanschluss - 40mm

Aluplast 120210 - Steinbankanschluss - 50mm

120210 - Steinbankanschluss - 50mm

Kunststoff Anschlussprofile (bündig)

Aluplast 140277 - Bankanschlussprofil - 10mm

140277 - Bankanschlussprofil - 10mm

Aluplast 120106 - Bankanschlussprofil - 20mm

120106 - Bankanschlussprofil - 20mm

Aluplast 120236 - Bankanschlussprofil - 15mm

120236 - Bankanschlussprofil - 15mm

Aluplast 120237 - Bankanschlussprofil - 30mm

120237 - Bankanschlussprofil - 30mm

Aluplast 120102 - Bankanschlussprofil - 50mm

120102 - Bankanschlussprofil - 50mm

Kunststoff Fensterbank-Anschlussprofile

Aluplast 140229 - Fensterbank - 42,5mm - außen

140229 - Fensterbank - 42,5mm - außen

Aluplast 120190 - Fensterbank - 115,5mm - außen

120190 - Fensterbank - 115,5mm - außen

Aluplast 120246 - Fensterbank - 50mm - außen

120246 - Fensterbank - 50mm - außen

Aluplast 120248 - Fensterbank - 55mm - außen

120248 - Fensterbank - 55mm - außen

Aluplast 120249 - Fensterbank - 90mm - außen

120249 - Fensterbank - 90mm - außen

Aluplast 140238 - Fensterbank - 80mm - außen

140238 - Fensterbank - 80mm - außen

Aluplast 100220 - Fensterbank - 85mm - außen

100220 - Fensterbank - 85mm - außen

Aluplast 120108 - Fensterbank - 115mm - außen

120108 - Fensterbank - 115mm - außen

600020, 600220, 650921, 620249 - Fensterbank - Endkappe

600020, 600220, 650921, 620249 - Fensterbank - Endkappe

Kunststoff Zargenprofile

Aluplast 120196 - Zarge - 40mm - 102mm

120196 - Zarge - 40mm - 102mm

Aluplast 120270 - Zarge - 40mm - 82mm

120270 - Zarge - 40mm - 82mm

Aluplast 120195 - Zarge - 40mm - 62mm

120195 - Zarge - 40mm - 62mm

Aluplast 120194 - Zarge - 40mm - 42mm

120194 - Zarge - 40mm - 42mm

Aluplast 120193 - Zarge - 40mm - 22mm

120193 - Zarge - 40mm - 22mm

Kunststoff Rahmenverbreiterung - Ideal 8000

Aluplast 180227 - Rahmenverbreiterung - 2mm

180227 - Rahmenverbreiterung - 2mm

Aluplast 180209 - Rahmenverbreiterung - 15mm

180209 - Rahmenverbreiterung - 15mm

Aluplast 180201 - Rahmenverbreiterung - 35mm

180201 - Rahmenverbreiterung - 35mm

Aluplast 180203 - Rahmenverbreiterung - 60mm

180203 - Rahmenverbreiterung - 60mm

Aluplast 180204 - Rahmenverbreiterung - 100mm

180204 - Rahmenverbreiterung - 100mm

Kunststoff Kopplungen - Ideal 8000

Aluplast 120116 - Federkopplung

120116 - Federkopplung

Aluplast 120224 - H - Kopplung - universal

120224 - H - Kopplung - universal

Aluplast 180267 - H - Federkopplung - optional - Stahl

180267 - H - Kopplung - optional - Stahl

Aluplast 120219 - Statikkopplung - 9mm

120219 - Statikkopplung - 9mm

Aluplast 180218 - Statikkopplung - 21mm

180218 - Statikkopplung - 21mm

Aluplast 120109 - Statikprofil

120109 - Statikprofil

Kopplung von Eck-Elementen - 90° und Variabel

Aluplast 140243 -140244 - Eckkopplung - variabel

140243 -140244 - Eckkopplung - variabel

Aluplast 140248 - Eckkopplung - 90 Grad

140248 - Eckkopplung - 90 Grad

Aluplast 140249 - Eckkopplung - 135 Grad

140249 - Eckkopplung - 135 Grad

Kunststoff Abdeckleisten - Ideal 8000

Aluplast Flachleisten aus Kunststoff Auswahl 65025100, 6465050, 65025080, 65025070, 65025050, 65025040, 65025030

65025100, 6465050, 65025080, 65025070, 65025050, 65025040, 65025030 - Flachleiste aus Kunststoff Auswahl

Aluplast Flachleisten mit Dichtlippe 120120, 120283

120120, 120283 - Flachleiste mit Dichtlippe Auswahl

Aluplast Deckleisten mit Hohlkammerprofil Auswahl

Hohlkammerprofil Deckleiste Auswahl

Winkelprofile aus Kunststoff 73100060, 73080050, 73060040, 73020020

73100060, 73080050, 73060040, 73020020 - Winkelprofil aus Kunststoff

Aluplast Winkelprofile aus Kunststoff 120292, 120291

120292, 120291 - Winkelprofil aus Kunststoff

Aluplast Hohlkammer Winkelprofil aus Kunststoff 120299, 120297, 120289, 120284

120299, 120297, 120289, 120284 - Hohlkammer Winkelprofil aus Kunststoff

Kunststoff Weitere Profile - Ideal 8000

Aluplast 140276

140276 - Distanzprofil 40mm

Aluplast 140275

140275 - Distanzprofil 22mm

Aluplast 140107

140107 - Wetterschenkel

Aluplast kozijnen en deuren op maat

Configureer en bestel eenvoudig en comfortabel Aluplast ramen en deuren online bij kozijnenblik.nl

Das könnte Sie auch interessieren:

Kunststofffenster IDEAL Neo

Detailzeichnungen Kunststofffenster IDEAL Neo

Kunststofffenster IDEAL Neo besitzen eine Bautiefe (Rahmen) von 76mm.

Detailzeichnungen IDEAL Neo

Kunststofffenster energeto 8000

Detailzeichnungen Kunststofffenster energeto 8000

Kunststofffenster energeto 8000 besitzen eine Bautiefe (Rahmen) von 85mm.

Detailzeichnungen energeto 8000