Detailzeichnungen Aluplast IDEAL Neo

Kunststofffensterprofil IDEAL Neo Querschnitte

Kunststofffenster IDEAL Neo AD (Anschlagsdichtung) mit Rahmen (160x03)

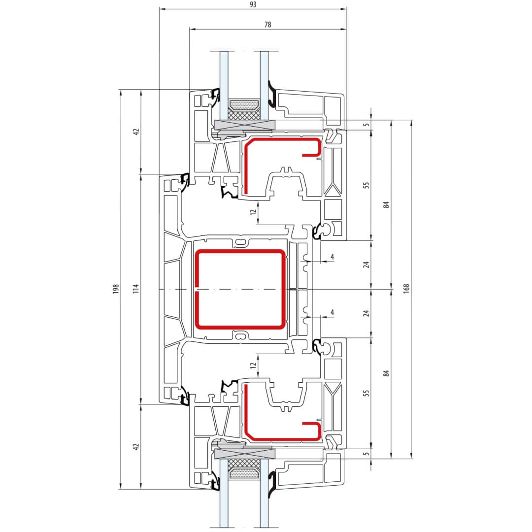
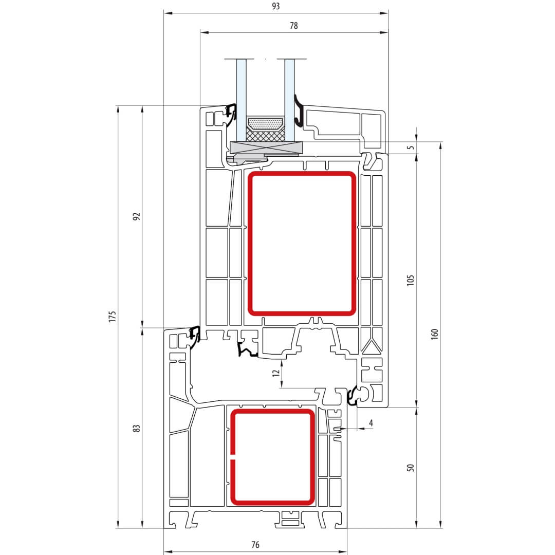
Aluplast IDEAL Neo Fenster Cube-Line 110mm 160x03 160x20

IDEAL Neo Fenster - Cube-Line 110mm 160x03 160x20

Kunststofffenster IDEAL Neo AD (Anschlagsdichtung) mit Rahmen (160x01)

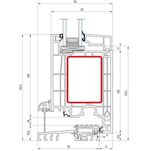
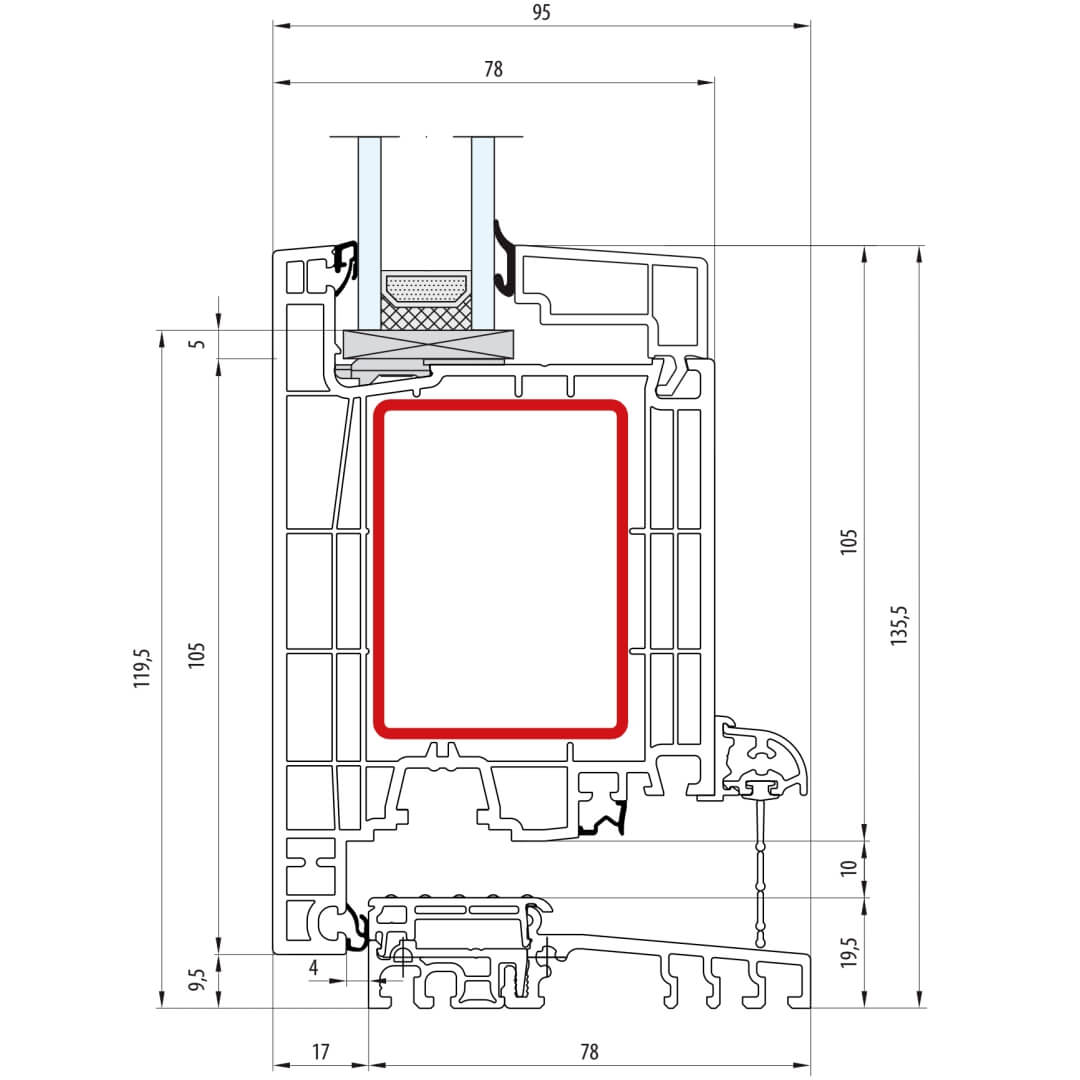
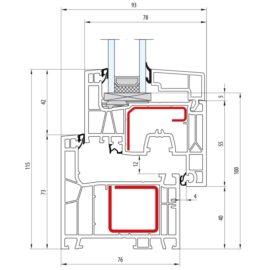
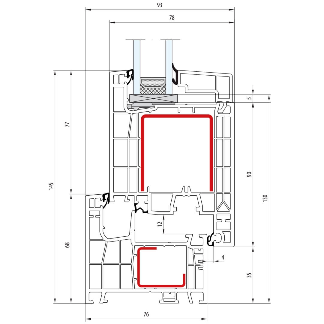
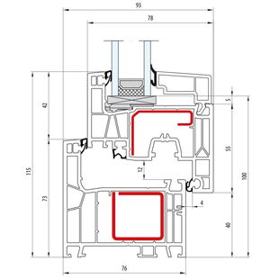
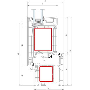
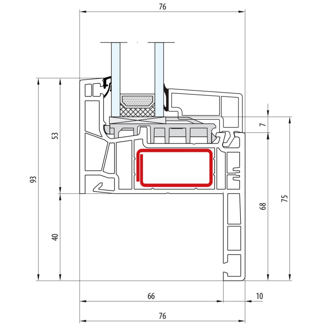
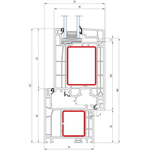
Aluplast IDEAL Neo Festverglasung 73mm 160x01

IDEAL Neo Festverglasung 73mm 160x01

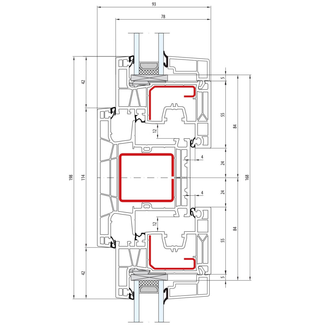
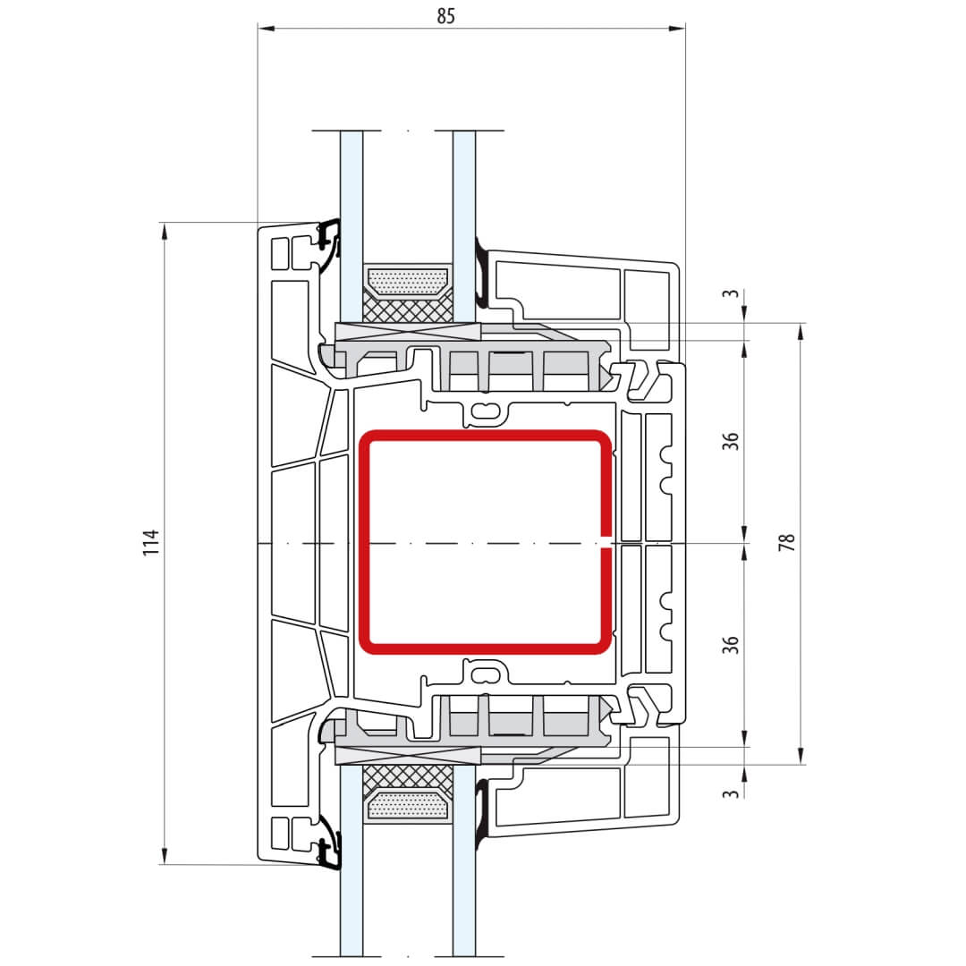
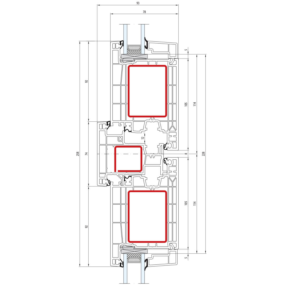
Aluplast IDEAL Neo Fenster Cube-Line 115mm 160x01 160x20

IDEAL Neo Fenster - Cube-Line 115mm 160x01 160x20

Kunststofffenster IDEAL Neo MD (Mitteldichtung) mit Rahmen (160x07)

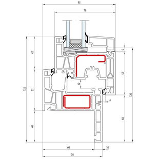
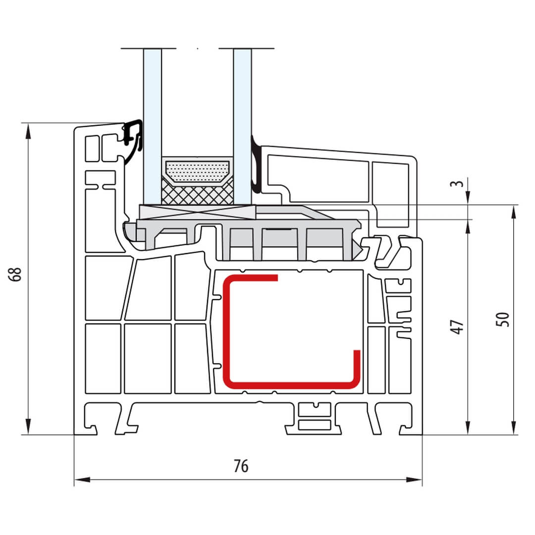
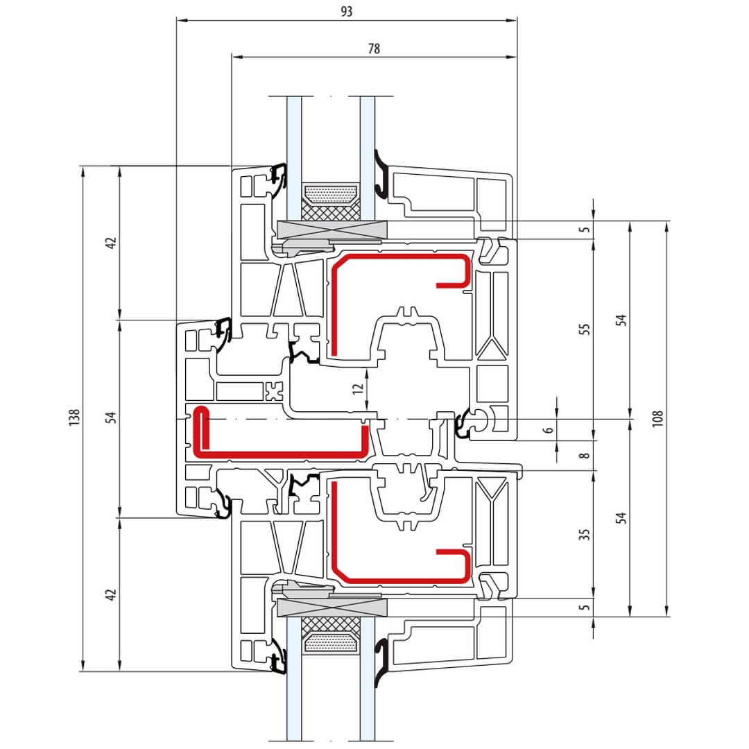
Aluplast IDEAL Neo Festverglasung 68mm 160x07

IDEAL Neo Festverglasung 68mm 160x07

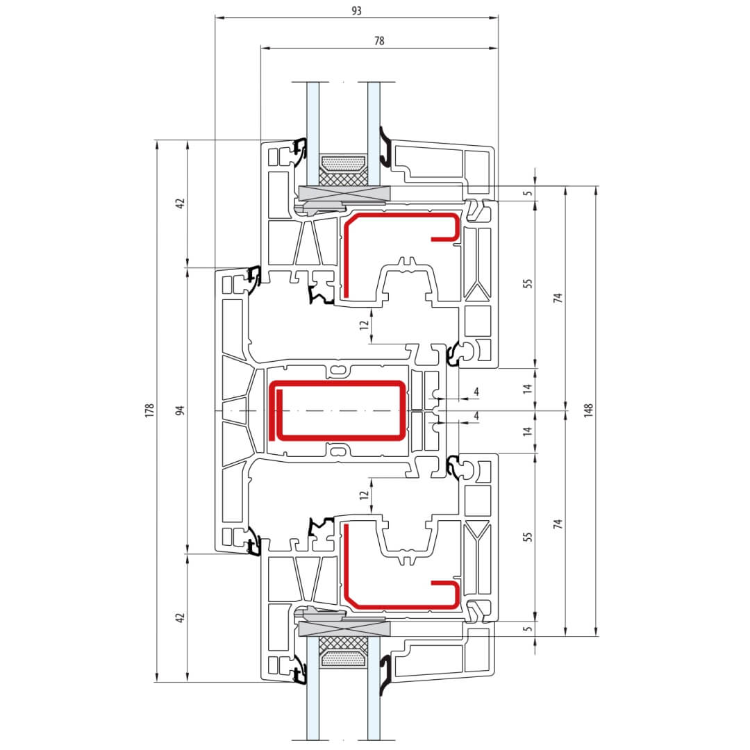
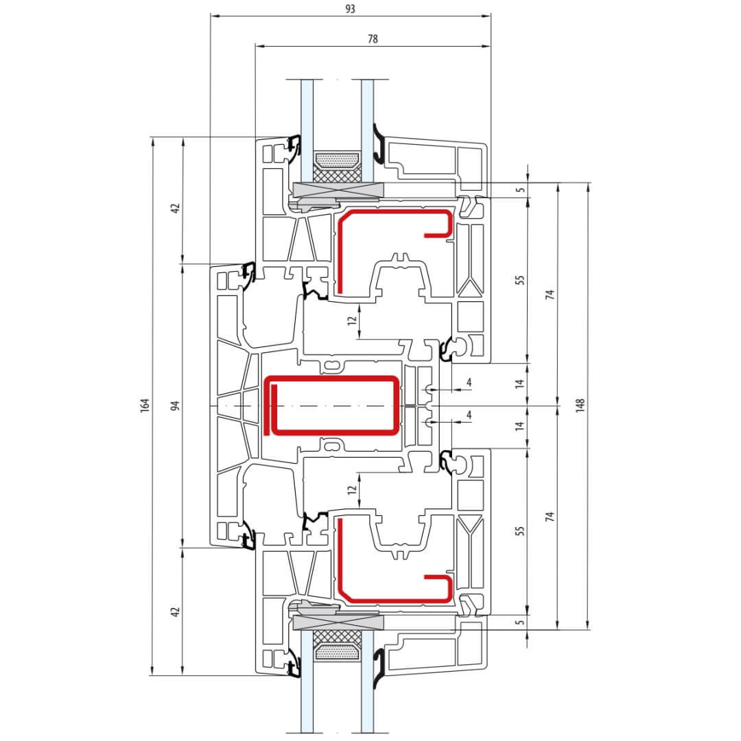
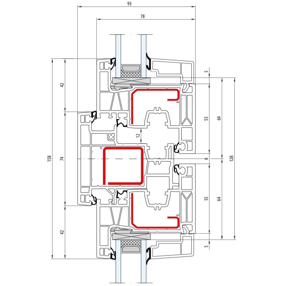
Aluplast IDEAL Neo Fenster MD Cube-Line 110mm 160x07 160x20

IDEAL Neo Fenster - Cube-Line 110mm 160x07 160x20

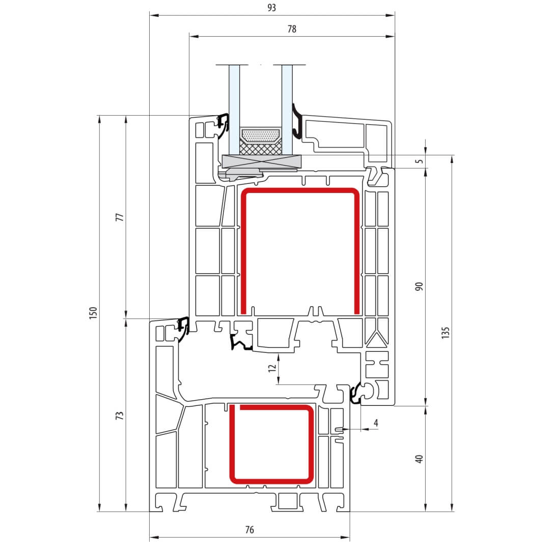
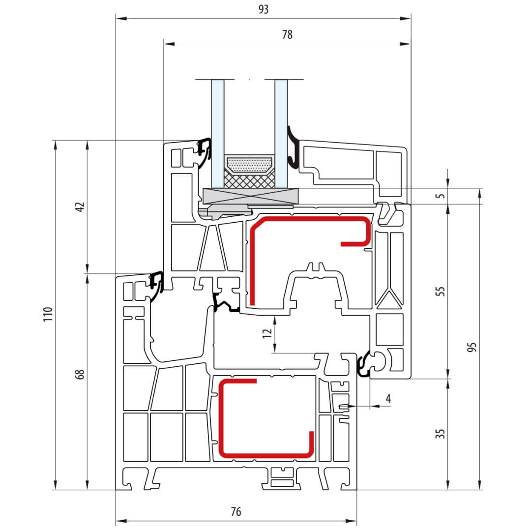
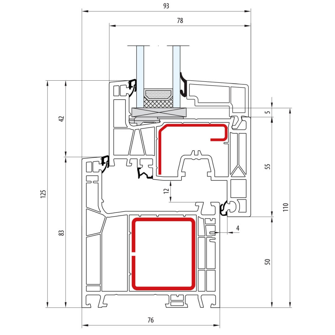
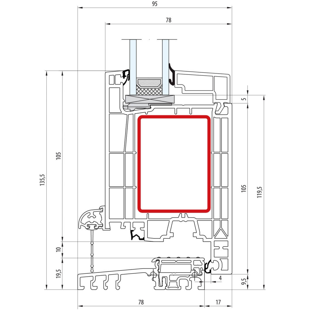
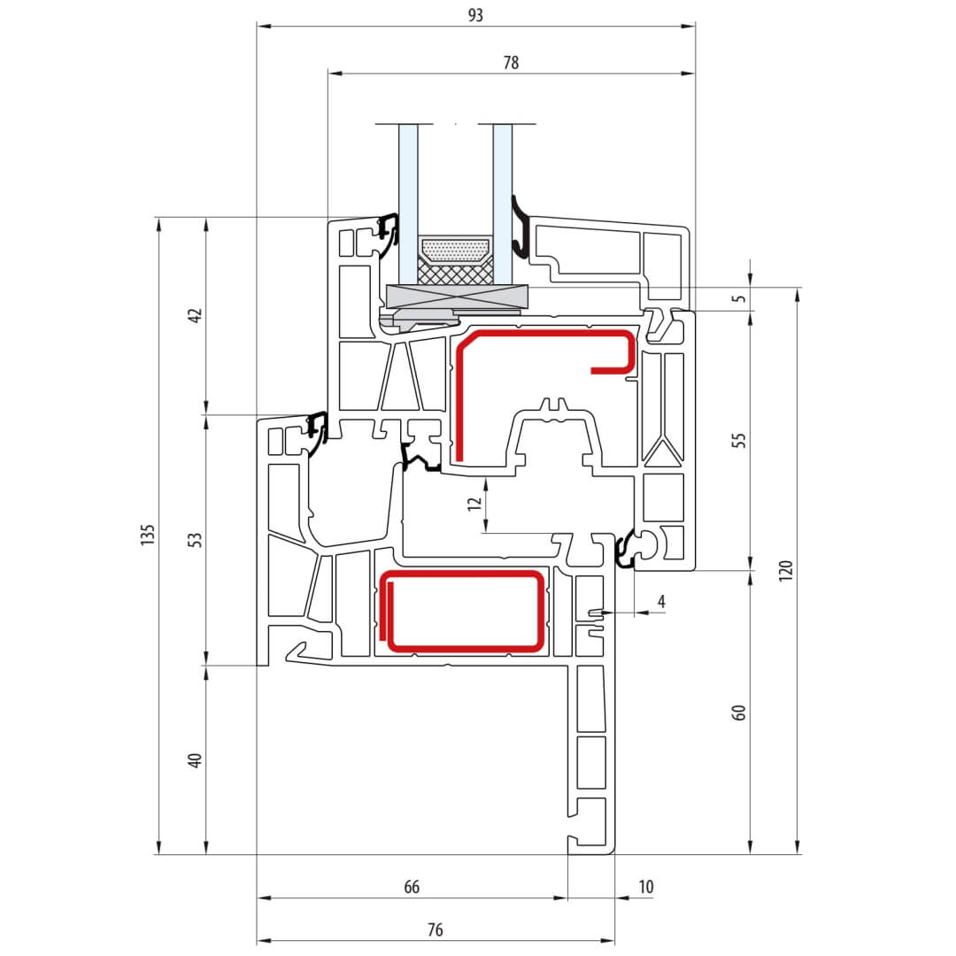
Kunststofffenster IDEAL Neo mit Türrahmen (160x02)

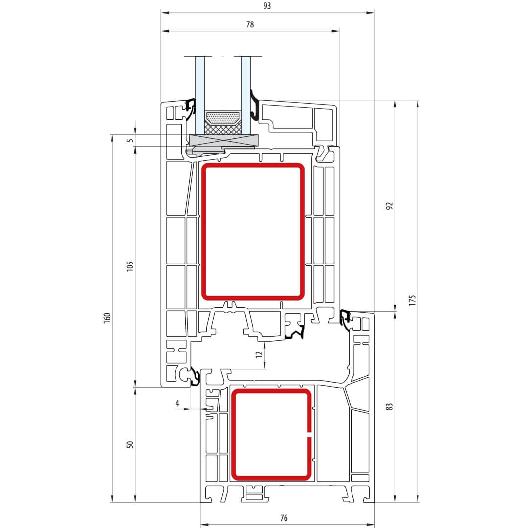
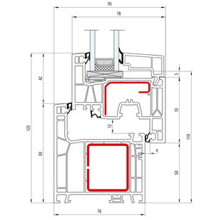
Aluplast IDEAL Neo Festverglasung 83mm 160x02

IDEAL Neo Festverglasung 83mm 160x02

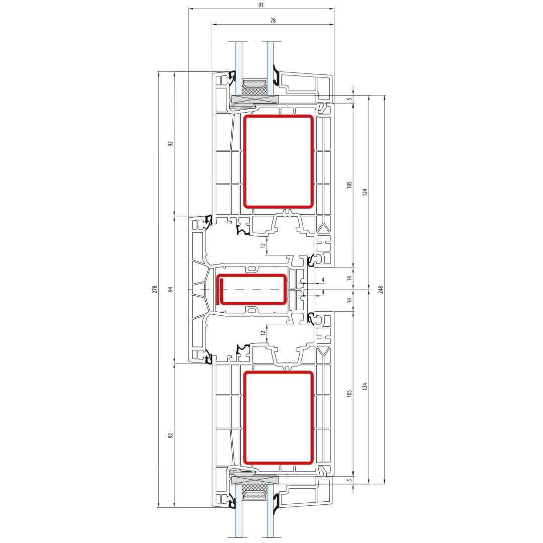
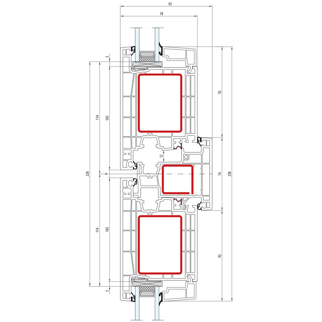
Aluplast IDEAL Neo Fenster Cube-Line 125mm - 160x02 - 160x20

IDEAL Neo Fenster Cube-Line 125mm - 160x02 - 160x20

Kunststofffenster IDEAL Neo mit Rennovationsrahmen

Aluplast IDEAL Neo Renovation Festverglasung Flosse 40 mm 160x15

IDEAL Neo Renovation Festverglasung Flosse 40 mm 160x15

Aluplast IDEAL Neo Renovation Fenster Flosse 40 mm 160x15 160x20

IDEAL Neo Renovation Fenster Flosse 40 mm 160x15 160x20

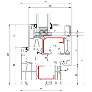
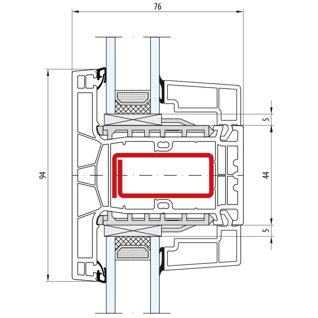
Kunststofffenster IDEAL Neo AD/MD mit Pfosten 94mm (Schmal)

Aluplast IDEAL Neo AD Pfosten 94mm 160x41

IDEAL Neo AD Pfosten 94mm - 160x41

Aluplast IDEAL Neo AD Pfosten 94mm Fenster 75mm 160x41 160x20

IDEAL Neo AD Pfosten 94mm Fenster 75mm 160x41 160x20

Aluplast IDEAL Neo MD Pfosten 94mm 160x45

IDEAL Neo MD Pfosten 94mm - 160x45

Aluplast IDEAL Neo MD Pfosten 94mm Fenster 75mm 160x45 160x20

IDEAL Neo MD Pfosten 94mm Fenster 75mm 160x45 160x20

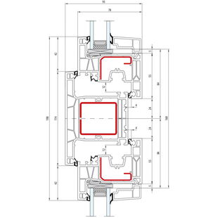
Kunststofffenster IDEAL Neo AD/MD mit Pfosten 114mm (Breit - Große Konstruktionen)

Aluplast IDEAL Neo AD Pfosten 114mm 160x43

IDEAL Neo AD Pfosten 114mm - 160x43

Aluplast IDEAL Neo AD Pfosten 114mm Fenster 75mm 160x43 160x20

IDEAL Neo AD Pfosten 114mm Fenster 75mm 160x43 160x20

Aluplast IDEAL Neo MD Pfosten 114mm 160x46

IDEAL Neo MD Pfosten 114mm - 160x46

Aluplast IDEAL Neo MD Pfosten 114mm Fenster 75mm 160x46 160x20

IDEAL Neo MD Pfosten 114mm Fenster 75mm 160x46 160x20

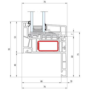
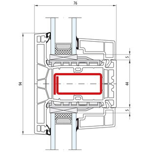
Kunststofffenster IDEAL Neo mit Stulp 74mm

Aluplast IDEAL Neo AD/MD Stulp 74mm Fenster 75mm 160x66 160x20

IDEAL Neo AD/MD Stulp 74mm Fenster 75mm 160x66 160x20

Kunststofffenster IDEAL Neo mit Stulp 54mm (Sonderkonstruktionen auf Anfrage)

Aluplast IDEAL Neo AD/MD Stulp 54mm Fenster 75mm 160x64 160x20

IDEAL Neo AD/MD Stulp 54mm Fenster 75mm 160x64 160x20

Kunststoff Balkontür IDEAL Neo

Aluplast IDEAL Neo AD Balkontür Cube-Line mit Blendrahmen 115mm 160x01 160x20

IDEAL Neo AD Balkontür Cube-Line mit Blendrahmen 115mm 160x01 160x20

Aluplast IDEAL MD Neo Balkontür Cube-Line mit Blendrahmen 110mm 160x07 160x20

IDEAL Neo MD Balkontür Cube-Line mit Blendrahmen 110mm 160x07 160x20

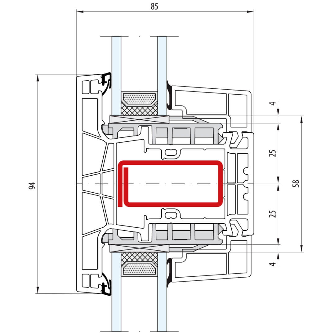
Aluplast IDEAL Neo Balkontürschwelle 20mm Cube-Line 75mm 160x20

IDEAL Neo Balkontürschwelle 20mm Cube-Line 75mm 160x20

Kunststoff Terrassenflügel IDEAL Neo

Aluplast IDEAL Neo AD Terassentür innen öffnend mit Blendrahmen - 160x01 160x30

IDEAL Neo AD Terassentür innen öffnend mit Blendrahmen - 160x01 160x30

Aluplast IDEAL Neo MD Terassentür innen öffnend mit Blendrahmen - 160x07 160x30

IDEAL Neo MD Terassentür innen öffnend mit Blendrahmen - 160x07 160x30

Aluplast IDEAL Neo Terrassentürschwelle 20mm Cube-Line 160x30

IDEAL Neo Terrassentürschwelle 20mm Cube-Line 160x30

Kunststoff IDEAL Neo PSK Parallel-Schiebe-Kipp-Tür

Kunststoff Haustür IDEAL Neo

Aluplast IDEAL Neo Tür innen öffnend - 160x02 160x33

IDEAL Neo Tür innen öffnend - 160x02 160x33

IDEAL Neo Türschwelle 20mm innen öffnend - 160x33

IDEAL Neo Türschwelle 20mm innen öffnend - 160x33

Aluplast IDEAL Neo Pfosten 94mm Tür innen öffnend - 160x41 160x33

IDEAL Neo Pfosten 94mm Tür innen öffnend - 160x41 160x33

Aluplast IDEAL Neo Tür außen öffnend - 160x02 160x35

IDEAL Neo Tür außen öffnend - 160x02 160x35

IDEAL Neo Türschwelle 20mm außen öffnend - 160x35

IDEAL Neo Türschwelle 20mm außen öffnend - 160x35

Türflügel IDEAL Neo mit Stulp 74mm

Aluplast IDEAL Neo Stulp 74mm Tür innen öffnend 160x66 160x33

IDEAL Neo Stulp 74mm Tür innen öffnend 160x66 160x33

Aluplast IDEAL Neo Stulp 74mm Tür außen öffnend 160x66 160x35

IDEAL Neo Stulp 74mm Tür außen öffnend 160x66 160x35

Zusatzprofile für aluplast IDEAL Neo Querschnitte

Kunststoff Sprossenarten - Ideal Neo

Innenliegende SZR Sprossen / Helima Sprossen

Drutex Iglo SZR Sprosse 8mm

Innenliegende Sprosse 8mm

Drutex Iglo SZR Sprosse 18mm

Innenliegende Sprosse 18mm

Drutex Iglo SZR Sprosse 26mm

Innenliegende Sprosse 26mm

Drutex Iglo SZR Sprosse 45mm

Innenliegende Sprosse 45mm

Aufgesetzte / Aufgeklebte Sprossen

Aluplast 160376 - aufgesetzte Sprossen - 26mm

160376 - aufgesetzte Sprossen - 26mm

Aluplast 160378 - aufgesetzte Sprossen - 46mm

160378 - aufgesetzte Sprossen - 46mm

Aluplast 160479 - aufgesetzte Sprossen - 66mm

160479 - aufgesetzte Sprossen - 66mm

Glasteilende Sprossen - Kämpfer

Kunststoff Anschlussprofile - Ideal Neo

Kunststoff Bankanschlussprofile

Aluplast 144247 - Fensterbankanschluss - 30mm

144247 - Fensterbankanschluss - 30mm

Kunststoff Steinbankanschlussprofile

Aluplast 120206 - Steinbankanschluss - 25mm

120206 - Steinbankanschluss - 25mm

Aluplast 120208 - Steinbankanschluss - 30mm

120208 - Steinbankanschluss - 30mm

Aluplast 120209 - Steinbankanschluss - 40mm

120209 - Steinbankanschluss - 40mm

Aluplast 120210 - Steinbankanschluss - 50mm

120210 - Steinbankanschluss - 50mm

Kunststoff Anschlussprofile (bündig)

Aluplast 140277 - Bankanschlussprofil - 10mm

140277 - Bankanschlussprofil - 10mm

Aluplast 120106 - Bankanschlussprofil - 20mm

120106 - Bankanschlussprofil - 20mm

Aluplast 120236 - Bankanschlussprofil - 15mm

120236 - Bankanschlussprofil - 15mm

Aluplast 120237 - Bankanschlussprofil - 30mm

120237 - Bankanschlussprofil - 30mm

Aluplast 120102 - Bankanschlussprofil - 50mm

120102 - Bankanschlussprofil - 50mm

Kunststoff Fensterbank-Anschlussprofile

Aluplast 120190 - Fensterbank - 115,5mm - außen

120190 - Fensterbank - 115,5mm - außen

Aluplast 120246 - Fensterbank - 50mm - außen

120246 - Fensterbank - 50mm - außen

Aluplast 120248 - Fensterbank - 55mm - außen

120248 - Fensterbank - 55mm - außen

Kunststoff Zargenprofile

Aluplast 120196 - Zarge - 40mm - 102mm

120196 - Zarge - 40mm - 102mm

Aluplast 120270 - Zarge - 40mm - 82mm

120270 - Zarge - 40mm - 82mm

Aluplast 120195 - Zarge - 40mm - 62mm

120195 - Zarge - 40mm - 62mm

Aluplast 120194 - Zarge - 40mm - 42mm

120194 - Zarge - 40mm - 42mm

Aluplast 120193 - Zarge - 40mm - 22mm

120193 - Zarge - 40mm - 22mm

Kunststoff Rahmenverbreiterung - Ideal Neo

Aluplast 160227 - Rahmenverbreiterung - 2mm

160227 - Rahmenverbreiterung - 2mm

Aluplast 160201- Rahmenverbreiterung - 15mm

160201 - Rahmenverbreiterung - 15mm

Aluplast 160202 - Rahmenverbreiterung - 35mm

160202 - Rahmenverbreiterung - 35mm

Aluplast 160204 - Rahmenverbreiterung - 100mm

160204 - Rahmenverbreiterung - 100mm

Kunststoff Kopplungen - Ideal Neo

Aluplast 120116 - Federkopplung

120116 - Federkopplung

Aluplast 120224 - H - Kopplung - universal

120224 - H - Kopplung - universal

Aluplast 160267 - H - Kopplung

160267 - H - Kopplung

Aluplast 160267 - H - Federkopplung - optional - Stahl

160267 - H - Kopplung - optional - Stahl

Aluplast 120219 - Statikkopplung - 9mm

120219 - Statikkopplung - 9mm

Aluplast 160218 - Statikkopplung - 21mm

160218 - Statikkopplung - 21mm

Aluplast 120109 - Statikprofil

120109 - Statikprofil

Kopplung von Eck-Elementen - 90° und Variabel

Kunststoff Abdeckleisten - Ideal Neo

Aluplast Flachleisten aus Kunststoff Auswahl 65025100, 6465050, 65025080, 65025070, 65025050, 65025040, 65025030

65025100, 6465050, 65025080, 65025070, 65025050, 65025040, 65025030 - Flachleiste aus Kunststoff Auswahl

Aluplast Flachleisten mit Dichtlippe 120120, 120283

120120, 120283 - Flachleiste mit Dichtlippe Auswahl

Aluplast Deckleisten mit Hohlkammerprofil Auswahl

Hohlkammerprofil Deckleiste Auswahl

Winkelprofile aus Kunststoff 73100060, 73080050, 73060040, 73020020

73100060, 73080050, 73060040, 73020020 - Winkelprofil aus Kunststoff

Aluplast Winkelprofile aus Kunststoff 120292, 120291

120292, 120291 - Winkelprofil aus Kunststoff

Aluplast Hohlkammer Winkelprofil aus Kunststoff 120299, 120297, 120289, 120284

120299, 120297, 120289, 120284 - Hohlkammer Winkelprofil aus Kunststoff

Kunststoff Weitere Profile - Ideal Neo

Aluplast 140276

140276 - Distanzprofil 40mm

Aluplast 140275

140275 - Distanzprofil 22mm

Aluplast 140107

140107 - Wetterschenkel

Aluplast kozijnen en deuren op maat

Configureer en bestel eenvoudig en comfortabel Aluplast ramen en deuren online bij kozijnenblik.nl

Das könnte Sie auch interessieren:

Kunststofffenster energeto neo

Detailzeichnungen Kunststofffenster energeto neo

Kunststofffenster energeto neo besitzen eine Bautiefe (Rahmen) von 76mm.

Detailzeichnungen energeto neo

Kunststofffenster IDEAL 4000

Detailzeichnungen Kunststofffenster IDEAL 4000

Kunststofffenster IDEAL 4000 besitzen eine Bautiefe (Rahmen) von 70mm.

Detailzeichnungen IDEAL 4000