Detailzeichnungen Aluplast IDEAL 4000

Kunststofffensterprofil IDEAL 4000 Querschnitte

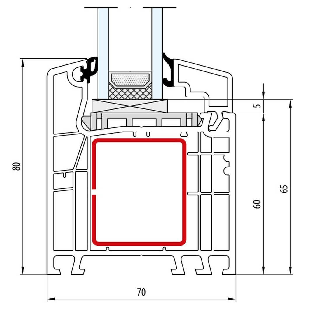
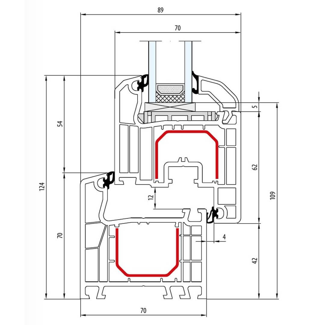
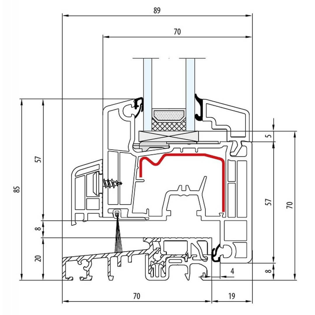
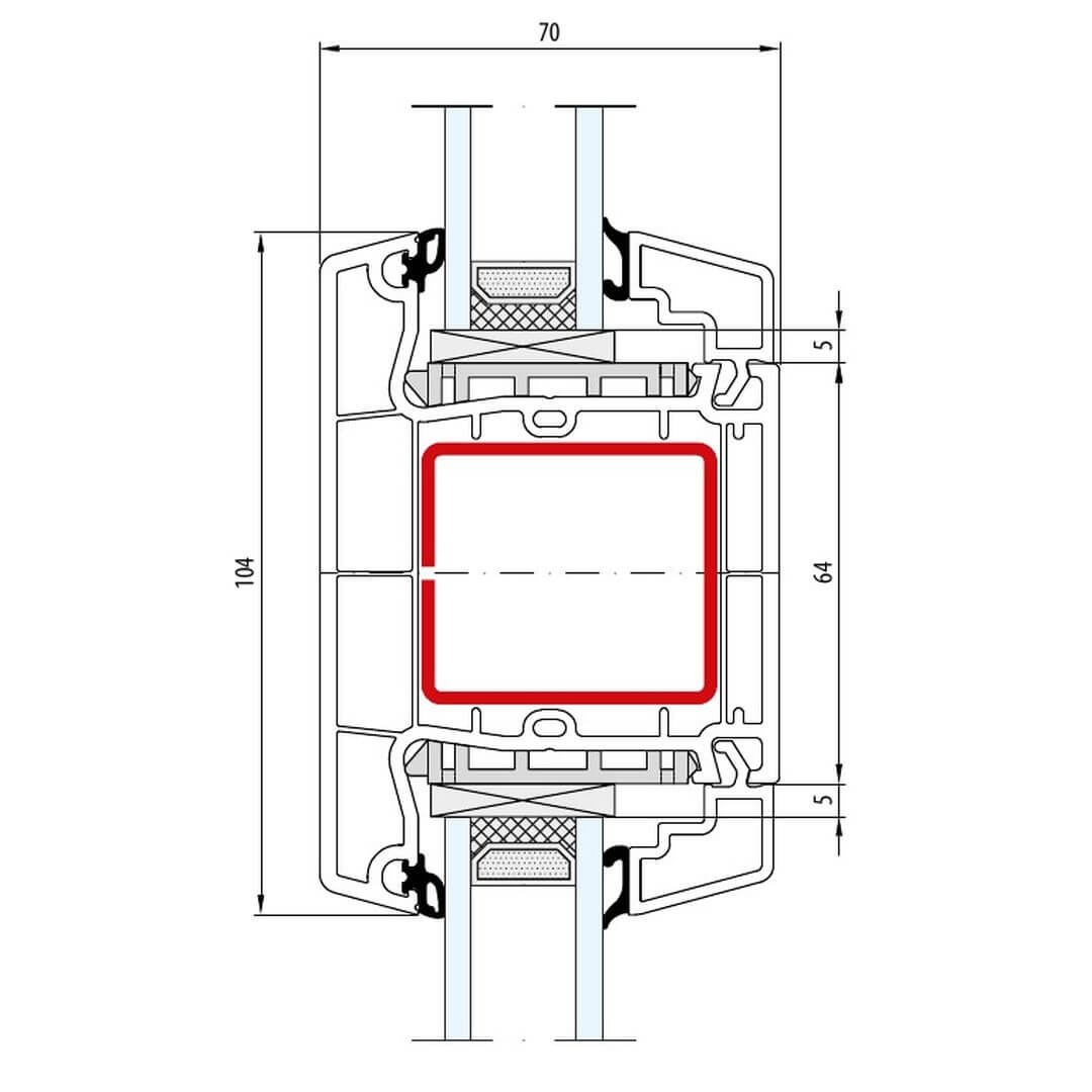
Aluplast IDEAL 4000 Festverglasung 65mm 140x01

IDEAL 4000 Festverglasung 65mm - 140x01

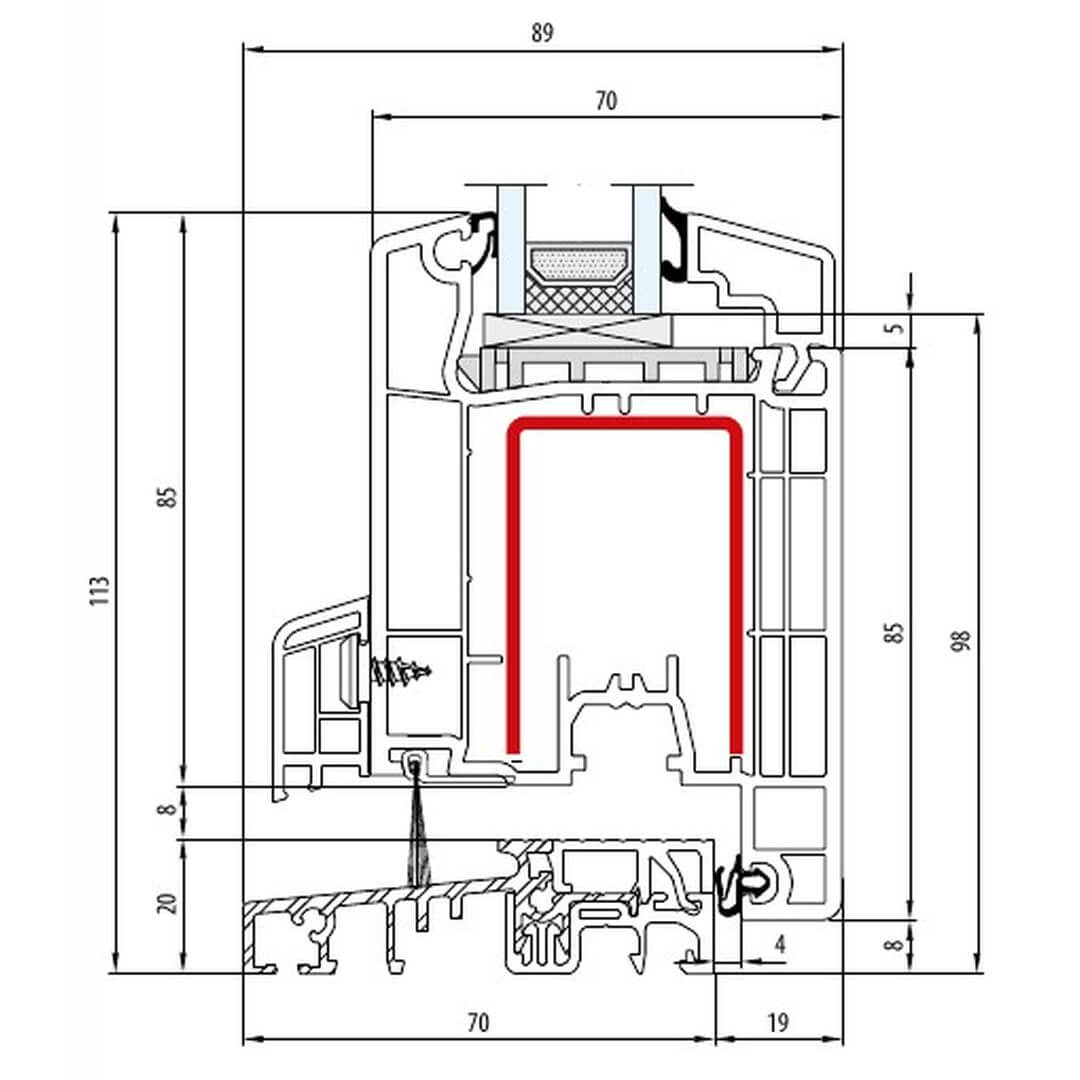
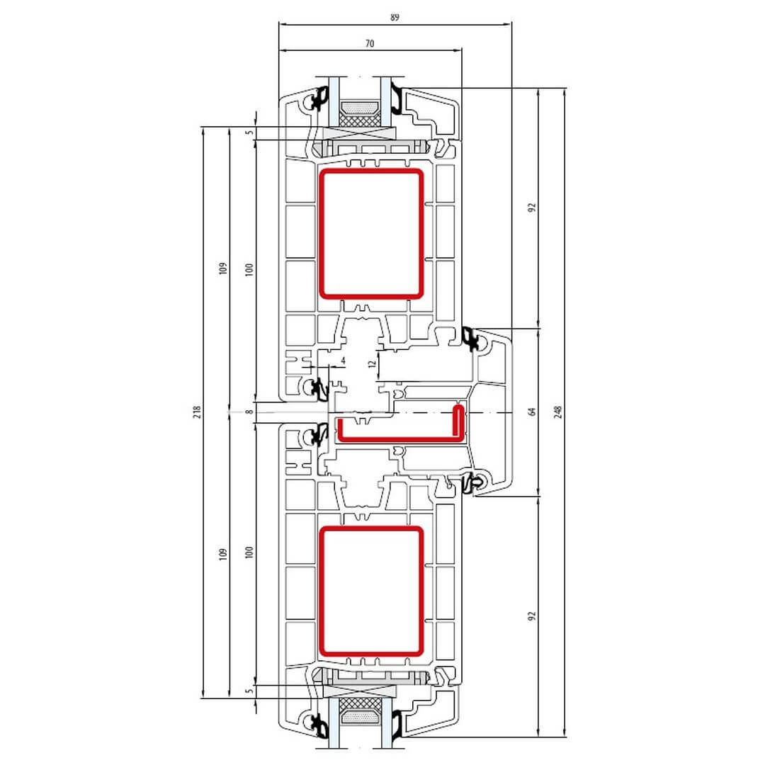
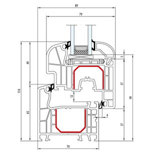
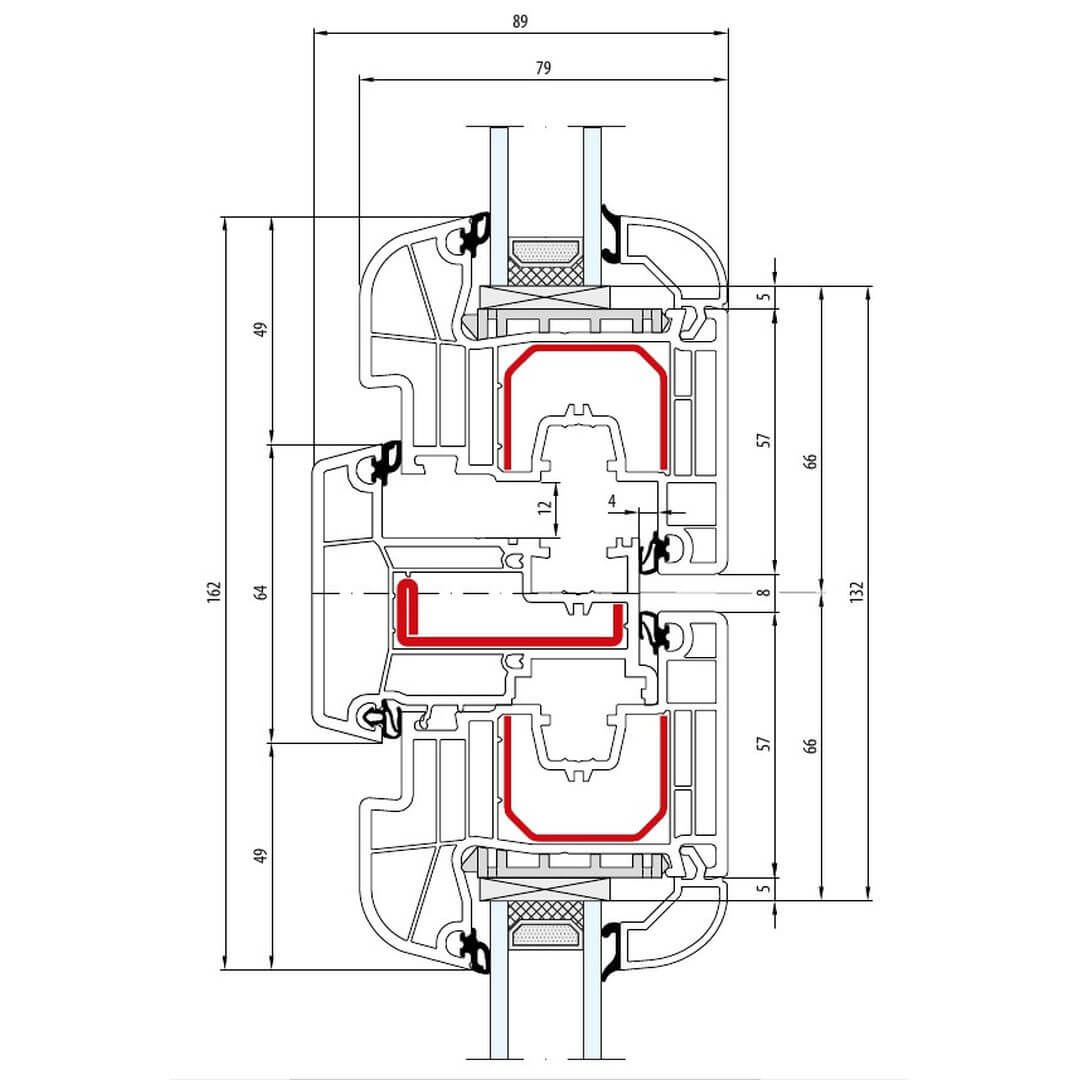
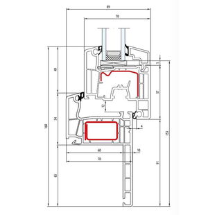
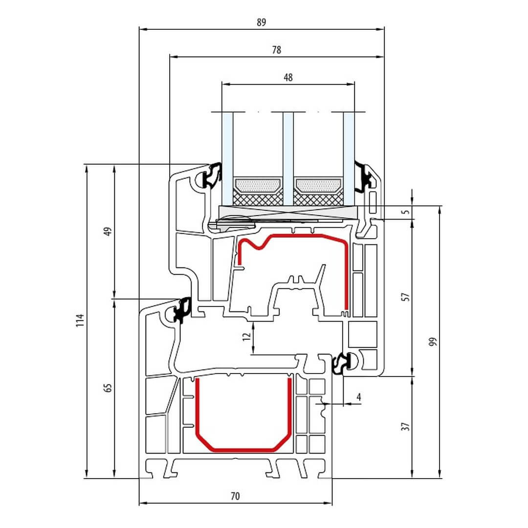
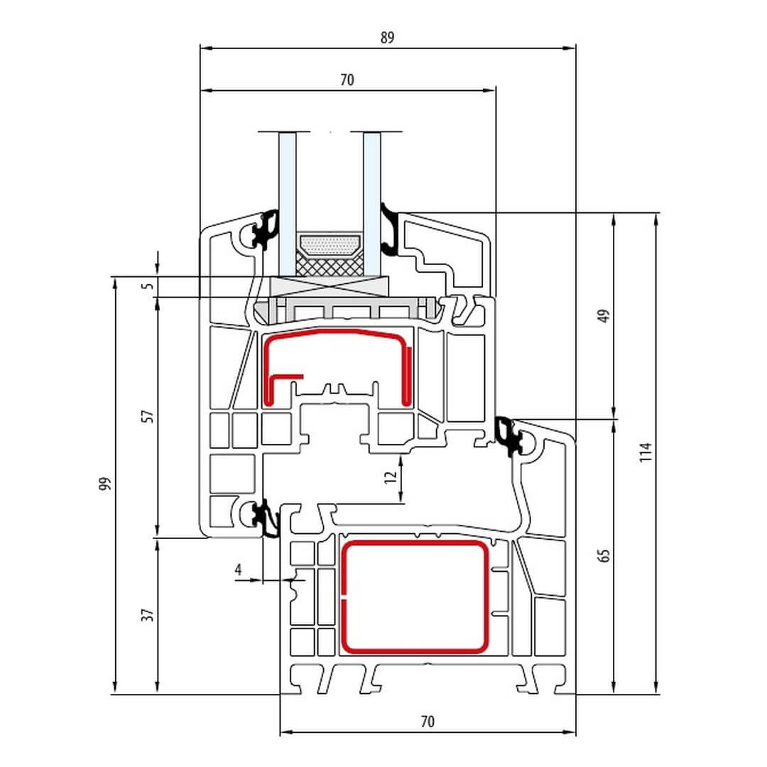
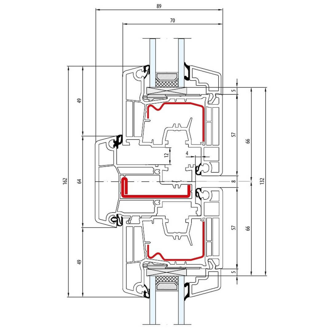
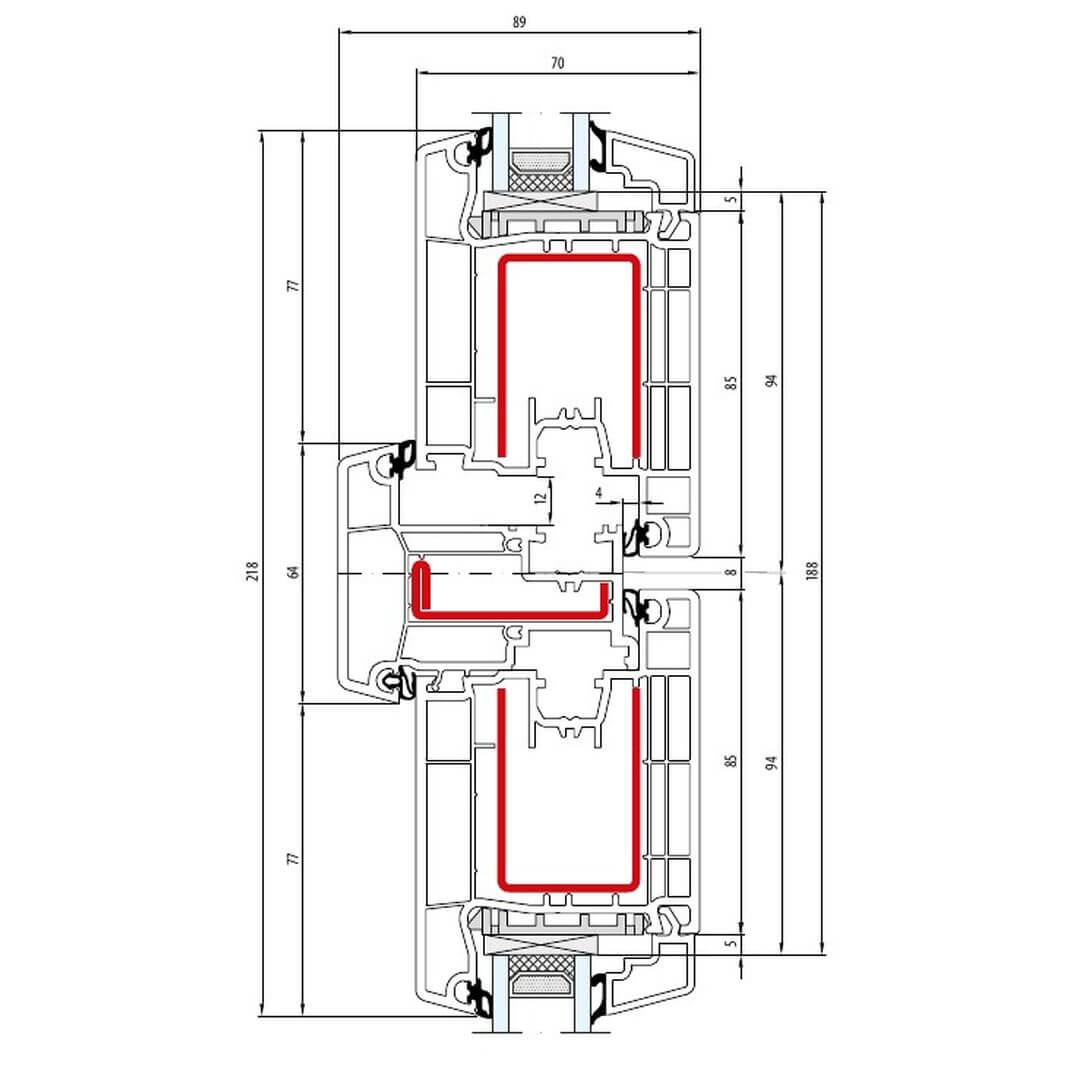
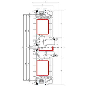
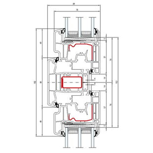
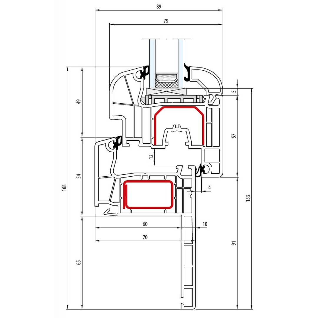
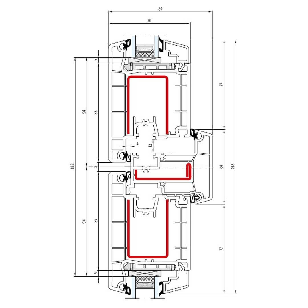
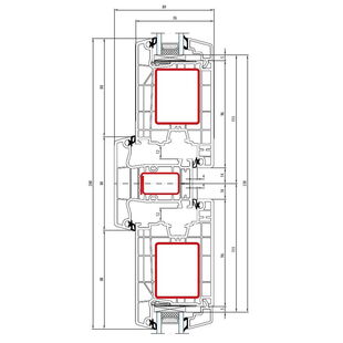
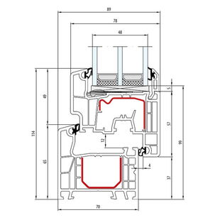
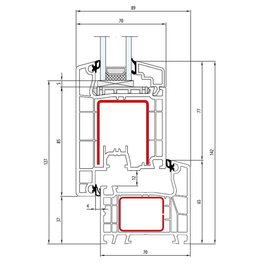
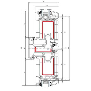
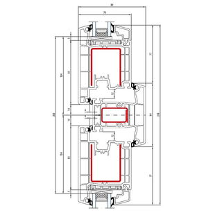
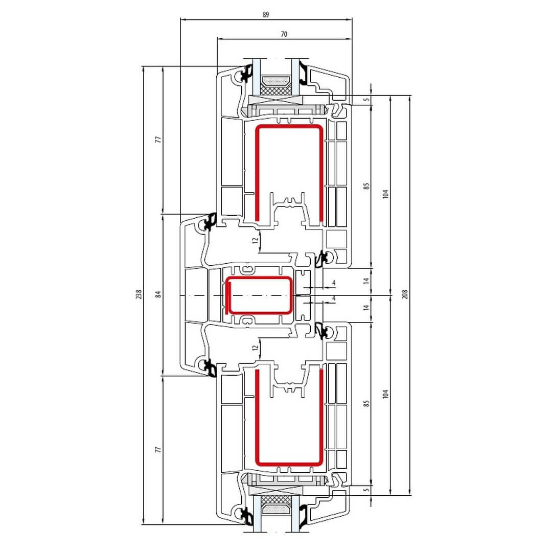
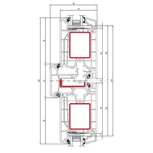
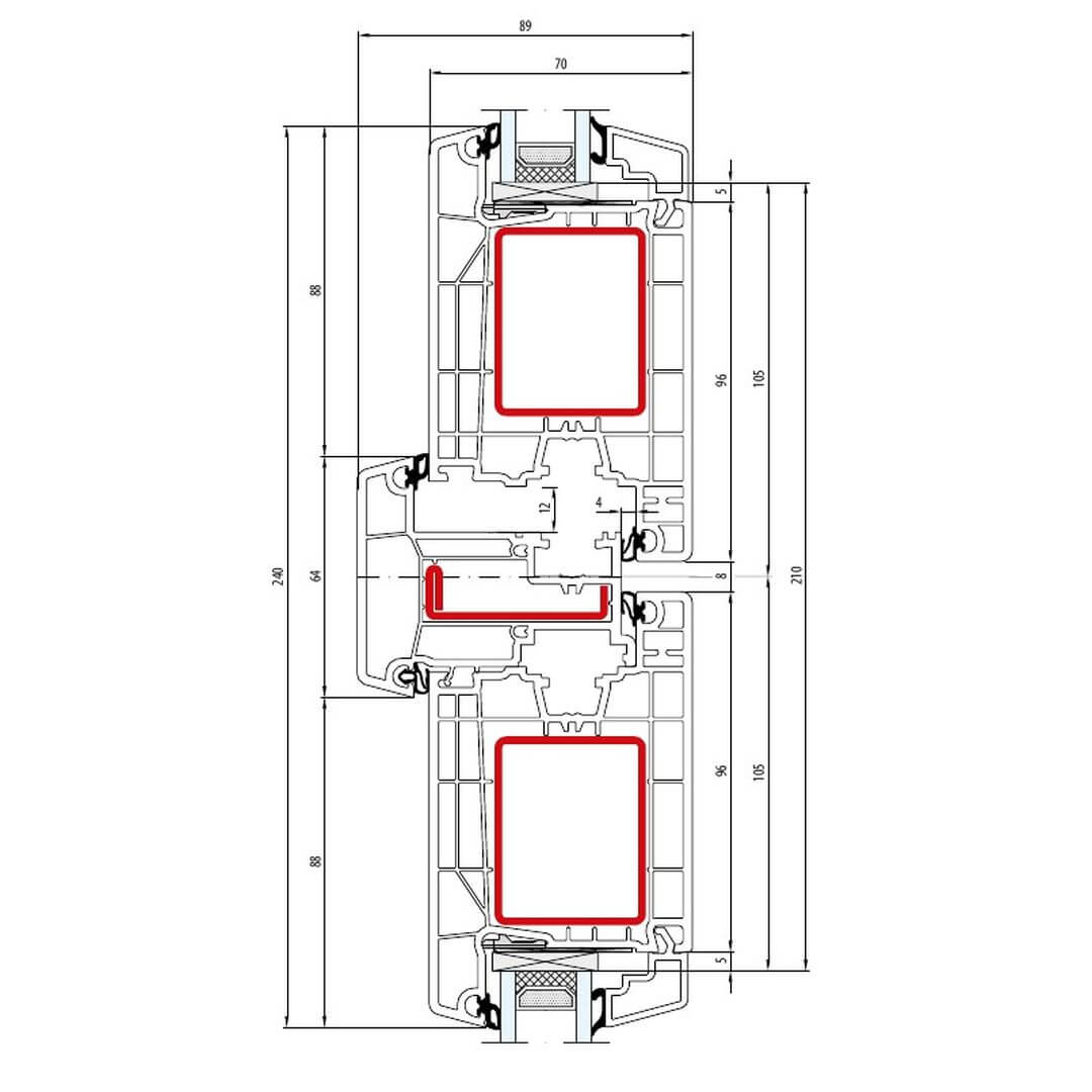
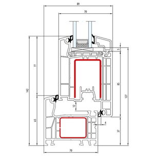
Aluplast IDEAL 4000 Fenster Classic-Line 114mm 140x01 140x20

IDEAL 4000 Fenster - Classic-Line 114mm 140x01 140x20

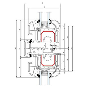
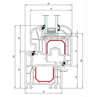
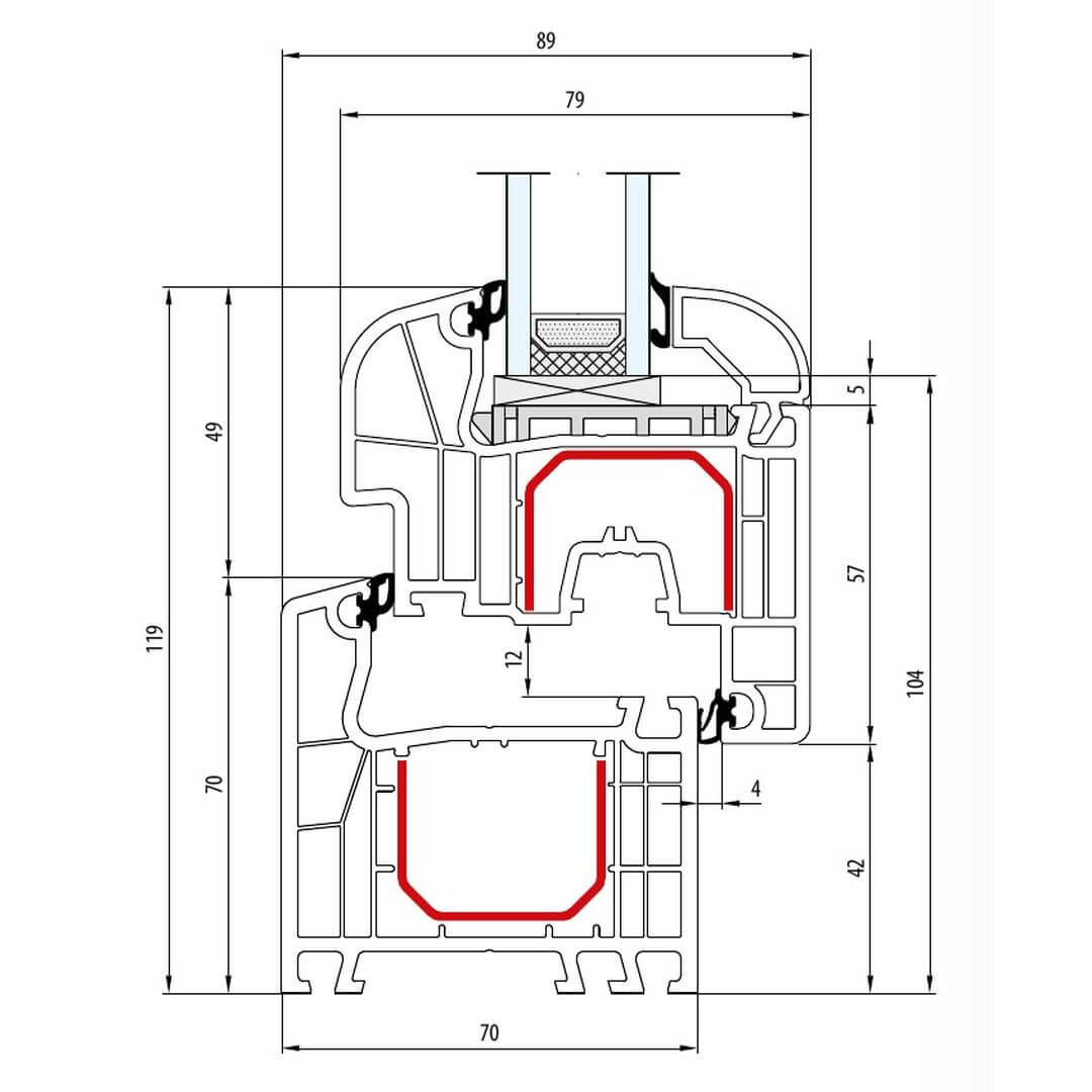
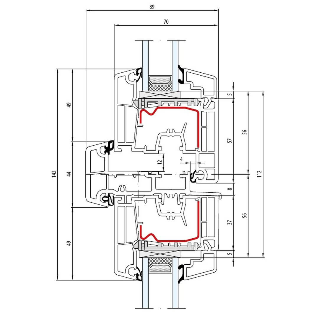
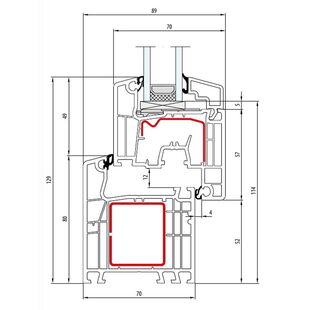
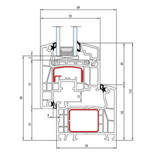
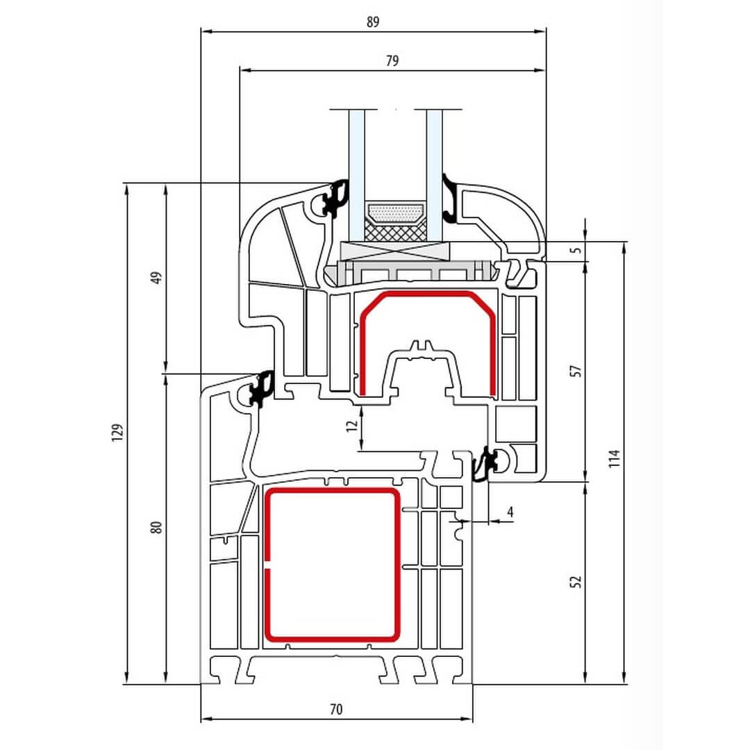
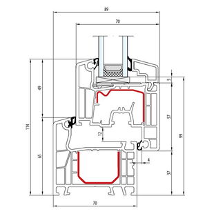
Aluplast IDEAL 4000 Fenster Round-Line 114mm 140x01 140x22

IDEAL 4000 Fenster - Round-Line 114mm 140x01 140x22

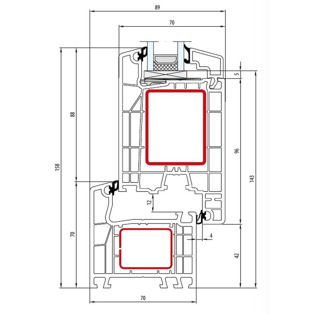
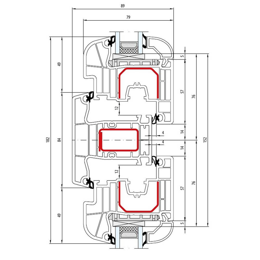
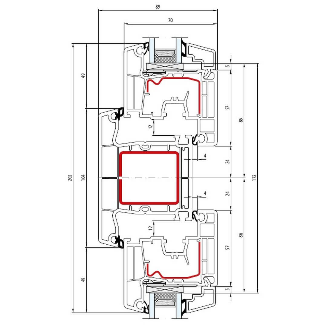
Aluplast IDEAL 4000 48mm Classic-Line 114mm 140x01 140x27

IDEAL 4000 Fenster 48mm - Classic-Line 114mm 140x01 140x27

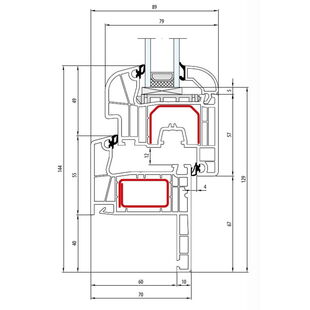
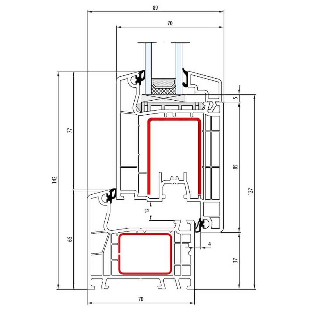
Aluplast IDEAL 4000 außen öffnend Classic-Line 114mm 140x01 140x37

IDEAL 4000 Fenster außen öffnend - Classic-Line 114mm 140x01 140x37

Kunststofffenster IDEAL 4000 mit Türrahmen (140x02 und 140x03)

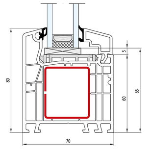
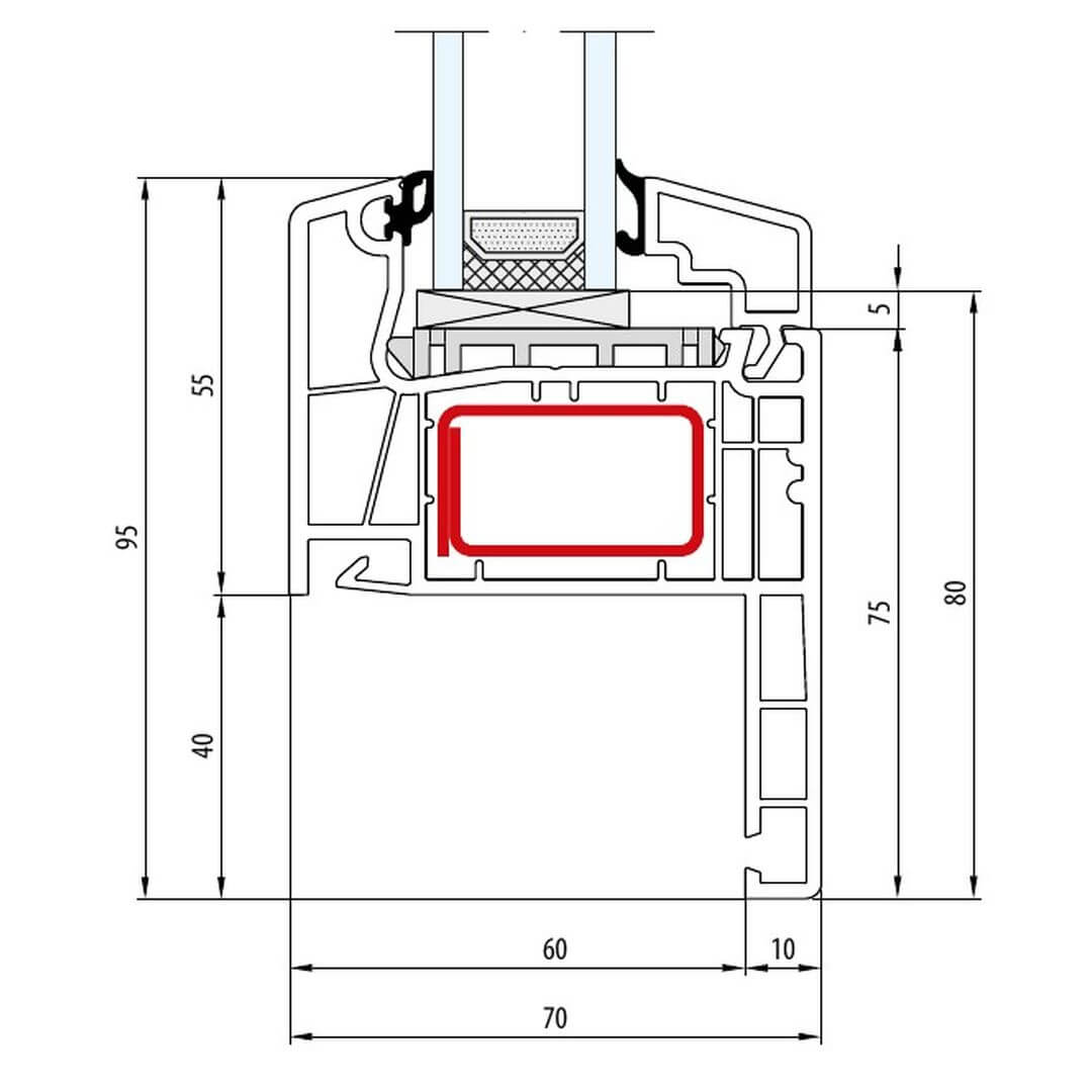
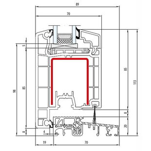
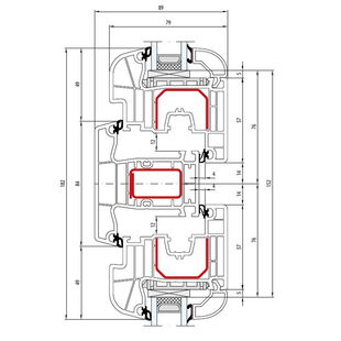
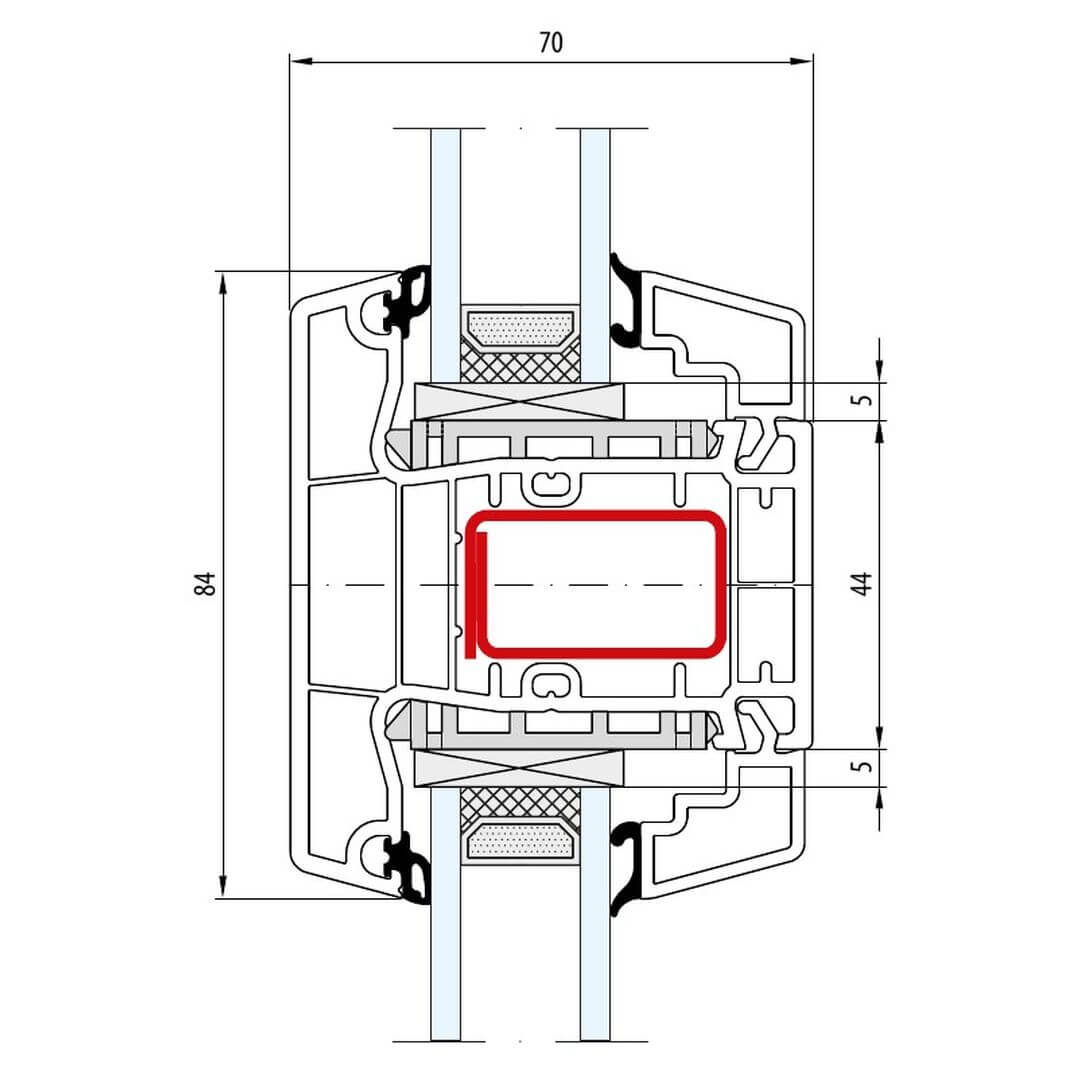
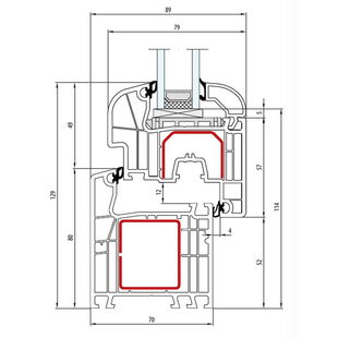
Aluplast IDEAL 4000 Festverglasung 70mm 140x02

IDEAL 4000 Festverglasung - 70mm 140x02

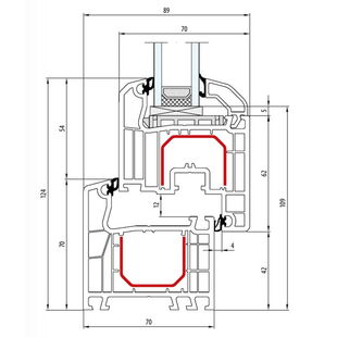
Aluplast IDEAL 4000 Round-Line 124mm 140x02 140x23

IDEAL 4000 Fenster - Soft-Line 124mm 140x02 140x23

Aluplast IDEAL 4000 Round-Line 119mm 140x02 140x22

IDEAL 4000 Fenster - Round-Line 119mm 140x02 140x22

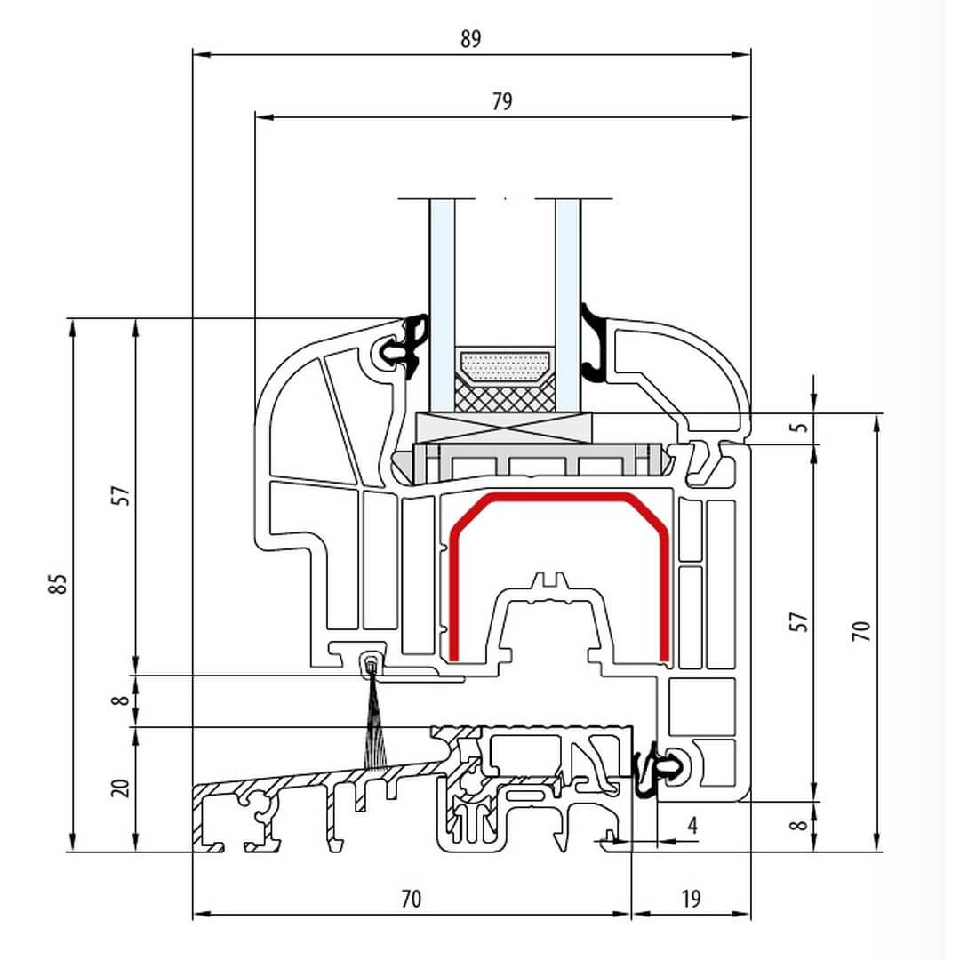
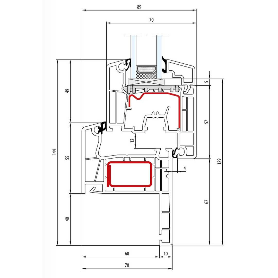
Aluplast IDEAL 4000 Classic-Line Festverglasung 80mm 140x03

IDEAL 4000 Festverglasung 80mm - Classic-Line 140x03

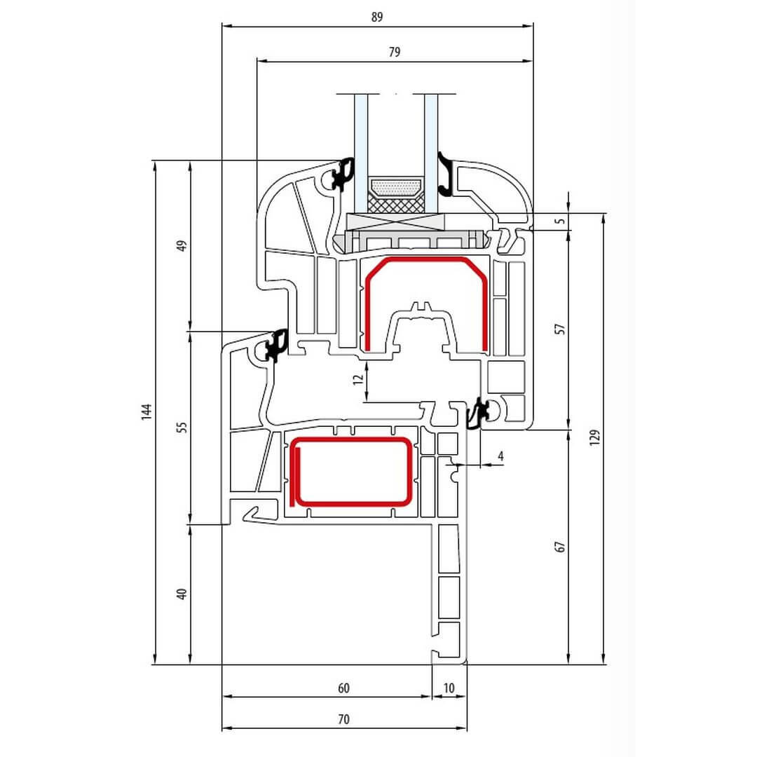
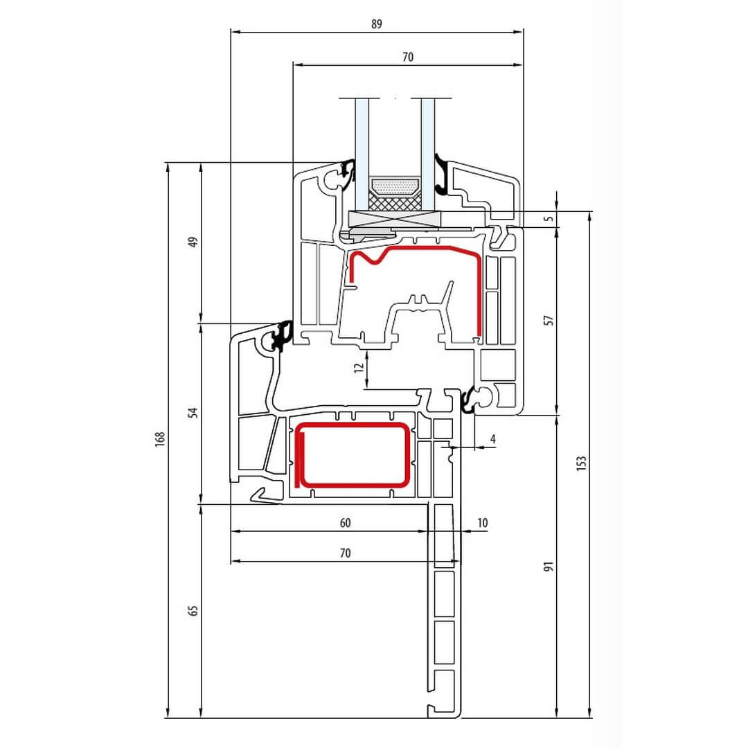
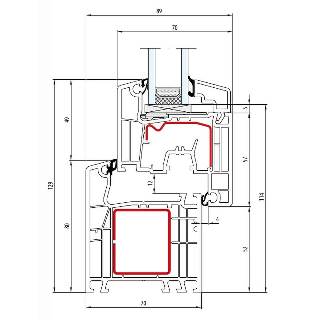
Aluplast IDEAL 4000 Classic-Line 129mm 140x03 140x20

IDEAL 4000 Fenster 129mm - Classic-Line 129mm 140x03 140x20

Aluplast IDEAL 4000 Round-Line 129mm 140x03 140x22

IDEAL 4000 Fenster 129mm - Round-Line 129mm 140x03 140x22

Kunststofffenster IDEAL 4000 mit Rennovationsrahmen

Aluplast IDEAL 4000 Renovation Festverglasung Flosse 40mm 140x15

IDEAL 4000 Renovation Festverglasung Flosse 40mm - 140x15

Aluplast IDEAL 4000 Renovation Fenster Soft-Line Flosse 40mm 140x15-140x20

IDEAL 4000 Renovation Fenster Soft-Line Flosse 40mm - 140x15-140x20

Aluplast IDEAL 4000 Renovation Fenster Round-Line Flosse 40mm 140x15-140x22

IDEAL 4000 Renovation Fenster Round-Line Flosse 40mm - 140x15-140x22

Aluplast IDEAL 4000 Renovation Festverglasung Flosse 65mm 140x09_11

IDEAL 4000 Renovation Festverglasung Flosse 65mm - 140x09_11

Aluplast IDEAL 4000 Renovation Fenster Classic-Line Flosse 65mm 140x09_11-140x20

IDEAL 4000 Renovation Fenster Classic-Line Flosse 65mm - 140x09_11-140x20

Aluplast IDEAL 4000 Renovation Fenster Round-Line Flosse 65mm 140x09_11 140x22

IDEAL 4000 Renovation Fenster Round-Line Flosse 65mm - 140x09_11-140x22

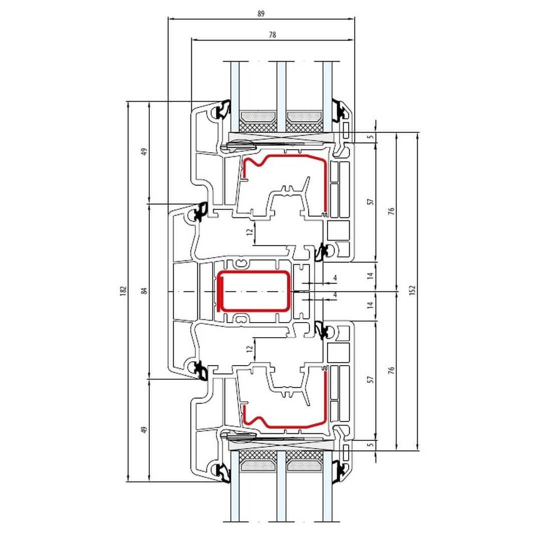
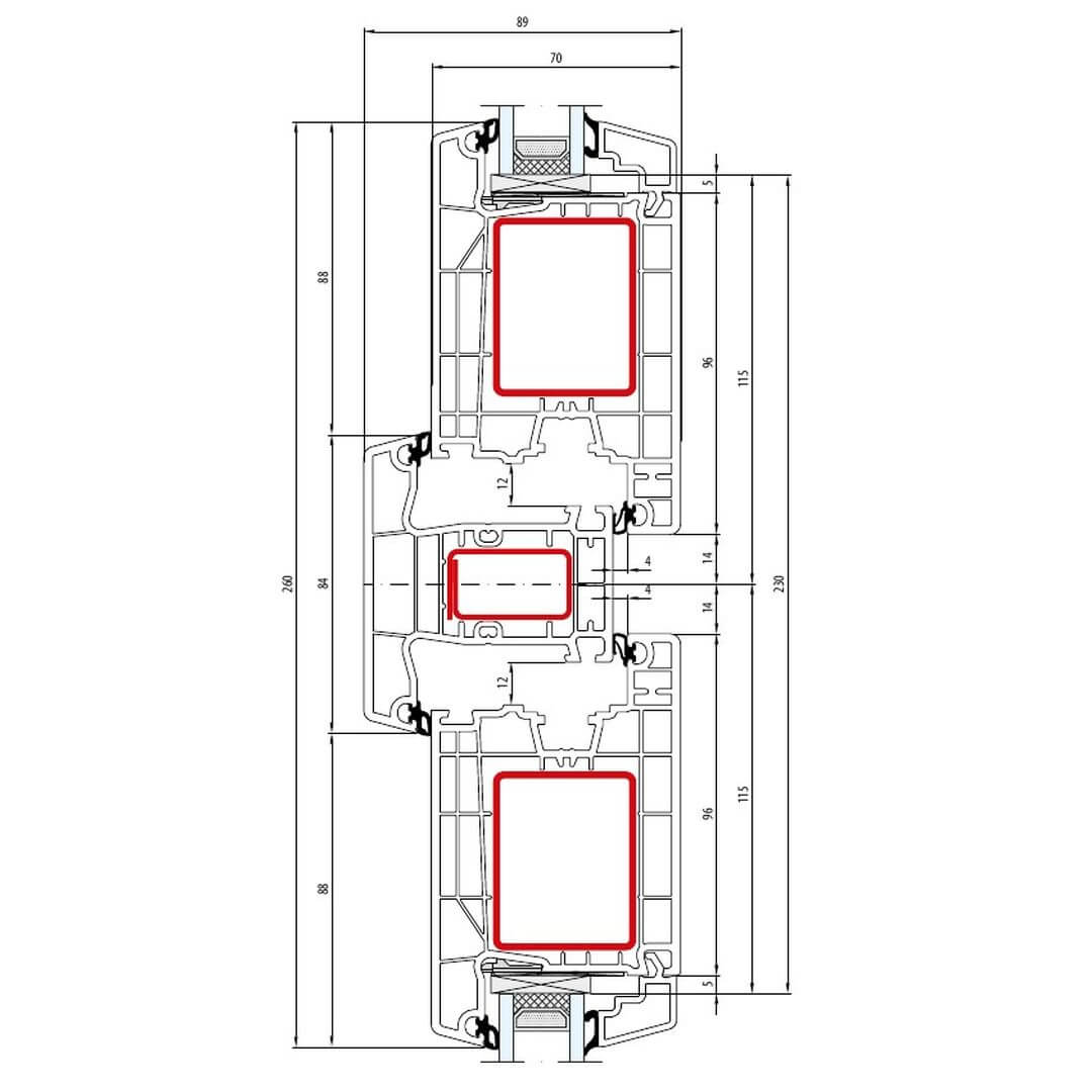
Kunststofffenster IDEAL 4000 mit Pfosten 84mm (Schmal)

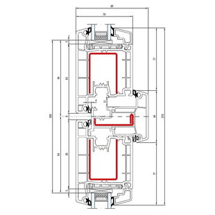
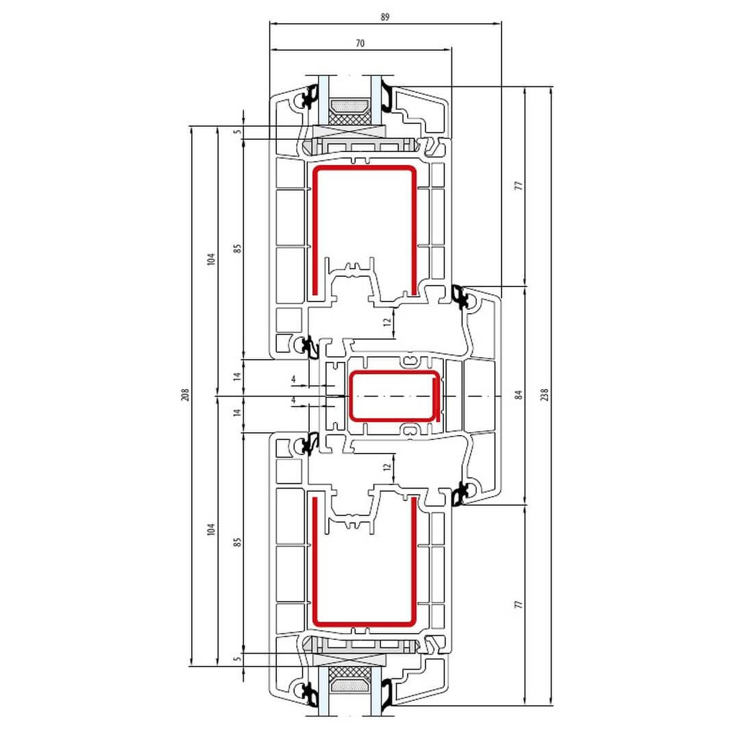
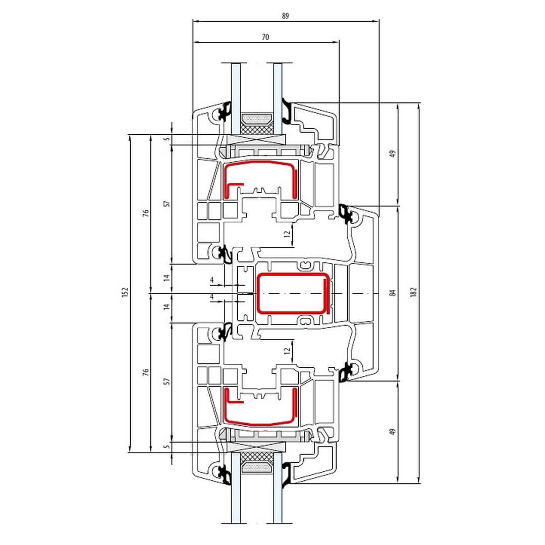
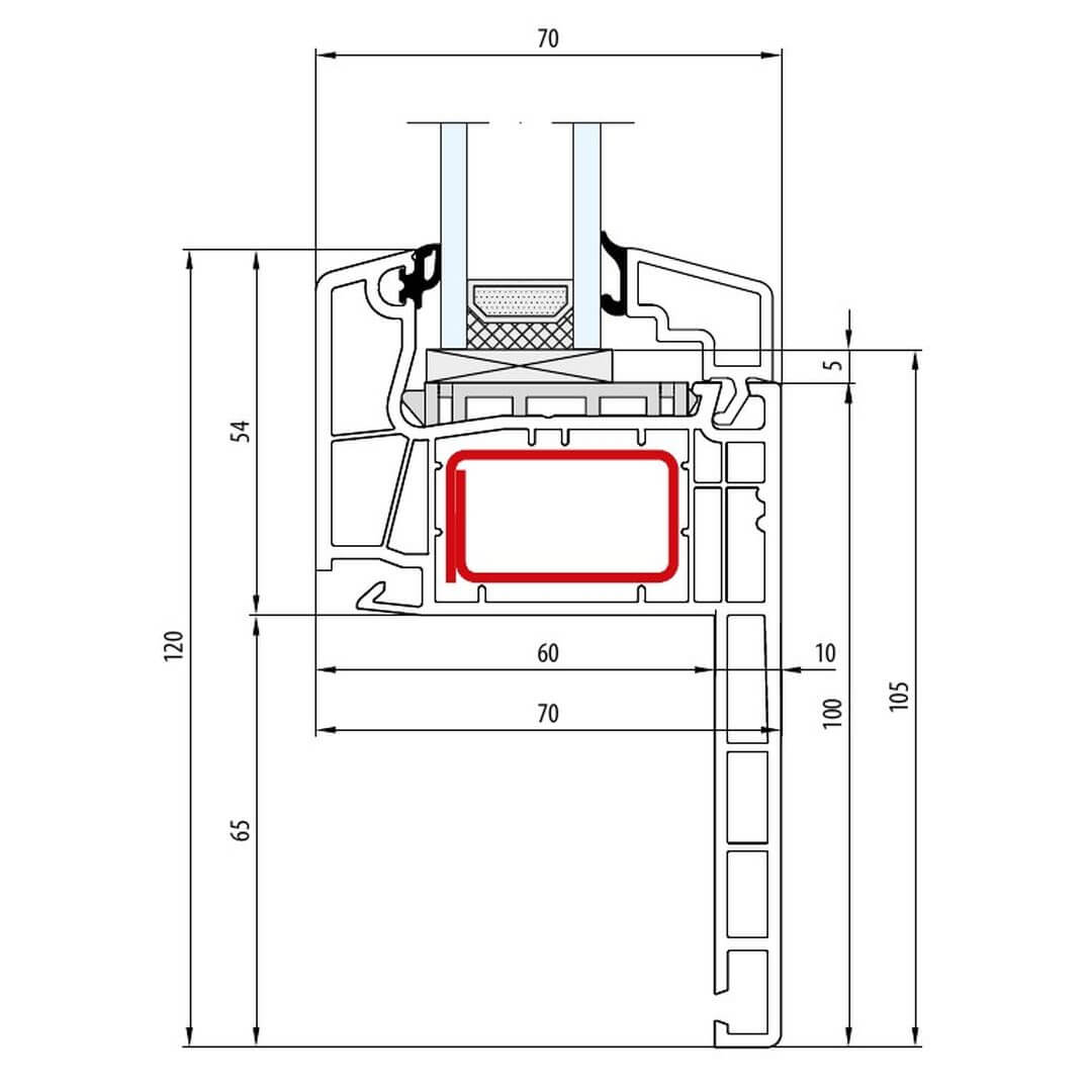
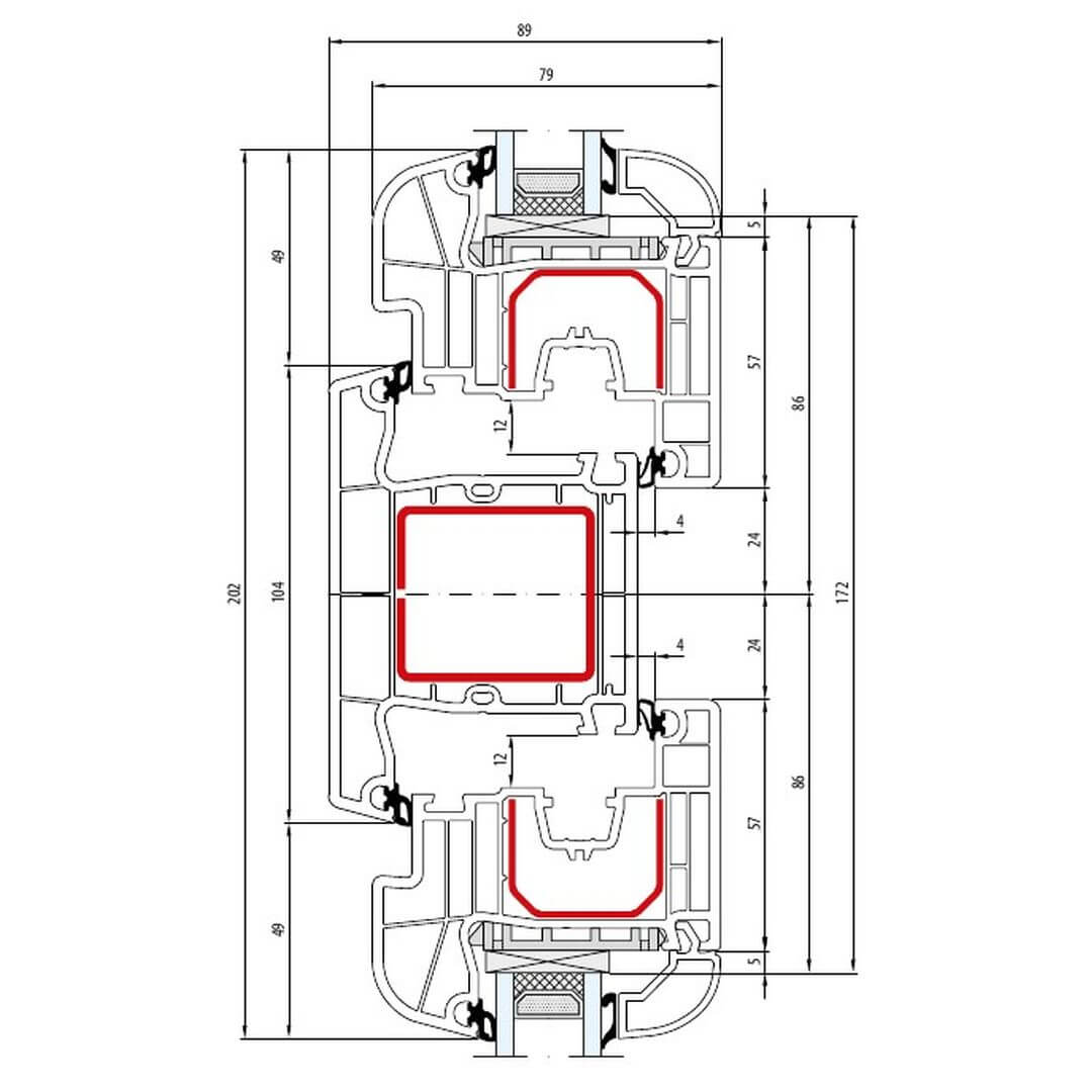
Aluplast IDEAL 4000 Pfosten 84mm 140x41

IDEAL 4000 Pfosten 84mm - 140x41

Aluplast IDEAL 4000 Pfosten 84mm Fenster Soft-Line 82mm 140x41-140x23

IDEAL 4000 Pfosten 84mm Fenster Soft-Line 82mm - 140x41-140x23

Aluplast IDEAL 4000 Pfosten 84mm Fenster Round-Line 77mm 140x41-140x22

IDEAL 4000 Pfosten 84mm Fenster Round-Line 77mm - 140x41-140x22

Aluplast IDEAL 4000 48mm Pfosten 84mm Fenster Classic-Line 77mm 140x41-140x27

IDEAL 4000 48mm Pfosten 84mm Fenster Classic-Line 77mm - 140x41-140x27

Aluplast IDEAL 4000 aussen öffnend Pfosten 84mm Classic-Line 77mm 140x41-140x37

IDEAL 4000 aussen öffnend Pfosten 84mm Classic-Line 77mm - 140x41-140x37

Kunststofffenster IDEAL 4000 mit Pfosten 104mm (Breit - Große Konstruktionen)

Aluplast IDEAL 4000 Pfosten 104mm 140x45

IDEAL 4000 Pfosten 104mm - 140x45

Aluplast IDEAL 4000 Pfosten 104mm Fenster Classic-Line 77mm 140x45-140x20

IDEAL 4000 Pfosten 104mm Fenster Classic-Line 77mm- 140x45-140x20

Aluplast IDEAL 4000 Pfosten 104mm Fenster Round-Line 77mm 140x45-140x22

IDEAL 4000 Pfosten 104mm Fenster Round-Line 77mm- 140x45-140x22

Kunststofffenster IDEAL 4000 mit Stulp 64mm

Aluplast IDEAL 4000 Stulp 64mm Fenster Classical-Line 77mm 140x66-140x20

IDEAL 4000 Stulp 64mm Fenster Classic-Line 77mm - 140x66-140x20

Aluplast IDEAL 4000 Stulp 64mm Fenster Round-Line 77mm 140x66-140x22

IDEAL 4000 Stulp 64mm Fenster Round-Line 77mm - 140x66-140x22

Kunststofffenster IDEAL 4000 mit Stulp (Sonderkonstruktionen auf Anfrage)

Aluplast IDEAL 4000 Stulp 44mm Fenster Classic-Line 140x65-140x20

IDEAL 4000 Stulp 44mm Fenster Classic-Line 77mm - 140x65-140x20

Aluplast IDEAL 4000 Stulp 44mm Fenster Round-Line 77mm 140x65-140x22

IDEAL 4000 Stulp 44mm Fenster Round-Line 77mm - 140x65-140x22

Aluplast IDEAL 4000 Stulp 32mm Fenster Classic-Line 77mm 140x76-140x20

IDEAL 4000 Stulp 32mm (Griff zentral) Fenster Classic-Line 77mm - 140x76-140x20

Aluplast IDEAL 4000 Stulp 32mm Fenster Round-Line 77mm 140x82-140x22

IDEAL 4000 Stulp 32mm (Griff zentral) Fenster Round-Line 77mm - 140x82-140x22

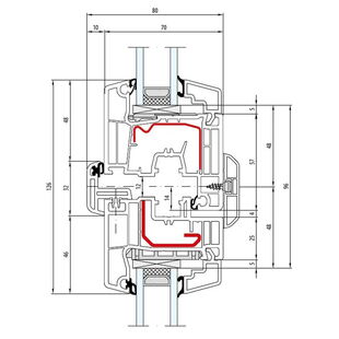
Kunststoff Balkontür IDEAL 4000

Aluplast IDEAL 4000 Fenster Classic-Line 114mm 140x01 140x20

IDEAL 4000 Balkontür Classic Line mit Blendrahmen 114mm - 140x01 140x20

Aluplast IDEAL 4000 Balkontürschwelle 20mm Classic-Line 77mm 140x20

IDEAL 4000 Balkontürschwelle 20mm Classic-Line 77mm - 140x20

Aluplast IDEAL 4000 Fenster Round-Line 114mm 140x01 140x22

IDEAL 4000 Balkontür Round-Line mit Blendrahmen 114mm - 140x01 140x22

Aluplast IDEAL 4000 Balkontürschwelle 20mm Round-Line 77mm 140x22

IDEAL 4000 Balkontürschwelle 20mm Round-Line 77mm - 140x22

Kunststoff Terrassenflügel IDEAL 4000

Aluplast IDEAL 4000 innen öffnend Classic-Line 142mm 140x01 140x30

IDEAL 4000 Terassentür innen öffnend mit Blendrahmen Classic-Line - 140x01 140x30

Aluplast IDEAL 4000 Terassentürschwelle 20mm innen öffnend Classic-Line 140x30

IDEAL 4000 Terassentürschwelle 20mm innen öffnend Classic-Line - 140x30

Aluplast IDEAL 4000 Pfosten 84mm Terassentür innen öffnend Classic-Line 140x41-140x30

IDEAL 4000 Pfosten 84mm Terassentür innen öffnend Classic-Line - 140x41-140x30

Aluplast IDEAL 4000 außen öffnend Classic-Line 142mm 140x01 140x31

IDEAL 4000 Terassentür außen öffnend mit Blendrahmen Classic-Line - 140x01 140x31

Aluplast IDEAL 4000 Terassentürschwelle 20mm aussen öffnend Classic-Line 140x31

IDEAL 4000 Terassentürschwelle 20mm aussen öffnend Classic-Line - 140x31

Aluplast IDEAL 4000 Pfosten 84mm Terassentür aussen öffnend Classic-Line 140x41-140x31

IDEAL 4000 Pfosten 84mm Terassentür aussen öffnend Classic-Line - 140x41-140x31

Terrassenflügel IDEAL 4000 mit Stulp 64mm

Aluplast IDEAL 4000 Stulp 64mm Terassentür innen öffnend Classic-Line 140x66-140x30

IDEAL 4000 Stulp 64mm Terassentür innen öffnend Classic-Line - 140x66-140x30

Aluplast IDEAL 4000 Stulp 64mm Terassentür aussen öffnend Classic-Line 140x66-140x31

IDEAL 4000 Stulp 64mm Terassentür aussen öffnend Classic-Line - 140x66-140x31

Kunststoff IDEAL 4000 PSK Parallel-Schiebe-Kipp-Tür

Kunststoff Haustür IDEAL 4000

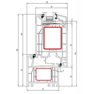
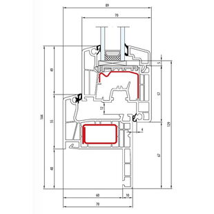
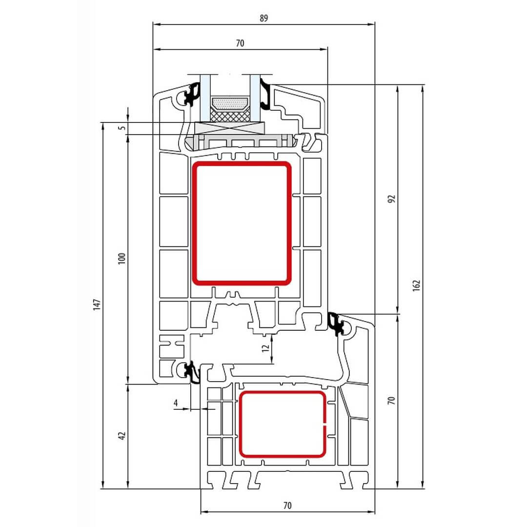
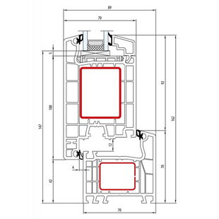
Aluplast IDEAL 4000 Tür innen öffnend Classic-Line 147mm 140x02 140x33

IDEAL 4000 Tür innen öffnend - 140x02 140x33

Aluplast IDEAL 4000 Türschwelle 20mm innen öffnend Classic-Line 140x33

IDEAL 4000 Türschwelle 20mm innen öffnend - 140x33

Aluplast IDEAL 4000 Pfosten 84mm Tür innen öffnend Classic-Line 140x41-140x33

IDEAL 4000 Pfosten 84mm Tür innen öffnend - 140x41-140x33

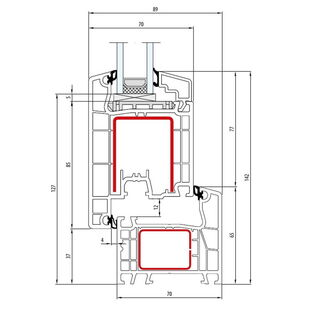
Aluplast IDEAL 4000 Tür außen öffnend Classic-Line 140x02 140x35

IDEAL 4000 Tür außen öffnend - 140x02 140x35

Aluplast IDEAL 4000 NL Türschwelle 20mm aussen öffnend Classic-Line 140x35

IDEAL 4000 NL Türschwelle 20mm aussen öffnend - 140x35

Aluplast IDEAL 4000 Pfosten 84mm Tür aussen öffnend Classic-Line 140x41-140x35

IDEAL 4000 Pfosten 84mm Tür aussen öffnend- 140x41-140x35

Türflügel IDEAL 4000 mit Stulp 64mm

Aluplast IDEAL 4000 Stulp 64mm Tür innen öffnend Classic-Line 140x66-140x33

IDEAL 4000 Stulp 64mm Tür innen öffnend - 140x66-140x33

Aluplast IDEAL 4000 Stulp 64mm Tür aussen öffnend Classic-Line 140x66-140x35

IDEAL 4000 Stulp 64mm Tür aussen öffnend - 140x66-140x35

Zusatzprofile für aluplast IDEAL 4000 Querschnitte

Kunststoff Sprossenarten - Ideal 4000

Innenliegende SZR Sprossen / Helima Sprossen

Drutex Iglo SZR Sprosse 8mm

Innenliegende Sprosse 8mm

Drutex Iglo SZR Sprosse 18mm

Innenliegende Sprosse 18mm

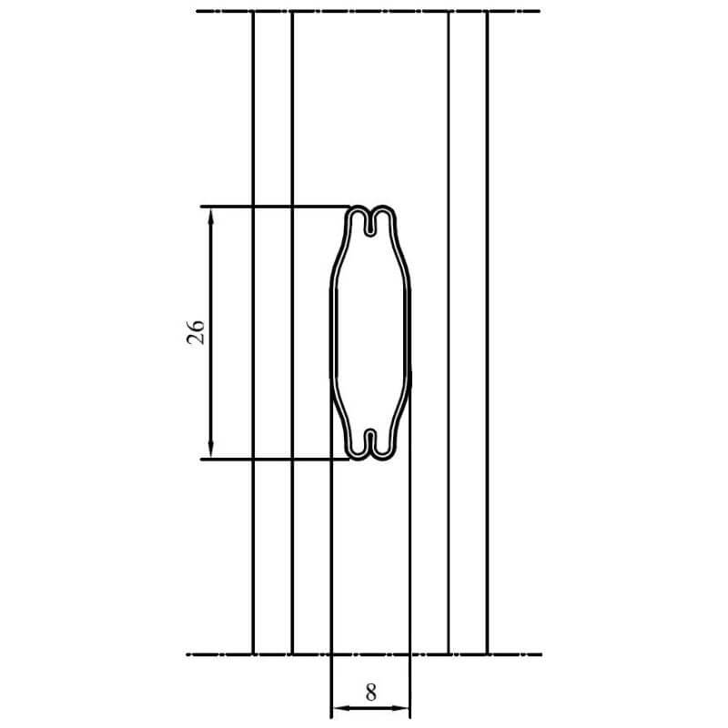
Drutex Iglo SZR Sprosse 26mm

Innenliegende Sprosse 26mm

Drutex Iglo SZR Sprosse 45mm

Innenliegende Sprosse 45mm

Aufgesetzte / Aufgeklebte Sprossen

Aluplast 160376 - aufgesetzte Sprossen - 26mm

160376 - aufgesetzte Sprossen - 26mm

Aluplast 160378 - aufgesetzte Sprossen - 46mm

160378 - aufgesetzte Sprossen - 46mm

Aluplast 160479 - aufgesetzte Sprossen - 66mm

160479 - aufgesetzte Sprossen - 66mm

Glasteilende Sprossen - Kämpfer

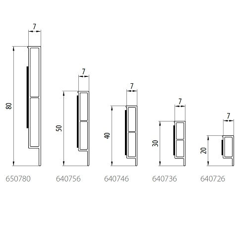
Aluplast IDEAL 4000 Pfosten 84mm 140x41

IDEAL 4000 Kämpfer-Sprosse 70mm 84mm - 140x41

Aluplast IDEAL 4000 Pfosten 104mm 140x45

IDEAL 4000 Kämpfer-Sprosse 104mm - 140x45

Kunststoff Anschlussprofile - Ideal 4000

Kunststoff Bankanschlussprofile

Aluplast 144247 - Fensterbankanschluss - 30mm

144247 - Fensterbankanschluss - 30mm

Aluplast 120238 - Fensterbankanschluss - 50mm

120238 - Fensterbankanschluss - 50mm

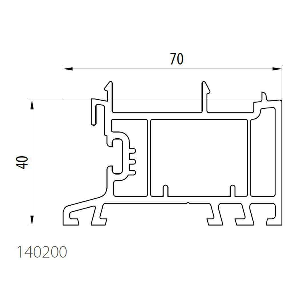
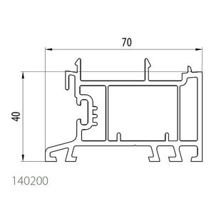
Aluplast 140200 - Fensterbankanschluss - 40mm

140200 - Fensterbankanschluss - 40mm

Kunststoff Steinbankanschlussprofile

Aluplast 120206 - Steinbankanschluss - 25mm

120206 - Steinbankanschluss - 25mm

Aluplast 120208 - Steinbankanschluss - 30mm

120208 - Steinbankanschluss - 30mm

Aluplast 120209 - Steinbankanschluss - 40mm

120209 - Steinbankanschluss - 40mm

Aluplast 120210 - Steinbankanschluss - 50mm

120210 - Steinbankanschluss - 50mm

Kunststoff Anschlussprofile (bündig)

Aluplast 140277 - Bankanschlussprofil - 10mm

140277 - Bankanschlussprofil - 10mm

Aluplast 120106 - Bankanschlussprofil - 20mm

120106 - Bankanschlussprofil - 20mm

Aluplast 120236 - Bankanschlussprofil - 15mm

120236 - Bankanschlussprofil - 15mm

Aluplast 120237 - Bankanschlussprofil - 30mm

120237 - Bankanschlussprofil - 30mm

Aluplast 120102 - Bankanschlussprofil - 50mm

120102 - Bankanschlussprofil - 50mm

Kunststoff Fensterbank-Anschlussprofile

Aluplast 140229 - Fensterbank - 42,5mm - außen

140229 - Fensterbank - 42,5mm - außen

Aluplast 120190 - Fensterbank - 115,5mm - außen

120190 - Fensterbank - 115,5mm - außen

Aluplast 120246 - Fensterbank - 50mm - außen

120246 - Fensterbank - 50mm - außen

Aluplast 120248 - Fensterbank - 55mm - außen

120248 - Fensterbank - 55mm - außen

Aluplast 120249 - Fensterbank - 90mm - außen

120249 - Fensterbank - 90mm - außen

Aluplast 140238 - Fensterbank - 80mm - außen

140238 - Fensterbank - 80mm - außen

Aluplast 100220 - Fensterbank - 85mm - außen

100220 - Fensterbank - 85mm - außen

Aluplast 120108 - Fensterbank - 115mm - außen

120108 - Fensterbank - 115mm - außen

600020, 600220, 650921, 620249 - Fensterbank - Endkappe

600020, 600220, 650921, 620249 - Fensterbank - Endkappe

Kunststoff Zargenprofile

Aluplast 120196 - Zarge - 40mm - 102mm

120196 - Zarge - 40mm - 102mm

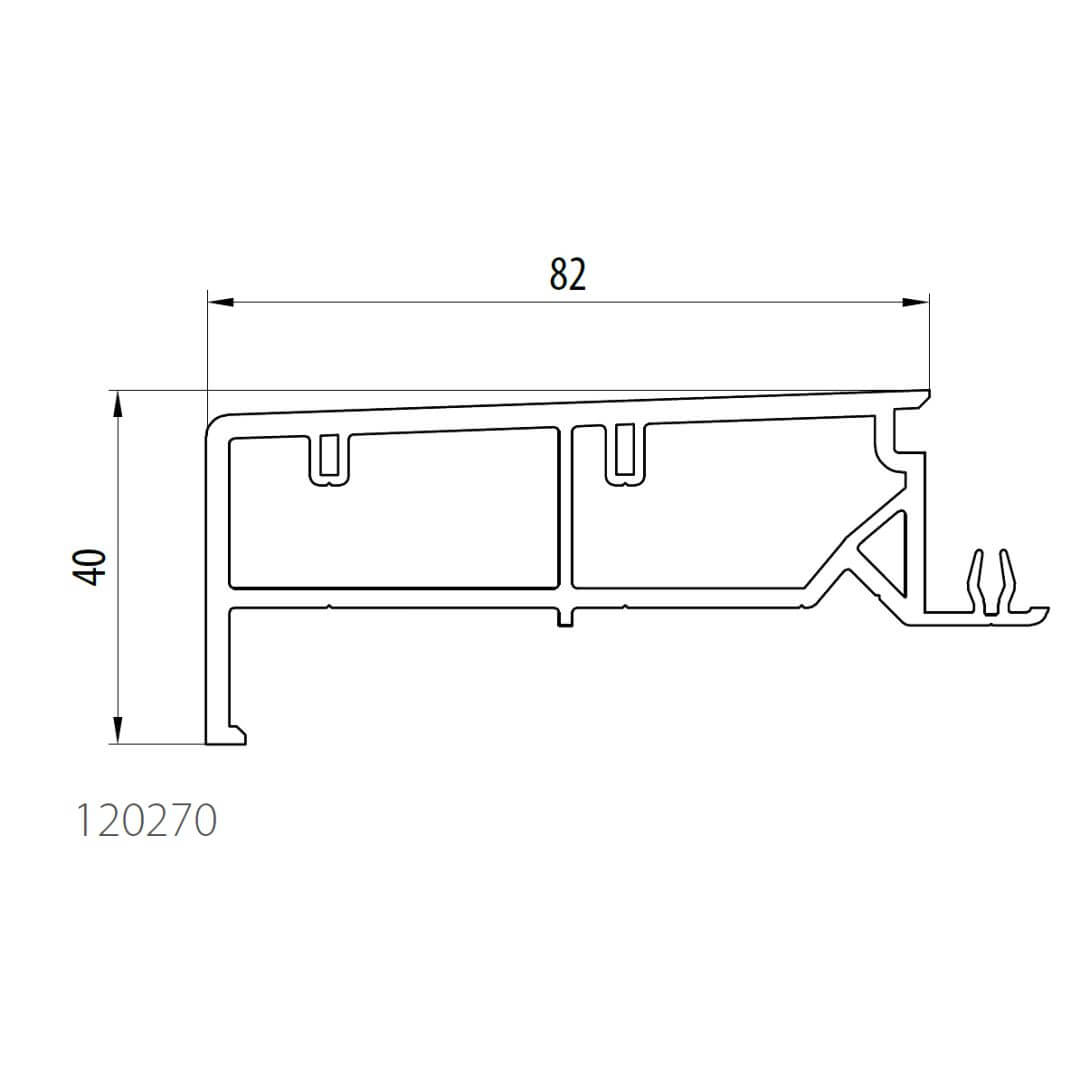
Aluplast 120270 - Zarge - 40mm - 82mm

120270 - Zarge - 40mm - 82mm

Aluplast 120195 - Zarge - 40mm - 62mm

120195 - Zarge - 40mm - 62mm

Aluplast 120194 - Zarge - 40mm - 42mm

120194 - Zarge - 40mm - 42mm

Aluplast 120193 - Zarge - 40mm - 22mm

120193 - Zarge - 40mm - 22mm

Kunststoff Rahmenverbreiterung - Ideal 4000

Aluplast 140227 - Rahmenverbreiterung - 2mm

140227 - Rahmenverbreiterung - 2mm

Aluplast 140209 - Rahmenverbreiterung - 15mm

140209 - Rahmenverbreiterung - 15mm

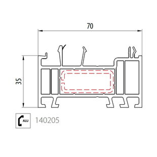
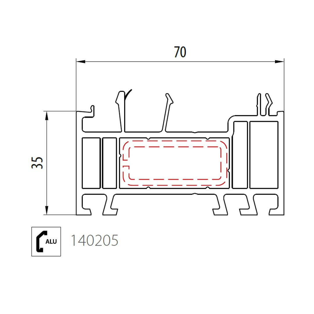
Aluplast 140205 - Rahmenverbreiterung - 35mm

140205 - Rahmenverbreiterung - 35mm

Aluplast 140207 - Rahmenverbreiterung - 60mm

140207 - Rahmenverbreiterung - 60mm

Aluplast 140208 - Rahmenverbreiterung - 100mm

140208 - Rahmenverbreiterung - 100mm

Kunststoff Kopplungen - Ideal 4000

Aluplast 120116 - Federkopplung

120116 - Federkopplung

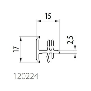
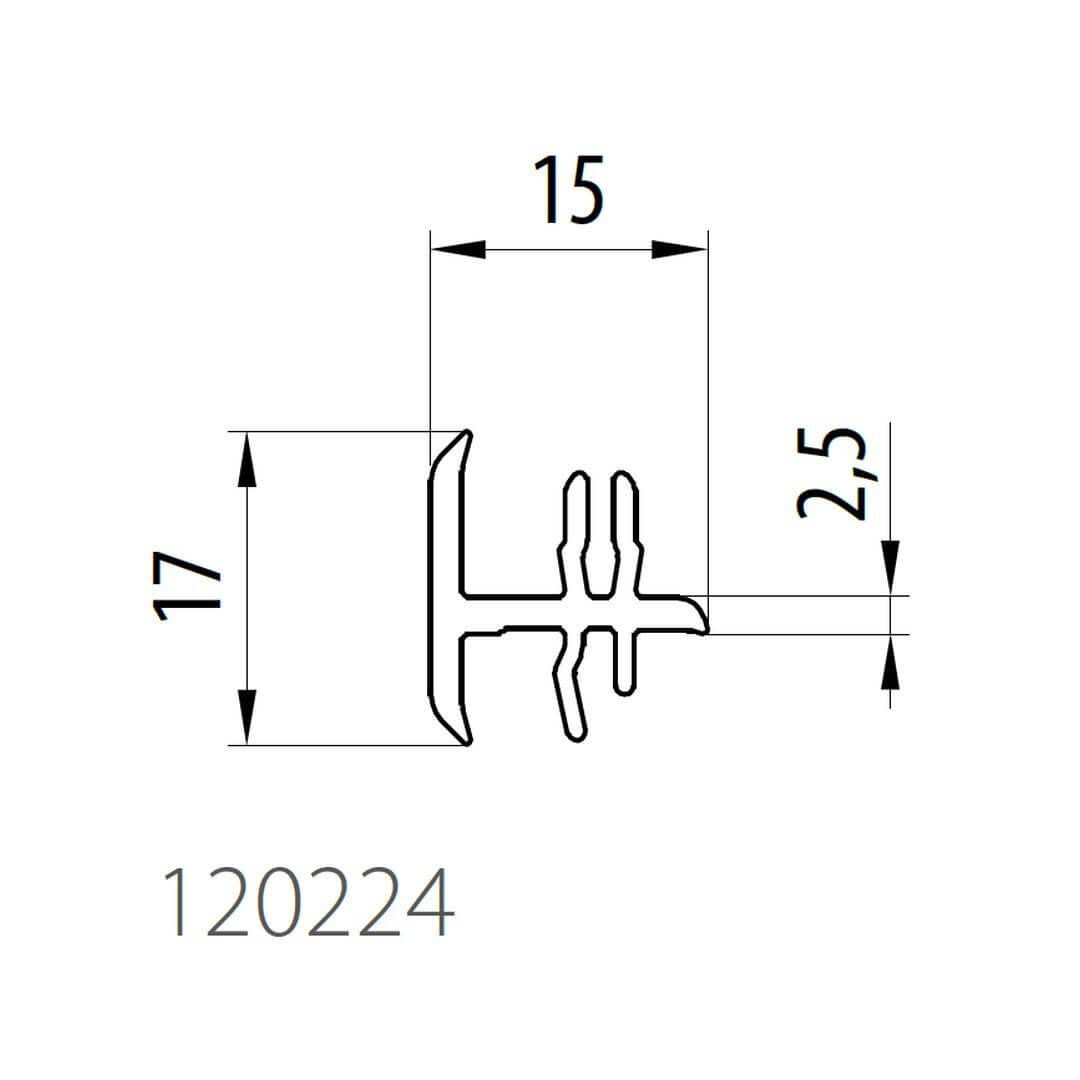
Aluplast 120224 - H - Kopplung - universal

120224 - H - Kopplung - universal

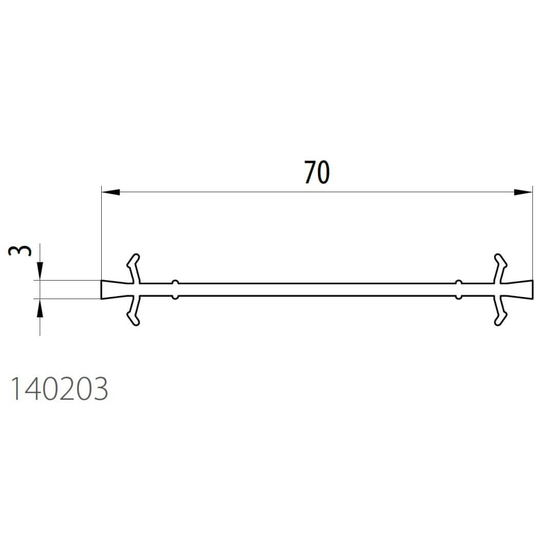
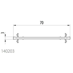
Aluplast 140203 - H - Kopplung

140203 - H - Kopplung

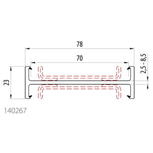
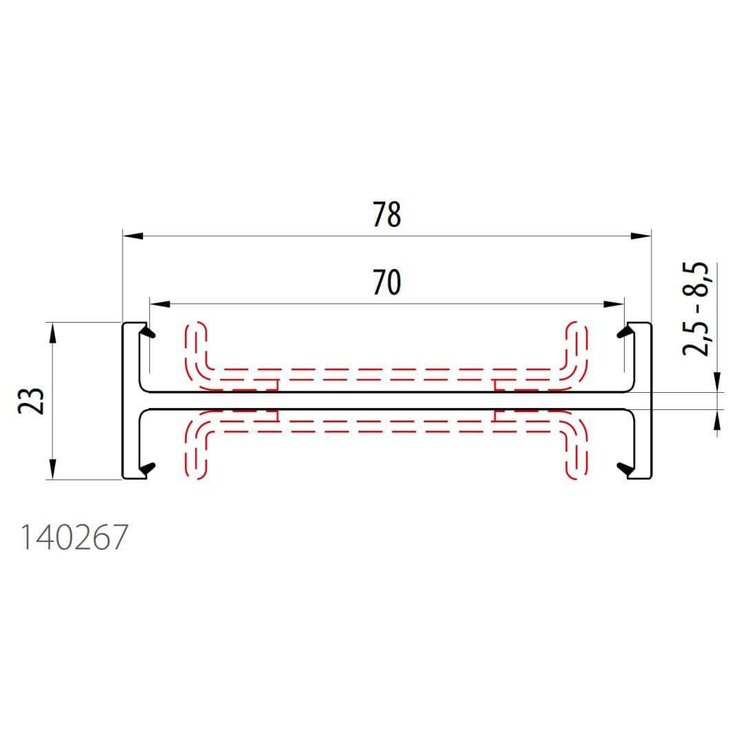
Aluplast 140267 - H - Federkopplung - optional - Stahl

140267 - H - Kopplung - optional - Stahl

Aluplast 120219 - Statikkopplung - 9mm

120219 - Statikkopplung - 9mm

Aluplast 140218 - Statikkopplung - 21mm

140218 - Statikkopplung - 21mm

Aluplast 120109 - Statikprofil

120109 - Statikprofil

Kopplung von Eck-Elementen - 90° und Variabel

Aluplast 140243 -140244 - Eckkopplung - variabel

140243 -140244 - Eckkopplung - variabel

Aluplast 140248 - Eckkopplung - 90 Grad

140248 - Eckkopplung - 90 Grad

Aluplast 140249 - Eckkopplung - 135 Grad

140249 - Eckkopplung - 135 Grad

Kunststoff Abdeckleisten - Ideal 4000

Aluplast Flachleisten aus Kunststoff Auswahl 65025100, 6465050, 65025080, 65025070, 65025050, 65025040, 65025030

65025100, 6465050, 65025080, 65025070, 65025050, 65025040, 65025030 - Flachleiste aus Kunststoff Auswahl

Aluplast Flachleisten mit Dichtlippe 120120, 120283

120120, 120283 - Flachleiste mit Dichtlippe Auswahl

Aluplast Deckleisten mit Hohlkammerprofil Auswahl

Hohlkammerprofil Deckleiste Auswahl

Winkelprofile aus Kunststoff 73100060, 73080050, 73060040, 73020020

73100060, 73080050, 73060040, 73020020 - Winkelprofil aus Kunststoff

Aluplast Winkelprofile aus Kunststoff 120292, 120291

120292, 120291 - Winkelprofil aus Kunststoff

Aluplast Hohlkammer Winkelprofil aus Kunststoff 120299, 120297, 120289, 120284

120299, 120297, 120289, 120284 - Hohlkammer Winkelprofil aus Kunststoff

Kunststoff Weitere Profile - Ideal 4000

Aluplast 140276

140276 - Distanzprofil 40mm

Aluplast 140275

140275 - Distanzprofil 22mm

Aluplast 140107

140107 - Wetterschenkel

Aluplast kozijnen en deuren op maat

Configureer en bestel eenvoudig en comfortabel Aluplast ramen en deuren online bij kozijnenblik.nl

Das könnte Sie auch interessieren:

Kunststofffenster IDEAL 5000

Detailzeichnungen Kunststofffenster IDEAL 5000 Slim

Kunststofffenster IDEAL 5000 besitzen eine Bautiefe (Rahmen) von 70mm.

Detailzeichnungen IDEAL 5000

Kunststofffenster IDEAL 7000

Detailzeichnungen Kunststofffenster IDEAL 7000

Kunststofffenster IDEAL 7000 besitzen eine Bautiefe (Rahmen) von 85mm.

Detailzeichnungen IDEAL 7000