Detailzeichnungen Aluplast energeto Neo

Kunststofffensterprofil energeto Neo Querschnitte

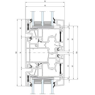
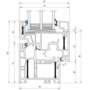
Aluplast energeto Neo  Festverglasung 73mm 060x05

energeto Neo Festverglasung 73mm 060x05

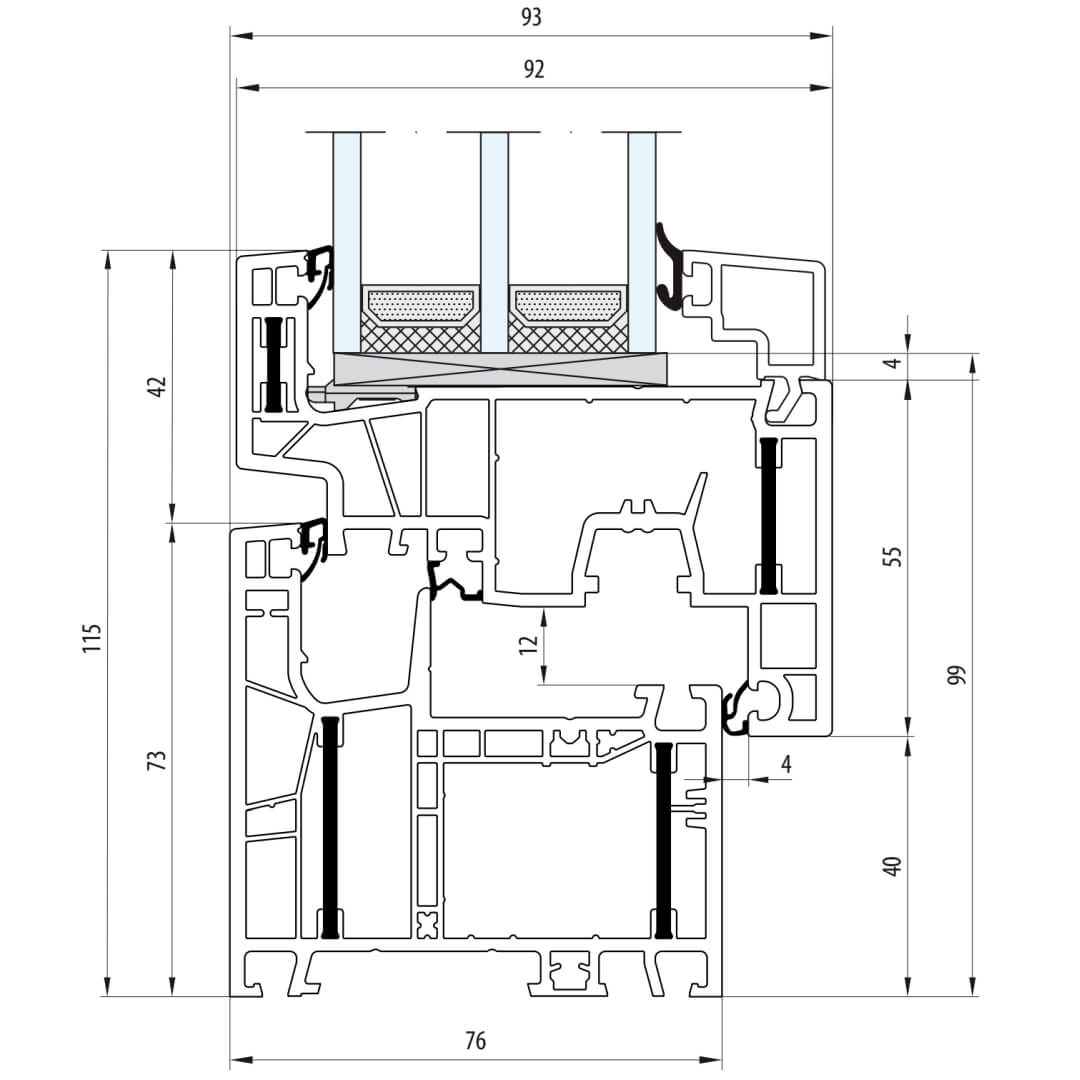
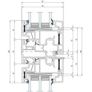
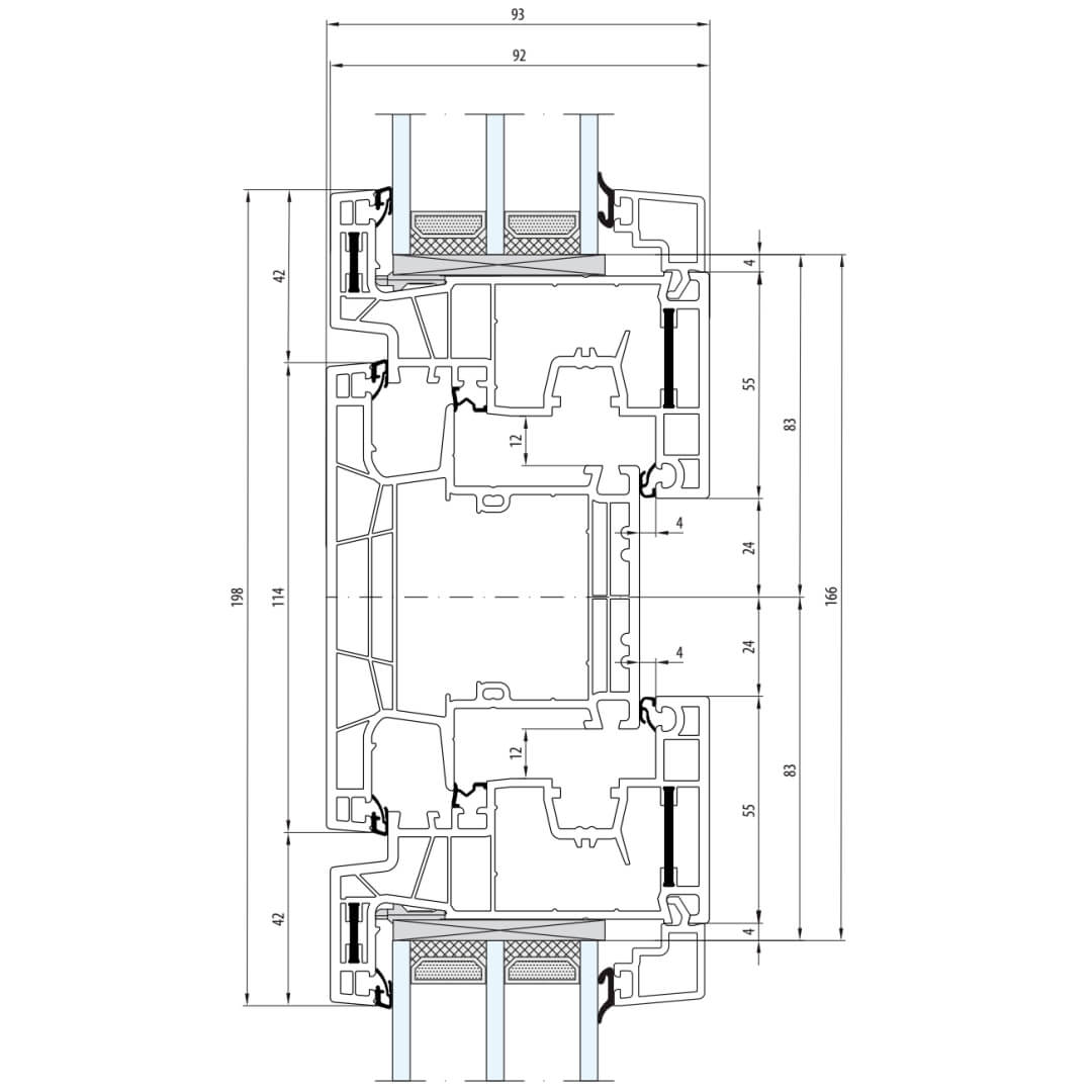
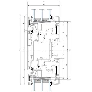
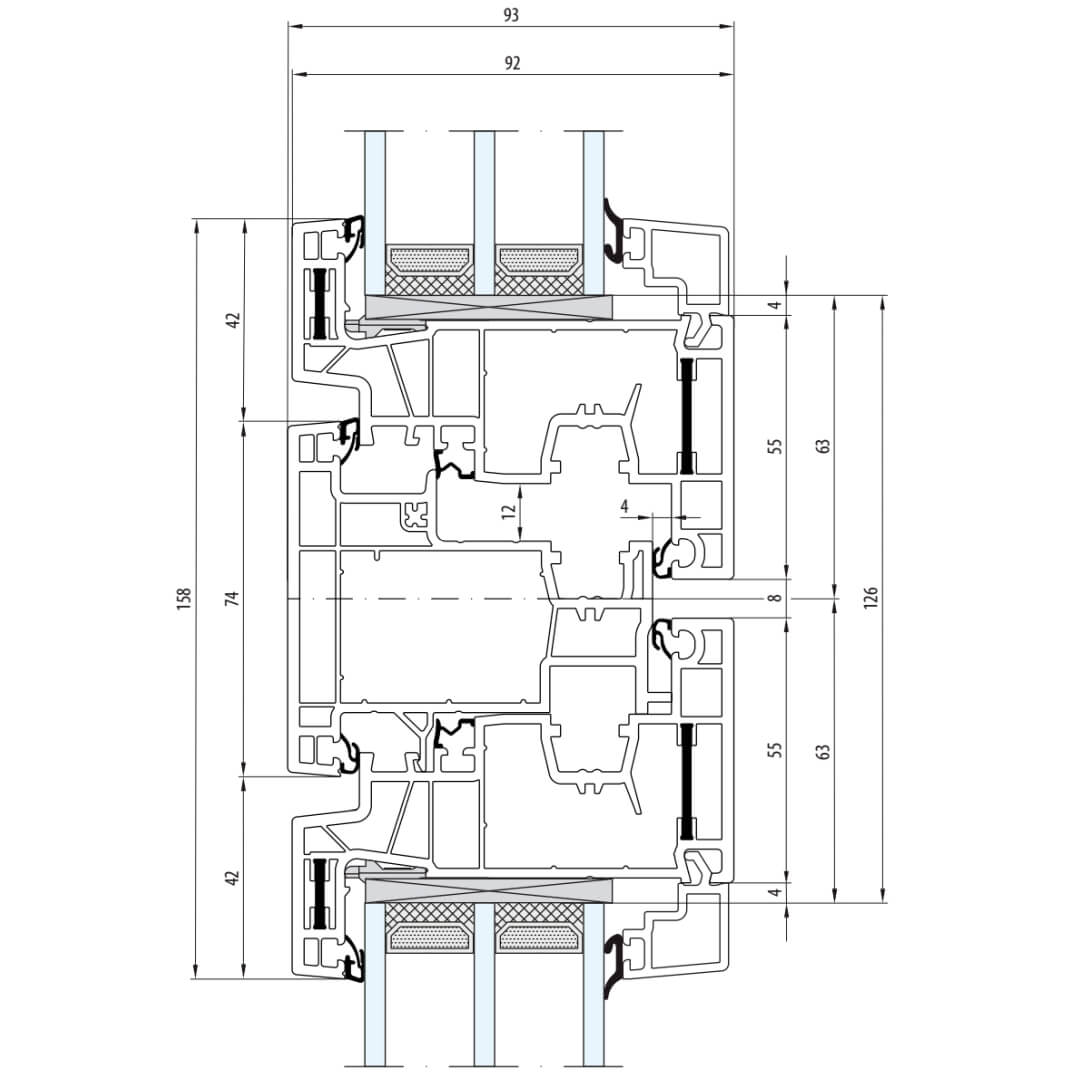
Aluplast energeto Fenster - Cube-Line 115mm 060x05 060x27

energeto Fenster - Cube-Line 115mm 060x05 060x27

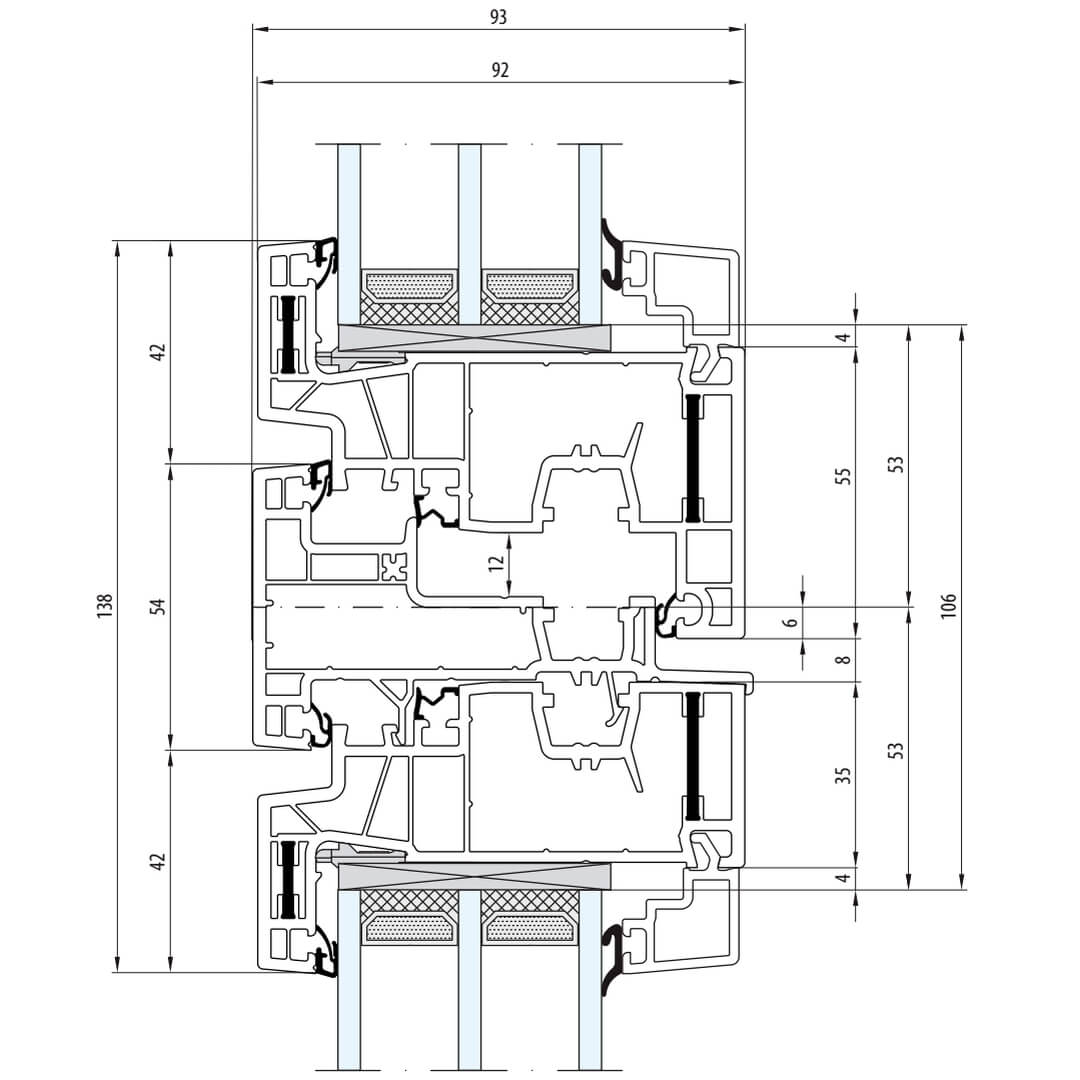
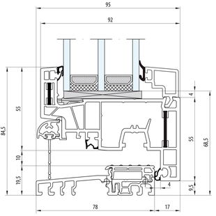
Kunststofffenster energeto Neo mit Pfosten 94mm (Schmal)

Aluplast energeto Neo Pfosten 94mm - 160x45

energeto Neo Pfosten 94mm - 160x45

Aluplast energeto Neo Pfosten 94mm Fenster 160x45 060x27

energeto Neo Pfosten 94mm Fenster 160x45 060x27

Kunststofffenster energeto Neo mit Pfosten 114mm (Breit - Große Konstruktionen)

Aluplast IDEAL Neo Pfosten 114mm 160x43

IDEAL Neo Pfosten 114mm - 160x43

Aluplast energeto Neo Pfosten 114mm Fenster 160x46 060x27

energeto Neo Pfosten 114mm Fenster 160x46 060x27

Kunststofffenster energeto Neo mit Stulp 74mm

Aluplast energeto Neo Stulp 74mm Fenster 160x66 060x27

energeto Neo Stulp 74mm Fenster 160x66 060x27

Kunststofffenster energeto Neo mit Stulp 54mm (Sonderkonstruktionen auf Anfrage)

Aluplast energeto Neo Stulp 54mm Fenster 160x64 060x27

energeto Neo Stulp 54mm Fenster 160x64 060x27

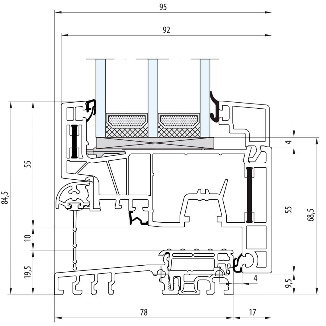
Kunststoff Balkontür energeto Neo

Aluplast energeto Balkontür Cube-Line mit Blendrahmen 115mm 060x05 060x27

energeto Balkontür Cube-Line mit Blendrahmen 115mm 060x05 060x27

Aluplast energeto Neo Balkontürschwelle 20mm Cube-Line 060x27

energeto Neo Balkontürschwelle 20mm Cube-Line 060x27

Zusatzprofile für aluplast energeto Neo Querschnitte

Kunststoff Sprossenarten - energeto Neo

Innenliegende SZR Sprossen / Helima Sprossen

Drutex Iglo SZR Sprosse 8mm

Innenliegende Sprosse 8mm

Drutex Iglo SZR Sprosse 18mm

Innenliegende Sprosse 18mm

Drutex Iglo SZR Sprosse 26mm

Innenliegende Sprosse 26mm

Drutex Iglo SZR Sprosse 45mm

Innenliegende Sprosse 45mm

Aufgesetzte / Aufgeklebte Sprossen

Aluplast 160376 - aufgesetzte Sprossen - 26mm

160376 - aufgesetzte Sprossen - 26mm

Aluplast 160378 - aufgesetzte Sprossen - 46mm

160378 - aufgesetzte Sprossen - 46mm

Aluplast 160479 - aufgesetzte Sprossen - 66mm

160479 - aufgesetzte Sprossen - 66mm

Glasteilende Sprossen - Kämpfer

Kunststoff Anschlussprofile - energeto Neo

Kunststoff Bankanschlussprofile

Aluplast 144247 - Fensterbankanschluss - 30mm

144247 - Fensterbankanschluss - 30mm

Kunststoff Steinbankanschlussprofile

Aluplast 120206 - Steinbankanschluss - 25mm

120206 - Steinbankanschluss - 25mm

Aluplast 120208 - Steinbankanschluss - 30mm

120208 - Steinbankanschluss - 30mm

Aluplast 120209 - Steinbankanschluss - 40mm

120209 - Steinbankanschluss - 40mm

Aluplast 120210 - Steinbankanschluss - 50mm

120210 - Steinbankanschluss - 50mm

Kunststoff Anschlussprofile (bündig)

Aluplast 140277 - Bankanschlussprofil - 10mm

140277 - Bankanschlussprofil - 10mm

Aluplast 120106 - Bankanschlussprofil - 20mm

120106 - Bankanschlussprofil - 20mm

Aluplast 120236 - Bankanschlussprofil - 15mm

120236 - Bankanschlussprofil - 15mm

Aluplast 120237 - Bankanschlussprofil - 30mm

120237 - Bankanschlussprofil - 30mm

Aluplast 120102 - Bankanschlussprofil - 50mm

120102 - Bankanschlussprofil - 50mm

Kunststoff Fensterbank-Anschlussprofile

Aluplast 120190 - Fensterbank - 115,5mm - außen

120190 - Fensterbank - 115,5mm - außen

Aluplast 120246 - Fensterbank - 50mm - außen

120246 - Fensterbank - 50mm - außen

Aluplast 120248 - Fensterbank - 55mm - außen

120248 - Fensterbank - 55mm - außen

Kunststoff Zargenprofile

Aluplast 120196 - Zarge - 40mm - 102mm

120196 - Zarge - 40mm - 102mm

Aluplast 120270 - Zarge - 40mm - 82mm

120270 - Zarge - 40mm - 82mm

Aluplast 120195 - Zarge - 40mm - 62mm

120195 - Zarge - 40mm - 62mm

Aluplast 120194 - Zarge - 40mm - 42mm

120194 - Zarge - 40mm - 42mm

Aluplast 120193 - Zarge - 40mm - 22mm

120193 - Zarge - 40mm - 22mm

Kunststoff Rahmenverbreiterung - energeto Neo

Aluplast 160227 - Rahmenverbreiterung - 2mm

160227 - Rahmenverbreiterung - 2mm

Aluplast 160201- Rahmenverbreiterung - 15mm

160201 - Rahmenverbreiterung - 15mm

Aluplast 160202 - Rahmenverbreiterung - 35mm

160202 - Rahmenverbreiterung - 35mm

Aluplast 160204 - Rahmenverbreiterung - 100mm

160204 - Rahmenverbreiterung - 100mm

Kunststoff Kopplungen - energeto Neo

Aluplast 120116 - Federkopplung

120116 - Federkopplung

Aluplast 120224 - H - Kopplung - universal

120224 - H - Kopplung - universal

Aluplast 160267 - H - Kopplung

160267 - H - Kopplung

Aluplast 160267 - H - Federkopplung - optional - Stahl

160267 - H - Kopplung - optional - Stahl

Aluplast 120219 - Statikkopplung - 9mm

120219 - Statikkopplung - 9mm

Aluplast 160218 - Statikkopplung - 21mm

160218 - Statikkopplung - 21mm

Aluplast 120109 - Statikprofil

120109 - Statikprofil

Kopplung von Eck-Elementen - 90° und Variabel

Kunststoff Abdeckleisten - energeto Neo

Aluplast Flachleisten aus Kunststoff Auswahl 65025100, 6465050, 65025080, 65025070, 65025050, 65025040, 65025030

65025100, 6465050, 65025080, 65025070, 65025050, 65025040, 65025030 - Flachleiste aus Kunststoff Auswahl

Aluplast Flachleisten mit Dichtlippe 120120, 120283

120120, 120283 - Flachleiste mit Dichtlippe Auswahl

Aluplast Deckleisten mit Hohlkammerprofil Auswahl

Hohlkammerprofil Deckleiste Auswahl

Winkelprofile aus Kunststoff 73100060, 73080050, 73060040, 73020020

73100060, 73080050, 73060040, 73020020 - Winkelprofil aus Kunststoff

Aluplast Winkelprofile aus Kunststoff 120292, 120291

120292, 120291 - Winkelprofil aus Kunststoff

Aluplast Hohlkammer Winkelprofil aus Kunststoff 120299, 120297, 120289, 120284

120299, 120297, 120289, 120284 - Hohlkammer Winkelprofil aus Kunststoff

Kunststoff Weitere Profile - energeto Neo

Aluplast 140276

140276 - Distanzprofil 40mm

Aluplast 140275

140275 - Distanzprofil 22mm

Aluplast 140107

140107 - Wetterschenkel

Aluplast kozijnen en deuren op maat

Configureer en bestel eenvoudig en comfortabel Aluplast ramen en deuren online bij kozijnenblik.nl

Das könnte Sie auch interessieren:

Kunststofffenster energeto 8000

Detailzeichnungen Kunststofffenster energeto 8000

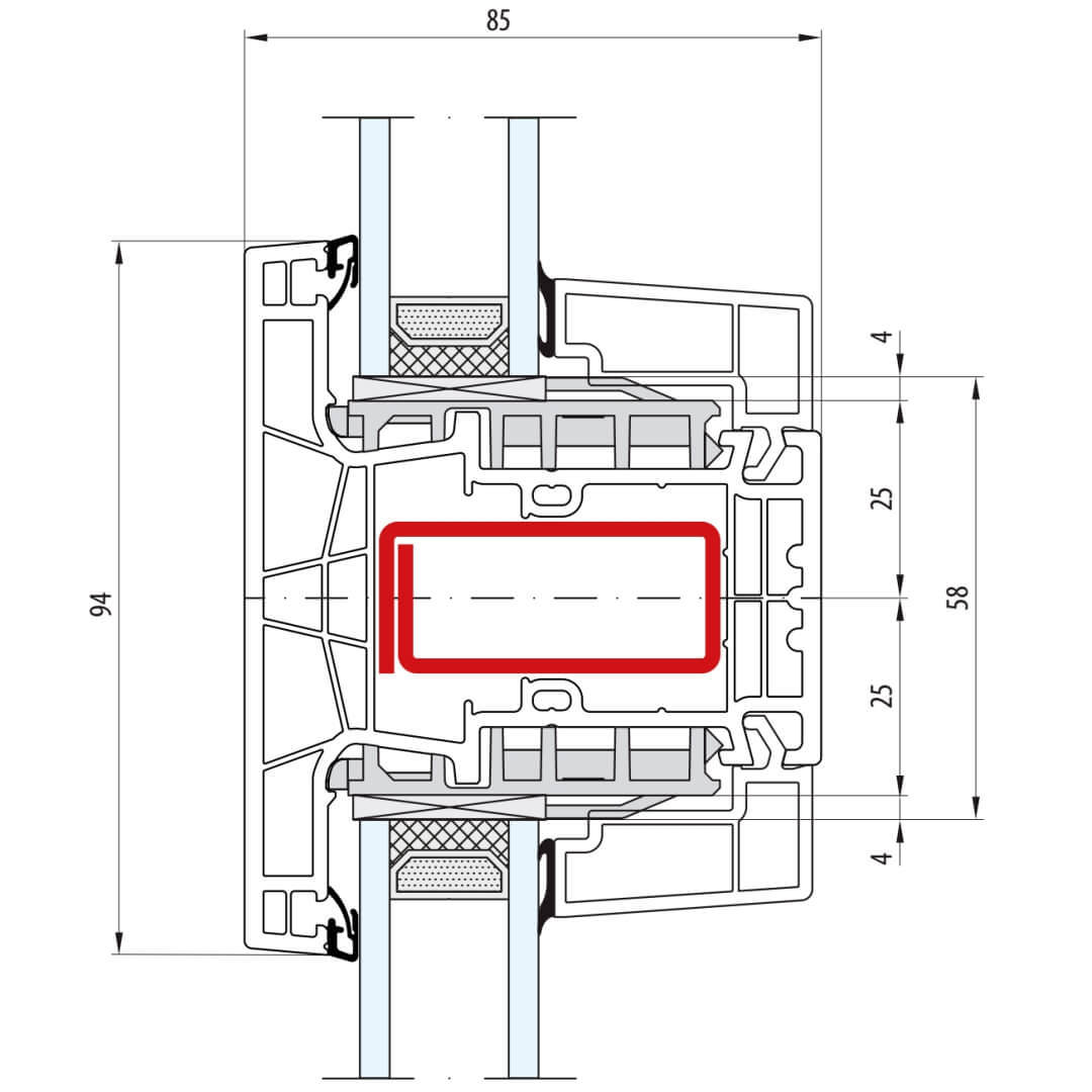
Kunststofffenster energeto 8000 besitzen eine Bautiefe (Rahmen) von 85mm.

Detailzeichnungen energeto 8000

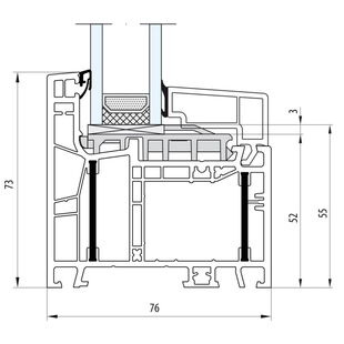
Kunststofffenster IDEAL Neo

Detailzeichnungen Kunststofffenster IDEAL Neo

Kunststofffenster IDEAL Neo besitzen eine Bautiefe (Rahmen) von 76mm.

Detailzeichnungen IDEAL Neo