Detailzeichnungen Gealan S 9000

Kunststofffensterprofil Gealan S 9000 Querschnitte

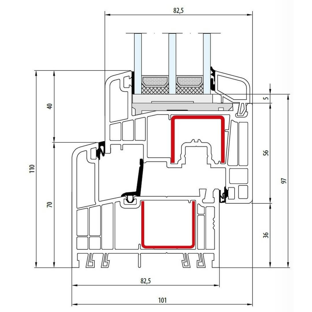
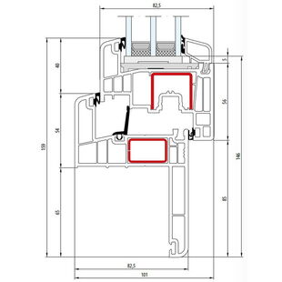
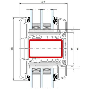
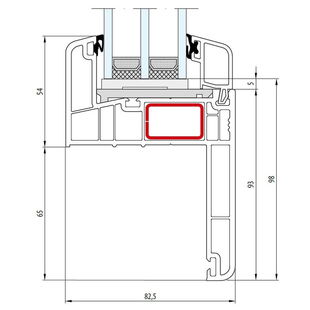
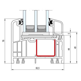
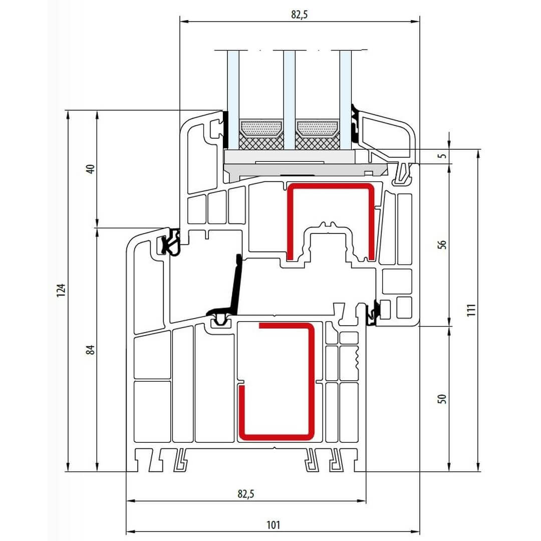
Gealan S 9000 Festverglasung 70mm - 6002

Gealan S 9000 Festverglasung 70mm - 6002

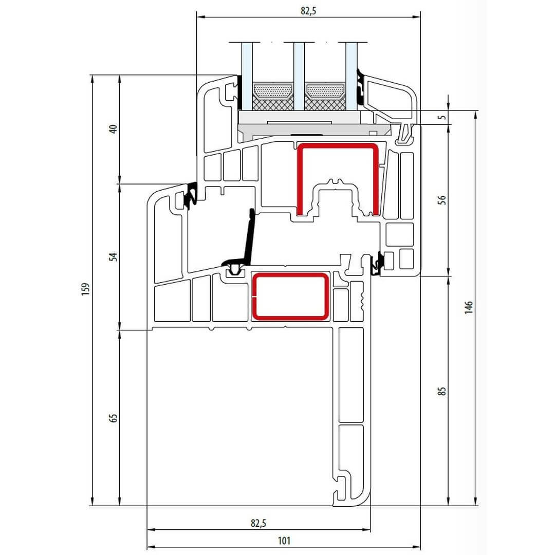
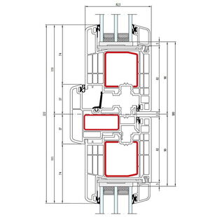
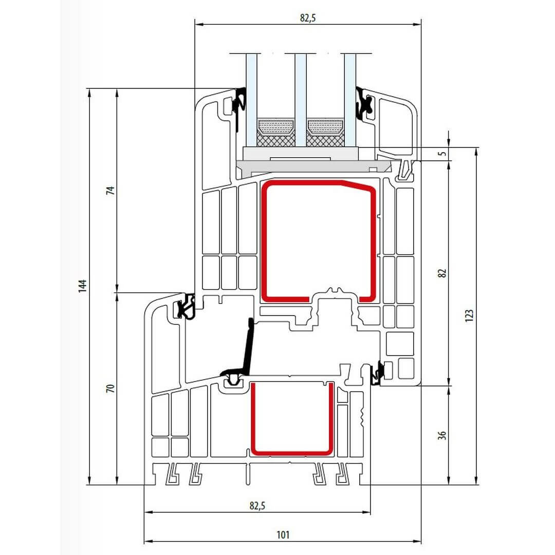
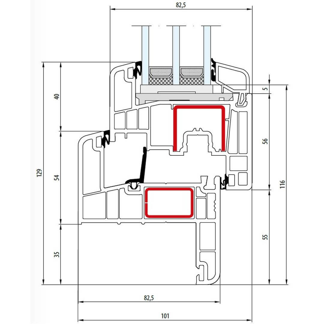
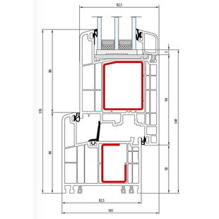
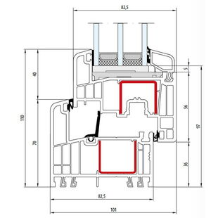
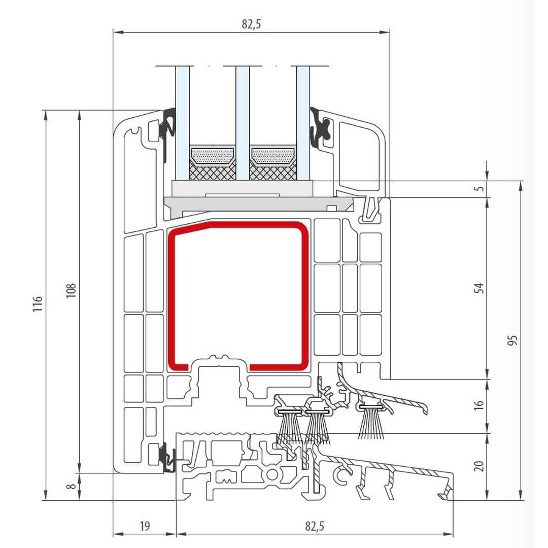
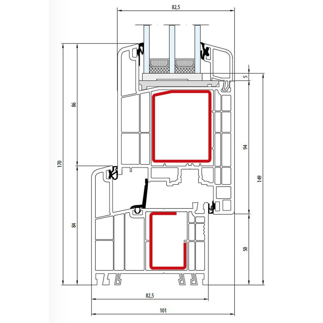
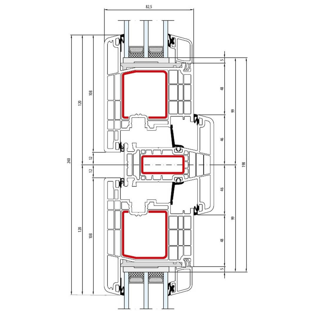
Gealan S 9000 Fenster Classic-Line 110mm mit STV - 6002 - 6079

Gealan S 9000 Fenster Classic-Line 110mm mit STV - 6002 - 6079

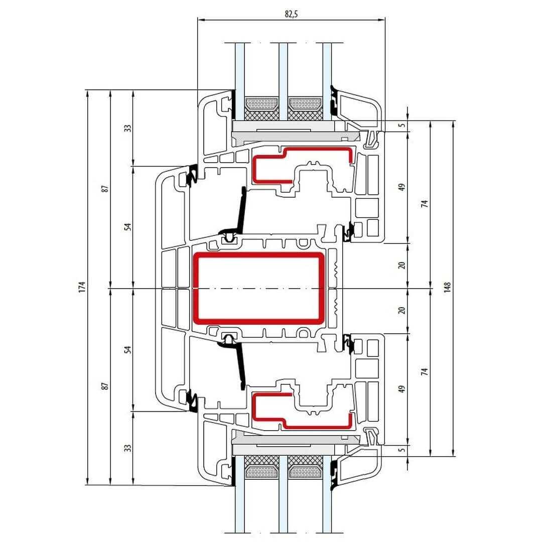
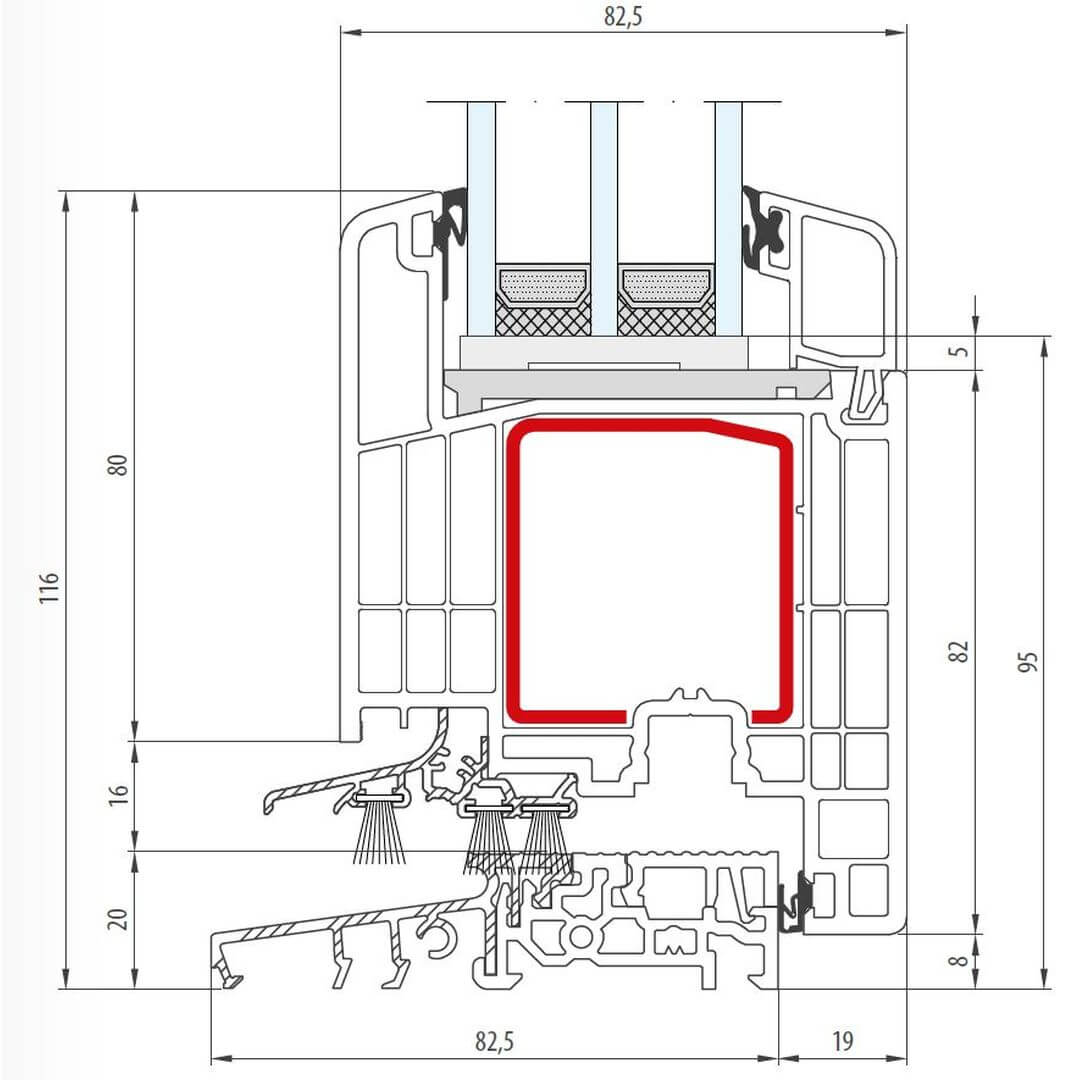
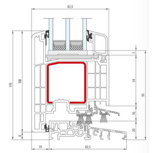
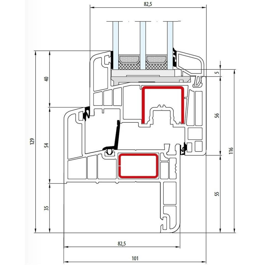
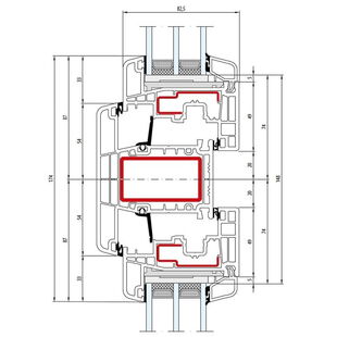
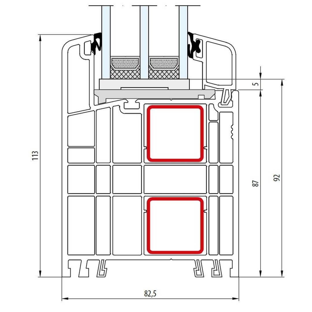
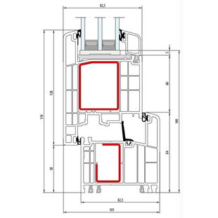
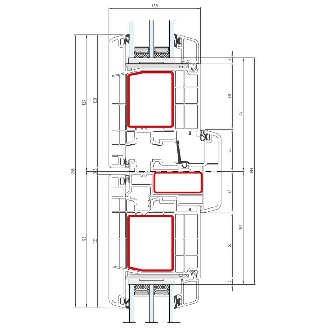
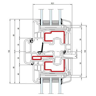
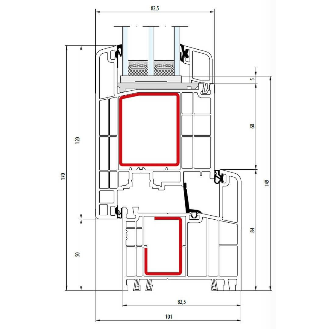
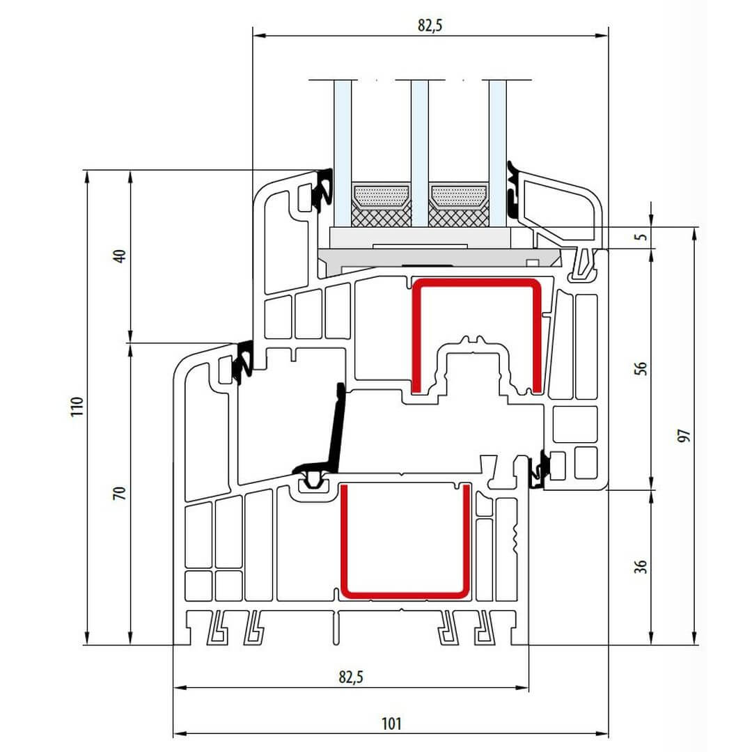
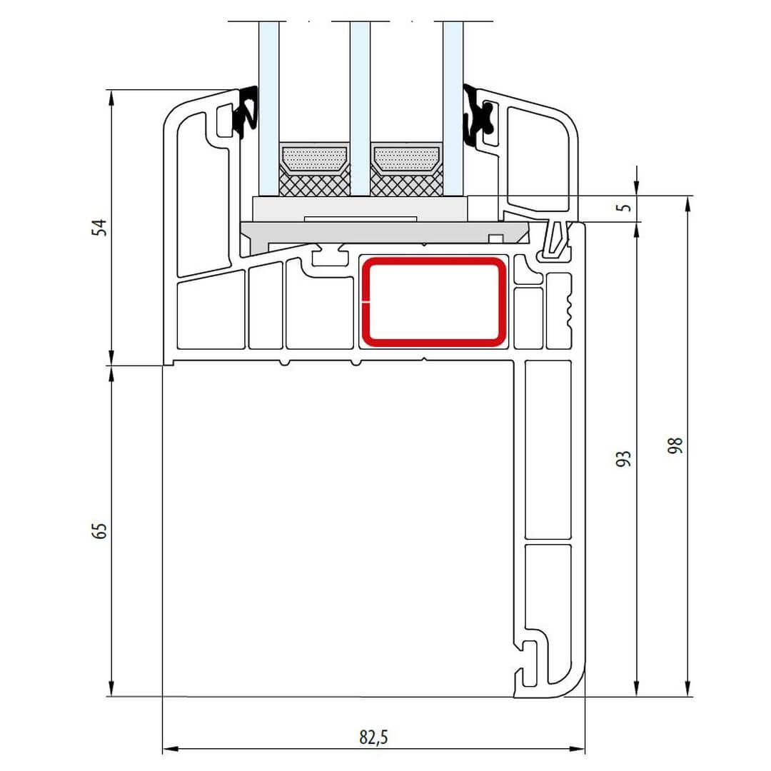
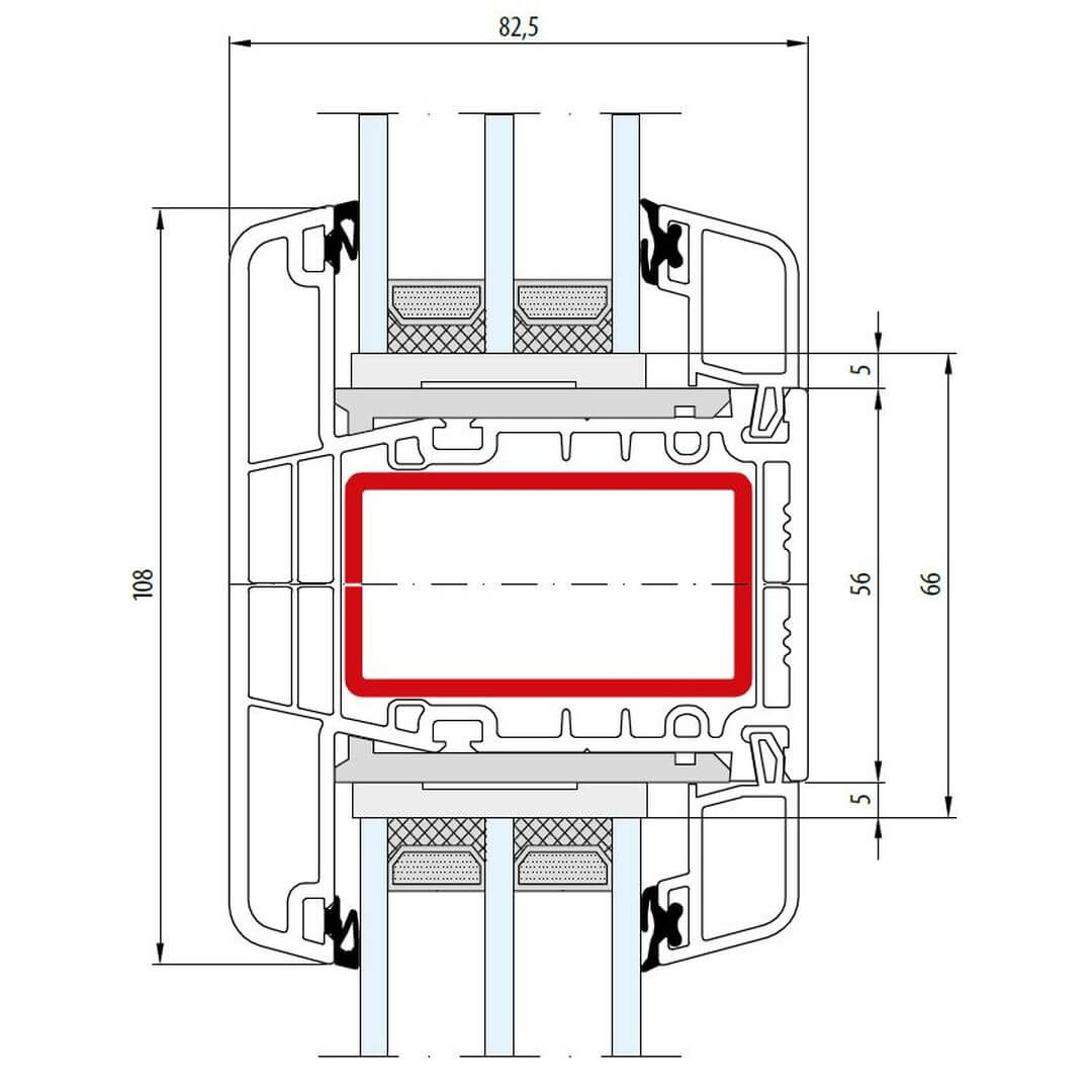
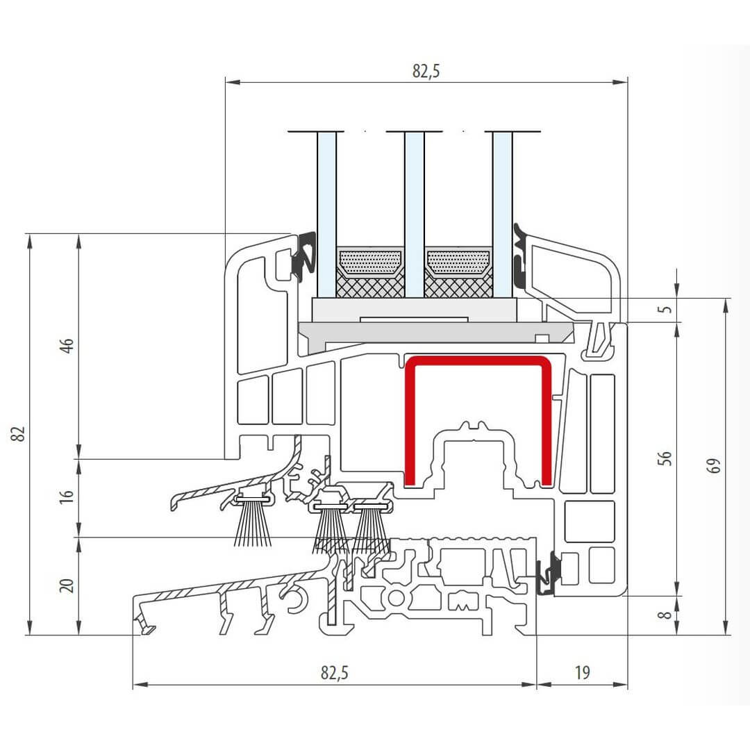
Gealan S 9000 Fenster Classic-Line 110mm - 6002 - 6079

Gealan S 9000 Fenster Classic-Line 110mm - 6002 - 6079

Kunststofffenster Gealan Lumaxx® (S 9000) - Flügelprofil 6055

Gealan S 9000 Fenster Classic-Line 103mm Lumaxx mit STV - 6002 - 6055

Gealan S 9000 Fenster Classic-Line 103mm Lumaxx mit STV - 6002 - 6055

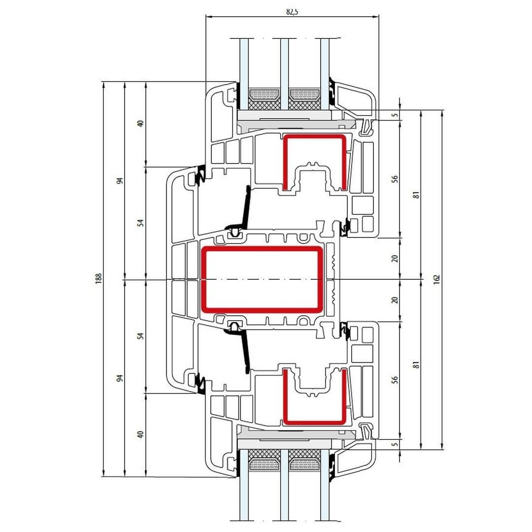
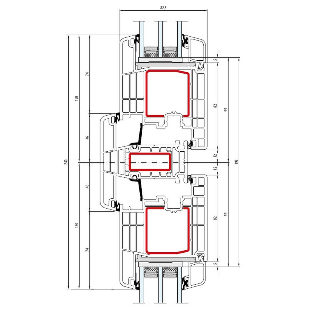
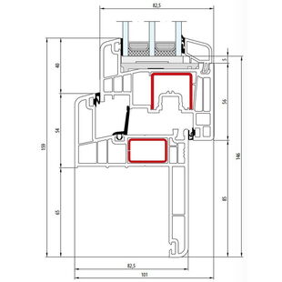
Gealan S 9000 Pfosten 92mm Fenster Classic-Line 67mm Lumaxx Flügel mit STV - 6050 - 6055

Gealan S 9000 Pfosten 92mm Fenster Classic-Line 67mm Lumaxx Flügel mit STV - 6050 - 6055

Gealan S 9000 Pfosten 108mm Fenster Classic-Line 67mm Lumaxx Flügel mit STV - 6054 - 6055

Gealan S 9000 Pfosten 108mm Fenster Classic-Line 67mm Lumaxx Flügel mit STV - 6054 - 6055

Gealan S 9000 Stulp 74mm Fenster Classic-Line 67mm Lumaxx Flügel mit STV - 6012 - 6055

Gealan S 9000 Stulp 74mm Fenster Classic-Line 67mm Lumaxx Flügel mit STV - 6012 - 6055

Gealan S 9000 Stulp 56mm Fenster Classic-Line 67mm Lumaxx Flügel mit STV - 6020 - 6055

Gealan S 9000 Stulp 56mm Fenster Classic-Line 67mm Lumaxx Flügel mit STV - 6020 - 6055

Gealan S 9000 Balkontürschwelle 20mm Classic-Line 67mm Lumaxx Flügel - 6055

Gealan S 9000 Balkontürschwelle 20mm Classic-Line 67mm Lumaxx Flügel - 6055

Kunststofffenster Gealan S 9000 mit Türrahmen (6016)

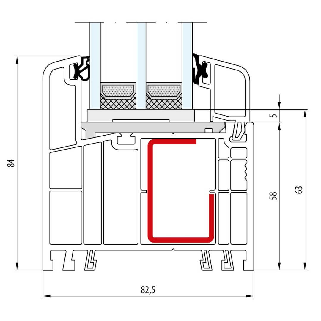
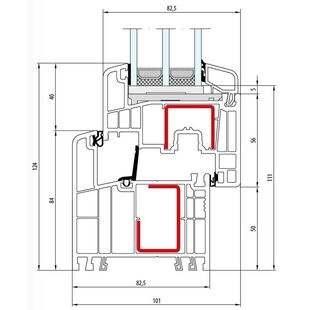
Gealan S 9000 Festverglasung 84mm - 6016

Gealan S 9000 Festverglasung 84mm - 6016

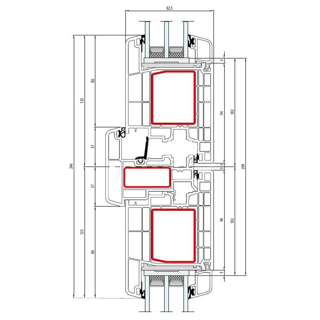
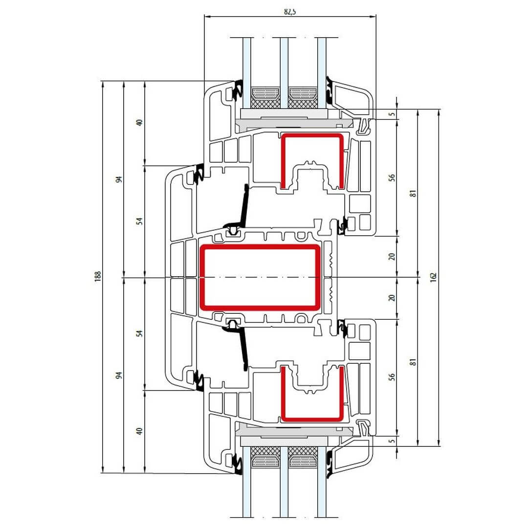
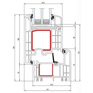
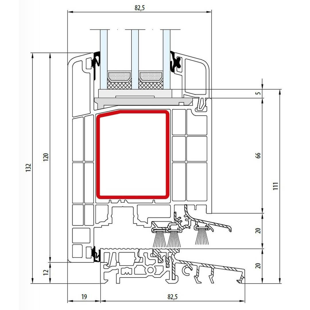
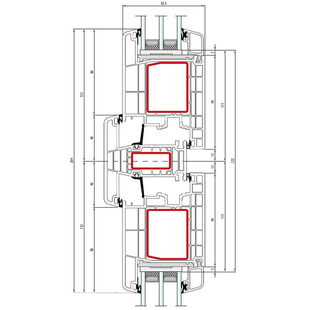
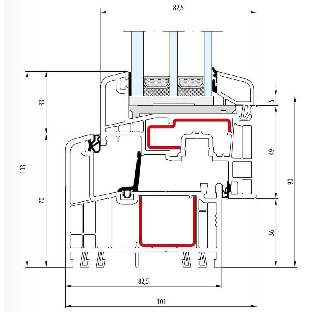
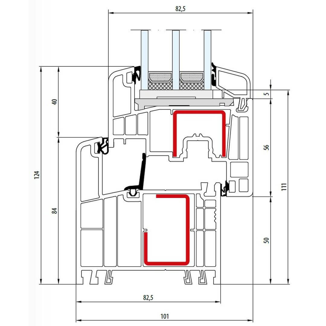
Gealan S 9000 Fenster Classic-Line 124mm mit STV - 6016 - 6079

Gealan S 9000 Fenster Classic-Line 124mm mit STV - 6016 - 6079

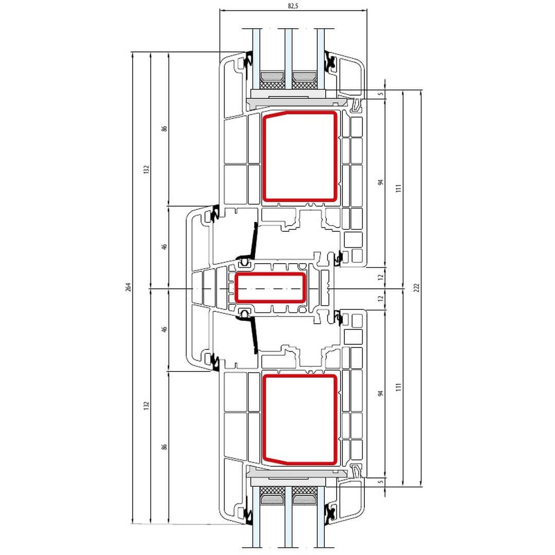
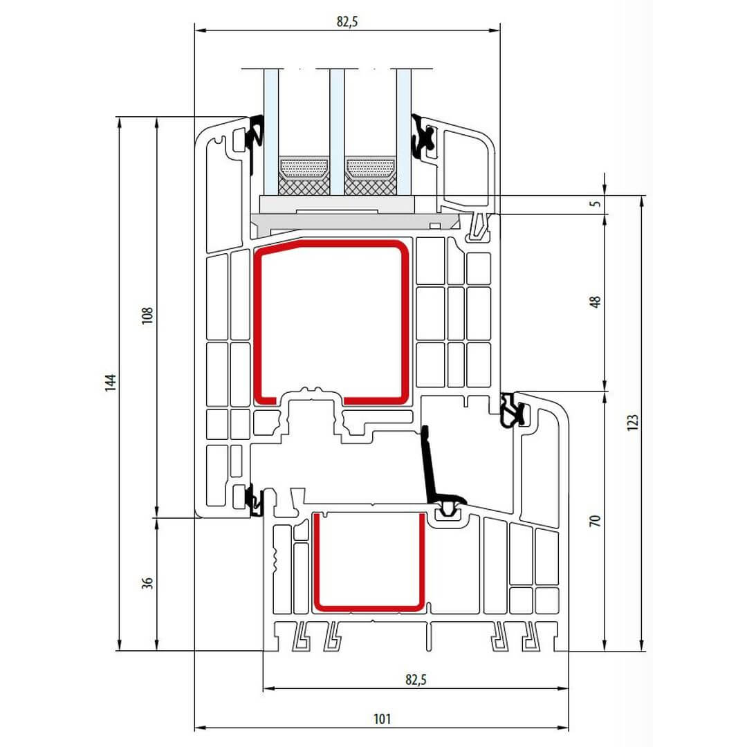
Gealan S 9000 Fenster Classic-Line 124mm - 6016 - 6079

Gealan S 9000 Fenster Classic-Line 124mm - 6016 - 6079

Kunststofffenster Gealan S 9000 mit Rahmen (6036)

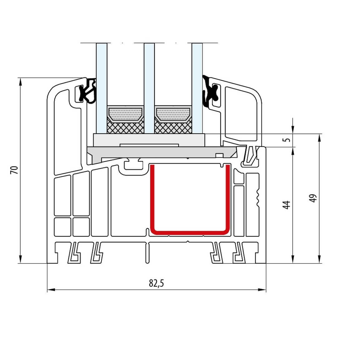
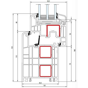
Gealan S 9000 Festverglasung 113mm - 6036

Gealan S 9000 Festverglasung 113mm - 6036

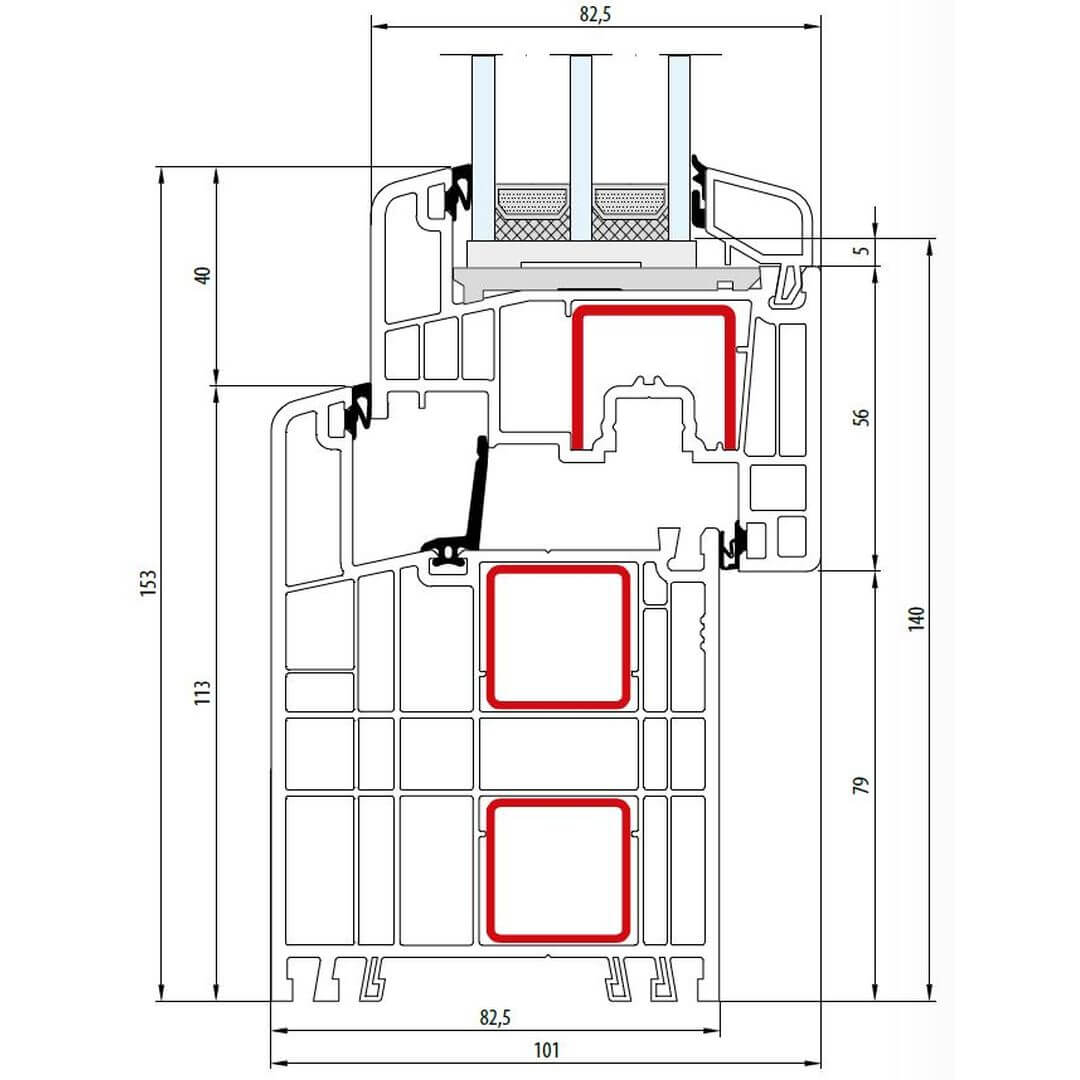
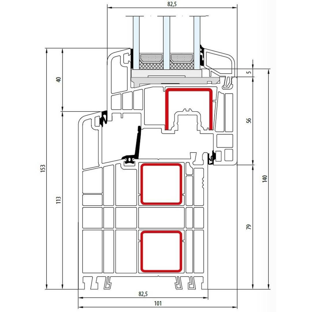
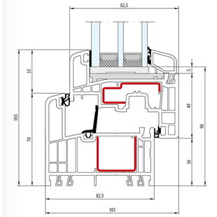
Gealan S 9000 Fenster Classic-Line 153mm mit STV - 6036 - 6079

Gealan S 9000 Fenster Classic-Line 153mm mit STV - 6036 - 6079

Gealan S 9000 Fenster Classic-Line 153mm - 6036 - 6079

Gealan S 9000 Fenster Classic-Line 153mm - 6036 - 6079

Kunststofffenster Gealan S 9000 mit Rennovationsrahmen

Gealan S 9000 - Renovation - Festverglasung - Flosse 35mm - 6048

Gealan S 9000 - Renovation - Festverglasung - Flosse 35mm - 6048

Gealan S 9000 Renovation Fenster Classic-Line 74mm Flosse 35mm mit STV - 6048 - 6079

Gealan S 9000 Renovation Fenster Classic-Line 74mm Flosse 35mm mit STV - 6048 - 6079

Gealan S 9000 Renovation Fenster Classic-Line 74mm Flosse 35mm - 6048 - 6079

Gealan S 9000 Renovation Fenster Classic-Line 74mm Flosse 35mm - 6048 - 6079

Gealan S 9000 - Renovation - Festverglasung - Flosse 65mm - 6032

Gealan S 9000 - Renovation - Festverglasung - Flosse 65mm - 6032

Gealan S 9000 Renovation Fenster Classic-Line 74mm Flosse 65mm STV - 6032 - 6079

Gealan S 9000 Renovation Fenster Classic-Line Flosse 65mm mit STV - 6032 - 6079

Gealan S 9000 Renovation Fenster Classic-Line 74mm Flosse 65mm - 6032 - 6079

Gealan S 9000 Renovation Fenster Classic-Line Flosse 65mm - 6032 - 6079

Kunststofffenster Gealan S 9000 mit Pfosten 92mm (Schmal)

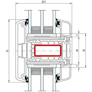
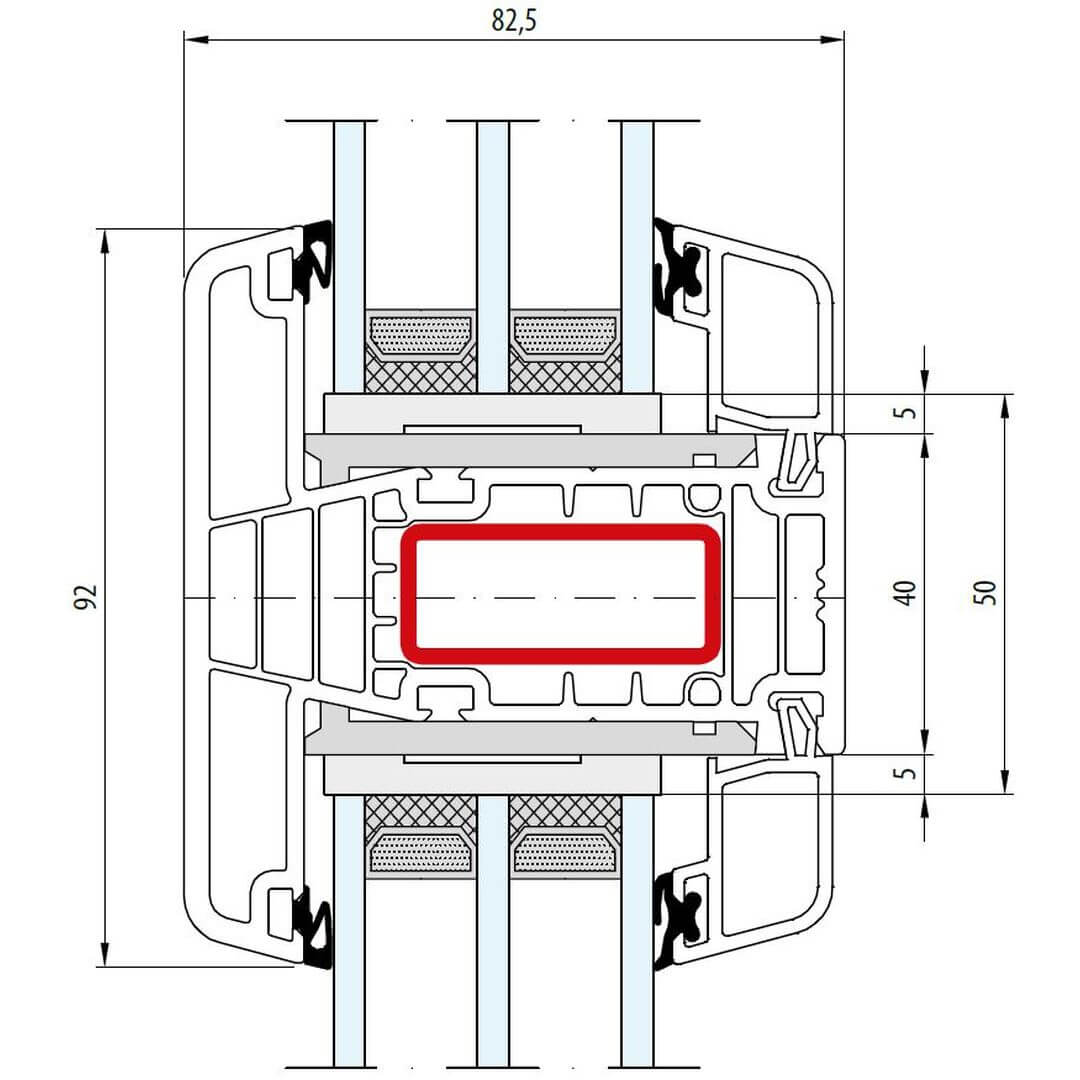
Gealan S 9000 - Pfosten 92mm - 6050

Gealan S 9000 - Pfosten 92mm - 6050

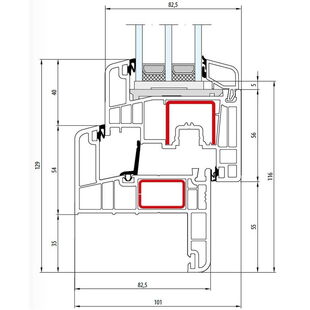
Gealan S 9000 Pfosten 92mm Fenster Classic-Line 74mm mit STV - 6050 - 6079

Gealan S 9000 Pfosten 92mm Fenster Classic-Line 74mm mit STV - 6050 - 6079

Gealan S 9000 Pfosten 92mm Fenster Classic-Line 74mm - 6050 - 6079

Gealan S 9000 Pfosten 92mm Fenster Classic-Line 74mm - 6050 - 6079

Kunststofffenster Gealan S 9000 mit Pfosten 108mm (Breit - Große Konstruktionen)

Gealan S 9000 - Pfosten 108mm - 6054

Gealan S 9000 - Pfosten 108mm - 6054

Gealan S 9000 Pfosten 108mm Fenster Classic-Line 74mm mit STV - 6054 - 6079

Gealan S 9000 Pfosten 108mm Fenster Classic-Line 74mm mit STV - 6054 - 6079

Gealan S 9000 Pfosten 108mm Fenster Classic-Line 74mm - 6054 - 6079

Gealan S 9000 Pfosten 108mm Fenster Classic-Line 74mm - 6054 - 6079

Kunststofffenster Gealan S 9000 mit Stulp 74mm

Gealan S 9000 Stulp 74mm Fenster Classic-Line 74mm mit STV - 6012 - 6079

Gealan S 9000 Stulp 74mm Fenster Classic-Line 74mm mit STV - 6012 - 6079

Gealan S 9000 Stulp 74mm Fenster Classic-Line 74mm - 6012 - 6079

Gealan S 9000 Stulp 74mm Fenster Classic-Line 74mm - 6012 - 6079

Kunststofffenster Gealan S 9000 mit Stulp (Sonderkonstruktionen auf Anfrage)

Gealan S 9000 Stulp 56mm Fenster Classic-Line 74mm mit STV - 6020 - 6079

Gealan S 9000 Stulp 56mm Fenster Classic-Line 74mm mit STV - 6020 - 6079

Gealan S 9000 Stulp 56mm Fenster Classic-Line 74mm - 6020 - 6079

Gealan S 9000 Stulp 56mm Fenster Classic-Line 74mm - 6020 - 6079

Kunststoff Balkontür Gealan S 9000

Gealan S 9000 Fenster Classic-Line 110mm mit STV - 6002 - 6079

Gealan S 9000 Balkontür mit Blendrahmen Classic-Line mit STV - 6002 - 6079

Gealan S 9000 Balkontürschwelle 20mm Classic-Line 74mm - 6079

Gealan S 9000 Balkontürschwelle 20mm Classic-Line 74mm - 6079

Kunststoff Terrassenflügel Gealan S 9000

Gealan S 9000 Terrassenflügel innen öffnend Classic-Line 144mm - 6002 - 6017

Gealan S 9000 Terrassenflügel innen öffnend Classic-Line 144mm - 6002 - 6017

Gealan S 9000 Terrassentürschwelle 20mm Classic-Line innen öffnend - 6017

Gealan S 9000 Terrassentürschwelle 20mm Classic-Line innen öffnend - 6017

Gealan S 9000 Pfosten 92mm Terrassentür innen öffnend Classic-Line - 6050 - 6017

Gealan S 9000 Pfosten 92mm Terrassenflügel innen öffnend Classic-Line - 6050 - 6017

Gealan S 9000 Terrassenflügel außen öffnend Classic-Line 144mm - 6002 - 6033

Gealan S 9000 Terrassenflügel außen öffnend Classic-Line 144mm - 6002 - 6033

Gealan S 9000 Terrassentürschwelle 20mm Classic-Line außen öffnend - 6033

Gealan S 9000 Terrassentürschwelle 20mm Classic-Line außen öffnend - 6033

Gealan S 9000 Pfosten 92mm Terrassentür außen öffnend Classic-Line - 6050 - 6033

Gealan S 9000 Pfosten 92mm Terrassenflügel außen öffnend Classic-Line - 6050 - 6033

Terrassenflügel Gealan S 9000 mit Stulp 74mm

Gealan S 9000 Stulp 74mm Terrassenflügel innen öffnend Classic-Line - 6012 - 6017

Gealan S 9000 Stulp 74mm Terrassenflügel innen öffnend Classic-Line - 6012 - 6017

Gealan S 9000 Stulp 74mm Terrassenflügel außen öffnend Classic-Line - 6012 - 6033

Gealan S 9000 Stulp 74mm Terrassenflügel außen öffnend Classic-Line - 6012 - 6033

Kunststoff Gealan S 9000 PSK Parallel-Schiebe-Kipp-Tür

Kunststoff Haustür Gealan S 9000

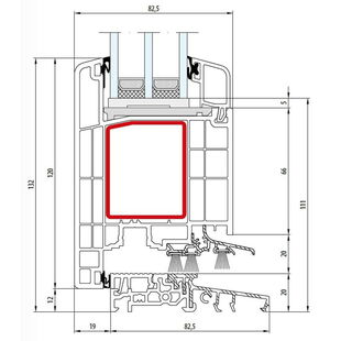
Gealan S 9000 Tür innen öffnend Classic-Line 170mm - 6016 - 6025

Gealan S 9000 Tür innen öffnend - 6016 - 6025

Gealan S 9000 Türschwelle 20mm innen öffnend Classic-Line - 6025

Gealan S 9000 Türschwelle 20mm innen öffnend - 6025

Gealan S 9000 Pfosten 92mm Tür innen öffnend Classic-Line - 6050 - 6025

Gealan S 9000 Pfosten 92mm Tür innen öffnend - 6050 - 6025

Gealan S 9000 Tür außen öffnend Classic-Line 170mm - 6016 - 6027

Gealan S 9000 Tür außen öffnend - 6016 - 6027

Gealan S 9000 Türschwelle 20mm außen öffnend Classic-Line - 6027

Gealan S 9000 Türschwelle 20mm außen öffnend - 6027

Türflügel Gealan S 9000 mit Stulp 74mm

Gealan S 9000 Stulp 74mm Tür innen öffnend Classic-Line - 6012 - 6025

Gealan S 9000 Stulp 74mm Tür innen öffnend - 6012 - 6025

Gealan S 9000 Stulp 74mm Tür außen öffnend Classic-Line - 6012 - 6027

Gealan S 9000 Stulp 74mm Tür außen öffnend - 6012 - 6027

Zusatzprofile für Gealan S 9000 Querschnitte

Kunststoff Sprossenarten - Gealan S 9000

Innenliegende SZR Sprossen / Helima Sprossen

Drutex Iglo SZR Sprosse 8mm

Innenliegende Sprosse 8mm

Drutex Iglo SZR Sprosse 18mm

Innenliegende Sprosse 18mm

Drutex Iglo SZR Sprosse 26mm

Innenliegende Sprosse 26mm

Drutex Iglo SZR Sprosse 45mm

Innenliegende Sprosse 45mm

Aufgesetzte / Aufgeklebte Sprossen

Glasteilende Sprossen - Kämpfer

Gealan S 9000 - Pfosten 92mm - 6050

Gealan S 9000 Kämpfer Sprosse 92mm - 6050

Gealan S 9000 - Pfosten 108mm - 6054

Gealan S 9000 Kämpfer Sprosse 108mm - 6054

Kunststoff Anschlussprofile - Gealan S 9000

Kunststoff Bankanschlussprofile

Gealan 7205 - Fensterbankanschluss - 30mm

7205 - Fensterbankanschluss - 30mm

Kunststoff Bankanschlussprofile auf Anfrage

Gealan 7202 - Fensterbankanschluss - 30mm

7202 - Fensterbankanschluss - 30mm

Kunststoff Anschlussprofile (bündig)

Gealan 2101 - Bankanschlussprofil 20mm

2101 - Anschlussprofil 20mm

Gealan 3206 - Bankanschlussprofil 30mm

3206 - Anschlussprofil 30mm

Gealan 3205 - Bankanschlussprofil 40mm

3205 - Anschlussprofil 40mm

Kunststoff Fensterbank-Anschlussprofile

Gealan 2203 - Fensterbank aussen 154mm

2203 - Fensterbank aussen 154mm

Gealan 2209 - Fensterbank aussen 42mm

2209 - Fensterbank aussen 42mm

Gealan 3207 - Fensterbank aussen 57mm

3207 - Fensterbank aussen 57mm

Gealan 7209 - Fensterbank aussen 62,5mm

7209 - Fensterbank aussen 62,5mm

Gealan 7213 - Fensterbank aussen 107mm

7213 - Fensterbank aussen 107mm

Kunststoff Rahmenverbreiterung - Gealan S 9000

Gealan 5201 - Rahmenverbreiterung 20mm

5201 - Rahmenverbreiterung 20mm

Gealan 5213 - Rahmenverbreiterung 36mm

5213 - Rahmenverbreiterung 36mm

Gealan 5202 - Rahmenverbreiterung 58mm

5202 - Rahmenverbreiterung 58mm

Gealan 5203 - Rahmenverbreiterung 125mm

5203 - Rahmenverbreiterung 125mm

Kunststoff Kopplungen - Gealan S 9000

Gealan 3284 - H-Kopplung universal

3284 - H-Kopplung universal

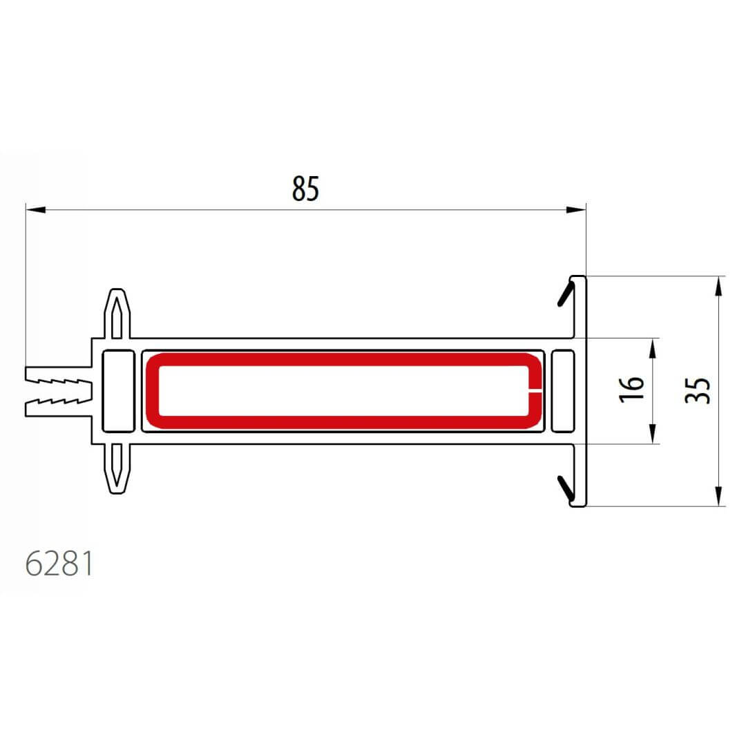
Gealan 6281 - Statikkopplung 16mm

6281 - Statikkopplung 16mm

Gealan 5204 - Statikkopplung 16mm (Große Konstruktion)

5204 - Statikkopplung 16mm (Große Konstruktion)

Gealan 3559 - Statikkopplung Montagehilfe

3559 - Statikkopplung Montagehilfe

Kopplung von Eck-Elementen - 90° und Variabel

Gealan 2304 - Eckkopplung 90 Grad

2304 - Eckkopplung 90 Grad

Gealan 5206 - Eckkopplung variabel

5206 - Eckkopplung variabel

Kunststoff Abdeckleisten - Gealan S 9000

Aluplast Flachleisten aus Kunststoff Auswahl 65025100, 6465050, 65025080, 65025070, 65025050, 65025040, 65025030

65025100, 6465050, 65025080, 65025070, 65025050, 65025040, 65025030 - Flachleiste aus Kunststoff Auswahl

Winkelprofile aus Kunststoff 73100060, 73080050, 73060040, 73020020

73100060, 73080050, 73060040, 73020020 - Winkelprofil aus Kunststoff

Gealan kozijnen en deuren op maat

Configureer en bestel eenvoudig en comfortabel Gealan ramen en deuren online bij kozijnenblik.nl

Das könnte Sie auch interessieren:

Kunststofffenster Gealan S 8000

Detailzeichnungen Kunststofffenster Gealan S8000

Kunststofffenster Gealan S8000 besitzen eine Bautiefe (Rahmen) von 74mm.

Detailzeichnungen Gealan S 8000

Hebeschiebetür Gealan HST S 9000

Detailzeichnungen Hebeschiebetür Gealan HST S 9000

Hebeschiebetür Gealan HST S 9000 besitzen eine Bautiefe (Rahmen) von 190mm.

Detailzeichnungen Gealan HST S 9000