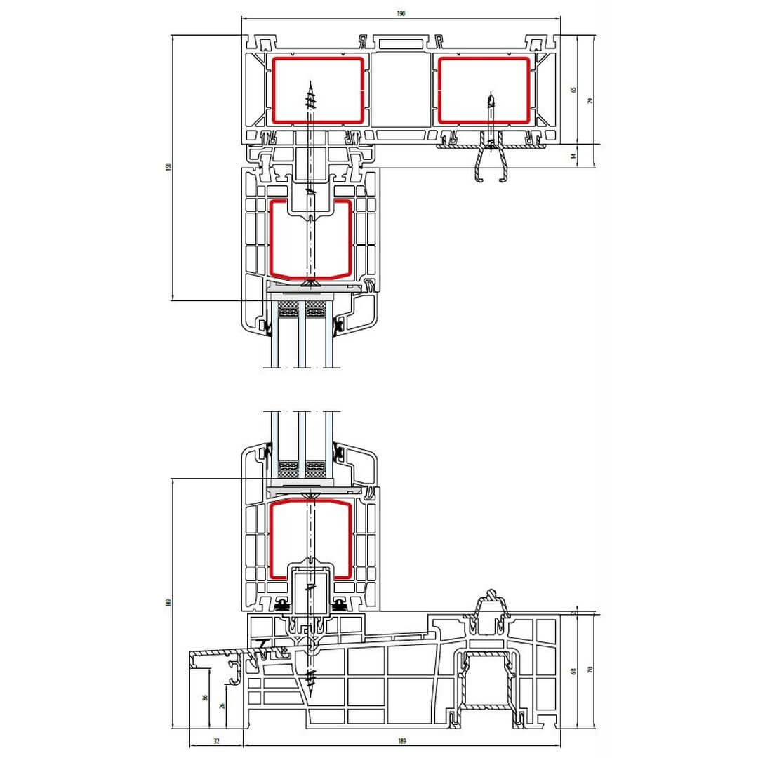
Detailzeichnungen Hebeschiebetür Gealan HST S 9000

Hebeschiebetür-Profil Gealan HST S 9000 Querschnitte

Gealan HST S 9000 Schiebeflügel mit Schwelle Thermostep - Vertikal

Gealan HST S 9000 Schiebeflügel mit Schwelle Thermostep - Vertikal

Gealan HST S 9000 Flügel Fest - Vertikal

Gealan HST S 9000 Flügel Fest - Vertikal

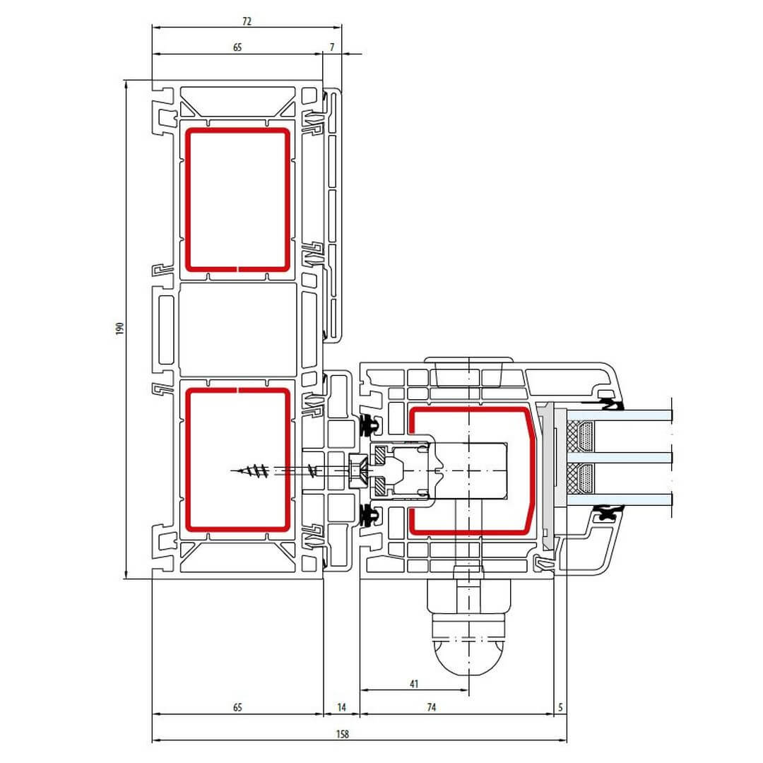
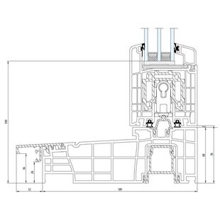
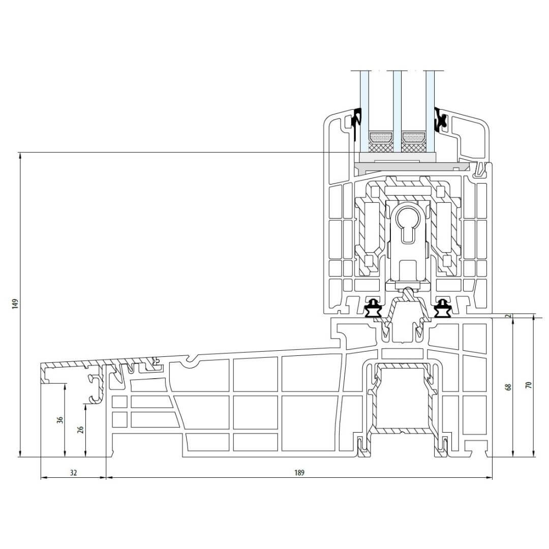
Gealan HST S 9000 Flügel mit Schwelle Thermostep und Laufwagen - Vertikal

Gealan HST S 9000 Flügel mit Schwelle Thermostep und Laufwagen - Vertikal

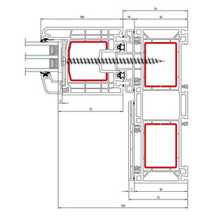
Gealan HST S 9000 Schiebeflügel mit Griff - Horizontal

Gealan HST S 9000 Schiebeflügel mit Griff - Horizontal

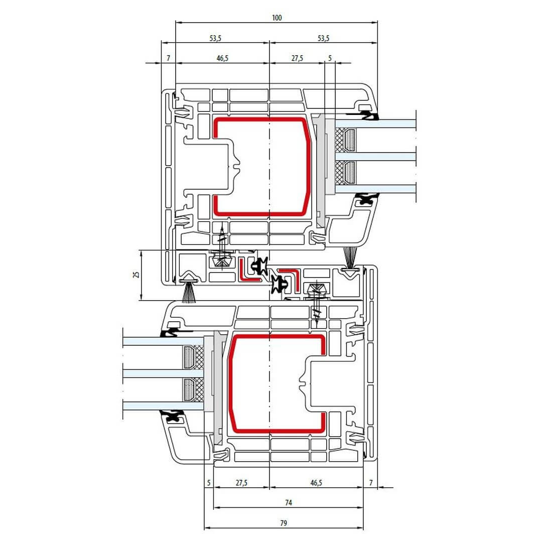
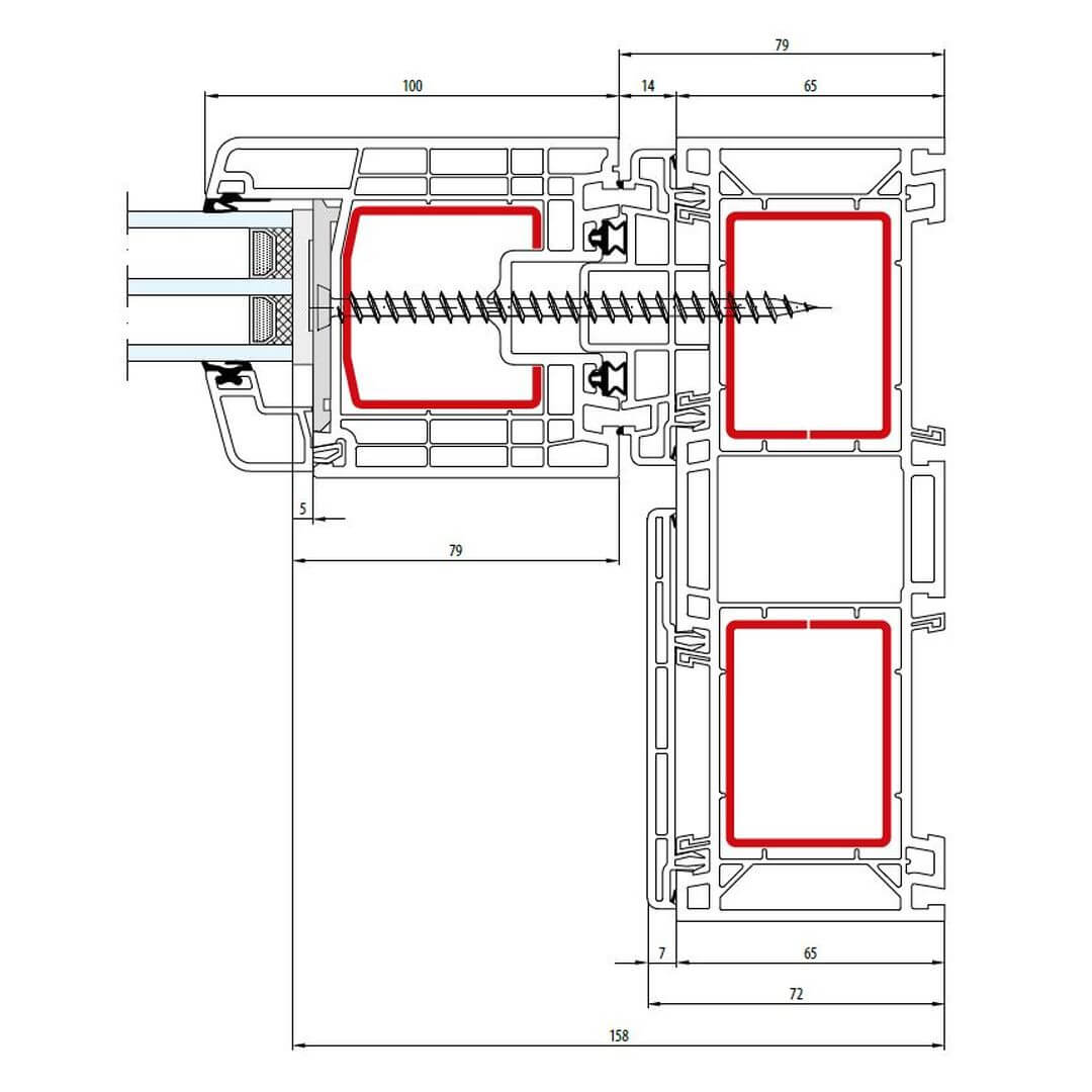
Gealan HST S 9000 Flügel Treffpunkt - Horizontal

Gealan HST S 9000 Flügel Treffpunkt - Horizontal

Gealan HST S 9000 Flügel Fest - Horizontal

Gealan HST S 9000 Flügel Fest - Horizontal

Kunststoff Hebeschiebetür Gealan HST S 9000 Schwellen

Gealan HST S 9000 Schwelle Thermostep

Gealan HST S 9000 Schwelle Thermostep

Zusatzprofile für Gealan HST S 9000 Querschnitte

Kunststoff Sprossenarten - Gealan HST S 9000

Innenliegende SZR Sprossen / Helima Sprossen

Drutex Iglo SZR Sprosse 8mm

Innenliegende Sprosse 8mm

Drutex Iglo SZR Sprosse 18mm

Innenliegende Sprosse 18mm

Drutex Iglo SZR Sprosse 26mm

Innenliegende Sprosse 26mm

Drutex Iglo SZR Sprosse 45mm

Innenliegende Sprosse 45mm

Aufgesetzte / Aufgeklebte Sprossen

Glasteilende Sprossen - Kämpfer

Kunststoff Rahmenverbreiterung - Gealan HST S 9000

Kunststoff Kopplungen - Gealan HST S 9000

Kunststoff Abdeckleisten - Gealan HST S 9000

Aluplast Flachleisten aus Kunststoff Auswahl 65025100, 6465050, 65025080, 65025070, 65025050, 65025040, 65025030

65025100, 6465050, 65025080, 65025070, 65025050, 65025040, 65025030 - Flachleiste aus Kunststoff Auswahl

Winkelprofile aus Kunststoff 73100060, 73080050, 73060040, 73020020

73100060, 73080050, 73060040, 73020020 - Winkelprofil aus Kunststoff

Gealan kozijnen en deuren op maat

Configureer en bestel eenvoudig en comfortabel Gealan ramen en deuren online bij kozijnenblik.nl

Das könnte Sie auch interessieren:

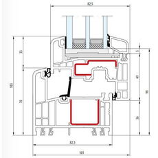
Kunststofffenster Gealan S 9000

Detailzeichnungen Kunststofffenster Gealan S 9000

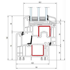
Kunststofffenster Gealan S 9000 besitzen eine Bautiefe (Rahmen) von 82,5mm.

Detailzeichnungen Gealan S 9000

Kunststofffenster Gealan Lumaxx®

Detailzeichnungen Kunststofffenster Gealan Lumaxx

Kunststofffenster Gealan Lumaxx besitzen eine Bautiefe (Rahmen) von 82,5mm.

Detailzeichnungen Gealan Lumaxx