Detailzeichnungen Gealan S 8000

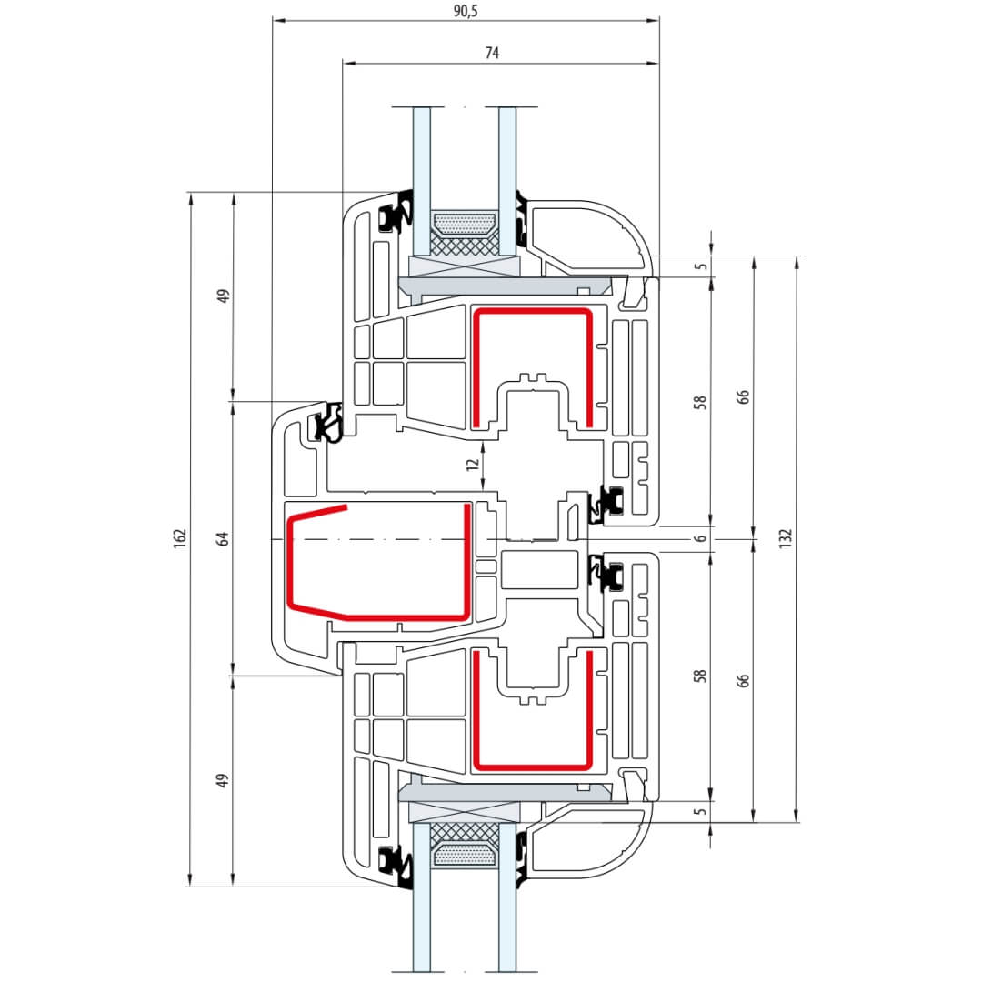
Kunststofffensterprofil Gealan S 8000 Querschnitte

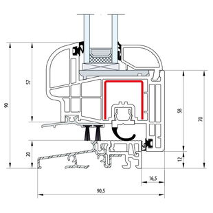
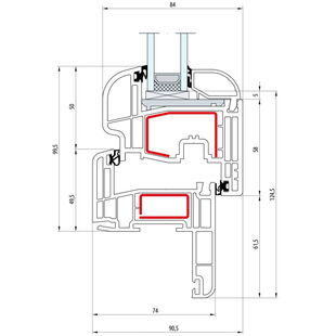
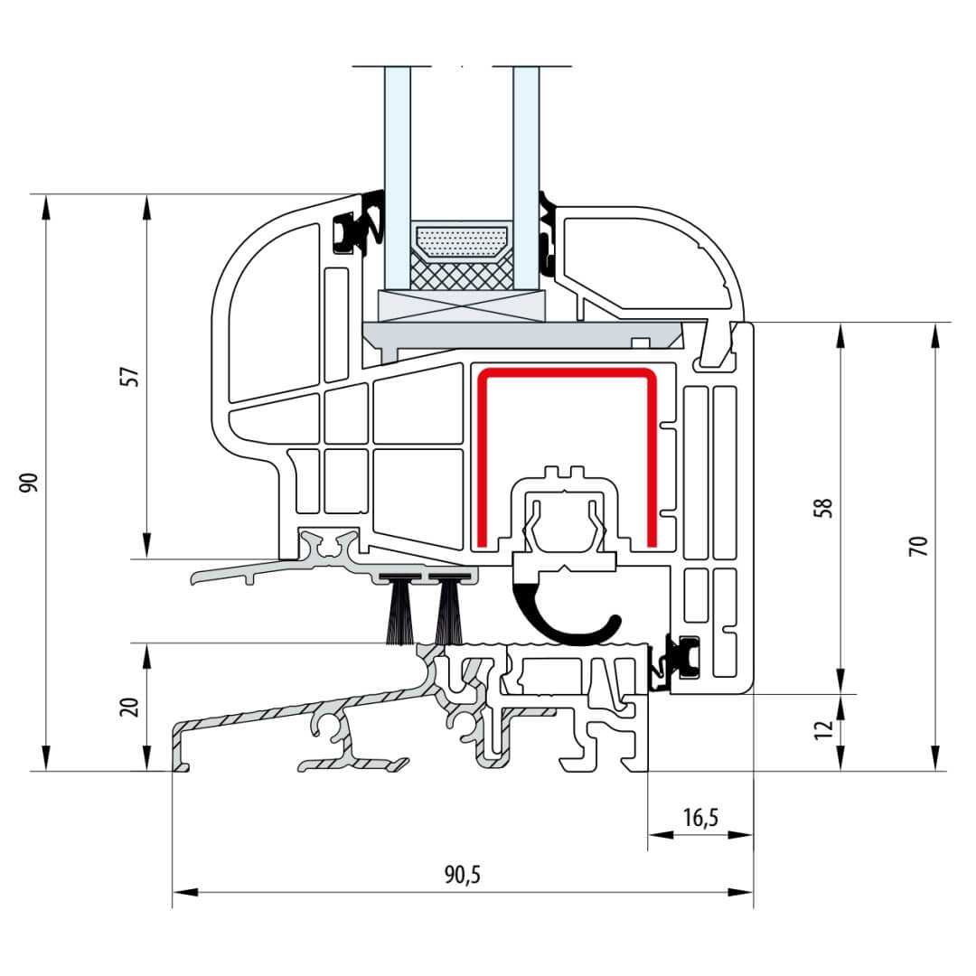
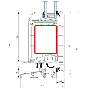
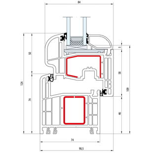
Gealan S 8000 Festverglasung 66mm - 8001

Gealan S 8000 Festverglasung 66mm - 8001

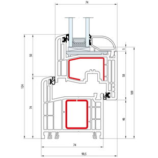
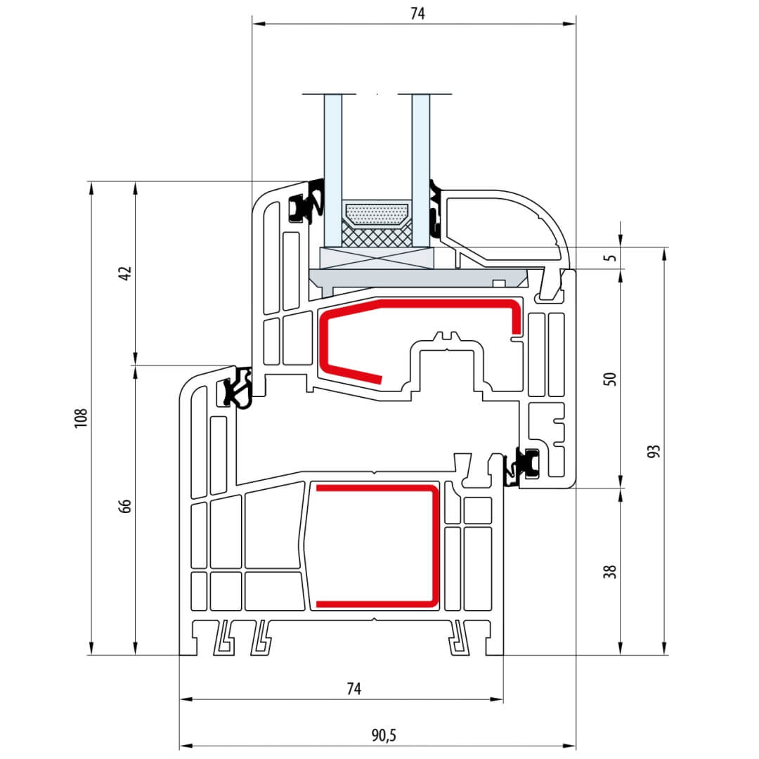
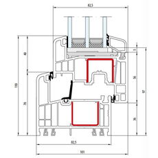
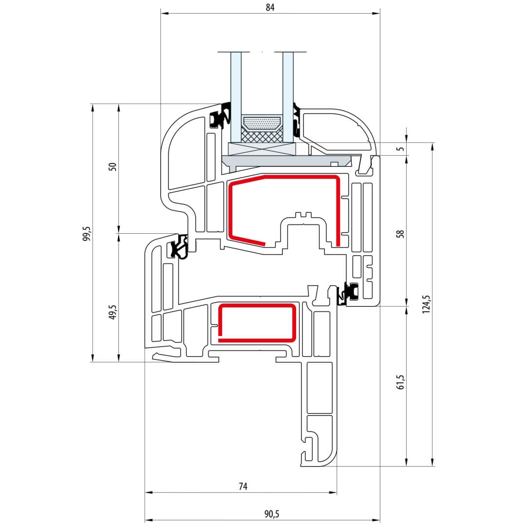
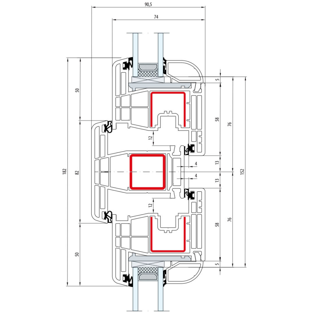
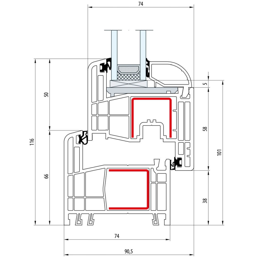
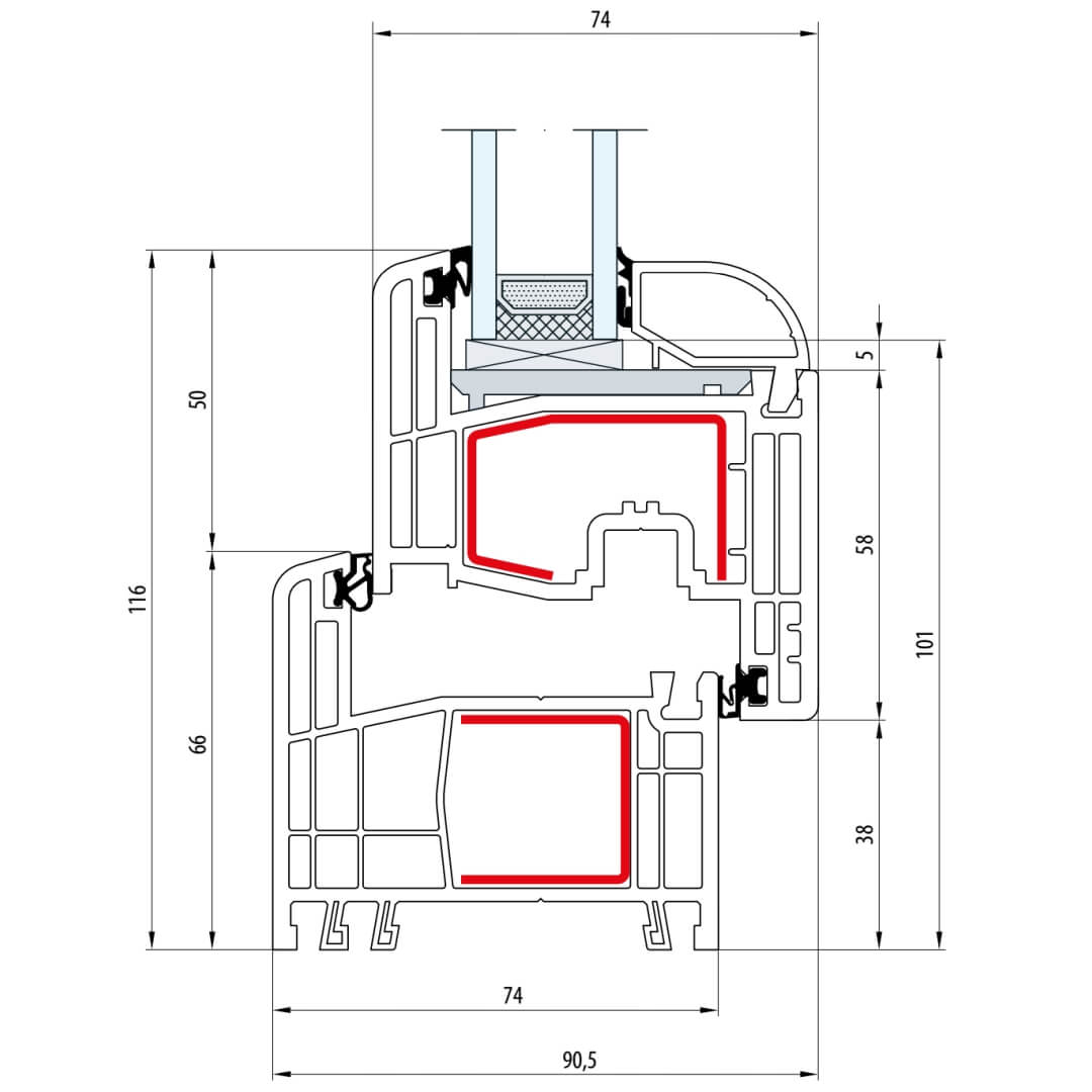
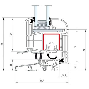
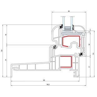
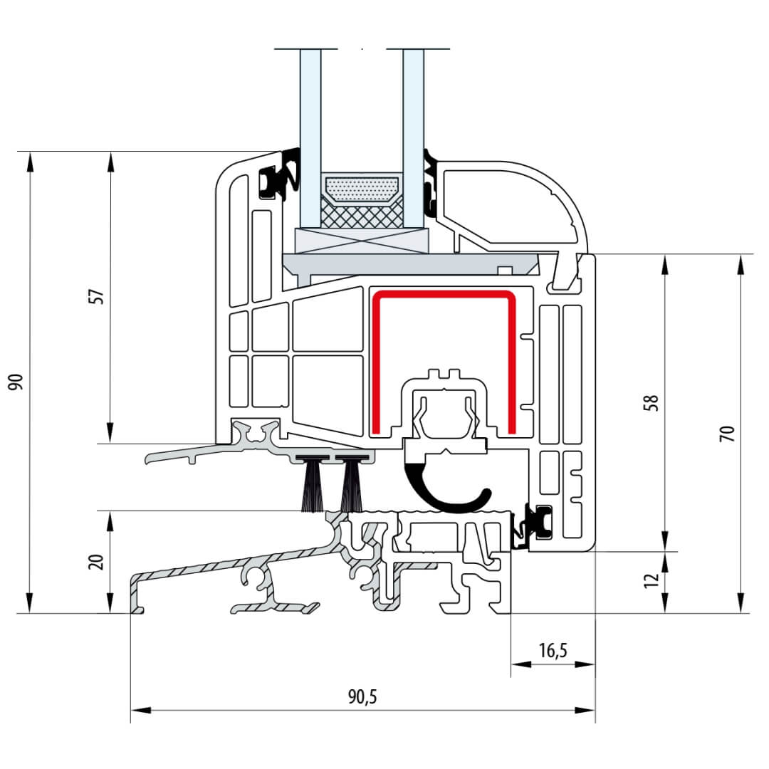
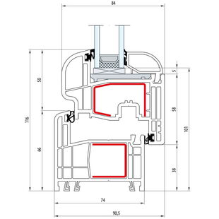
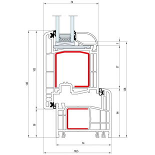
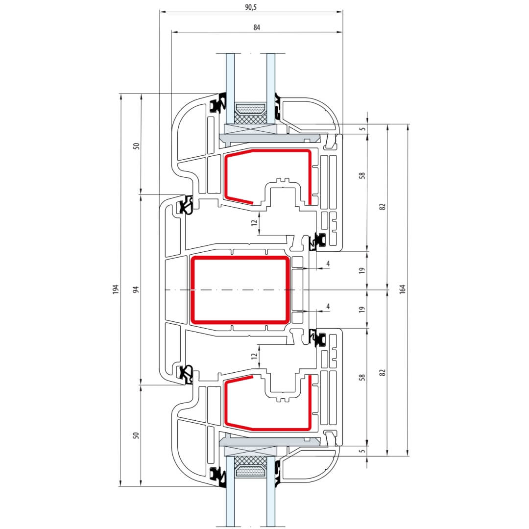
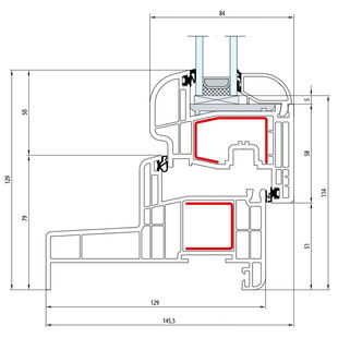
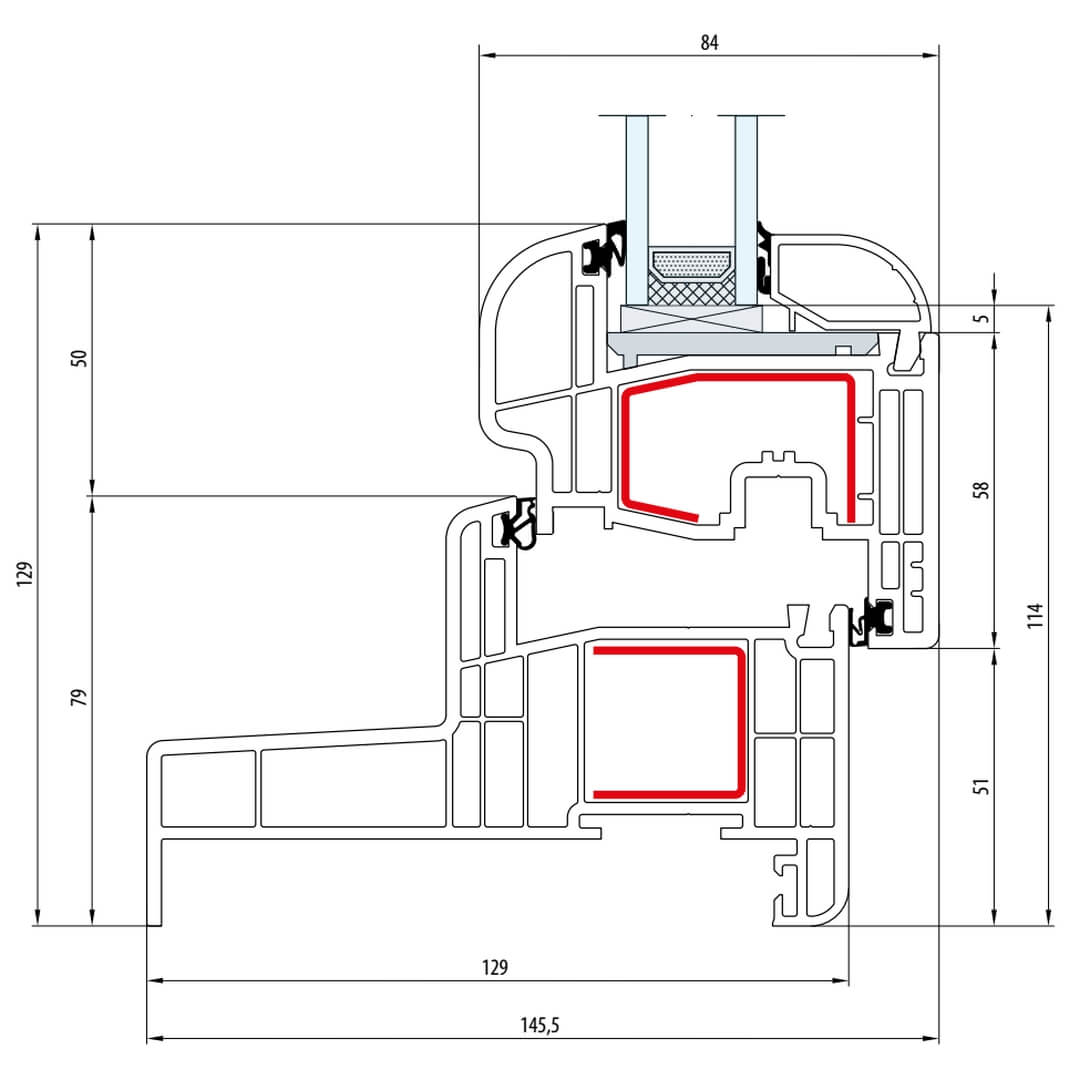
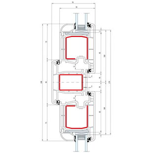
Gealan S 8000 Fenster Classic-Line 116mm Flügel 5-Kammer - 8001 - 8092

Gealan S 8000 Fenster Classic-Line 116mm Flügel 5-Kammer - 8001 - 8092

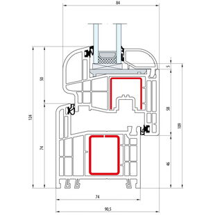
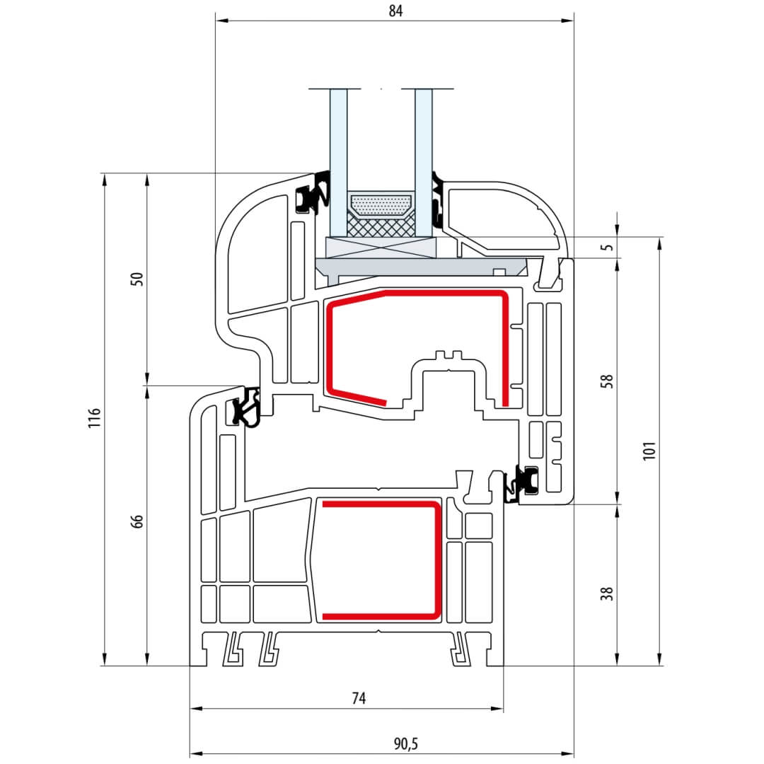
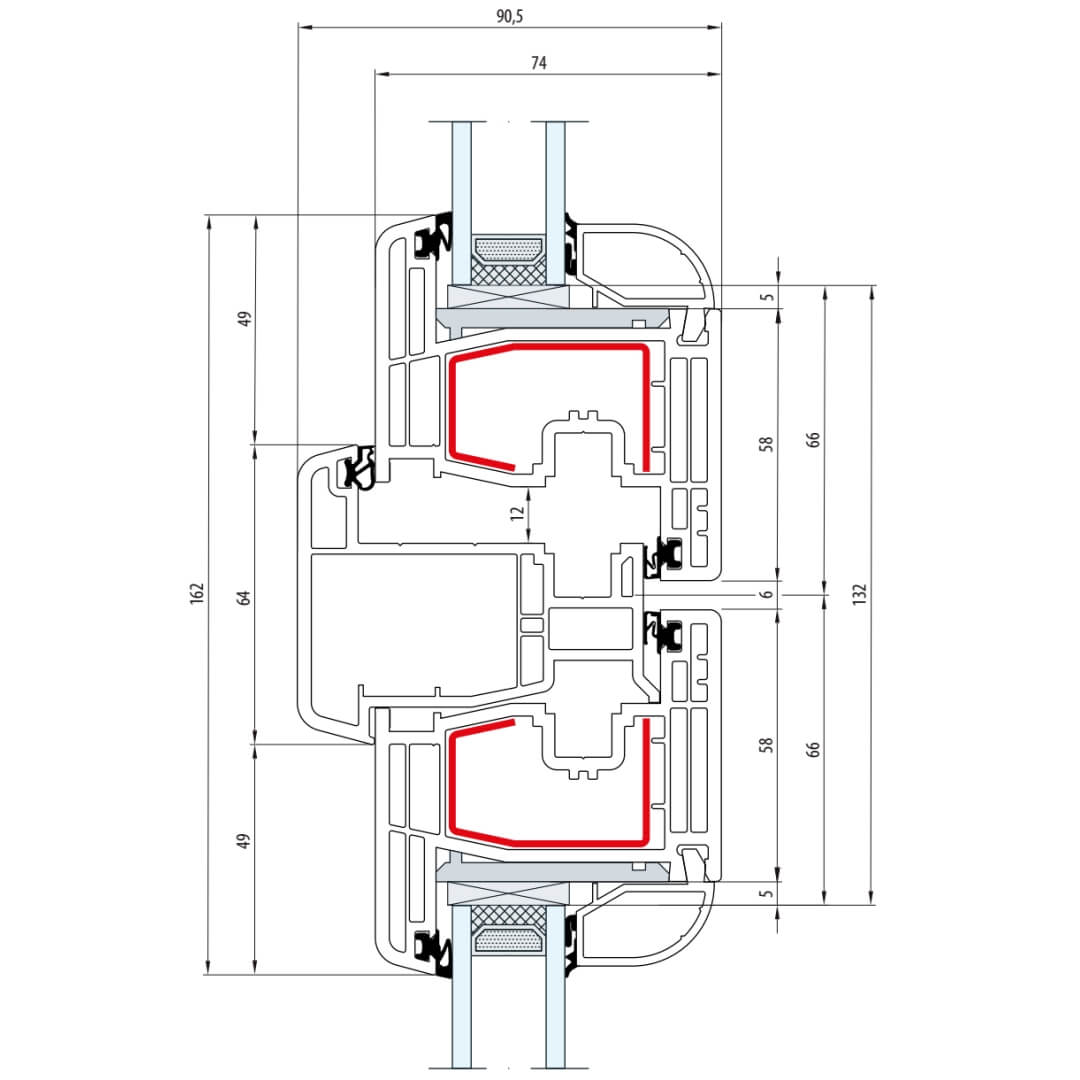
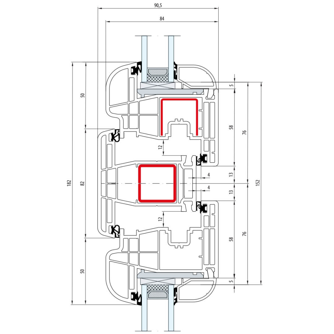
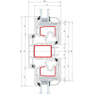
Gealan S 8000 Fenster Classic-Line 116mm Flügel 6-Kammer - 8001 - 8095

Gealan S 8000 Fenster Classic-Line 116mm Flügel 6-Kammer - 8001 - 8095

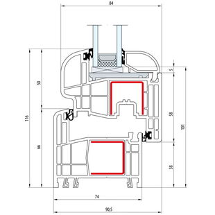
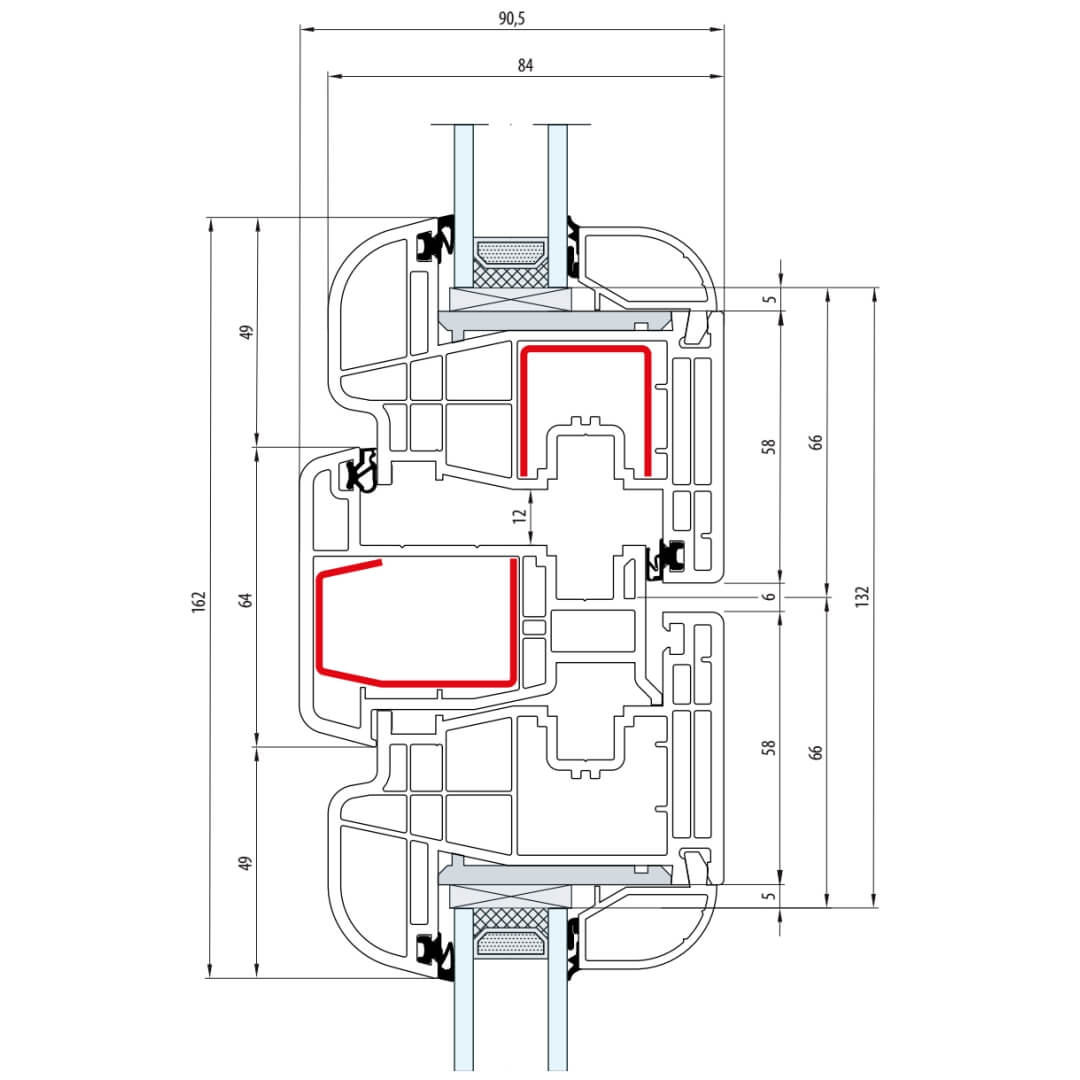
Gealan S 8000 Fenster Round-Line 116mm Flügel 5-Kammer - 8001 - 8068

Gealan S 8000 Fenster Round-Line 116mm Flügel 5-Kammer - 8001 - 8068

Gealan S 8000 Fenster Round-Line 116mm Flügel 6-Kammer - 8001 - 8096

Gealan S 8000 Fenster Round-Line 116mm Flügel 6-Kammer - 8001 - 8096

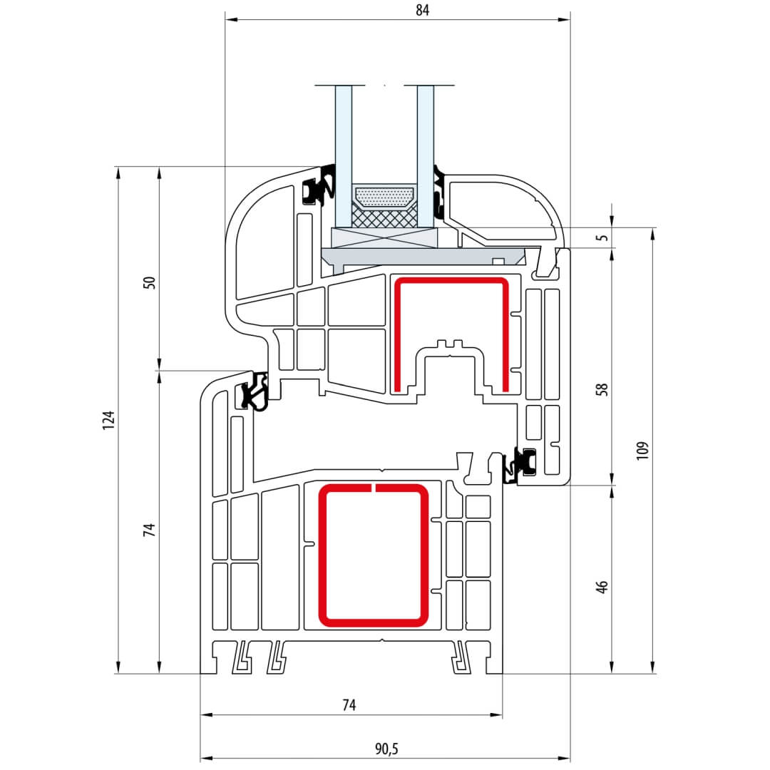
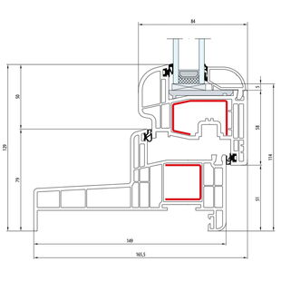
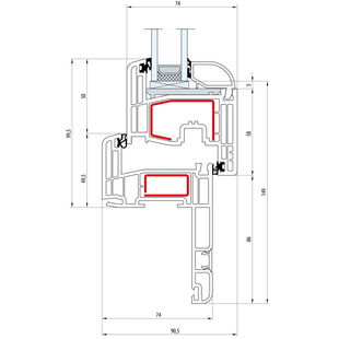
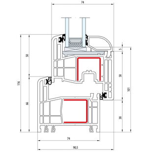
Kunststofffenster Gealan S 8000 Light mit flachen Flügel - Flügelprofil 8079

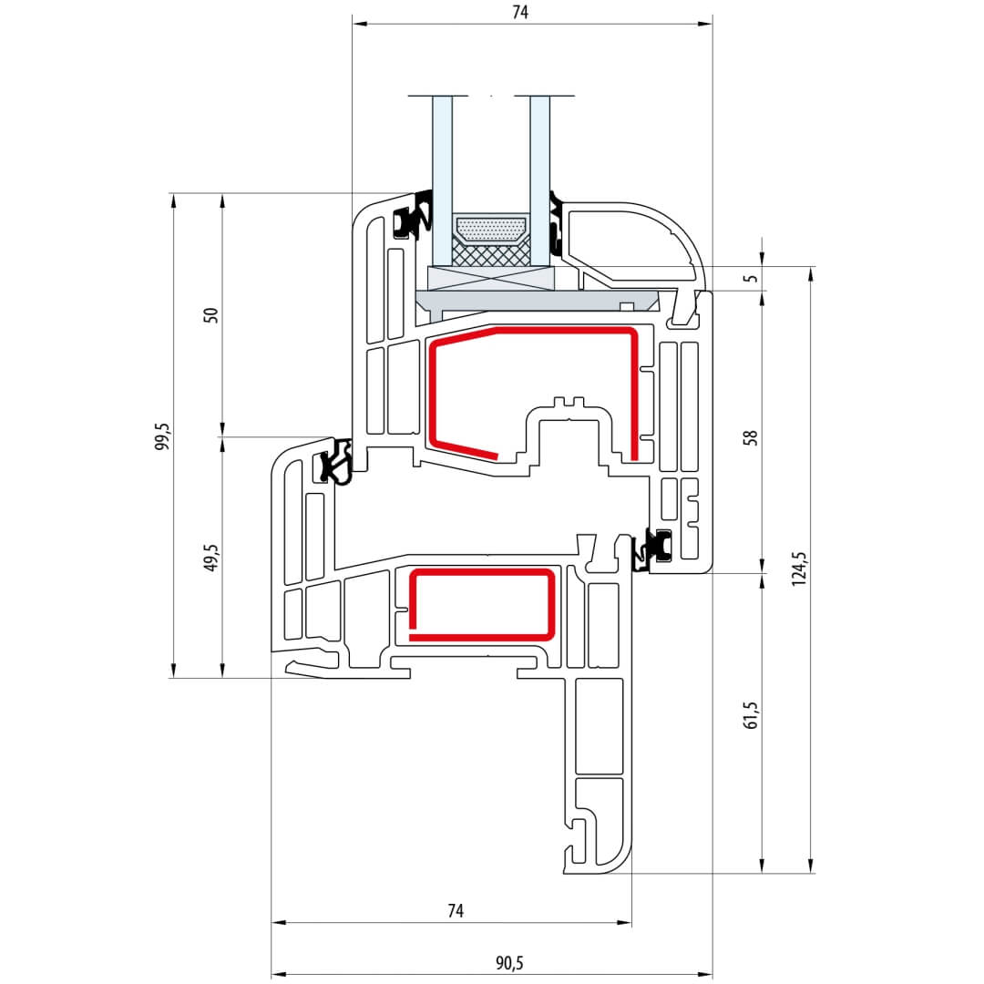
Gealan S 8000 Fenster Classic-Line 108mm schmaler Flügel - 8001 - 8079

Gealan S 8000 Fenster Classic-Line 108mm schmaler Flügel - 8001 - 8079

Kunststofffenster Gealan S 8000 mit Türrahmen (8010)

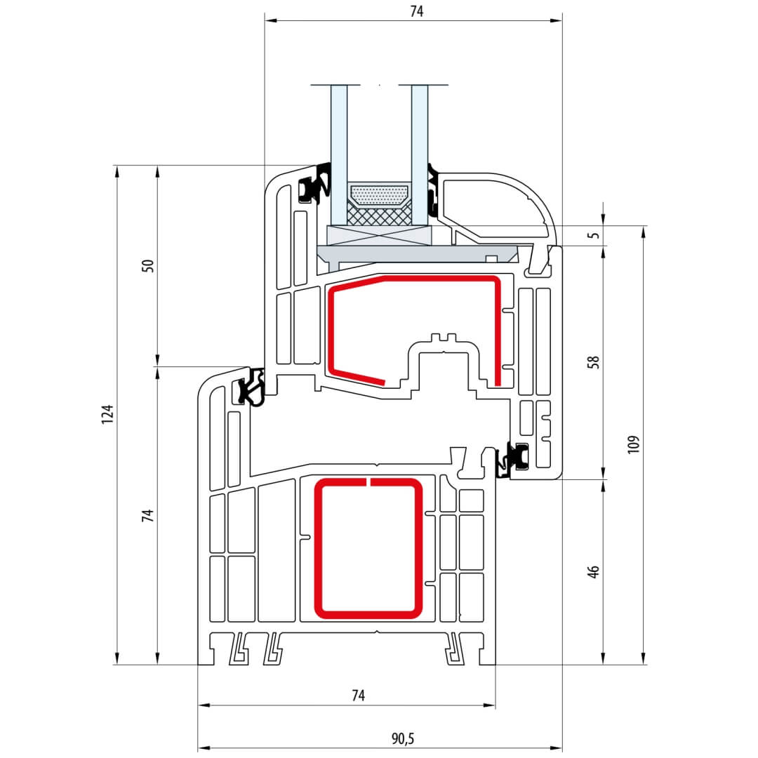
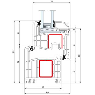
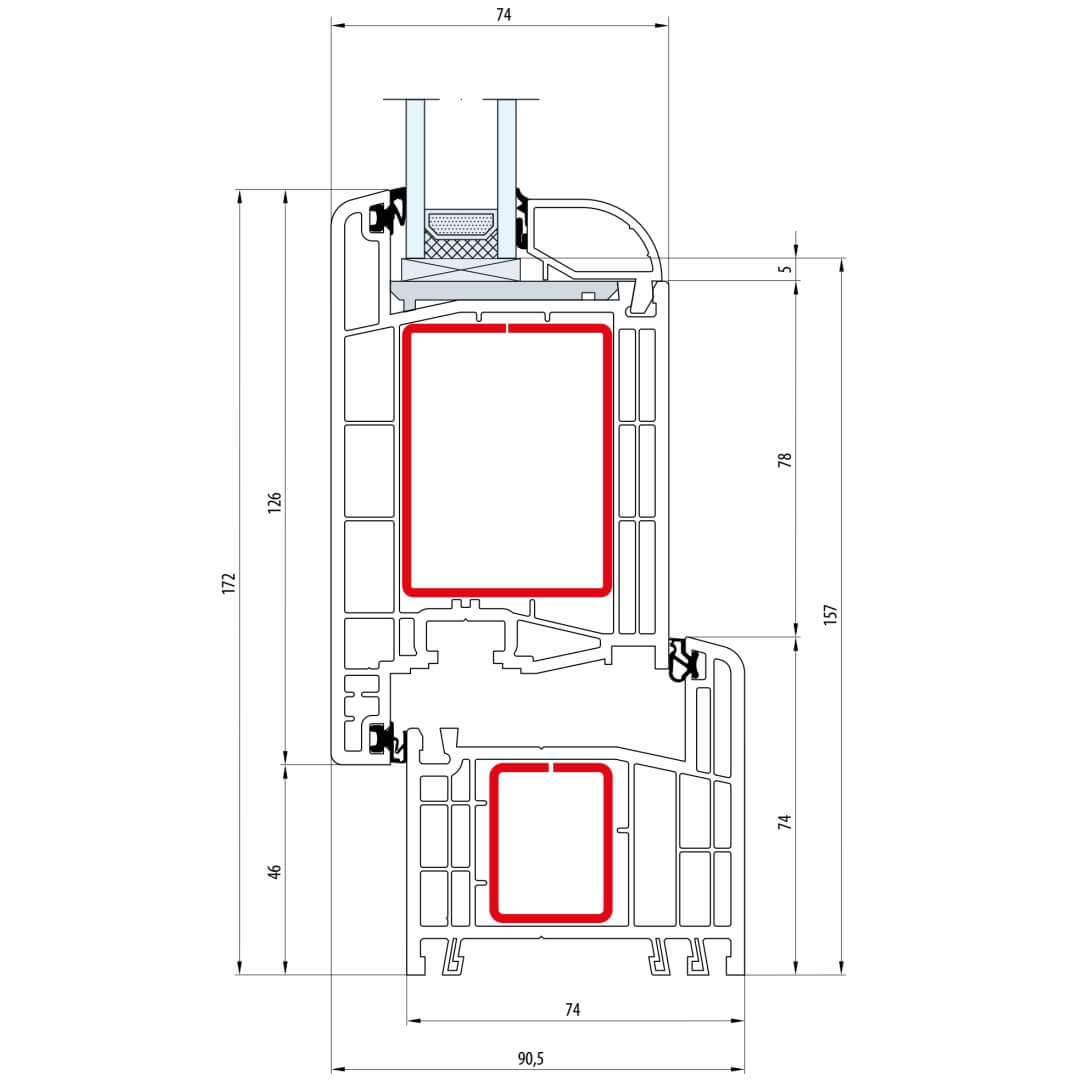
Gealan S 8000 Festverglasung 74mm - 8010

Gealan S 8000 Festverglasung 74mm - 8010

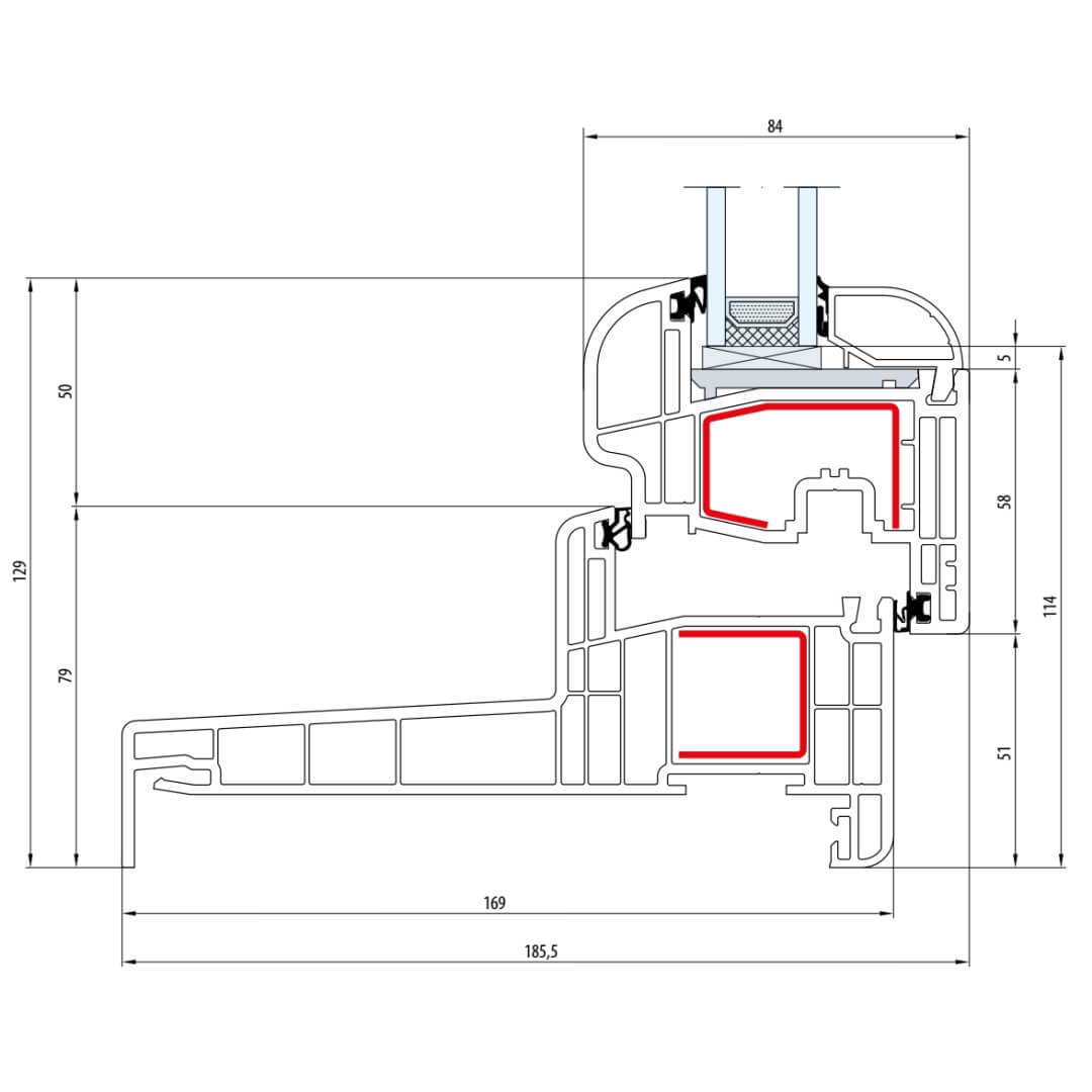
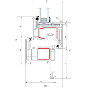
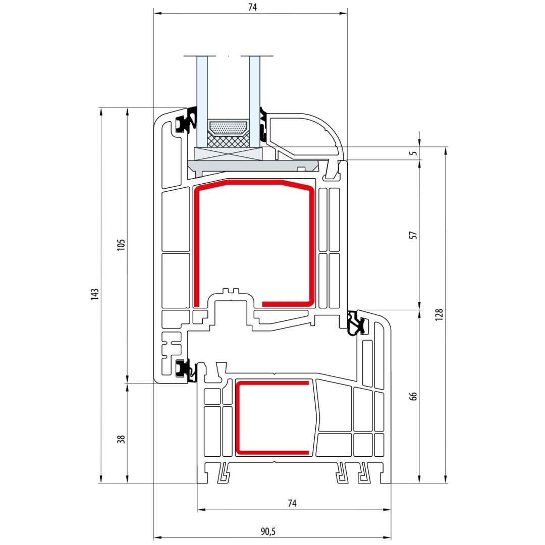
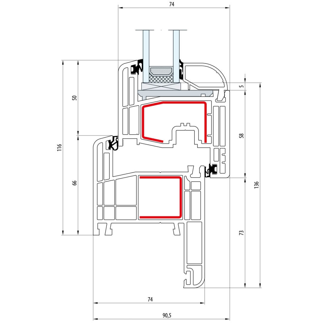
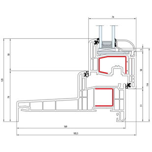
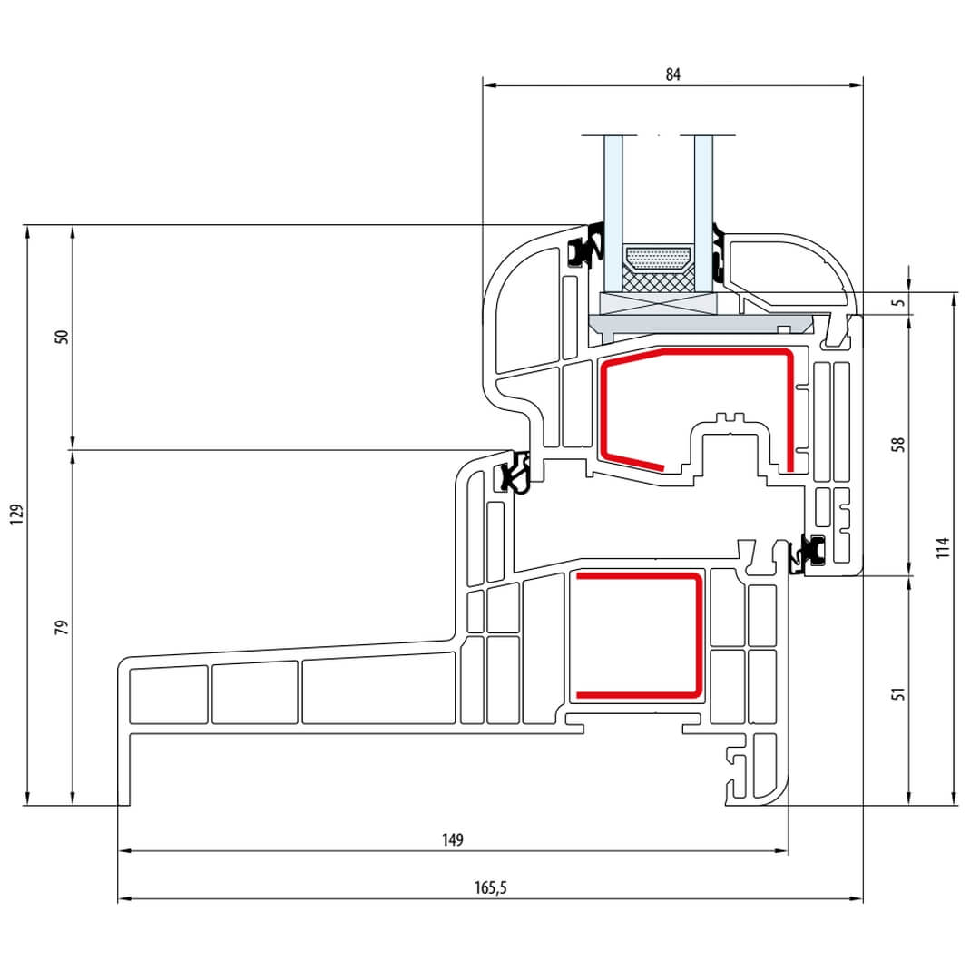
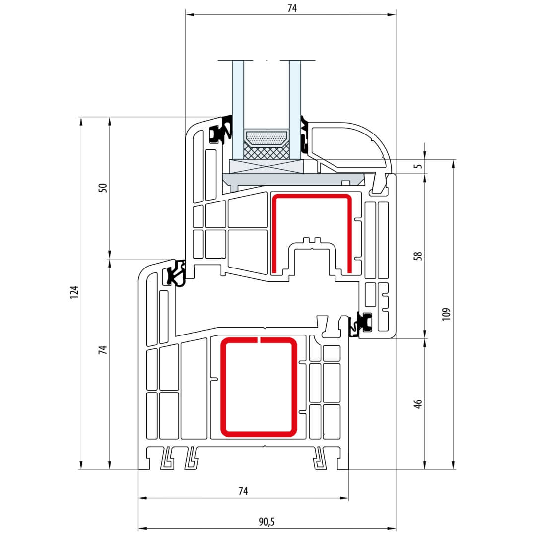
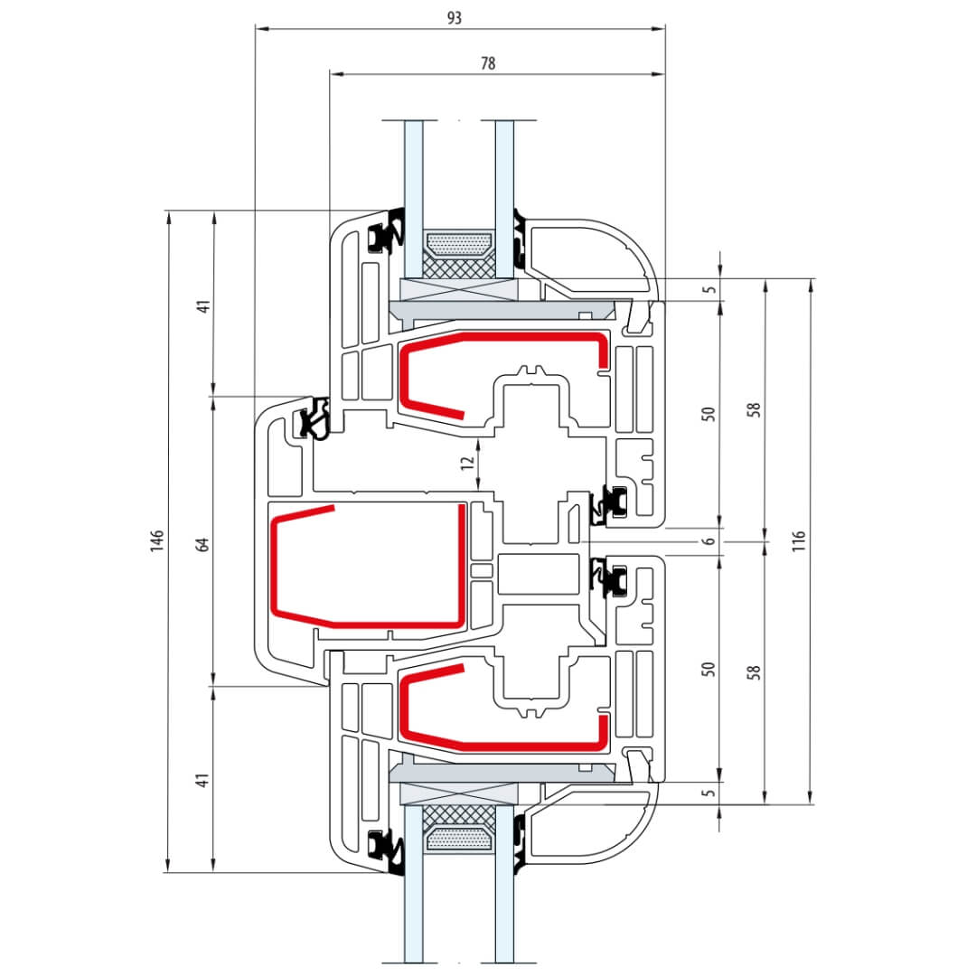
Gealan S 8000 Fenster Classic-Line 124mm Flügel 5-Kammer - 8010 - 8092

Gealan S 8000 Fenster Classic-Line 124mm Flügel 5-Kammer - 8010 - 8092

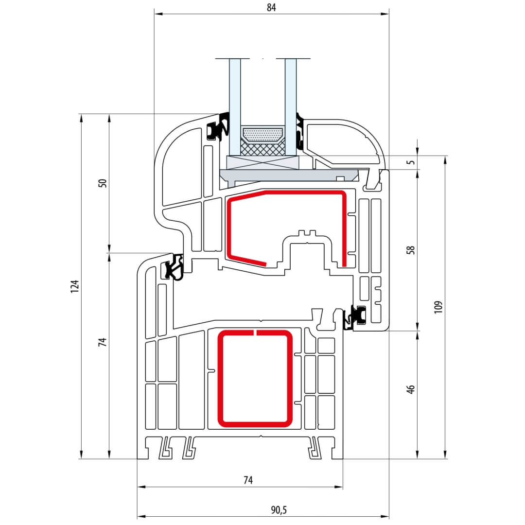
Gealan S 8000 Fenster Classic-Line 124mm Flügel 6-Kammer - 8010 - 8095

Gealan S 8000 Fenster Classic-Line 124mm Flügel 6-Kammer - 8010 - 8095

Gealan S 8000 Fenster Round-Line 124mm Flügel 5-Kammer - 8010 - 8068

Gealan S 8000 Fenster Round-Line 124mm Flügel 5-Kammer - 8010 - 8068

Gealan S 8000 Fenster Round-Line 124mm Flügel 6-Kammer - 8010 - 8096

Gealan S 8000 Fenster Round-Line 124mm Flügel 6-Kammer - 8010 - 8096

Kunststofffenster Gealan S 8000 mit Rennovationsrahmen

Gealan S 8000 - Renovation - Fenster Classic-Line Flügel 5-Kammer - Flosse 40mm - 5507 8092

Gealan S 8000 - Renovation - Fenster Classic-Line Flügel 5-Kammer - Flosse 40mm - 5507 8092

Gealan S 8000 - Renovation - Fenster Round-Line Flügel 5-Kammer - Flosse 40mm - 5507 8068

Gealan S 8000 - Renovation - Fenster Round-Line Flügel 5-Kammer - Flosse 40mm - 5507 8068

Gealan S 8000 - Renovation - Fenster Classic-Line Flügel 5-Kammer - Flosse 64,5mm - 5515 8092

Gealan S 8000 - Renovation - Fenster Classic-Line Flügel 5-Kammer - Flosse 64,5mm - 5515 8092

Gealan S 8000 - Renovation - Fenster Round-Line Flügel 5-Kammer - Flosse 64,5mm - 5515 8068

Gealan S 8000 - Renovation - Fenster Round-Line Flügel 5-Kammer - Flosse 64,5mm - 5515 8068

Gealan S 8000 - Renovation - Fenster Classic-Line Flügel 5-Kammer - Flosse 35mm - 8033 8092

Gealan S 8000 - Renovation - Fenster Classic-Line Flügel 5-Kammer - Flosse 35mm - 8033 8092

Gealan S 8000 - Renovation - Fenster Round-Line Flügel 5-Kammer - Flosse 35mm - 8033 8068

Gealan S 8000 - Renovation - Fenster Round-Line Flügel 5-Kammer - Flosse 35mm - 8033 8068

Gealan S 8000 - Renovation - Fenster Classic-Line Flügel 5-Kammer - Flosse 65mm - 8034 8092

Gealan S 8000 - Renovation - Fenster Classic-Line Flügel 5-Kammer - Flosse 65mm - 8034 8092

Gealan S 8000 - Renovation - Fenster Round-Line Flügel 5-Kammer - Flosse 65mm - 8034 8068

Gealan S 8000 - Renovation - Fenster Round-Line Flügel 5-Kammer - Flosse 65mm - 8034 8068

Kunststofffenster Gealan S 8000 Monoblock

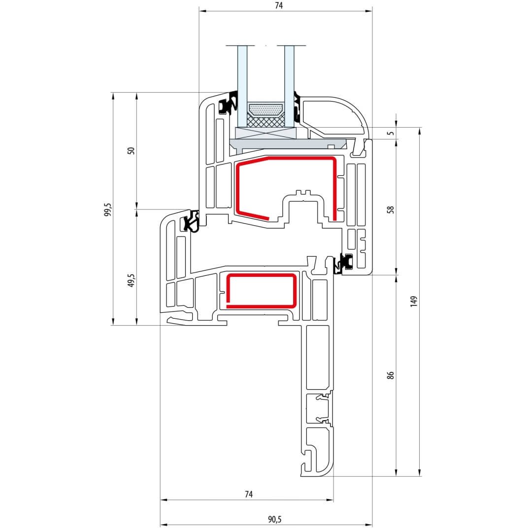
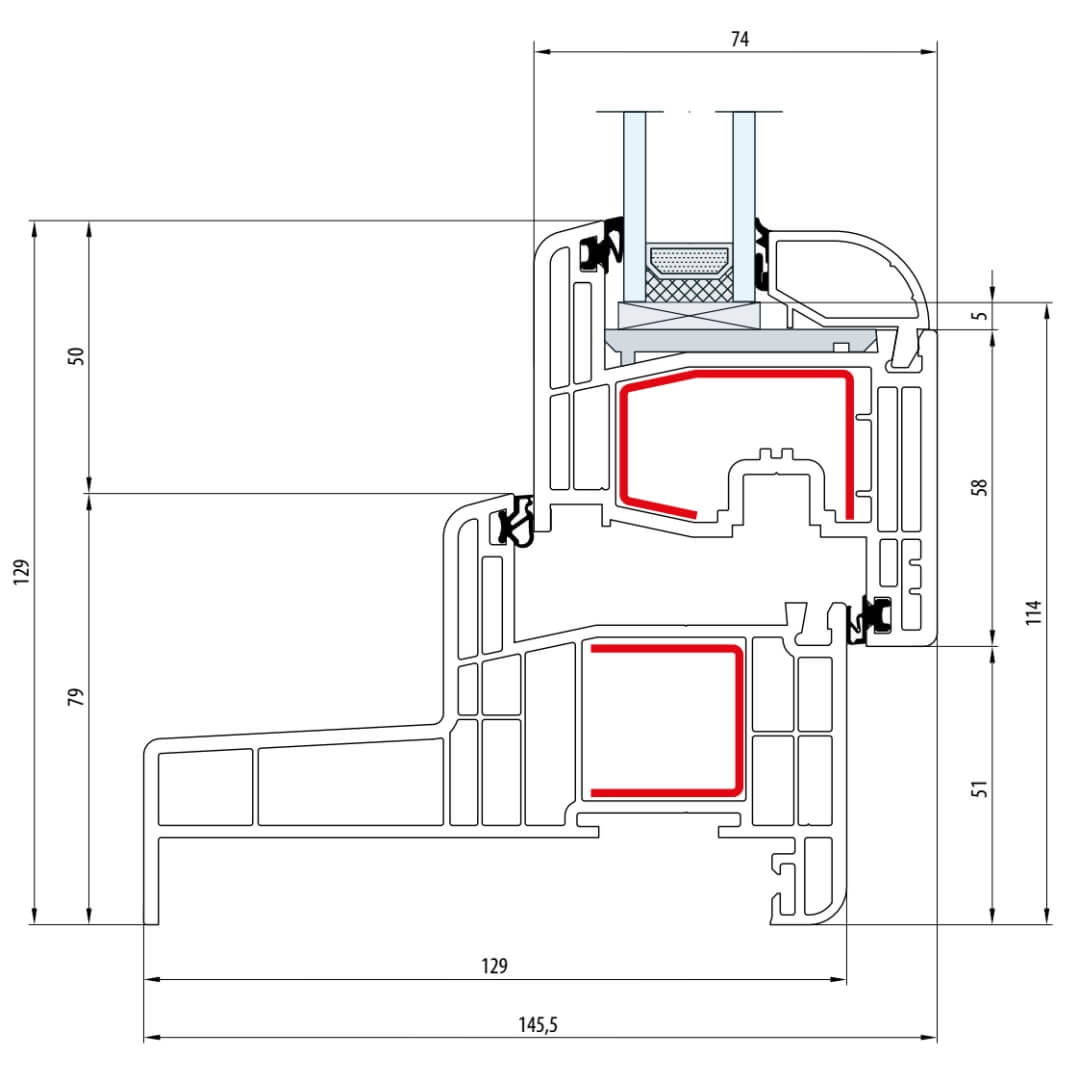
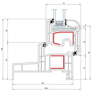
Gealan S 8000 - Monoblock 129mm - Fenster Classic-Line Flügel 5-Kammer - 5501 8092

Gealan S 8000 - Monoblock 129mm - Fenster Classic-Line Flügel 5-Kammer - 5501 8092

Gealan S 8000 - Monoblock 129mm - Fenster Round-Line Flügel 5-Kammer - 5501 8068

Gealan S 8000 - Monoblock 129mm - Fenster Round-Line Flügel 5-Kammer - 5501 8068

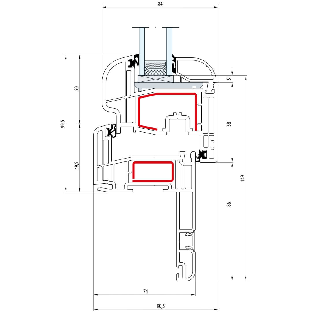
Gealan S 8000 - Monoblock 149mm - Fenster Classic-Line Flügel 5-Kammer - 5502 8092

Gealan S 8000 - Monoblock 149mm - Fenster Classic-Line Flügel 5-Kammer - 5502 8092

Gealan S 8000 - Monoblock 149mm - Fenster Round-Line Flügel 5-Kammer - 5502 8068

Gealan S 8000 - Monoblock 149mm - Fenster Round-Line Flügel 5-Kammer - 5502 8068

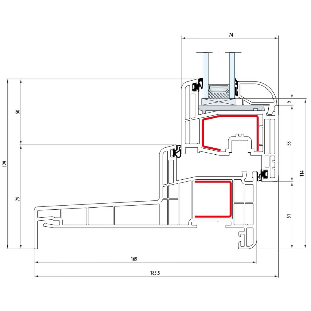
Gealan S 8000 - Monoblock 169mm - Fenster Classic-Line Flügel 5-Kammer - 5503 8092

Gealan S 8000 - Monoblock 169mm - Fenster Classic-Line Flügel 5-Kammer - 5503 8092

Gealan S 8000 - Monoblock 169mm - Fenster Round-Line Flügel 5-Kammer - 5503 8068

Gealan S 8000 - Monoblock 169mm - Fenster Round-Line Flügel 5-Kammer - 5503 8068

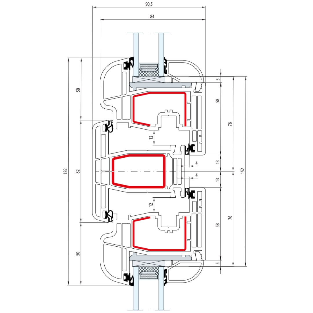
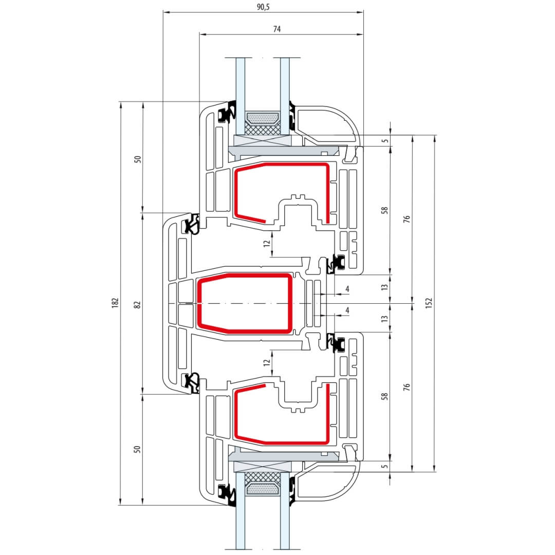
Kunststofffenster Gealan S 8000 mit Pfosten 82mm 8038/8039 (Schmal)

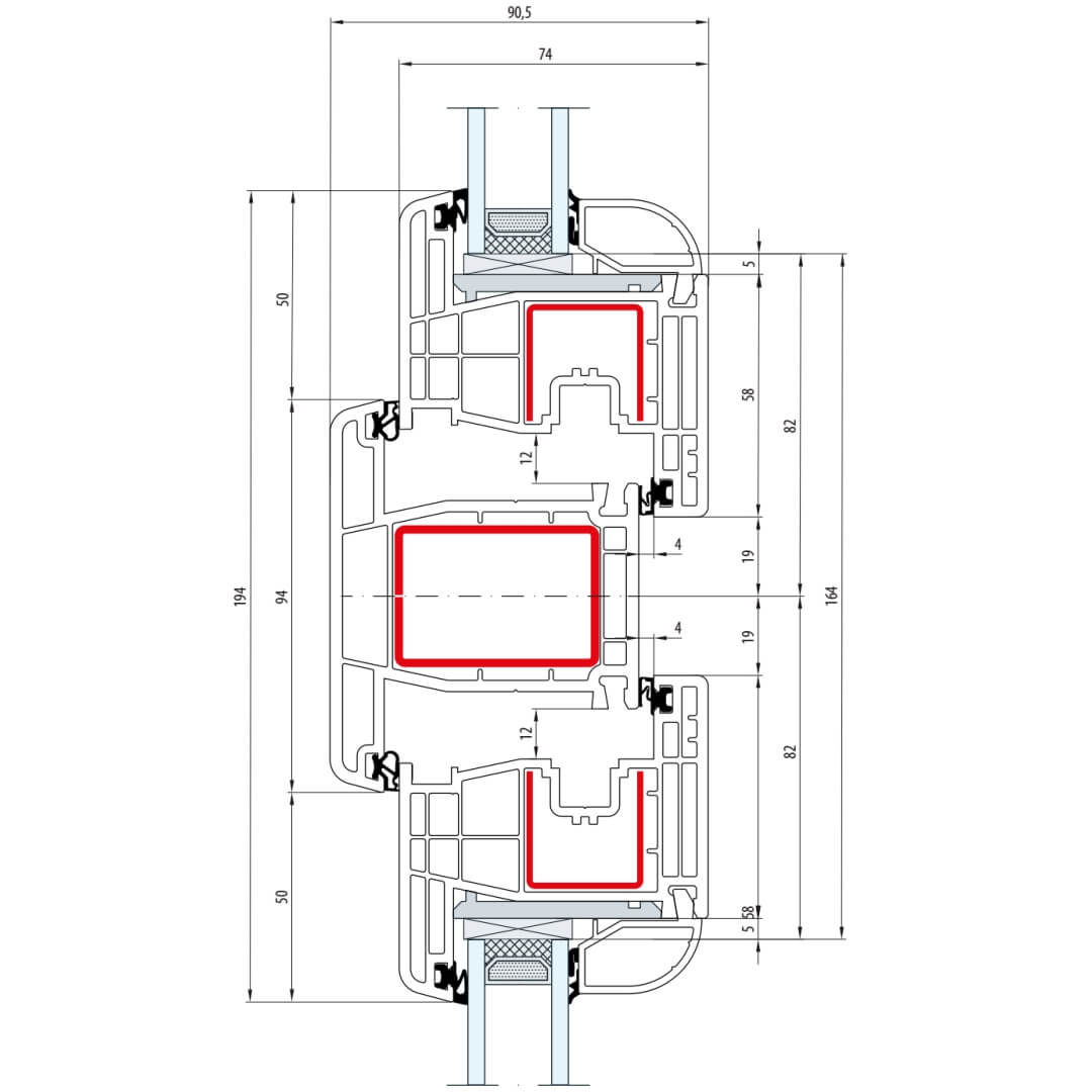
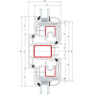
Gealan S 8000 - Pfosten 82mm - 8038

Gealan S 8000 - Pfosten 82mm - 8038

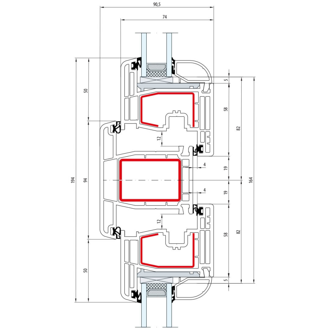
Gealan S 8000 Pfosten 82mm Fenster Classic-Line Flügel 6-Kammer - 8038 8095

Gealan S 8000 Pfosten 82mm Fenster Classic-Line Flügel 6-Kammer - 8038 8095

Gealan S 8000 Pfosten 82mm Fenster Round-Line Flügel 6-Kammer - 8038 8096

Gealan S 8000 Pfosten 82mm Fenster Round-Line Flügel 6-Kammer - 8038 8096

Gealan S 8000 - Pfosten 82mm - 8039

Gealan S 8000 - Pfosten 82mm - 8039

Gealan S 8000 Pfosten 82mm Fenster Classic-Line Flügel 5-Kammer - 8039 8092

Gealan S 8000 Pfosten 82mm Fenster Classic-Line Flügel 5-Kammer - 8039 8092

Gealan S 8000 Pfosten 82mm Fenster Round-Line Flügel 5-Kammer - 8039 8068

Gealan S 8000 Pfosten 82mm Fenster Round-Line Flügel 5-Kammer - 8039 8068

Kunststofffenster Gealan S 8000 mit Pfosten 94mm (Breit - Große Konstruktionen)

Gealan S 8000 - Pfosten 94mm - 8040

Gealan S 8000 - Pfosten 94mm - 8040

Gealan S 8000 Pfosten 94mm Fenster Classic-Line Flügel 5-Kammer - 8040 8092

Gealan S 8000 Pfosten 94mm Fenster Classic-Line Flügel 5-Kammer - 8040 8092

Gealan S 8000 Pfosten 94mm Fenster Round-Line Flügel 5-Kammer - 8040 8068

Gealan S 8000 Pfosten 94mm Fenster Round-Line Flügel 5-Kammer - 8040 8068

Gealan S 8000 Pfosten 94mm Fenster Classic-Line Flügel 6-Kammer - 8040 8095

Gealan S 8000 Pfosten 94mm Fenster Classic-Line Flügel 6-Kammer - 8040 8095

Gealan S 8000 Pfosten 94mm Fenster Round-Line Flügel 6-Kammer - 8040 8096

Gealan S 8000 Pfosten 94mm Fenster Round-Line Flügel 6-Kammer - 8040 8096

Kunststofffenster Gealan S 8000 mit Stulp 64mm

Gealan S 8000 Stulp 64mm Fenster Classic-Line Flügel 5-Kammer - 8304 8092

Gealan S 8000 Stulp 64mm Fenster Classic-Line Flügel 5-Kammer - 8304 8092

Gealan S 8000 Stulp 64mm Fenster Round-Line Flügel 5-Kammer - 8304 8068

Gealan S 8000 Stulp 64mm Fenster Round-Line Flügel 5-Kammer - 8304 8068

Gealan S 8000 Stulp 64mm Fenster Classic-Line Flügel 6-Kammer - 8080 8095

Gealan S 8000 Stulp 64mm Fenster Classic-Line Flügel 6-Kammer - 8080 8095

Gealan S 8000 Stulp 64mm Fenster Round-Line Flügel 6-Kammer - 8080 8096

Gealan S 8000 Stulp 64mm Fenster Round-Line Flügel 6-Kammer - 8080 8096

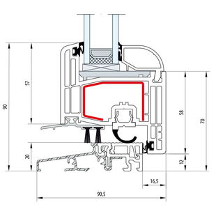
Gealan S 8000 Stulp 64mm Fenster Classic-Line schmaler Flügel 5-Kammer - 8080 8079

Gealan S 8000 Stulp 64mm Fenster Classic-Line schmaler Flügel 5-Kammer - 8080 8079

Kunststoff Balkontür Gealan S 8000

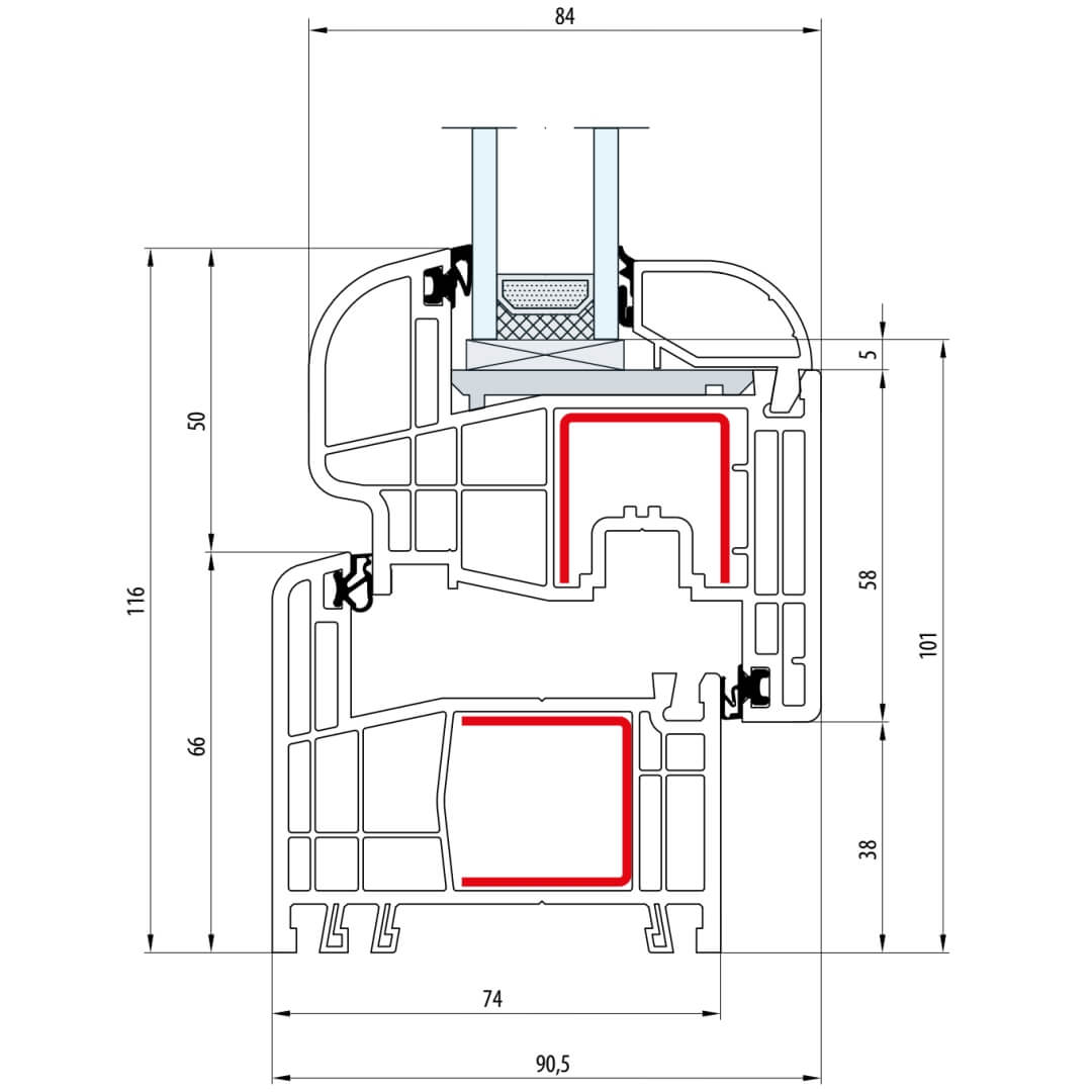
Gealan S 8000 Fenster Classic-Line 116mm Flügel 5-Kammer - 8001 - 8092

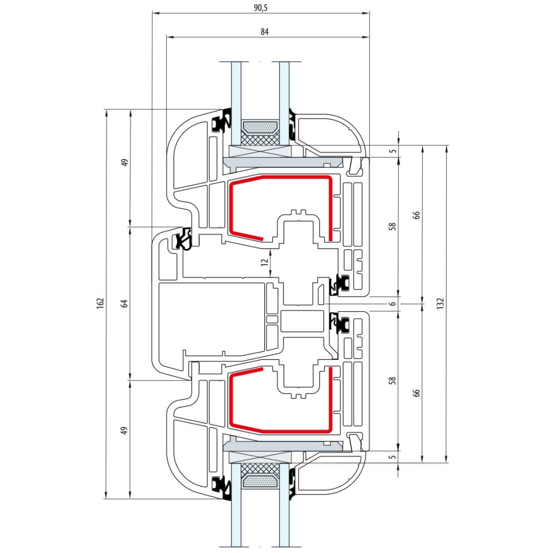
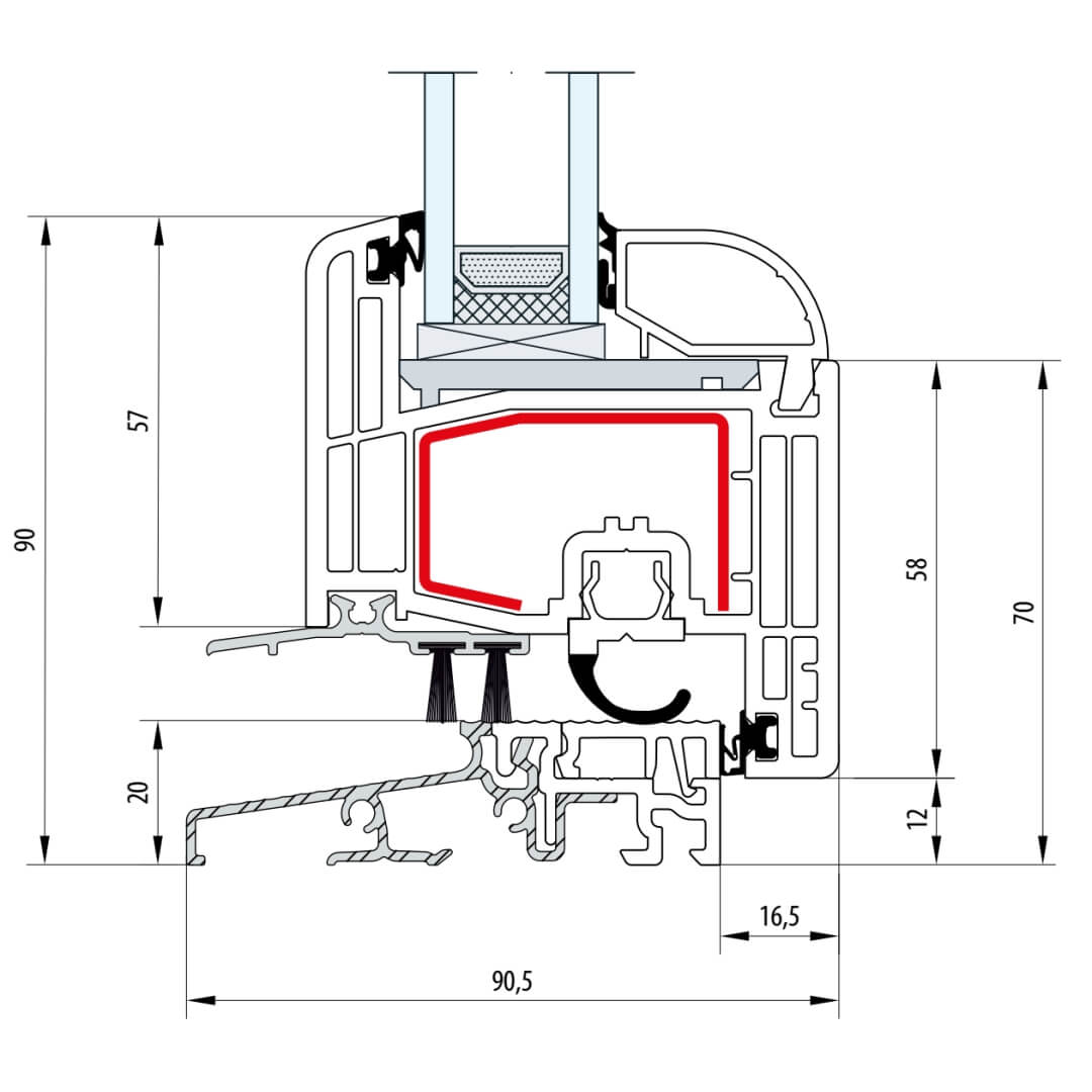
Gealan S 8000 Balkontür Classic-Line mit Blendrahmen 116mm Flügel 5-Kammer - 8001 - 8092

Gealan S 8000 Balkontürschwelle 20mm Classic-Line Flügel 5-Kammer - 8092

Gealan S 8000 Balkontürschwelle 20mm Classic-Line Flügel 5-Kammer - 8092

Gealan S 8000 Fenster Classic-Line 116mm Flügel 6-Kammer - 8001 - 8095

Gealan S 8000 Balkontür Classic-Line mit Blendrahmen 116mm Flügel 6-Kammer - 8001 - 8095

Gealan S 8000 Balkontürschwelle 20mm Classic-Line Flügel 6-Kammer - 8095

Gealan S 8000 Balkontürschwelle 20mm Classic-Line Flügel 6-Kammer - 8095

Gealan S 8000 Fenster Round-Line 116mm Flügel 5-Kammer - 8001 - 8068

Gealan S 8000 Balkontür Round-Line mit Blendrahmen 116mm Flügel 5-Kammer - 8001 - 8068

Gealan S 8000 Balkontürschwelle 20mm Round-Line Flügel 5-Kammer - 8068

Gealan S 8000 Balkontürschwelle 20mm Round-Line Flügel 5-Kammer - 8068

Gealan S 8000 Fenster Round-Line 116mm Flügel 6-Kammer - 8001 - 8096

Gealan S 8000 Balkontür Round-Line mit Blendrahmen 116mm Flügel 6-Kammer - 8001 - 8096

Gealan S 8000 Balkontürschwelle 20mm Round-Line Flügel 6-Kammer - 8096

Gealan S 8000 Balkontürschwelle 20mm Round-Line Flügel 6-Kammer - 8096

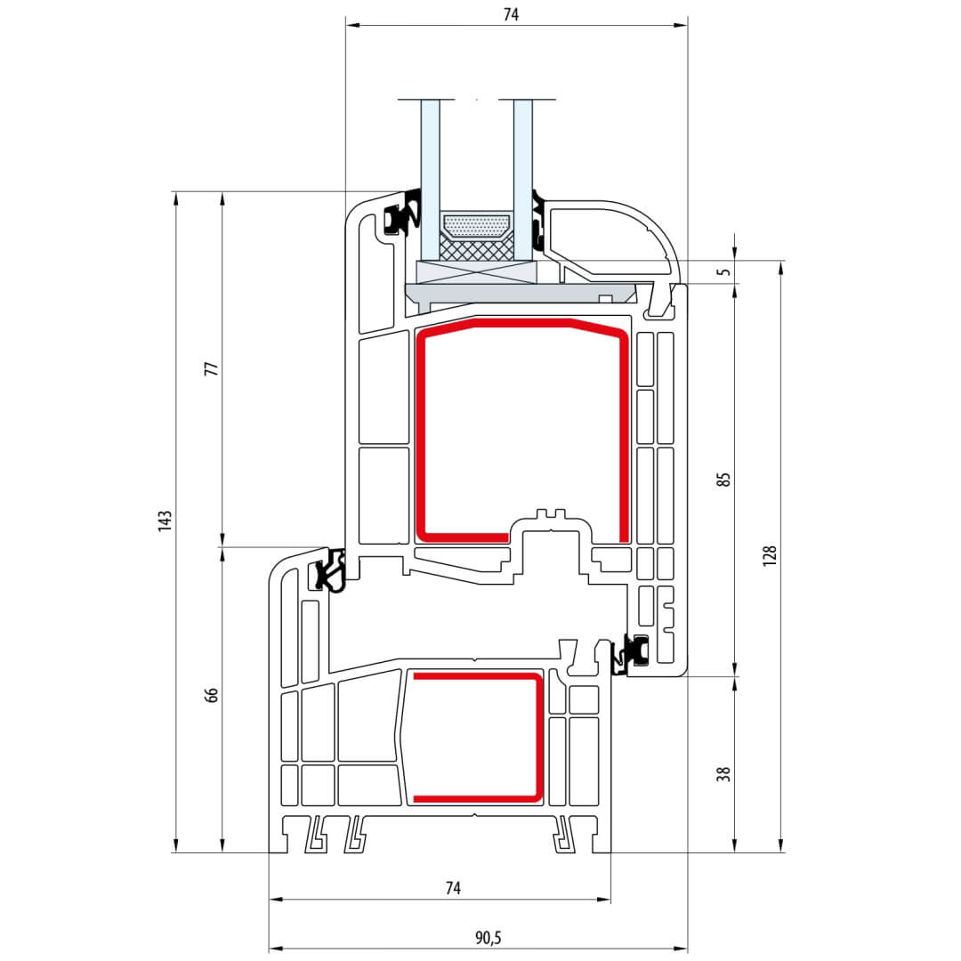
Kunststoff Terrassenflügel Gealan S 8000

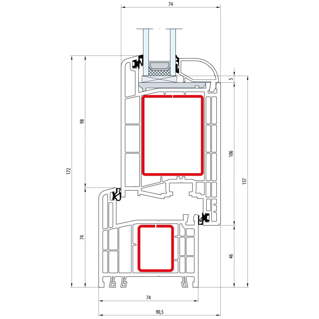
Gealan S 8000 Terrassenflügel innen öffnend Classic-Line 143mm - 8001 - 8081

Gealan S 8000 Terrassenflügel innen öffnend Classic-Line 143mm - 8001 - 8081

Gealan S 8000 Terrassentürschwelle 20mm Classic-Line innen öffnend - 8081

Gealan S 8000 Terrassentürschwelle 20mm Classic-Line innen öffnend - 8081

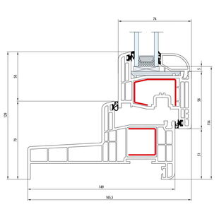
Gealan S 8000 Pfosten 94mm Terrassenflügel innen öffnend Classic-Line - 8040 - 8081

Gealan S 8000 Pfosten 94mm Terrassenflügel innen öffnend Classic-Line - 8040 - 8081

Gealan S 8000 Terrassenflügel außen öffnend Classic-Line 143mm - 8001 - 8078

Gealan S 8000 Terrassenflügel außen öffnend Classic-Line 143mm - 8001 - 8078

Gealan S 8000 Terrassentürschwelle 20mm Classic-Line außen öffnend - 8078

Gealan S 8000 Terrassentürschwelle 20mm Classic-Line außen öffnend - 8078

Gealan S 8000 Pfosten 94mm Terrassenflügel außen öffnend Classic-Line - 8040 - 8078

Gealan S 8000 Pfosten 94mm Terrassenflügel außen öffnend Classic-Line - 8040 - 8078

Terrassenflügel Gealan S 8000 mit Stulp 64mm

Gealan S 8000 Stulp 64mm Terrassenflügel innen öffnend Classic-Line - 8080 - 8081

Gealan S 8000 Stulp 64mm Terrassenflügel innen öffnend Classic-Line - 8080 - 8081

Gealan S 8000 Stulp 64mm Terrassenflügel außen öffnend Classic-Line - 8080 - 8078

Gealan S 8000 Stulp 64mm Terrassenflügel außen öffnend Classic-Line - 8080 - 8078

Kunststoff Gealan S 8000 PSK Parallel-Schiebe-Kipp-Tür

Kunststoff Haustür Gealan S 8000

Gealan S 8000 Tür innen öffnend - 8010 - 8076

Gealan S 8000 Tür innen öffnend - 8010 - 8076

Gealan S 8000 Türschwelle 20mm innen öffnend - 8076

Gealan S 8000 Türschwelle 20mm innen öffnend - 8076

Gealan S 8000 Pfosten 94mm Tür innen öffnend - 8040 - 8076

Gealan S 8000 Pfosten 94mm Tür innen öffnend - 8040 - 8076

Gealan S 8000 Tür außen öffnend - 8010 - 8042

Gealan S 8000 Tür außen öffnend - 8010 - 8042

Gealan S 8000 Türschwelle 20mm außen öffnend - 8042

Gealan S 8000 Türschwelle 20mm außen öffnend - 8042

Gealan S 8000 Pfosten 94mm Tür außen öffnend - 8040 - 8042

Gealan S 8000 Pfosten 94mm Tür außen öffnend - 8040 - 8042

Türflügel Gealan S 8000 mit Stulp 64mm

Gealan S 8000 Stulp 64mm Tür innen öffnend - 8080 - 8076

Gealan S 8000 Stulp 64mm Tür innen öffnend - 8080 - 8076

Gealan S 8000 Stulp 64mm Tür außen öffnend - 8080 - 8042

Gealan S 8000 Stulp 64mm Tür außen öffnend - 8080 - 8042

Zusatzprofile für Gealan S 8000 Querschnitte

Kunststoff Sprossenarten - Gealan S 8000

Innenliegende SZR Sprossen / Helima Sprossen

Drutex Iglo SZR Sprosse 8mm

Innenliegende Sprosse 8mm

Drutex Iglo SZR Sprosse 18mm

Innenliegende Sprosse 18mm

Drutex Iglo SZR Sprosse 26mm

Innenliegende Sprosse 26mm

Drutex Iglo SZR Sprosse 45mm

Innenliegende Sprosse 45mm

Aufgesetzte / Aufgeklebte Sprossen

Glasteilende Sprossen - Kämpfer

Gealan S 8000 - Pfosten 82mm - 8038

Gealan S 8000 - Kämpfer Sprosse 82mm - 8038

Gealan S 8000 - Pfosten 82mm - 8039

Gealan S 8000 - Kämpfer Sprosse 82mm - 8039

Gealan S 8000 - Pfosten 94mm - 8040

Gealan S 8000 - Kämpfer Sprosse 94mm - 8040

Kunststoff Anschlussprofile - Gealan S 8000

Kunststoff Bankanschlussprofile

Gealan 7205 - Fensterbankanschluss - 30mm

7205 - Fensterbankanschluss - 30mm

Kunststoff Bankanschlussprofile auf Anfrage

Gealan 7202 - Fensterbankanschluss - 30mm

7202 - Fensterbankanschluss - 30mm

Kunststoff Anschlussprofile (bündig)

Gealan 2101 - Bankanschlussprofil 20mm

2101 - Anschlussprofil 20mm

Gealan 3206 - Bankanschlussprofil 30mm

3206 - Anschlussprofil 30mm

Gealan 3205 - Bankanschlussprofil 40mm

3205 - Anschlussprofil 40mm

Kunststoff Fensterbank-Anschlussprofile

Gealan 2203 - Fensterbank aussen 154mm

2203 - Fensterbank aussen 154mm

Gealan 2209 - Fensterbank aussen 42mm

2209 - Fensterbank aussen 42mm

Gealan 3207 - Fensterbank aussen 57mm

3207 - Fensterbank aussen 57mm

Gealan 7209 - Fensterbank aussen 62,5mm

7209 - Fensterbank aussen 62,5mm

Gealan 7213 - Fensterbank aussen 107mm

7213 - Fensterbank aussen 107mm

Kunststoff Rahmenverbreiterung - Gealan S 8000

Gealan 2315 - Rahmenverbreiterung 20mm

2315 - Rahmenverbreiterung 20mm

Gealan 2313 - Rahmenverbreiterung 36mm

2313 - Rahmenverbreiterung 36mm

Gealan 7292 - Rahmenverbreiterung 58mm

7292 - Rahmenverbreiterung 58mm

Gealan 2311 - Rahmenverbreiterung 125mm

2311 - Rahmenverbreiterung 125mm

Kunststoff Kopplungen - Gealan S 8000

Gealan 3284 - H-Kopplung universal

3284 - H-Kopplung universal

Gealan 7281 - Statikkopplung 14,6mm

7281 - Statikkopplung 14,6mm

Gealan 7291 - Statikkopplung 16mm (Große Konstruktion)

7291 - Statikkopplung 16mm (Große Konstruktion)

Gealan 3559 - Statikkopplung Montagehilfe

3559 - Statikkopplung Montagehilfe

Kopplung von Eck-Elementen - 90° und Variabel

Gealan 2304 - Eckkopplung 90 Grad

2304 - Eckkopplung 90 Grad

Gealan 2233 - Eckkopplung variabel

2233 - Eckkopplung variabel

Kunststoff Abdeckleisten - Gealan S 8000

Aluplast Flachleisten aus Kunststoff Auswahl 65025100, 6465050, 65025080, 65025070, 65025050, 65025040, 65025030

65025100, 6465050, 65025080, 65025070, 65025050, 65025040, 65025030 - Flachleiste aus Kunststoff Auswahl

Winkelprofile aus Kunststoff 73100060, 73080050, 73060040, 73020020

73100060, 73080050, 73060040, 73020020 - Winkelprofil aus Kunststoff

Gealan kozijnen en deuren op maat

Configureer en bestel eenvoudig en comfortabel Gealan ramen en deuren online bij kozijnenblik.nl

Das könnte Sie auch interessieren:

Kunststofffenster Gealan Lumaxx

Detailzeichnungen Kunststofffenster Gealan Lumaxx

Kunststofffenster Gealan Lumaxx besitzen eine Bautiefe (Rahmen) von 82,5mm.

Detailzeichnungen Gealan Lumaxx

Kunststofffenster Gealan S 9000

Detailzeichnungen Kunststofffenster Gealan S 9000

Kunststofffenster Gealan S 9000 besitzen eine Bautiefe (Rahmen) von 82,5mm.

Detailzeichnungen Gealan S 9000