Einfach und bequem Gealan Fenster nach Maß online konfigurieren und bestellen bei fensterblick.de
Kunststofffenster – Gealan Kubus®
Passivhaustauglich und stilvoll
- Mehrkammersystem mit IKD®
- 100mm Bautiefe
- 3 Dichtungsebenen: Mittel- und Anschlagsdichtung
- 3-fach Verglasung
- Scheibenpakete bis 48 mm
- Uf-Wert von 0,88 W/(m²K)
vanaf 40,52 €
incl. 21% BTW excl. verzendkosten
Produktbeschreibung
Das Gealan-Kubus® System entfaltet eine neue Formensprache für Kunststofffenster in moderner Architektur. Das Gealan-Kubus® zeichnet sich durch seine schmale Profilansicht und seinen verdeckt liegenden Flügel, die einen höheren Glasanteil als herkömmliche Fenster ermöglichen, aus. Damit verbunden ist auch ein größerer Lichteinfall dank der großen Glasflächen. Es handelt sich hierbei um ein innovatives Ganzglas-System, das auch passivhaustauglich ist. Das Gealan-Kubus® ermöglicht durch sein zukunftsorientiertes Profildesign und der IKD® -Schaumtechnologie im Rahmenprofil eine ausgezeichnete Wärmedämmung. Ein Uf-Wert von 0,88 W/(m²K) kann erreicht werden. Auf der Innenseite beeindruckt das Gealan-Kubus® mit seiner flächenbündigen Ansicht ohne Fugen. Auf der Außenseite rundet der rechtwinklige Überschlag das Gesamtbild sowohl des einzelnen Elementes als auch der Fassade ab. Auch farbige Profile sind mit diesem System möglich. Dank der optionalen Acrylcolor-Oberfläche lassen sich Elemente, die strapazierfähig, pflegeleicht und elegant sind, kreieren.
Video: Gealan Kubus® für Fenster mit rahmenlosen Design
Große Auswahl an Farben für Gealan Fensterprofile
Gealan Fenster nach Maß
Kiss-Prinzip: Keep It Small and Simple für Gealan-Kubus
Das Kiss-Prinzip beinhaltet 6 Punkte:
- Umlaufend rechtwinklige Optik
- Von außen unsichtbarer Flügel
- Fugenloses Flügeldesign ohne Glasleisten und flächenbündige Ansicht
- Acrylcolor-Oberflächentechnologie auf der Außenseite
- STV® (Statische-Trocken-Verglasung) Technologie sorgt für „randloses“ Design und erhöhte Stabilität
- Ausgezeichnete Wärmedämmung dank IKD®- Intensiv-Kern-Dämmung der Profilkammern
Zusätzlich zu diesen Eigenschaften steht das GEALAN Kubus-System für nachhaltige Effizienz und höchste Stabilität, was sowohl den Energieverbrauch als auch den Wartungsaufwand reduziert. Durch die flächenbündige Konstruktion fügt sich das Fenster nahtlos in die Architektur moderner Gebäude ein und sorgt für ein maximales Glasflächenverhältnis. Dank der innovativen Acrylcolor-Beschichtung bleibt die Oberfläche selbst bei extremen Witterungsbedingungen farbstabil und kratzfest.
Hervorragende statische Eigenschaften mit Gealan STV®
Das Profilsystem Gealan-Linear® kann durch die innovative Klebetechnologie Gealan-STV® erweitert werden.
Es handelt sich dabei um die Statische-Trocken-Verglasung, die die Scheibe und den Flügelüberschlag trocken verklebt. So wird die Stabilität des Glases auf den Flügelrahmen übertragen und die Gesamtstabilität des Elementes erhöht.
Zudem gewinnt es dadurch eine längere Lebensdauer und eine optimale Funktionalität. Die Klebetechnologie auf die die Gealan-STV® basiert, wird nicht nur im Fensterbau angewendet, sondern auch im Automobilbau, in regenerative Energien, in Hausgeräten und in der Luftfahrt.
Farbige Fenster mit GEALAN-acrylcolor®
Bei Acrylcolor handelt es sich um eine hochwertige Oberfläche, die besondere Eigenschaften für Fenster- und Türprofile mit sich bringt, die Kunststoff-Fenster mit Langlebigkeit und Schutz versiegeln.
Acrylcolor entsteht durch ein Coextrusions-Verfahren womit der weiße PVC-Grundkörper und das farbige Acrylglas (PMMA) miteinander verschmolzen werden. Acrylglas bewährt sich durch seine Qualität als hochwertiges Produkt in der Automobilindustrie (Rückleuchten) sowie in der Innenarchitektur.
Fenster mit GEALAN-acrylcolor® erfüllen höchste technische und funktionale Ansprüche an innovative, farbige Oberflächen.
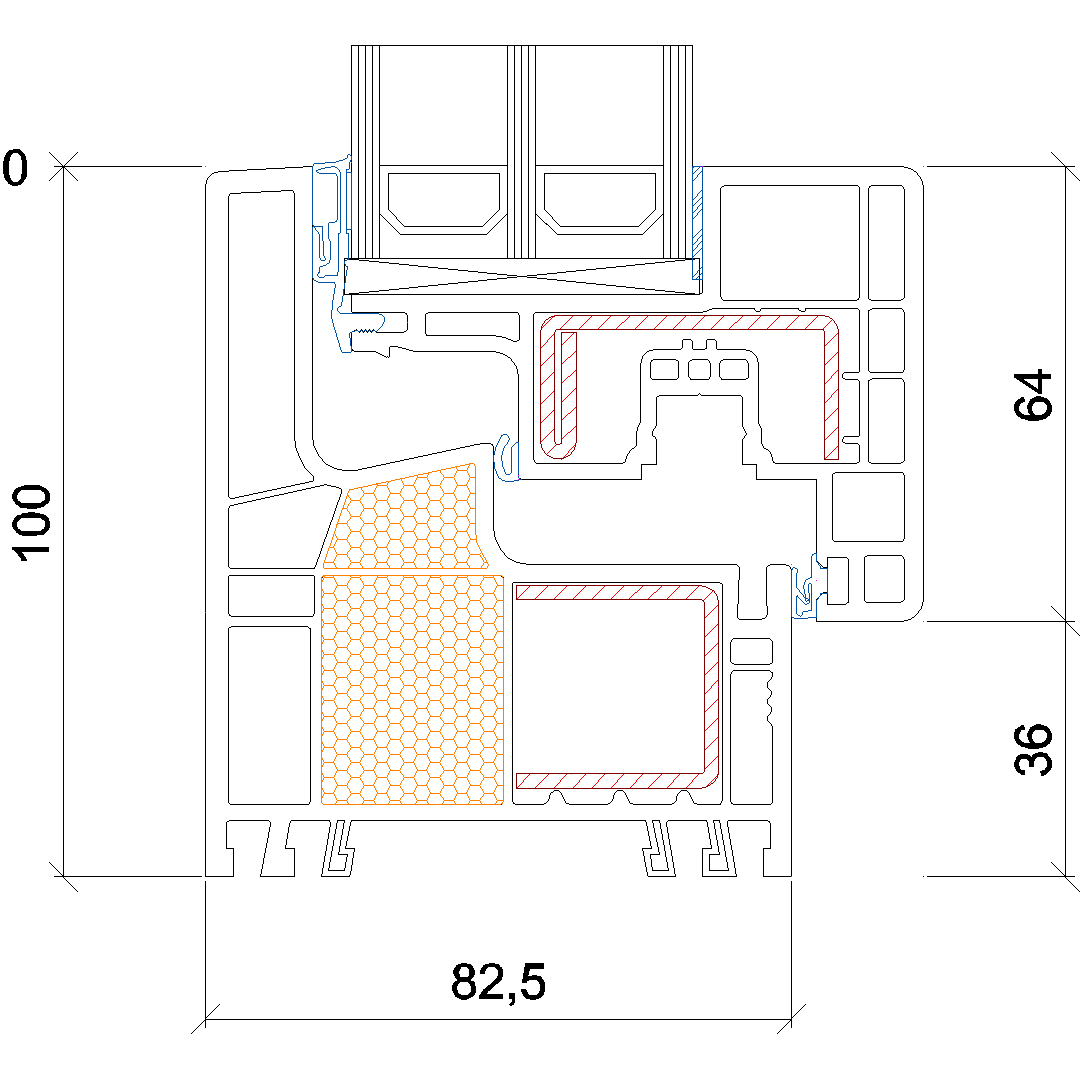
Technische Querschnitte und Detailzeichnungen
Entdecken Sie die innovativen Möglichkeiten des GEALAN Kubus-Systems durch präzise Profilschnitte! Hier erhalten Sie alle relevanten Maße, Konstruktionsdetails, Modellvarianten und Verglasungspakete, die Ihnen eine exakte und ästhetisch anspruchsvolle Planung Ihrer neuen Fenster ermöglichen. Das GEALAN Kubus-System bietet eine einzigartige, rahmenlose Optik, die für modernes Design und maximale Glasflächen sorgt. Die genaue Dokumentation sorgt nicht nur für hohe Planungssicherheit, sondern erleichtert auch die spätere Montage, da jedes Fenster passgenau auf Ihre individuellen Anforderungen abgestimmt ist. Zudem stehen verschiedene Rahmenverbreiterungen zur Verfügung, um spezielle bauliche Gegebenheiten optimal anzupassen – sei es bei Sanierungsprojekten mit unebenen Maueröffnungen oder zur Integration zusätzlicher Elemente wie Rollladen-Gurtwickler. Dank der technischen Zeichnungen können Sie die Maße exakt bestimmen und Ihre Visionen bis ins Detail realisieren.
Weitere Informationen zu Detailzeichnungen - Gealan Kubus
Kostenlose Lieferung
Ab einer Bestellung von 10 Fenstern deutschlandweit!
Weitere Fenstersysteme von Gealan:
Gealan Fenster | Gealan S 8000 | Gealan S 9000 | Gealan Lumaxx® | Gealan Linear® | Gealan Kontur® | Gealan S 9000 NL | Gealan Kontur® mit Alu-Vosatzschale | Gealan S 9000 mit Alu-Vosatzschale






