Detailzeichnungen Gealan Kubus

Kunststofffensterprofil Gealan Kubus Querschnitte

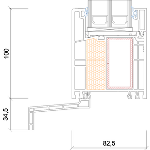
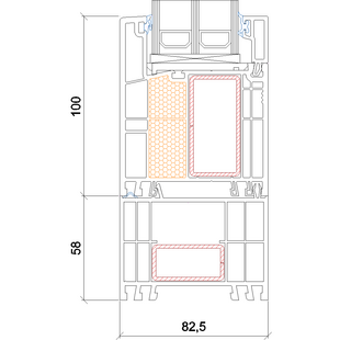
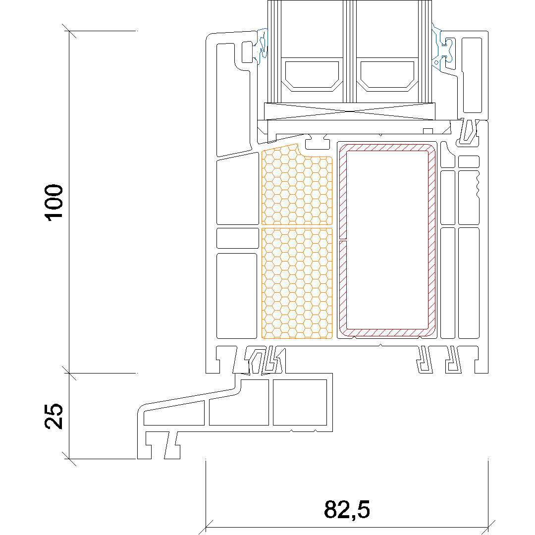
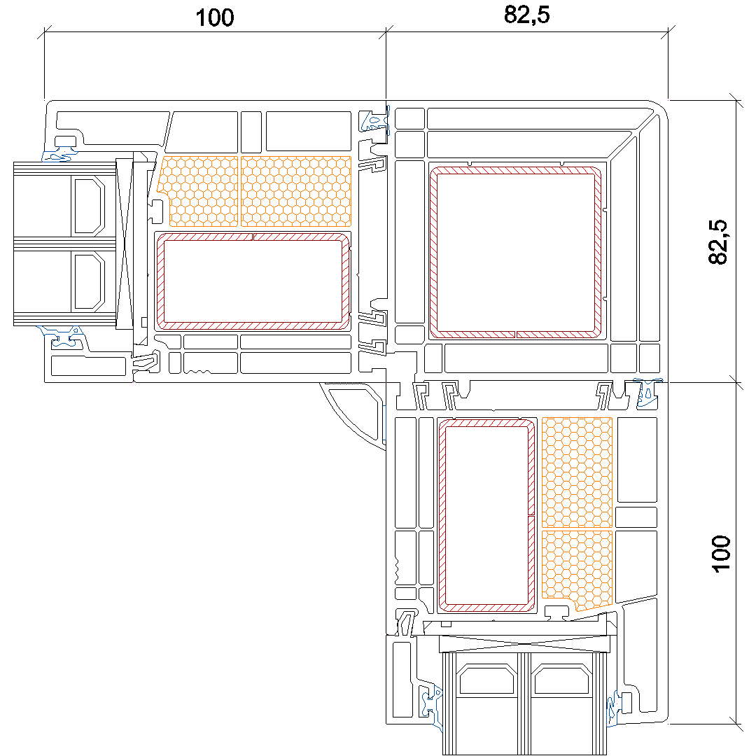
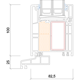
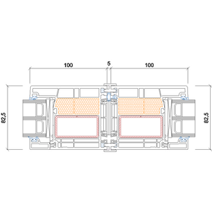
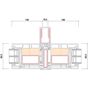
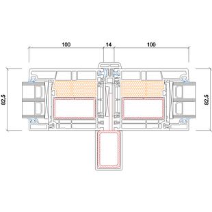
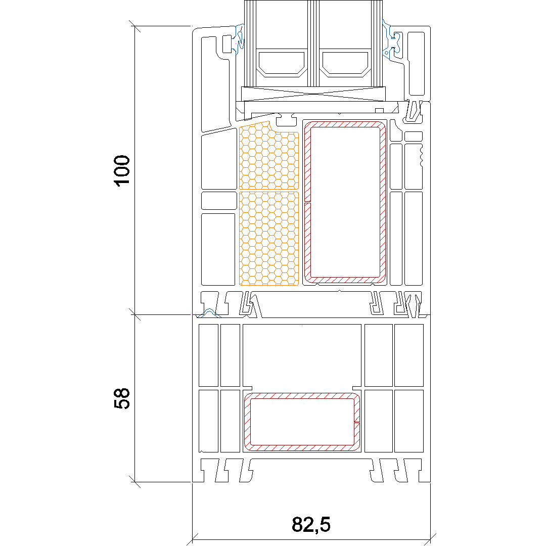
Gealan Kubus Festverglasung 100mm - 5064-IKD

Gealan Kubus Festverglasung 100mm - 5064-IKD

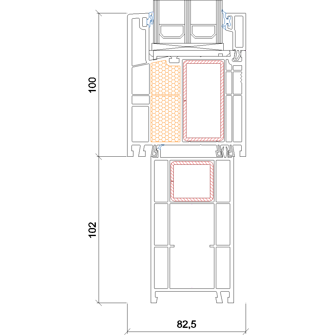
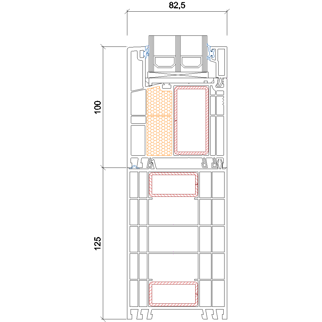
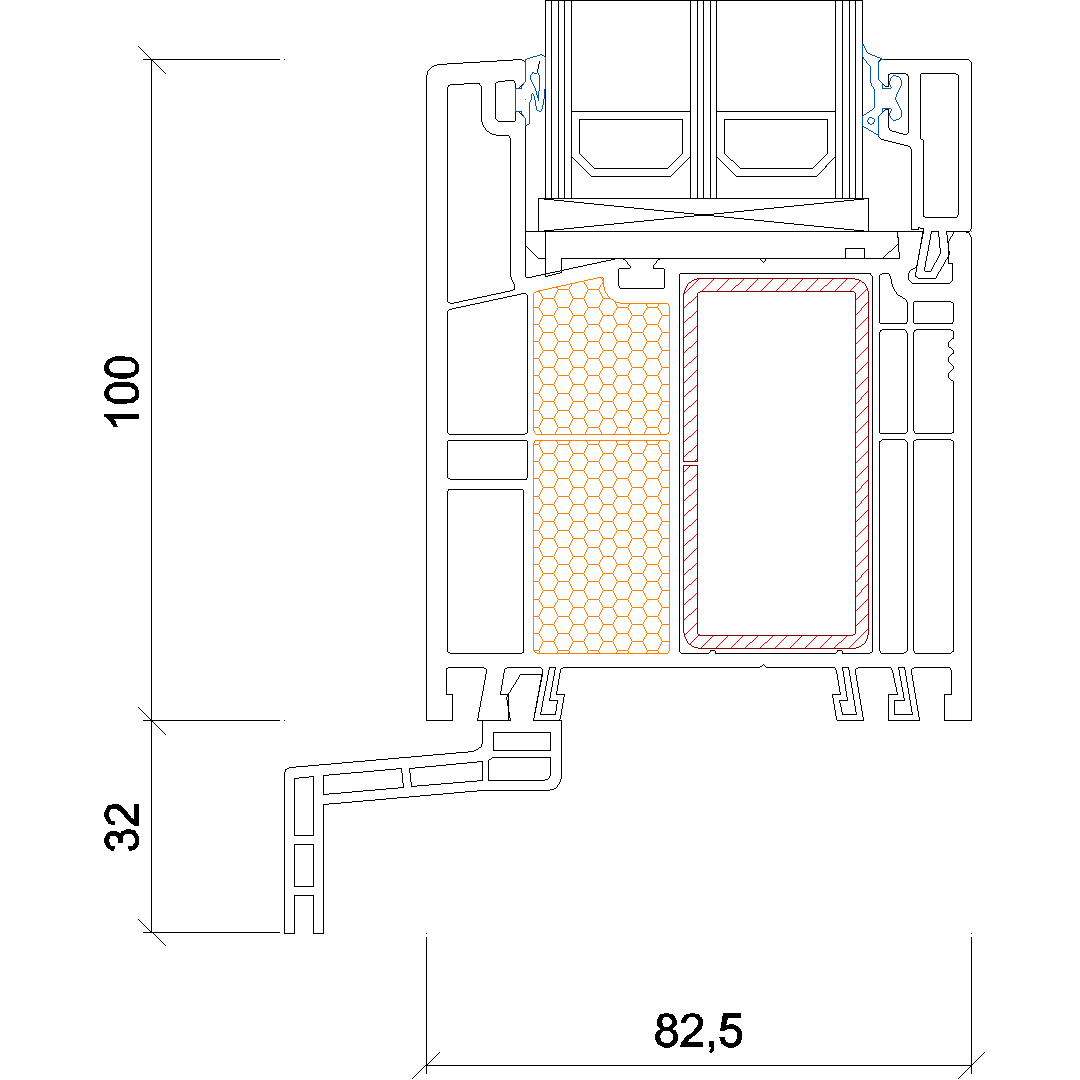
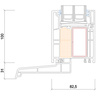
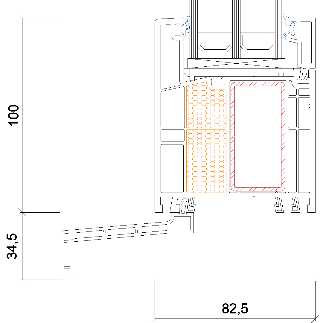
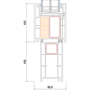
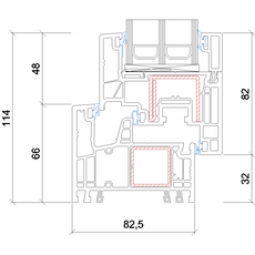
Gealan Kubus Fenster - 100mm 5060-5061

Gealan Kubus Fenster - 100mm 5060-5061

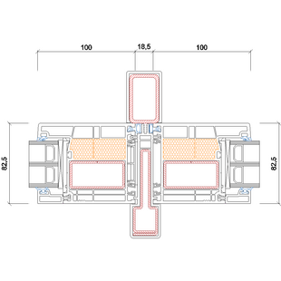
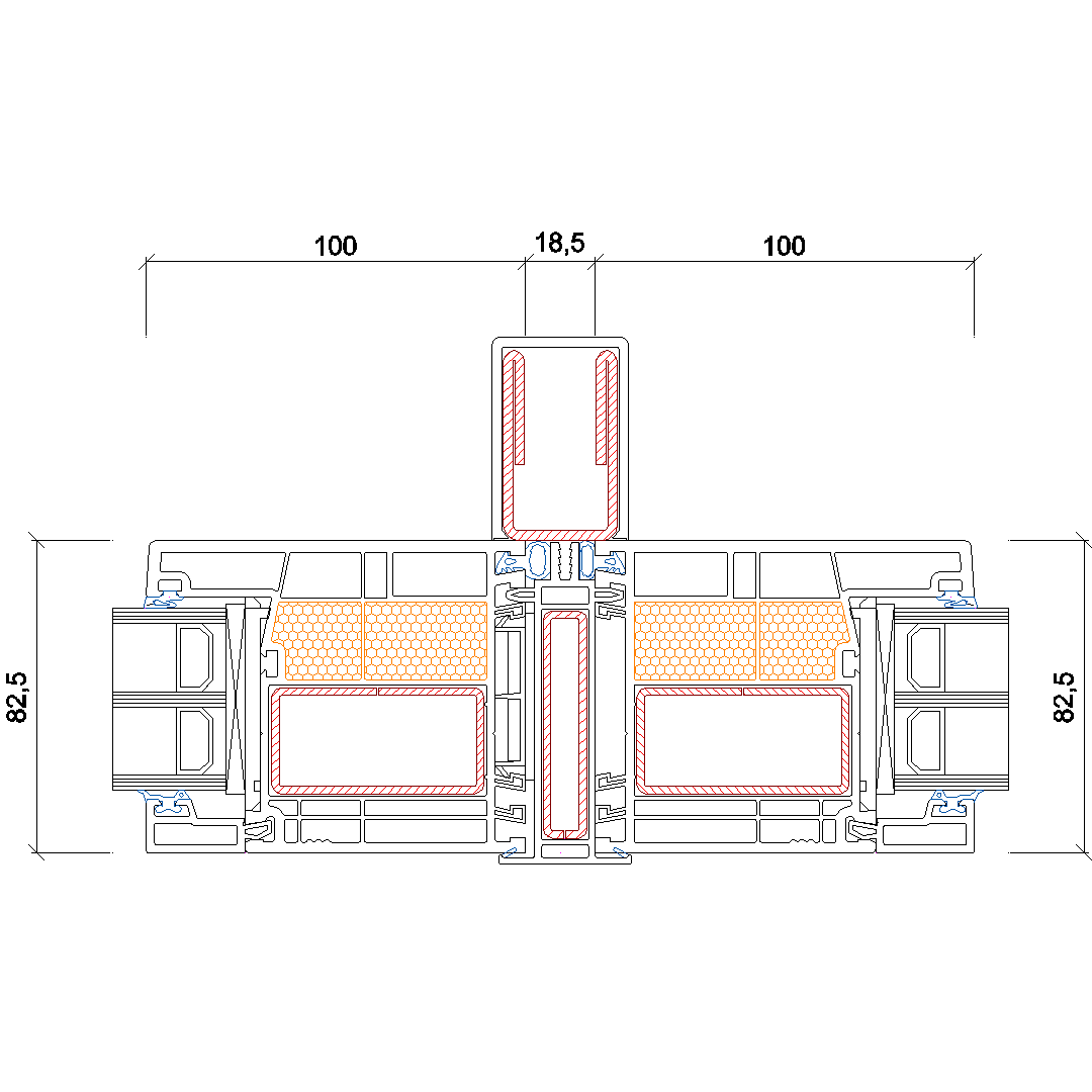
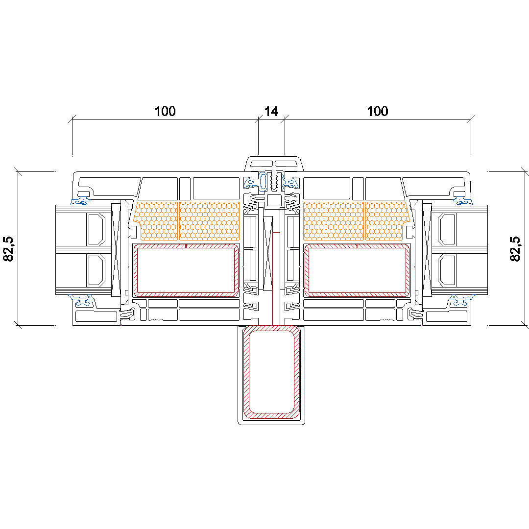
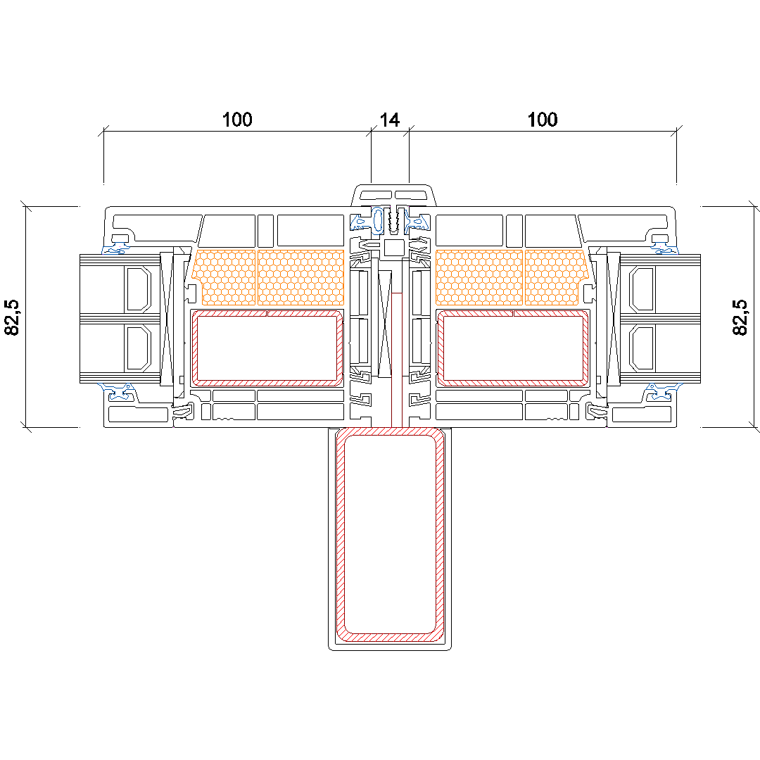
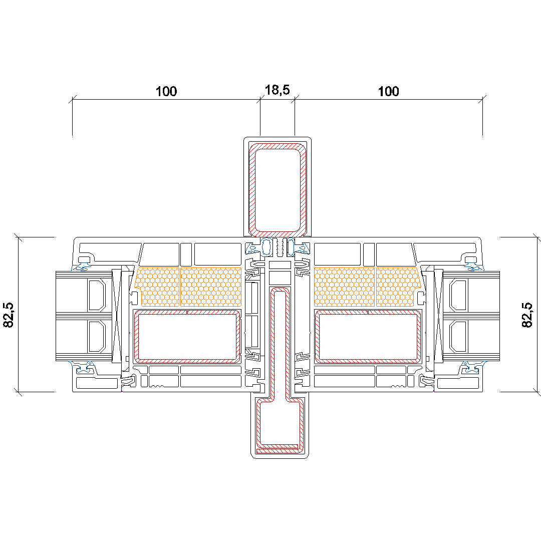
Gealan Kubus mit Pfosten 154mm

Gealan Kubus Pfosten-154mm - 5063

Gealan Kubus Pfosten-154mm - 5063

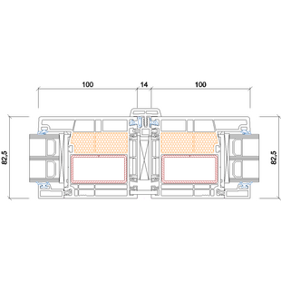
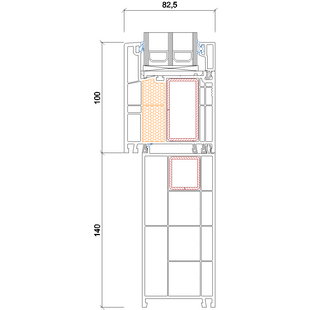
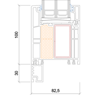
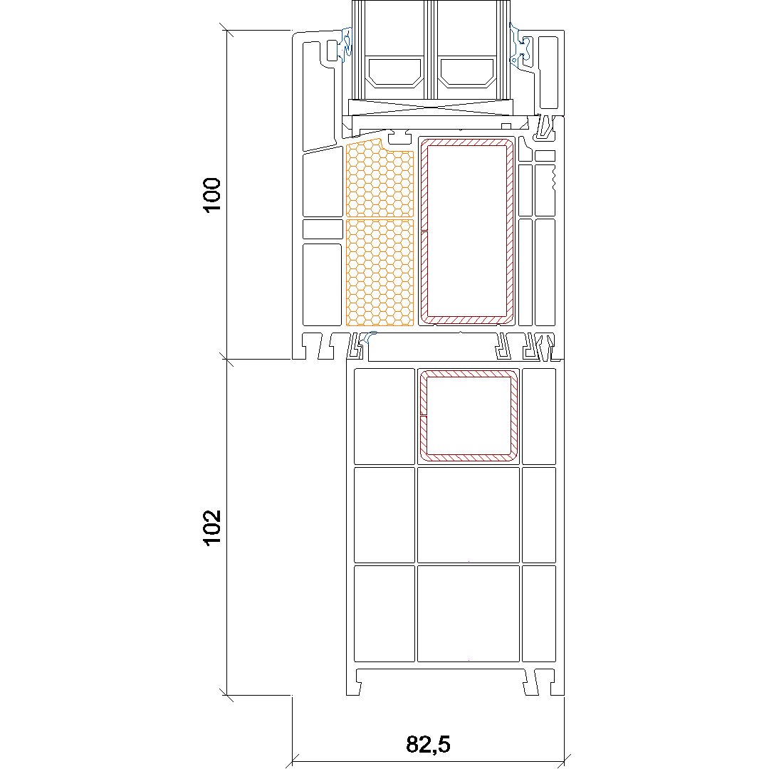
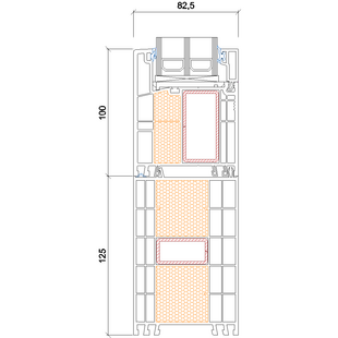
Gealan Kubus Pfosten 154mm Fenster 64mm - 5063-5061

Gealan Kubus Pfosten 154mm Fenster 64mm - 5063-5061

Kunststofffenster Gealan Kubus mit Stulp 100mm

Gealan Kubus mit Stulp 100mm Fenster 64mm - 5260-5061

Gealan Kubus mit Stulp 100mm Fenster 64mm - 5260-5061

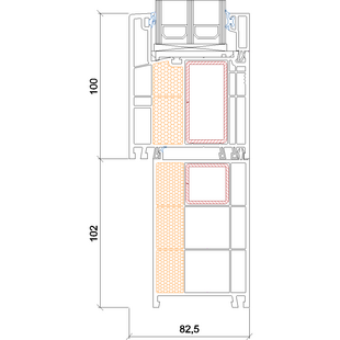
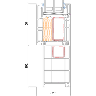
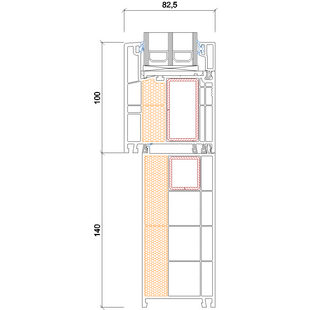
Kunststoff Balkontür Gealan Kubus

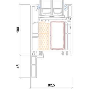
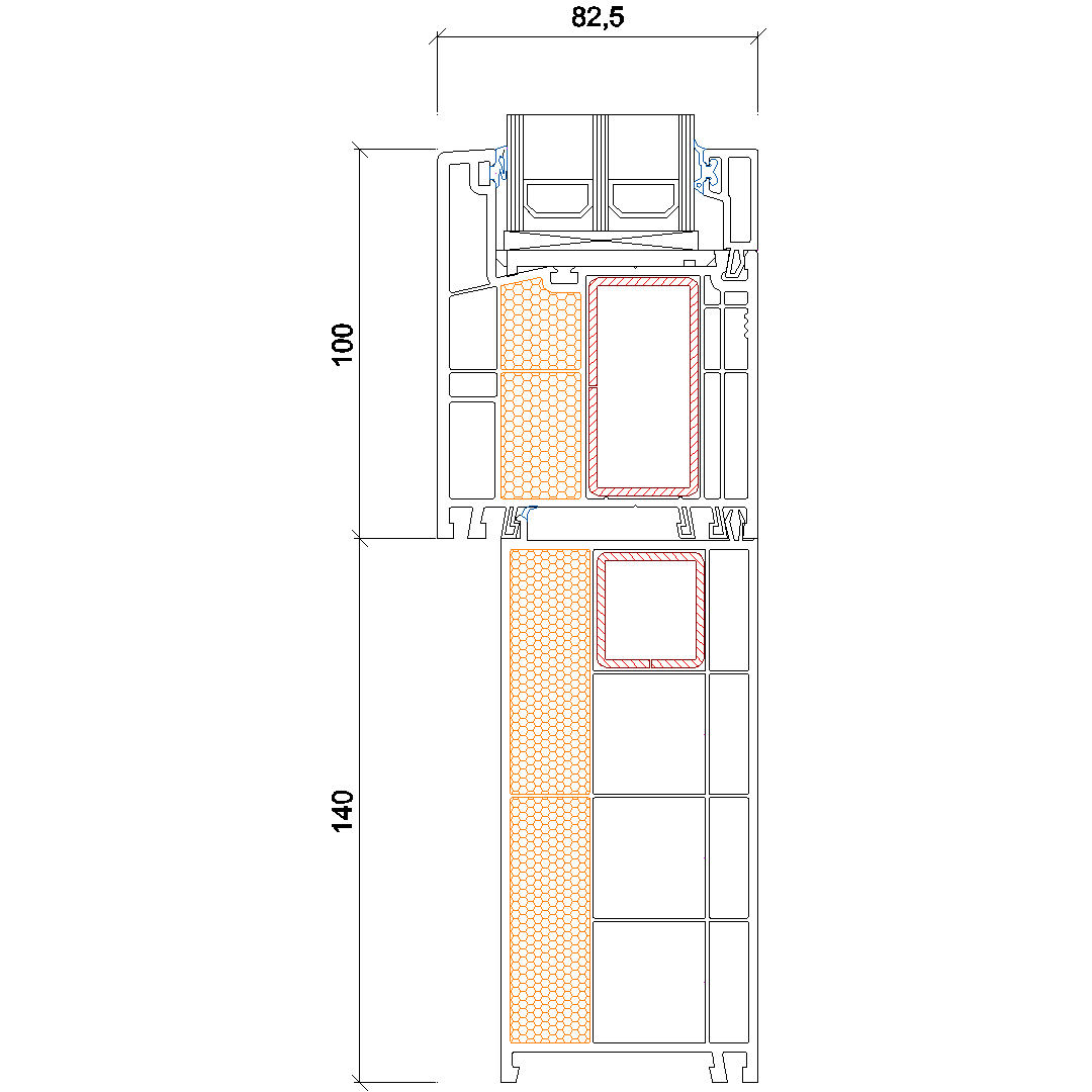
Gealan Kubus Balkontür mit Blendrahmen 100mm - 5060-5061

Gealan Kubus Balkontür mit Blendrahmen 100mm - 5060-5061


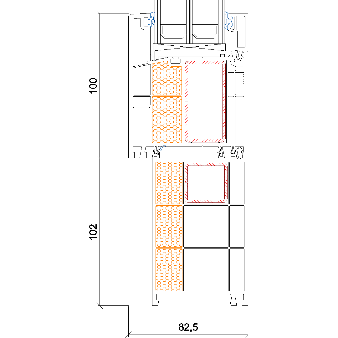
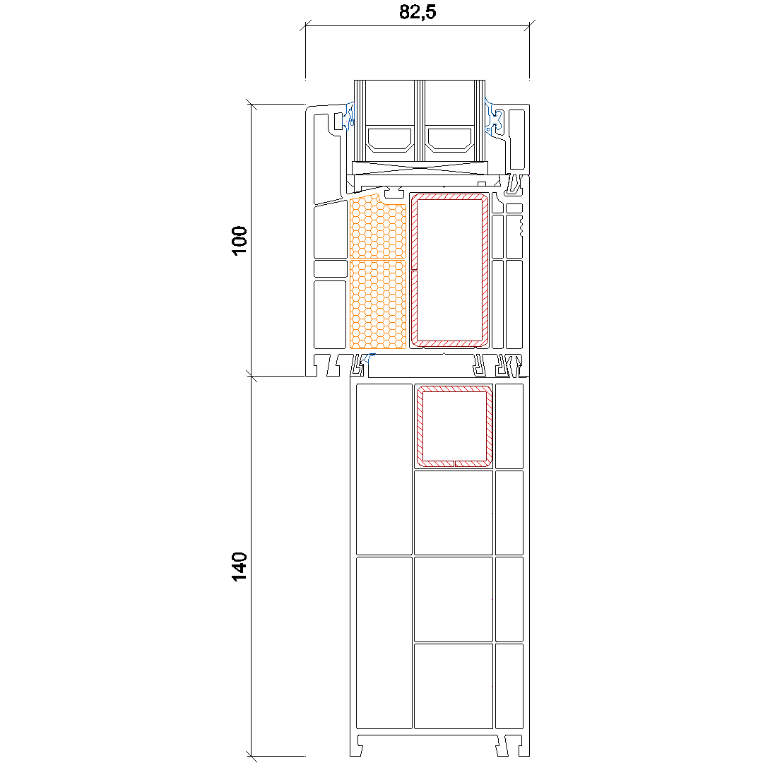
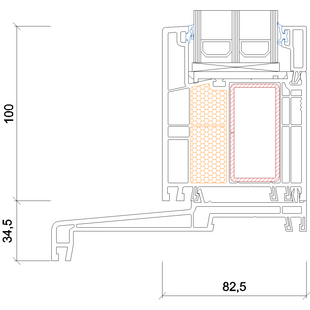
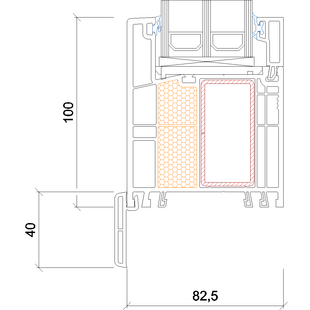
Gealan Kubus Balkontürschwelle 20mm- 64mm - 5061

Gealan Kubus Balkontürschwelle 20mm- 64mm - 5061

Zusatzprofile für Gealan Kubus Querschnitte

Kunststoff Sprossenarten - Gealan Kubus

Innenliegende SZR Sprossen / Helima Sprossen

Drutex Iglo SZR Sprosse 8mm

Innenliegende Sprosse 8mm

Drutex Iglo SZR Sprosse 18mm

Innenliegende Sprosse 18mm

Drutex Iglo SZR Sprosse 26mm

Innenliegende Sprosse 26mm

Drutex Iglo SZR Sprosse 45mm

Innenliegende Sprosse 45mm

Aufgesetzte / Aufgeklebte Sprossen

3196 - aufgesetzte Sprossen - 23mm

3196 - aufgesetzte Sprossen - 23mm

3195 - aufgesetzte Sprossen - 33mm

3195 - aufgesetzte Sprossen - 33mm

3198 - aufgesetzte Sprossen - 43mm

3198 - aufgesetzte Sprossen - 43mm

Kunststoff Anschlussprofile - Gealan Kubus

Kunststoff Bankanschlussprofile (Sockelprofile)

6299 - Sockelprofil 41.5mm

6299 - Sockelprofil 41.5mm

6299- IKD - Sockelprofil 41.5mm

6299- IKD - Sockelprofil 41.5mm

6288 - Sockelprofil 102mm

6288 - Sockelprofil 102mm

6288- IKD- Sockelprofil 102mm

6288- IKD- Sockelprofil 102mm

6277 - Sockelprofil 140mm

6277 - Sockelprofil 140mm

6277- IKD- Sockelprofil 140mm

6277- IKD- Sockelprofil 140mm

7299- Sockelprofil 41.5mm

7299- Sockelprofil 41.5mm

7299-IKD- Sockelprofil 41.5mm

7299-IKD- Sockelprofil 41.5mm

7288- Sockelprofil 102mm

7288- Sockelprofil 102mm

Kunststoff Anschlussprofile (bündig)

2101 - Anschlussprofil 20 mm

2101 - Anschlussprofil 20 mm

2212 - Anschlussprofil 10 mm

2212 - Anschlussprofil 10 mm

2230 - Anschlussprofil 15.5mm

2230 - Anschlussprofil 15.5mm

3110 - Anschlussprofil 18mm

3110 - Anschlussprofil 18mm

3205 - Anschlussprofil 40mm

3205 - Anschlussprofil 40mm

3206 - Anschlussprofil 30mm

3206 - Anschlussprofil 30mm

3208 - Anschlussprofil 45mm

3208 - Anschlussprofil 45mm

3216 - Anschlussprofil 45mm

3216 - Anschlussprofil 45mm

3217 - Anschlussprofil 45mm

3217 - Anschlussprofil 45mm

3218 - Anschlussprofil 40mm

3218 - Anschlussprofil 40mm

3362- Anschlussprofil 20mm

3362- Anschlussprofil 20mm

Kunststoff Fensterbank-Anschlussprofile

3207- Fensterbankprofil- 25mm

3207- Fensterbankprofil- 25mm

2209- Fensterbankprofil- 32mm

2209- Fensterbankprofil- 32mm

3210- Fensterbankprofil- 34.5mm

3210- Fensterbankprofil- 34.5mm

7213- Fensterbankprofil- 31mm

7213- Fensterbankprofil- 31mm

2213- Fensterbankprofil- 34.5mm

2213- Fensterbankprofil- 34.5mm

Kunststoff Rahmenverbreiterung - Gealan Kubus

5201 - Blendrahmenverbreiterung 20mm

5201 - Blendrahmenverbreiterung 20mm

5213 - Blendrahmenverbreiterung 36mm

5213 - Blendrahmenverbreiterung 36mm

5213- IKD- - Blendrahmenverbreiterung 36mm

5213- IKD- - Blendrahmenverbreiterung 36mm

5202- Blendrahmenverbreiterung 58mm

5202- Blendrahmenverbreiterung 58mm

5202- IKD- Blendrahmenverbreiterung 58mm

5202- IKD- Blendrahmenverbreiterung 58mm

5203- Blendrahmenverbreiterung 125mm

5203- Blendrahmenverbreiterung 125mm

5203- IKD- Blendrahmenverbreiterung 125mm

5203- IKD- Blendrahmenverbreiterung 125mm

Kunststoff Kopplungen - Gealan Kubus

3284 - H Kopplung

3284 - H Kopplung

5204 - Statikkopplung 18.5mm

5204 - Statikkopplung 18.5mm



5204-2249-Statikkopplung mit verstaerkung 18.5mm

5204-2249-Statikkopplung mit verstaerkung 18.5mm

5204-3240-Statikkopplung mit verstaerkung-stark 18.5mm

5204-3240-Statikkopplung mit verstaerkung-stark 18.5mm

2327 - Kopplung 14mm

2327 - Kopplung 14mm

2327-2249- Kopplung mit verstaerkung 14mm

2327-2249- Kopplung mit verstaerkung 14mm

2327-3240-Kopplung mit verstaerkung-stark 14mm

2327-3240-Kopplung mit verstaerkung-stark 14mm

6281 - Kopplung 18.5mm

6281 - Kopplung 18.5mm

6281-2249- Kopplung mit verstaerkung 18.5mm

6281-2249- Kopplung mit verstaerkung 18.5mm

6281-3240- Kopplung mit verstaerkung- stark 18.5mm

6281-3240- Kopplung mit verstaerkung- stark 18.5mm

Kopplung von Eck-Elementen - 90°

3204 - Eckkopplung - 90 Grad

3204 - Eckkopplung - 90 Grad

Kopplung von Eck-Elementen - Variabel

5206-5207 - Eckkopplung - Variabel

5206-5207 - Eckkopplung - Variabel


Gealan kozijnen en deuren op maat

Configureer en bestel eenvoudig en comfortabel Gealan ramen en deuren online bij kozijnenblik.nl

Das könnte Sie auch interessieren:

Kunststofffenster Gelan Linear

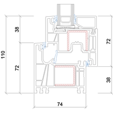
Detailzeichnungen Kunststofffenster Gealan Linear

Kunststofffenster Gealan Linear besitzen eine Bautiefe (Rahmen) von 74mm.

Detailzeichnungen Gealan Linear

Kunststofffenster Gealan Kontur

Detailzeichnungen Kunststofffenster Gealan Kontur

Gealan Kontur besitzen eine Bautiefe (Rahmen) von 82.5mm.

Detailzeichnungen Gealan Kontur