Detailzeichnungen Gealan Linear

Kunststofffensterprofil Gealan Linear Querschnitte

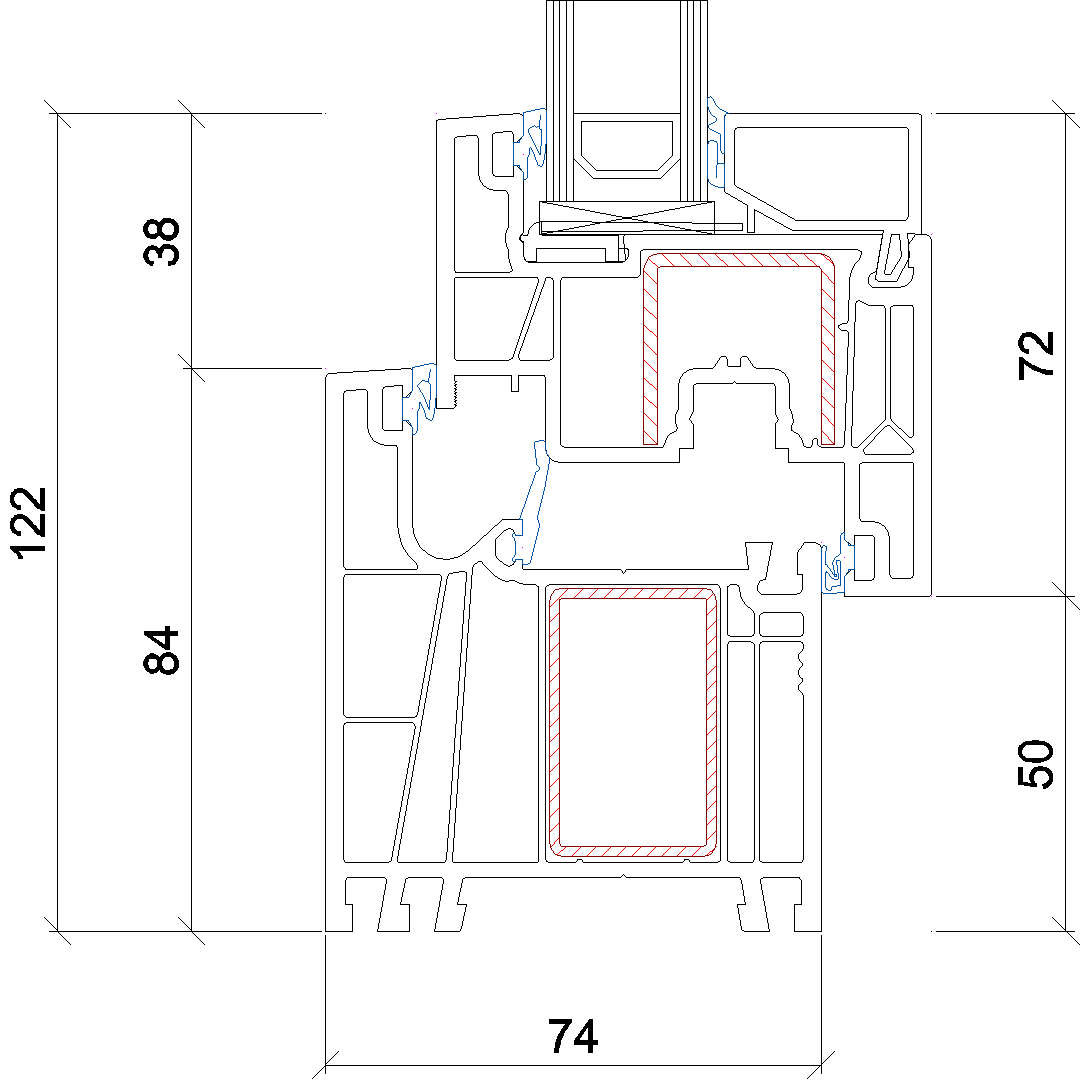
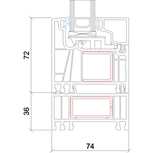
Gealan Linear - 122mm 7072

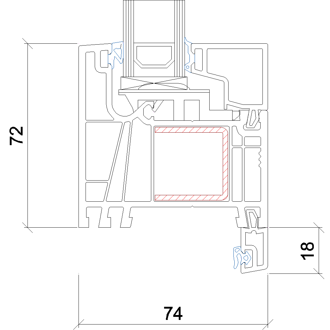
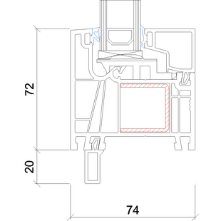
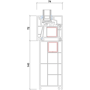
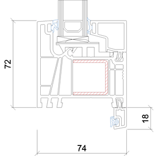
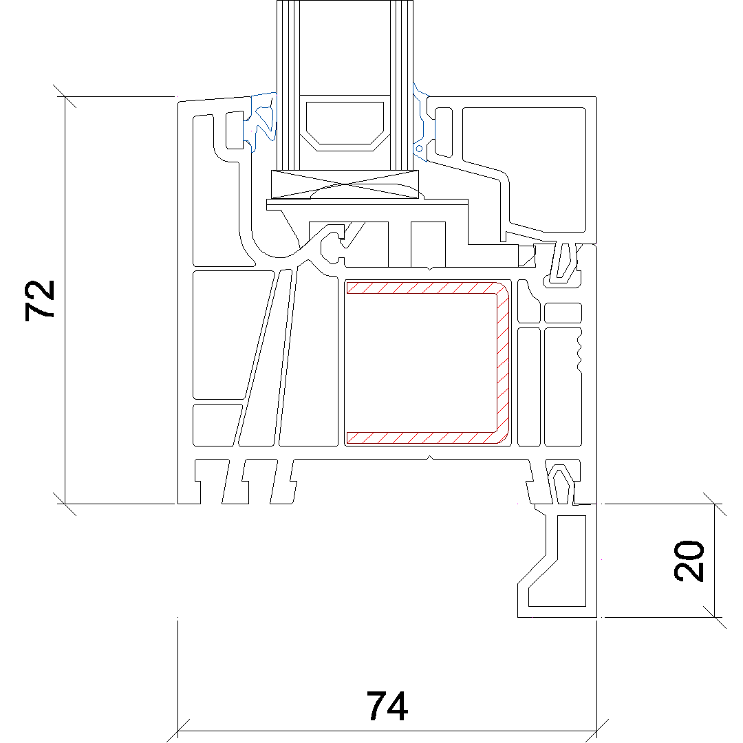
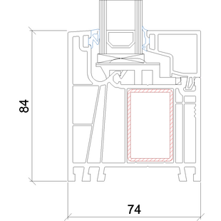
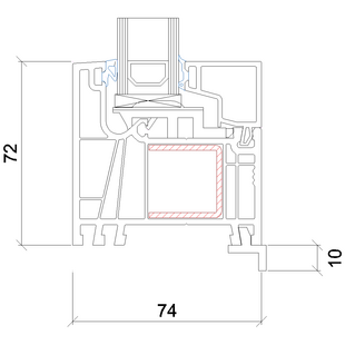
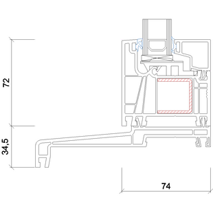
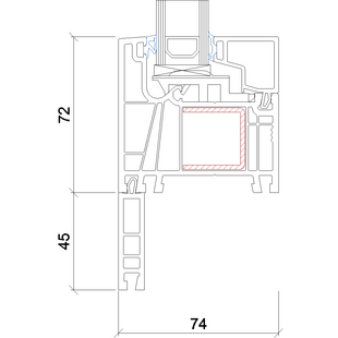
Gealan Linear Festverglasung 72mm - 7001

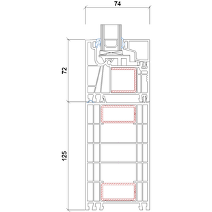
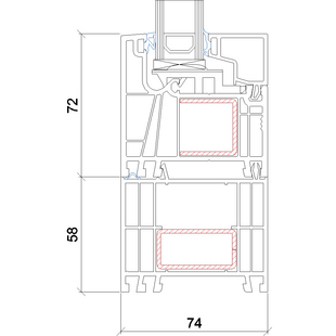
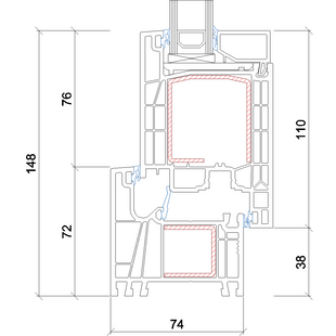
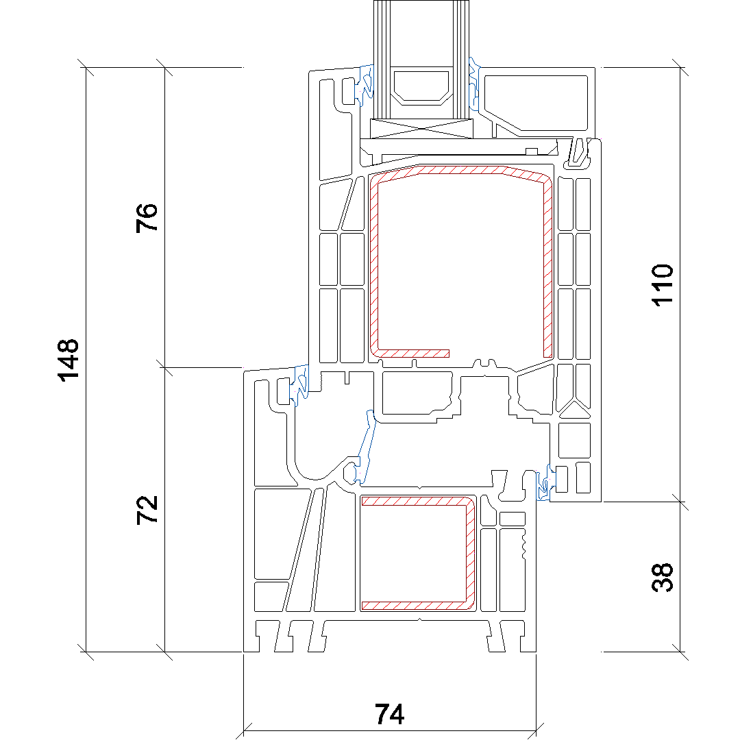
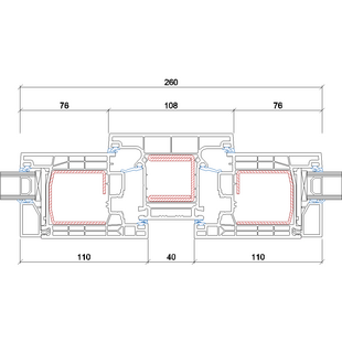
Gealan Linear Fenster - 110mm 7001-7072

Gealan Linear Fenster - 110mm 7001-7072

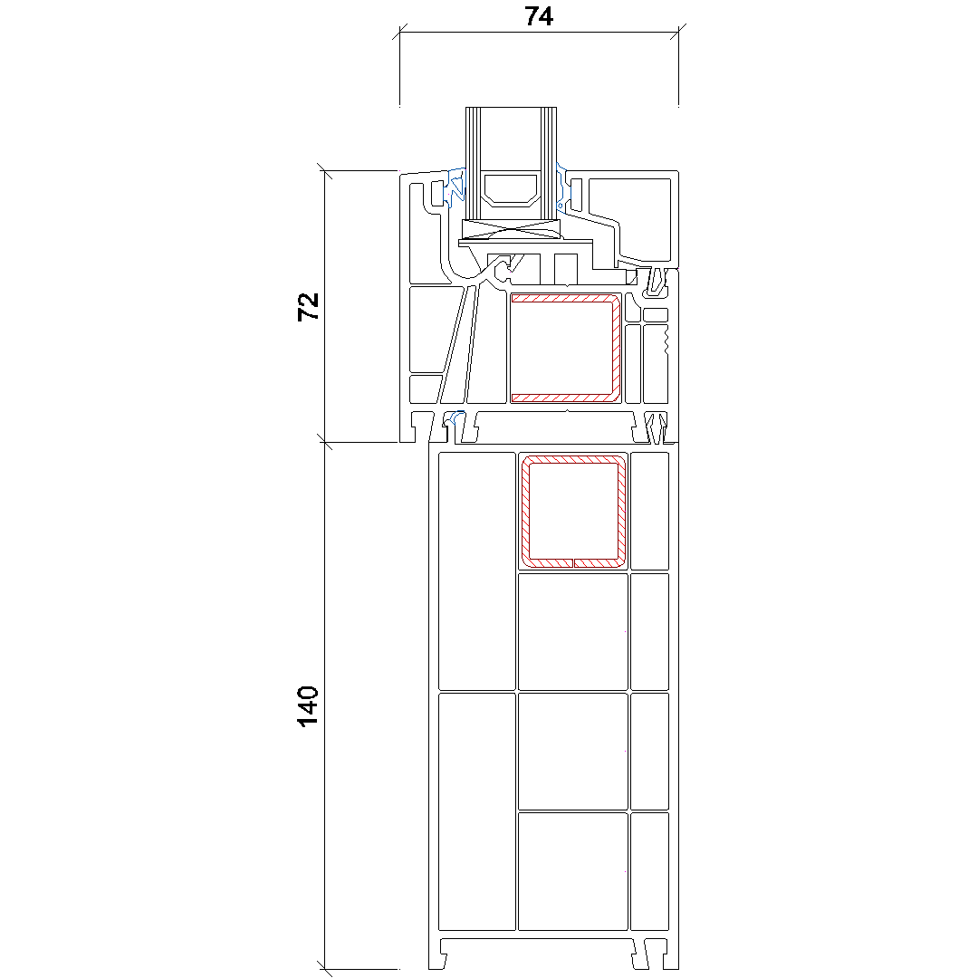
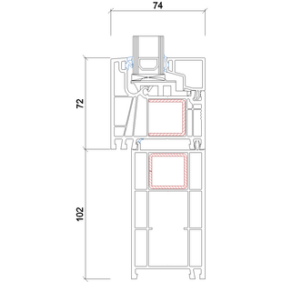
Kunststofffenster Gealan Linear mit Türrahmen (7005)

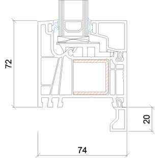
Gealan Linear Festverglasung 84mm - 7005

Gealan Linear Festverglasung 84mm - 7005

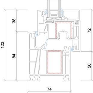
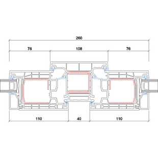
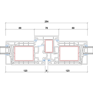
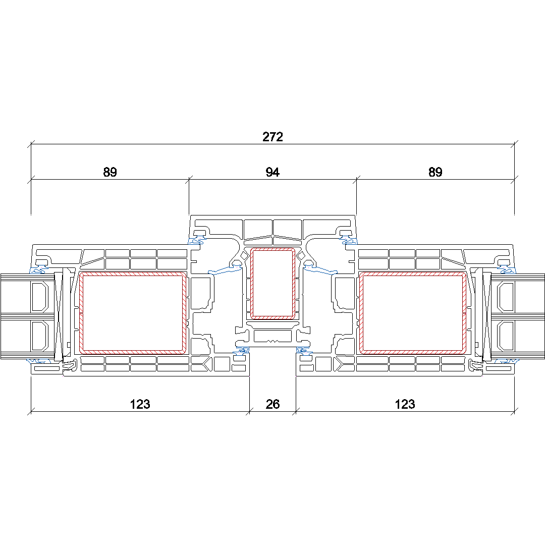
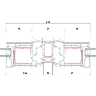
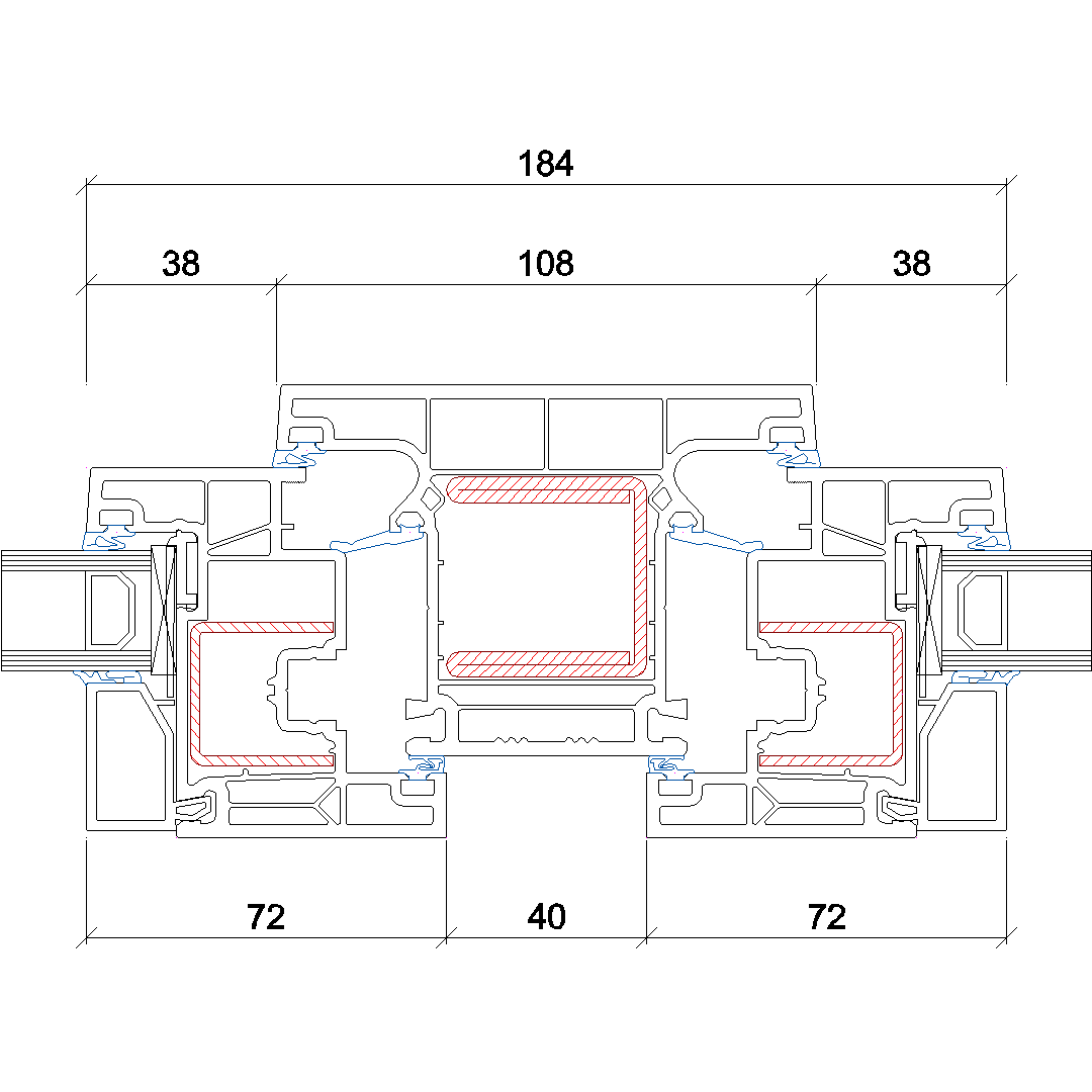
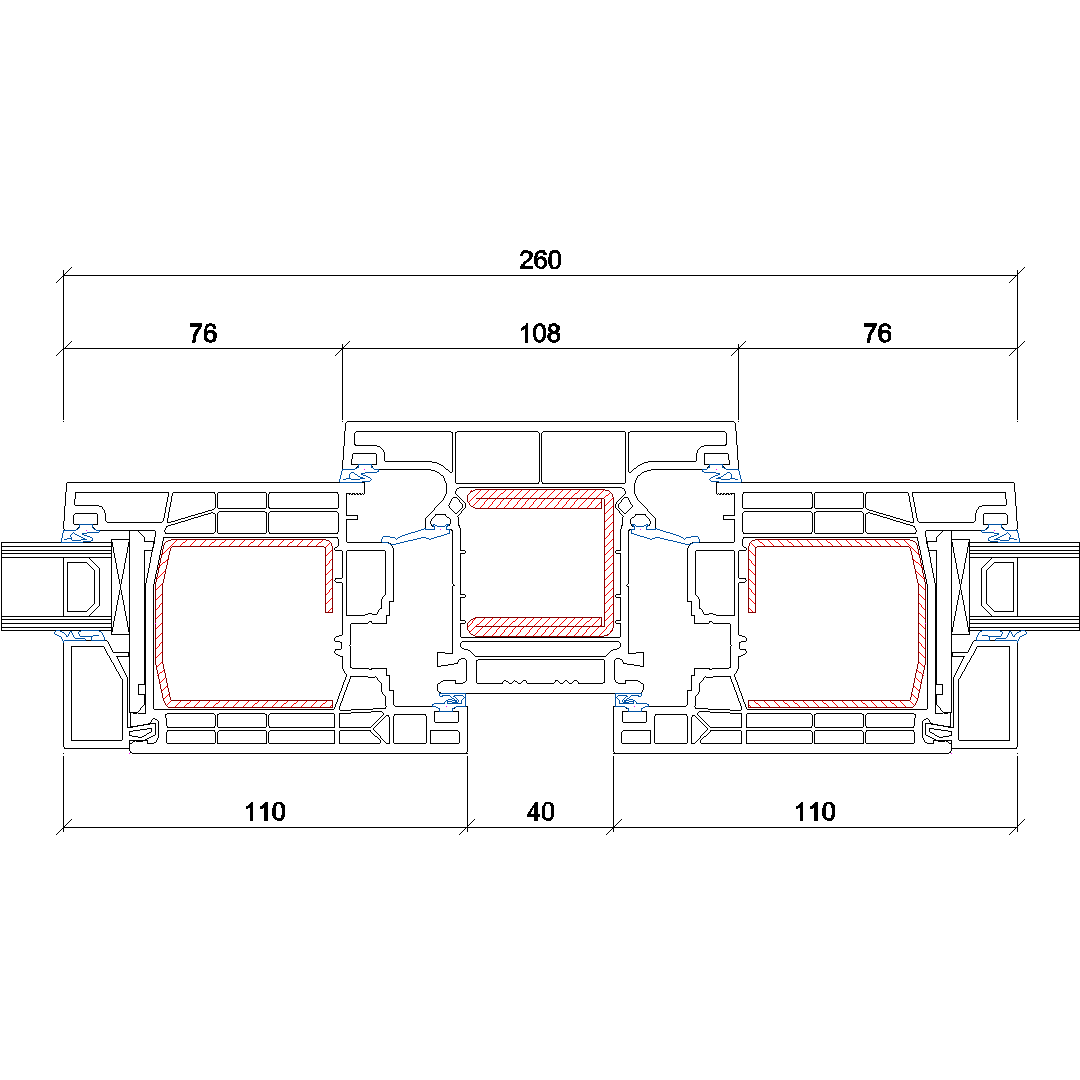
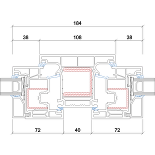
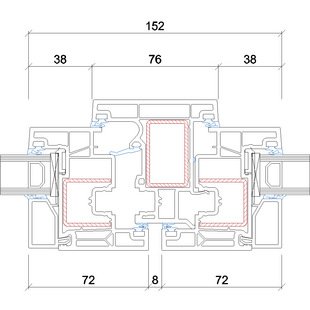
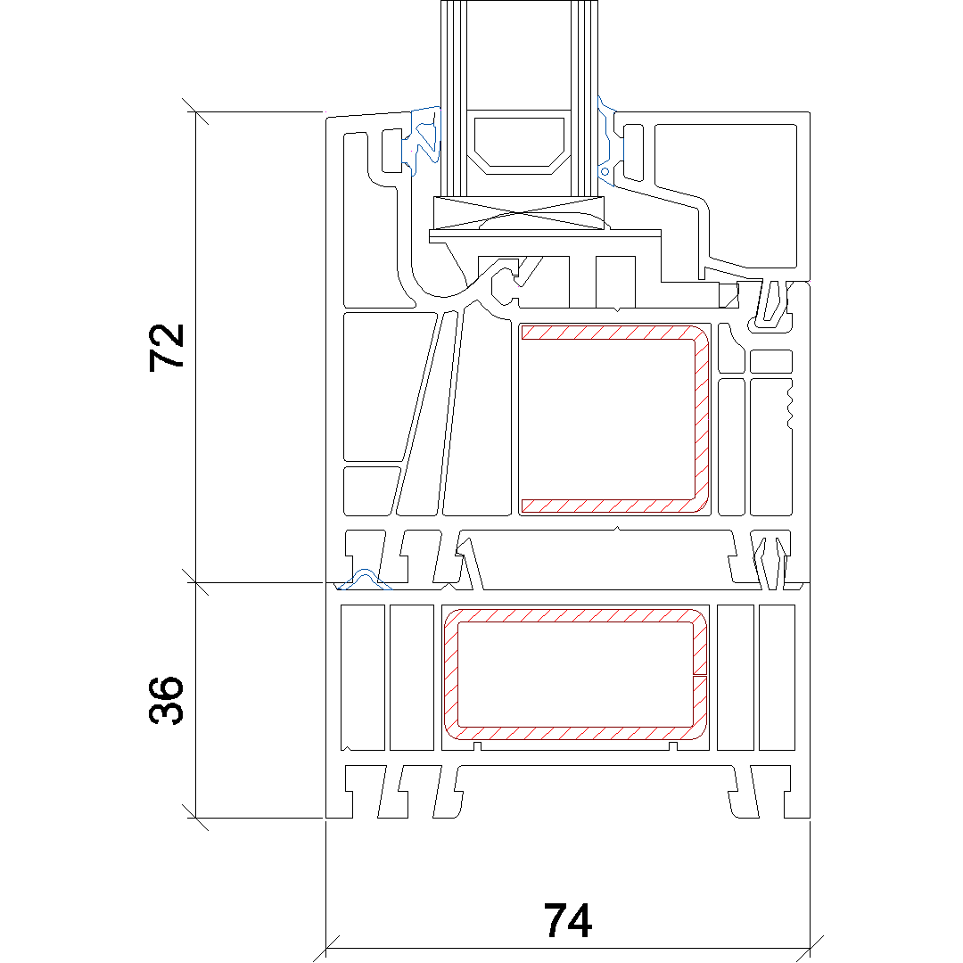
Gealan Linear Fenster - 122mm 7005-7072

Gealan Linear Fenster - 122mm 7005-7072

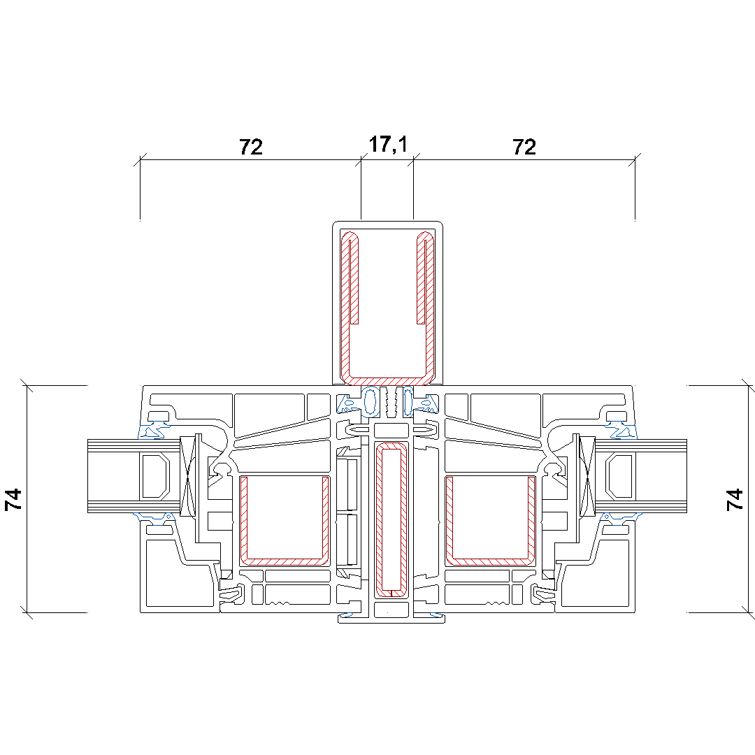
Gealan Linear mit Pfosten 94mm (Schmal)

Gealan Linear mit Pfosten- 94 mm - 7040

Gealan Linear mit Pfosten- 94 mm - 7040

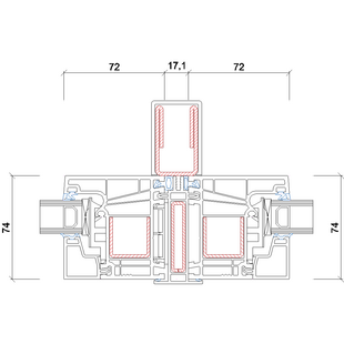
Gealan Linear 94mm Fenster 72mm - 7040-7072

Gealan Linear 94mm Fenster 72mm - 7040-7072

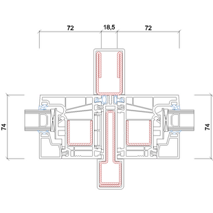
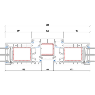
Gealan Linear mit Pfosten 108mm (Breit - Große Konstruktionen)

Gealan Linear Pfosten-108mm - 7044

Gealan Linear Pfosten-108mm - 7044

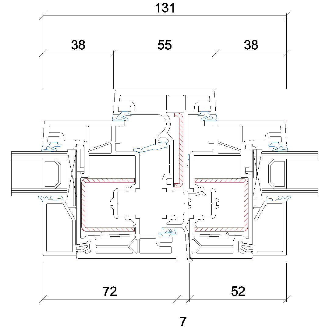
Gealan Linear 108mm Fenster 72mm - 7044-7072

Gealan Linear 108mm Fenster 72mm - 7044-7072

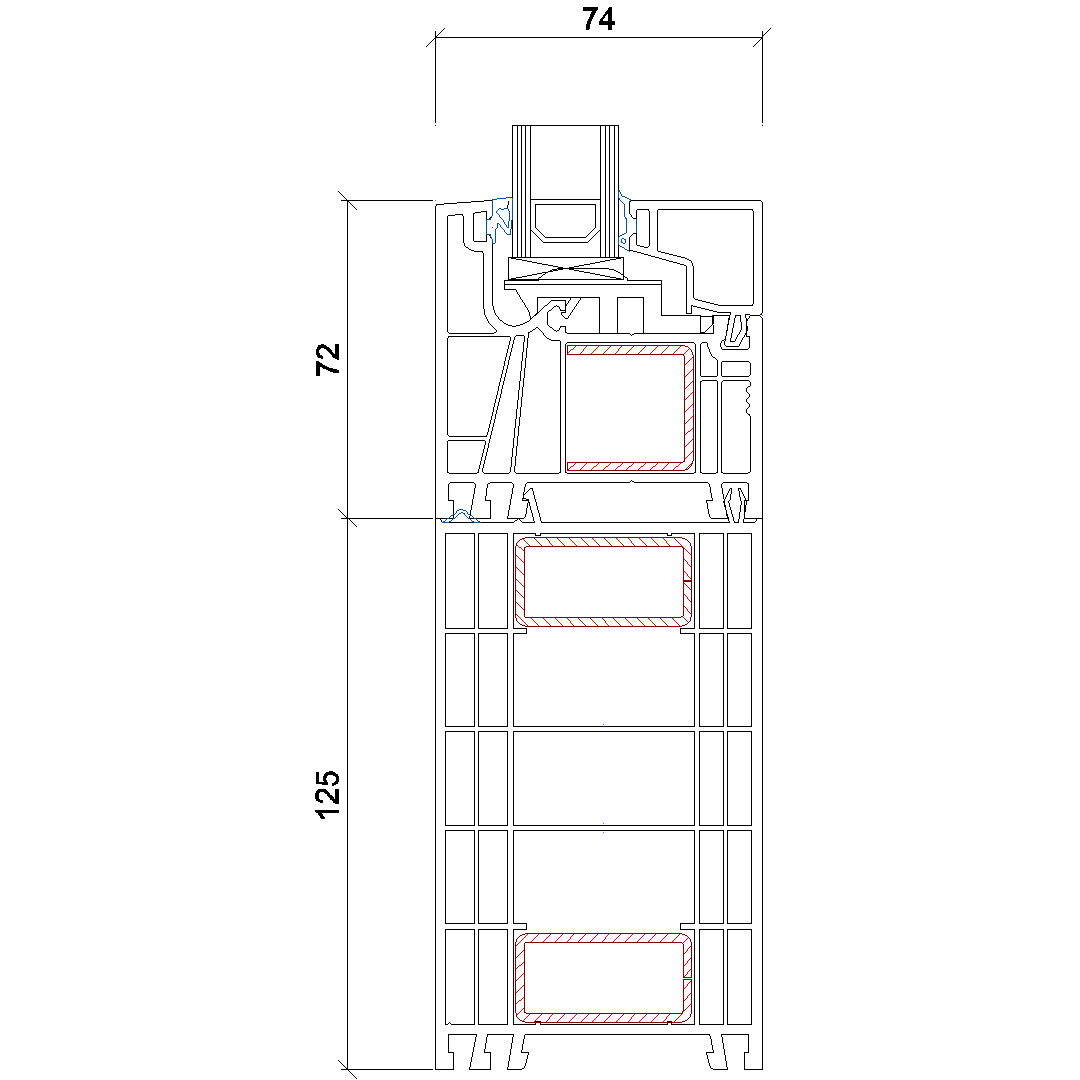
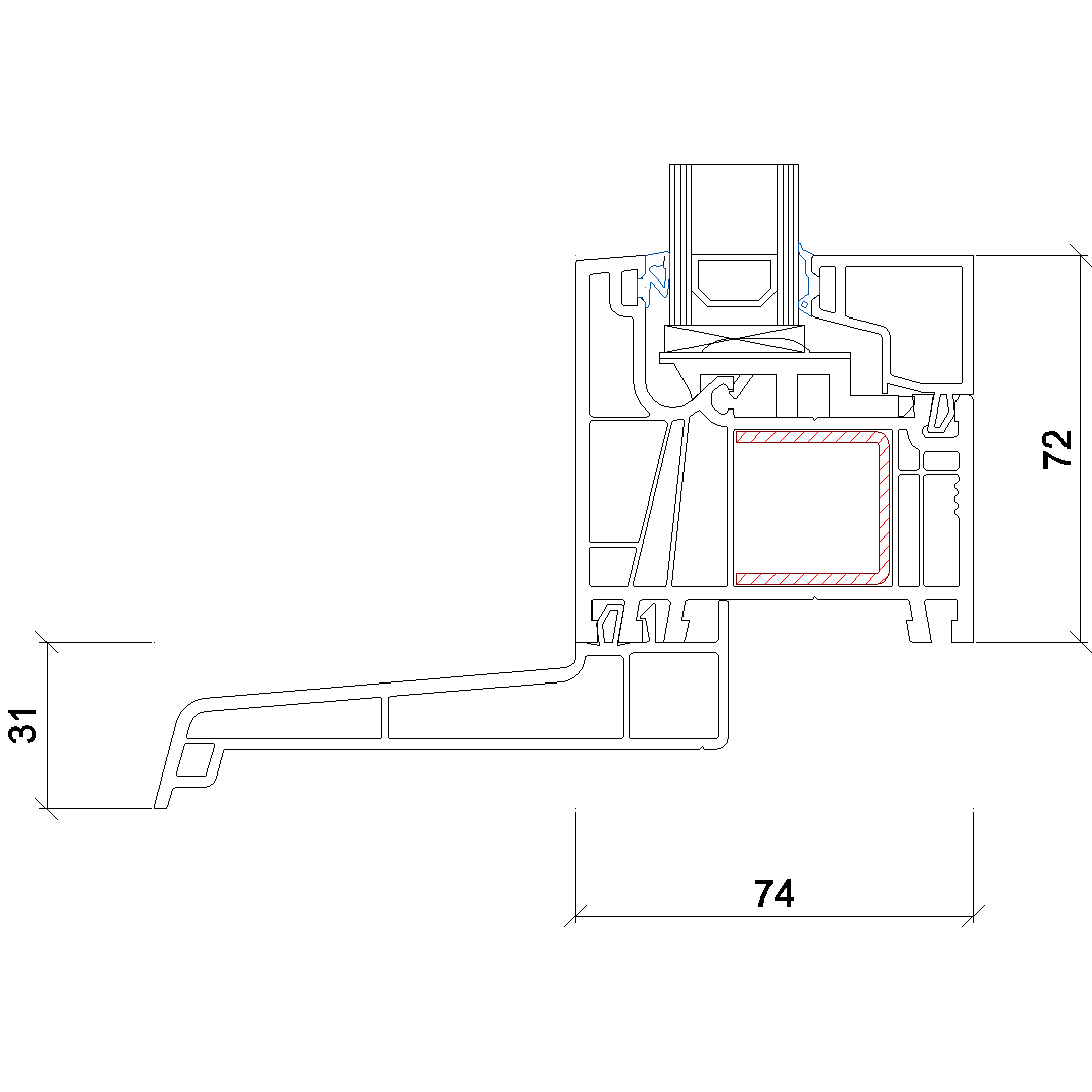
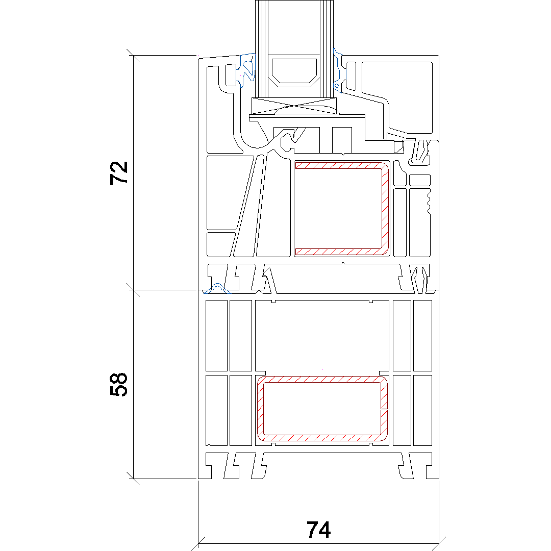
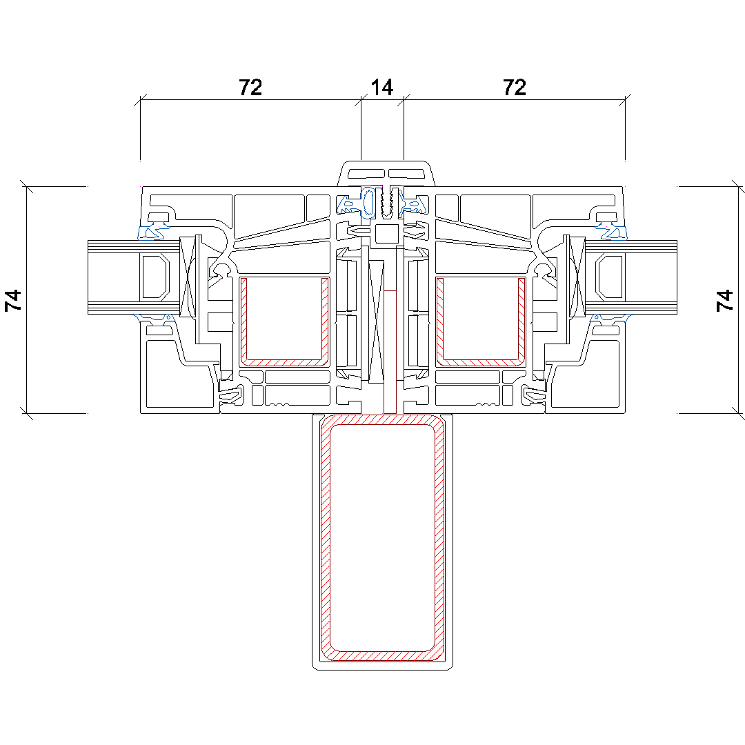
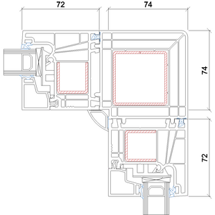
Kunststofffenster Gealan Linear mit Stulp 74mm

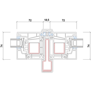
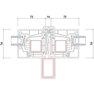
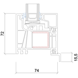
Gealan Linear mit Stulp 74mm Fenster 72mm - 7044-7072

Gealan Linear mit Stulp 74mm Fenster 72mm - 7044-7072

Kunststofffenster Gealan Linear mit Stulp (Sonderkonstruktionen auf Anfrage)

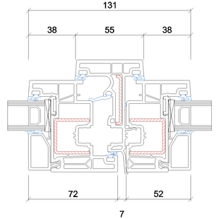
Gealan Linear Stulp 55 mm Fenster 72mm - 7065-7072

Gealan Linear Stulp 55 mm Fenster 72mm - 7065-7072

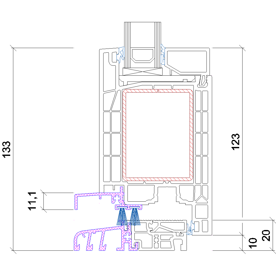
Kunststoff Balkontür Gealan Linear

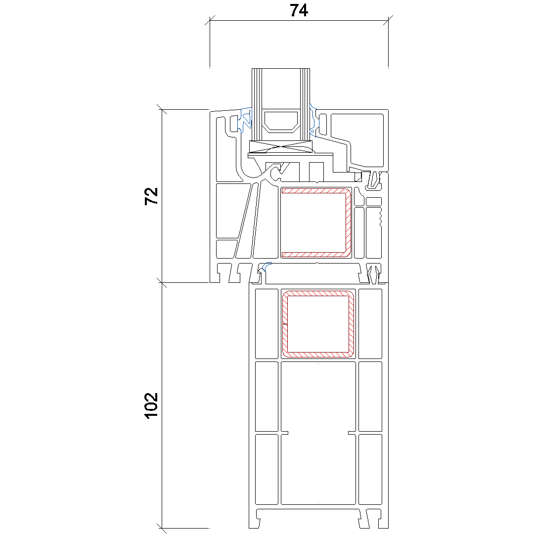
Gealan Linear Balkontür mit Blendrahmen 110mm - 7001-7072

Gealan Linear Balkontür mit Blendrahmen 110mm - 7001-7072

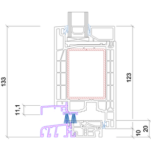
Gealan Linear Balkontürschwelle 20mm- 82mm - 70722

Gealan Linear Balkontürschwelle 20mm- 82mm - 70722

Kunststoff Terrassenflügel Gealan Linear

Gealan Linear Terassentür innen öffnend mit Blendrahmen - 7001-7082

Gealan Linear Terassentür innen öffnend mit Blendrahmen - 7001-7082

Gealan Linear Terassentürschwelle 20mm innen öffnend- 7082

Gealan Linear Terassentürschwelle 20mm innen öffnend- 7082

Gealan Linear Pfosten 94mm Terassentür innen öffnend - 7040-7082

Gealan Linear Pfosten 94mm Terassentür innen öffnend - 7040-7082

Gealan Linear Pfosten 108mm Terassentür innen öffnend - 7044-7082

Gealan Linear Pfosten 108mm Terassentür innen öffnend - 7044-7082

Terrassenflügel Gealan Linear mit Stulp 70mm und 55mm

Gealan Linear Stulp 74mm Terassentür innen öffnend- 7060-7082

Gealan Linear Stulp 74mm Terassentür innen öffnend- 7060-7082

Kunststoff Nebentür Gealan Linear

Gealan Linear Nebentür innen öffnend - 7001-7082

Gealan Linear Nebentür innen öffnend - 7001-7082

Gealan Linear Türschwelle 20mm innen öffnend - 7082

Gealan Linear Türschwelle 20mm innen öffnend - 7082


Gealan Lienar Pfosten 94mm Nebentür innen öffnend 7040-7082

Gealan Lienar Pfosten 94mm Nebentür innen öffnend 7040-7082



Gealan Lienar Pfosten 108mm Nebentür innen öffnend 7044-7082

Gealan Lienar Pfosten 108mm Nebentür innen öffnend 7044-7082



Kunststoff Haustür Gealan Linear

Gealan Linear Tür innen öffnend - 7005-7088

Gealan Linear Tür innen öffnend - 7005-7088

Gealan Linear Türschwelle 20mm innen öffnend - 7088

Gealan Linear Türschwelle 20mm innen öffnend - 7088

Gealan Linear Pfosten 94mm Tür innen öffnend 7040-7088

Gealan Linear Pfosten 94mm Tür innen öffnend 7040-7088



Gealan Linear Pfosten 108mm Tür innen öffnend 7044-7088

Gealan Linear Pfosten 108mm Tür innen öffnend 7044-7088



Türflügel Gealan Linear mit Stulp 74mm

Gealan Linear Stulp 74mm Tür innen öffnend - 7060-7088

Gealan Linear Stulp 74mm Tür innen öffnend - 7060-7088

Zusatzprofile für Gealan Linear Querschnitte

Kunststoff Sprossenarten - Gealan Linear

Innenliegende SZR Sprossen / Helima Sprossen

Drutex Iglo SZR Sprosse 8mm

Innenliegende Sprosse 8mm

Drutex Iglo SZR Sprosse 18mm

Innenliegende Sprosse 18mm

Drutex Iglo SZR Sprosse 26mm

Innenliegende Sprosse 26mm

Drutex Iglo SZR Sprosse 45mm

Innenliegende Sprosse 45mm

Aufgesetzte / Aufgeklebte Sprossen

3196 - aufgesetzte Sprossen - 23mm

3196 - aufgesetzte Sprossen - 23mm

3195 - aufgesetzte Sprossen - 33mm

3195 - aufgesetzte Sprossen - 33mm

3198- aufgesetzte Sprossen - 43mm

3198- aufgesetzte Sprossen - 43mm

Kunststoff Anschlussprofile - Gealan Linear

Kunststoff Bankanschlussprofile (Sockelprofile)

6299 - Sockelprofil- 41.5mm

6299 - Sockelprofil- 41.5mm

6288 - Sockelprofil 102 mmm

6288 - Sockelprofil 102 mmm

6277 - Sockelprofil 140 mm

6277 - Sockelprofil 140 mm

7299 - Sockelprofil 41.5 mm

7299 - Sockelprofil 41.5 mm

7288 - Sockleprofil 102 mm

7288 - Sockleprofil 102 mm

Kunststoff Anschlussprofile (bündig)

3206 - Anschlussprofil 30 mm

3206 - Anschlussprofil 30 mm

3205 - Anschlussprofil 40 mm

3205 - Anschlussprofil 40 mm

3208- Anschlussprofil 40mm

3208- Anschlussprofil 40mm

3217- Anschlussprofil 40mm

3217- Anschlussprofil 40mm

2212- Anschlussprofil 10mm

2212- Anschlussprofil 10mm

2230- Anschlussprofil 15-5mm

2230- Anschlussprofil 15-5mm

3110- Anschlussprofil 18mm

3110- Anschlussprofil 18mm

3362-  Anschlussprofil 20mm

3362-  Anschlussprofil 20mm

Kunststoff Anschlussprofile (versetzt)

2101 - Anschlussprofil 20mm (versetzt)

2101 - Anschlussprofil 20mm (versetzt)

Kunststoff Fensterbank-Anschlussprofile

3207- Fensterbankprofil- 25 mm

3207- Fensterbankprofil- 25 mm

2209- Fensterbankprofil- 32 mm

2209- Fensterbankprofil- 32 mm

7213- Fensterbankprofil- 34.5 mm

7213- Fensterbankprofil- 34.5 mm

7213- Fensterbankprofil- 31 mm

7213- Fensterbankprofil- 31 mm

2213- Fensterbankprofil- 133.5 mm

2213- Fensterbankprofil- 133.5 mm

Kunststoff Rahmenverbreiterung - Gealan Linear

2315 - Blendrahmenverbreiterung 20mm

2315 - Blendrahmenverbreiterung 20mm

2313 - Blendrahmenverbreiterung 36mm

2313 - Blendrahmenverbreiterung 36mm

7292 - Blendrahmenverbreiterung 58mm

7292 - Blendrahmenverbreiterung 58mm

2311 - Blendrahmenverbreiterung 125mm

2311 - Blendrahmenverbreiterung 125mm

Kunststoff Kopplungen - Gealan Linear

3284- H- Kopplung

3284- H- Kopplung

7291 - Statik-Kopplung 18-5 mm

7291 - Statik-Kopplung 18-5 mm



7291-2249 - Statik-Kopplung 18-5 mm mit verstaerkung

7291-2249 - Statik-Kopplung 18-5 mm mit verstaerkung

7291-3240 - Statik-Kopplung 18-5 mm mit verstaerkung- stark

7291-3240 - Statik-Kopplung 18-5 mm mit verstaerkung- stark

7281 - Kopplung 17mm

7281 - Kopplung 17mm

7281-2249 - Kopplung 17mm mit verstaerkung

7281-2249 - Kopplung 17mm mit verstaerkung

7281-3240 - Kopplung 17mm mit verstaerkung stark

7281-3240 - Kopplung 17mm mit verstaerkung stark

2327- Kopplung 14mm

2327- Kopplung 14mm

2327-2249 - Kopplung 14mm mit verstaerkung

2327-2249 - Kopplung 14mm mit verstaerkung

2327-3240 - Kopplung 14mm mit verstaerkung stark

2327-3240 - Kopplung 14mm mit verstaerkung stark

Kopplung von Eck-Elementen - 90° und Variabel

2304 - Eckkopplung - 90 Grad

2304 - Eckkopplung - 90 Grad

2233-2234 - Eckkopplung - Variabel

2233-2234 - Eckkopplung - Variabel


Gealan kozijnen en deuren op maat

Configureer en bestel eenvoudig en comfortabel Gealan ramen en deuren online bij kozijnenblik.nl

Das könnte Sie auch interessieren:

Kunststofffenster Gealan Kontur

Detailzeichnungen Kunststofffenster Schüco LivIng 82

Kunststofffenster Gealan Kontur besitzen eine Bautiefe (Rahmen) von 82.5mm.

Detailzeichnungen Gealan Kontur

Kunststofffenster Gealan Kubus

Detailzeichnungen Kunststofffenster Gealan Kubus

Gealan Kubus besitzen eine Bautiefe (Rahmen) von 82.5mm.

Detailzeichnungen Gealan Kubus