Detailzeichnungen Gealan Kontur

Kunststofffensterprofil Gealan Kontur Querschnitte

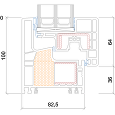
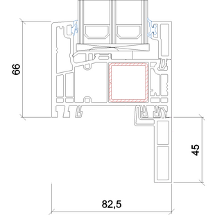
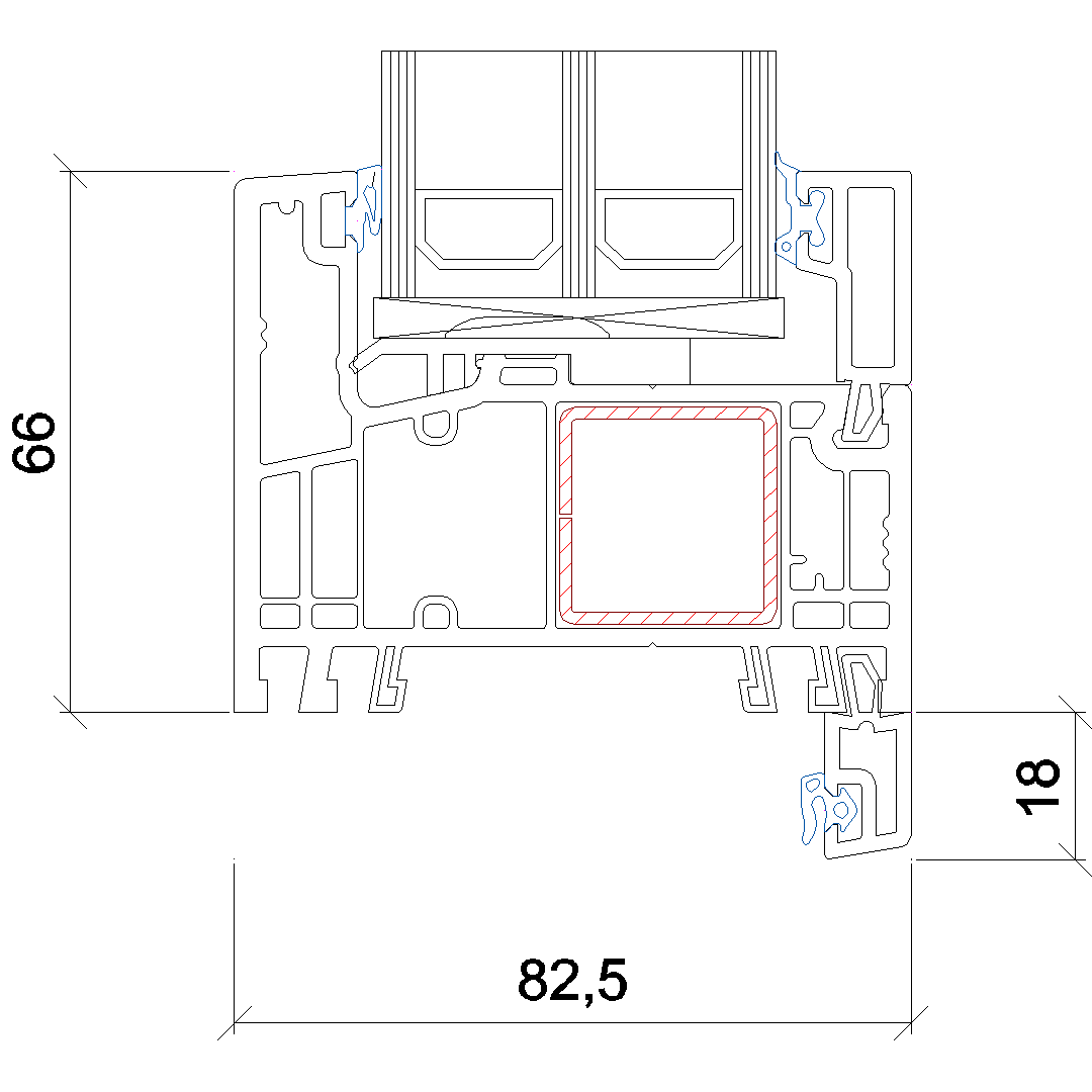
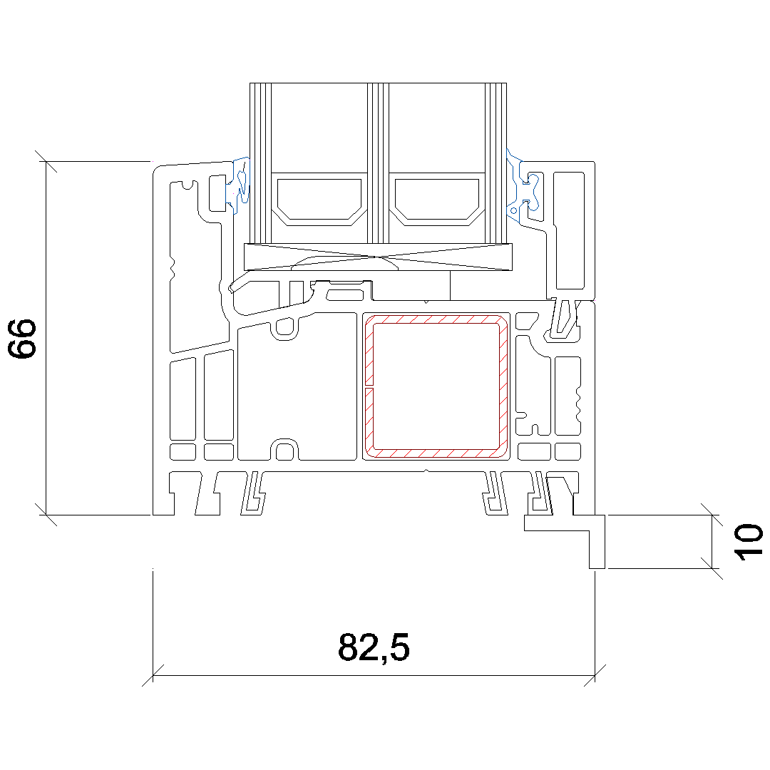
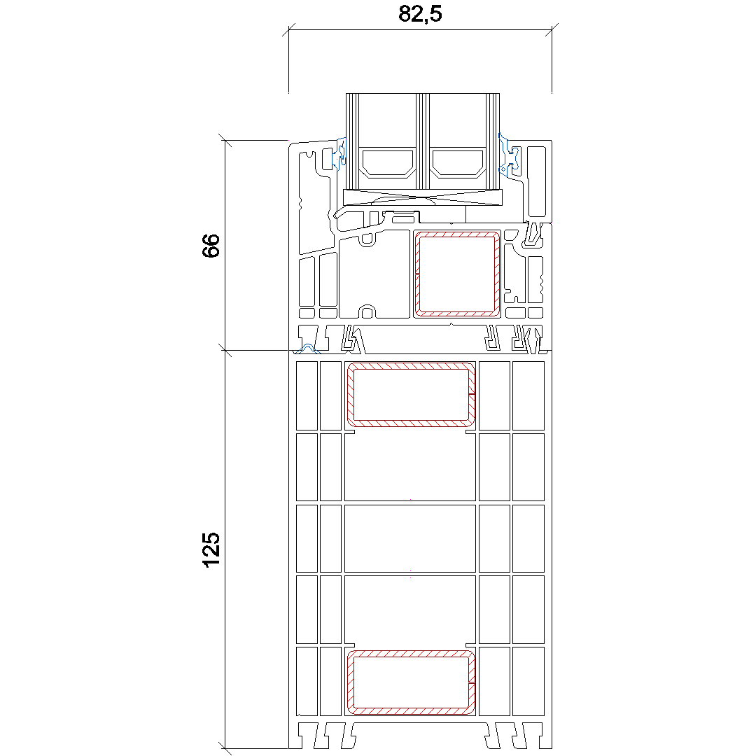
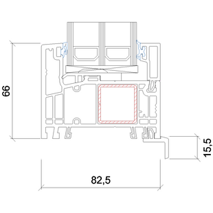
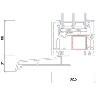
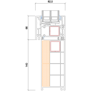
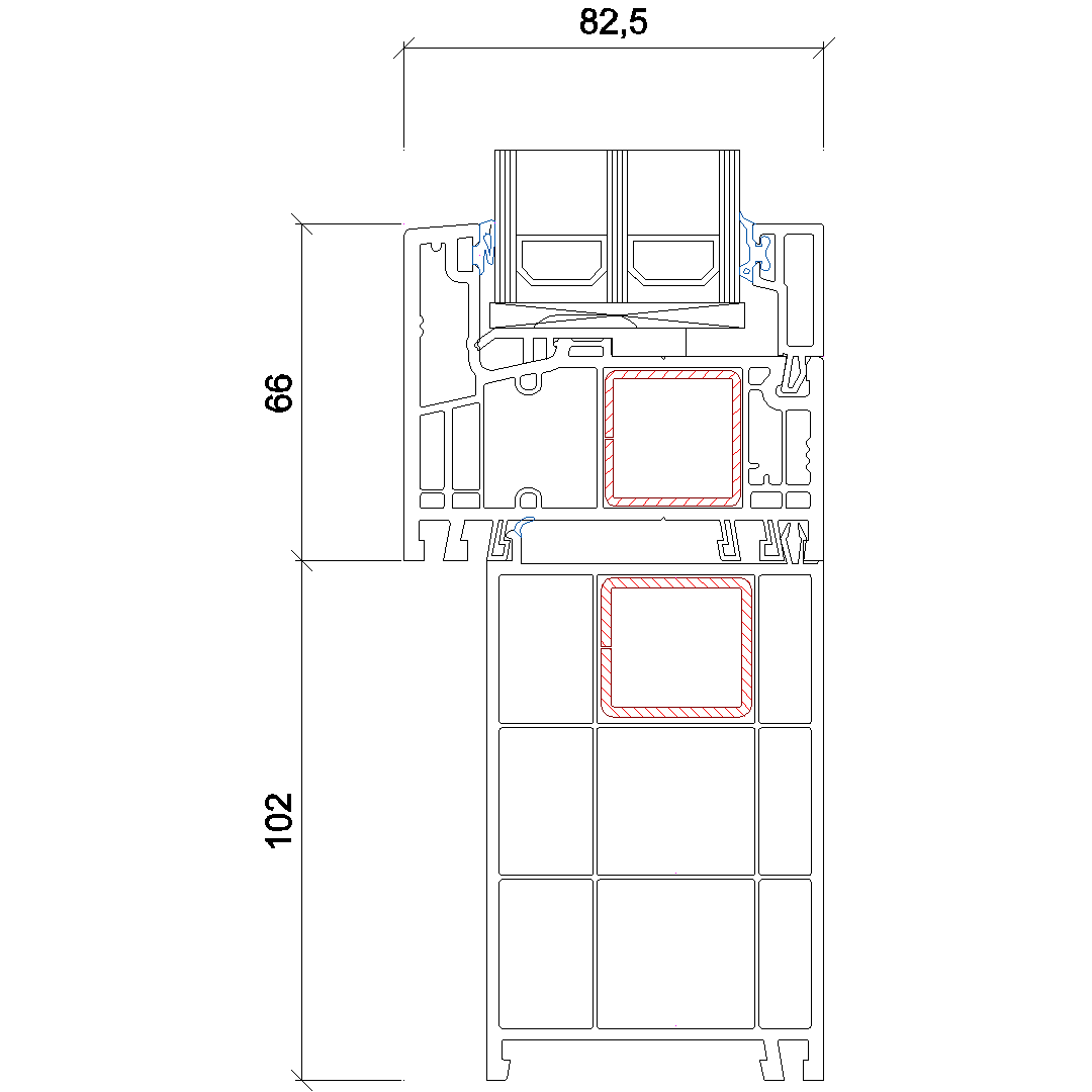
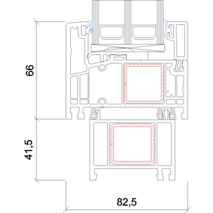
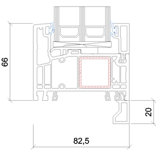
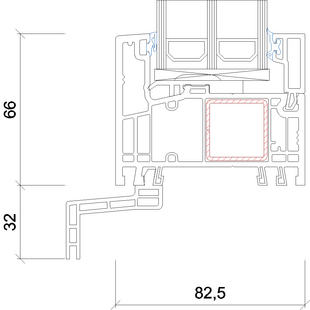
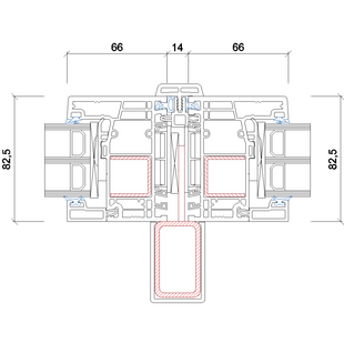
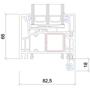
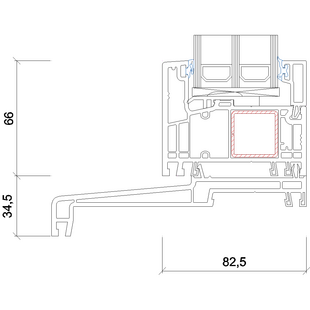
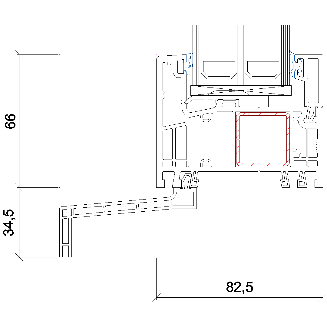
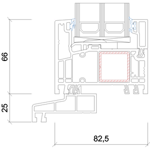
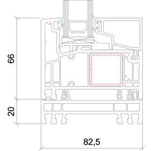
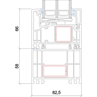
Gealan Kontur Festverglasung 66mm - 5020

Gealan Kontur Festverglasung 66mm - 5020

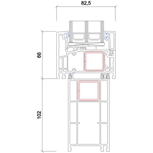
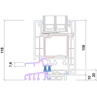
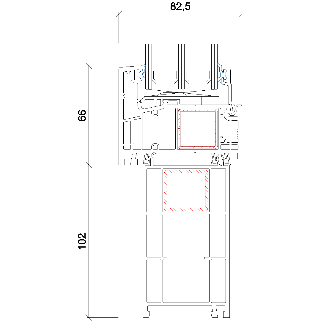
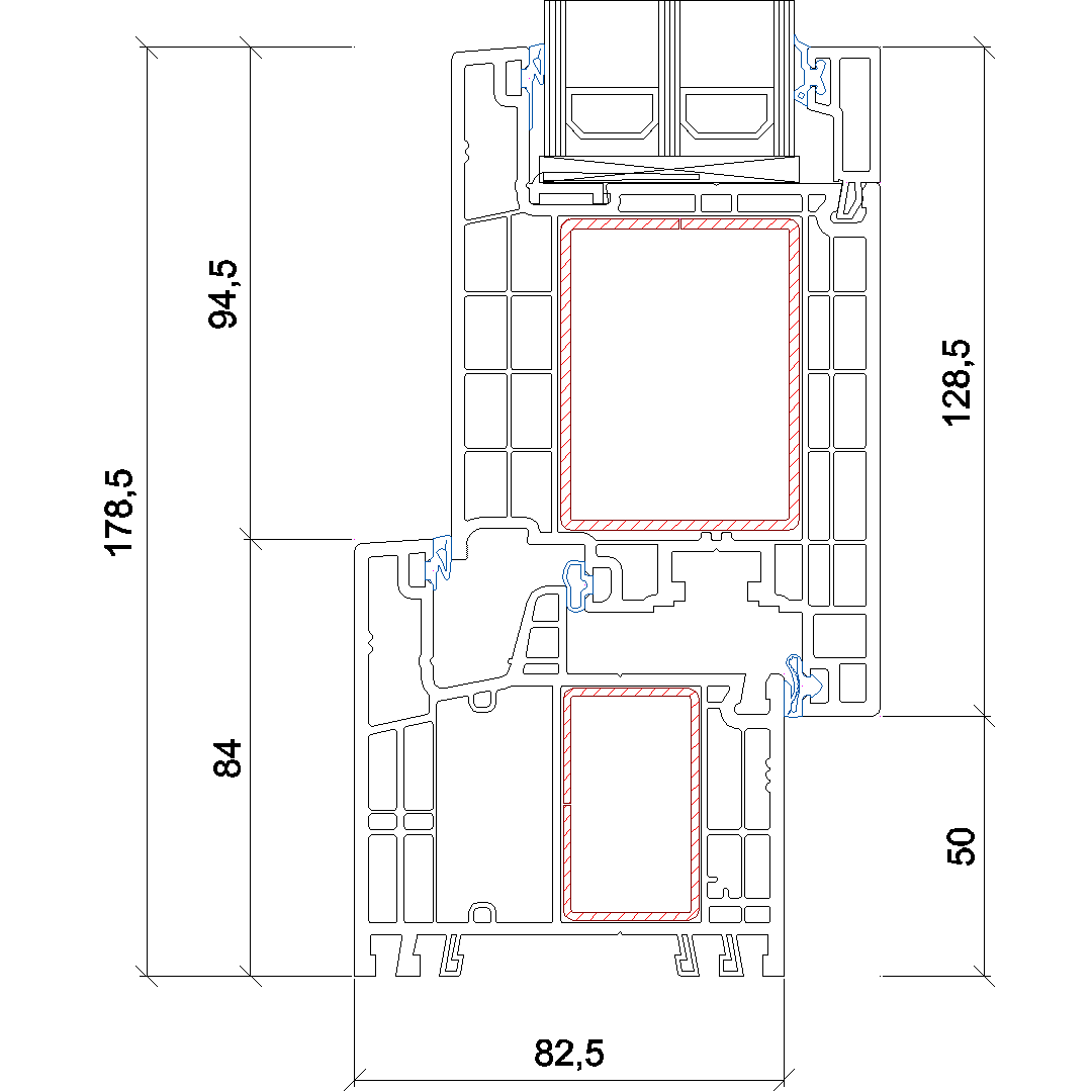
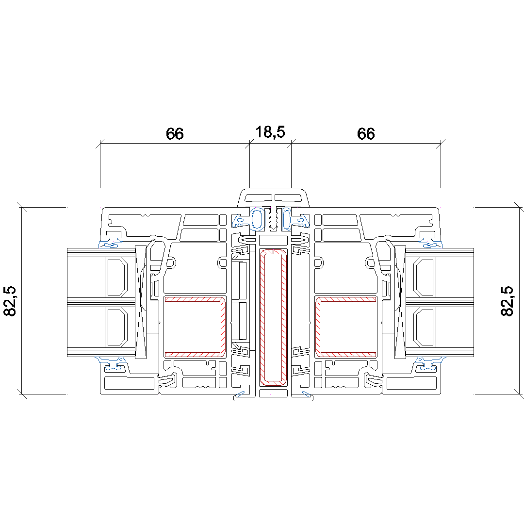
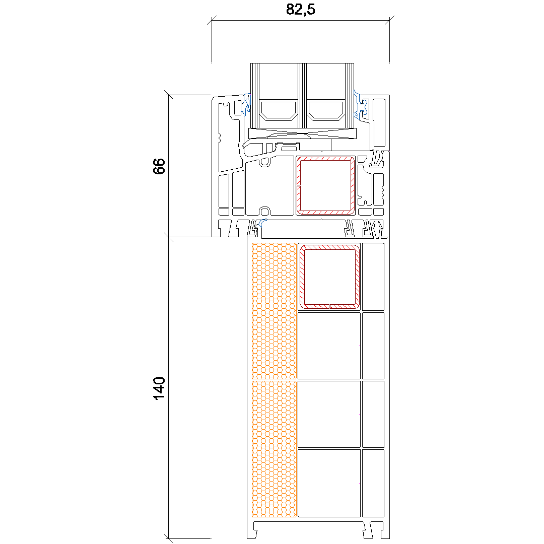
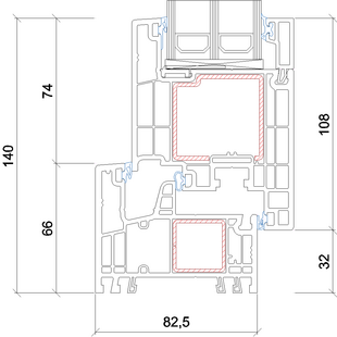
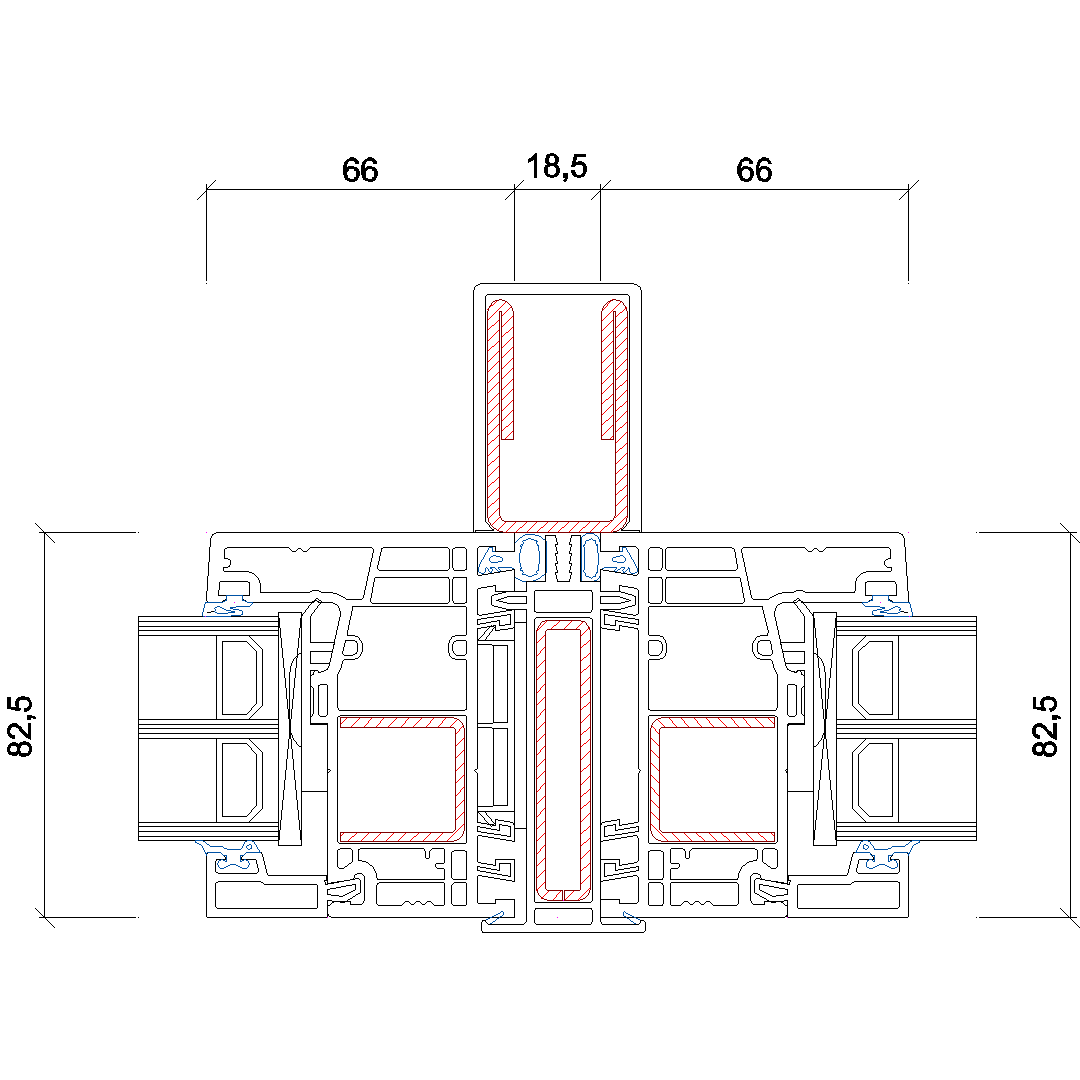
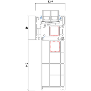
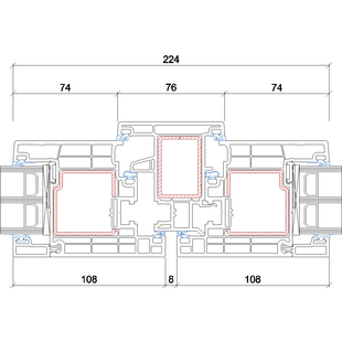
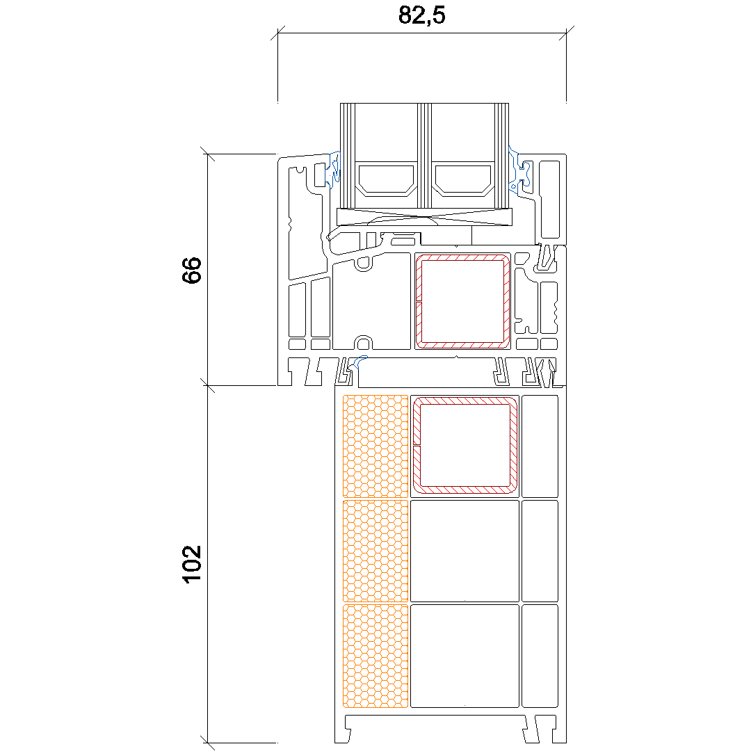
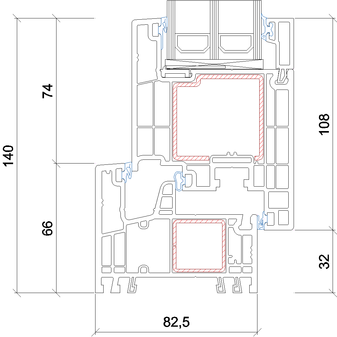
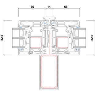
Gealan Kontur - Fenster 114mm 5020-5023

Gealan Kontur - Fenster 114mm 5020-5023

Kunststofffenster Gealn Kontur mit Türrahmen

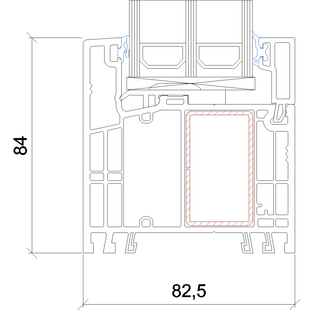
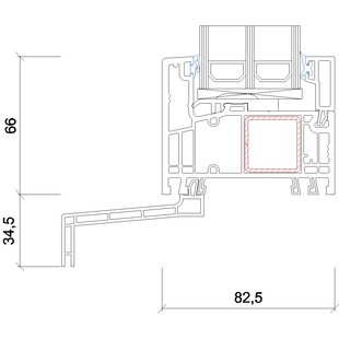
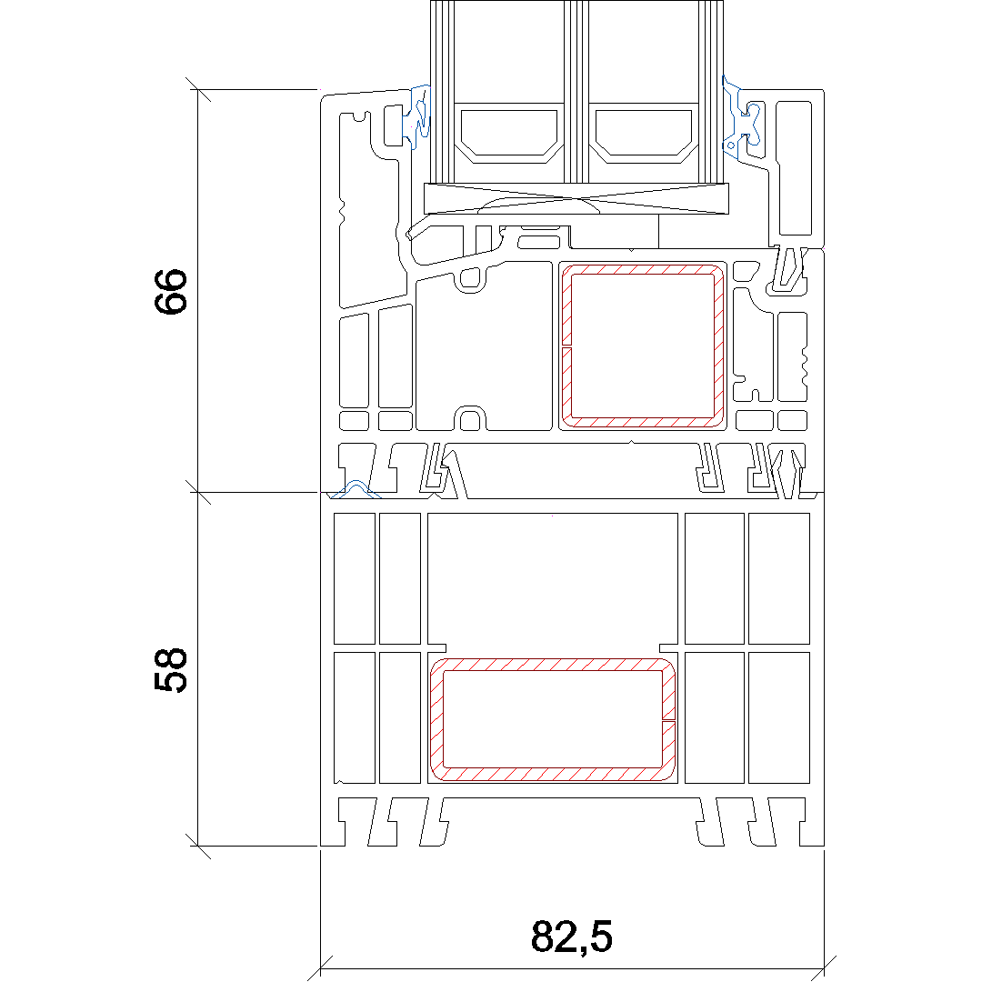
Gealan Kontur Festverglasung - 84mm 5021

Gealan Kontur Festverglasung - 84mm 5021

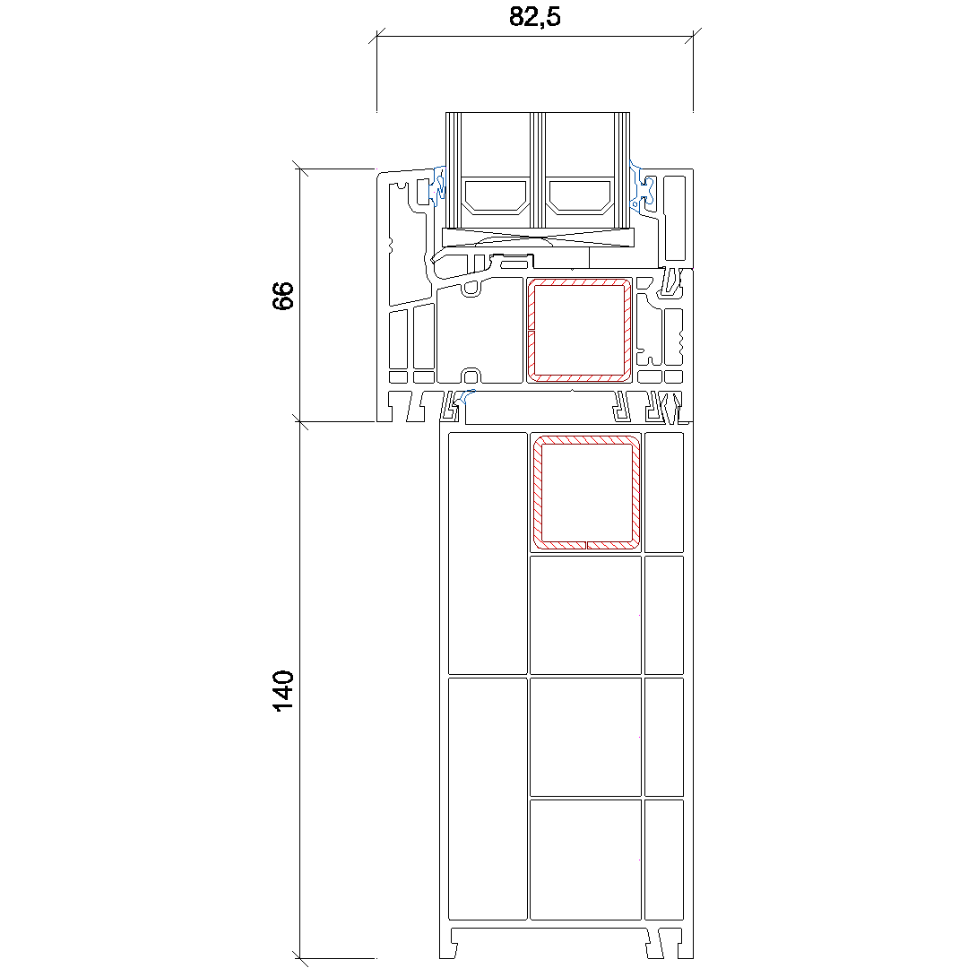
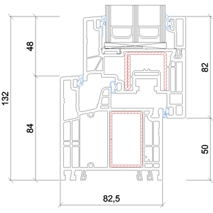
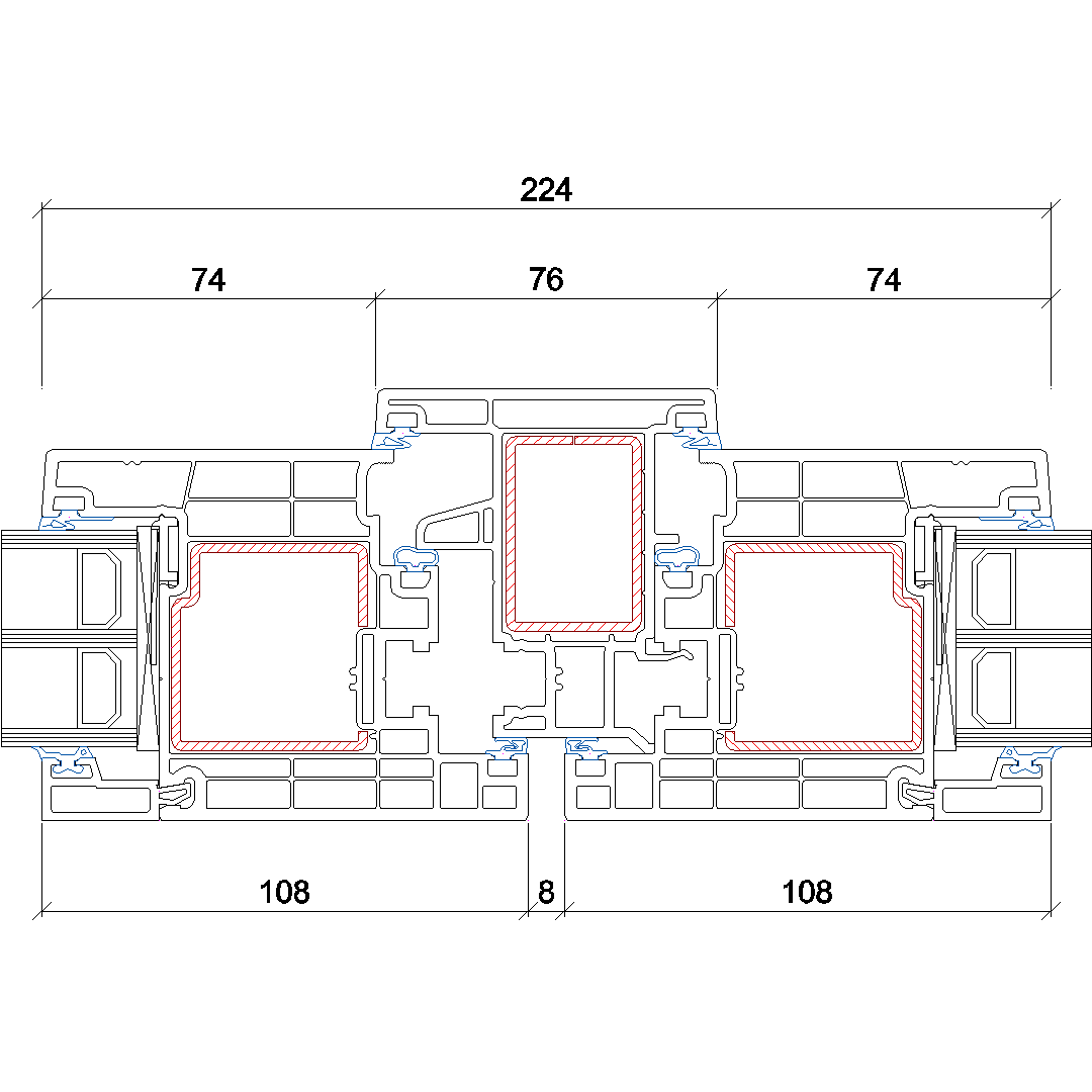
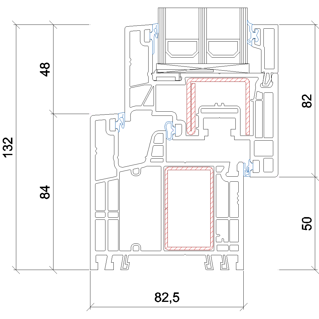
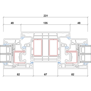
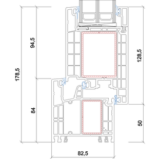
Gealan Kontur - Fenster 132mm 5021-5023

Gealan Kontur - Fenster 132mm 5021-5023

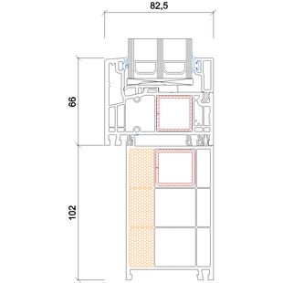
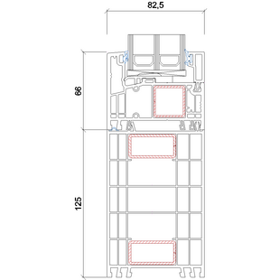
Gealan Kontur Festverglasung - 113mm 5022

Gealan Kontur Festverglasung - 113mm 5022

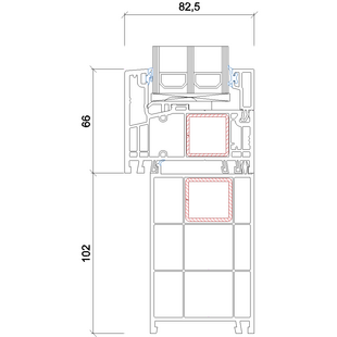
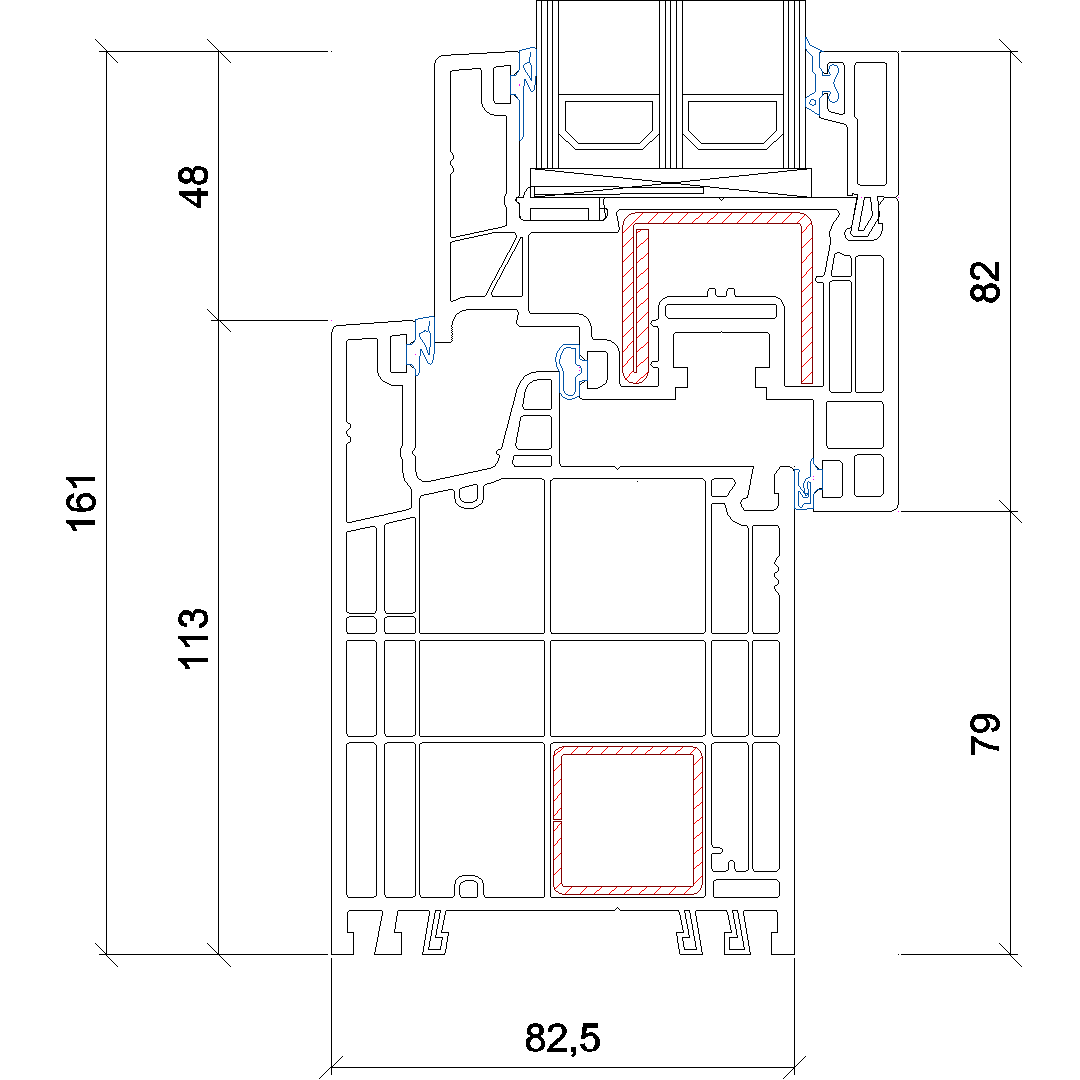
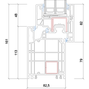
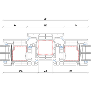
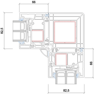
Gealan Kontur - Fenster 161mm 5022-5023

Gealan Kontur - Fenster 161mm 5022-5023

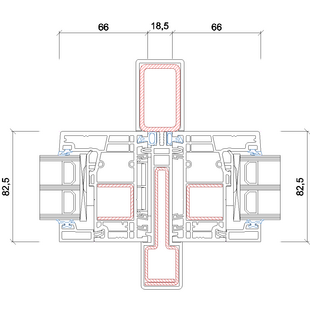
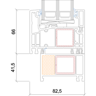
Gealan Kontur mit Pfosten 92mm (Schmal)

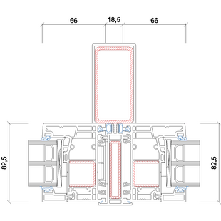
Gealan Kontur Pfosten- 92mm - 5026

Gealan Kontur Pfosten- 92mm - 5026

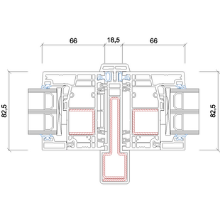
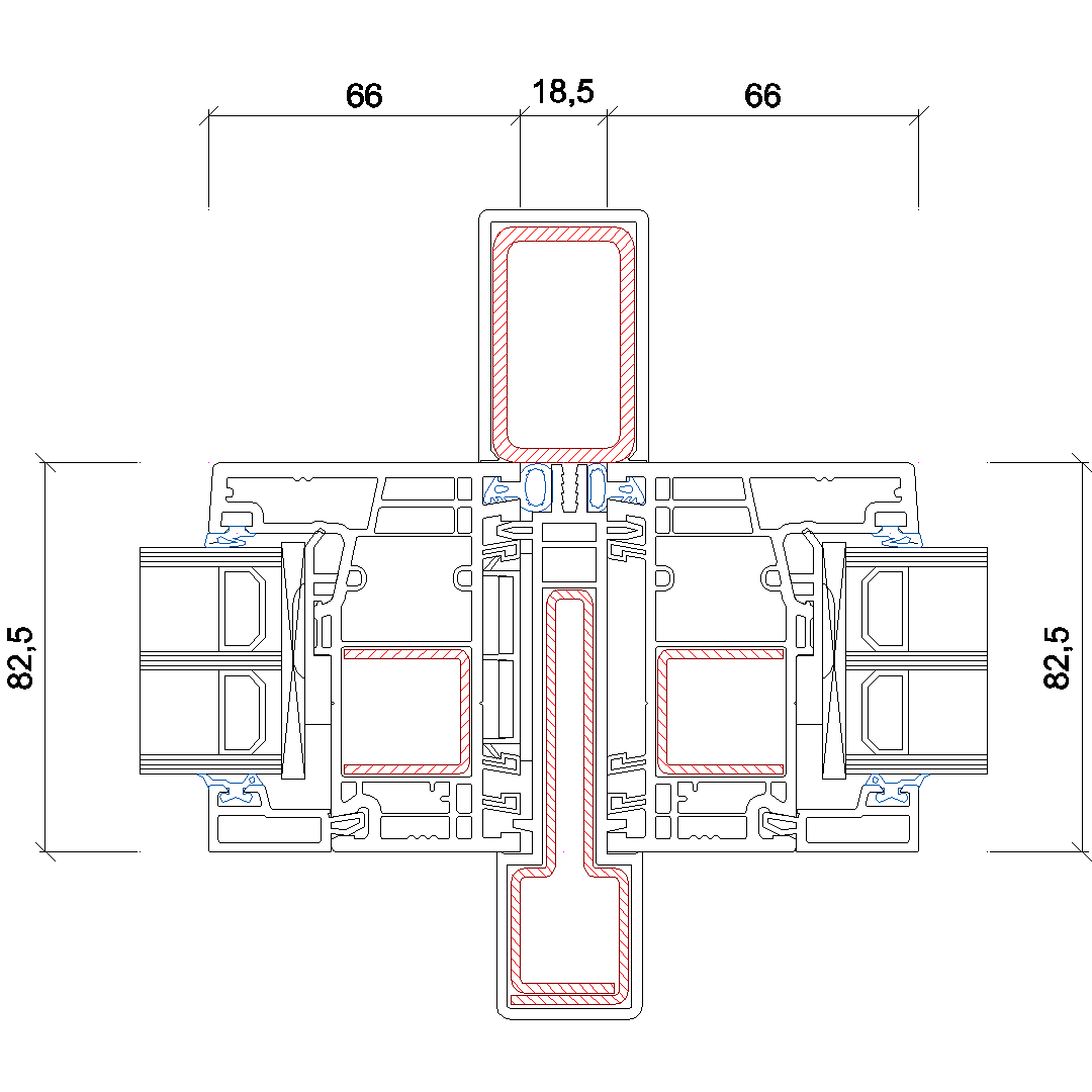
Gealan Kontur 92mm Fenster 82mm - 5026-5023

Gealan Kontur 92mm Fenster 82mm - 5026-5023

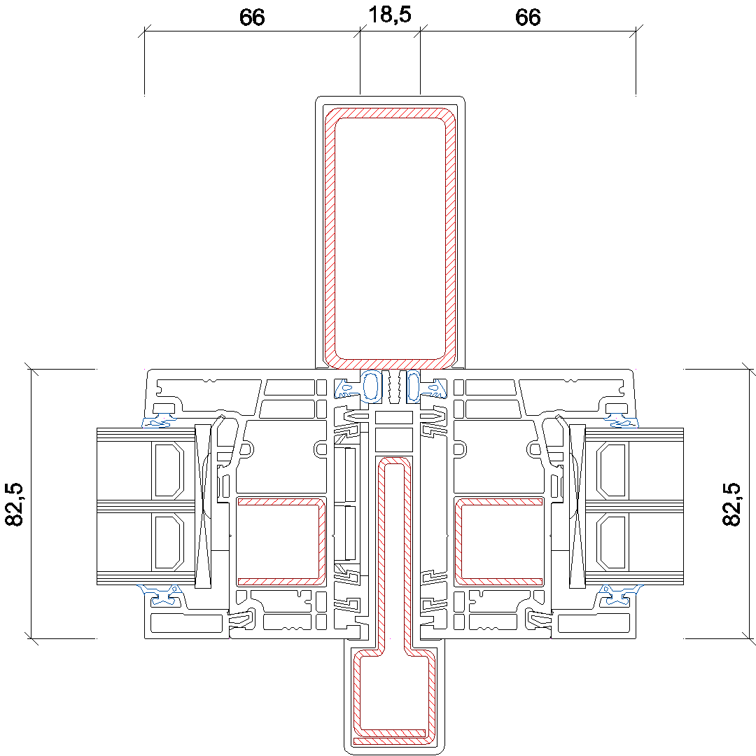
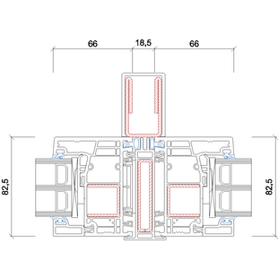
Gealan Kontur mit Pfosten 113mm und 135mm (Breit - Große Konstruktionen)

Gealan Kontur Pfosten-113mm - 5028

Gealan Kontur Pfosten-113mm - 5028

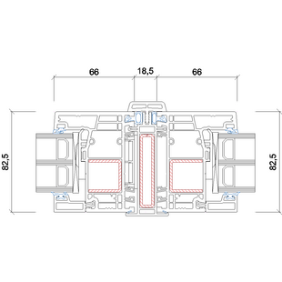
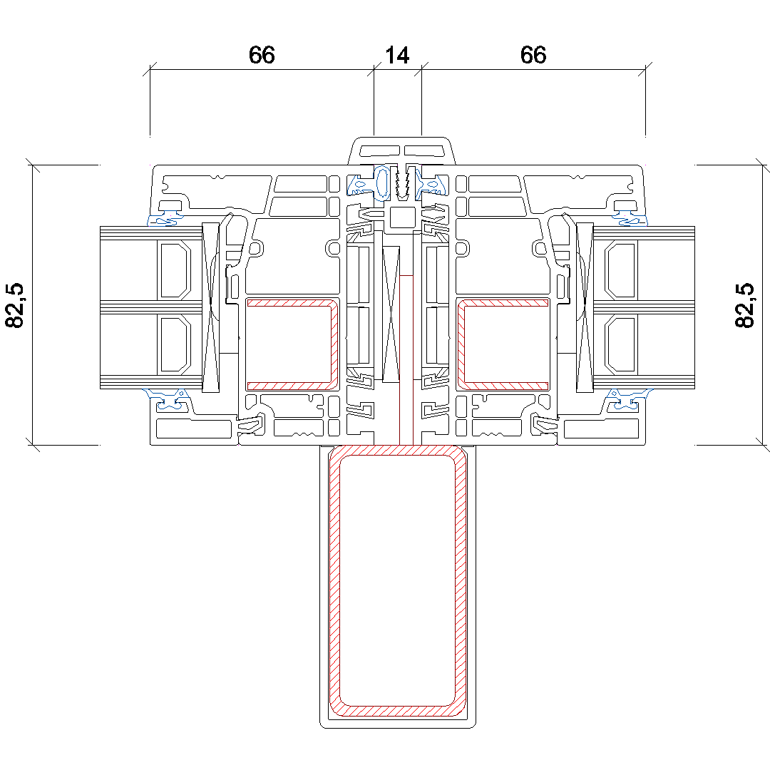
Gealan Kontur 113mm Fenster Classic 82mm - 5028-5023

Gealan Kontur 113mm Fenster Classic 82mm - 5028-5023

Gealan Kontur Pfosten-135mm - 5027

Gealan Kontur Pfosten-135mm - 5027

Gealan Kontur 135mm Fenster 82mm - 5027-5023

Gealan Kontur 135mm Fenster 82mm - 5027-5023

Kunststofffenster Gealan Kontur mit Stulp 76mm

Gealan Konturt Stulp 76mm Fenster 82mm - 5035-5023

Gealan Konturt Stulp 76mm Fenster 82mm - 5035-5023

Kunststofffenster Gealan Kontur mit Stulp (Sonderkonstruktionen auf Anfrage)

Gealan Kontur Stulp 56 mm Fenster 82mm - 5033-5023

Gealan Kontur Stulp 56 mm Fenster 82mm - 5033-5023

Gealan Kontur Stulp 56 mm Fenster 82mm - 5034-5023

Gealan Kontur Stulp 56 mm Fenster 82mm - 5034-5023

Kunststoff Balkontür Gealan Kontur

Gealan Kontur Balkontür mit Blendrahmen 114mm - 5020-5023

Gealan Kontur Balkontür mit Blendrahmen 114mm - 5020-5023


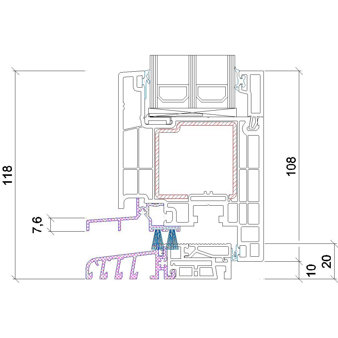
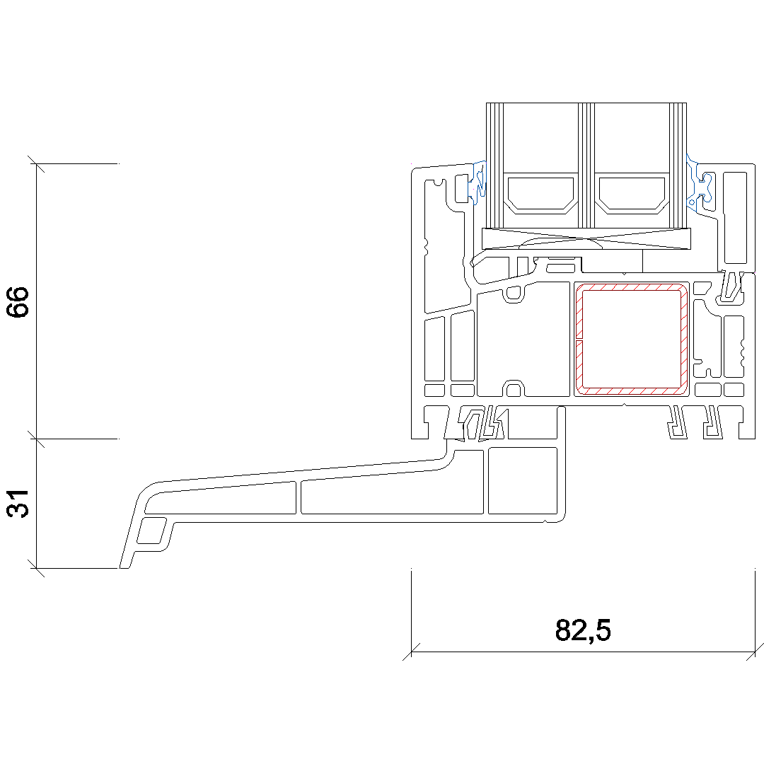
Gealan Kontur Balkontürschwelle 20mm - 82mm - 5023

Gealan Kontur Balkontürschwelle 20mm - 82mm - 5023

Kunststoff Terrassenflügel Gealan Kontur

Gealan Kontur Terassentür innen öffnend mit Blendrahmen - 5020-5029

Gealan Kontur Terassentür innen öffnend mit Blendrahmen - 5020-5029

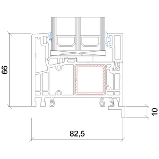
Gealan Kontur Terassentürschwelle 20mm innen öffnend - 5029

Gealan Kontur Terassentürschwelle 20mm innen öffnend - 5029

Gealan Kontur Pfosten 108mm Terassentür innen öffnend - 5028-5029

Gealan Kontur Pfosten 108mm Terassentür innen öffnend - 5028-5029

Terrassenflügel Gealan Kontur mit Stulp 76mm

Gealan Kontur Stulp 76mm Terassentür innen öffnend - 5035-5029

Gealan Kontur Stulp 76mm Terassentür innen öffnend - 5035-5029

Kunststoff Haustür Gealan Kontur

Gealan Kontur Tür innen öffnend - 5021-5031

Gealan Kontur Tür innen öffnend - 5021-5031

Gealan Kontur Türschwelle 20mm innen öffnend - 5031

Gealan Kontur Türschwelle 20mm innen öffnend - 5031

Gealan Kontur Pfosten 113mm Tür innen öffnend 5027-5031

Gealan Kontur Pfosten 113mm Tür innen öffnend 5027-5031



Türflügel Gealan Kontur mit Stulp 76mm

Gealan Kontur Stulp 76mm Tür innen öffnend - 5035-5031

Gealan Kontur Stulp 76mm Tür innen öffnend - 5035-5031

Zusatzprofile für Gealan Kontur Querschnitte

Kunststoff Sprossenarten - Gealan Kontur

Innenliegende SZR Sprossen / Helima Sprossen

Drutex Iglo SZR Sprosse 8mm

Innenliegende Sprosse 8mm

Drutex Iglo SZR Sprosse 18mm

Innenliegende Sprosse 18mm

Drutex Iglo SZR Sprosse 26mm

Innenliegende Sprosse 26mm

Drutex Iglo SZR Sprosse 45mm

Innenliegende Sprosse 45mm

Aufgesetzte / Aufgeklebte Sprossen

Schüco 9182 - aufgesetzte Sprossen - 27mm

3196 - aufgesetzte Sprossen - 23mm

3195 - aufgesetzte Sprossen - 33mm

3195 - aufgesetzte Sprossen - 33mm

3198 - aufgesetzte Sprossen - 43mm

3198 - aufgesetzte Sprossen - 43mm

Kunststoff Anschlussprofile - Gealan Kontur

Kunststoff Bankanschlussprofile (Sockelprofile)

6299 - Sockelprofil 41-5mm

6299 - Sockelprofil 41-5mm

6299-IKD - Sockelprofil 41-5mm

6299-IKD - Sockelprofil 41-5mm

6288 - Sockelprofil 102mm

6288 - Sockelprofil 102mm

6288-IKD - Sockelprofil 102mm

6288-IKD - Sockelprofil 102mm

6288-IKD - Sockelprofil 102mm

6277 - Sockelprofil 140mm

6277-IKD - Sockelprofil 140mm

6277-IKD - Sockelprofil 140mm

7299- Sockelprofil 41-5mm

7299- Sockelprofil 41-5mm

7299-IKD- Sockelprofil 41-5mm

7299-IKD- Sockelprofil 41-5mm

7288- Sockelprofil 102mm

7288- Sockelprofil 102mm

Kunststoff Anschlussprofile (bündig)

2101 - Anschlussprofil 20 mm

2101 - Anschlussprofil 20 mm

2212 - Anschlussprofil 10 mm

2212 - Anschlussprofil 10 mm

2230 - Anschlussprofil 15.5mm

2230 - Anschlussprofil 15.5mm

3205 - Anschlussprofil 40mm

3205 - Anschlussprofil 40mm

3110 - Anschlussprofil 18mm

3110 - Anschlussprofil 18mm

3206 - Anschlussprofil 30mm

3206 - Anschlussprofil 30mm

3208 - Anschlussprofil 45mm

3208 - Anschlussprofil 45mm

3216 - Anschlussprofil 45mm

3216 - Anschlussprofil 45mm

3217 - Anschlussprofil 45mm

3217 - Anschlussprofil 45mm

3218 - Anschlussprofil 40mm

3218 - Anschlussprofil 40mm

3362 - Anschlussprofil 20mm

3362 - Anschlussprofil 20mm

Kunststoff Fensterbank-Anschlussprofile

3207- Fensterbankprofil- 25mm

3207- Fensterbankprofil- 25mm

2209- Fensterbankprofil- 32mm

2209- Fensterbankprofil- 32mm

3210- Fensterbankprofil- 34.5mm

3210- Fensterbankprofil- 34.5mm

7231- Fensterbankprofil- 31mm

7231- Fensterbankprofil- 31mm

2213- Fensterbankprofil- 34.5mm

2213- Fensterbankprofil- 34.5mm

Kunststoff Rahmenverbreiterung - Gealan Kontur

5201 - Blendrahmenverbreiterung 20mm

5201 - Blendrahmenverbreiterung 20mm

5213 - Blendrahmenverbreiterung 36mm

5213 - Blendrahmenverbreiterung 36mm

5202 - Blendrahmenverbreiterung 58mm

5202 - Blendrahmenverbreiterung 58mm

5203 - Blendrahmenverbreiterung 125mm

5203 - Blendrahmenverbreiterung 125mm

Kunststoff Kopplungen - Gealan Kontur

7609 - Federkopplung

3284 - H Kopplung

5204 - Statikkopplung 18.5mm

5204 - Statikkopplung 18.5mm



5204-2249 - Statikkopplung mit verstaerkung 18.5mm

5204-2249 - Statikkopplung mit verstaerkung 18.5mm

5204-3240- Statikkopplung mit verstaerkung-stark 18.5mm


5204-3240- Statikkopplung mit verstaerkung-stark 18.5mm

2327-3240- Statikkopplung mit verstaerkung- stark 14mm

2327-3240- Statikkopplung mit verstaerkung- stark 14mm

2327-2249- Statikkopplung mit verstaerkung 14mm

2327-2249- Statikkopplung mit verstaerkung 14mm

6281 - Kopplung 18.5mm

6281 - Kopplung 18.5mm

6281-2249- Kopplung mit verstaerkung 18.5mm

6281-2249- Kopplung mit verstaerkung 18.5mm

6281-3240- Kopplung mit verstaerkung- stark 18.5mm

6281-3240- Kopplung mit verstaerkung- stark 18.5mm

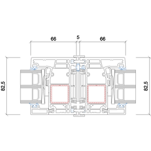
Kopplung von Eck-Elementen - 90°

2304 - Eckkopplung - 90 Grad

2304 - Eckkopplung - 90 Grad

Kopplung von Eck-Elementen - Variabel

5206-5207 - Eckkopplung - Variabel

5206-5207 - Eckkopplung - Variabel


Gealan kozijnen en deuren op maat

Configureer en bestel eenvoudig en comfortabel Gealan ramen en deuren online bij kozijnenblik.nl

Das könnte Sie auch interessieren:

Kunststofffenster Gealan Linear

Detailzeichnungen Kunststofffenster Gealan Linear

Kunststofffenster Gealan Linear besitzen eine Bautiefe (Rahmen) von 74mm.

Detailzeichnungen Gealan Linear

Kunststofffenster Gealan Kubus

Detailzeichnungen Kunststofffenster Gealan Kubus

Gealan Kubus besitzen eine Bautiefe (Rahmen) von 82.5mm.

Detailzeichnungen Gealan Kubus