Einfach und bequem Fenster Gealan Lumaxx® online konfigurieren und bestellen bei fensterblick.de
Kunststofffenster - Gealan Lumaxx®
Maximaler Lichteinfall für Fenster
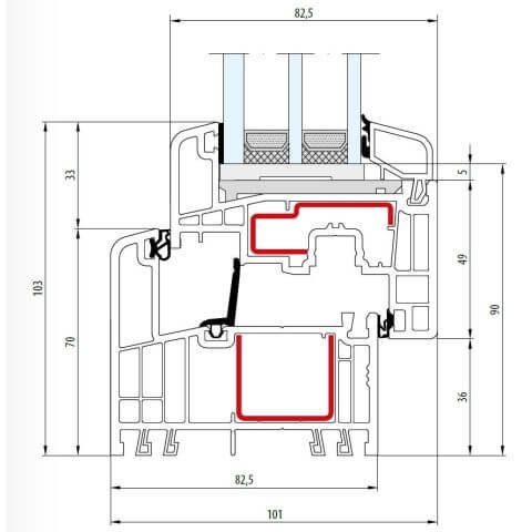
- 6 Kammersystem mit 82,5 mm Bautiefe
- Schmale Profilansichtsbreite von nur 103mm
- 3 Dichtungsebenen aus EPDM
- 3-fach / 4-fach Verglasung
- Scheibenpakete bis 54mm
- Sicherheitsbeschlag mit Pilzkopfverriegelung
- Optional: Verglasung mit STV-Technologie sowie Färbung der Oberfläche mit acrylcolor-Technologie
vanaf 40,52 €
incl. 21% BTW excl. verzendkosten
Die Gealan Lumaxx Stulp-Konstruktion von 106mm ist aktuell nicht im Sortiment. Aktuell sind nur die Stulp-Konstruktionen von 140mm oder 122mm im Sortiment.
Produktbeschreibung
Gealan Lumaxx – heller, schöner, größer
Der Name Lumaxx® weist auf die wichtigste Eigenschaft der Gealan-Lumaxx® Fenster: maximales Licht. Dafür sorgt die schmale Ansichtsbreite von nur 103mm. Die Fenster Gealan Lumaxx besitzen ein 6-Kammersystem mit einer Bautiefe von 82,5mm und 3 Dichtungsebenen (MD). Die große Einbautiefe ermöglicht maximale Verglasungspakete von bis zu 54mm mit STV-Technologie und bis zu 52mm mit einer klassen Verglasung. Bei der STV-Trockenverglasungstechnologie wird das Glas mit dem Flügelfalz verklebt, wodurch besonders hohe Flügelkonstruktionen ermöglicht werden. Die Klebetechnik STV® lässt Elemente bis zu einer Höhe von 2,50m in Weiß und bis zu 2,40m in Farbe verwirklichen. Wärmedämmwerte, Statik sowie Beschlagteile werden dabei besonders in Achtung genommen. Das schlanke Monostulpfenster von Gealan ist flexibel einsetzbar und verleiht Ihrem Objekt hochwertigen Stil. Die Stulp-Konstruktion von Gealan-Lumaxx® kann reduziert werden und ist damit schmaler als andere gängige Fensterprofile mit Stulp oder Pfosten. Bei fensterblick.de bieten wir die Stulp-Konstruktionen mit 140mm oder mit einem Aufpreis etwas schmaler mit 122mm an. So kommt nicht nur mehr Tageslicht hinein, sondern die schmale Ansicht bietet auch hohen Bedienkomfort, Sicherheit und Design.
Vorteile vom Kunststofffenster Gealan Lumaxx:
Profil:
Hochwertiges 6-Kammerprofil mit 82,5 mm Einbautiefe für eine hohe Wärmeisolation und Statik. Schmale Ansichtsbreite von nur 103mm.
Verglasung:
Die Verglasung kann mit einer Glasstärke von bis zu 54mm (mit STV®) ausgewählt werden. Große Auswahl von Wärmeschutz-, Schallschutz-, Sichtschutz- und Einbruchschutzverglasungen.
Dichtungen:
Die Kunststoffprofile verfügen über 3 Dichtungsebenen aus EPDM, die einen optimalen Schutz gegen Schlagregen und Wind bieten.
Beschlag:
Sicherheitsbeschläge mit Pilzkopfverriegelung. Eine große Verstärkungskammer mit Stahlarmierung sorgt für die entsprechende Statik.
Video: Mehr Licht mit Gealan-Lumaxx®
Große Auswahl an Farben für Gealan Fensterprofile
Fenster Gealan Lumaxx® nach Maß
Was ist neu beim Gealan-Lumaxx®?
Die Innovation des Gealan-Lumaxx® liegt in dem Flügelprofil. Das Getriebe besitzt ein versetztes Dornmaß, wodurch sich die Gesamtbautiefe um 7mm verringert.
Außerdem wurde bei der Glasleiste auf 8mm kleinere Profile gegangen. So konnte die Gesamtansicht von 118mm auf 103mm reduziert werden. Zudem kann die Ansichtsbreite des Stulp Pakets von 152 auf bis zu 106mm beschränkt werden. Bei fensterblick.de bieten wir die Stulp-Konstruktionen mit 140mm oder mit einem Aufpreis etwas schmaler mit 122mm an.
Das Gealan-Lumaxx® stammt aus der bewährten Systemplatform S9000. Auch die verschiedenen Zusatzprofiele, wie z. B. Kopplungen, Verbreitungen, Eckprofile sowie die Rahmen gehören dem obengenannten System.
Gealan-Lumaxx®: Für die Sanierung und den Denkmalschutz
Der Denkmalschutz ist einer der Gründe warum Gealan-Lumaxx® entwickelt wurde. Bei Fenstern mit historischer Herkunft sind schmale Ansichten von großer Bedeutung. Das betrifft hauptsächlich die Ansichtsbreite von Flügel- und Stulp Profilen, denn der Rahmen historischer Fenster wird in der Regel in der Innenanschlagsmontage überdeckt.
Die schlanke Ansicht des Gealan-Lumaxx® ermöglicht die filigrane Optik der historischen Fenster auch nach der Sanierung beizubehalten. Zudem wurden von Gealan Zierprofile entwickelt, um den besonderen historischen Stil nicht zu verlieren. Diese Profile haben besonders schlanke Ansichten, die bis zu 25% mehr Glasanteil und Lichteinfall ermöglichen.
Auch farbig: Gealan-Lumaxx® in Acrylcolor
Gealan-Lumaxx® Fenster sind auch farbig lieferbar. In Kombination mit dem schreckgeschnittenen Gealan Wetterschenkel ermöglicht das Gealan-Lumaxx® System moderne Kunststofffenster, die optisch von den historischen nicht zu unterscheiden sind. Acrylcolor Oberflächen entstehen aus einer Verschmelzung von PVC-Grundkörpern und farbigen Acrylglas (PMMA).
Acrylcolor bildet eine Innovation bei den Oberflächen für Fenster und Türen aus Kunststoff mit vielen Vorteilen: Es blättert nicht ab, es ist farbecht, pflegeleicht, reparaturfreundlich, kratzfest und witterungsbeständig.
Zudem besteht eine große Farbauswahl, die sich sowohl für den modernen Hausbau als auch für die Sanierung historischer Objekte eignet.
Premiumschwelle GEALAN-COMFORT®: Barrierefreiheit neu definiert
GEALAN Comfort setzt neue Maßstäbe im Bereich der Türschwellen. Diese innovative Lösung bietet eine nahtlose, bodengleiche Schwelle, die ästhetisch ansprechend ist und barrierefreie Übergänge ermöglicht.
Geeignet für alle Rahmenvarianten der S 9000 Systemplattform, ist sie sowohl für Neubau als auch Renovierung ideal. GEALAN Comfort überzeugt mit einer Kombination aus technischen Innovationen und praktischer Anwendung, indem es eine leistungsfähige mechanische Absenkdichtung nutzt, die den Innenraum zuverlässig gegen Wettereinflüsse schützt. Die modulare Konstruktion ermöglicht eine flexible Verwendung für verschiedene Fenster- und Türvarianten, während das zukunftssichere Design allen Generationen ein komfortables Wohnen verspricht.
GEALAN Comfort ist die Antwort auf die Anforderung nach universellem Design und Barrierefreiheit, wodurch es ein essentielles Element moderner Architektur darstellt.
Technische Querschnitte und Detailzeichnungen
Sie nehmen es auch ganz genau? Dann planen Sie jetzt Ihr Bauvorhaben bis ins kleinste Detail mit den praktischen Profilschnitten und weiteren technischen Zeichnungen vom Profil Gealan Lumaxx (S 9000). Hier werden Ihnen nicht nur vielfältige Möglichkeiten gezeigt, sondern Sie können auch die Mechanismen der Profilfunktionalität begutachten sowie Unterschiede zwischen verschiedenen Profilen beurteilen. Zudem werden die möglichen Zusatzprofile wie Bankanschlüsse, Rahmenverbreiterungen oder Kopplungen für das System Gealan Lumaxx aufgelistet. Danit fügt sich das Fenstersystem ideal in jede Umgebung ein. Dank der vielfältigen Detailzeichnungen können Sie eine exakte Planung vornehmen und so ein optimales Montageergebnis erzielen.
Kostenlose Lieferung
Ab einer Bestellung von 10 Fenstern deutschlandweit!
Weitere Fenstersysteme von Gealan:
Gealan Fenster | Gealan S 8000 | Gealan S 9000 | Gealan Linear® | Gealan Kontur® | Gealan Kubus® | Gealan S 9000 NL | Gealan Kontur® mit Alu-Vosatzschale | Gealan S 9000 mit Alu-Vosatzschale
Zusammenfassung: Produktinformationen
