Detailzeichnungen Schüco CT-70

Kunststofffensterprofil Schüco CT-70 Querschnitte

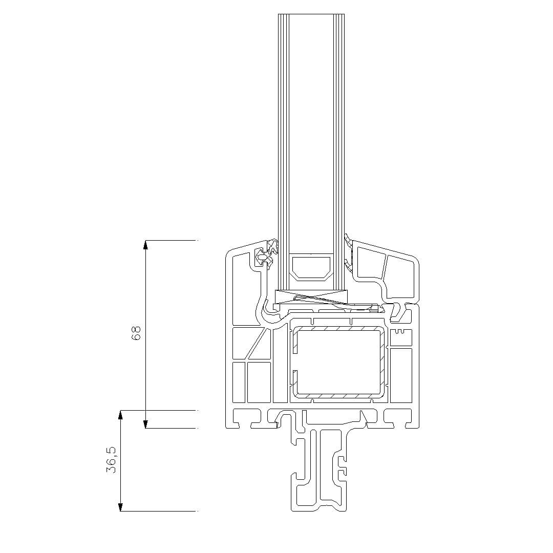
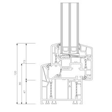
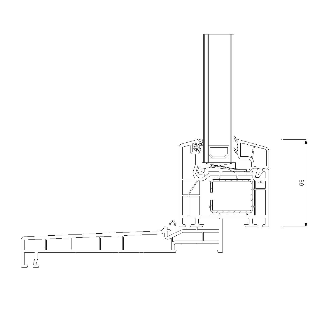
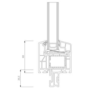
Schüco CT-70 Festverglasung 68mm - 8865

Schüco CT-70 Festverglasung 68mm - 8865

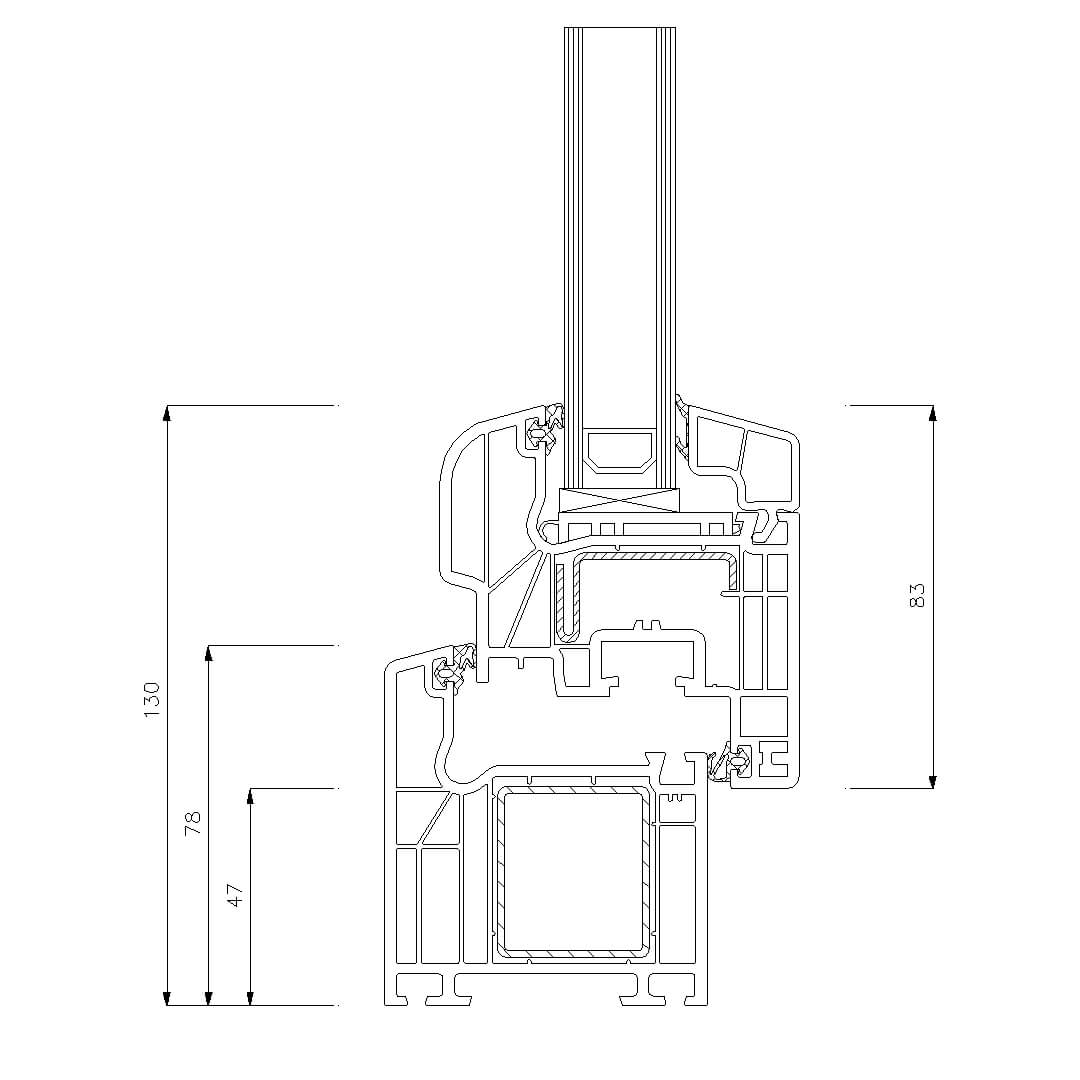
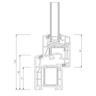
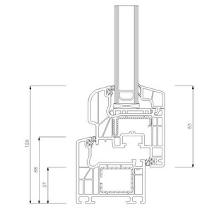
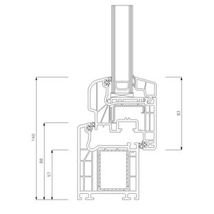
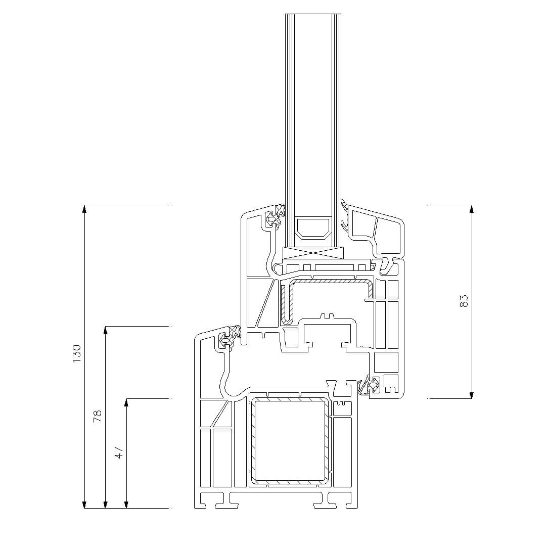
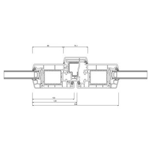
Schüco CT-70 AS Fenster - Classic 120mm 8865-8866

Schüco CT-70 AS Fenster - Classic 120mm 8865-8866

Schüco CT-70 AS Fenster - Rondo120mm 8865-8867

Schüco CT-70 AS Fenster - Rondo 120mm 8865-8867

Kunststofffenster Schüco CT-70 AS mit Türrahmen (8864 und 8819)

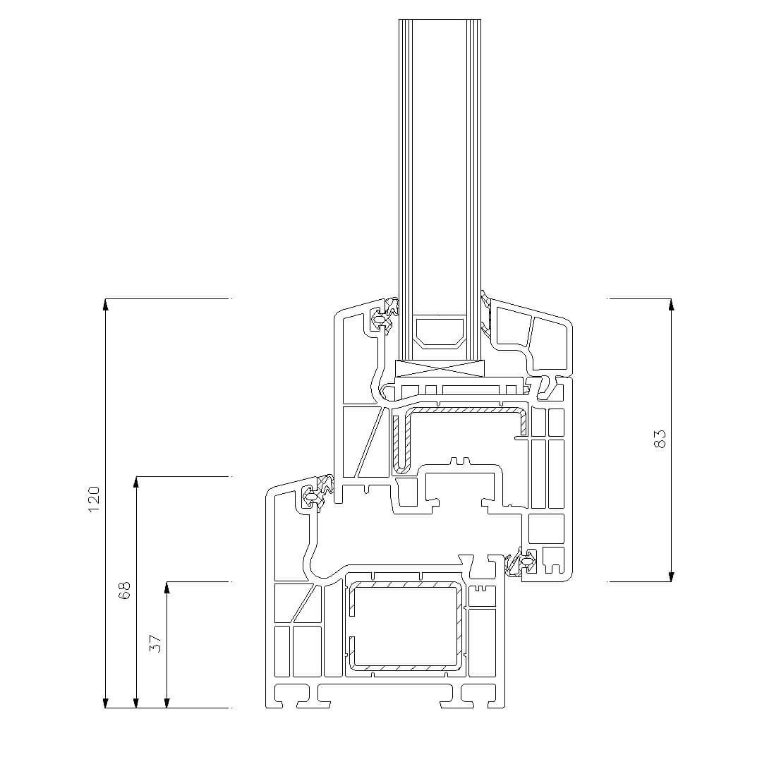
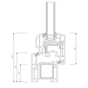
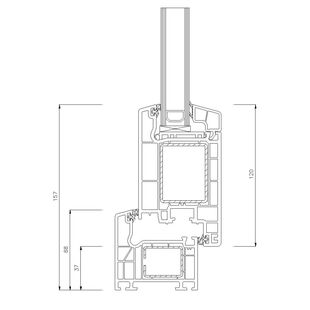
Schüco CT-70 AS Festverglasung - 78mm 8864

Schüco CT-70 AS Festverglasung - 78mm 8864

Schüco CT-70 AS - Classic 130mm 8866

Schüco CT-70 AS - Classic 130mm 8866

Schüco CT-70 AS - Rondo 130mm 8867

Schüco CT-70 AS - Rondo 130mm 8867

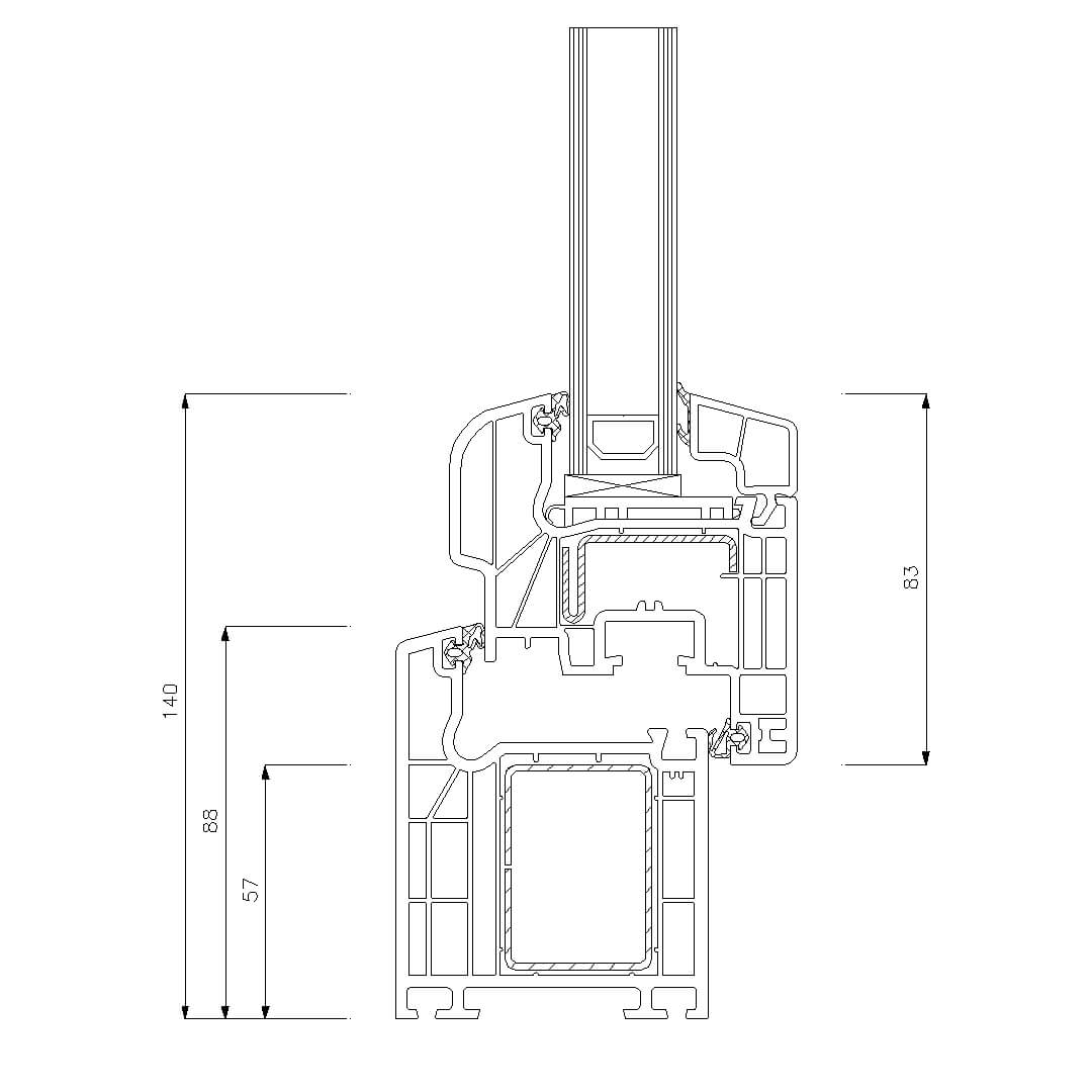
Schüco CT-70 AS Festverglasung - 88mm 8819

Schüco CT-70 AS Festverglasung - 88mm 8819

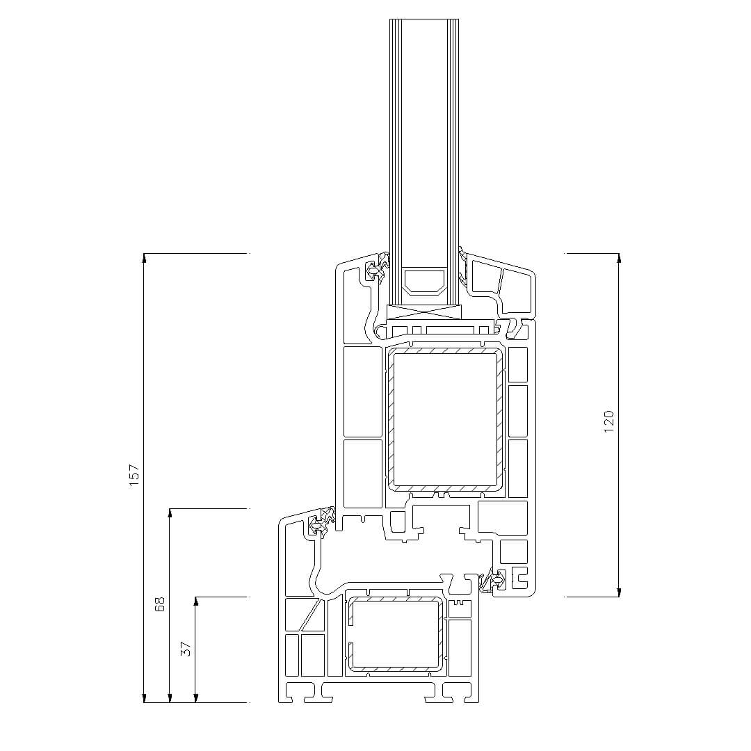
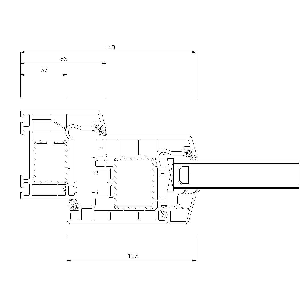
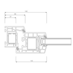
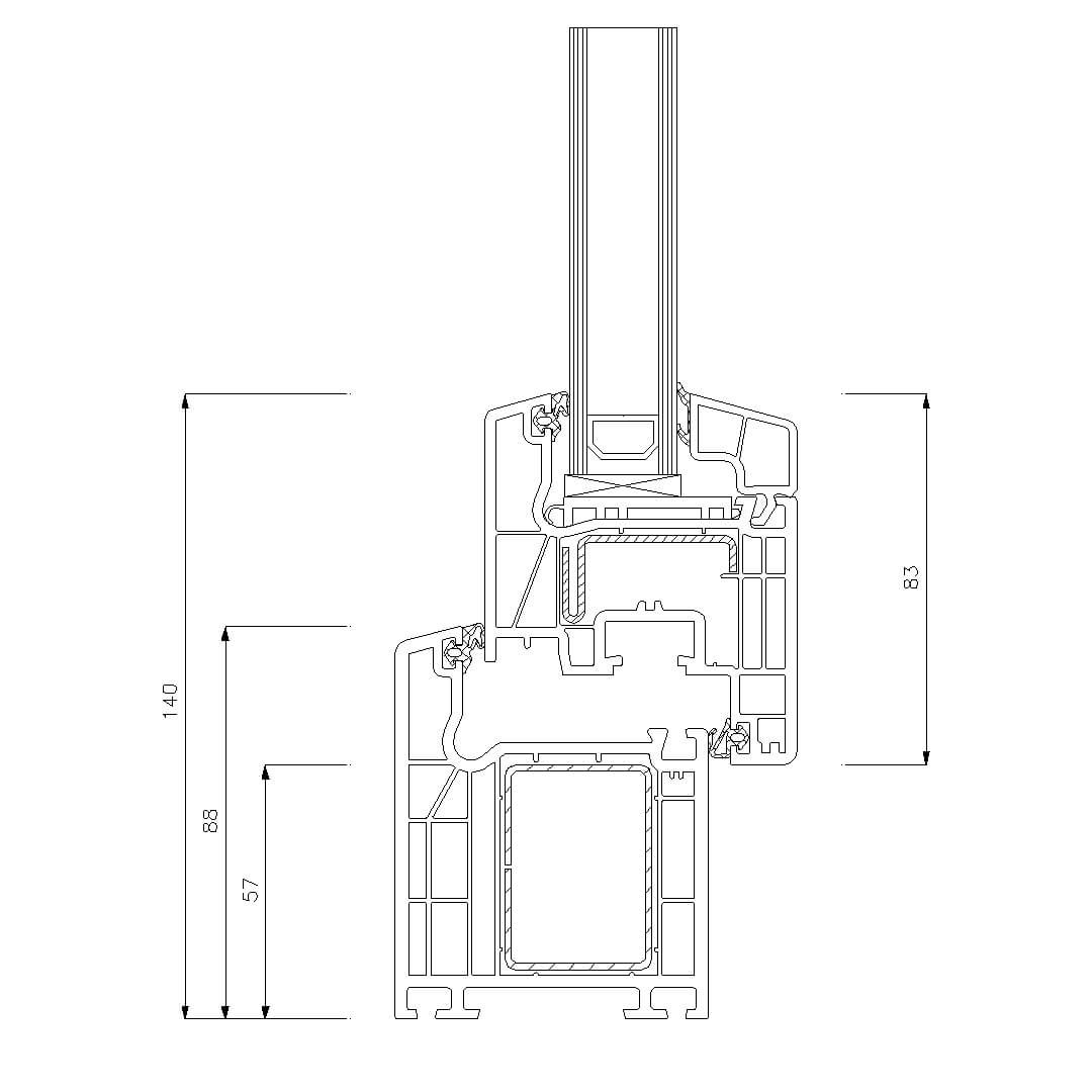
Schüco CT-70 AS - Classic 140mm 8866

Schüco CT-70 AS - Classic 140mm 8866

Schüco CT-70 AS - Rondo 140mm 8867

Schüco CT-70 AS - Rondo 140mm 8867

Schüco CT-70 AS mit Pfosten 91mm (Schmal)

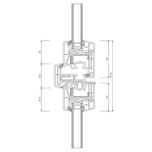
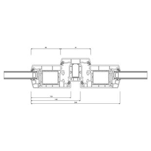
Schüco CT-70 AS Pfosten-91mm-5k - 9012

Schüco CT-70 AS Pfosten-91mm-5k - 9012

Schüco CT-70 AS 91mm Fenster Classic 83mm - 9012-8866

Schüco CT-70 AS 91mm Fenster Classic 83mm - 9012-8866

Schüco CT-70 AS Pfosten 91mm Fenster Rondo 83mm - 9012-8867

Schüco CT-70 AS Pfosten 91mm Fenster Rondo 83mm - 9012-8867

Schüco CT-70 AS mit Pfosten 110mm (Breit - Große Konstruktionen)

Schüco CT-70 AS Pfosten-110mm - 8849

Schüco CT-70 AS Pfosten-110mm - 8849

Schüco CT-70 AS 110mm Fenster Classic 83mm - 8849-8866

Schüco CT-70 AS 110mm Fenster Classic 83mm - 8849-8866

Schüco CT-70 AS 110mm Fenster Rondo 83mm - 8849-8867

Schüco CT-70 AS 110mm Fenster Rondo 83mm - 8849-8867

Kunststofffenster Schüco CT-70 AS mit Stulp 54mm

Schüco CT-70 AS mit Stulp 54mm Fenster Classic  83mm - 9700 - 8864

Schüco CT-70 AS mit Stulp 54mm Fenster Classic  83mm - 9700 - 8864

Schüco CT-70 AS mit Stulp 54mm Fenster Rondo  83mm - 9700 - 8867

Schüco CT-70 AS mit Stulp 54mm Fenster Rondo  83mm - 9700 - 8867

Kunststofffenster Schüco CT-70 AS mit Stulp (Sonderkonstruktionen auf Anfrage)

Schüco CT-70 AS Stulp 34 mm Fenster Classic 83mm - 9609-8866

Schüco CT-70 AS Stulp 34 mm Fenster Classic 83mm - 9609-8866

Schüco CT-70 AS Stulp 34 mm Fenster Rondo 83mm - 9609-8867

Schüco CT-70 AS Stulp 34 mm Fenster Rondo 83mm - 9609-8867

Schüco CT-70 AS Stulp 70 mm Fenster Classic 83mm - 9701-8866

Schüco CT-70 AS Stulp 70 mm Fenster Classic 83mm - 9701-8866

Schüco CT-70 AS Stulp 70 mm Fenster Rondo 83mm - 9701-8867

Schüco CT-70 AS Stulp 70 mm Fenster Rondo 83mm - 9701-8867

Kunststoff Balkontür Schüco CT-70 AS

Schüco CT-70 AS Balkontür Classic mit Blendrahmen 120mm - 8865-8866

Schüco CT-70 AS Balkontür Classic mit Blendrahmen 120mm - 8865-8866


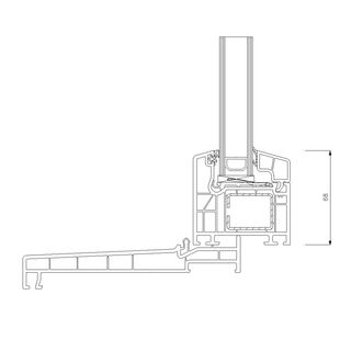
Schüco CT-70 AS Balkontürschwelle 20mm Classic 83mm - 8866

Schüco CT-70 AS Balkontürschwelle 20mm Classic 83mm - 8866

Schüco CT-70 AS Balkontür Rondo mit Blendrahmen 120mm - 8865-8867

Schüco CT-70 AS Balkontür Rondo mit Blendrahmen 120mm - 8865-8867

Schüco CT-70 AS Balkontürschwelle 20mm Rondo 83mm - 8867

Schüco CT-70 AS Balkontürschwelle 20mm Rondo 83mm - 8867

Kunststoff Terrassenflügel Schüco CT-70 AS

Schüco CT-70 AS Terassentür innen öffnend mit Blendrahmen Classic - 8865-9943

Schüco CT-70 AS Terassentür innen öffnend mit Blendrahmen Classic - 8865-9943

Schüco CT-70 AS Terassentürschwelle 20mm innen öffnend Classic - 9943

Schüco CT-70 AS Terassentürschwelle 20mm innen öffnend Classic - 9943

Schüco CT-70 AS 91 Pfosten 91mm Terassentür innen öffnend Classic - 9012-9943

Schüco CT-70 AS 91 Pfosten 91mm Terassentür innen öffnend Classic - 9012-9943

Terrassenflügel Schüco CT-70 AS mit Stulp 70mm

Schüco CT-70 AS Stulp 70mm Terassentür innen öffnend Classic- 9702-9943

Schüco CT-70 AS Stulp 70mm Terassentür innen öffnend Classic- 9702-9943

Kunststoff Nebentür Schüco CT-70 AS

Kunststoff Haustür Schüco CT-70 AS

Schüco CT-70 AS Tür innen öffnend - 8865-9108

Schüco CT-70 AS Tür innen öffnend - 8865-9108

Schüco CT-70 AS Türschwelle 20mm innen öffnend - 9108

Schüco CT-70 AS Türschwelle 20mm innen öffnend - 9108

Schüco CT-70 AS Pfosten 91mm Tür innen öffnend Classic 8869-9108

Schüco CT-70 AS Pfosten 91mm Tür innen öffnend Classic 8869-9108



Türflügel Schüco CT-70 AS mit Stulp 70mm

Schüco CT-70 AS Stulp 70mm Tür innen öffnend - 9702-9108

Schüco CT-70 AS Stulp 70mm Tür innen öffnend - 9702-9108

Zusatzprofile für Schüco CT-70 AS Querschnitte

Kunststoff Sprossenarten - Schüco CT-70

Innenliegende SZR Sprossen / Helima Sprossen

Drutex Iglo SZR Sprosse 8mm

Innenliegende Sprosse 8mm

Drutex Iglo SZR Sprosse 18mm

Innenliegende Sprosse 18mm

Drutex Iglo SZR Sprosse 26mm

Innenliegende Sprosse 26mm

Drutex Iglo SZR Sprosse 45mm

Innenliegende Sprosse 45mm

Aufgesetzte / Aufgeklebte Sprossen

Schüco 9182 - aufgesetzte Sprossen - 27mm

9182 - aufgesetzte Sprossen - 27mm

Schüco 9183 - aufgesetzte Sprossen - 34mm

9183 - aufgesetzte Sprossen - 34mm

Schüco 9184 - aufgesetzte Sprossen - 45mm

9184 - aufgesetzte Sprossen - 45mm

Schüco 9185 - aufgesetzte Sprossen - 65mm

9185 - aufgesetzte Sprossen - 65mm

Glasteilende Sprossen - Kämpfer

Schüco CT-70 AS Kämpfer-Sprosse 91mm 5K - 9012

Schüco CT-70 AS Kämpfer-Sprosse 91mm 5K - 9012

Schüco CT-70 AS Kämpfer-Sprosse 110mm - 8849

Schüco CT-70 AS Kämpfer-Sprosse 110mm - 8849

Kunststoff Anschlussprofile - Schüco CT-70

Kunststoff Bankanschlussprofile (Basisprofile)

8674 - Basis- und Transportschutzprofil 30mm

8674 - Basis- und Transportschutzprofil 30mm

8479 - Basisprofil 30mm (Breite: 45mm) 3K

8479 - Basisprofil 30mm (Breite: 45mm)

8441 - Basisprofil 30mm (Breite: 31mm)

8441 - Basisprofil 30mm (Breite: 31mm)

8033 - Basisprofil 30mm (Breite: 20mm)

8033 - Basisprofil 30mm (Breite: 20mm)

8299 - Basisprofil 30mm (Breite: 46mm) 3K

8299 - Basisprofil 30mm (Breite: 46mm)

Weitere Kunststoff Bankanschlussprofile (Basisprofile)

8274- Basisprofil-55mm-35mm

8274- Basisprofil-55mm-35mm

8390- Basisprofil 60mm-64 mm-4k

8390- Basisprofil 60mm-64 mm-4k

8896- Basisprofil- 60mm-100mm-3k

8896- Basisprofil- 60mm-100mm-3k

92270 Basisprofil-70-120

92270 Basisprofil-70-120

9229- Basisprofil- 70mm-40mm-4k

9229- Basisprofil- 70mm-40mm-4k

9270- Basisprofil- 15mm- 30mm

9270- Basisprofil- 15mm- 30mm

Kunststoff Anschlussprofile (bündig)

8839 - Anschlussprofil 15-20 mm

8839 - Anschlussprofil 20 mm

8759 - Anschlussprofil 12,5-35 mm

8759 - Anschlussprofil 35 mm

8769 - Anschlußprofil 12,5 50mm

8769 - Anschlussprofil 50mm

Kunststoff Anschlussprofile (versetzt)

9213 - Anschlussprofil 12,5 25mm

9213 - Anschlussprofil 25mm (versetzt)

9214 - Anschlussprofil 12,5 50mm

9214 - Anschlussprofil 50mm (versetzt)

Kunststoff Fensterbank-Anschlussprofile

9419- Fensterbankprofil- 157mm-32mm

9419- Fensterbankprofil- 157mm-32mm

9342- Fensterbankprofil- 123mm-33mm

9342- Fensterbankprofil- 123mm-33mm

7112- Fensterbankprofil- 157mm-37mm

7112- Fensterbankprofil- 157mm-37mm

9019- Fensterbankprofil- 135mm-20mm

9019- Fensterbankprofil- 135mm-20mm

8273- Fensterbankprofil- 103mm-23mm

8273- Fensterbankprofil- 103mm-23mm

7607-Fensterbankprofil- 52mm-66mm

7607-Fensterbankprofil- 52mm-66mm

7788- Fensterbankprofil-37mm-66mm

7788- Fensterbankprofil-37mm-66mm

9833- Fensterbankprofil- 78mm-5mm-31mm

9833- Fensterbankprofil- 78mm-5mm-31mm

9295- Fensterbankprofil- 69mm-35mm

9295- Fensterbankprofil- 69mm-35mm

Kunststoff Rahmenverbreiterung - Schüco CT-70

9841- Blendrahmenverbreiterung 25mm 4k

9841 - Blendrahmenverbreiterung 25mm

9842 - Blendrahmenverbreiterung 50mm 4k

9842 - Blendrahmenverbreiterung 50mm

9843 - Blendrahmenverbreiterung 120mm 4k

9843 - Blendrahmenverbreiterung 120mm

Kunststoff Kopplungen - Schüco CT-70

7609 - Federkopplung

7609 - Federkopplung

8423 - H - Kopplung 15-17 5mm

8423 - H - Kopplung universal 5mm



9160 - H - Kopplung 77-5-20 2mm

9160 - H - Kopplung für 70mm Profil 2mm

9160 - H - Kopplung 77-5-20 5mm

9160 - H - Kopplung für 70mm Profil 5mm

9211- Statik-Kopplung-94-5-42 30mm

9211 - Statik-Kopplung 30mm

9211- Statik-Kopplung-94-5-42 30mm (bündig)

9211 - Statik-Kopplung 30mm (bündig)

9190 - Statikpfosten 116-70 39mm (eckige glasleiste)

9190 - Statikpfosten 39mm (eckige glasleiste)

9190 - Statikpfosten 116-70 55mm (eckige glasleiste)

9190 - Statikpfosten 55mm (eckige glasleiste)

Kopplungsprofile 22mm - Kombinationen und Varianten

9280-9282-70- Kopplungsprofile-22mm

9280-9282-70- Kopplungsprofile-22mm

9280-9283-70- Kopplungsprofile-22mm

9280-9283-70- Kopplungsprofile-22mm

9281-9282-70- Kopplungsprofile-22mm

9281-9282-70- Kopplungsprofile-22mm

9281-9283-70- Kopplungsprofile-22mm

9281-9283-70- Kopplungsprofile-22mm

9282-9280-70- Kopplungsprofile-22mm

9282-9280-70- Kopplungsprofile-22mm

9282-9281-70- Kopplungsprofile-22mm

9282-9281-70- Kopplungsprofile-22mm

9282-9282-70- Kopplungsprofile-22mm

9282-9282-70- Kopplungsprofile-22mm

9282-9283-70- Kopplungsprofile-22mm

9282-9283-70- Kopplungsprofile-22mm

9283-9280-70- Kopplungsprofile-22mm

9283-9280-70- Kopplungsprofile-22mm

9283-9281-70- Kopplungsprofile-22mm

9283-9281-70- Kopplungsprofile-22mm

9283-9282-70- Kopplungsprofile-22mm

9283-9282-70- Kopplungsprofile-22mm

9283-9283-70- Kopplungsprofile-22mm

9283-9283-70- Kopplungsprofile-22mm

Kopplung von Eck-Elementen - 90° und Variabel

19831-70 - Eckkopplung - 90 Grad variabel

19831-70 - Eckkopplung - 90 Grad variabel

8579 - Eckkopplung - 90 Grad (aussenecke)

8579 - Eckkopplung - 90 Grad (aussenecke)


8579 - Eckkopplung - 90 Grad (innenecke)

8579 - Eckkopplung - 90 Grad (innenecke)


8484 - Eckkopplung - 90 Grad (aussenecke) 120 mm

8484 - Eckkopplung - 90 Grad (aussenecke) 120 mm

8484 - Eckkopplung - 90 Grad (innenecke) 120 mm

8484 - Eckkopplung - 90 Grad (innenecke) 120 mm


Kopplung von Eck-Elementen - 135° und Variabel

17889-70 - Eckkopplung - 135 Grad variabel

17889-70 - Eckkopplung - 135 Grad variabel


Kunststoff Abdeckleisten - Schüco CT-70

Schuco kozijnen en deuren op maat

Configureer en bestel eenvoudig en comfortabel Schüco ramen en deuren online bij kozijnenblik.nl

Das könnte Sie auch interessieren:

Kunststofffenster Schüco LivIng 82

Detailzeichnungen Kunststofffenster Schüco LivIng 82

Kunststofffenster Schüco LivIng 82 besitzen eine Bautiefe (Rahmen) von 82mm.

Detailzeichnungen Schüco LivIng 82

Kunststofffenster Schüco LivIng 82 Alu Inside

Detailzeichnungen Kunststofffenster Schüco LivIng 82 Alu Inside

Schüco LivIng 82 Alu Inside besitzen eine Bautiefe (Rahmen) von 82mm.

Detailzeichnungen Schüco LivIng 82 Alu Inside