Detailzeichnungen Schüco Living Alu Inside MD

Kunststofffensterprofil Schüco Living Alu Inside MD Querschnitte

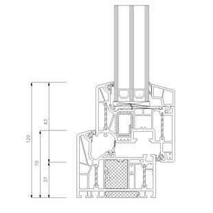
Schüco Living Alu Inside MD Festverglasung-70mm - 9521

Schüco Living Alu Inside MD Festverglasung-70mm - 9521

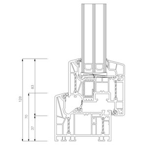
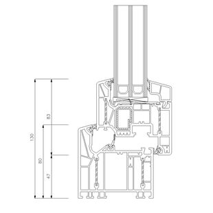
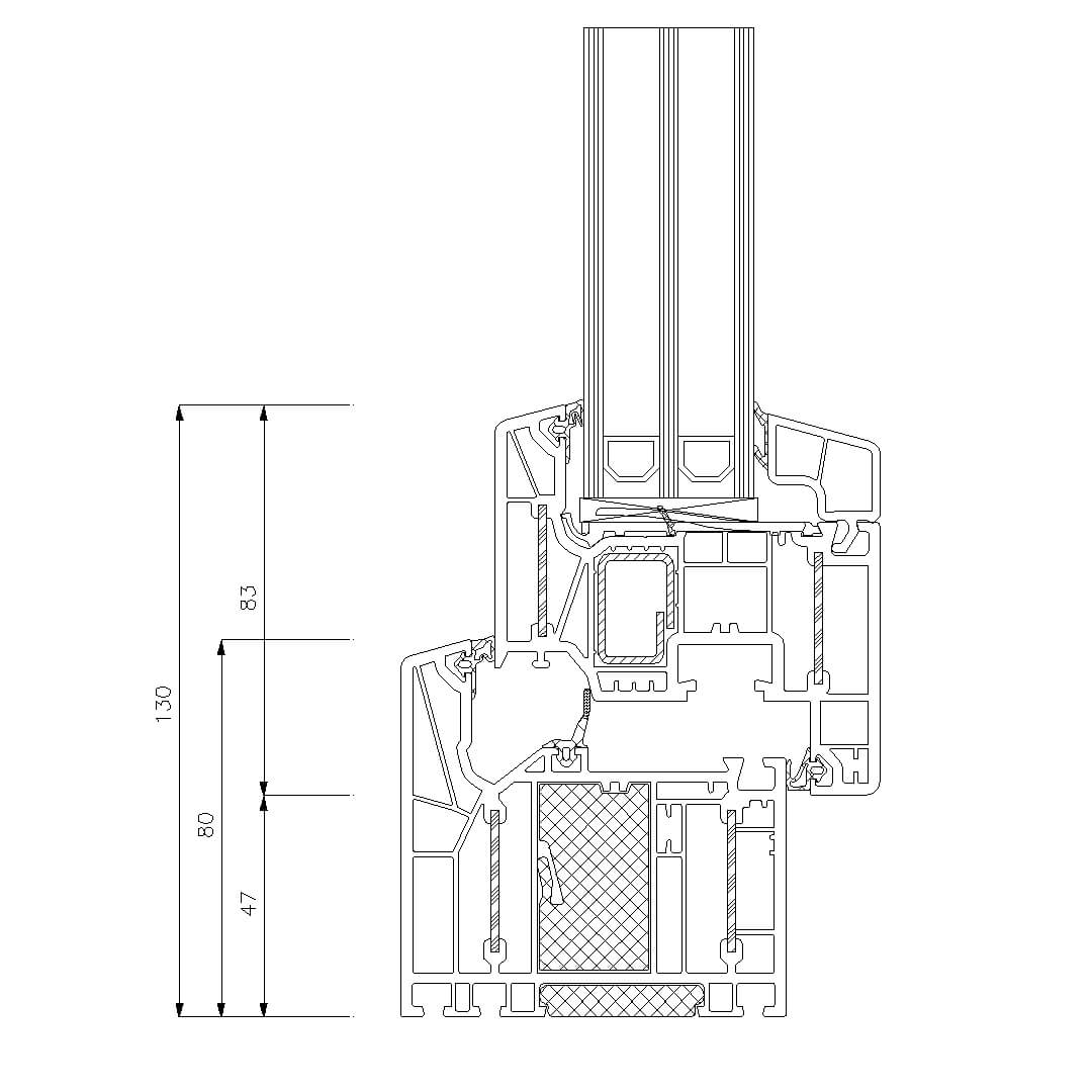
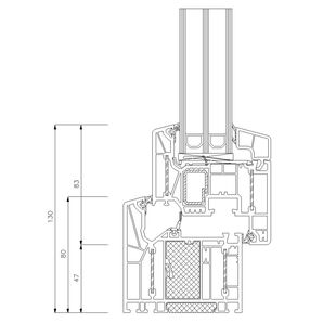
Schüco Living Alu Inside MD - Classic 120mm  9521-9523

Schüco Living Alu Inside MD - Classic 120mm 9521-9523

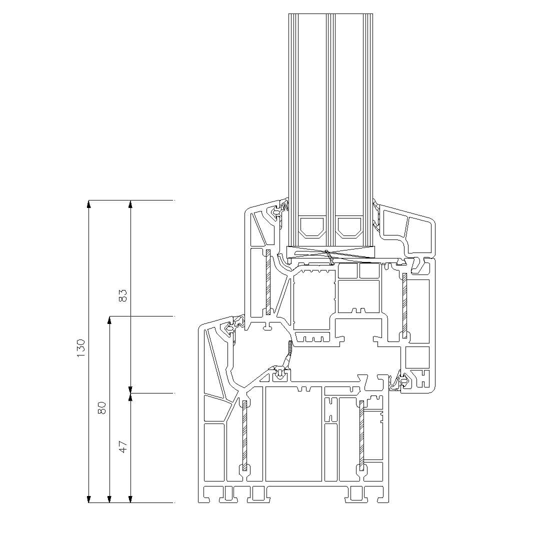
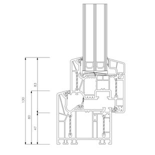
Schüco Living Alu Inside MD - Classic 120mm 9521-9523 mit Verstärkung

Schüco Living Alu Inside MD - Classic 120mm 9521-9523 mit Verstärkung

Schüco Living Alu Inside MD HI Festverglasung-70mm - 9521

Schüco Living Alu Inside MD HI Festverglasung-70mm - 9521

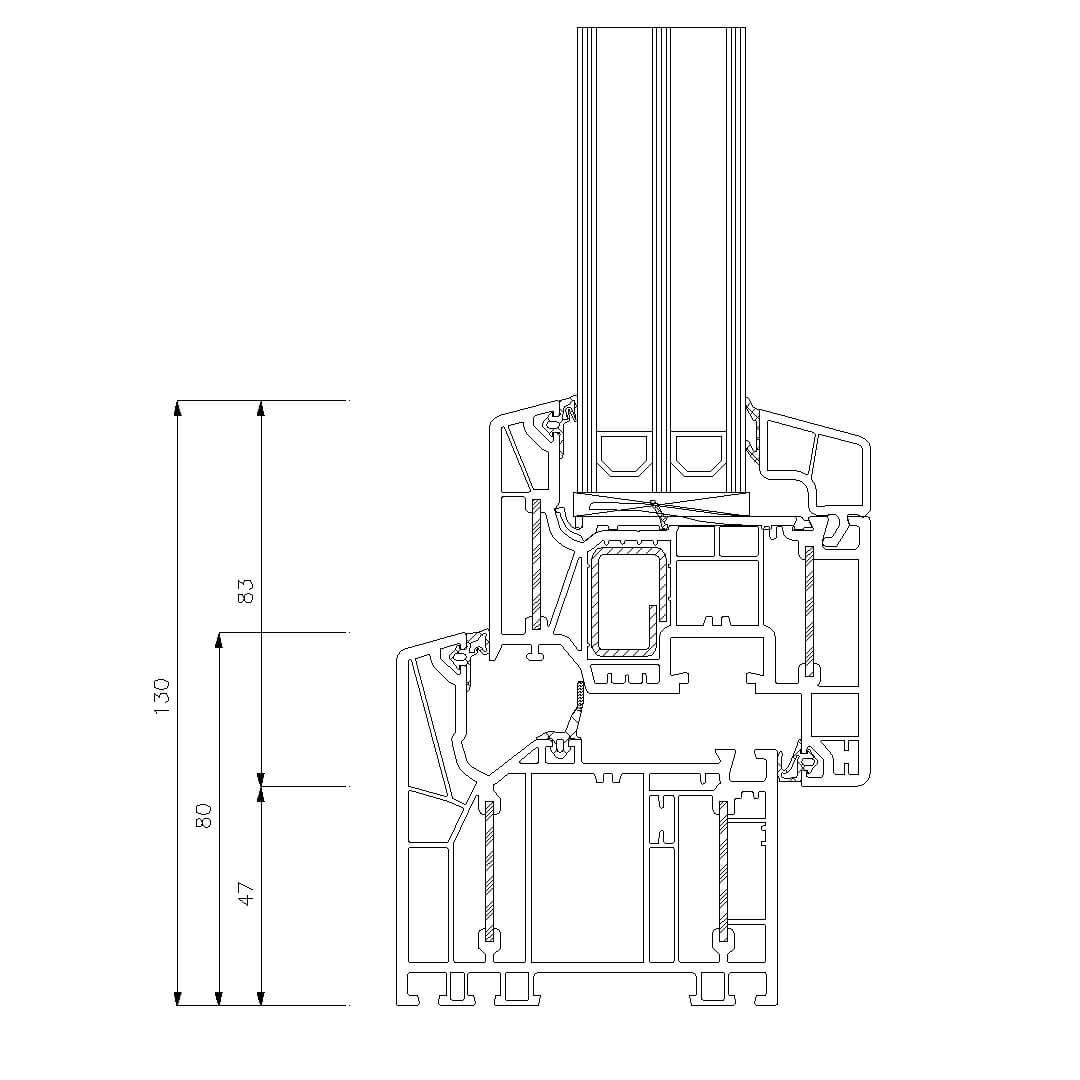
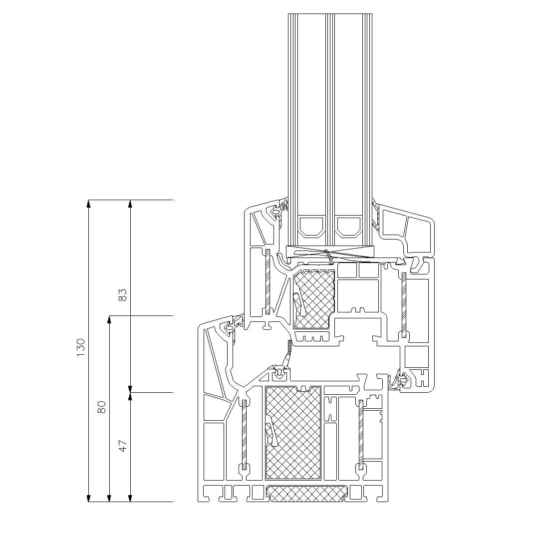
Schüco Living Alu Inside MD HI - Classic 120mm  9521-9523

Schüco Living Alu Inside MD HI - Classic 120mm 9521-9523

Schüco Living Alu Inside MD HI - Classic 120mm 9521-9523 mit Verstärkung

Schüco Living Alu Inside MD HI - Classic 120mm 9521-9523 mit Verstärkung

Kunststofffenster Schüco Living Alu Inside MD mit Türrahmen

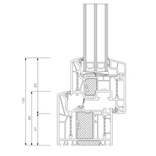
Schüco Living Alu Inside MD Festverglasung - 80mm 9522

Schüco Living Alu Inside MD Festverglasung - 80mm 9522

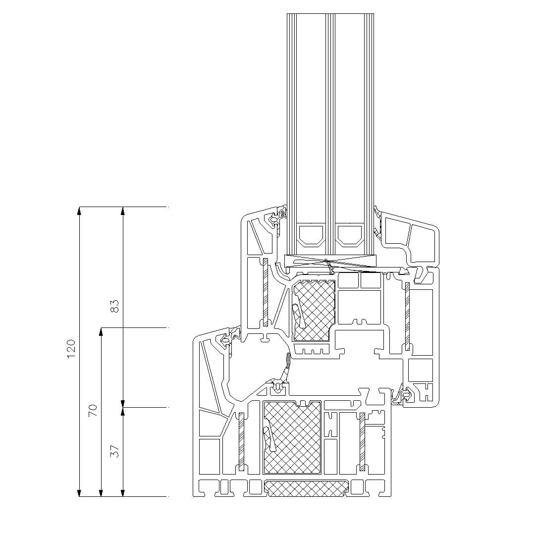
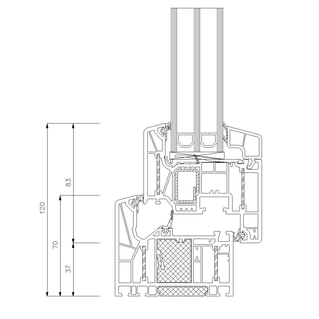
Schüco Living Alu Inside MD - Classic 130mm 9522-9523

Schüco Living Alu Inside MD - Classic 130mm 9522-9523

Schüco Living Alu Inside MD - Classic 130mm 9522-9523 mit Verstärkung

Schüco Living Alu Inside MD - Classic 130mm 9522-9523 mit Verstärkung

Schüco Living Alu Inside MD HI Festverglasung - 80mm 9522

Schüco Living Alu Inside MD HI Festverglasung - 80mm 9522

Schüco Living Alu Inside MD HI - Classic 130mm 9522-9523

Schüco Living Alu Inside MD HI - Classic 130mm 9522-9523

Schüco Living Alu Inside MD HI - Classic 130mm 9522-9523 mit Verstärkung

Schüco Living Alu Inside MD HI - Classic 130mm 9522-9523 mit Verstärkung

Schüco Living Alu Inside MD mit Pfosten 92mm (Schmal)

Schüco Living Alu Inside MD -pfosten-92mm- 9524

Schüco Living Alu Inside MD -pfosten-92mm- 9524

Schüco Living Alu Inside MD 92mm Fenster Classic 83mm - 9524-9523

Schüco Living Alu Inside MD 92mm Fenster Classic 83mm - 9524-9523

Schüco Living Alu Inside MD 92mm Fenster Classic 83mm - 9524-9523 mit Verstärkung

Schüco Living Alu Inside MD 92mm Fenster Classic 83mm - 9524-9523 mit Verstärkung

Schüco Living Alu Inside MD HI -pfosten-92mm- 9524

Schüco Living Alu Inside MD HI -pfosten-92mm- 9524

Schüco Living Alu Inside MD HI 92mm Fenster Classic 83mm - 9524-9523

Schüco Living Alu Inside MD HI 92mm Fenster Classic 83mm - 9524-9523

Schüco Living Alu Inside MD HI 92mm Fenster Classic 83mm - 9524-9523 mit Verstärkung

Schüco Living Alu Inside MD HI 92mm Fenster Classic 83mm - 9524-9523 mit Verstärkung

Kunststofffenster Schüco Living Alu Inside MD mit Stulp 58mm

Schüco Living Alu Inside MD mit Stulp 58mm Fenster Classic 83mm - 9471-9523

Schüco Living Alu Inside MD mit Stulp 58mm Fenster Classic 83mm - 9471-9523

Schüco Living Alu Inside MD mit Stulp 58mm Fenster Classic 83mm - 9471-9523 mit Verstärkung

Schüco Living Alu Inside MD mit Stulp 58mm Fenster Classic 83mm - 9471-9523 mit Verstärkung

Schüco Living Alu Inside MD HI mit Stulp 58mm Fenster Classic 83mm - 9471-9523

Schüco Living Alu Inside MD HI mit Stulp 58mm Fenster Classic 83mm - 9471-9523

Schüco Living Alu Inside MD HI mit Stulp 58mm Fenster Classic 83mm - 9471-9523 mit Verstärkung

Schüco Living Alu Inside MD HI mit Stulp 58mm Fenster Classic 83mm - 9471-9523 mit Verstärkung

Kunststofffenster Living Alu Inside MD mit Stulp (Sonderkonstruktionen auf Anfrage)

Schüco Living Alu Inside MD mit Stulp 74 mm Fenster Classic 83mm - 9472-9523

Schüco Living Alu Inside MD mit Stulp 74 mm Fenster Classic 83mm - 9472-9523



Schüco Living Alu Inside MD mit Stulp 74 mm Fenster Classic 83mm - 9472-9523 mit Verstärkung

Schüco Living Alu Inside MD mit Stulp 74 mm Fenster Classic 83mm - 9472-9523 mit Verstärkung

Schüco Living Alu Inside MD HI mit Stulp 74 mm Fenster Classic 83mm - 9472-9523

Schüco Living Alu Inside MD HI mit Stulp 74 mm Fenster Classic 83mm - 9472-9523



Schüco Living Alu Inside MD HI mit Stulp 74 mm Fenster Classic 83mm - 9472-9523 mit Verstärkung

Schüco Living Alu Inside MD HI mit Stulp 74 mm Fenster Classic 83mm - 9472-9523 mit Verstärkung

Kunststoff Balkontür Schüco Living 82 MD

Schüco Living Alu Inside MD Balkontür Classic mit Blendrahmen 120mm - 9521-9523

Schüco Living Alu Inside MD Balkontür Classic mit Blendrahmen 120mm - 9521-9523



Schüco Living Alu Inside MD Balkontür Classic mit Blendrahmen 120mm - 9521-9523 mit Verstärkung

Schüco Living Alu Inside MD Balkontür Classic mit Blendrahmen 120mm - 9521-9523 mit Verstärkung

Schüco Living Alu Inside MD HI Balkontür Classic mit Blendrahmen 120mm - 9521-9523

Schüco Living Alu Inside MD HI Balkontür Classic mit Blendrahmen 120mm - 9521-9523

Schüco Living Alu Inside MD HI Balkontür Classic mit Blendrahmen 120mm - 9521-9523 mit Verstärkung

Schüco Living Alu Inside MD HI Balkontür Classic mit Blendrahmen 120mm - 9521-9523 mit Verstärkung

Zusatzprofile für Schüco Living 82 Querschnitte

Kunststoff Sprossenarten - Schüco Living 82

Innenliegende SZR Sprossen / Helima Sprossen

Drutex Iglo SZR Sprosse 8mm

Innenliegende Sprosse 8mm

Drutex Iglo SZR Sprosse 18mm

Innenliegende Sprosse 18mm

Drutex Iglo SZR Sprosse 26mm

Innenliegende Sprosse 26mm

Drutex Iglo SZR Sprosse 45mm

Innenliegende Sprosse 45mm

Aufgesetzte / Aufgeklebte Sprossen

Schüco 9182 - aufgesetzte Sprossen - 27mm

9182 - aufgesetzte Sprossen - 27mm

Schüco 9183 - aufgesetzte Sprossen - 34mm

9183 - aufgesetzte Sprossen - 34mm

Schüco 9184 - aufgesetzte Sprossen - 45mm

9184 - aufgesetzte Sprossen - 45mm

Schüco 9185 - aufgesetzte Sprossen - 65mm

9185 - aufgesetzte Sprossen - 65mm

Glasteilende Sprossen - Kämpfer

Schüco Living 82 MD Pfosten- 92mm- 9465

Schüco Living 82 MD Kämpfer-Sprosse 92mm- 9465

Schüco Living 82 MD Pfosten-112mm - 9466

Schüco Living 82 MD Kämpfer-Sprosse 112mm - 9466

Kunststoff Anschlussprofile - Schüco Living 82

Kunststoff Bankanschlussprofile (Basisprofile)

8674 - Basis- und Transportschutzprofil 30mm

8674 - Basis- und Transportschutzprofil 30mm

8479 - Basisprofil 30mm (Breite: 45mm)

8479 - Basisprofil 30mm (Breite: 45mm)

8441 - Basisprofil 30mm (Breite: 31mm)

8441 - Basisprofil 30mm (Breite: 31mm)

8033 - Basisprofil 30mm (Breite: 20mm)

8033 - Basisprofil 30mm (Breite: 20mm)

8299 - Basisprofil 30mm (Breite: 46mm)

8299 - Basisprofil 30mm (Breite: 46mm)

Weitere Kunststoff Bankanschlussprofile (Basisprofile)

8274- Basisprofil-55mm-35mm

8274- Basisprofil-55mm-35mm

8390-Basisprofil-60mm-64mm-4k

8390-Basisprofil-60mm-64mm-4k

8896-Basisprofil-60mm-100mm-3k

8896-Basisprofil-60mm-100mm-3k

9227-Basisprofil-70mm-120mm

9227-Basisprofil-70mm-120mm

9229-Basisprofil-7mm-40mm-4k

9229-Basisprofil-7mm-40mm-4k

9270- Basisprofil- 15mm- 30mm

9270- Basisprofil- 15mm- 30mm

Kunststoff Anschlussprofile (bündig)

8839 - Anschlussprofil 15-20 mm

8839 - Anschlussprofil 20 mm

8759 - Anschlussprofil 12,5-35 mm

8759 - Anschlussprofil 35 mm

8769 - Anschlußprofil 12,5 50mm

8769 - Anschlussprofil 50mm

Kunststoff Anschlussprofile (versetzt)

9213 - Anschlussprofil 12,5 25mm

9213 - Anschlussprofil 25mm (versetzt)

9214 - Anschlussprofil 12,5 50mm

9214 - Anschlussprofil 50mm (versetzt)

Kunststoff Fensterbank-Anschlussprofile

7112-Fensterbankprofil-157mm-37mm

7112-Fensterbankprofil-157mm-37mm

Kunststoff Rahmenverbreiterung - Schüco Living 82 MD

9366-festverglasung-blendrahmenverbreiterung 15mm

9366-Blendrahmenverbreiterung 15mm

9367- Blendrahmenverbreiterung 30mm mit Verstärkung

9367- Blendrahmenverbreiterung 30mm mit Verstärkung

9368- Blendrahmenverbreiterung 50mm mit Verstärkung

9368- Blendrahmenverbreiterung 50mm mit Verstärkung

Kunststoff Kopplungen - Schüco Living 82 MD

7609 - Federkopplung

7609 - Federkopplung

8423 - H - Kopplung 15-17 5mm

8423 - H - Kopplung universal 5mm


9160 - H - Kopplung - 89-5-20 2mm

9150 - H-Kopplung für 70mm Profil 2mm

9150 - H-Kopplung - 89-5-20 5mm

9150 - H-Kopplung für 70mm Profil 5mm

9212 - Statik-Kopplung 106-5-42 30mm

9212 - Statik-Kopplung 30mm

9212 - Statik-Kopplung 106-5-42 30mm (bündig)

9212 - Statik-Kopplung 30mm (bündig)

9190 - Statikpfosten 116-70 39mm (eckige glasleiste)

9190 - Statikpfosten 39mm (eckige glasleiste)


9190 - Statikpfosten 116-70 55mm (eckige glasleiste)

9190 - Statikpfosten 55mm (eckige glasleiste)

Kopplungsprofile 22mm - Kombinationen und Varianten

9280-9281-82-9411- Kopplungsprofile-22mm

9280-9281-82- Kopplungsprofile-22mm


9280-9282-82-9411- Kopplungsprofile-22mm

9280-9282-82- Kopplungsprofile-22mm


9280-9283-82- Kopplungsprofile-22mm

9280-9283-82- Kopplungsprofile-22mm

9281-9280-82- Kopplungsprofile-22mm

9281-9280-82- Kopplungsprofile-22mm

9281-9281-82- Kopplungsprofile-22mm

9281-9281-82- Kopplungsprofile-22mm

9281-9282-82- Kopplungsprofile-22mm

9281-9282-82- Kopplungsprofile-22mm

9281-9283-82- Kopplungsprofile-22mm

9281-9283-82- Kopplungsprofile-22mm

9282-9280-82- Kopplungsprofile-22mm

9282-9280-82- Kopplungsprofile-22mm

9282-9281-82- Kopplungsprofile-22mm

9282-9281-82- Kopplungsprofile-22mm

9282-9282-82- Kopplungsprofile-22mm

9282-9282-82- Kopplungsprofile-22mm

9282-9283-82- Kopplungsprofile-22mm

9282-9283-82- Kopplungsprofile-22mm

9283-9280-82- Kopplungsprofile-22mm

9283-9280-82- Kopplungsprofile-22mm

9283-9281-82- Kopplungsprofile-22mm

9283-9281-82- Kopplungsprofile-22mm

9283-9282-82- Kopplungsprofile-22mm

9283-9282-82- Kopplungsprofile-22mm

9283-9283-82- Kopplungsprofile-22mm

9283-9283-82- Kopplungsprofile-22mm

Kopplung von Eck-Elementen - 90° und Variabel

19831-82 - Eckkopplung - 90 Grad variable

19831-82 - Eckkopplung - 90 Grad variable

8485 - Eckkopplung - 90 Grad aussenecke

8485 - Eckkopplung - 90 Grad aussenecke

8485 - Eckkopplung - 90 Grad innenecke

8485 - Eckkopplung - 90 Grad innenecke

Kunststoff Abdeckleisten - Schüco Living 82

Schuco kozijnen en deuren op maat

Configureer en bestel eenvoudig en comfortabel Schüco ramen en deuren online bij kozijnenblik.nl

Das könnte Sie auch interessieren:

Kunststofffenster Schüco Living 82 MD

Detailzeichnungen Kunststofffenster Schüco Living 82 MD

Schüco Living 82 MD besitzen eine Bautiefe (Rahmen) von 82mm.

Detailzeichnungen Schüco Living 82 MD

Kunststofffenster Schüco CT-70

Detailzeichnungen Kunststofffenster Schüco CT-70

Kunststofffenster Schüco CT-70 besitzen eine Bautiefe (Rahmen) von 70mm.

Detailzeichnungen Schüco CT-70