Detailzeichnungen Schüco Living 82 MD

Kunststofffensterprofil Schüco Living 82 MD Querschnitte

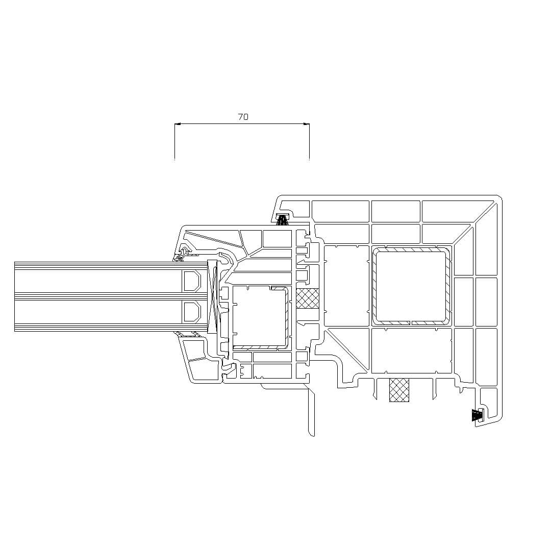
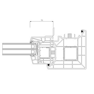
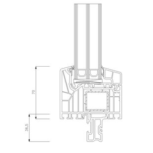
Schüco Living 82 MD  Festverglasung-70mm - 9411

Schüco Living 82 MD  Festverglasung-70mm - 9411

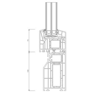
Schüco Living 82 MD Fenster - Classic 120mm  9411-9431

Schüco Living 82 MD Fenster - Classic 120mm  9411-9431

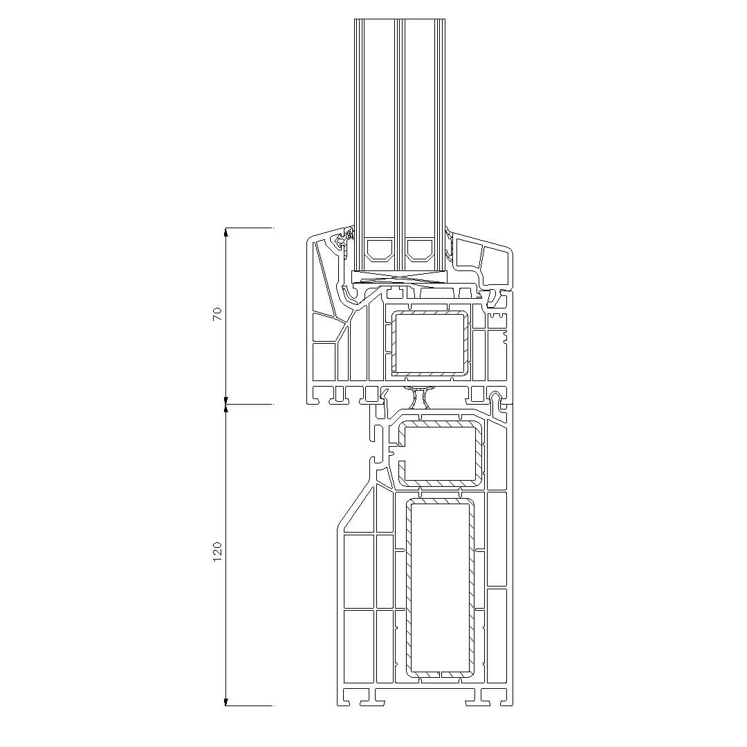
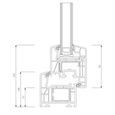
Schüco Living 82 MD Fenster - Rondo 120mm 9411-9441

Schüco Living 82 MD Fenster - Rondo 120mm 9411-9441

Kunststofffenster Schüco Schüco Living 82 MD mit Türrahmen ( 9412 und 9413)

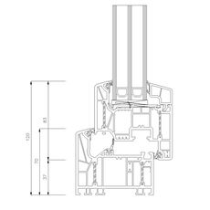
Schüco Livling 82 MD Festverglasung - 80mm 9412

Schüco Livling 82 MD Festverglasung - 80mm 9412

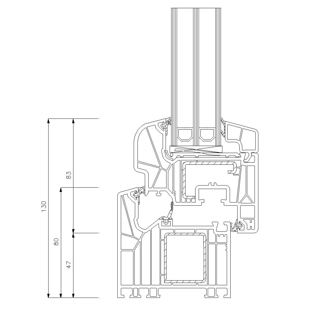
Schüco Livling 82 MD - Classic 130mm  9412-9431

Schüco Livling 82 MD - Classic 130mm  9412-9431

Schüco Livling 82 MD - Rondo 130mm 9412-9441

Schüco Livling 82 MD - Rondo 130mm 9412-9441

Schüco Livling 82 MD Festverglasung - 90mm 9413

Schüco Livling 82 MD Festverglasung - 90mm 9413

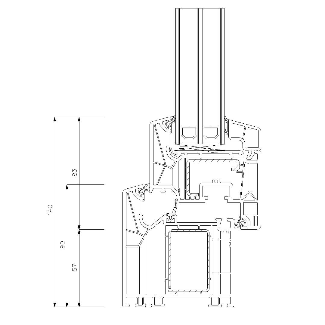
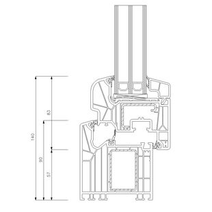
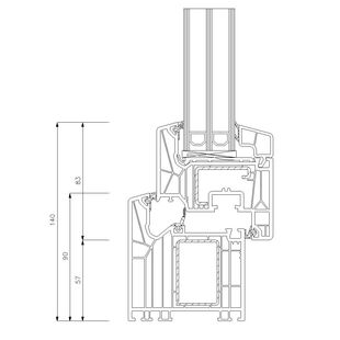
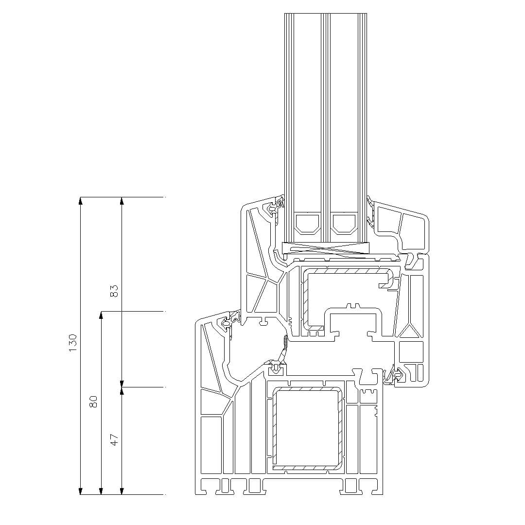
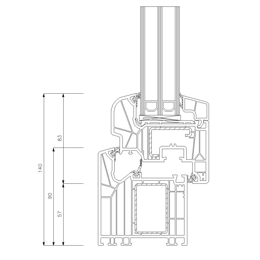
Schüco Livling 82 MD - Classic 140mm 9413-9431

Schüco Livling 82 MD - Classic 140mm 9413-9431

Schüco Livling 82 MD - Rondo 140mm 9413-9441

Schüco Livling 82 MD - Rondo 140mm 9413-9441

Schüco Living 82 MD mit Pfosten 92mm (Schmal)

Schüco Living 82 MD  Pfosten- 92mm- 9465

Schüco Living 82 MD  Pfosten- 92mm- 9465

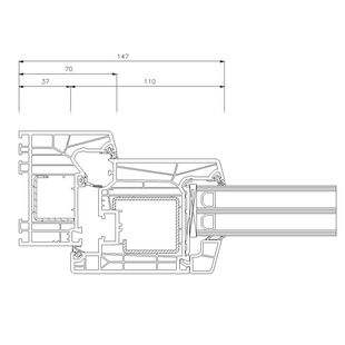
Schüco Living 82 MD  92mm Fenster Classic 83mm - 9465-9431

Schüco Living 82 MD  92mm Fenster Classic 83mm - 9465-9431

Schüco CT-70 AS Pfosten 92 mm Fenster Rondo 83mm - 9465-9441

Schüco CT-70 AS Pfosten 92 mm Fenster Rondo 83mm - 9465-9441

Schüco Living 82 MD mit Pfosten 112mm (Breit - Große Konstruktionen)

Schüco Living 82 MD Pfosten-112mm - 9466

Schüco Living 82 MD Pfosten-112mm - 9466

Schüco Living 82 MD 112mm Fenster Classic 83mm - 9466-9431

Schüco Living 82 MD 112mm Fenster Classic 83mm - 9466-9431

Schüco Living 82 MD 112mm Fenster Rondo 83mm - 9466-9441

Schüco Living 82 MD 112mm Fenster Rondo 83mm - 9466-9441

Kunststofffenster Schüco Living 82 MD mit Stulp 58mm

Schüco Living 82 MD  mit Stulp 58mm Fenster Classic 83mm - 9471-9431

Schüco Living 82 MD  mit Stulp 58mm Fenster Classic 83mm - 9471-9431


Schüco Living 82 MD  mit Stulp 58mm Fenster Rondo 83mm - 9471-9441

Schüco Living 82 MD  mit Stulp 58mm Fenster Rondo 83mm - 9471-9441

Kunststofffenster Schüco Schüco Living 82 MD mit Stulp (Sonderkonstruktionen auf Anfrage)

Schüco Living 82 MD  Stulp 74 mm Fenster Classic 83mm - 9472-9431

Schüco Living 82 MD  Stulp 74 mm Fenster Classic 83mm - 9472-9431



Schüco Living 82 MD  Stulp 74 mm Fenster Rondo 83mm - 9471-9441

Schüco Living 82 MD  Stulp 74 mm Fenster Rondo 83mm - 9471-9441

Schüco Living 82 MD  Stulp 74 mm Klebefluegel Fenster  83mm - 9472-9438

Schüco Living 82 MD  Stulp 74 mm Klebefluegel Fenster  83mm - 9472-9438



Kunststoff Balkontür Schüco Living 82 MD

Schüco Living 82 MD Balkontür Classic mit Blendrahmen 120mm - 9411-9431

Schüco Living 82 MD Balkontür Classic mit Blendrahmen 120mm - 9411-9431



Schüco Living 82 MD Balkontürschwelle 20mm Classic 83mm - 9431

Schüco Living 82 MD Balkontürschwelle 20mm Classic 83mm - 9431

Schüco Living 82 MD Fenster - Rondo 120mm 9411-9441

Schüco Living 82 MD Balkontür Rondo mit Blendrahmen 120mm - 9411-9441

Schüco Living 82 MD Balkontürschwelle 20mm Rondo 83mm - 9441

Schüco Living 82 MD Balkontürschwelle 20mm Rondo 83mm - 9441

Kunststoff Terrassenflügel Schüco Living 82 MD

Schüco Living 82 MD  Terassentür innen öffnend mit Blendrahmen Classic - 9411-9432

Schüco Living 82 MD  Terassentür innen öffnend mit Blendrahmen Classic - 9411-9432

Schüco Living 82 MD Terassentürschwelle 20mm innen öffnend Classic - 9432

Schüco Living 82 MD Terassentürschwelle 20mm innen öffnend Classic - 9432

Schüco Living 82 MD Pfosten 94mm Terassentür innen öffnend Classic - 9465-9432

Schüco Living 82 MD Pfosten 94mm Terassentür innen öffnend Classic - 9465-9432

Terrassenflügel Schüco Living 82 MD mit Stulp 74mm

Schüco Living 82 MD Stulp 74mm Terassentür innen öffnend Classic- 9472-9432

Schüco Living 82 MD Stulp 74mm Terassentür innen öffnend Classic- 9472-9432

Kunststoff Schüco Living 82 MD PSK Parallel-Schiebe-Kipp-Tür

Kunststoff Nebentür Schüco Living 82 MD

Schüco Living 82 MD  Nebentür innen öffnend - 9421-9432

Schüco Living 82 MD  Nebentür innen öffnend - 9421-9432

Schüco Living 82 MD Nebentürschwelle 20mm innen öffnend - 9432

Schüco Living 82 MD Nebentürschwelle 20mm innen öffnend - 9432

Kunststoff Haustür Schüco Living 82 MD

Schüco Living 82 MD Tür innen öffnend - 9422-9433

Schüco Living 82 MD Tür innen öffnend - 9422-9433

Schüco Living 82 MDS Türschwelle 20mm innen öffnend - 9433

Schüco Living 82 MDS Türschwelle 20mm innen öffnend - 9433

Schüco Living 82 MD Pfosten 112mm Tür innen öffnend Classic 9462-9433

Schüco Living 82 MD Pfosten 112mm Tür innen öffnend Classic 9462-9433



Türflügel Schüco Living 82 MD mit Stulp 74mm

Schüco Living 82 MD Stulp 74mm Tür innen öffnend - 9473-9433

Schüco Living 82 MD Stulp 74mm Tür innen öffnend - 9473-9433

Zusatzprofile für Schüco Living 82 Querschnitte

Kunststoff Sprossenarten - Schüco Living 82

Innenliegende SZR Sprossen / Helima Sprossen

Drutex Iglo SZR Sprosse 8mm

Innenliegende Sprosse 8mm

Drutex Iglo SZR Sprosse 18mm

Innenliegende Sprosse 18mm

Drutex Iglo SZR Sprosse 26mm

Innenliegende Sprosse 26mm

Drutex Iglo SZR Sprosse 45mm

Innenliegende Sprosse 45mm

Aufgesetzte / Aufgeklebte Sprossen

Schüco 9182 - aufgesetzte Sprossen - 27mm

9182 - aufgesetzte Sprossen - 27mm

Schüco 9183 - aufgesetzte Sprossen - 34mm

9183 - aufgesetzte Sprossen - 34mm

Schüco 9184 - aufgesetzte Sprossen - 45mm

9184 - aufgesetzte Sprossen - 45mm

Schüco 9185 - aufgesetzte Sprossen - 65mm

9185 - aufgesetzte Sprossen - 65mm

Glasteilende Sprossen - Kämpfer

Schüco Living 82 MD Pfosten- 92mm- 9465

Schüco Living 82 MD Kämpfer-Sprosse 92mm- 9465

Schüco Living 82 MD Pfosten-112mm - 9466

Schüco Living 82 MD Kämpfer-Sprosse 112mm - 9466

Kunststoff Anschlussprofile - Schüco Living 82

Kunststoff Bankanschlussprofile (Basisprofile)

8674 - Basis- und Transportschutzprofil 30mm

8674 - Basis- und Transportschutzprofil 30mm

8479 - Basisprofil 30mm (Breite: 45mm)

8479 - Basisprofil 30mm (Breite: 45mm)

8441 - Basisprofil 30mm (Breite: 31mm)

8441 - Basisprofil 30mm (Breite: 31mm)

8033 - Basisprofil 30mm (Breite: 20mm)

8033 - Basisprofil 30mm (Breite: 20mm)

8299 - Basisprofil 30mm (Breite: 46mm)

8299 - Basisprofil 30mm (Breite: 46mm)

Weitere Kunststoff Bankanschlussprofile (Basisprofile)

8274- Basisprofil-55mm-35mm

8274- Basisprofil-55mm-35mm

8390-Basisprofil-60mm-64mm-4k

8390-Basisprofil-60mm-64mm-4k

8896-Basisprofil-60mm-100mm-3k

8896-Basisprofil-60mm-100mm-3k

9227-Basisprofil-70mm-120mm

9227-Basisprofil-70mm-120mm

9229-Basisprofil-7mm-40mm-4k

9229-Basisprofil-7mm-40mm-4k

9270- Basisprofil- 15mm- 30mm

9270- Basisprofil- 15mm- 30mm

Kunststoff Anschlussprofile (bündig)

8839 - Anschlussprofil 15-20 mm

8839 - Anschlussprofil 20 mm

8759 - Anschlussprofil 12,5-35 mm

8759 - Anschlussprofil 35 mm

8769 - Anschlußprofil 12,5 50mm

8769 - Anschlussprofil 50mm

Kunststoff Anschlussprofile (versetzt)

9213 - Anschlussprofil 12,5 25mm

9213 - Anschlussprofil 25mm (versetzt)

9214 - Anschlussprofil 12,5 50mm

9214 - Anschlussprofil 50mm (versetzt)

Kunststoff Fensterbank-Anschlussprofile

7112-Fensterbankprofil-157mm-37mm

7112-Fensterbankprofil-157mm-37mm

Kunststoff Rahmenverbreiterung - Schüco Living 82 MD

9366-festverglasung-blendrahmenverbreiterung 15mm

9366-Blendrahmenverbreiterung 15mm

9367- Blendrahmenverbreiterung 30mm mit Verstärkung

9367- Blendrahmenverbreiterung 30mm mit Verstärkung

9368- Blendrahmenverbreiterung 50mm mit Verstärkung

9368- Blendrahmenverbreiterung 50mm mit Verstärkung

Kunststoff Kopplungen - Schüco Living 82 MD

7609 - Federkopplung

7609 - Federkopplung

8423 - H - Kopplung 15-17 5mm

8423 - H - Kopplung universal 5mm


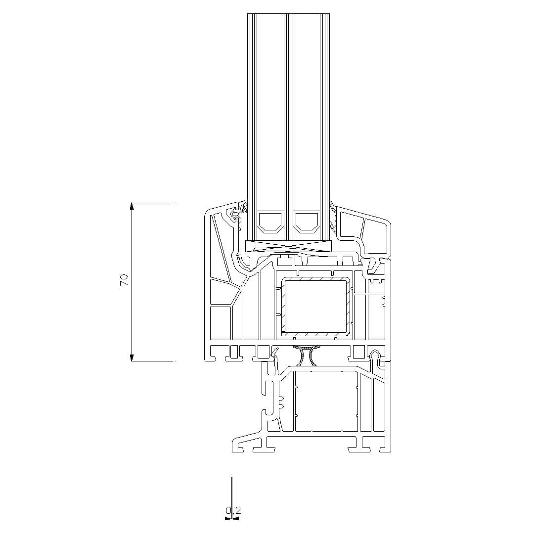
9160 - H - Kopplung - 89-5-20 2mm

9150 - H-Kopplung für 70mm Profil 2mm

9150 - H-Kopplung - 89-5-20 5mm

9150 - H-Kopplung für 70mm Profil 5mm

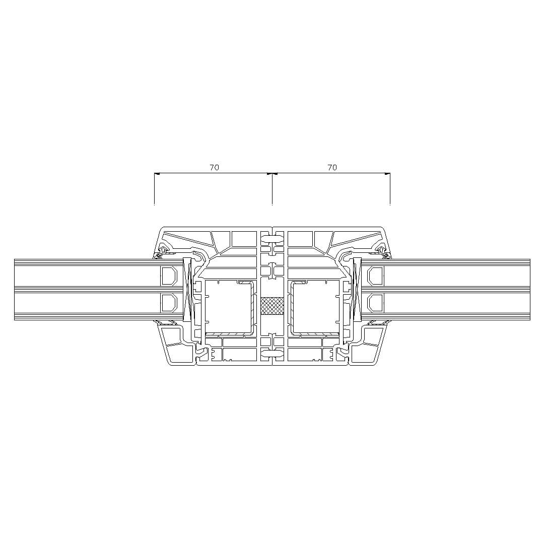
9212 - Statik-Kopplung 106-5-42 30mm

9212 - Statik-Kopplung 30mm

9212 - Statik-Kopplung 106-5-42 30mm (bündig)

9212 - Statik-Kopplung 30mm (bündig)

9190 - Statikpfosten 116-70 39mm (eckige glasleiste)

9190 - Statikpfosten 39mm (eckige glasleiste)


9190 - Statikpfosten 116-70 55mm (eckige glasleiste)

9190 - Statikpfosten 55mm (eckige glasleiste)

Kopplungsprofile 22mm - Kombinationen und Varianten

9280-9281-82-9411- Kopplungsprofile-22mm

9280-9281-82- Kopplungsprofile-22mm


9280-9282-82-9411- Kopplungsprofile-22mm

9280-9282-82- Kopplungsprofile-22mm


9280-9283-82- Kopplungsprofile-22mm

9280-9283-82- Kopplungsprofile-22mm

9281-9280-82- Kopplungsprofile-22mm

9281-9280-82- Kopplungsprofile-22mm

9281-9281-82- Kopplungsprofile-22mm

9281-9281-82- Kopplungsprofile-22mm

9281-9282-82- Kopplungsprofile-22mm

9281-9282-82- Kopplungsprofile-22mm

9281-9283-82- Kopplungsprofile-22mm

9281-9283-82- Kopplungsprofile-22mm

9282-9280-82- Kopplungsprofile-22mm

9282-9280-82- Kopplungsprofile-22mm

9282-9281-82- Kopplungsprofile-22mm

9282-9281-82- Kopplungsprofile-22mm

9282-9282-82- Kopplungsprofile-22mm

9282-9282-82- Kopplungsprofile-22mm

9282-9283-82- Kopplungsprofile-22mm

9282-9283-82- Kopplungsprofile-22mm

9283-9280-82- Kopplungsprofile-22mm

9283-9280-82- Kopplungsprofile-22mm

9283-9281-82- Kopplungsprofile-22mm

9283-9281-82- Kopplungsprofile-22mm

9283-9282-82- Kopplungsprofile-22mm

9283-9282-82- Kopplungsprofile-22mm

9283-9283-82- Kopplungsprofile-22mm

9283-9283-82- Kopplungsprofile-22mm

Kopplung von Eck-Elementen - 90° und Variabel

19831-82 - Eckkopplung - 90 Grad variable

19831-82 - Eckkopplung - 90 Grad variable

8485 - Eckkopplung - 90 Grad aussenecke

8485 - Eckkopplung - 90 Grad aussenecke

8485 - Eckkopplung - 90 Grad innenecke

8485 - Eckkopplung - 90 Grad innenecke

Kunststoff Abdeckleisten - Schüco Living 82

Schuco kozijnen en deuren op maat

Configureer en bestel eenvoudig en comfortabel Schüco ramen en deuren online bij kozijnenblik.nl

Das könnte Sie auch interessieren:

Kunststofffenster Schüco Living Alu Inside MD

Detailzeichnungen Kunststofffenster Schüco LivIng 82 Alu Inside

Kunststofffenster Schüco Living Alu Inside MD besitzen eine Bautiefe (Rahmen) von 82mm.

Detailzeichnungen Schüco Living Alu Inside MD

Kunststofffenster Schüco CT-70

Detailzeichnungen Kunststofffenster Schüco CT-70

Kunststofffenster Schüco CT-70 besitzen eine Bautiefe (Rahmen) von 70mm.

Detailzeichnungen Schüco CT-70