Detailzeichnungen Vorbaurollladen Drutex RA

Inhaltsverzeichnis:

Drutex Vorbaurollladen Kastenformen Querschnitte

Vorbaurollladen SK 45° mit Kastenhöhe 137mm

Vorbaurollladen SK (45°) 137mm

Vorbaurollladen SK 45° mit Kastenhöhe 165mm

Vorbaurollladen SK (45°) 165mm

Vorbaurollladen SK 45° mit Kastenhöhe 180mm

Vorbaurollladen SK (45°) 180mm

Vorbaurollladen SP 90° mit Kastenhöhe 137mm

Vorbaurollladen SP (90°) 137mm

Vorbaurollladen SP 90° mit Kastenhöhe 165mm

Vorbaurollladen SP (90°) 165mm

Vorbaurollladen SP 90° mit Kastenhöhe 180mm

Vorbaurollladen SP (90°) 180mm

Vorbaurollladen SKO Rund mit Kastenhöhe 137mm

Vorbaurollladen SKO (Rund) 137mm

Vorbaurollladen SKO Rund mit Kastenhöhe 165mm

Vorbaurollladen SKO (Rund) 165mm

Vorbaurollladen SKO Rund mit Kastenhöhe 180mm

Vorbaurollladen SKO (Rund) 180mm

Drutex Vorbaurollladen Kastenformen mit Insektenschutz

Vorbaurollladen SK 45° mit Insektenschutz Detail

Vorbaurollladen SK (45°) mit Insektenschutz

Vorbaurollladen SP 90° mit Insektenschutz Detail

Vorbaurollladen SP (90°) mit Insektenschutz

Drutex Vorbaurollladen Einzelteile

Führungsschienen für Vorbaurollladen

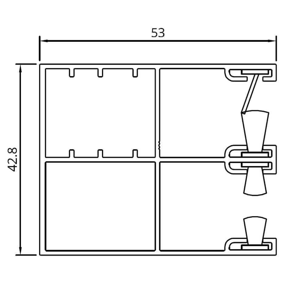
Vorbaurollladen Führungsschiene 53mm Detail

Vorbaurollladen Führungsschiene 53mm (Mini)

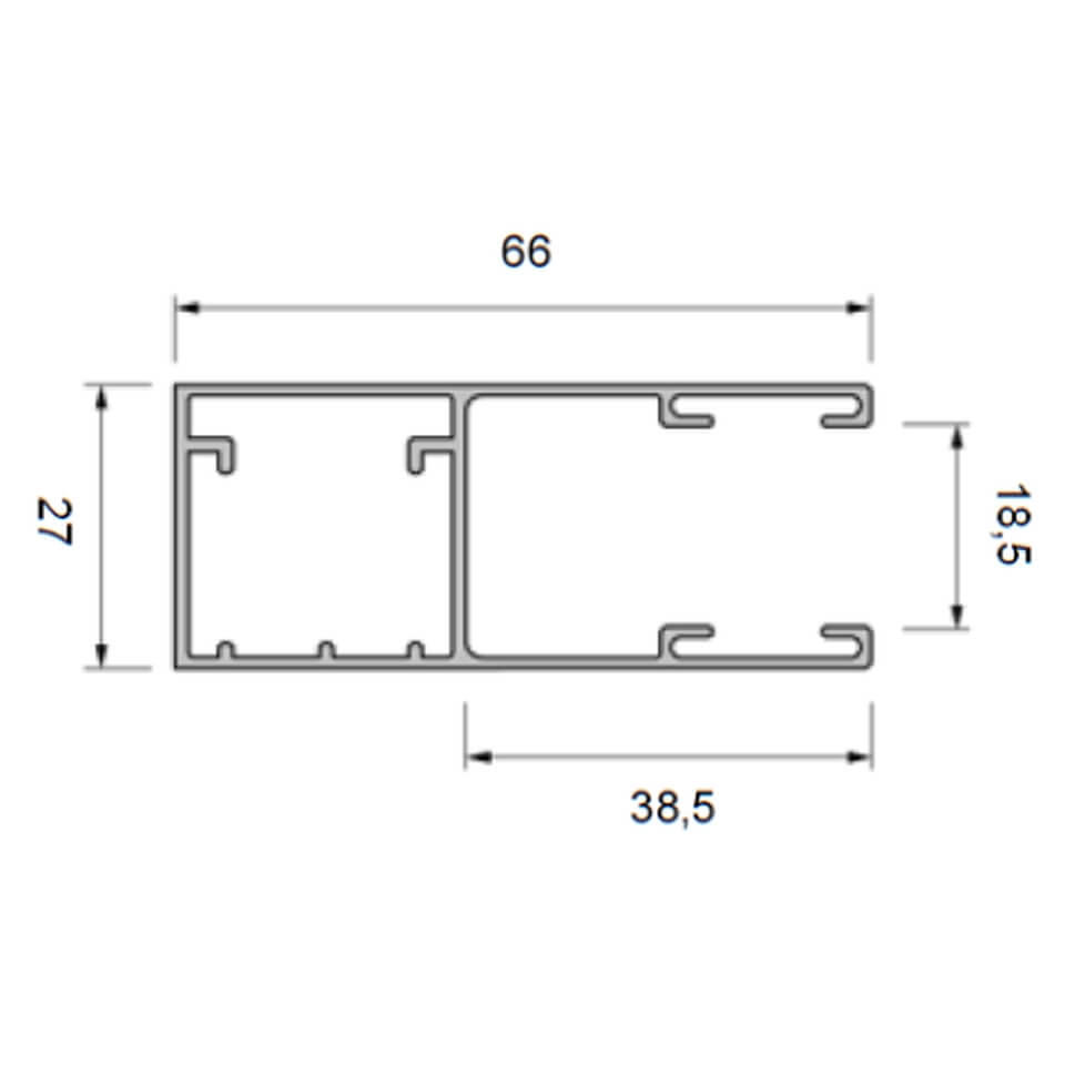
Vorbaurollladen Führungsschiene 66mm Detail

Vorbaurollladen Führungsschiene 66mm (Maxi)

Vorbaurollladen Führungsschiene Doppel 79mm Detail

Vorbaurollladen doppelte Führungsschiene 79mm

Vorbaurollladen Führungsschiene Eck 53mm Detail

Vorbaurollladen Eck-Führungsschiene 53mm (Montage am Anschlag)

Vorbaurollladen Führungsschiene mit Insektenschutz 53mm Detail

Vorbaurollladen Führungsschiene mit Insektenschutz 53mm

Putzträger Aluminiumleisten und Zusätze

Vorbaurollladen Aluminiumleiste und Putzträger L01 Detail

Vorbaurollladen Putzträger Aluminiumleiste L01

Vorbaurollladen Aluminiumleiste und Putzträger L02 Detail

Vorbaurollladen Putzträger Aluminiumleiste L02

Vorbaurollladen Aluminiumleiste und Putzträger L03 Detail

Vorbaurollladen Putzträger Aluminiumleiste L03

Vorbaurollladen Abstandshalter aus Aluminium Detail

Vorbaurollladen Aluminium Abstandshalter

Rollladenpanzer Lamellen

Rollladen Lamelle 37 Detail Querschnitt

Rollladenpanzer Lamelle 37mm

Rollladen Lamelle 42 Detail Querschnitt

Rollladenpanzer Lamelle 42mm

Rollladen Lamelle 55 Detail Querschnitt

Rollladenpanzer Lamelle 55mm

Vorbaurollladen Abschlussleisten

Rollladen Abschlussleiste für Aluminium-Panzer Detail

Rollladenpanzer Abschlussleiste

Vorbaurollladen Abschlussleiste für Insektenschutz Detail

Vorbaurollladen Abschlussleiste Insektenschutz

Vorbaurollladen Montagearten

Vorbaurollladen Fensterrahmen Montageschema Detail

Vorbaurollladen Schema für Montage am Fensterrahmen

Vorbaurollladen Aufmass Montage am Fensterrahmen Schema

Vorbaurollladen Aufmaß-Schema für Montage am Fensterrahmen

Vorbaurollladen Mauerwerk Montageschema Detail

Vorbaurollladen Schema für Montage am Mauerwerk

Vorbaurollladen Aufmass Montage am Mauerwerk Schema

Vorbaurollladen Aufmaß-Schema für Montage am Mauerwerk

Führungsschienen Positionen

Vorbaurollladen Führungsschienen Position an Fenster Schema

Führungsschienen an Fenster

Vorbaurollladen Führungsschienen Position Anschlag Schema

Führungsschienen Position Anschlag

Vorbaurollladen Führungsschienen Position Mauerwerk Schema

Führungsschienen an Mauerwerk

Technische Daten - Aufsatzrollladen RN Drutex
Weiter zur Produktseite Drutex Vorbaurollladen

Drutex Fensterlieferung

Kostenlose Lieferung

Ab einer Bestellung von 10 Fenstern deutschlandweit!

Jetzt Angebot für Vorbaurollladen anfordern

Das könnte Sie auch interessieren:

Aufsatzrollladen Drutex RS

Detailzeichnungen Aufsatzrollladen Drutex RS Styropor Kastentiefe 300mm Revision Außen

Aufsatzrollladen Drutex RS für eine optimales Energieeffizienz.

Detailzeichnungen Aufsatzrollladen Drutex RS Styropor

Aufsatzrollladen Drutex RN

Detailzeichnungen Aufsatzrollladen Drutex RN 215mm

Aufsatzrollladen Drutex RN für ein optimales Preis-Leistungsverhältnis.

Detailzeichnungen Aufsatzrollladen Drutex RN