Detailzeichnungen Aufsatzrollladen Drutex RN

Inhaltsverzeichnis:

Drutex Aufsatzrollladen Querschnitte mit Kunststoffprofil Iglo 5

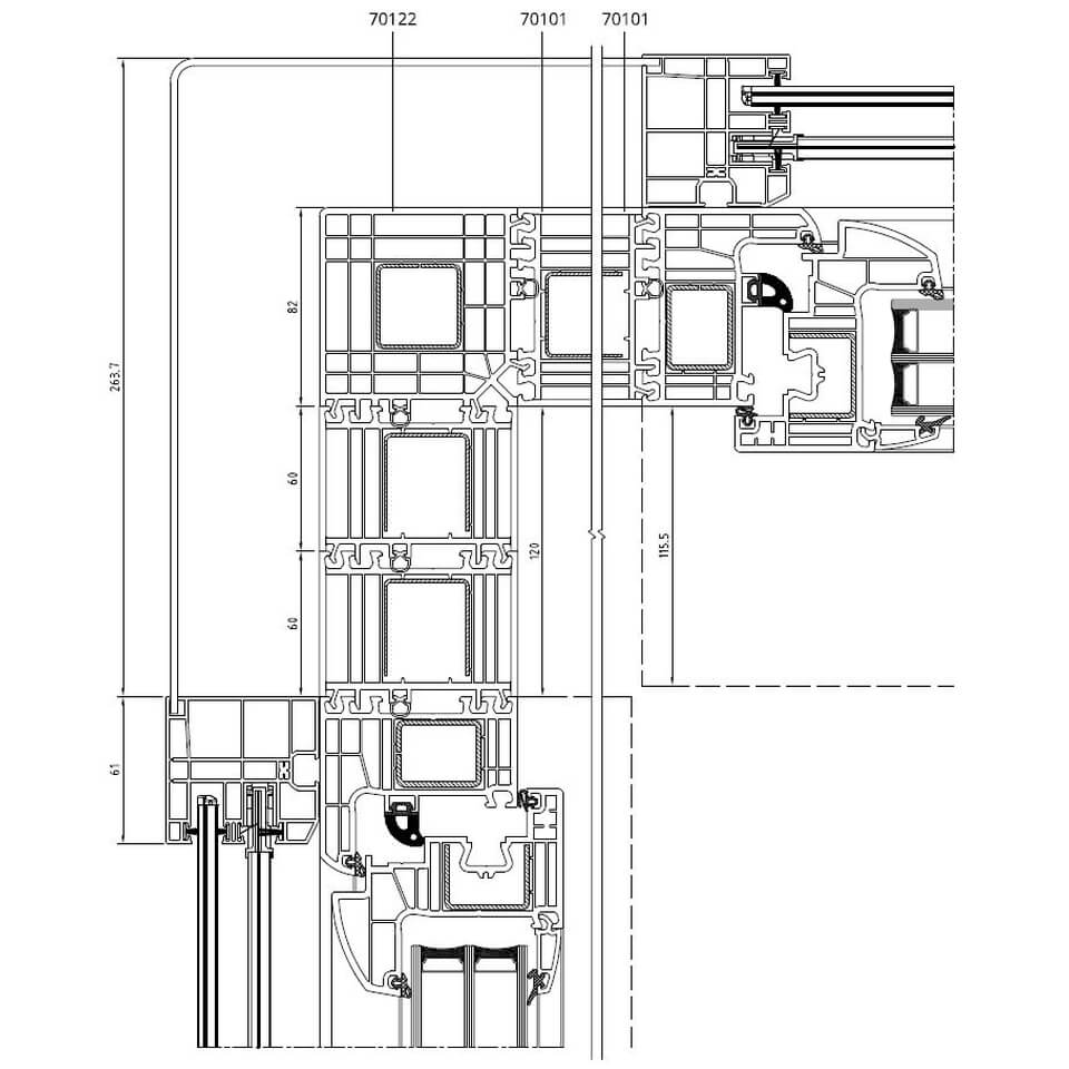
Aufsatzrollladen 215mm mit Iglo 5 Fenster Revision von der Seite

Aufsatzrollladen 215mm Revision von der Seite

Aufsatzrollladen 215mm mit Iglo 5 Fenster Revision von Unten

Aufsatzrollladen 215mm Revision von Unten

Aufsatzrollladen 215mm mit Iglo 5 Parallel-Schiebe-Kipp Tür

Aufsatzrollladen 215mm mit Iglo 5 PSK-Tür

Aufsatzrollladen 215mm mit Iglo 5 Fenster und Insektenschutz Außen

Aufsatzrollladen 215mm mit Insektenschutzgitter Außen

Aufsatzrollladen 215mm mit Iglo 5 Fenster und Insektenschutz Außen

Aufsatzrollladen 215mm mit Insektenschutzgitter Innen

Drutex Aufsatzrollladen Querschnitte mit Profil Iglo Energy

Aufsatzrollladen 215mm mit Iglo Energy Fenster Revision von der Seite

Aufsatzrollladen 215mm Revision von der Seite

Aufsatzrollladen 215mm mit Iglo Energy Fenster Revision von Unten

Aufsatzrollladen 215mm Revision von Unten

Aufsatzrollladen 215mm mit Iglo Energy Parallel-Schiebe-Kipp Tür

Aufsatzrollladen 215mm mit Iglo Energy PSK-Tür

Aufsatzrollladen 215mm mit Iglo Energy Fenster und Insektenschutz Außen

Aufsatzrollladen 215mm mit Insektenschutzgitter Außen

Aufsatzrollladen 215mm mit Iglo Energy Fenster und Insektenschutz Außen

Aufsatzrollladen 215mm mit Insektenschutzgitter Innen

Drutex Aufsatzrollladen Querschnitte für andere Profilsysteme

Aufsatzrollladen 225mm mit Iglo HS Tür Revision von der Seite

Aufsatzrollladen 225mm mit Iglo HS Tür und Revision von der Seite

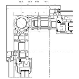
Aufsatzrollladen 225mm mit MB 70 Profil ohne Wetterschenkel

Aufsatzrollladen 225mm mit Alu-Profil MB 70 ohne Wetterschenkel

Aufsatzrollladen 225mm mit MB 86 Profil ohne Wetterschenkel

Aufsatzrollladen 225mm mit Alu-Profil MB 86 ohne Wetterschenkel

Aufsatzrollladen 225mm mit Softline 68 Profil für Holzfenster

Aufsatzrollladen 225mm mit Holzfensterprofil Softline 68

Aufsatzrollladen 225mm mit Softline 78 Profil für Holzfenster

Aufsatzrollladen 225mm mit Holzfensterprofil Softline 78

Aufsatzrollladen 225mm mit Softline 88 Profil für Holzfenster

Aufsatzrollladen 225mm mit Holzfensterprofil Softline 88

Drutex Aufsatzrollladen Einzelteile

Führungsschienen für Aufsatzrollladen

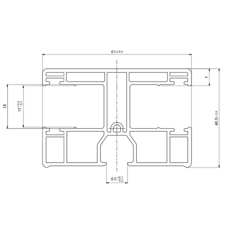
Führungsschiene 61mm für Drutex Aufsatzrollladen Detail

Aufsatzrollladen Führungsschiene 61mm

Führungsschiene Doppel  61mm für Drutex Aufsatzrollladen Detail

Aufsatzrollladen doppelte Führungsschiene 61mm

Führungsschiene Doppel  61mm Maxi für Drutex Aufsatzrollladen 55 Detail

Aufsatzrollladen doppelte Führungsschiene 61mm für Maxipanzer

Führungsschiene mit Insektenschutz 61mm für Drutex Aufsatzrollladen Detail

Aufsatzrollladen Führungsschiene mit Insektenschutz 61mm

Führungsschiene Doppel mit Insektenschutz 61mm für Drutex Aufsatzrollladen Detail

Aufsatzrollladen doppelte Führungsschiene mit Insektenschutz 61mm

Rollladenpanzer Lamellen

Rollladen Lamelle 37 Detail Querschnitt

Rollladenpanzer Lamelle 37mm

Rollladen Lamelle 42 Detail Querschnitt

Rollladenpanzer Lamelle 42mm

Rollladen Lamelle 55 Detail Querschnitt

Rollladenpanzer Lamelle 55mm

Rollladen Abschlussleiste und Abrollprofil

Abschlussleiste für Rollladen Alu Panzer Detailzeichnung

Rollladen Abschlussleiste für Aluminium-Panzer

Abschlussleiste für Aufsatzrollladen mit Insektenschutz Detailzeichnung

Rollladen Abschlussleiste für Insektenschutz

Abrollprofil und Traverse für Aufsatzrollladen Detail

Abrollprofil und Traverse für Aufsatzrollladen

Adapter für Aufsatzrollladen

Aufsatzrollladen Adapter für Iglo 5 und Iglo Light Detail

Aufsatzrollladen Adapter für Iglo 5 und Iglo Light

Aufsatzrollladen Adapter für Iglo Energy Detail

Aufsatzrollladen Adapter für Iglo Energy

Aufsatzrollladen Adapter für andere Profilsysteme Detail

Aufsatzrollladen Adapter für sonstige Profilsysteme

Aufsatzrollladen Führungsschienen mit Iglo 5 Profil

Einseitige Führungsschiene am Iglo 5 Profil

Einseitige Führungsschiene für Aufsatzrollladen am Iglo 5 Profil

Einseitige Führungsschiene mit Insektenschutz am Iglo 5 Profil

Einseitige Führungsschiene mit Insektenschutz am Iglo 5 Profil

Beidseitige Führungsschiene für Aufsatzrollladen am Iglo 5 Profil

Beidseitige Führungsschiene für Aufsatzrollladen am Iglo 5 Profil

Beidseitige Führungsschiene und Insektenschutz am Iglo 5 Profil

Beidseitige Führungsschiene mit Insektenschutz am Iglo 5 Profil

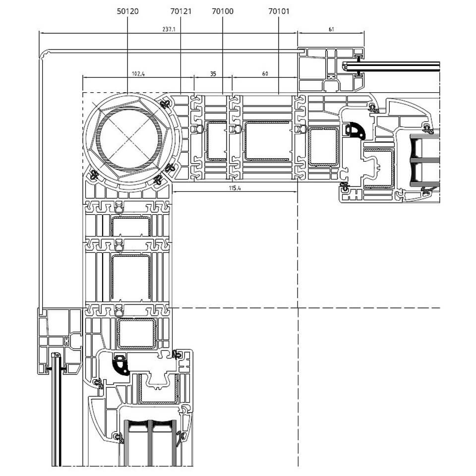
Führungsschienen an Iglo 5 Kopplungsprofilen

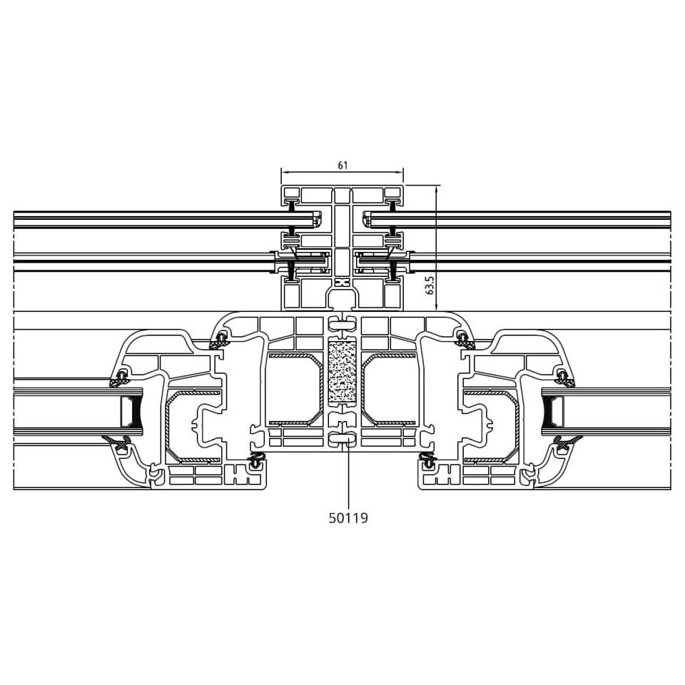
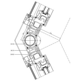
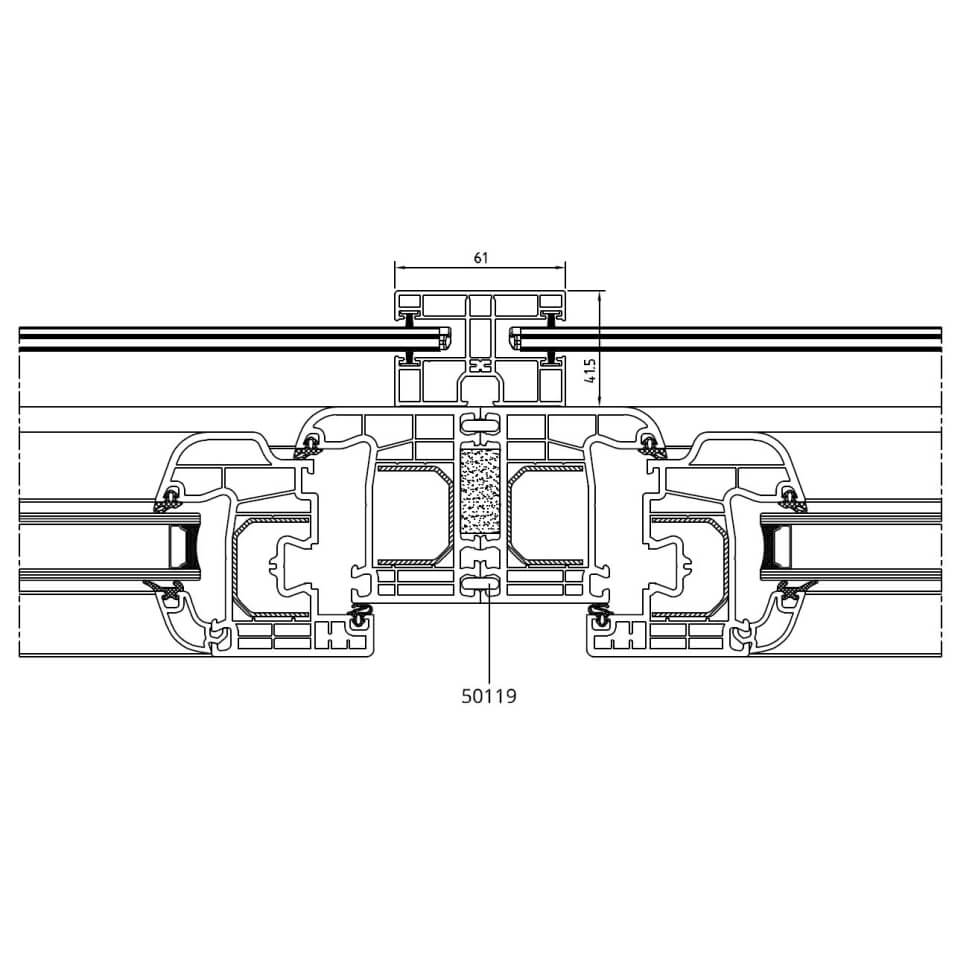
Beidseitige Führungsschiene mit Federkopplung 50119 am Iglo 5 Profil

Beidseitige Führungsschiene mit Federkopplung 50119 am Iglo 5 Profil

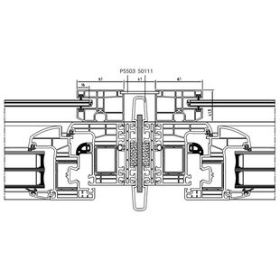
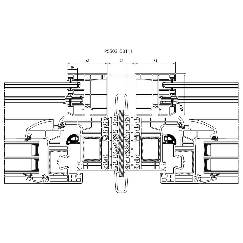
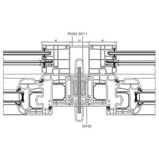
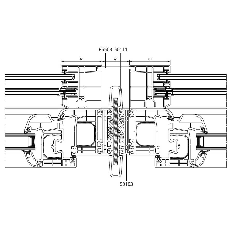
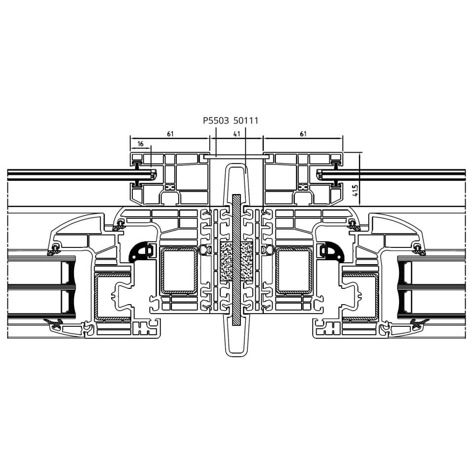
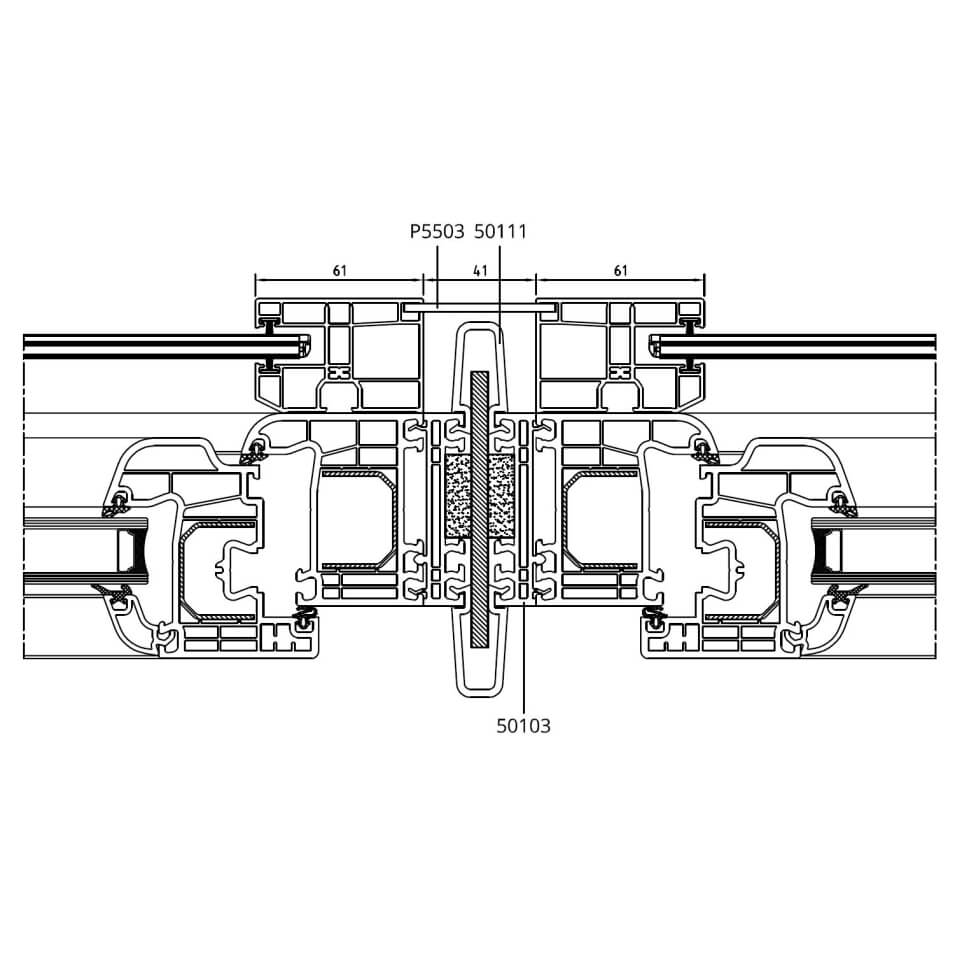
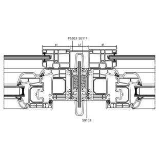
Einseitige Führungsschienen mit staatischer Kopplung 50111 am Iglo 5 Profil

Einseitige Führungsschienen mit staatischer Kopplung 50111

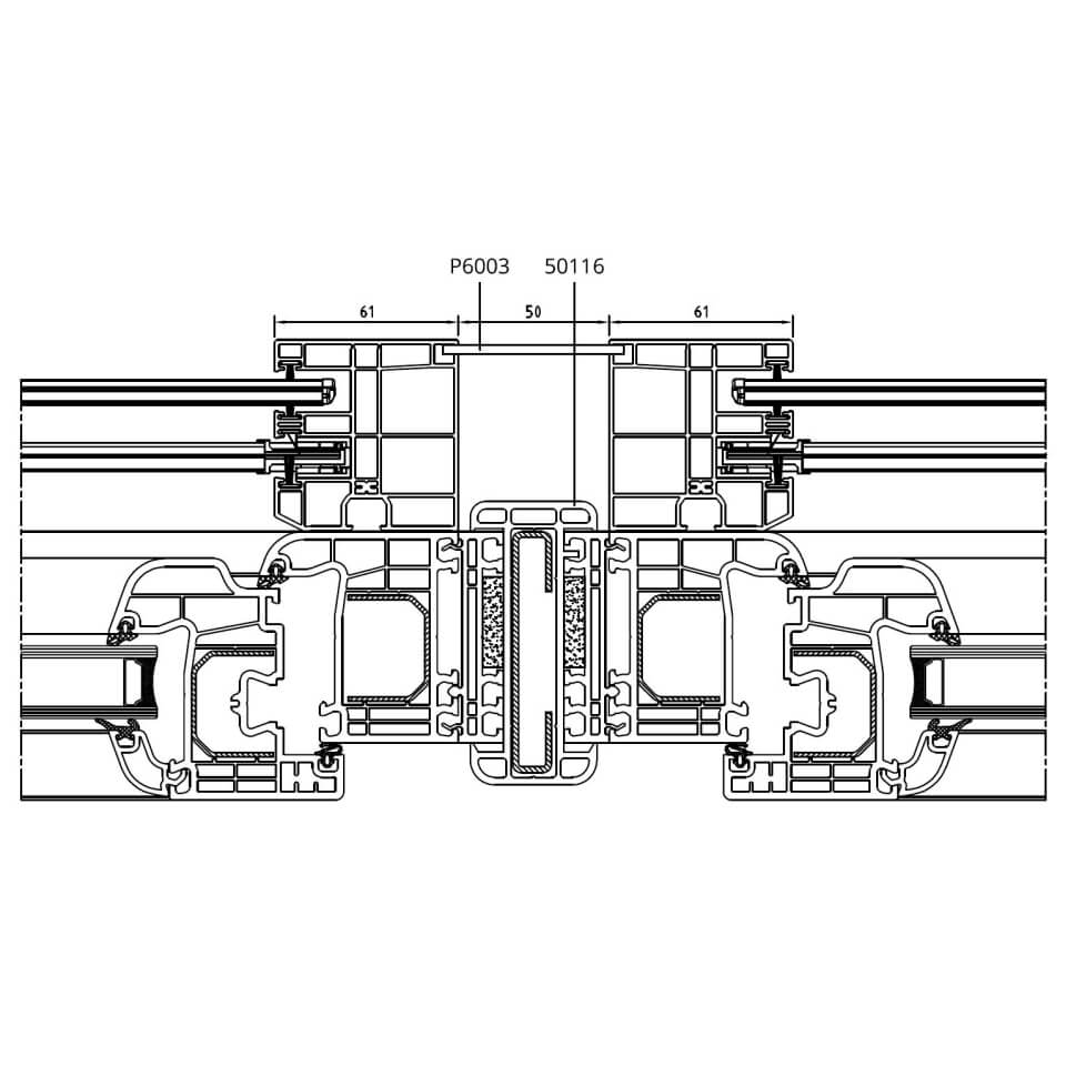
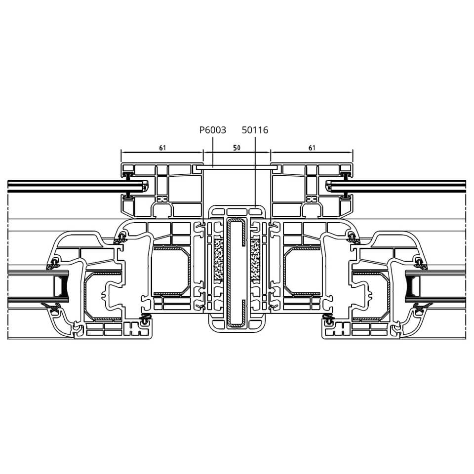
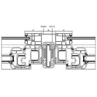
Einseitige Führungsschienen mit staatischer Kopplung 50116 am Iglo 5 Profil

Einseitige Führungsschienen mit staatischer Kopplung 50116

Beidseitige Führungsschiene mit Federkopplung 50119 und Insektenschutz am Iglo 5 Profil

Beidseitige Führungsschiene mit Insektenschutz und Federkopplung

Einseitige Führungsschienen mit Insektenschutz und staatischer Kopplung 50111 am Iglo 5 Profil

Einseitige Führungsschienen mit Insektenschutz & staatischer Kopplung

Einseitige Führungsschienen mit Insektenschutz und staatischer Kopplung 50116 am Iglo 5 Profil

Einseitige Führungsschienen mit Insektenschutz & staatischer Kopplung

Führungsschienen für Eckkopplungen

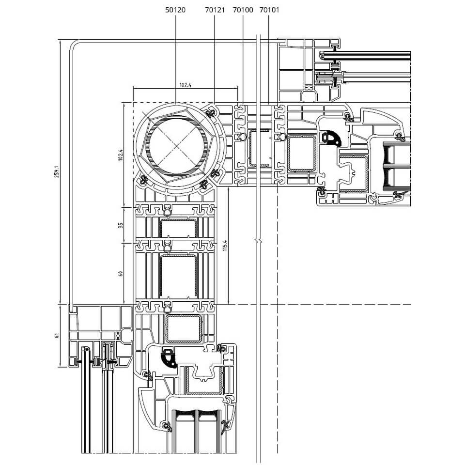
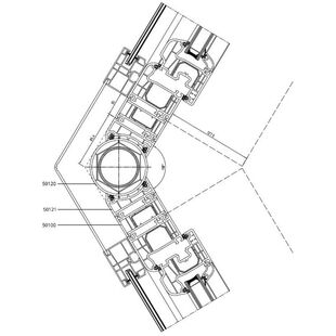
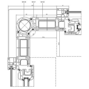
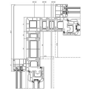
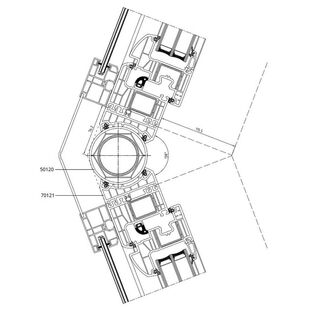
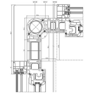
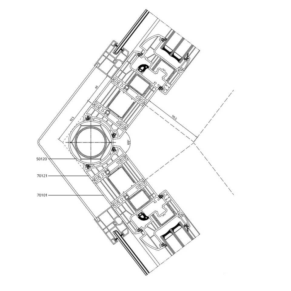
Führungsschiene mit variablen Eckverbinder 90° am Iglo 5 Profil

Führungsschiene mit variablen Eckverbinder 90° am Iglo 5 Profil

Führungsschiene mit Insektenschutz und variablen Eckverbinder 90° am Iglo 5 Profil

Führungsschiene Insektenschutz mit variablen Eckverbinder 90°

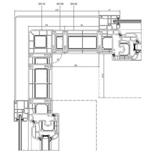
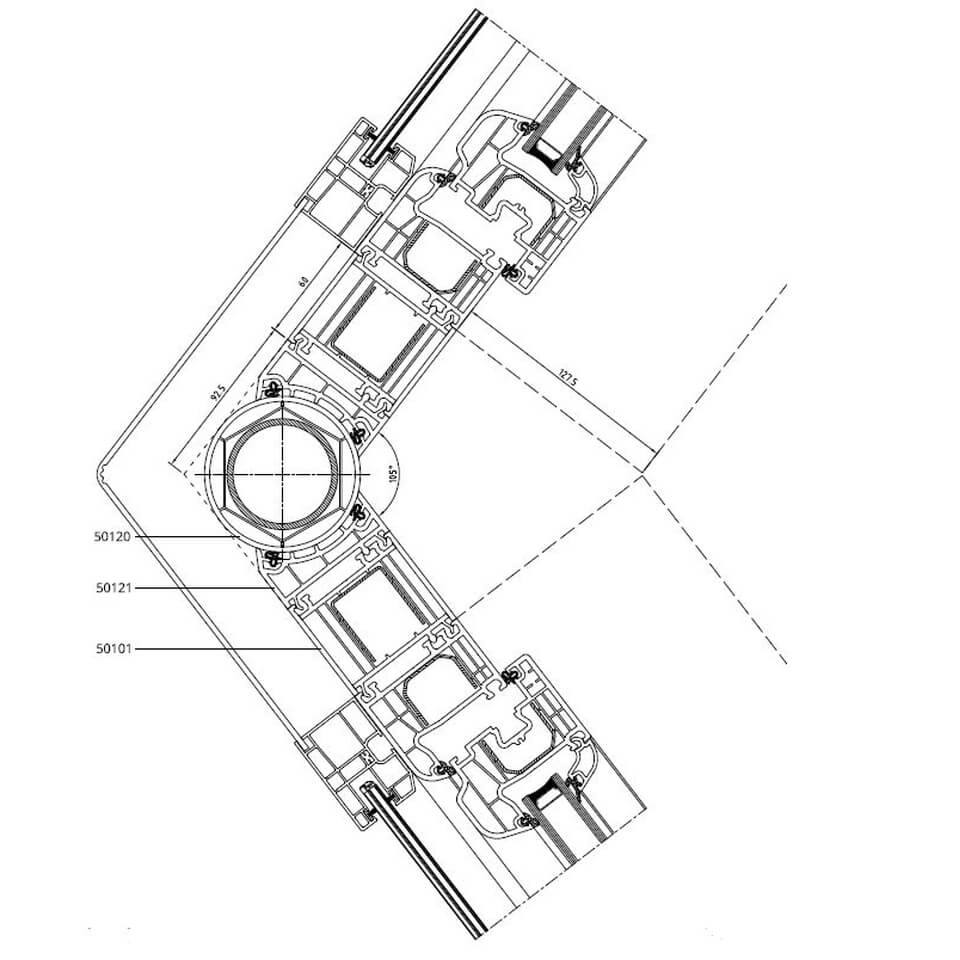
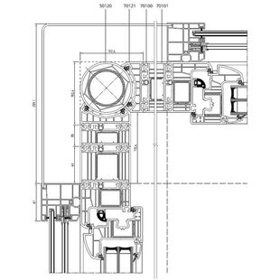
Führungsschiene mit variablen Eckverbinder 105° am Iglo 5 Profil

Führungsschiene mit variablen Eckverbinder 105° am Iglo 5 Profil

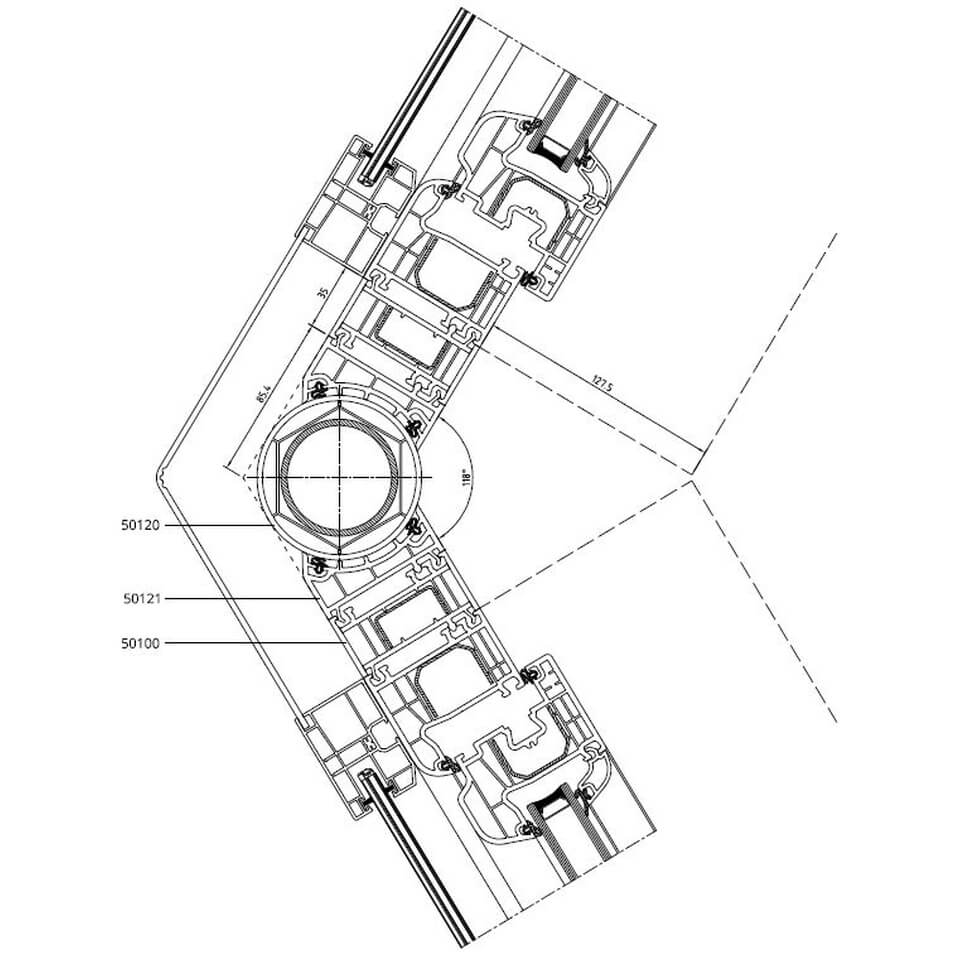
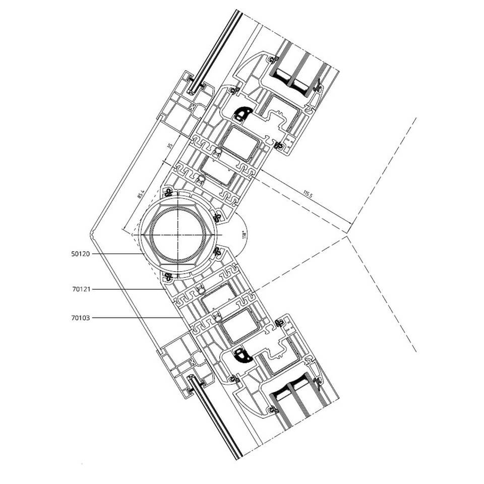
Führungsschiene mit variablen Eckverbinder 118° am Iglo 5 Profil

Führungsschiene mit variablen Eckverbinder 118° am Iglo 5 Profil

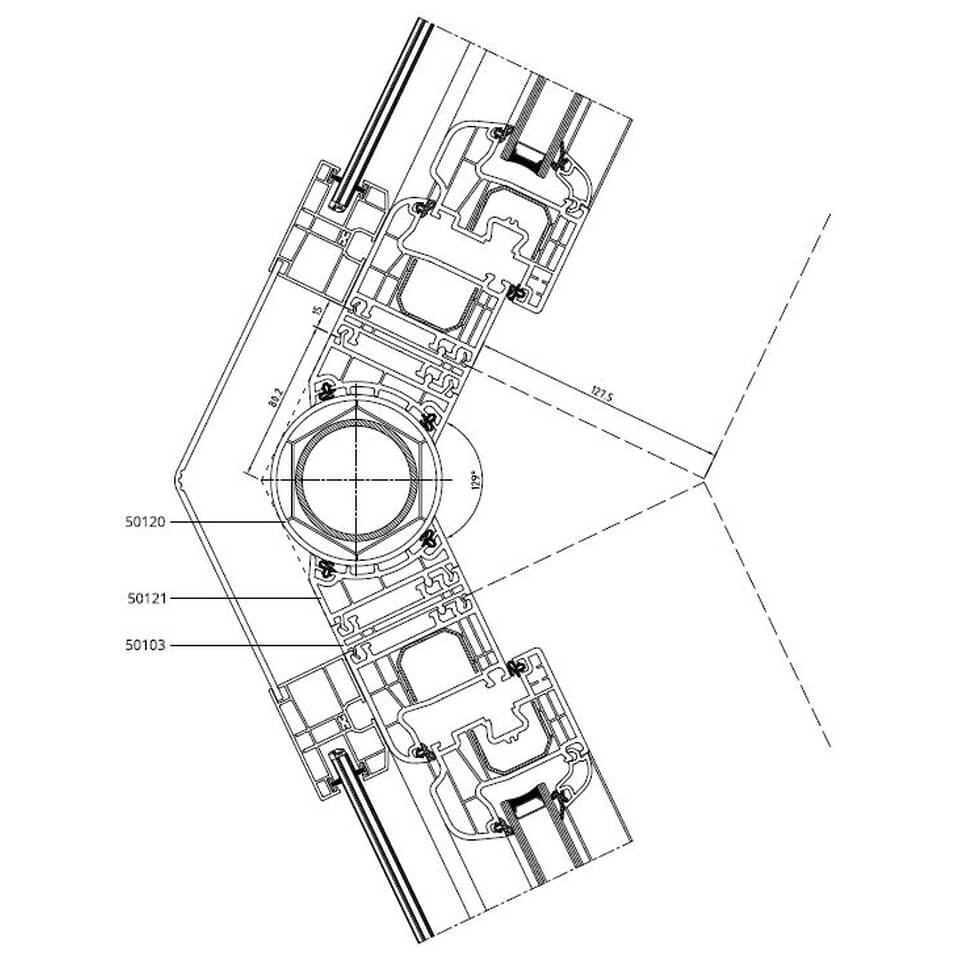
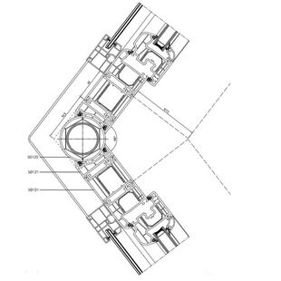
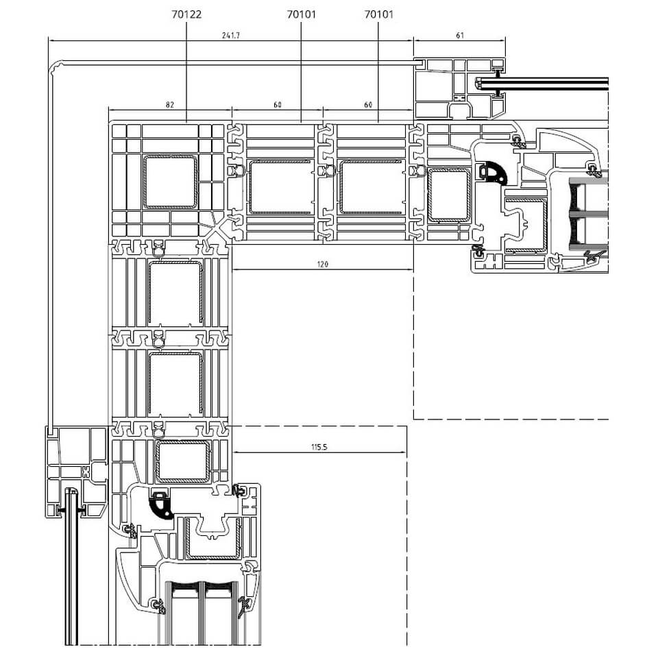
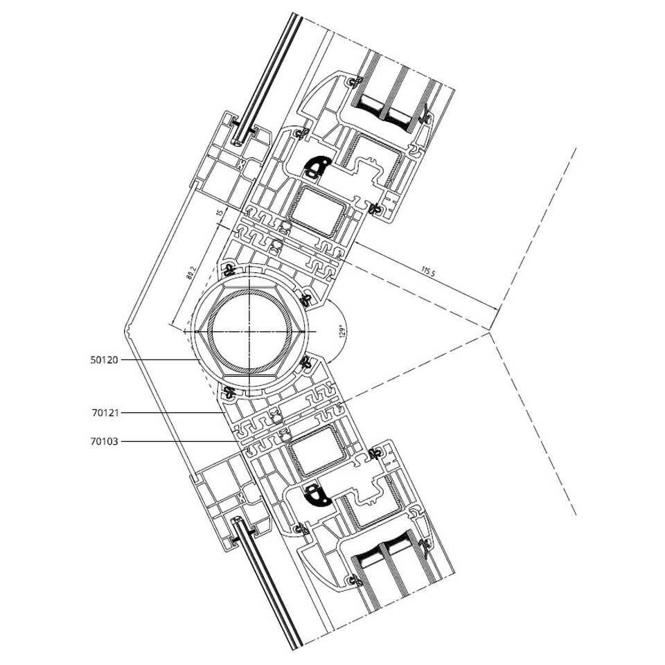
Führungsschiene mit variablen Eckverbinder 129° am Iglo 5 Profil

Führungsschiene mit variablen Eckverbinder 129° am Iglo 5 Profil

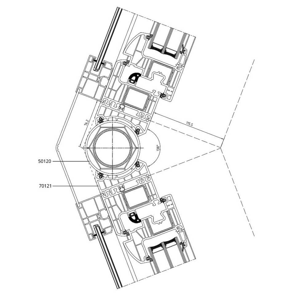
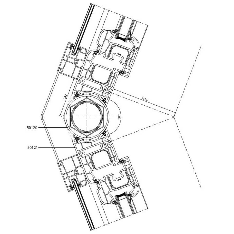
Führungsschiene mit variablen Eckverbinder 138° am Iglo 5 Profil

Führungsschiene mit variablen Eckverbinder 138° am Iglo 5 Profil

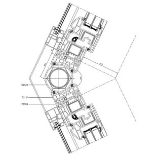
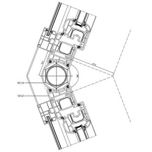
Führungsschiene mit 90° Eckkopplung am Iglo 5 Profil

Führungsschiene mit Eckkopplung 90° am Iglo 5 Profil

Führungsschiene mit Insektenschutz und 90° Eckkopplung am Iglo 5 Profil

Führungsschiene mit Insektenschutz und Eckkopplung 90° am Iglo 5 Profil

Aufsatzrollladen Führungsschienen mit Iglo Energy Profil

Einseitige Führungsschiene am Iglo Energy Profil

Einseitige Führungsschiene für Aufsatzrollladen am Iglo Energy Profil

Einseitige Führungsschiene mit Insektenschutz am Iglo Energy Profil

Einseitige Führungsschiene mit Insektenschutz am Iglo Energy Profil

Beidseitige Führungsschiene für Aufsatzrollladen am Iglo Energy Profil

Beidseitige Führungsschiene für Aufsatzrollladen am Iglo Energy Profil

Beidseitige Führungsschiene und Insektenschutz am Iglo Energy Profil

Beidseitige Führungsschiene mit Insektenschutz am Iglo Energy Profil

Führungsschienen an Iglo Energy Kopplungsprofilen

Beidseitige Führungsschiene mit Federkopplung 50119 am Iglo Energy Profil

Beidseitige Führungsschiene mit Federkopplung 50119

Beidseitige Führungsschiene mit Federkopplung 50119 und Insektenschutz am Iglo Energy Profil

Beidseitige Führungsschiene mit Insektenschutz und Federkopplung

Einseitige Führungsschienen mit staatischer Kopplung 50111 am Iglo Energy Profil

Einseitige Führungsschienen mit staatischer Kopplung 50111

Einseitige Führungsschienen mit Insektenschutz und staatischer Kopplung 50111 am Iglo Energy Profil

Einseitige Führungsschienen mit Insektenschutz & staatischer Kopplung

Führungsschienen für Eckkopplungen am Iglo Energy Profil

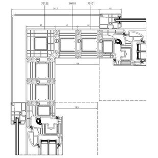
Führungsschiene mit variablen Eckverbinder 90° am Iglo Energy Profil

Führungsschiene mit variablen Eckverbinder 90° am Iglo Energy Profil

Führungsschiene mit Insektenschutz und variablen Eckverbinder 90° am Iglo Energy Profil

Führungsschiene Insektenschutz mit variablen Eckverbinder 90°

Führungsschiene mit variablen Eckverbinder 105° am Iglo Energy Profil

Führungsschiene mit variablen Eckverbinder 105° am Iglo Energy Profil

Führungsschiene mit variablen Eckverbinder 118° am Iglo Energy Profil

Führungsschiene mit variablen Eckverbinder 118° am Iglo Energy Profil

Führungsschiene mit variablen Eckverbinder 129° am Iglo Energy Profil

Führungsschiene mit variablen Eckverbinder 129° am Iglo Energy Profil

Führungsschiene mit variablen Eckverbinder 138° am Iglo Energy Profil

Führungsschiene mit variablen Eckverbinder 138° am Iglo Energy Profil

Führungsschiene mit 90° Eckkopplung am Iglo Energy Profil

Führungsschiene mit Eckkopplung 90° am Iglo Energy Profil

Führungsschiene mit Insektenschutz und 90° Eckkopplung am Iglo Energy Profil

Führungsschiene mit Insektenschutz und Eckkopplung 90°am Iglo Energy

Aufsatzrollladen Führungsschienen mit Hebeschiebetür Iglo HS

Führungsschiene Beidseitig am IGLO HS Profil

Beidseitige Führungsschiene am Iglo HS Profil

Führungsschiene einseitig am IGLO HS Profil Tür innen

Einseitige Führungsschiene am Iglo HS Profil Tür innen

Führungsschiene einseitig am IGLO HS Profil Tür außen

Einseitige Führungsschiene am Iglo HS Profil Tür außen

Technische Daten - Aufsatzrollladen RN Drutex
Weiter zur Produktseite Aufsatzrollladen

Drutex Fensterlieferung

Kostenlose Lieferung

Ab einer Bestellung von 10 Fenstern deutschlandweit!

Jetzt Angebot für Fenster mit Rollladen anfordern

Das könnte Sie auch interessieren:

Aufsatzrollladen Drutex RS

Detailzeichnungen Aufsatzrollladen Drutex RS Styropor Kastentiefe 300mm Revision Außen

Aufsatzrollladen Drutex RS für eine optimales Energieeffizienz.

Detailzeichnungen Aufsatzrollladen Drutex RS Styropor

Vorbaurollladen Drutex RA

Detailzeichnungen Aufsatzrollladen Drutex RA 45 Grad 165mm

Vorbaurollladen Drutex RA für die nachträgliche Montage geeignet.

Detailzeichnungen Vorbaurollladen Drutex RA