Detailzeichnungen Aufsatzrollladen Drutex RS Styropor

Inhaltsverzeichnis:

Drutex Aufsatzrollladen RS Styropor Querschnitte

Drutex Aufsatzrollladen RS Styropor - Kastentiefe 300mm

Aufsatzrollladen Drutex RS Styropor 300mm mit Iglo 5 Fenster Revision Innen

Rollladen RS Styropor Kastentiefe 300mm Revision Innen

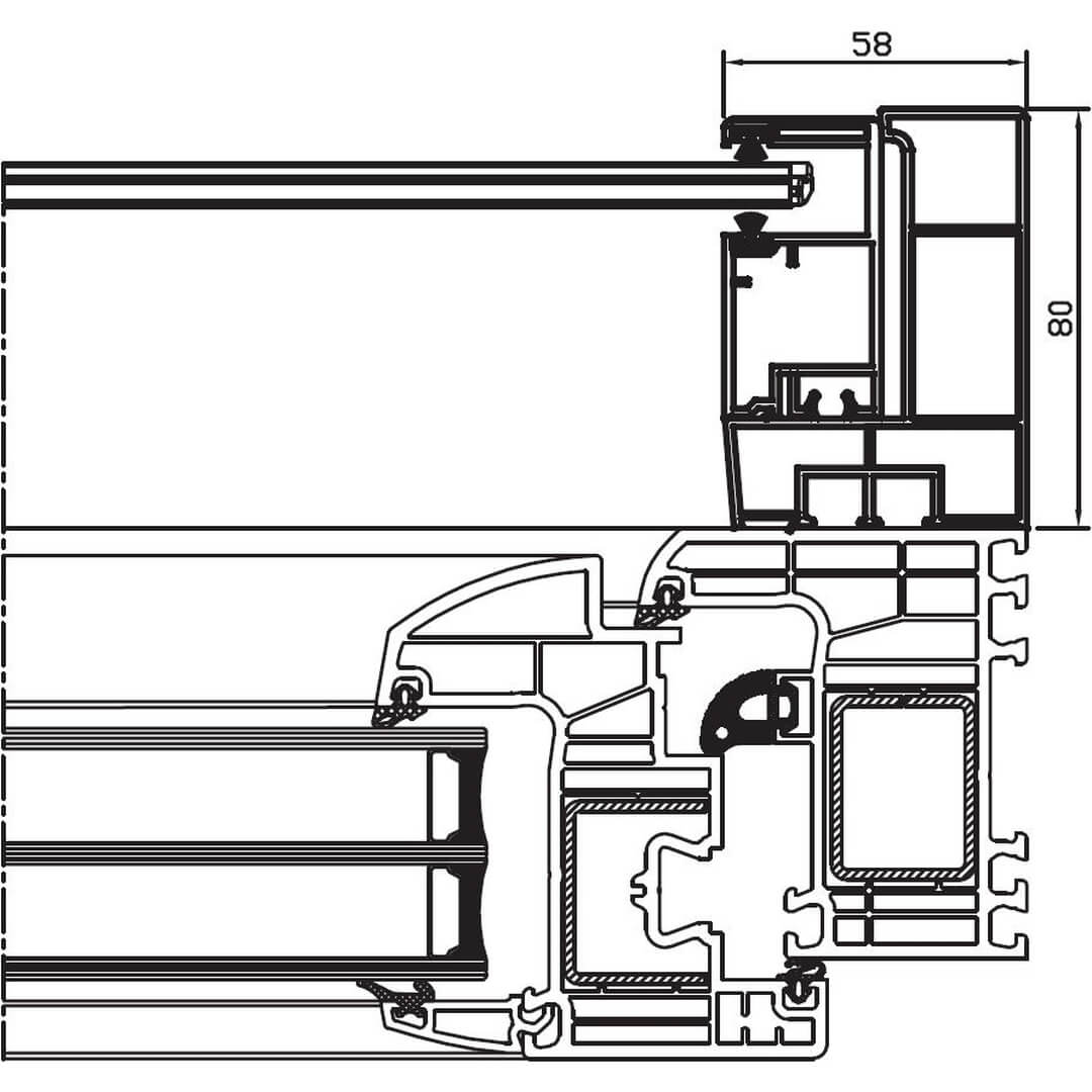
Aufsatzrollladen Drutex RS Styropor 300mm mit Iglo 5 Fenster Revision Außen

Rollladen RS Styropor Kastentiefe 300mm Revision Außen

Drutex Aufsatzrollladen RS Styropor - Kastentiefe 365mm

Aufsatzrollladen Drutex RS Styropor 365mm mit Iglo 5 Fenster Revision Innen

Rollladen RS Styropor Kastentiefe 365mm Revision Innen

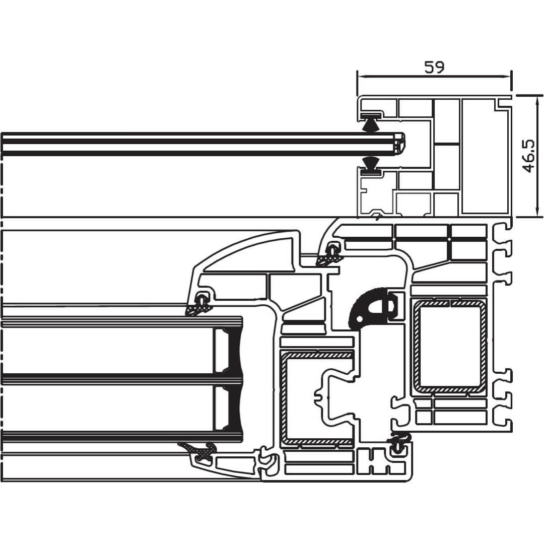
Aufsatzrollladen Drutex RS Styropor 365mm mit Iglo 5 Fenster Revision Außen

Rollladen RS Styropor Kastentiefe 365mm Revision Außen

Aufsatzrollladen Drutex RS Styropor 365mm mit Insektenschutz für Iglo 5 Fenster Revision Innen

Rollladen RS Styropor Kastentiefe 365mm mit Insektenschutz Revision Innen

Aufsatzrollladen Drutex RS Styropor 365mm mit Iglo Energy Fenster Revision Innen

Rollladen RS Styropor Kastentiefe 365mm Revision Innen Iglo Energy

Aufsatzrollladen Drutex RS Styropor 365mm mit Iglo Energy Fenster Revision Außen

Rollladen RS Styropor Kastentiefe 365mm Revision Außen Iglo Energy

Aufsatzrollladen Drutex RS Styropor 365mm mit Iglo HS Fenster Revision Außen

Rollladen RS Styropor Kastentiefe 365mm Revision Außen Iglo HS

Drutex Aufsatzrollladen RS Styropor Einzelteile

Führungsschienen für Aufsatzrollladen RS Styropor

Führungsschiene Drutex Aufsatzrollladen RS Styropor Revision Innen

Aufsatzrollladen RS Styropor Führungsschiene Revision Innen

Führungsschiene Drutex Aufsatzrollladen RS Styropor Revision Außen

Aufsatzrollladen RS Styropor Führungsschiene Revision außen

Rollladenpanzer Lamellen

Rollladen Lamelle 37 Detail Querschnitt

Rollladenpanzer Lamelle 37mm

Rollladen Lamelle 42 Detail Querschnitt

Rollladenpanzer Lamelle 42mm

Rollladen Lamelle 55 Detail Querschnitt

Rollladenpanzer Lamelle 55mm

Rollladen Abschlussleiste und Abrollprofil

Abschlussleiste für Rollladen Alu Panzer Detailzeichnung

Rollladen Abschlussleiste für Aluminium-Panzer

Weiter zur Produktseite Aufsatzrollladen Drutex RS Styropor

Drutex Fensterlieferung

Kostenlose Lieferung

Ab einer Bestellung von 10 Fenstern deutschlandweit!

Jetzt Angebot für Fenster mit Rollladen anfordern

Das könnte Sie auch interessieren:

Aufsatzrollladen Drutex RN

Detailzeichnungen Aufsatzrollladen Drutex RN 215mm

Aufsatzrollladen Drutex RN für ein optimales Preis-Leistungsverhältnis.

Detailzeichnungen Aufsatzrollladen Drutex RN

Vorbaurollladen Drutex RA

Detailzeichnungen Aufsatzrollladen Drutex RA 45 Grad 165mm

Vorbaurollladen Drutex RA für die nachträgliche Montage geeignet.

Detailzeichnungen Vorbaurollladen Drutex RA