Detailzeichnungen Aluminiumfenster MB-86SI

Inhaltsverzeichnis:

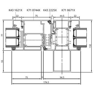
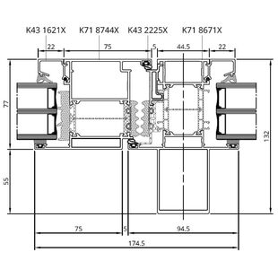
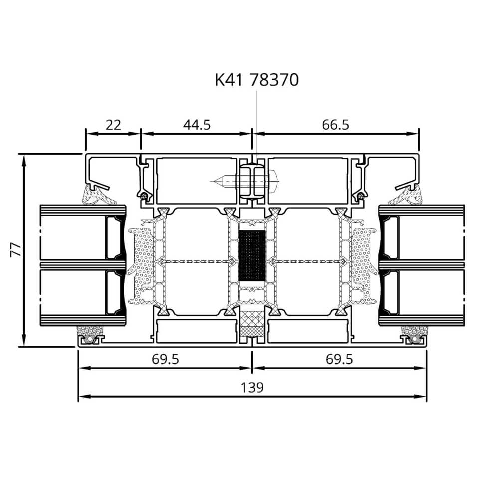
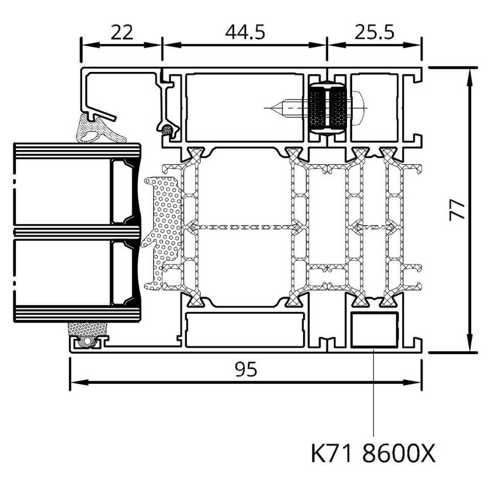
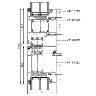
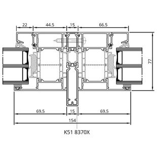
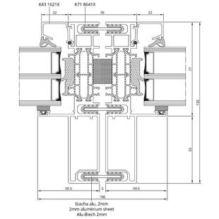
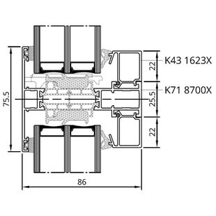
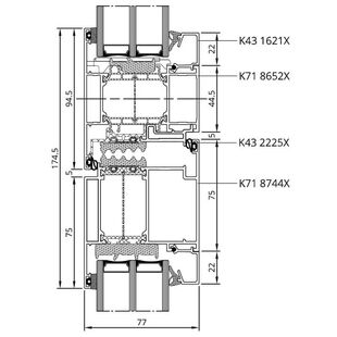
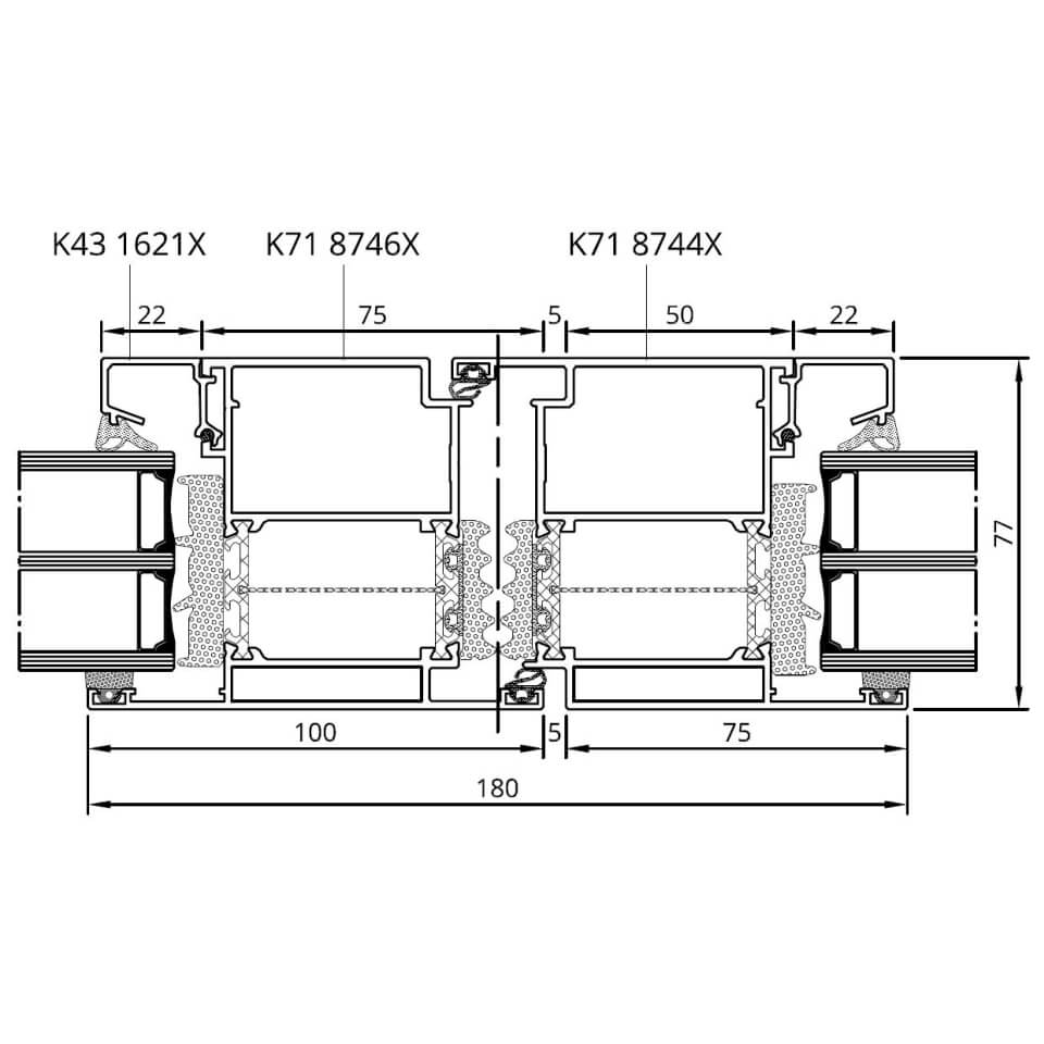
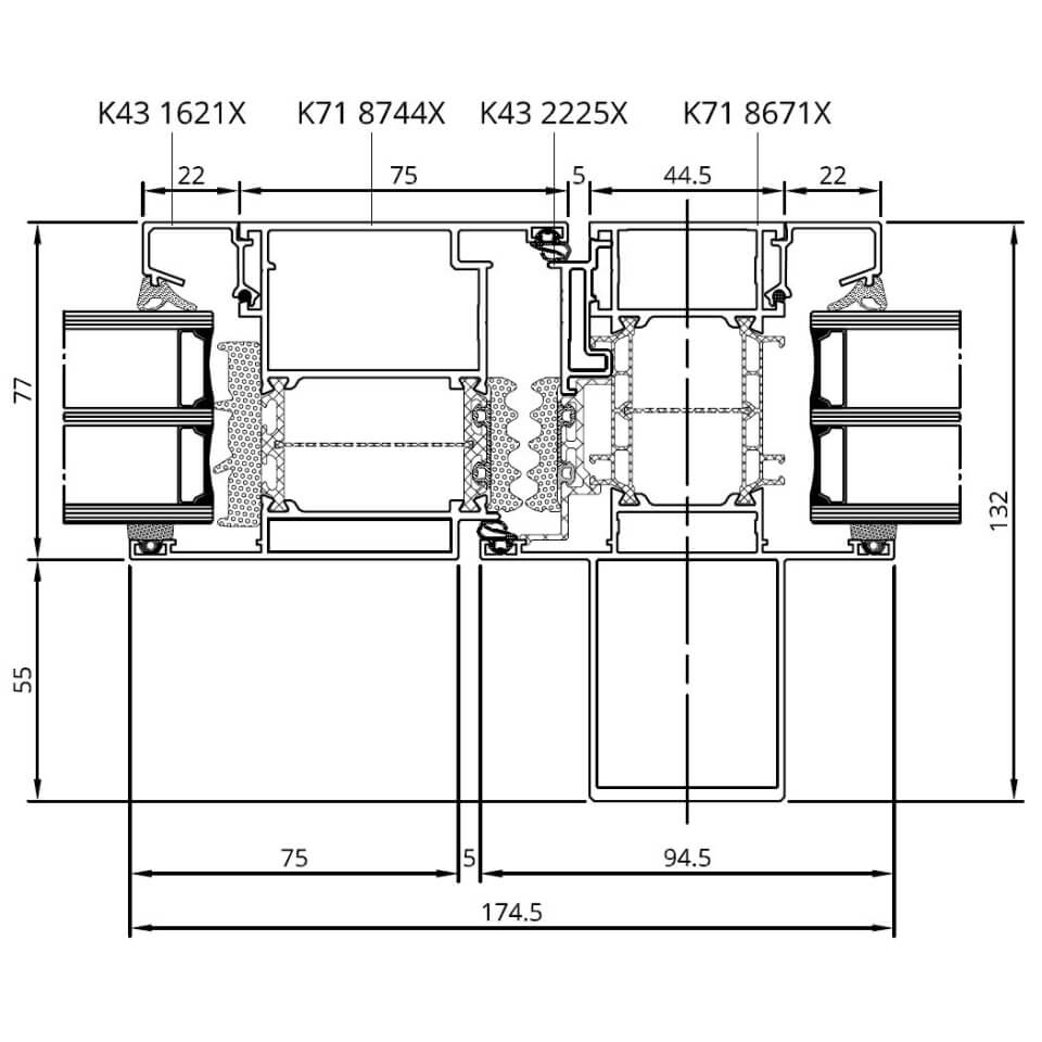
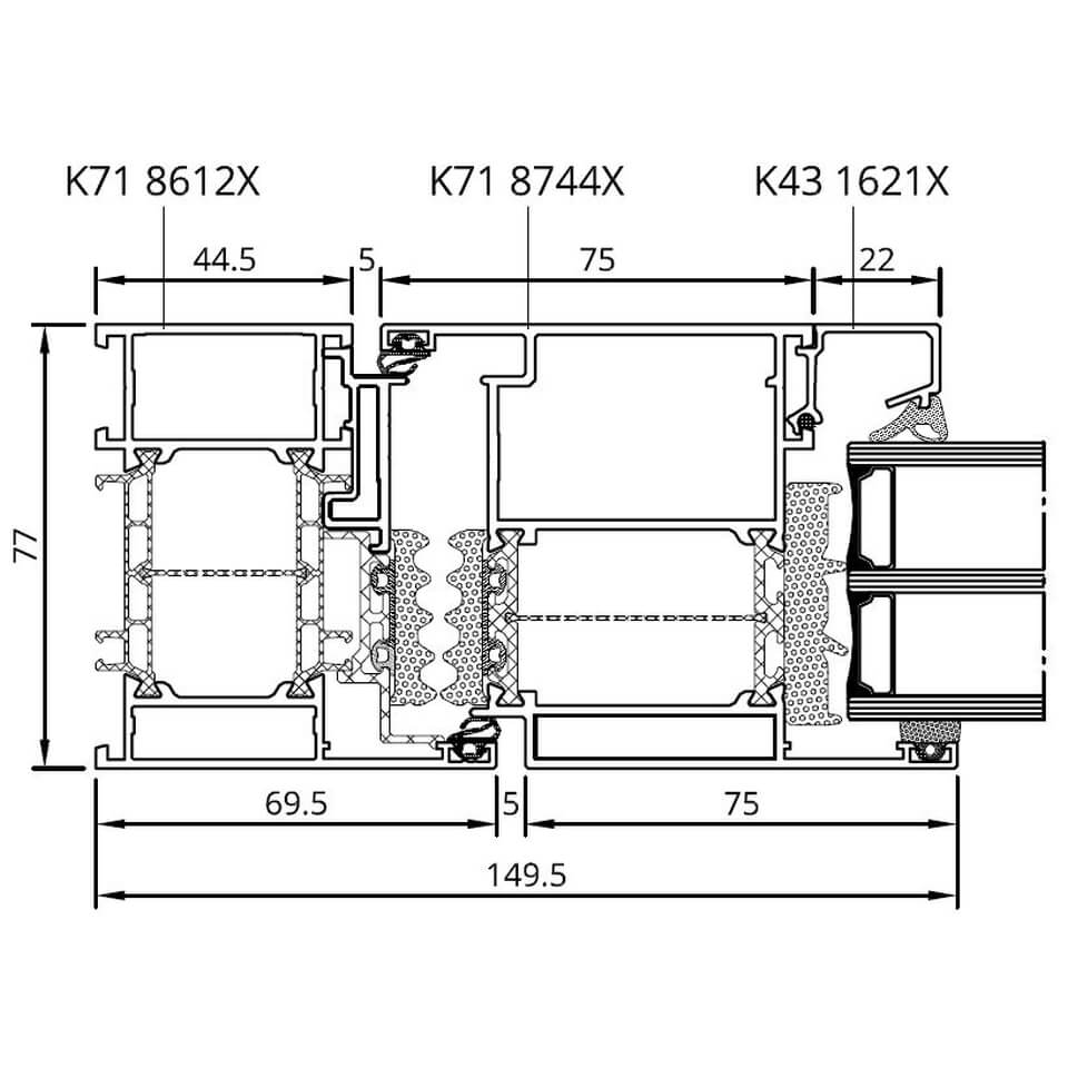
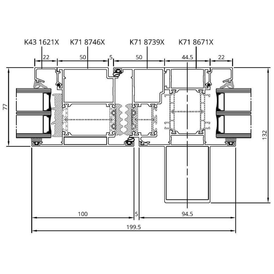
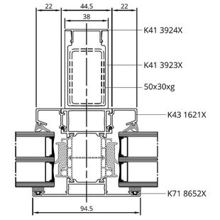
Aluminiumfensterprofil MB-86 SI Querschnitte

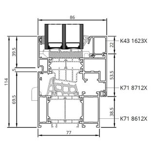
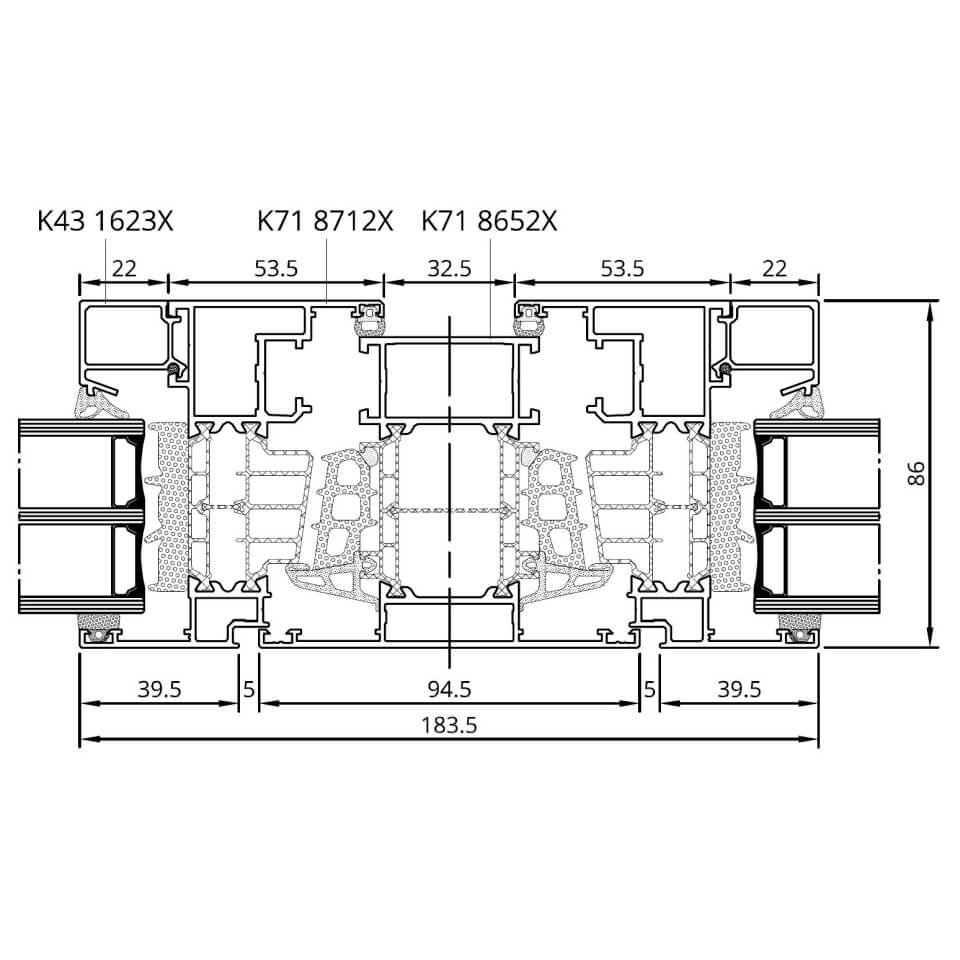
Drutex MB-86SI Festverglasung Seite Rahmen Detail

MB-86 SI Festverglasung Rahmen

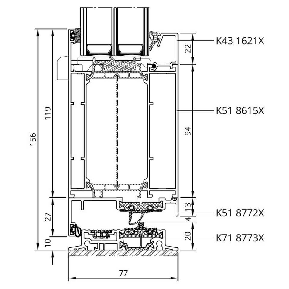
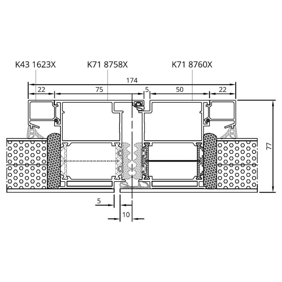
Drutex MB-86SI Festverglasung Wasserschenkel Detail

MB-86 SI Festverglasung mit Wasserschenkel

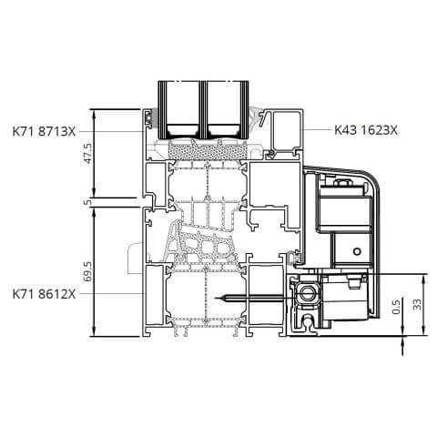
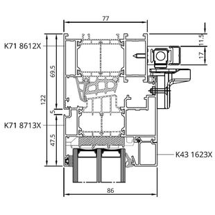
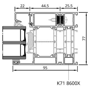
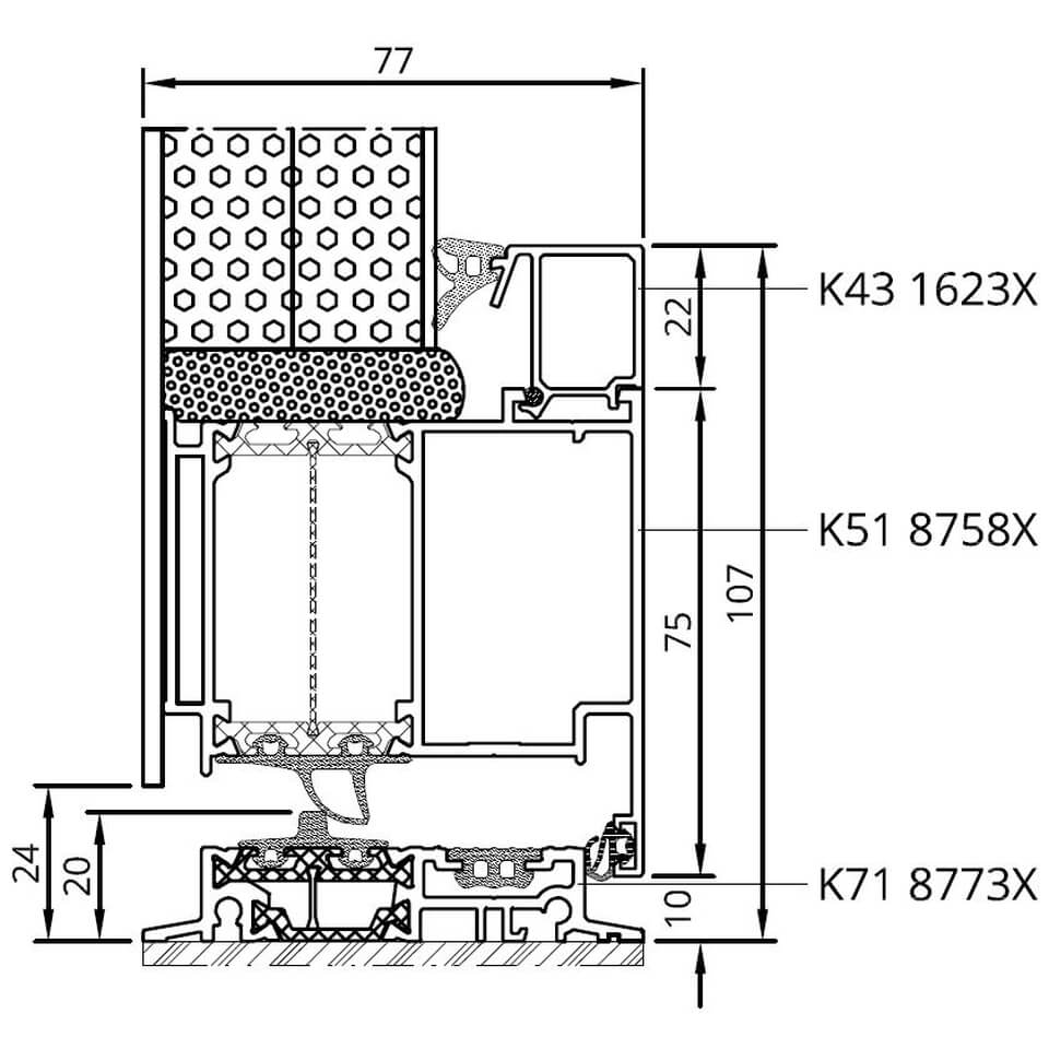
Drutex MB-86SI Festverglasung Anschlussprofil Detail

MB-86 SI Festverglasung mit Anschlussprofil

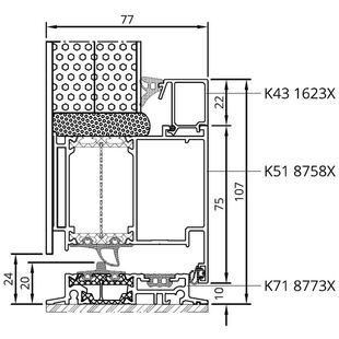
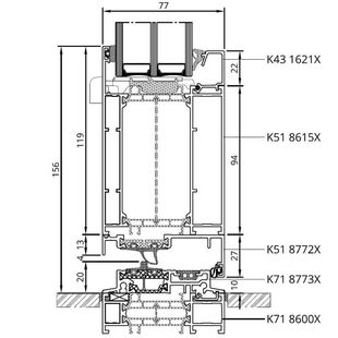
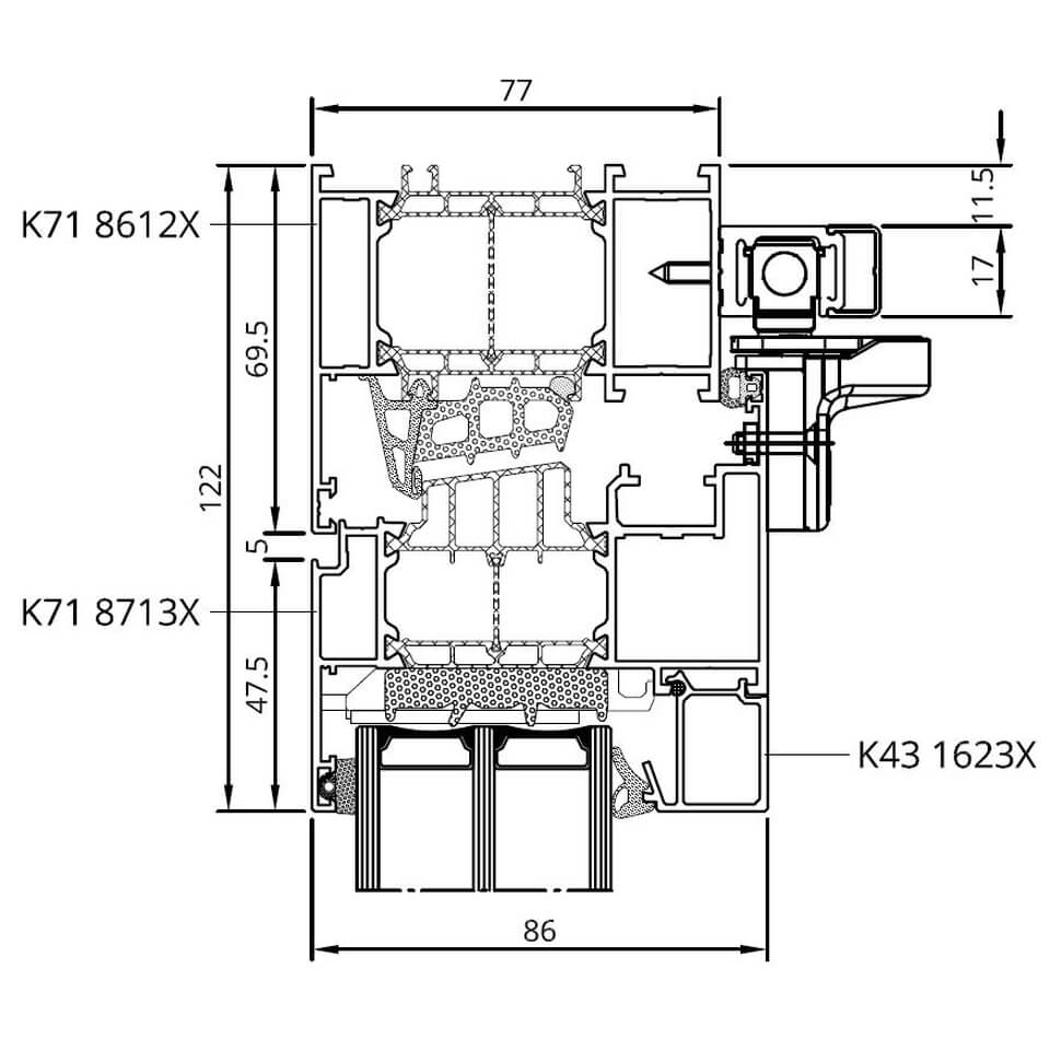
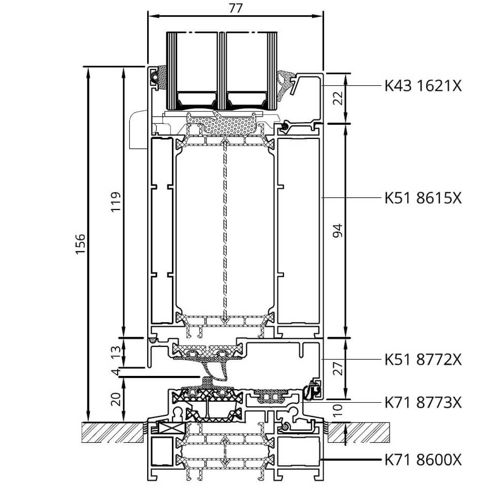
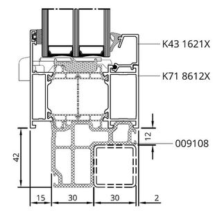
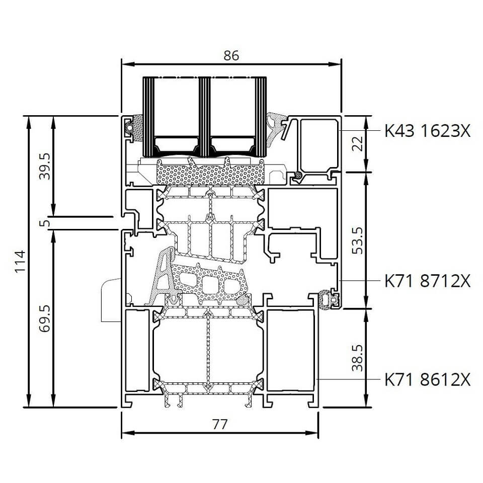
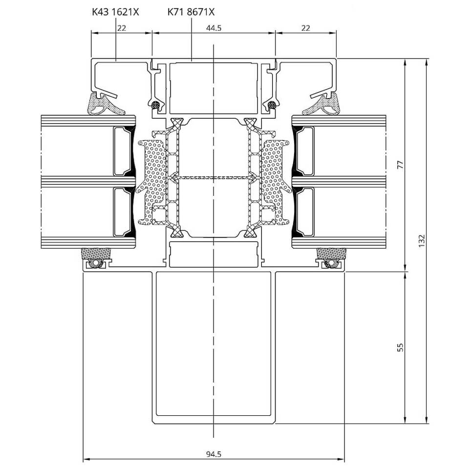
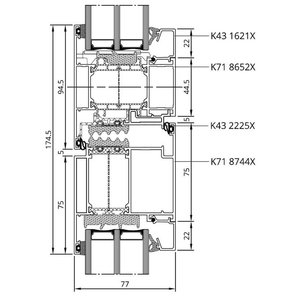
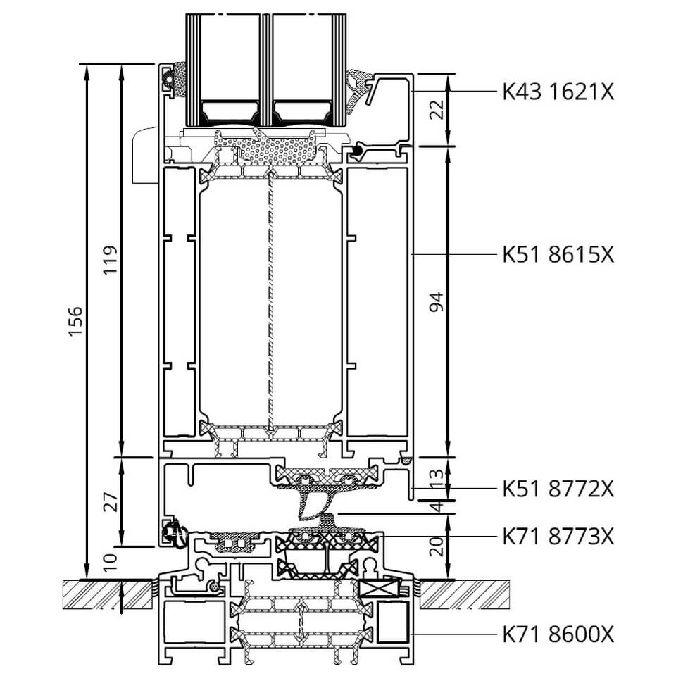
Drutex MB-86SI Fenster Schnitt Detail

MB-86 SI Fensterprofil

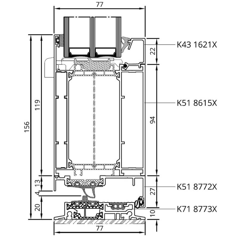
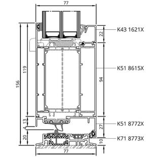
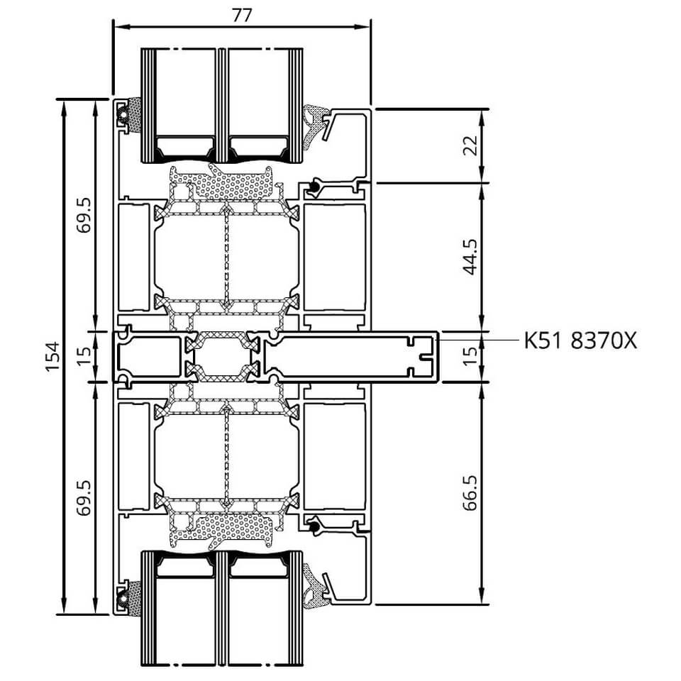
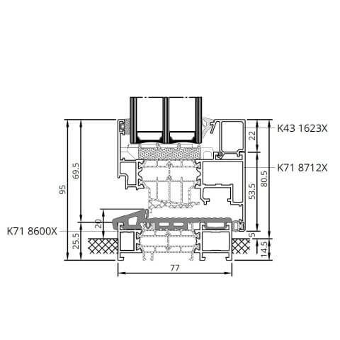
Drutex MB-86SI Fenster Schnitt Wasserschenkel Detail

MB-86 SI Flügel mit Wasserschenkel

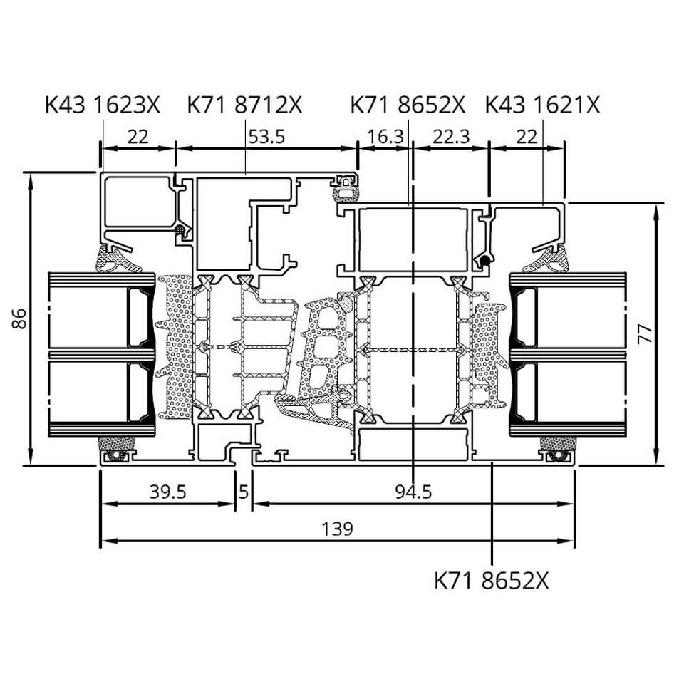
Drutex MB-86SI Fenster mit Anschlussprofil Detailzeichnung

MB-86 SI Fenster mit Anschlussprofil

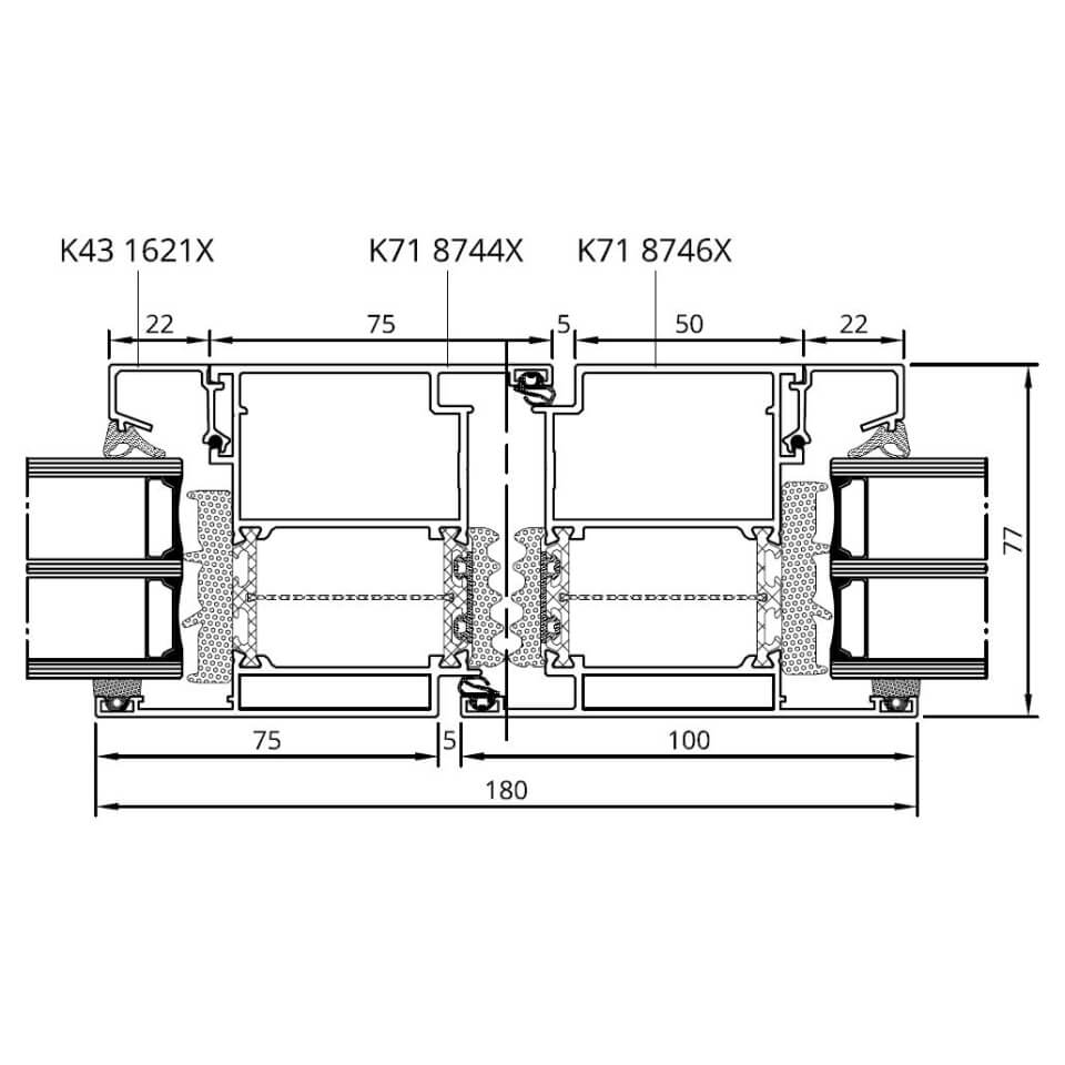
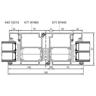
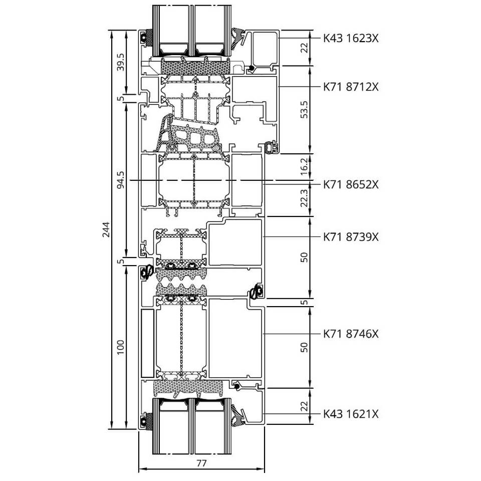
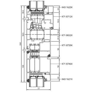
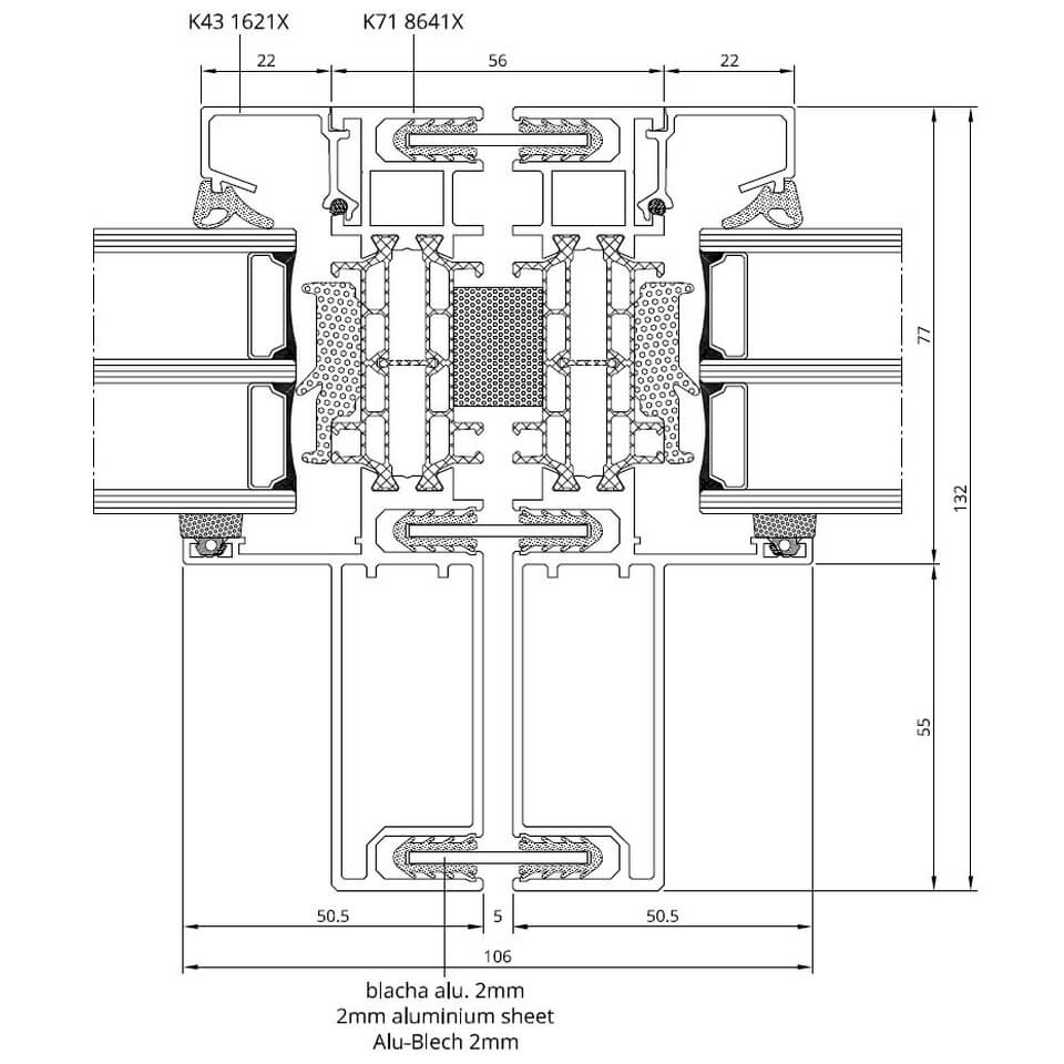
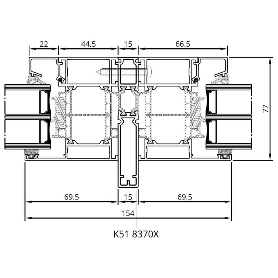
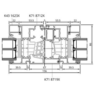
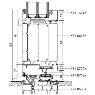
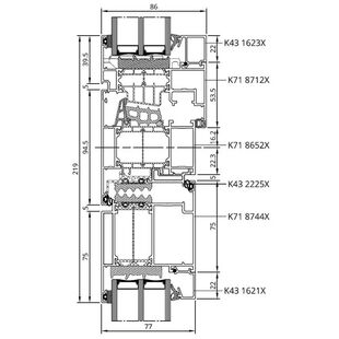
Drutex MB-86SI Fensterpfosten Detailzeichnung

MB-86 SI Fenster mit Pfosten

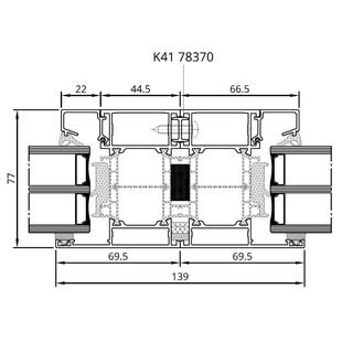
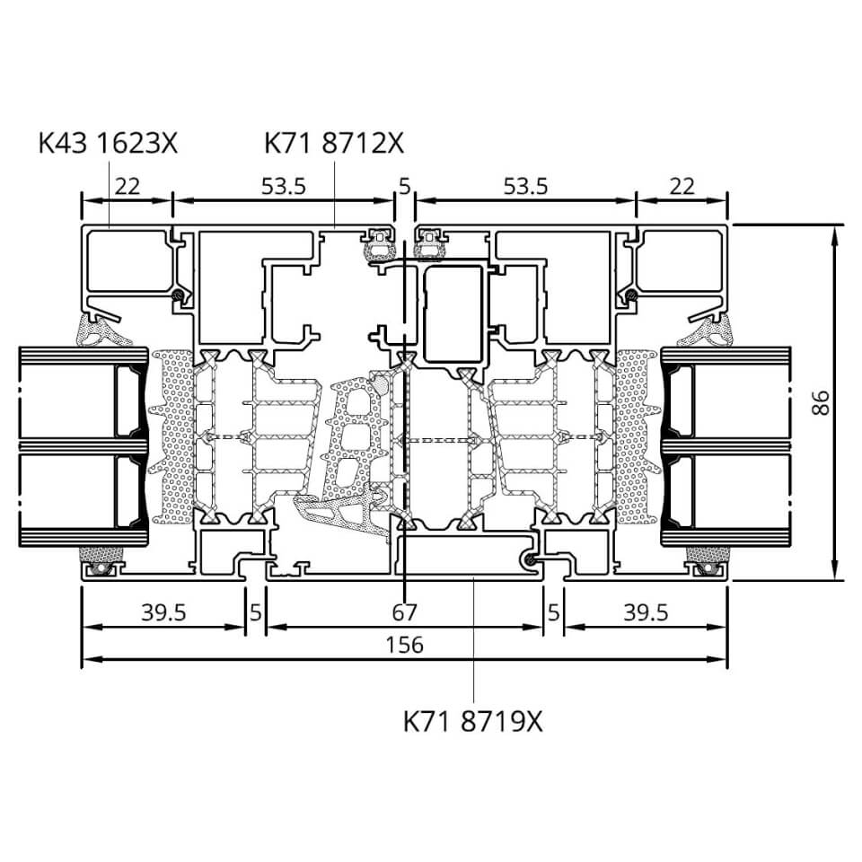
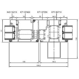
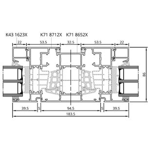
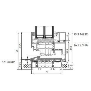
Drutex MB-86SI Stulpfenster Detailzeichnung

MB-86 SI Fenster mit Stulp

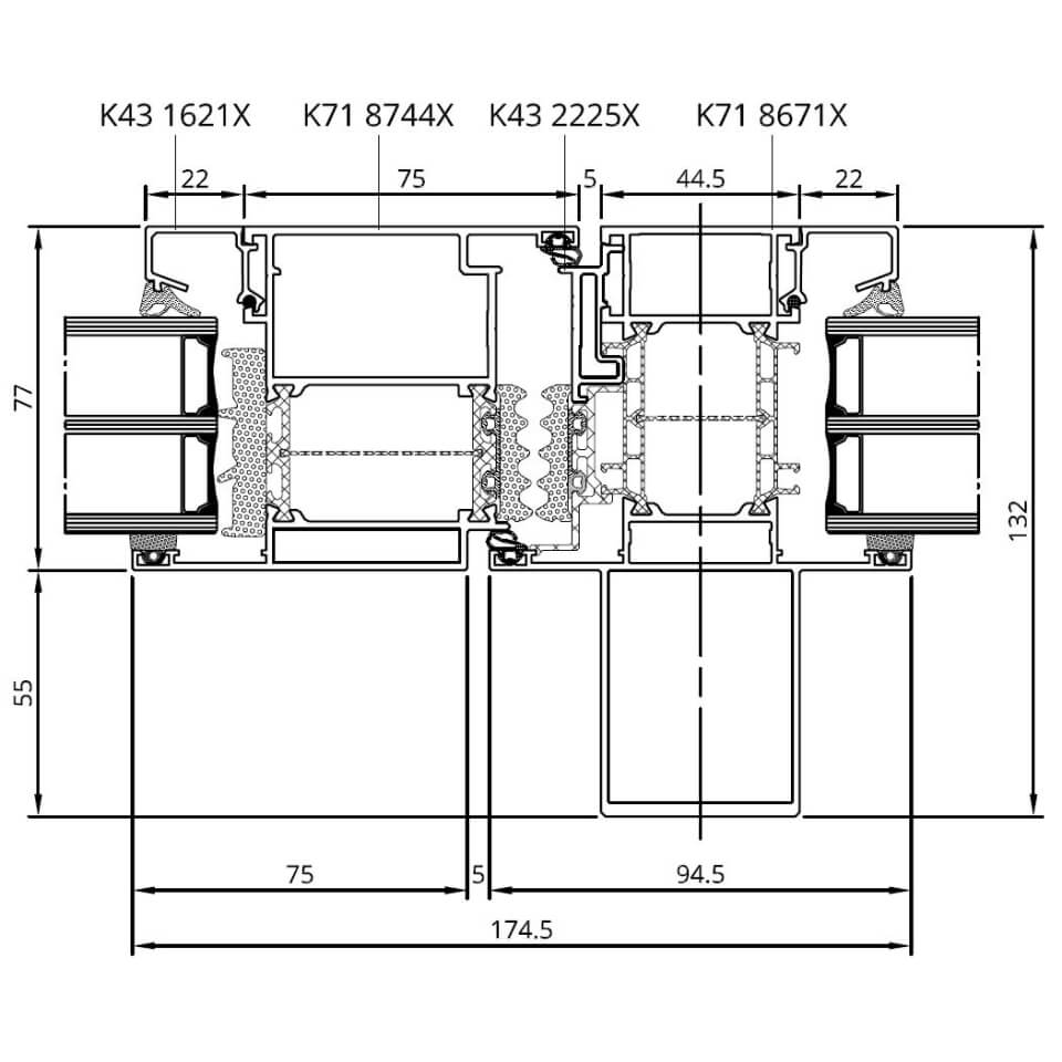
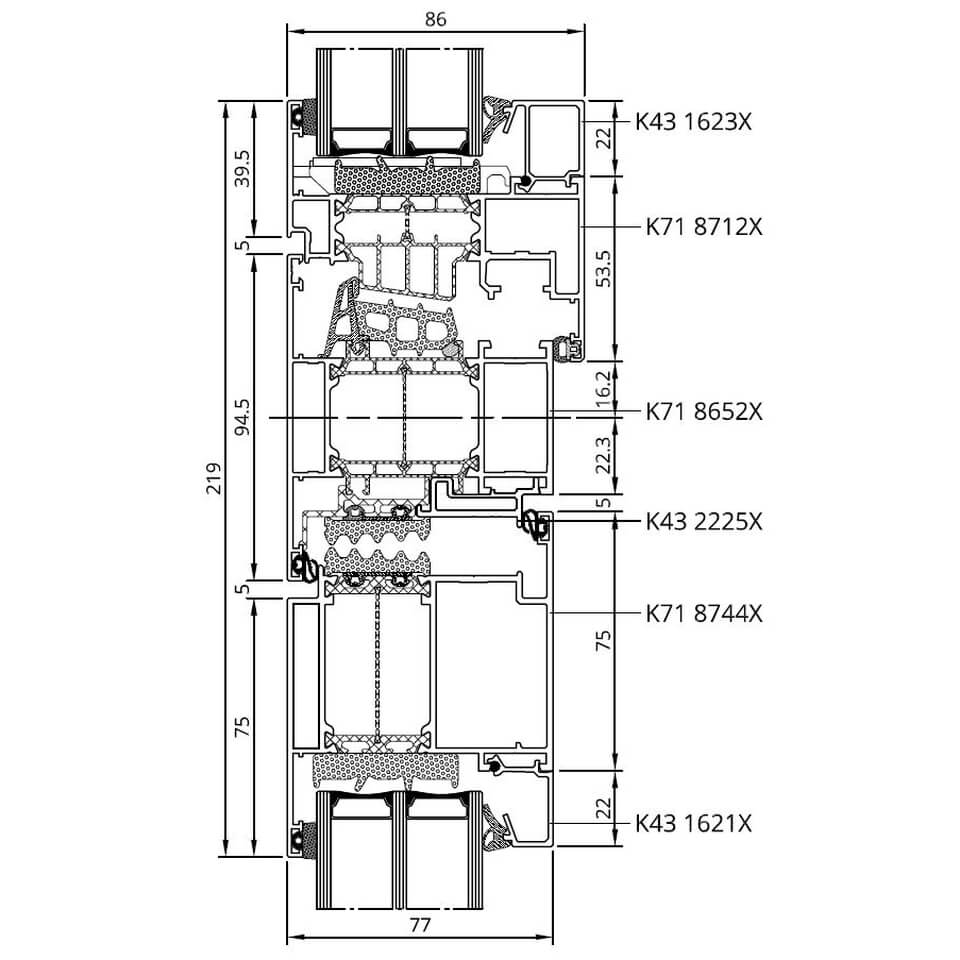
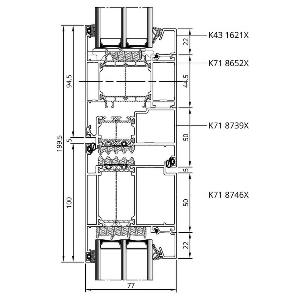
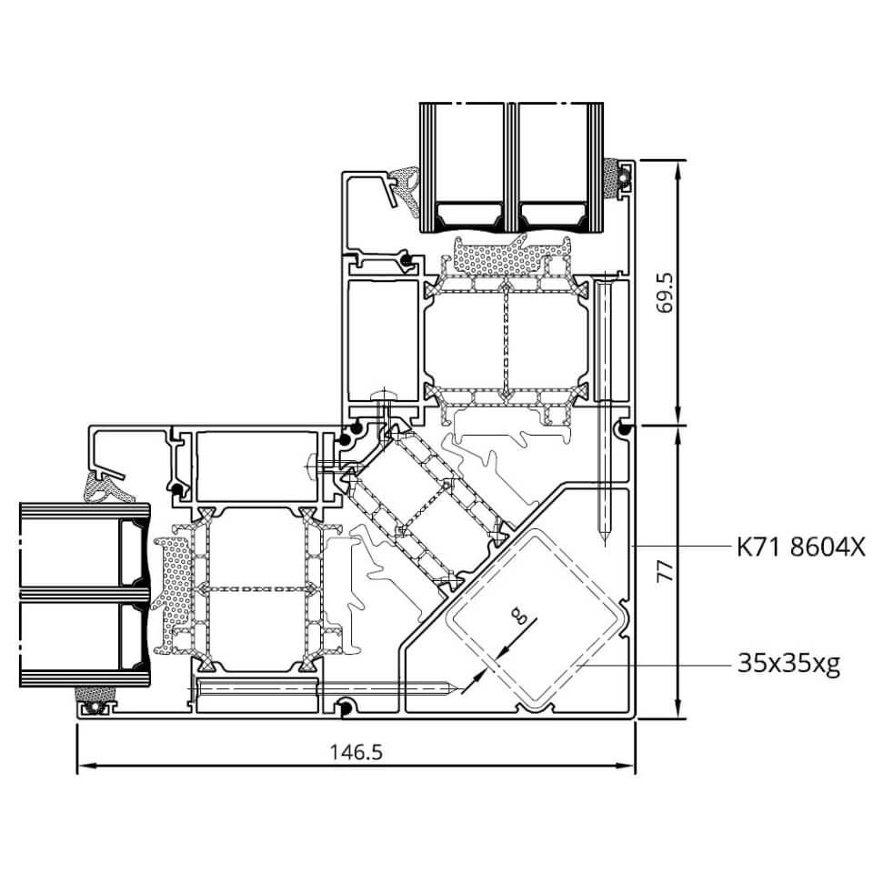
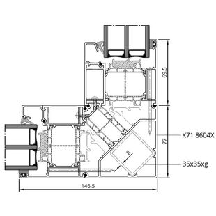
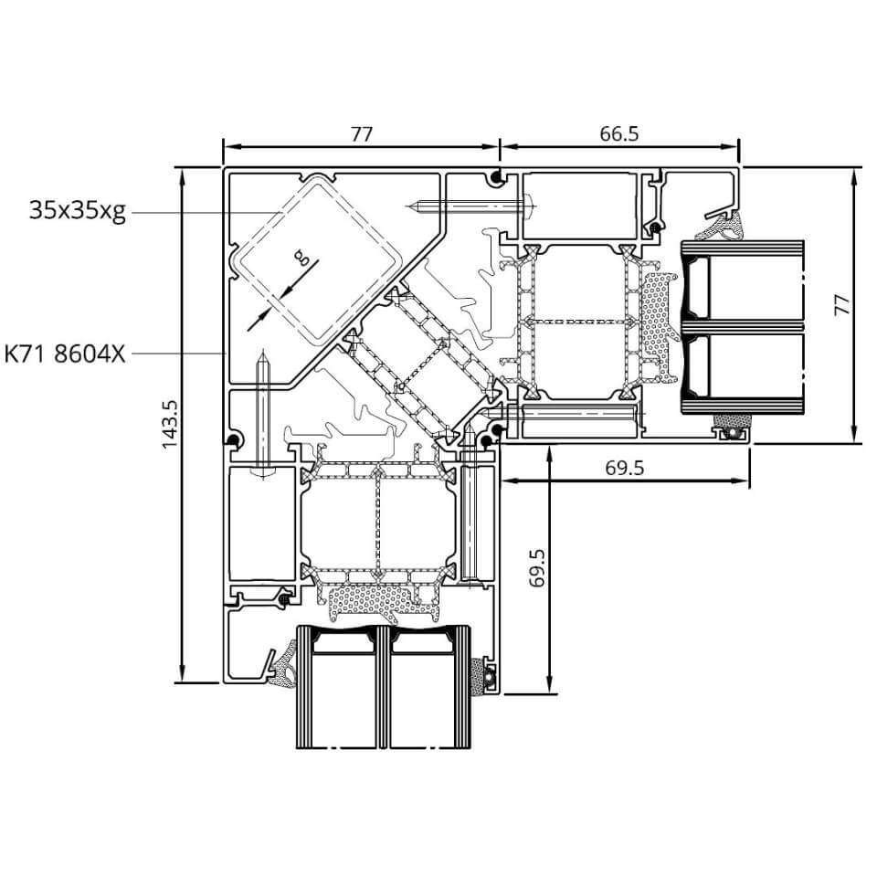
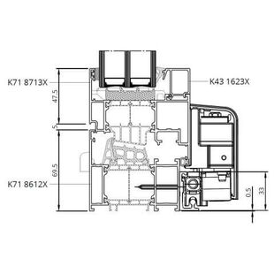
Drutex MB-86SI Pfosten Dreh-Kipp/Fest Detailzeichnung

MB-86 SI Pfosten mit Dreh-Kipp/Fest

Aluminiumprofil MB-86 SI Rahmenverbreiterung

Drutex MB-86SI 25,5mm Rahmenverbreiterung Detailzeichnung

MB-86 SI Rahmenverbreiterung 25,5mm

Drutex MB-86SI 33,5mm Rahmenverbreiterung Detailzeichnung

MB-86 SI Rahmenverbreiterung 33,5mm

Drutex MB-86SI 55,5mm Rahmenverbreiterung Detailzeichnung

MB-86 SI Rahmenverbreiterung 55,5mm

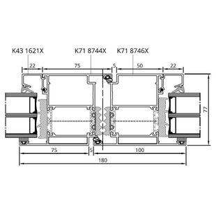
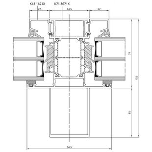
Aluminiumprofil MB-86 SI Kopplungen

Drutex MB-86SI H-Kopplungsprofil mit Dichtband Detail

MB-86 SI H-Kopplung mit Dichtband

Drutex MB-86SI statische Kopplung innen Detailansicht

MB-86 SI Statische Kopplung innen

Drutex MB-86SI statische Kopplung außen Detailansicht

MB-86 SI Statische Kopplung außen

Drutex MB-86SI Kopplungsdehnungsprofil Detailansicht

MB-86 SI Kopplungsdehnungsprofil

Drutex MB-86SI Kopplungsdehnungsprofil Statik verstärkt

MB-86 SI Kopplungsdehnungsprofil mit verstärkter Statik

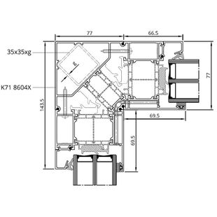
Drutex MB-86SI Eckprofil 90° innen Detailansicht

MB-86 SI Eckkopplung 90° innen

Drutex MB-86SI Eckprofil 90° außen Detailansicht

MB-86 SI Eckkopplung 90° außen

Drutex MB-86SI Eckprofil 135° innen Detailansicht

MB-86 SI Eckkopplung 135° innen

Drutex MB-86SI Eckprofil 135° außen Detailansicht

MB-86 SI Eckkopplung 135° außen

Drutex MB-86SI Eckverbinder Variabel innen Winkel schmal

MB-86 SI Eckkopplung Variabel innen schmaler Winkel

Drutex MB-86SI Eckverbinder Variabel außen Winkel schmal

MB-86 SI Eckkopplung Variabel außen schmaler Winkel

Drutex MB-86SI Eckverbinder Variabel Winkel schmal Tabelle

MB-86 SI Eckkopplung Variabel schmaler Winkel Tabelle

Drutex MB-86SI Eckverbinder Variabel innen Winkel weit

MB-86 SI Eckkopplung Variabel innen weiter Winkel

Drutex MB-86SI Eckverbinder Variabel außen Winkel weit

MB-86 SI Eckkopplung Variabel außen weiter Winkel

Drutex MB-86SI Eckverbinder Variabel Winkel weit Tabelle

MB-86 SI Eckkopplung Variabel weiter Winkel Tabelle

Aluminiumfenster MB-86 SI Sprossenarten

Innenliegende SZR Sprossen / Helima Sprossen

Drutex Iglo SZR Sprosse 8mm

Innenliegende Sprosse 8mm

Drutex Iglo SZR Sprosse 18mm

Innenliegende Sprosse 18mm

Drutex Iglo SZR Sprosse 26mm

Innenliegende Sprosse 26mm

Drutex Iglo SZR Sprosse 45mm

Innenliegende Sprosse 45mm

Glasteilende Sprossen - Kämpfer

Drutex MB-86SI Kämpfersprosse 75,5mm Detailzeichnung

MB-86 SI Glasteilende Kämpfer-Sprosse 75,5mm

Drutex MB-86SI Kämpfersprosse 94,5mm Detailzeichnung

MB-86 SI Glasteilende Kämpfer-Sprosse 94,5mm

Drutex MB-86SI Kämpfer und Pfosten statisch außen Detail

MB-86 SI Glasteilende Kämpfer-Sprosse mit statischem Pfosten außen

Drutex MB-86SI Statik Profil verstärkt innen Detailzeichnung

MB-86 SI Statisch verstärktes Profil innen

Drutex MB-86SI Statik Profil verstärkt aussen Detailzeichnung

MB-86 SI Statisch verstärktes Profil außen

Aluminium MB-86 SI Verglasungsbreiten

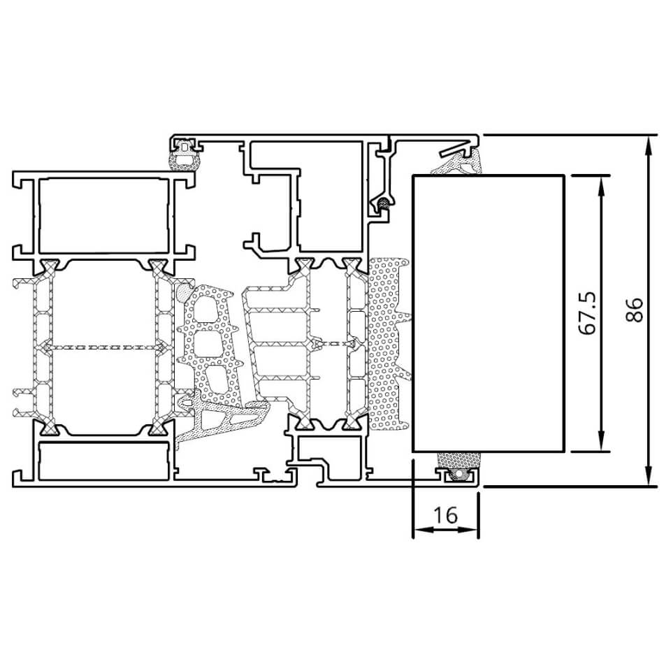
Drutex MB-86SI Festverglasung 13,5mm Stärke Detailansicht

MB-86 SI Festverglasung mit 13,5mm Breite

Drutex MB-86SI Festverglasung 58,5mm Stärke Detailansicht

MB-86 SI Festverglasung mit 58,5mm Breite

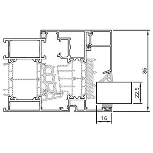
Drutex MB-86SI Verglasung 22,5mm Stärke Detailansicht

MB-86 SI Fenster Verglasung mit 22,5mm Breite

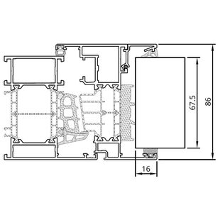
Drutex MB-86SI Verglasung 67,5mm Stärke Detailansicht

MB-86 SI Fenster Verglasung mit 67,5mm Breite

Aluminium MB-86 SI Terrassentür

Drutex MB-86SI Balkontür mit Blendrahmen Detailansicht

MB-86 SI Balkontür mit Blendrahmen

Drutex MB-86SI Balkontür Schwelle Detailansicht

MB-86 SI Balkontür Schwelle

Drutex MB-86SI Parallel-Schiebe-Kipp-Tür Oben Detail

MB-86 SI PSK-Tür oberer Rahmen

Drutex MB-86SI Parallel-Schiebe-Kipp-Tür Unten Detail

MB-86 SI PSK-Tür unterer Rahmen

Aluminium MB-86 SI Tür nach innen

Drutex MB-86SI Tür nach innen Rahmen Detailzeichnung

MB-86 SI Tür nach innen Rahmenprofil

Drutex MB-86SI Tür nach innen Schwelle Detailzeichnung

MB-86 SI Tür nach innen Schwelle

Drutex MB-86SI Tür nach innen Schwelle mit Rahmenverbreiterung

MB-86 SI Tür nach innen Schwelle mit Rahmenverbreiterung

Drutex MB-86SI Tür nach innen mit Oberlicht Fest Detail

MB-86 SI Tür nach innen mit Oberlicht Fest

Drutex MB-86SI Tür nach innen mit Oberlicht Kipp Detail

MB-86 SI Tür nach innen mit Oberlicht Kipp

Drutex MB-86SI Tür nach innen mit Kämpfer mit Hohlraumverstärkung Detail

MB-86 SI Tür nach innen mit Kämpfer mit Hohlraumverstärkung

Drutex MB-86SI Tür nach innen mit Pfosten statisch Detail

MB-86 SI Tür nach innen mit statischem Pfosten

Tür nach innen mit Aufsatzfüllung

Drutex MB-86Si Tür nach innen mit Aufsatzfüllung Detail

MB-86 SI Tür nach innen mit Aufsatzfüllung

MB-86Si Tür nach innen mit Aufsatzfüllung Schwelle Detail

MB-86 SI Tür nach innen Schwelle mit Aufsatzfüllung

Tür nach innen mit einseitiger Aufsatzfüllung

Drutex MB-86Si Tür nach innen mit Aufsatzfüllung einseitig

MB-86 SI Tür nach innen mit einseitiger Aufsatzfüllung

MB-86Si Tür nach innen mit Aufsatzfüllung einseitig Schwelle

MB-86 SI Tür nach innen Schwelle mit einseitiger Aufsatzfüllung

Tür nach innen mit Stulp

Drutex MB-86Si Tür nach innen Stulptür Detailzeichnung

MB-86 SI Tür nach innen mit Stulp

MB-86SI Tür Stulp nach innen mit Aufsatzfüllung Detail

MB-86 SI Tür nach innen mit Stulp und Aufsatzfüllung

MB-86SI Tür nach innen Stulp Aufsatzfüllung einseitig Detail

MB-86 SI Tür nach innen mit Stulp und einseitiger Aufsatzfüllung

Aluminium MB-86 SI Tür nach außen

Drutex MB-86SI Tür nach aussen Rahmen Detailzeichnung

MB-86 SI Tür nach außen Rahmenprofil

Drutex MB-86SI Tür nach außen Schwelle Detailzeichnung

MB-86 SI Tür nach außen Schwelle

Drutex MB-86SI Tür nach aussen Schwelle mit Rahmenverbreiterung

MB-86 SI Tür nach außen Schwelle mit Rahmenverbreiterung

Drutex MB-86SI Tür nach aussen mit Oberlicht Fest Detail

MB-86 SI Tür nach außen mit Oberlicht Fest

Drutex MB-86SI Tür nach aussen mit Oberlicht Kipp Detail

MB-86 SI Tür nach außen mit Oberlicht Kipp

Drutex MB-86SI Tür nach aussen Statik Profil fest Detail

MB-86 SI Tür nach außen mit statischem Pfosten

Tür nach außen mit Aufsatzfüllung

Drutex MB-86Si Tür nach aussen mit Aufsatzfüllung Detail

MB-86 SI Tür nach außen mit Aufsatzfüllung

MB-86Si Tür nach aussen mit Aufsatzfüllung Schwelle Detail

MB-86 SI Tür nach außen Schwelle mit Aufsatzfüllung

Tür nach außen mit einseitiger Aufsatzfüllung

Drutex MB-86Si Tür nach aussen mit Aufsatzfüllung einseitig Detail

MB-86 SI Tür nach außen mit einseitiger Aufsatzfüllung

MB-86Si Tür nach aussen Aufsatzfüllung einseitig Schwelle Detail

MB-86 SI Tür nach außen Schwelle mit einseitiger Aufsatzfüllung

Tür nach außen mit Stulp

Drutex MB-86SI Tür nach aussen Stulptür Detailzeichnung

MB-86 SI Tür nach außen mit Stulp

Drutex MB-86SI Tür Stulp nach aussen mit Aufsatzfüllung Detail

MB-86 SI Tür nach außen mit Stulp und Aufsatzfüllung

MB-86SI Tür nach aussen Stulp Aufsatzfüllung einseitig Detail

MB-86 SI Tür nach außen mit Stulp und einseitiger Aufsatzfüllung

Aluminium MB-86 SI Türbänder Maximal Gewicht und Maße

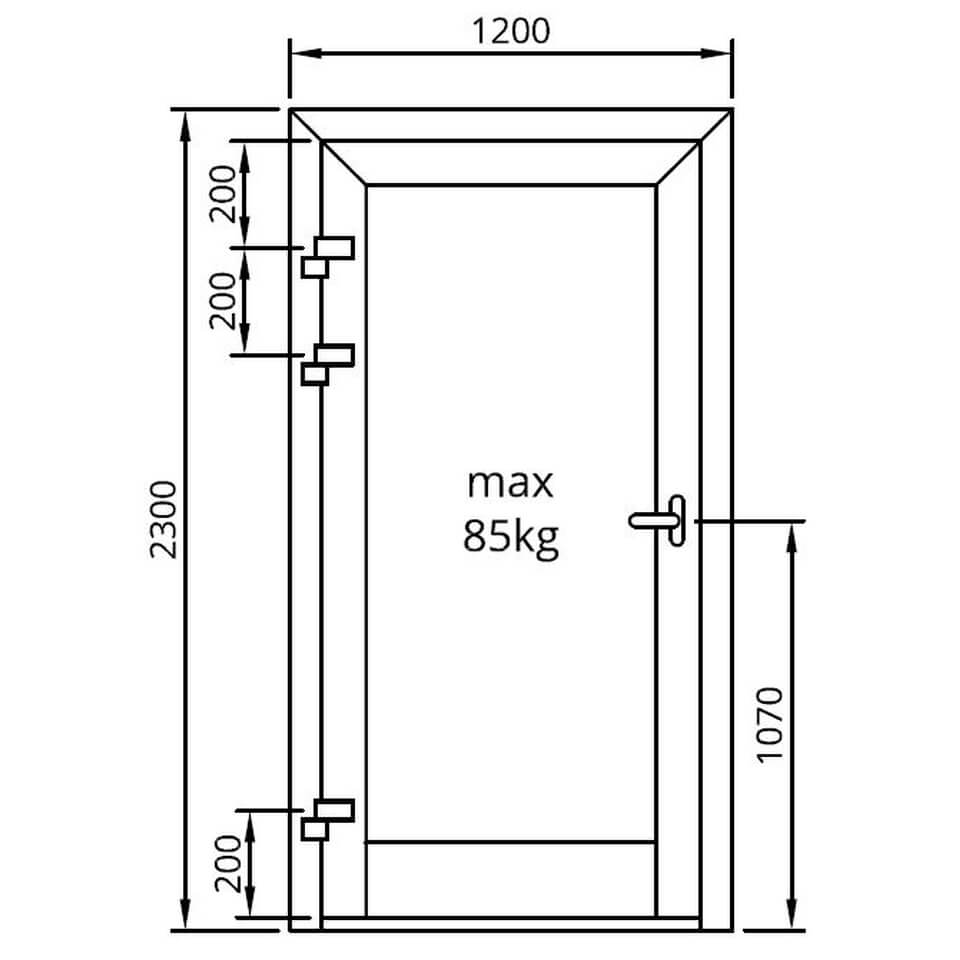
Drutex MB-86SI Türband 2flg 3 Stück 1200x2300 Details

MB-86 SI 3x 2-flüglige Türbänder mit maximal Maßen und Gewicht

Drutex MB-86SI Türband 2flg 4 Stück 1250x2400 Details

MB-86 SI 4x 2-flüglige Türbänder mit maximal Maßen und Gewicht

Drutex MB-86SI Türband 3flg 3 Stück 1250x2400 Details

MB-86 SI 3x 3-flüglige Türbänder mit maximal Maßen und Gewicht

Drutex MB-86SI Türband 3flg 4 Stück 1250x2400 Details

MB-86 SI 4x 3-flüglige Türbänder mit maximal Maßen und Gewicht

Technische Daten - Aluminiumfenster Drutex MB-86SI
Weiter zur Produktseite Alufenster MB-86SI

Gratis levering

Bij een bestelling van 10 ramen of meer in Nederland!

Vraag nu een offerte aan voor aluminium kozijnen

Das könnte Sie auch interessieren:

Aluminiumfenster MB-70HI

Detailzeichnungen Aluminiumfenster MB-70HI

Aluminiumfenster MB-70HI mit starker Isolierung aber einem schmaleren Profil

Aluminiumfenster MB-45

Detailzeichnungen Aluminiumfenster MB-45

Aluminiumfenster MB-45 mit schmalem Profil für den Innenbereich