Einfach und bequem Fenster Aluprof MB-86SI online konfigurieren und bestellen bei fensterblick.de
Alufenster - Aluprof MB-86 SI
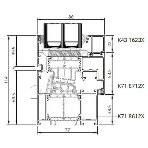
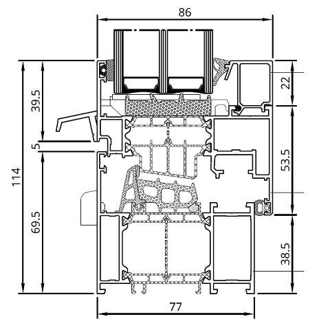
Schlank und stilvoll mit hoher Wärmedämmung
- 3-Kammersystem mit hoher thermischer Trennung
- Rahmenbautiefe von 77 mm
- Flügelbautiefe von 86 mm
- Mitteldichtung aus mehreren Komponenten
- Maximale Glasstärke bis 67,5 mm
vanaf 175,52 €
incl. 21% BTW excl. verzendkosten
Produktbeschreibung
MB-86SI Aluminiumfenster – Design und Funktionalität in höchster Vollendung
Eine hervorragende Wärmedämmleistung ist das Markenzeichen der Alu-Systeme MB-86 SI. Das 3-Kammer-System hat breite Isolierstege mit neuer Form, die eine zusätzliche Kammer in der Isolierzone des Profils ermöglichen. Additional wird in der mittleren Profilkammern ein weiterer Isoliersteg (SI) eingesetzt, um eine optimale Wärmeisolation zu erreichen. Die Dichtheit des Fensters wird durch eine zentrale Zweikomponentendichtung gewährleistet, die als Abdichtung und thermische Isolierung des Raums zwischen Flügel und Rahmen dient. Gleichzeitig überzeugt das Profilsystem durch das breite Verglasungsspektrum. Für die Alu-Fenster-Systeme MB-86 SI können Verglasung mit einer maximalen Glasstärke von bis zu 58,5 mm (Rahmen) und 67,5 mm (Flügel) eingesetzt werden. Damit können problemlos Funktionsverglasungen für eine optimale Sicherheit, Schallschutz und Wärmedämmung zusammengestellt werden. Der Farbgestaltung sind dank einer Palette aus 200 RAL-Farben und neu auch Holzdekorfarben von Decoral nahezu keine Grenzen gesetzt. Überzeugen auch Sie sich von den starken Vorteilen und konfigurieren Sie Ihr Alu_Fenster MB-86 SI nach eigenen Bedürfnissen einfach online zu günstigen Preisen.
Weiter zu Detailzeichnungen - MB-86 SI
Vorteile vom Fensterprofil Aluminium MB-86 SI:
Profil:
3-Kammersystem mit Isolierstegen aus mit Glasfasern verstärktem Polyamid für ausgezeichnete Wärmedämmung. Rahmenbautiefe von 77 mm; Flügelbautiefe von 86 mm.
Verglasung:
Starke Isolierverglasung in 2-fach bis 4-fach Verglasung. Optionale Ausstattung mit Funktionsgläser für höhere Schalldämmung, Sicherheit und mehr.
Dichtungen:
Zuverlässiges Dichtungssystem mit Zentraldichtung aus Zweikomponenten EPDM sowie Scheiben- und Anschlagsdichtungen aus synthetischem EPDM.
Beschläge:
Hochwertige MACO MULTI MATIC KS Beschläge mit Einbruchsicherungspilzzapfen für optimale Sicherheit, sowie einer Fehlbediensperre für mehr Komfort.
Alu-Fenster Aluprof MB-86 SI - Profilansichten
Alu-Fenster Farbkonfigurator für mehr Farbspielraum
Die präsentierten Farben und Maserungen können von der Realität abweichen. (Klicken Sie auf Ihre Wunschfarbe)
Fenster Aluprof MB-86 SI nach Maß
Gratis levering
Bij een bestelling van 10 ramen of meer in Nederland!
Meer producten van Aluprof:
Aluprof Kozijnen | Aluprof Voordeuren | Aluprof Rolluiken | Aluprof MB-45 | Aluprof MB-70 | Aluprof MB-79N | Aluprof MB-86 | Aluprof MB-86N
Zusammenfassung: Produktinformationen







