Detailzeichnungen Aluminiumfenster MB-70HI

Inhaltsverzeichnis:

Aluminiumfensterprofil MB-70HI Querschnitte

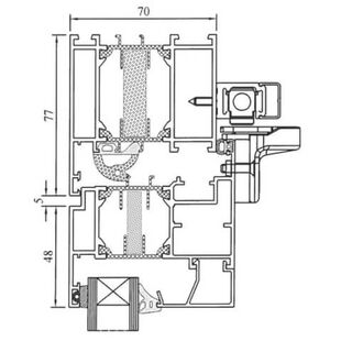
Drutex MB 70 HI Rahmen mit Flügel Detailzeichnung

MB-70HI Fenster Rahmen mit Flügel

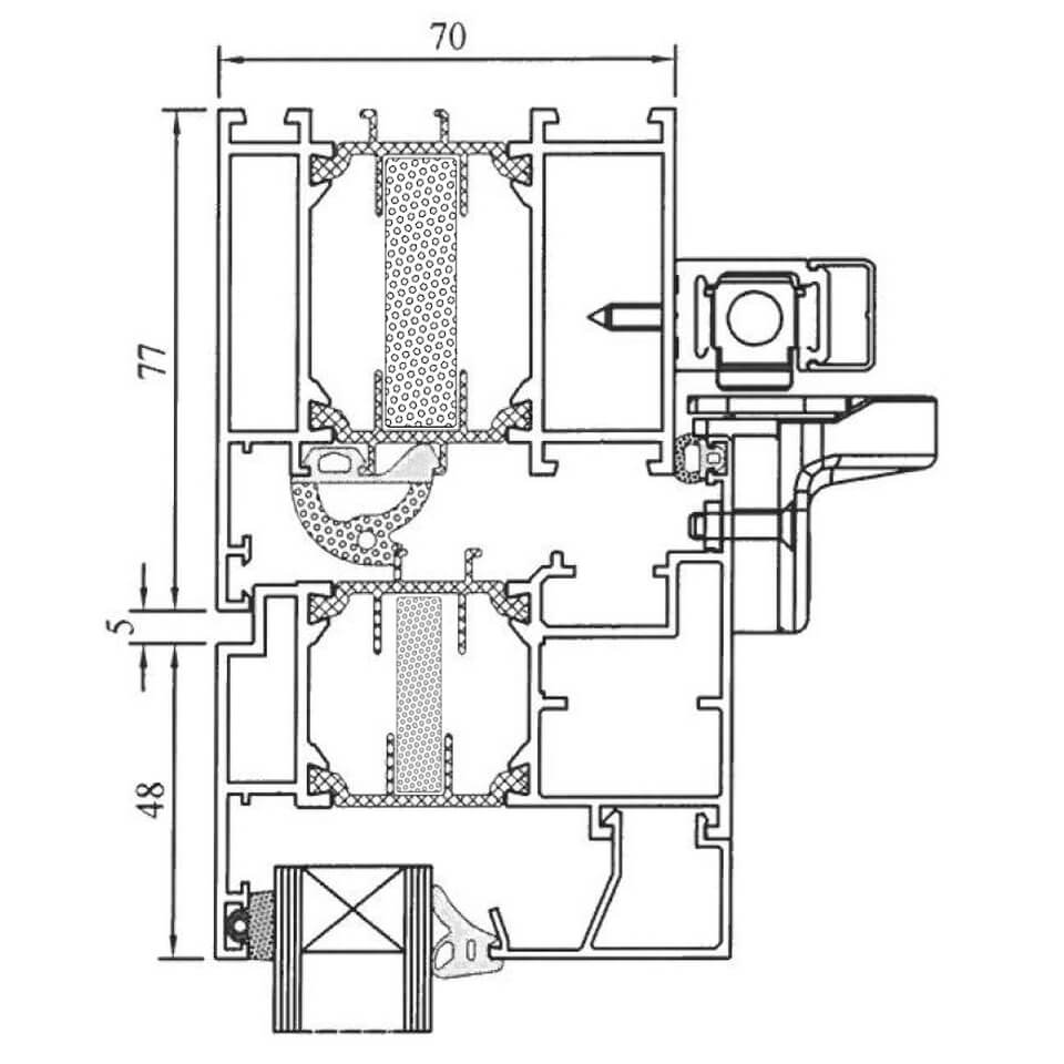
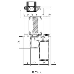
Drutex MB 70 HI Fensterprofil Detail

MB-70HI Fensterprofil

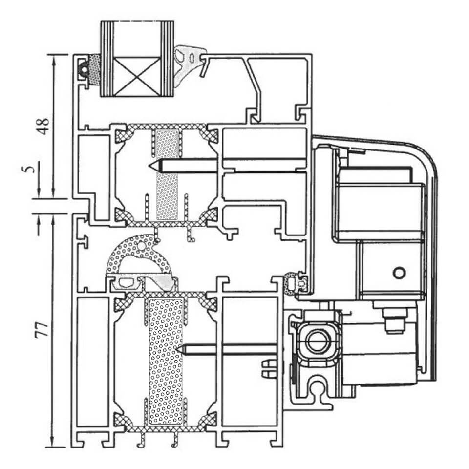
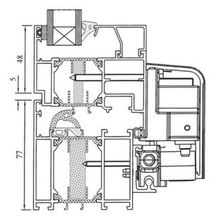
Drutex MB 70 HI Fensterprofil mit Wasserschenkel Detail

MB-70HI Fensterprofil mit Wasserschenkel

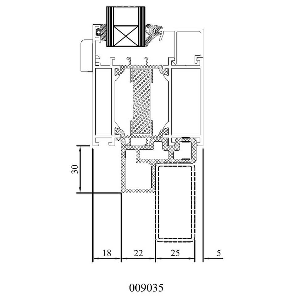
Drutex MB 70 HI Fensterprofil Festverglasung Detailzeichnung

MB-70HI Fenster Festverglasung

Drutex MB 70 HI Pfosten für Zweiflüglig Detailzeichnung

MB-70HI Fenster mit Pfosten

Drutex MB 70 HI Stulpfenster Profil Detailzeichnung

MB-70HI Fenster mit Stulp

Drutex MB 70 HI Pfosten mit Dreh-Kipp/Fest Detail

MB-70HI Pfosten mit Dreh-Kipp/Fest

Drutex MB 70 HI Fenster Anschlussprofil Detailzeichnung

MB-70HI Fenster Anschlussprofil

Drutex MB 70 HI Festverglasung Anschlussprofil Detailzeichnung

MB-70HI Festverglasung Anschlussprofil

Aluminiumfenster MB-70HI Sprossenarten

Innenliegende SZR Sprossen / Helima Sprossen

Drutex Iglo SZR Sprosse 8mm

Innenliegende Sprosse 8mm

Drutex Iglo SZR Sprosse 18mm

Innenliegende Sprosse 18mm

Drutex Iglo SZR Sprosse 26mm

Innenliegende Sprosse 26mm

Drutex Iglo SZR Sprosse 45mm

Innenliegende Sprosse 45mm

Glasteilende Sprossen - Kämpfer

Drutex MB 70 HI Kämpfersprosse Detailzeichnung

MB-70HI Glasteilende Sprosse/Kämpfer

Drutex MB 70 HI Statik Profil innen Detailzeichnung

MB-70HI Kämpfer mit statischem Profil innen

Drutex MB 70 HI Statik Profil außen Detailzeichnung

MB-70HI Kämpfer mit statischem Profil außen

Aluminiumprofil MB-70HI Rahmenverbreiterung

Drutex MB 70 HI 34mm Rahmenverbreiterung Detailzeichnung

MB-70HI Rahmenverbreiterung 34mm

Drutex MB 70 HI 56mm Rahmenverbreiterung Detailzeichnung

MB-70HI Rahmenverbreiterung 56mm

Aluminiumprofil MB-70HI Kopplungen

Drutex MB 70 HI H-Kopplungsprofil mit Rundschnur Detail

MB-70HI H-Kopplung mit Rundschnur

Drutex MB 70 HI statische Kopplung innen Detailansicht

MB-70HI Statische Kopplung innen

Drutex MB 70 HI statische Kopplung außen Detailansicht

MB-70HI Statische Kopplung außen

Drutex MB 70 HI Kopplungsdehnungsprofil Detailansicht

MB-70HI Kopplungsdehnungsprofil

Drutex MB 70 HI Eckprofil 90° Detailansicht

MB-70HI Eckkopplung 90°

Drutex MB 70 HI Eckprofil 135° Detailansicht

MB-70HI Eckkopplung 135°

Drutex MB 70 HI Eckverbinder Variabel aussen Detailansicht

MB-70HI Eckkopplung Variabel außen

Drutex MB 70 HI Eckverbinder Variabel innen Detailansicht

MB-70HI Eckkopplung Variabel innen

Drutex MB 70 HI Eckverbinder Variabel Tabelle Detailansicht

MB-70HI Eckkopplung Variabel Tabelle

Aluminium MB-70HI PSK-Tür

Drutex MB 70 HI PSK-Tür unten Profilschnitt Detail

MB-70HI PSK-Tür unterer Rahmen

Drutex MB 70 HI PSK-Tür oben Profilschnitt Detail

MB-70HI PSK-Tür oberer Rahmen

Aluminium MB-70HI Balkontür

Öffnungsrichtung nach innen

Drutex MB 70 HI Balkontür nach innen Rahmen Profil Detail

MB-70HI Balkontür nach innen

Drutex MB 70 HI Balkontür nach innen Detail Pfosten DK/Fest

MB-70HI Balkontür nach innen mit Seitenteil Fest

Drutex MB 70 HI Balkontür innen Pfosten Statisch DK Fest

MB-70HI Balkontür nach innen mit statischem Pfosten

Öffnungsrichtung nach außen

Drutex MB 70 HI Balkontür nach aussen Rahmen Profil Detail

MB-70HI Balkontür nach außen

Drutex MB 70 HI Balkontür nach außen Detail Pfosten DK/Fest

MB-70HI Balkontür nach außen mit Seitenteil Fest

Drutex MB 70 HI Balkontür außen Pfosten Statisch DK Fest

MB-70HI Balkontür nach außen mit statischem Pfosten

Aluminium MB-70HI Tür

Öffnungsrichtung nach innen

Drutex MB 70 HI Tür nach innen Rahmen Schnitt Detail

MB-70HI Tür nach innen Rahmenprofil

Drutex MB 70 HI Tür nach innen Schwelle Detailzeichnung

MB-70HI Tür nach innen Schwelle

Drutex MB 70 HI Tür mit Stulp Detailzeichnung

MB-70HI Tür mit Stulp

Öffnungsrichtung nach außen

Drutex MB 70 HI Tür nach außen Rahmen Schnitt Detail

MB-70HI Tür nach außen Rahmenprofil

Drutex MB 70 HI Tür nach außen mit Schwelle Detail

MB-70HI Tür nach außen mit Schwelle

Technische Daten - Aluminiumfenster Drutex MB-70HI
Weiter zur Produktseite Alufenster MB-70HI

Gratis levering

Bij een bestelling van 10 ramen of meer in Nederland!

Vraag nu een offerte aan voor aluminium kozijnen

Das könnte Sie auch interessieren:

Aluminiumfenster MB-70

Detailzeichnungen Aluminiumfenster MB-70

Aluminiumfenster MB-70 besitzt den gleichen Aufbau nur ohne die Isolierschichten

Aluminiumfenster MB-86 SI

Detailzeichnungen Aluminiumfenster MB-86 SI

Aluminiumfenster MB-86 SI verfügen über eine sehr gute Wärmedämmung