Detailzeichnungen Aluminiumfenster MB-70

Inhaltsverzeichnis:

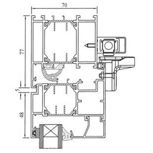
Aluminiumfensterprofil MB-70 Querschnitte

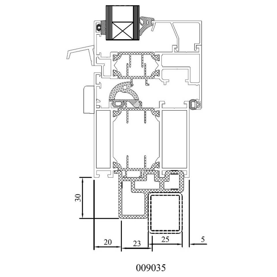
Drutex MB 70 Rahmen mit Flügel Detailzeichnung

MB-70 Fenster Rahmen mit Flügel

Drutex MB 70 Fensterprofil Detail

MB-70 Fensterprofil

Drutex MB 70 Rahmen mit Flügel und Wasserschenkel Detail

MB-70 Fensterprofil mit Wasserschenkel

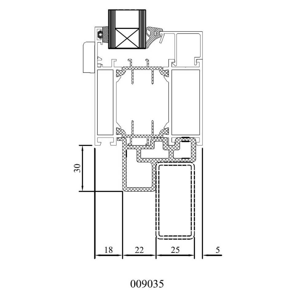
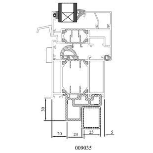
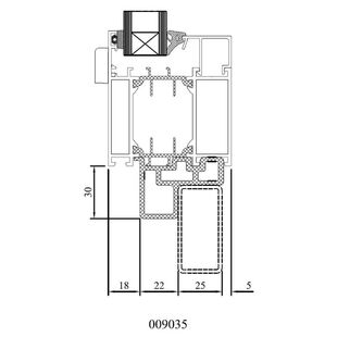
Drutex MB 70 Fensterprofil Festverglasung Detailzeichnung

MB-70 Fenster Festverglasung

Drutex MB 70 Pfosten für Zweiflüglig Detailzeichnung

MB-70 Fenster mit Pfosten

Drutex MB 70 Stulpfenster Profil Detailzeichnung

MB-70 Fenster mit Stulp

Drutex MB 70 Pfosten mit Dreh-Kipp/Fest Detail

MB-70 Pfosten mit Dreh-Kipp/Fest

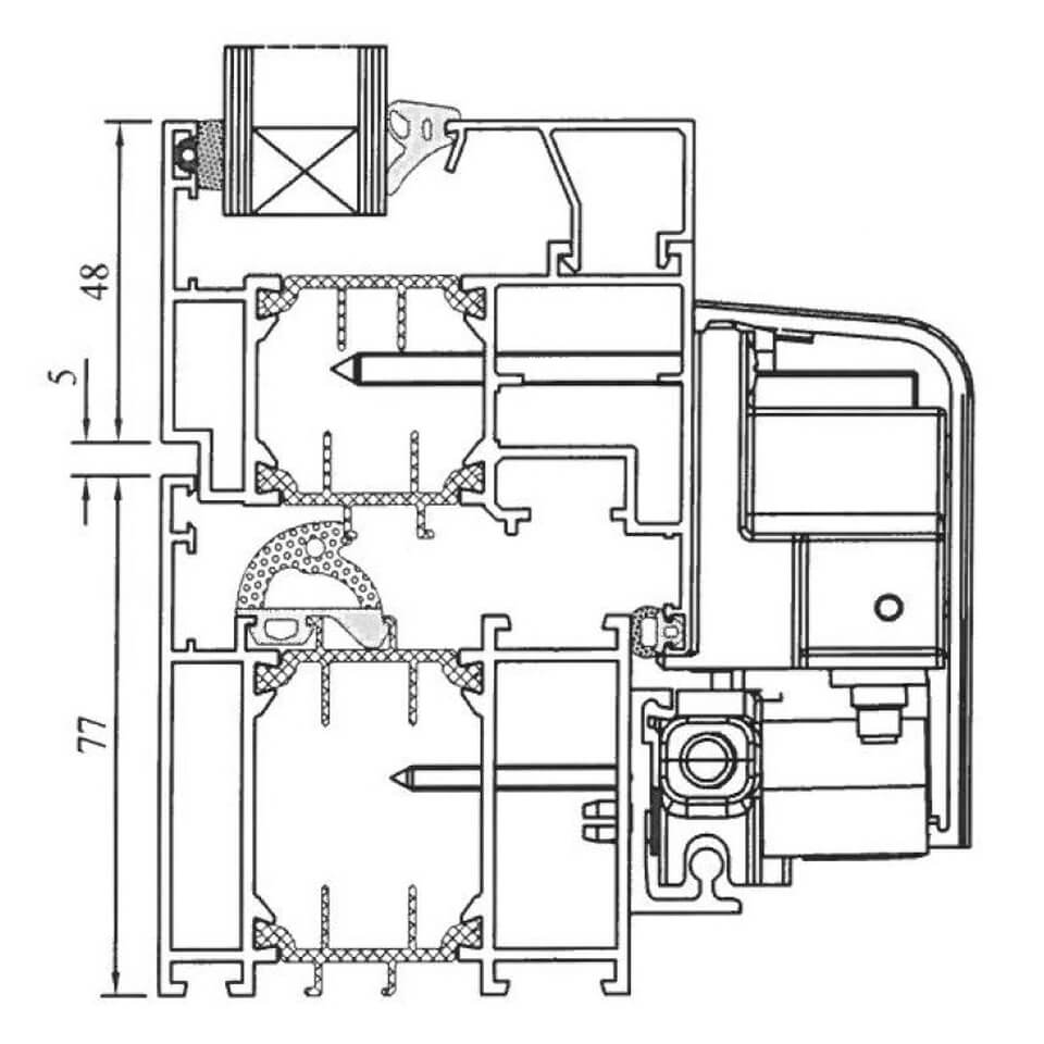
Drutex MB 70 Fenster Anschlussprofil Detailzeichnung

MB-70 Fenster Anschlussprofil

Drutex MB 70 Festverglasung Anschlussprofil Detailzeichnung

MB-70 Festverglasung Anschlussprofil

Aluminiumfenster MB-70 Sprossenarten

Innenliegende SZR Sprossen / Helima Sprossen

Drutex Iglo SZR Sprosse 8mm

Innenliegende Sprosse 8mm

Drutex Iglo SZR Sprosse 18mm

Innenliegende Sprosse 18mm

Drutex Iglo SZR Sprosse 26mm

Innenliegende Sprosse 26mm

Drutex Iglo SZR Sprosse 45mm

Innenliegende Sprosse 45mm

Glasteilende Sprossen - Kämpfer

Drutex MB 70 Kämpfersprosse Detailzeichnung

MB-70 Glasteilende Sprosse/Kämpfer

Drutex MB 70 Statik Profil innen Detailzeichnung

MB-70 Pfosten mit statischem Profil innen

Drutex MB 70 Statik Profil außen Detailzeichnung

MB-70 Pfosten mit statischem Profil außen

Aluminiumprofil MB-70 Rahmenverbreiterung

Drutex MB 70 34mm Rahmenverbreiterung Detailzeichnung

MB-70 Rahmenverbreiterung 34mm

Drutex MB 70 56mm Rahmenverbreiterung Detailzeichnung

MB-70 Rahmenverbreiterung 56mm

Aluminiumprofil MB-70 Kopplungen

Drutex MB 70 H-Kopplungsprofil mit Rundschnur Detailansicht

MB-70 H-Kopplung mit Rundschnur

Drutex MB 70 statische Kopplung innen Detailansicht

MB-70 Statische Kopplung innen

Drutex MB 70 statische Kopplung außen Detailansicht

MB-70 Statische Kopplung außen

Drutex MB 70 Kopplungsdehnungsprofil Detailansicht

MB-70 Kopplungsdehnungsprofil

Drutex MB 70 Eckprofil 90° Detailansicht

MB-70 Eckkopplung 90°

Drutex MB 70 Eckprofil 135° Detailansicht

MB-70 Eckkopplung 135°

Drutex MB 70 Eckverbinder Variabel innen Detailansicht

MB-70 Eckkopplung Variabel innen

Drutex MB 70 Eckverbinder Variabel aussen Detailansicht

MB-70 Eckkopplung Variabel außen

Drutex MB 70 Eckverbinder Variabel Tabelle Detailansicht

MB-70 Eckkopplung Variabel Tabelle

Aluminium MB-70 PSK-Tür

Drutex MB 70 PSK-Tür unten Profilschnitt Detail

MB-70 PSK-Tür unterer Rahmen

Drutex MB 70 PSK-Tür oben Profilschnitt Detail

MB-70 PSK-Tür oberer Rahmen

Aluminium MB-70 Balkontür

Öffnungsrichtung nach innen

Drutex MB 70 Balkontür nach innen Rahmen Profil Detail

MB-70 Balkontür nach innen

Drutex MB 70 Balkontür nach innen Detail Pfosten DK/Fest

MB-70 Balkontür nach innen mit Seitenteil Fest

Drutex MB 70 Balkontür innen Pfosten Statisch DK Fest

MB-70 Balkontür nach innen mit statischem Pfosten

Öffnungsrichtung nach außen

Drutex MB 70 Balkontür nach aussen Rahmen Profil Detail

MB-70 Balkontür nach außen

Drutex MB 70 Balkontür nach außen Detail Pfosten DK Fest

MB-70 Balkontür nach außen mit Seitenteil

Drutex MB 70 Balkontür außen Pfosten Statisch DK Fest

MB-70 Balkontür nach außen mit statischem Pfosten

Aluminium MB-70 Tür

Öffnungsrichtung nach innen

Drutex MB 70 Tür nach innen Rahmen Schnitt Detailzeichnung

MB-70 Tür nach innen Rahmenprofil

Drutex MB 70 Tür nach innen Schwelle Detailzeichnung

MB-70 Tür nach innen Schwelle

Drutex MB 70 Tür mit Stulp Detailzeichnung

MB-70 Tür mit Stulp

Öffnungsrichtung nach außen

Drutex MB 70 Tür nach außen Rahmen Schnitt Detailzeichnung

MB-70 Tür nach außen Rahmenprofil

Drutex MB 70 Tür nach außen mit Schwelle Detailzeichnung

MB-70 Tür nach außen mit Schwelle

Technische Daten - Aluminiumfenster Drutex MB-70
Weiter zur Produktseite Alufenster MB-70

Gratis levering

Bij een bestelling van 10 ramen of meer in Nederland!

Vraag nu een offerte aan voor aluminium kozijnen

Das könnte Sie auch interessieren:

Aluminiumfenster MB-70HI

Detailzeichnungen Aluminiumfenster MB-70HI

Aluminiumfenster MB-70HI erhalten zusätzliche Isolierschichten für mehr Wärmedämmung

Aluminiumfenster MB-45

Detailzeichnungen Aluminiumfenster MB-45

Aluminiumfenster MB-45 besitzen ein schmales und doch starkes Profil