Detailzeichnungen Rollladen Aluprof SKT Opoterm

Inhaltsverzeichnis:

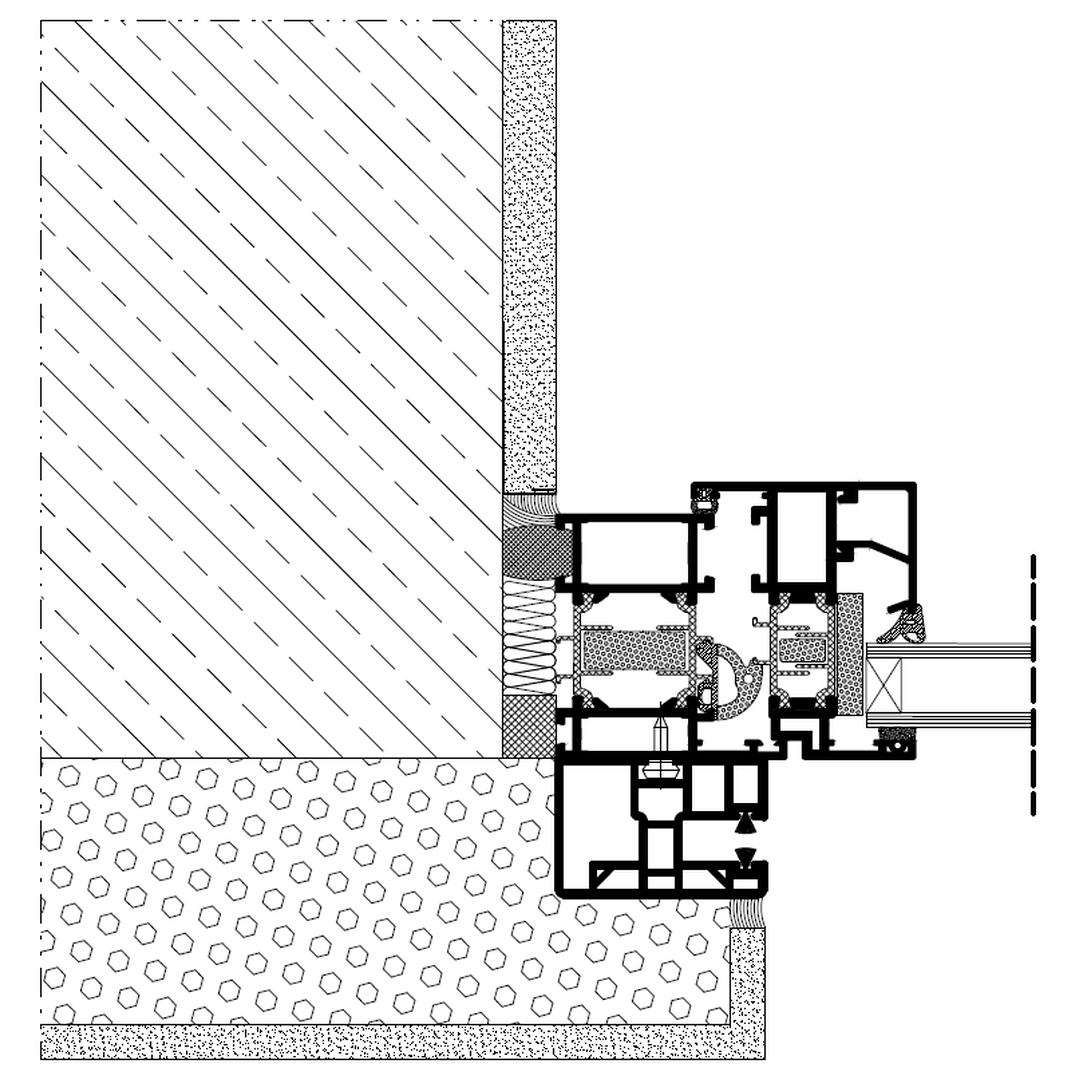
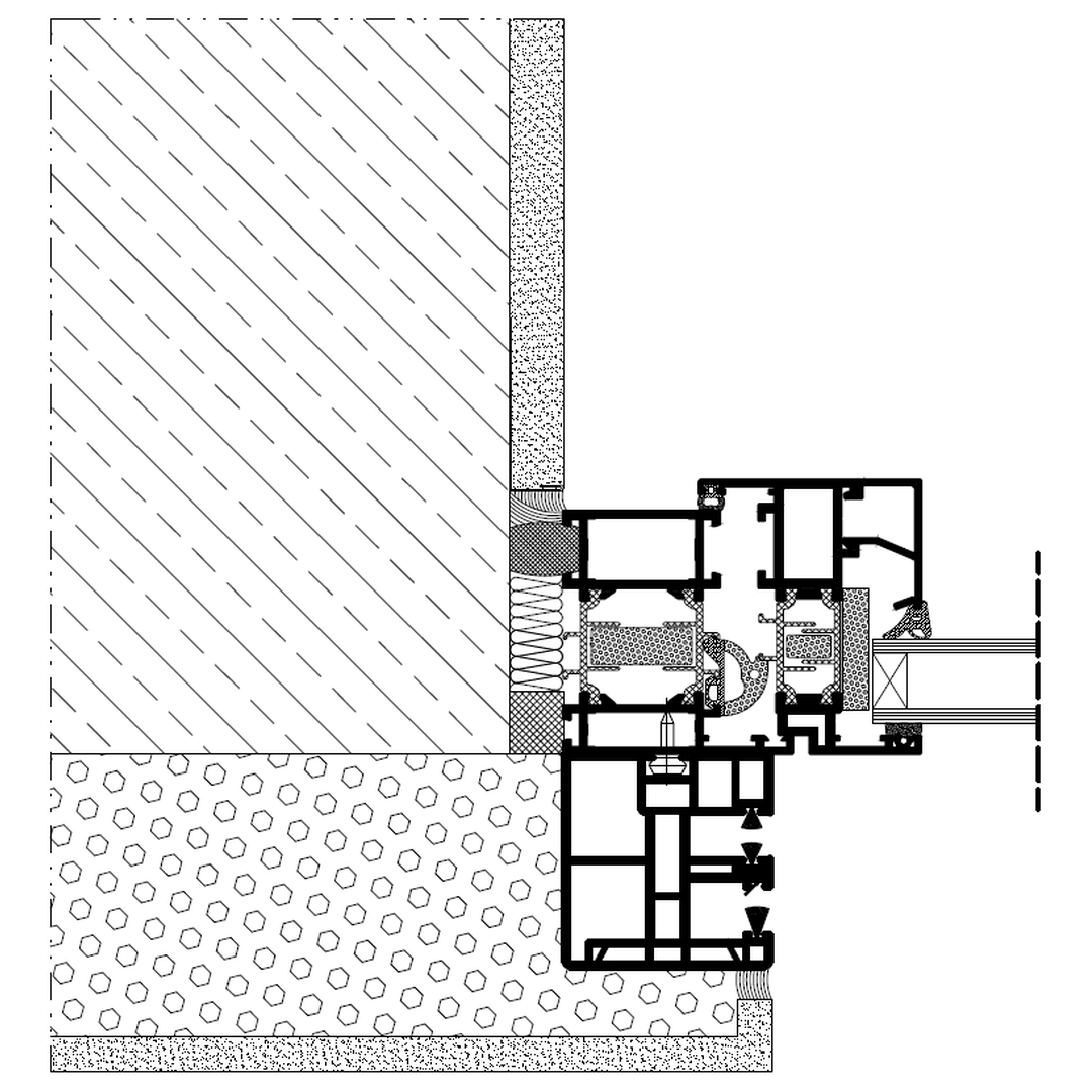
Aufsatzrollladen SKT Opoterm

Aufsatzrollladen SKT Opoterm mit Kastenhöhe 170mm

Aufsatzrollladen SKT Opoterm 170mm

Aufsatzrollladen SKT Opoterm mit Kastenhöhe 210mm

Aufsatzrollladen SKT Opoterm 210mm

Aufsatzrollladen SKT Opoterm mit Kastenhöhe 240mm

Aufsatzrollladen SKT Opoterm 240mm

Aufsatzrollladen SKT Opoterm mit Insektenschutz

Aufsatzrollladen SKT mit Insektenschutz 170mm

Aufsatzrollladen SKT Opoterm mit Insektenschutz 170mm

Aufsatzrollladen SKT Opoterm mit Insektenschutz 210mm

Aufsatzrollladen SKT Opoterm mit Insektenschutz 210mm

Aufsatzrollladen SKT Opoterm mit Insektenschutz 240mm

Aufsatzrollladen SKT Opoterm mit Insektenschutz 240mm

Aufsatzrollladen SKT Opoterm Oval

Aufsatzrollladen SKT Opoterm mit Kastenhöhe 170mm oval

Aufsatzrollladen SKT Opoterm 170mm (oval)

Aufsatzrollladen SKT Opoterm mit Kastenhöhe 210mm oval

Aufsatzrollladen SKT Opoterm 210mm (oval)

Aufsatzrollladen SKT Opoterm mit Kastenhöhe 240mm oval

Aufsatzrollladen SKT Opoterm 240mm (oval)

Aufsatzrollladen SKT Opoterm mit Insektenschutz 170mm oval

Aufsatzrollladen SKT Opoterm mit Insektenschutz 170mm (oval)

Aufsatzrollladen SKT Opoterm mit Insektenschutz 210mm oval

Aufsatzrollladen SKT Opoterm mit Insektenschutz 210mm (oval)

Aufsatzrollladen SKT Opoterm mit Insektenschutz 240mm oval

Aufsatzrollladen SKT Opoterm mit Insektenschutz 240mm (oval)

Aufsatzrollladen Aluprof SKT Opoterm Einzelteile

Führungsschienen für Aufsatzrollladen SKT Opoterm

Aufsatzrollladen Führungsschiene PPA 35mm

Aufsatzrollladen Führungsschiene PPA 35mm

Aufsatzrollladen Führungsschiene PPA 35mm

Aufsatzrollladen Führungsschiene PPA 35mm

Aufsatzrollladen Führungsschiene PP 60mm

Aufsatzrollladen Führungsschiene PP 60mm

Aufsatzrollladen Führungsschiene PP 60mm

Aufsatzrollladen Führungsschiene PP 60mm

Aufsatzrollladen Führungsschiene PPM 60mm mit Insektenschutz

Aufsatzrollladen Führungsschiene PPM 60mm mit Insektenschutzgitter

Aufsatzrollladen Führungsschiene PP 60mm mit Insektenschutz

Aufsatzrollladen Führungsschiene PPM 60mm mit Insektenschutzgitter

Aufsatzrollladen Führungsschiene PPD 60mm zweiseitig

Aufsatzrollladen Führungsschiene PPD 60mm zweiseitig

Aufsatzrollladen Führungsschiene PPD 60mm

Aufsatzrollladen Führungsschiene PPD 60mm zweiseitig

Aufsatzrollladen Führungsschiene PPDM 60mm mit Insektenschutz

Aufsatzrollladen Führungsschiene PPDM 60mm mit Insektenschutzgitter zweiseitig

Aufsatzrollladen Führungsschiene PPDM 60mm mit Insektenschutz

Aufsatzrollladen Führungsschiene PPDM 60mm mit Insektenschutzgitter zweiseitig

Aufsatzrollladen Führungsschiene PPD-P 60mm

Aufsatzrollladen Führungsschiene PPD-P 60mm zweiseitig

Aufsatzrollladen Führungsschiene PPD-P 60mm zweiseitig

Aufsatzrollladen Führungsschiene PPD-P 60mm zweiseitig

Aufsatzrollladen Führungsschiene PPDM-P 60mm mit Insektenschutz zweiseitig

Aufsatzrollladen Führungsschiene PPDM-P 60mm mit Insektenschutzgitter zweiseitig

Aufsatzrollladen Führungsschiene PPDM-P 60mm mit Insektenschutz

Aufsatzrollladen Führungsschiene PPDM-P 60mm mit Insektenschutzgitter zweiseitig

Aufsatzrollladen Führungsschiene PPDA 60mm

Aufsatzrollladen Führungsschiene PPDA 60mm zweiseitig

Aufsatzrollladen Führungsschiene PPDA 60mm

Aufsatzrollladen Führungsschiene PPDA 60mm zweiseitig

Aufsatzrollladen Führungsschiene PPDA-P 60mm zweiseitig

Aufsatzrollladen Führungsschiene PPDA-P 60mm zweiseitig

Aufsatzrollladen Führungsschiene PPDA-P 60mm

Aufsatzrollladen Führungsschiene PPDA-P 60mm zweiseitig

Rollladenpanzer Lamellen (Profile)

Lamelle PA37 Alu technische Zeichnung

Rollladenprofil PA 37mm (Alu)

Lamelle PA39 Alu technische Zeichnung

Rollladenprofil PA 39mm (Alu)

Lamelle PA40 Alu technische Zeichnung

Rollladenprofil PA 40mm (Alu)

Lamelle PA43 Alu technische Zeichnung

Rollladenprofil PA 43mm (Alu)

Lamelle PA45 Alu technische Zeichnung

Rollladenprofil PA 45mm (Alu)

Lamelle PA52 Alu technische Zeichnung

Rollladenprofil PA 52mm (Alu)

Lamelle PA55 Alu technische Zeichnung

Rollladenprofil PA 55mm (Alu)

Lamelle PT37 PVC technische Zeichnung

Rollladenprofil PT 37mm (PVC)

Lamelle PT52 PVC technische Zeichnung

Rollladenprofil PT 52mm (PVC)

Aufsatzrollladen Endleisten (Abschlussleisten)

Rollladen Endleiste 40mm für Aluminium-Panzer Detail

Rollladenpanzer Endleiste LDG 40mm

Aufsatzrollladen Endleiste LDG-E

Aufsatzrollladen Endleiste LDG-E

Aufsatzrollladen Endleiste LDG

Aufsatzrollladen Endleiste LDG

Aufsatzrollladen Endleiste LDG 52mm

Aufsatzrollladen Endleiste LDG 52mm

Aufsatzrollladen Endleiste LDG 52mm OPT

Aufsatzrollladen Endleiste LDG 52mm OPT

Aufsatzrollladen Endleiste LDG 55mm

Aufsatzrollladen Endleiste LDG 55mm

Aufsatzrollladen Endleiste LDG/S

Aufsatzrollladen Endleiste LDG/S

Aufsatzrollladen mit Insektenschutz Abschlussleiste LDSM MKT

Aufsatzrollladen mit Insektenschutz Abschlussleiste LDSM MKT

Aufsatzrollladen Montagearten

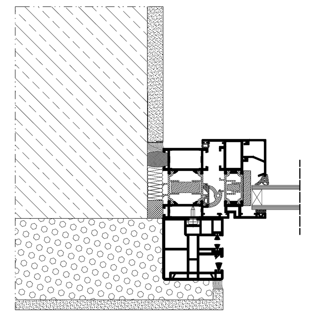
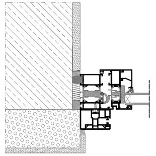
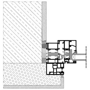
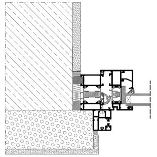
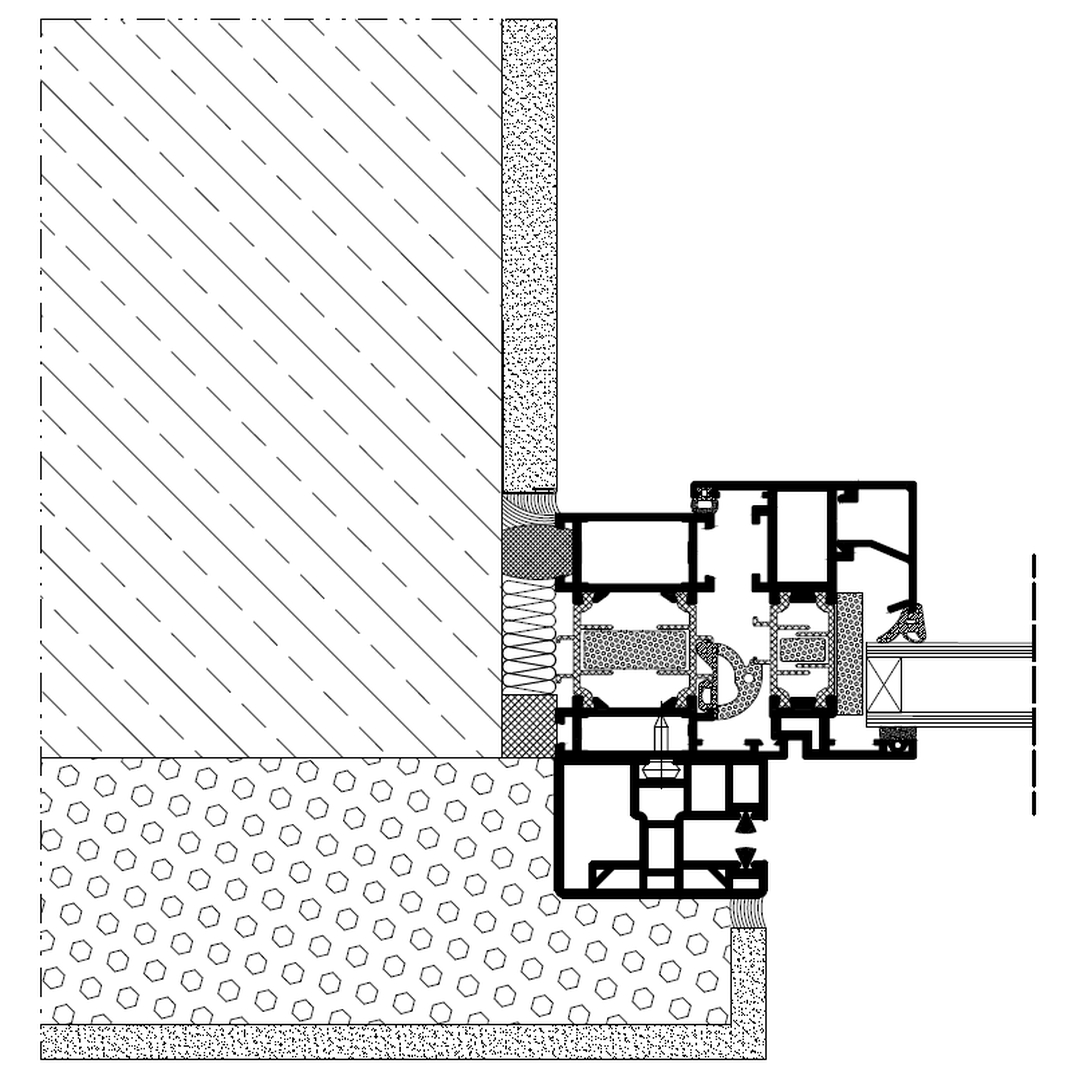
Aufsatzrollladen SKT - Einbaubeispiel 1:

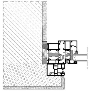
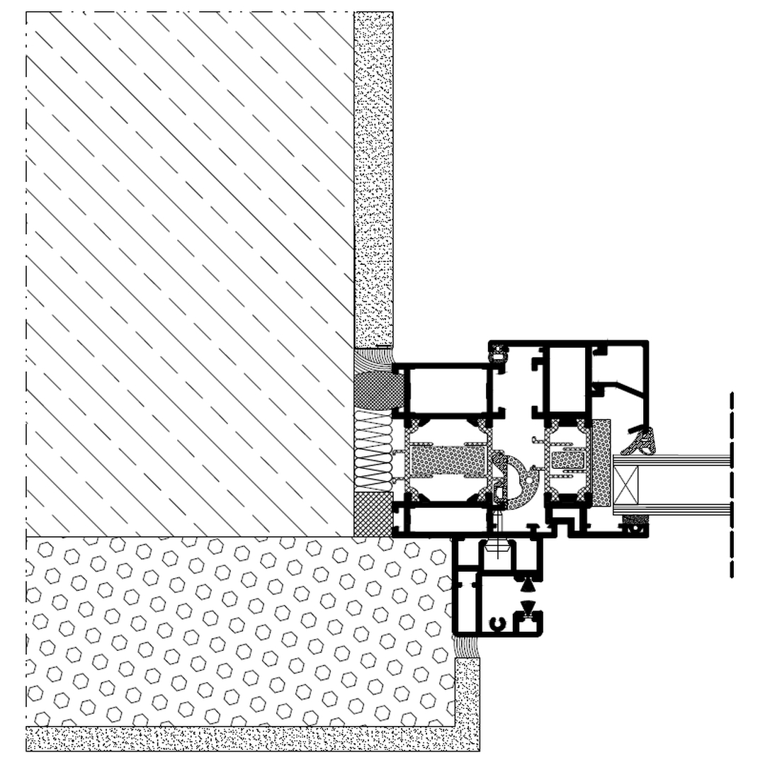
Aufsatzrollladen SKT Einbaubeispiel 1

Aufsatzrollladen SKT Einbaubeispiel 1

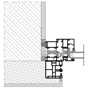
Aufsatzrollladen SKT Einbaubeispiel 1 Führungsschiene

Aufsatzrollladen SKT Einbaubeispiel 1 Führungsschiene

Aufsatzrollladen SKT Einbaubeispiel 1 Führungsschiene zweiseitig

Aufsatzrollladen SKT Einbaubeispiel 1 Führungsschiene zweiseitig

Aufsatzrollladen SKT MKT Einbaubeispiel 1 mit Insektenschutz

Aufsatzrollladen SKT MKT Einbaubeispiel 1

Aufsatzrollladen SKT MKT Einbaubeispiel 1 mit Insektenschutz Führungsschiene

Aufsatzrollladen SKT MKT Einbaubeispiel 1 Führungsschiene

Aufsatzrollladen SKT MKT Einbaubeispiel 1 mit Insektenschutz Führungsschiene zweiseitig

Aufsatzrollladen SKT MKT Einbaubeispiel 1 Führungsschiene zweiseitig

Aufsatzrollladen SKT - Einbaubeispiel 2:

Aufsatzrollladen SKT Einbaubeispiel 2 oval

Aufsatzrollladen SKT Einbaubeispiel 2 (oval)

Aufsatzrollladen SKT Einbaubeispiel 2 Führungsschiene

Aufsatzrollladen SKT Einbaubeispiel 2 Führungsschiene

Aufsatzrollladen SKT MKT Einbaubeispiel 2 mit Insektenschutz (oval)

Aufsatzrollladen SKT MKT Einbaubeispiel 2 (oval)

Aufsatzrollladen SKT MKT Einbaubeispiel 2 mit Insektenschutz Führungsschiene

Aufsatzrollladen SKT MKT Einbaubeispiel 2 Führungsschiene

Aufsatzrollladen SKT - Einbaubeispiel 3:

Aufsatzrollladen SKT Einbaubeispiel 3 auf Putz zweiseitig

Aufsatzrollladen SKT Einbaubeispiel 3 auf Putz zweiseitig

Aufsatzrollladen SKT Einbaubeispiel 3 Führungsschiene

Aufsatzrollladen SKT Einbaubeispiel 3 Führungsschiene

Aufsatzrollladen SKT MKT Einbaubeispiel 3 mit Insektenschutz auf Putz zweiseitig

Aufsatzrollladen SKT MKT Einbaubeispiel 3 auf Putz zweiseitig

Aufsatzrollladen SKT MKT Einbaubeispiel 3 mit Insektenschutz Führungsschiene

Aufsatzrollladen SKT MKT Einbaubeispiel 3 Führungsschiene

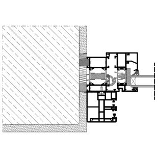
Aufsatzrollladen SKT - Einbaubeispiel 4:

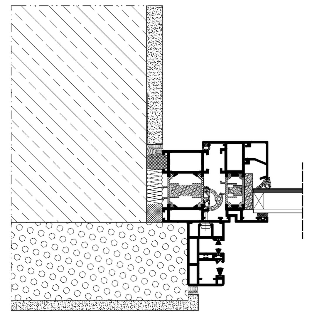
Aufsatzrollladen SKT Einbaubeispiel 3 auf Putz innen

Aufsatzrollladen SKT Einbaubeispiel 4 auf Putz innen

Aufsatzrollladen SKT Einbaubeispiel 4 Führungsschiene

Aufsatzrollladen SKT Einbaubeispiel 4 Führungsschiene

Aufsatzrollladen SKT Einbaubeispiel 4 Führungsschiene schmal

Aufsatzrollladen SKT Einbaubeispiel 4 Führungsschiene schmal

Aufsatzrollladen SKT MKT Einbaubeispiel 4 mit Insektenschutz auf Putz innen

Aufsatzrollladen SKT MKT Einbaubeispiel 4 auf Putz innen

Aufsatzrollladen SKT MKT Einbaubeispiel 4 mit Insektenschutz Führungsschiene

Aufsatzrollladen SKT MKT Einbaubeispiel 4 Führungsschiene

Aufsatzrollladen SKT MKT Einbaubeispiel 4 mit Insektenschutz Führungsschiene schmal

Aufsatzrollladen SKT MKT Einbaubeispiel 4 Führungsschiene schmal

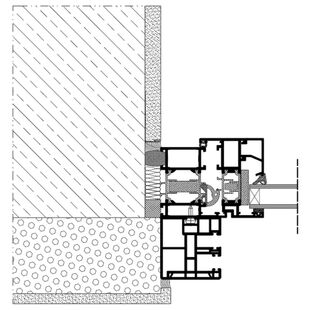
Aufsatzrollladen SKT - Einbaubeispiel 5:

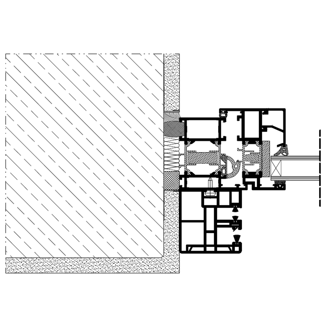
Aufsatzrollladen SKT Einbaubeispiel 5 auf Putz mit Lüftung

Aufsatzrollladen SKT Einbaubeispiel 5 auf Putz mit Lüftung

Aufsatzrollladen SKT Einbaubeispiel 5 Führungsschiene

Aufsatzrollladen SKT Einbaubeispiel 5 Führungsschiene

Aufsatzrollladen SKT MKT Einbaubeispiel 5 mit Insektenschutz auf Putz mit Lüftung

Aufsatzrollladen SKT MKT Einbaubeispiel 5 auf Putz mit Lüftung

Aufsatzrollladen SKT MKT Einbaubeispiel 5 mit Insektenschutz Führungsschiene

Aufsatzrollladen SKT MKT Einbaubeispiel 5 Führungsschiene

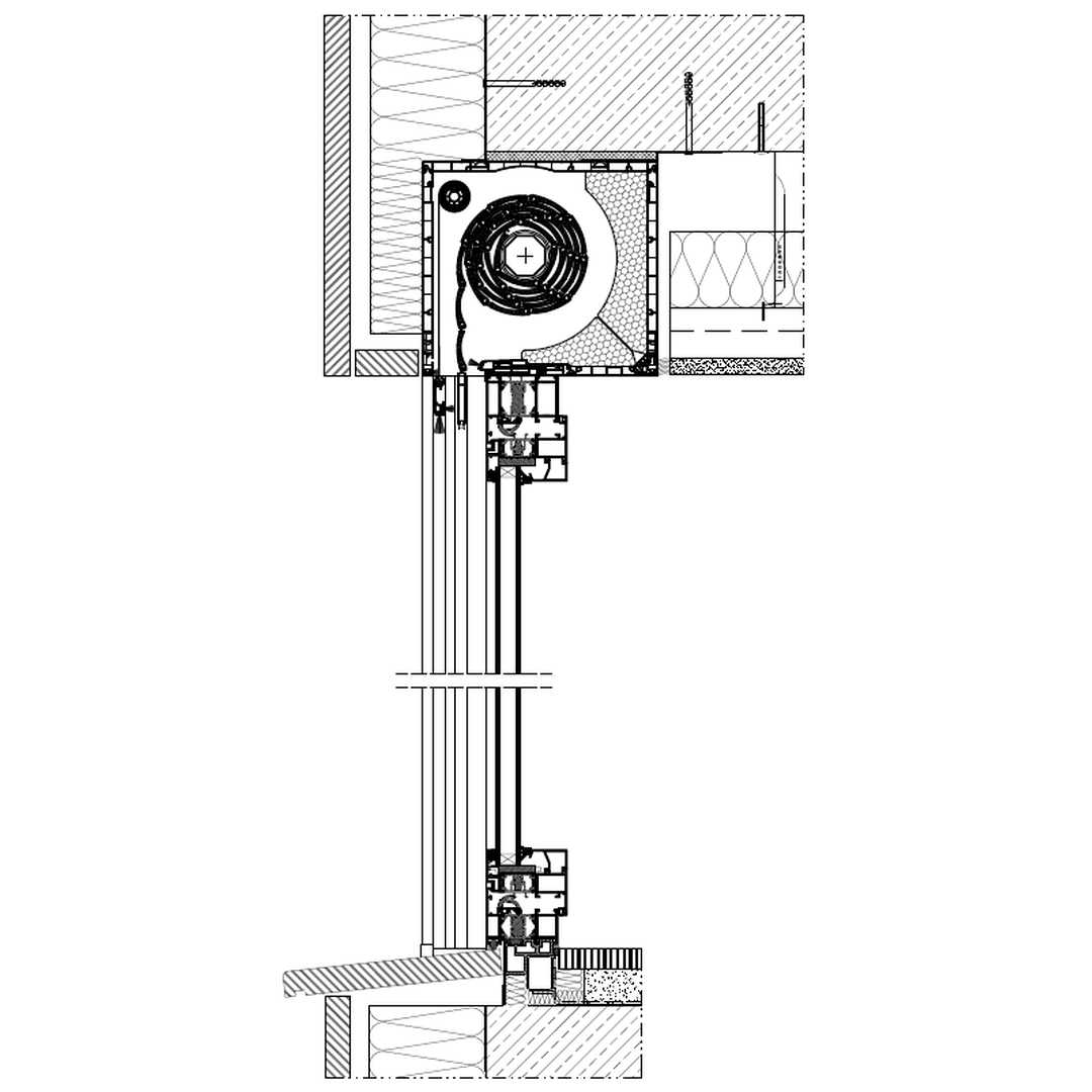
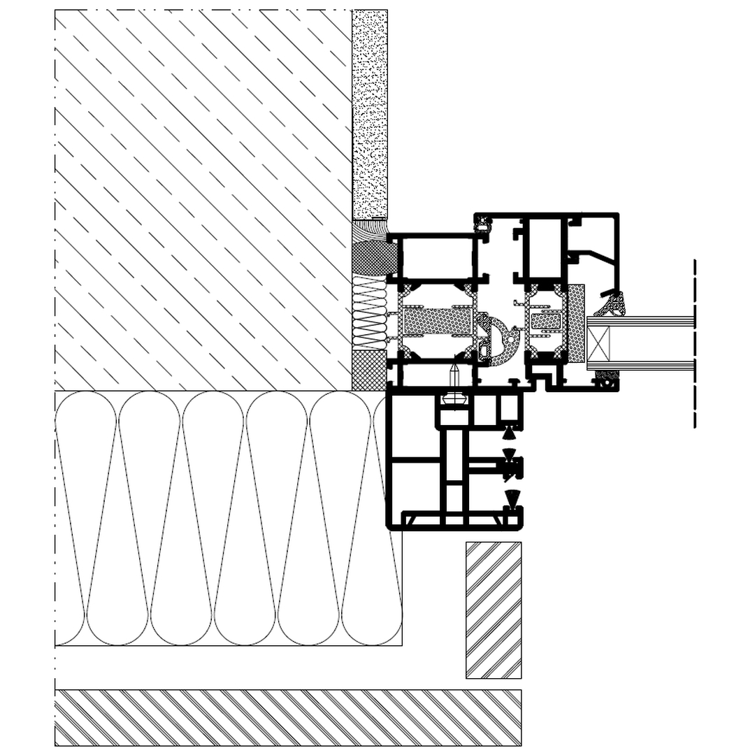
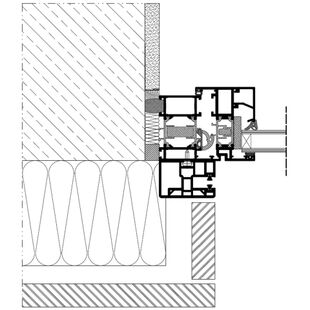
Aufsatzrollladen SKT - Einbaubeispiel 6:

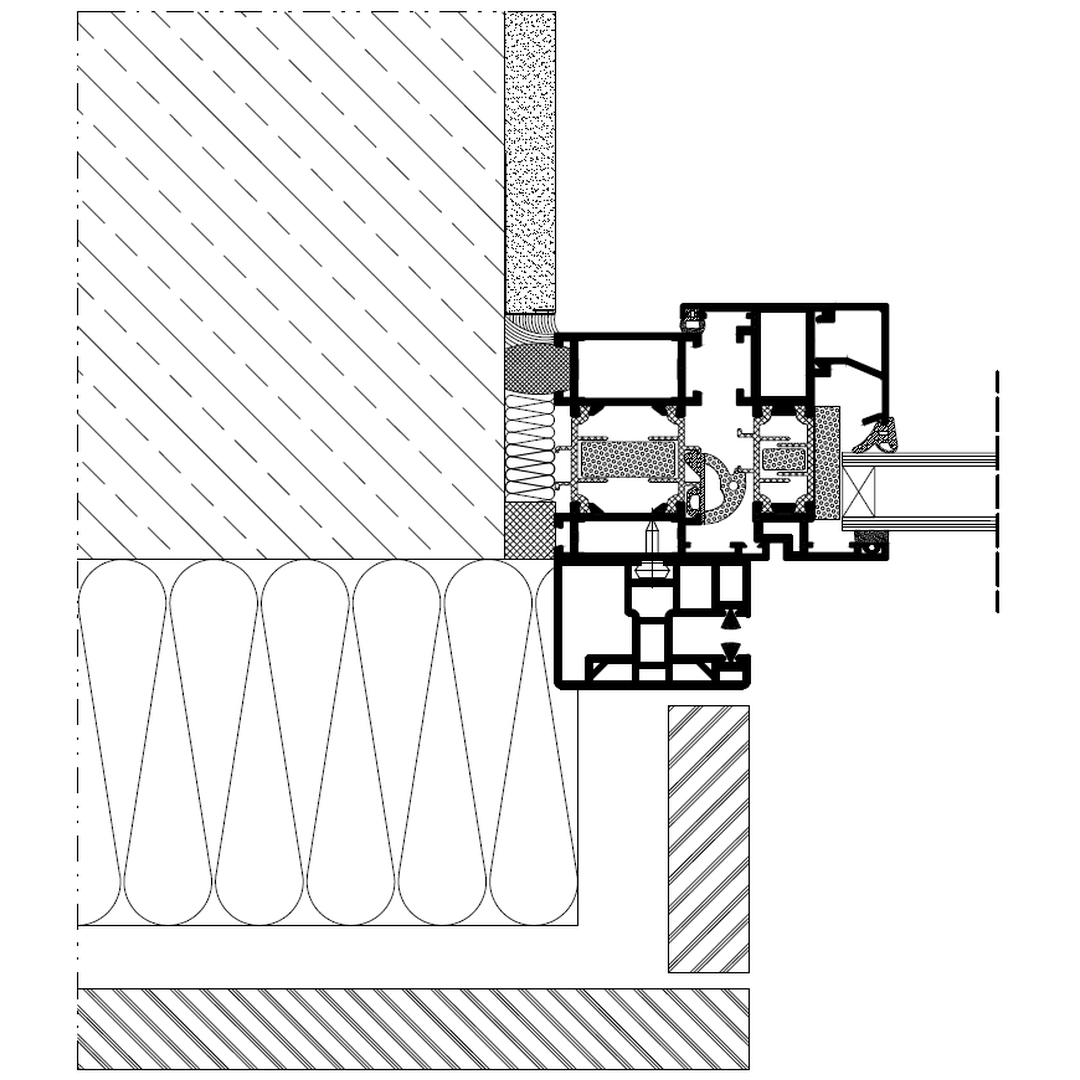
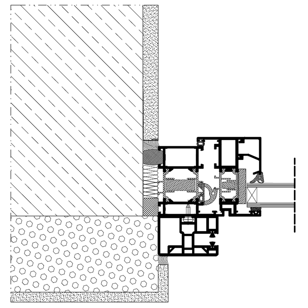
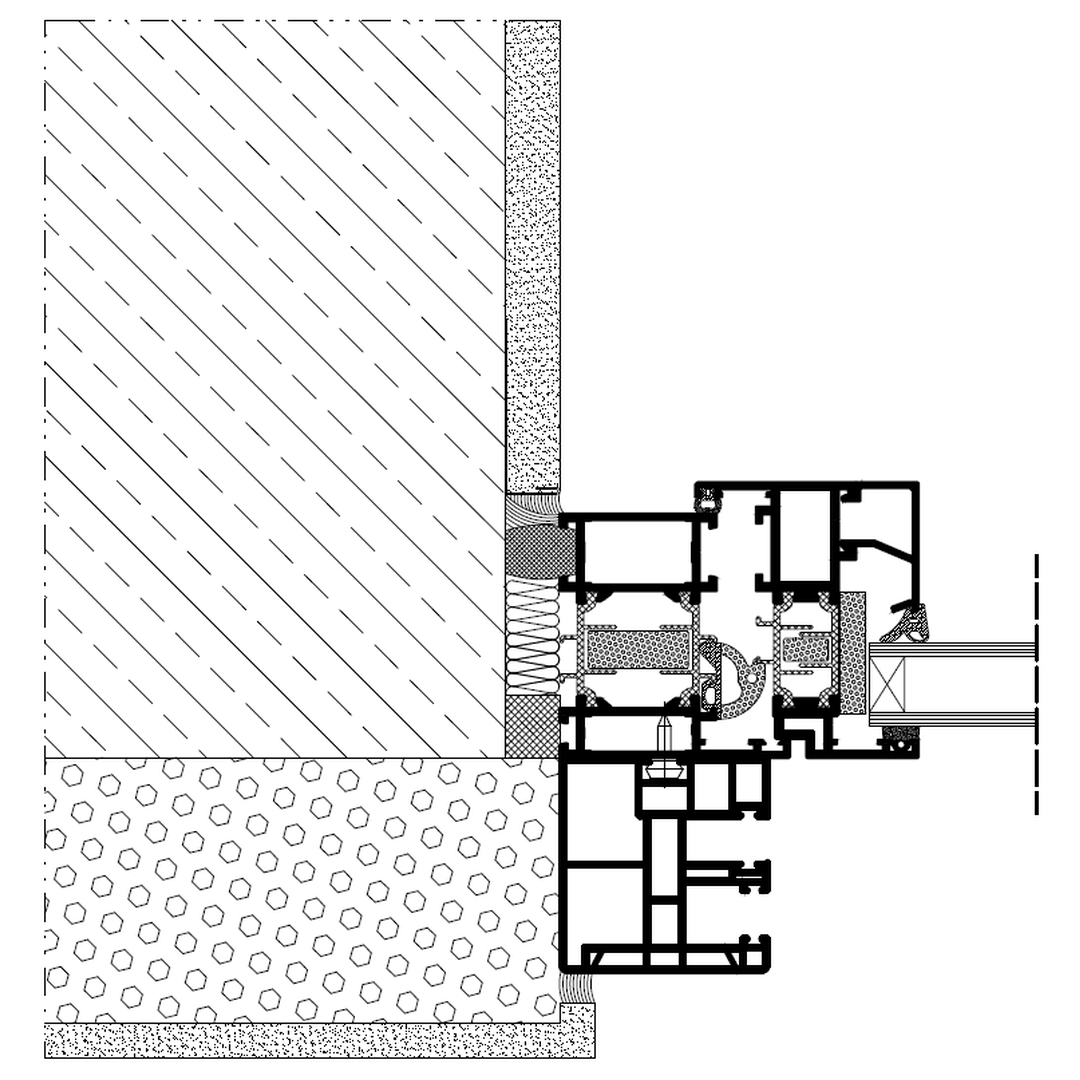
Aufsatzrollladen SKT Einbaubeispiel 6 mit Dämmung

Aufsatzrollladen SKT Einbaubeispiel 6 mit Dämmung

Aufsatzrollladen SKT Einbaubeispiel 6 Führungsschiene

Aufsatzrollladen SKT Einbaubeispiel 6 Führungsschiene

Aufsatzrollladen SKT MKT Einbaubeispiel 6 mit Insektenschutz und Dämmung

Aufsatzrollladen SKT MKT Einbaubeispiel 6 mit Dämmung

Aufsatzrollladen SKT MKT Einbaubeispiel 6 mit Insektenschutz Führungsschiene

Aufsatzrollladen SKT MKT Einbaubeispiel 6 Führungsschiene

Technische Daten - Aufsatzrollladen Aluprof SKT Opoterm
Weiter zur Produktseite Aufsatzrollladen Aluprof SKT Opoterm

Das könnte Sie auch interessieren:

Aufsatzrollladen SKB Styroterm

Detailzeichnungen Aufsatzrollladen Aluprof SKB Styroterm 260 RA

Aufsatzrollladen Aluprof SKB Styroterm für eine optimale Energiebilanz.

Detailzeichnungen Aluprof SKB Styroterm

Aufsatzrollladen Drutex RN

Detailzeichnungen Aufsatzrollladen Drutex RN 215mm

Drutex Aufsatzrollladen RN, die ideale Lösung für alle Jahreszeiten – Energieersparnis, Sicherheit, Privatsphäre.

Detailzeichnungen Drutex RN