Detailzeichnungen Aluplast IDEAL 7000 NL Blockprofil

Kunststofffensterprofil IDEAL 7000 NL Blockprofil Querschnitte

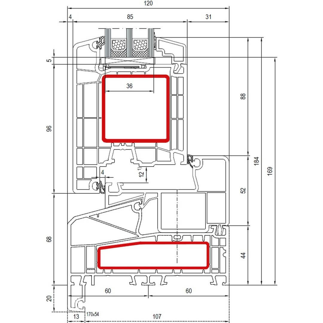
Aluplast IDEAL 7000 NL Festverglasung Bautiefe 120mm - 170x53

IDEAL 7000 NL Festverglasung Bautiefe 120mm - 170x53

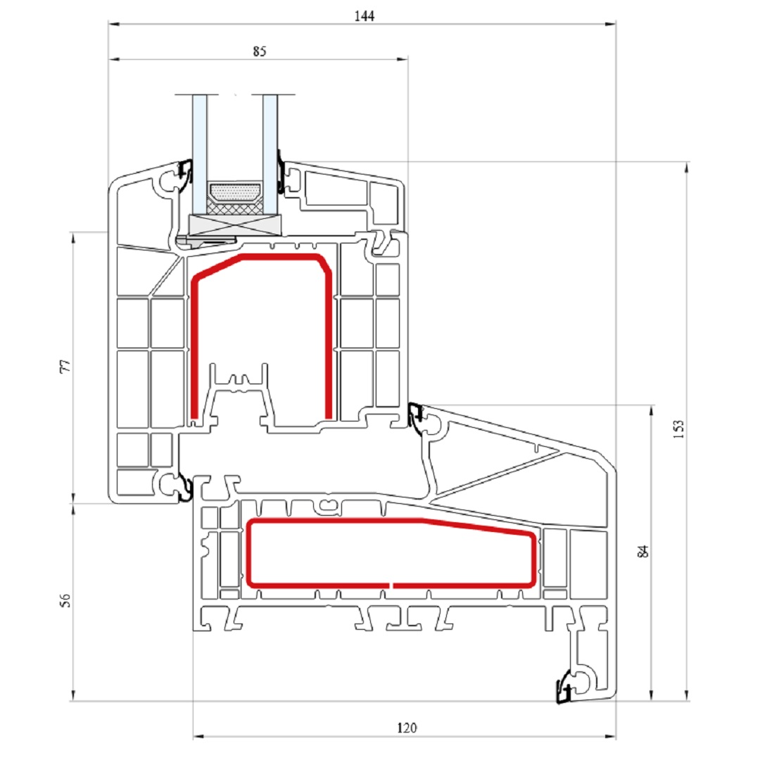
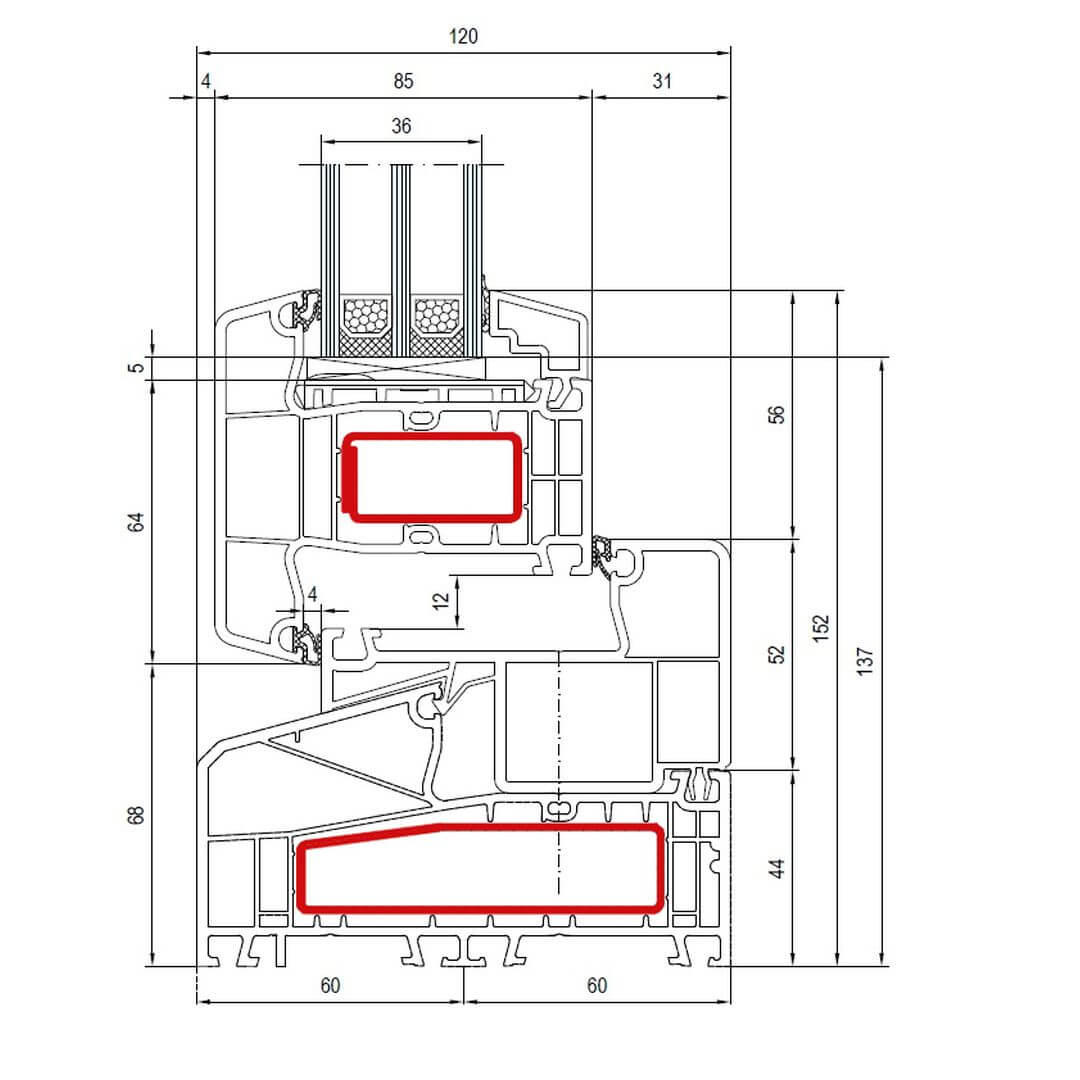
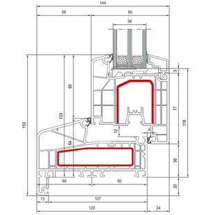
Aluplast IDEAL 7000 NL Fenster Classic-Line 113mm - 170x53 - 170x20

IDEAL 7000 NL Fenster Classic-Line 113mm - 170x53 - 170x20

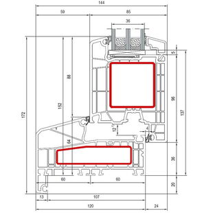
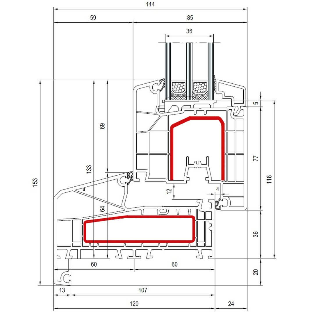
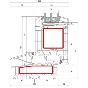
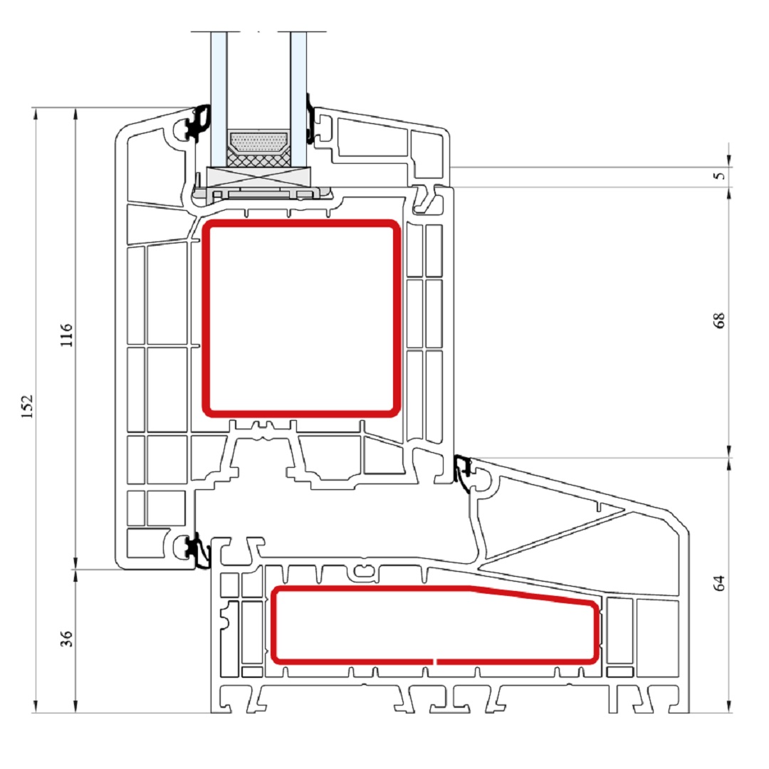
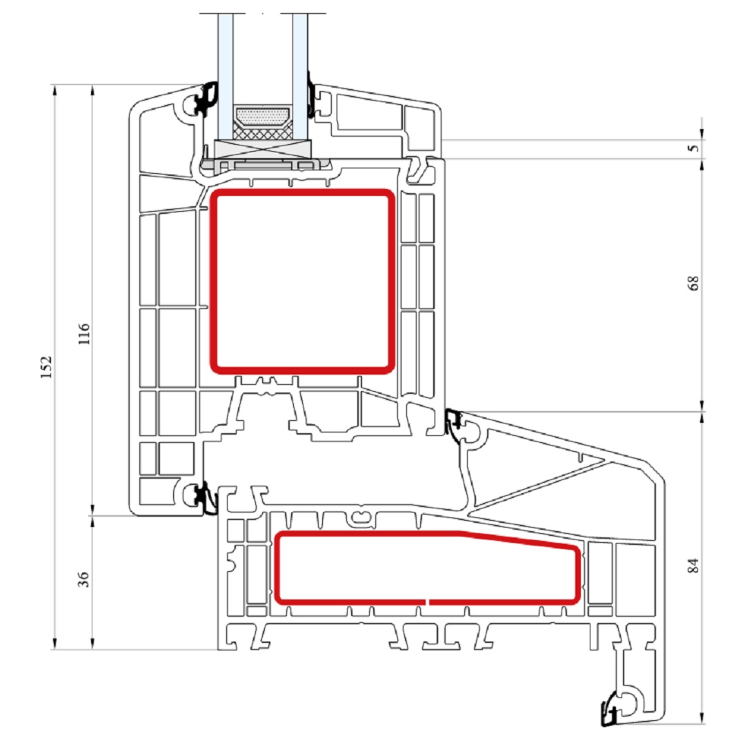
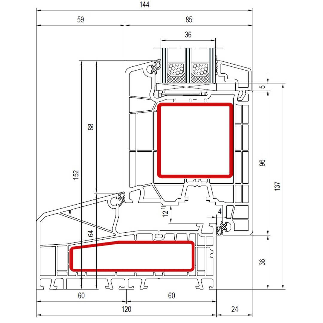
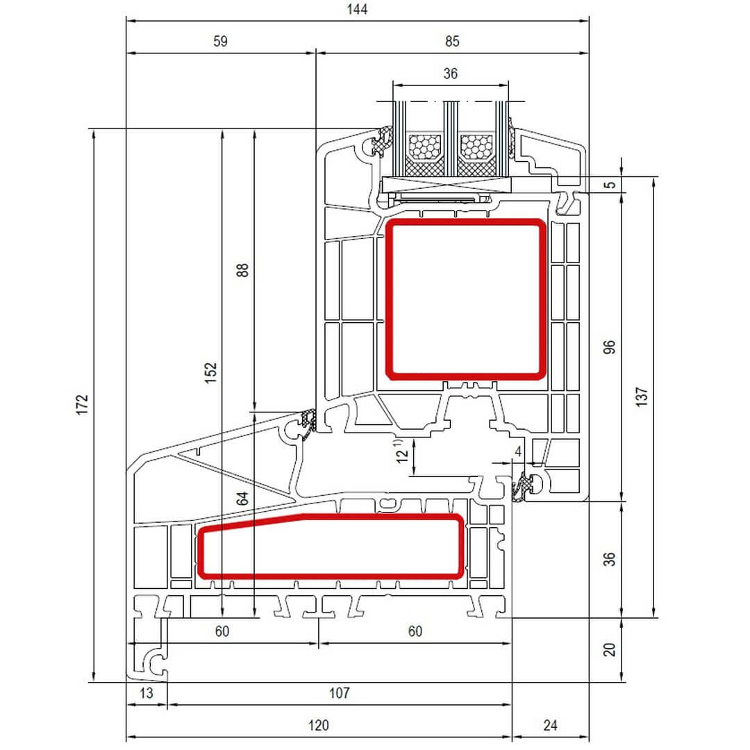
Aluplast IDEAL 7000 NL Fenster außen öffnend Classic-Line 152mm - 170x53 - 170x58 - 170x41

IDEAL 7000 NL Fenster außen öffnend Classic-Line 152mm - 170x53 - 170x58 - 170x41

Kunststofffenster IDEAL 7000 NL Blockprofil mit Flosse 20mm (170x54)

Aluplast IDEAL 7000 NL Festverglasung Bautiefe 120mm Flosse 20mm - 170x54

IDEAL 7000 NL Festverglasung Bautiefe 120mm Flosse 20mm - 170x54

Aluplast IDEAL 7000 NL Fenster Classic-Line 113mm Flosse 20mm - 170x54 - 170x20

IDEAL 7000 NL Fenster Classic-Line 113mm Flosse 20mm - 170x54 - 170x20

Aluplast IDEAL 7000 NL Fenster außen öffnend Classic-Line 152mm - 170x54 - 170x58 - 170x41

IDEAL 7000 NL Fenster außen öffnend Classic-Line 152mm - 170x54 - 170x58 - 170x41

Kunststofffenster IDEAL 7000 NL Blockprofil mit Pfosten 84mm NL

Aluplast IDEAL 7000 NL Pfosten 84mm - 170x57

IDEAL 7000 NL Pfosten 84mm - 170x57

Aluplast IDEAL 7000 NL Pfosten 84mm Fenster Classic-Line - 170x57 - 170x20

IDEAL 7000 NL Pfosten 84mm Fenster Classic-Line - 170x57 - 170x20

Aluplast IDEAL 7000 NL Pfosten 84mm Fenster außen öffnend Classic-Line - 170x57 - 170x58 - 170x41

IDEAL 7000 NL Pfosten 84mm Fenster außen öffnend Classic-Line - 170x57 - 170x58 - 170x41

Kunststofffenster IDEAL 7000 NL Blockprofil mit Stulp 64mm

Aluplast IDEAL 7000 Stulp 67mm Fenster Classic-Line 77mm - 170x64 - 170x20

IDEAL 7000 Stulp 67mm Fenster Classic-Line 77mm - 170x64 - 170x20

Kunststoff Balkontür IDEAL 7000 NL Blockprofil

Aluplast IDEAL 7000 NL Fenster Classic-Line 113mm - 170x53 - 170x20

IDEAL 7000 NL Balkontür Classic-Line mit Blendrahmen 113mm - 170x53 - 170x20

Aluplast IDEAL 7000 NL Fenster Classic-Line 113mm Flosse 20mm - 170x54 - 170x20

IDEAL 7000 NL Balkontür Classic-Line mit Blendrahmen 113mm Flosse 20mm - 170x54 - 170x20

Aluplast IDEAL 7000 Balkontürschwelle 20mm Classic-Line 77mm - 170x20

IDEAL 7000 Balkontürschwelle 20mm Classic-Line 77mm - 170x20

Kunststoff Terrassenflügel IDEAL 7000 NL Blockprofil

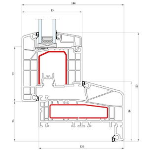
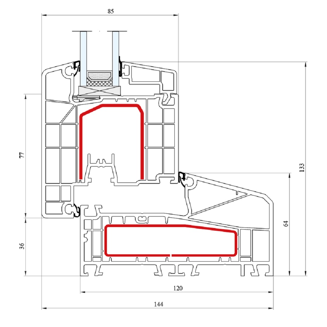
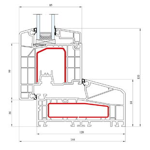
Aluplast IDEAL 7000 NL Terrassentür innen öffnend Classic-Line 133mm - 170x53 - 170x30

IDEAL 7000 NL Terrassentür innen öffnend Classic-Line 133mm - 170x53 - 170x30

Aluplast IDEAL 7000 NL Terrassentür innen öffnend Classic-Line 133mm Flosse 20mm - 170x54 - 170x30

IDEAL 7000 NL Terrassentür innen öffnend Classic-Line 133mm Flosse 20mm - 170x54 - 170x30

Aluplast IDEAL 7000 NL Terrassentür außen öffnend Classic-Line 133mm - 170x53 - 170x31

IDEAL 7000 NL Terrassentür außen öffnend Classic-Line 133mm - 170x53 - 170x31

Aluplast IDEAL 7000 NL Terrassentür außen öffnend Classic-Line 133mm Flosse 20mm - 170x54 - 170x31

IDEAL 7000 NL Terrassentür außen öffnend Classic-Line 133mm Flosse 20mm - 170x54 - 170x31

Terrassenflügel IDEAL 7000 NL Blockprofil mit Pfosten 84mm oder Stulp 67mm

Aluplast IDEAL 7000 NL Pfosten 84mm Terrassentür innen öffnend Classic-Line- 170x57 - 170x30

IDEAL 7000 NL Pfosten 84mm Terrassentür innen öffnend Classic-Line- 170x57 - 170x30

Aluplast IDEAL 7000 Stulp 67mm Terrassentür innen öffnend Classic-Line - 170x64 170x30

IDEAL 7000 Stulp 67mm Terrassentür innen öffnend Classic-Line- 170x64 170x30

Kunststoff IDEAL 7000 NL Blockprofil PSK Parallel-Schiebe-Kipp-Tür

Kunststoff Haustür IDEAL 7000 NL Blockprofil

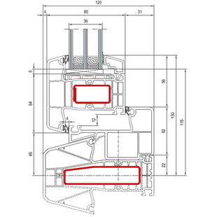
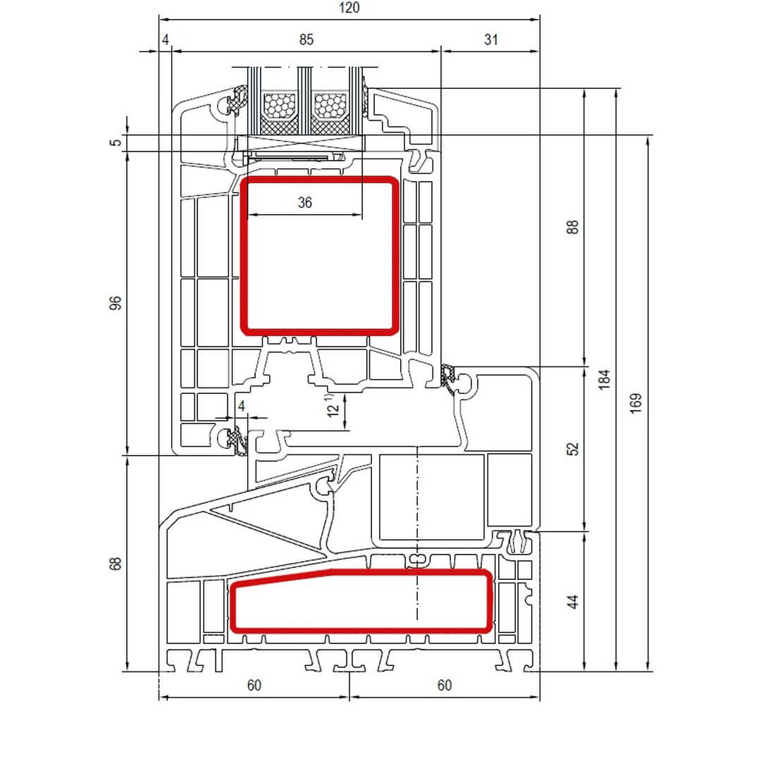
Aluplast IDEAL 7000 NL Tür innen öffnend Classic-Line 152mm - 170x53 - 170x33

IDEAL 7000 NL Tür innen öffnend - 170x53 - 170x33

Aluplast IDEAL 7000 NL Tür innen öffnend Classic-Line 152mm Flosse 20mm - 170x54 - 170x33

IDEAL 7000 NL Tür innen öffnend Flosse 20mm - 170x54 - 170x33

Aluplast IDEAL 7000 Türschwelle 20mm innen öffnend Classic-Line - 170x33

IDEAL 7000 Türschwelle 20mm innen öffnend - 170x33

Aluplast IDEAL 7000 NL Tür außen öffnend - 170x53 - 170x58 - 170x35

IDEAL 7000 NL Tür außen öffnend - 170x53 - 170x58 - 170x35

Aluplast IDEAL 7000 NL Tür außen öffnend - 170x54 - 170x58 - 170x35

IDEAL 7000 NL Tür außen öffnend - 170x54 - 170x58 - 170x35

Aluplast IDEAL 7000 Türschwelle 20mm außen öffnend Classic-Line - 170x35

IDEAL 7000 Türschwelle 20mm außen öffnend - 170x35

Türflügel IDEAL 7000 NL Blockprofil außen öffnend ohne Umkehrprofil

Aluplast IDEAL 7000 NL Tür außen öffnend ohne Umkehrprofil - 170x53 - 170x35

IDEAL 7000 NL Tür außen öffnend ohne Umkehrprofil - 170x53 - 170x35

Aluplast IDEAL 7000 NL Tür außen öffnend ohne Umkehrprofil Flosse 20mm- 170x54 - 170x35

IDEAL 7000 NL Tür außen öffnend ohne Umkehrprofil Flosse 20mm - 170x54 - 170x35

Türflügel IDEAL 7000 NL Blockprofil mit Pfosten 84mm

Aluplast IDEAL 7000 NL Pfosten 84mm Tür innen öffnend Classic-Line- 170x57 - 170x33

IDEAL 7000 NL Pfosten 84mm Tür innen öffnend - 170x57 - 170x33

Aluplast IDEAL 7000 NL Pfosten 84mm Tür außen öffnend Classic-Line- 170x57 - 170x58 - 170x35

IDEAL 7000 NL Pfosten 84mm Tür außen öffnend Classic-Line- 170x57 - 170x58 - 170x35

Zusatzprofile für aluplast IDEAL 7000 NL Blockprofil Querschnitte

Kunststoff Sprossenarten - Ideal 7000 NL Blockprofil

Innenliegende SZR Sprossen / Helima Sprossen

Drutex Iglo SZR Sprosse 8mm

Innenliegende Sprosse 8mm

Drutex Iglo SZR Sprosse 18mm

Innenliegende Sprosse 18mm

Drutex Iglo SZR Sprosse 26mm

Innenliegende Sprosse 26mm

Drutex Iglo SZR Sprosse 45mm

Innenliegende Sprosse 45mm

Aufgesetzte / Aufgeklebte Sprossen

Aluplast 160376 - aufgesetzte Sprossen - 26mm

160376 - aufgesetzte Sprossen - 26mm

Aluplast 160378 - aufgesetzte Sprossen - 46mm

160378 - aufgesetzte Sprossen - 46mm

Aluplast 160479 - aufgesetzte Sprossen - 66mm

160479 - aufgesetzte Sprossen - 66mm

Glasteilende Sprossen - Kämpfer

Aluplast IDEAL 7000 NL Pfosten 84mm - 170x57

IDEAL 7000 NL Kämpfer-Sprosse 84mm - 170x57

Kunststoff Anschlussprofile - Ideal 7000 NL Blockprofil

Kunststoff Bankanschlussprofile

Aluplast 144247 - Fensterbankanschluss - 30mm

144247 - Fensterbankanschluss - 30mm

Aluplast 120238 - Fensterbankanschluss - 50mm

120238 - Fensterbankanschluss - 50mm

Kunststoff Steinbankanschlussprofile

Aluplast 120206 - Steinbankanschluss - 25mm

120206 - Steinbankanschluss - 25mm

Aluplast 120208 - Steinbankanschluss - 30mm

120208 - Steinbankanschluss - 30mm

Aluplast 120209 - Steinbankanschluss - 40mm

120209 - Steinbankanschluss - 40mm

Aluplast 120210 - Steinbankanschluss - 50mm

120210 - Steinbankanschluss - 50mm

Kunststoff Anschlussprofile (bündig)

Aluplast 140277 - Bankanschlussprofil - 10mm

140277 - Bankanschlussprofil - 10mm

Aluplast 120106 - Bankanschlussprofil - 20mm

120106 - Bankanschlussprofil - 20mm

Aluplast 120236 - Bankanschlussprofil - 15mm

120236 - Bankanschlussprofil - 15mm

Aluplast 120237 - Bankanschlussprofil - 30mm

120237 - Bankanschlussprofil - 30mm

Aluplast 120102 - Bankanschlussprofil - 50mm

120102 - Bankanschlussprofil - 50mm

Kunststoff Fensterbank-Anschlussprofile

Aluplast 140229 - Fensterbank - 42,5mm - außen

140229 - Fensterbank - 42,5mm - außen

Aluplast 120190 - Fensterbank - 115,5mm - außen

120190 - Fensterbank - 115,5mm - außen

Aluplast 120246 - Fensterbank - 50mm - außen

120246 - Fensterbank - 50mm - außen

Aluplast 120248 - Fensterbank - 55mm - außen

120248 - Fensterbank - 55mm - außen

Aluplast 120249 - Fensterbank - 90mm - außen

120249 - Fensterbank - 90mm - außen

Aluplast 140238 - Fensterbank - 80mm - außen

140238 - Fensterbank - 80mm - außen

600020, 600220, 650921, 620249 - Fensterbank - Endkappe

600020, 600220, 650921, 620249 - Fensterbank - Endkappe

Kunststoff Rahmenverbreiterung - Ideal 7000 NL Blockprofil (2x 60mm)

Aluplast 120220 - Rahmenverbreiterung - 15mm

120220 - Rahmenverbreiterung - 15mm

Aluplast 120242 - Rahmenverbreiterung - 35mm

120242 - Rahmenverbreiterung - 35mm

Aluplast 120221 - Rahmenverbreiterung - 60mm

120221 - Rahmenverbreiterung - 60mm

Aluplast 120223 - Rahmenverbreiterung - 130mm

120223 - Rahmenverbreiterung - 130mm

Kunststoff Kopplungen - Ideal 7000 NL Blockprofil

Aluplast 120116 - Federkopplung

120116 - Federkopplung

Aluplast 120224 - H - Kopplung - universal

120224 - H - Kopplung - universal

Aluplast 120109 - Statikprofil

120109 - Statikprofil

Kunststoff Abdeckleisten - Ideal 7000 NL Blockprofil

Aluplast Flachleisten aus Kunststoff Auswahl 65025100, 6465050, 65025080, 65025070, 65025050, 65025040, 65025030

65025100, 6465050, 65025080, 65025070, 65025050, 65025040, 65025030 - Flachleiste aus Kunststoff Auswahl

Aluplast Flachleisten mit Dichtlippe 120120, 120283

120120, 120283 - Flachleiste mit Dichtlippe Auswahl

Aluplast Deckleisten mit Hohlkammerprofil Auswahl

Hohlkammerprofil Deckleiste Auswahl

Winkelprofile aus Kunststoff 73100060, 73080050, 73060040, 73020020

73100060, 73080050, 73060040, 73020020 - Winkelprofil aus Kunststoff

Aluplast Winkelprofile aus Kunststoff 120292, 120291

120292, 120291 - Winkelprofil aus Kunststoff

Aluplast Hohlkammer Winkelprofil aus Kunststoff 120299, 120297, 120289, 120284

120299, 120297, 120289, 120284 - Hohlkammer Winkelprofil aus Kunststoff

Kunststoff Weitere Profile - Ideal 7000 NL Blockprofil

Aluplast 140275

140275 - Distanzprofil 22mm

Aluplast 140107

140107 - Wetterschenkel

Aluplast kozijnen en deuren op maat

Configureer en bestel eenvoudig en comfortabel Aluplast ramen en deuren online bij kozijnenblik.nl

Das könnte Sie auch interessieren:

Kunststofffenster aluplast Nordline

Detailzeichnungen Kunststofffenster aluplast Nordline

Kunststofffenster aluplast Nord-Line besitzen verschiedene Tiefen von 120mm.

Detailzeichnungen aluplast Nordline

Kunststofffenster IDEAL 4000 85mm

Detailzeichnungen Kunststofffenster IDEAL 4000 85mm

Kunststofffenster IDEAL 4000 85mm besitzen eine Bautiefe (Rahmen) von 85mm.

Detailzeichnungen IDEAL 4000 85mm