Detailzeichnungen Vorbaurollladen PIT Unterputz-System

Inhaltsverzeichnis:

Vorbaurollladen PIT Unterputzsystem Explosionszeichnung

Vorbaurollladen PST Explosionszeichnung

Explosionszeichnung PIT Unterputzsystem

  1. Blendklappe
  2. Kasten oben
  3. Kasten unten
  4. Gurtscheibe für Kasten
  5. Einzelführungsschiene
  6. Alu-Führungsschienenendkappe
  7. Kugellager
  8. Einlauftrichter des Profils
  9. Walzenkapsel für Achtkant-Stahlwelle
  10. Adapterring
  11. Achtkant-Stahlwelle

Vorbaurollladen PIT Unterputzsystem Kastenformen Querschnitte

Vorbaurollladen PIT Unterputzsystem mit Kastenhöhe 138mm

Vorbaurollladen PIT Unterputzsystem 138mm

Vorbaurollladen PIT Unterputzsystem mit Kastenhöhe 166mm

Vorbaurollladen PIT Unterputzsystem 166mm

Vorbaurollladen PIT Unterputzsystem mit Kastenhöhe 181mm

Vorbaurollladen PIT Unterputzsystem 181mm

Vorbaurollladen PIT Unterputzsystem mit Kastenhöhe 206mm

Vorbaurollladen PIT Unterputzsystem 206mm

Vorbaurollladen PIT Unterputzsystem Kastenformen mit Insektenschutz

Vorbaurollladen PIT Unterputzsystem mit Kastenhöhe 166mm mit Insektenschutz

Vorbaurollladen PIT Unterputzsystem 166mm mit Insektenschutz

Vorbaurollladen PIT Unterputzsystem mit Kastenhöhe 181mm mit Insektenschutz

Vorbaurollladen PIT Unterputzsystem 181mm mit Insektenschutz

Vorbaurollladen PIT Unterputzsystem mit Kastenhöhe 206mm mit Insektenschutz

Vorbaurollladen PIT Unterputzsystem 206mm mit Insektenschutz

Vorbaurollladen PIT Unterputzsystem Einzelteile

Putzleisten für Vorbaurollladen PIT Unterputzsystem

Vorbaurollladen Putzleiste LT Zero

Vorbaurollladen Putzleiste LT Zero

Vorbaurollladen Putzleiste LT 19

Vorbaurollladen Putzleiste LT 19

Vorbaurollladen Putzleiste LT 20

Vorbaurollladen Putzleiste LT 20

Führungsschienen für Vorbaurollladen PIT Unterputzsystem

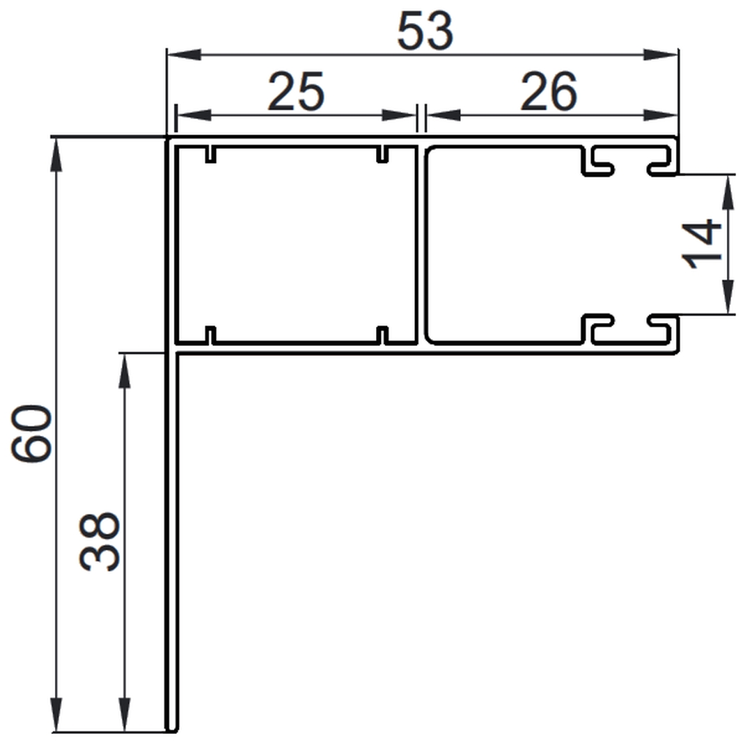
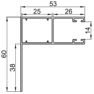
Vorbaurollladen Führungsschiene PP 53mm

Vorbaurollladen Führungsschiene PP 53mm

Vorbaurollladen Führungsschiene PP 66mm

Vorbaurollladen Führungsschiene PP 66mm

Vorbaurollladen Führungsschiene PK 53mm mit Winkel

Vorbaurollladen Führungsschiene PK 53mm mit Winkel

Vorbaurollladen Führungsschiene 53mm PPDM Insektenschutz

Vorbaurollladen Führungsschiene PPDM 53mm Insektenschutz

Vorbaurollladen Führungsschiene 79mm PPD doppelt

Vorbaurollladen Führungsschiene PPD 79mm doppelt

Vorbaurollladen Führungsschiene 80mm PPDM Insektenschutz doppelt

Vorbaurollladen Führungsschiene PPDM 80mm Insektenschutz doppelt

Führungsschienen Endkappen für Vorbaurollladen PIT Unterputzsystem

Vorbaurollladen Führungsschiene Endkappen PP 53mm P 53mm

Vorbaurollladen Führungsschiene Endkappen PP 53mm P 53mm

Vorbaurollladen Führungsschiene Endkappen PP 66mm P 66mm

Vorbaurollladen Führungsschiene Endkappen PP 66mm P 66mm

Vorbaurollladen Führungsschiene Endkappen PPD 79mm P 79mm

Vorbaurollladen Führungsschiene Endkappen PPD 79mm P 79mm

Vorbaurollladen Führungsschiene Endkappen PPDM 53mm P 53mm

Vorbaurollladen Führungsschiene Endkappen PPDM 53mm P 53mm

Führungsschienen Abdeckungen für Vorbaurollladen

Vorbaurollladen Führungsschiene N-PPDO 53mm Abdeckung rund Detail

Vorbaurollladen Führungsschiene Abdeckung N-PPDO 53mm rund Detail

Vorbaurollladen Führungsschiene Abdeckung rund doppelt Detail

Vorbaurollladen Führungsschiene Abdeckung rund doppelt Detail

Vorbaurollladen Führungsschiene Abstandsleiste Abdeckung Detail

Vorbaurollladen Führungsschiene Abstandsleiste Detail

Vorbaurollladen Führungsschiene N-PPDO 53mm Abdeckung rund

Vorbaurollladen Führungsschiene Abdeckung N-PPDO 53mm rund

Vorbaurollladen Führungsschiene Abdeckung rund doppelt

Vorbaurollladen Führungsschiene Abdeckung rund doppelt

Vorbaurollladen Führungsschiene Abstandsleiste Abdeckung

Vorbaurollladen Führungsschiene Abstandsleiste

Vorbaurollladen Führungsschiene Schnapperplatten Montage

Vorbaurollladen Führungsschiene Schnapperplatten Montage

Vorbaurollladen Führungsschiene Doppel Schnapperplatten Montage

Vorbaurollladen Führungsschiene Doppel Schnapperplatten Montage

Führungsschienen Montagebohrungen für Vorbaurollladen

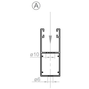
Vorbaurollladen Führungsschiene Montagebohrung Typ A

Vorbaurollladen Führungsschiene Montagebohrung Typ A

Vorbaurollladen Führungsschiene Montagebohrung Typ B

Vorbaurollladen Führungsschiene Montagebohrung Typ B

Vorbaurollladen Führungsschiene Montagebohrung Typ C

Vorbaurollladen Führungsschiene Montagebohrung Typ C

Rollladenpanzer Lamellen (Profile)

Lamelle PA39 Alu technische Zeichnung

Rollladenprofil PA 39mm (Alu)

Lamelle PA45 Alu technische Zeichnung

Rollladenprofil PA 45mm (Alu)

Lamelle PA52 Alu technische Zeichnung

Rollladenprofil PA 52mm (Alu)

Vorbaurollladen Endleisten (Abschlussleisten)

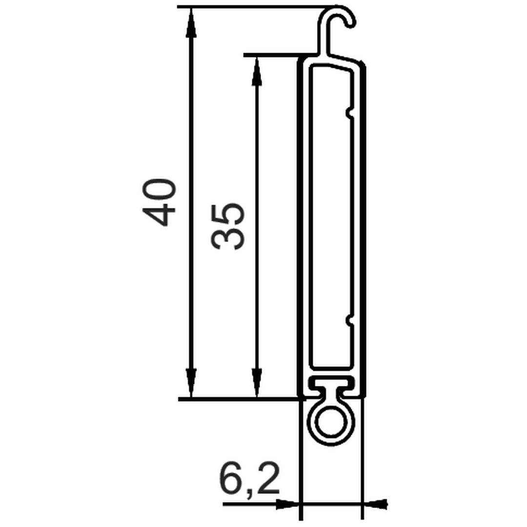
Rollladen Endleiste 35mm Mini für Aluminium-Panzer Detail

Rollladenpanzer Endleiste LD 35mm Mini

Rollladen Endleiste 37mm für Aluminium-Panzer Detail

Rollladenpanzer Endleiste LD 37mm

Vorbaurollladen Antriebsbohrungen

Vorbaurollladen Antriebsbohrungen Gurtausgang

Vorbaurollladen Antrieb Ausgang Typ A

Vorbaurollladen Antrieb Ausgang Typ A

Vorbaurollladen Antrieb Ausgang Typ A Schema

Vorbaurollladen Antrieb Ausgang Typ A Schema

Vorbaurollladen Antrieb Ausgang Typ B

Vorbaurollladen Antrieb Ausgang Typ B

Vorbaurollladen Antrieb Ausgang Typ B Schema

Vorbaurollladen Antrieb Ausgang Typ B Schema

Vorbaurollladen Montagearten

Vorbaurollladen Führungsschienen PIT Unterputzsystem- Einbaubeispiel 1:

Vorbaurollladen Führungsschiene PP 53mm Montage Typ A

Vorbaurollladen Führungsschiene PP 53mm Montage Typ A

Vorbaurollladen Führungsschiene PK 53mm Montage Typ C

Vorbaurollladen Führungsschiene PK 53mm Montage Typ C

Vorbaurollladen Führungsschienen PIT Unterputzsystem- Einbaubeispiel 2:

Vorbaurollladen Führungsschiene PP 53mm PPD 79mm Montage Typ B

Vorbaurollladen Führungsschiene PP 53mm PPD 79mm Montage Typ B

Vorbaurollladen Führungsschiene PP 53mm Montage Typ B

Vorbaurollladen Führungsschiene PP 53mm Montage Typ B

Vorbaurollladen Führungsschiene PPDM 53mm PPDM 80 Montage Typ B

Vorbaurollladen Führungsschiene PPDM 53mm PPDM 80mm Montage Typ B

Weiter zur Produktseite Vorbaurollladen PIT Unterputz-System

Drutex Fensterlieferung

Kostenlose Lieferung

Ab einer Bestellung von 10 Fenstern deutschlandweit!

Jetzt Angebot für Vorbaurollladen anfordern

Das könnte Sie auch interessieren:

Vorbaurollladen PST eckig 45°

Detailzeichnungen Vorbaurollladen PST

Vorbaurollladen PST mit abgeschrägter 45° Kante für ein eckiges Design.

Detailzeichnungen Vorbaurollladen PST

Vorbaurollladen PRL viertelrund

Detailzeichnungen Vorbaurollladen PRL

Vorbaurollladen PRL mit einer viertelrunden Kastenform ist ideal für die Montage in der Laibung geeignet.

Detailzeichnungen Vorbaurollladen PRL