Detailzeichnungen Aufsatz-Raffstore Drutex ZF-S

Inhaltsverzeichnis:

Aufsatz-Raffstore Drutex ZF-S Kasten Querschnitte (Fassadenjalousie)

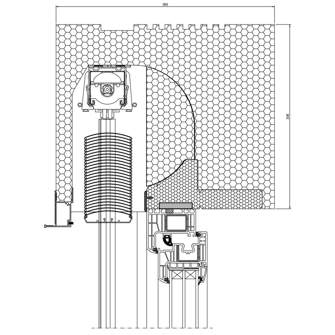
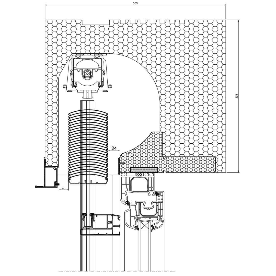
Aufsatz-Raffstore Drutex ZF-S - Kastentiefe 365mm

Raffstorekasten ZF-S 365 - Rahmen Iglo 5

Raffstorekasten ZF-S 365 - Rahmen Iglo 5

Raffstorekasten ZF-S 365 - Rahmen Iglo Energy

Raffstorekasten ZF-S 365 - Rahmen Iglo Energy

Raffstorekasten ZF-S 365 - Rahmen Iglo HS

Raffstorekasten ZF-S 365 - Rahmen Iglo HS

Raffstorekasten ZF-S 365 - Rahmen MB

Raffstorekasten ZF-S 365 - Rahmen MB

Aufsatz-Raffstore Drutex ZF-S - Kastentiefe 300mm

Raffstorekasten ZF-S  300 - Rahmen Iglo 5

Raffstorekasten ZF-S 300 - Rahmen Iglo 5

Raffstorekasten ZF-S  300 - Rahmen Iglo Energy

Raffstorekasten ZF-S 300 - Rahmen Iglo Energy

Raffstorekasten ZF-S  300 - Rahmen Softline

Raffstorekasten ZF-S 300 - Rahmen Softline

Aufsatz-Raffstore Drutex ZF-S - Weitere Kastentiefen (auf Anfrage)

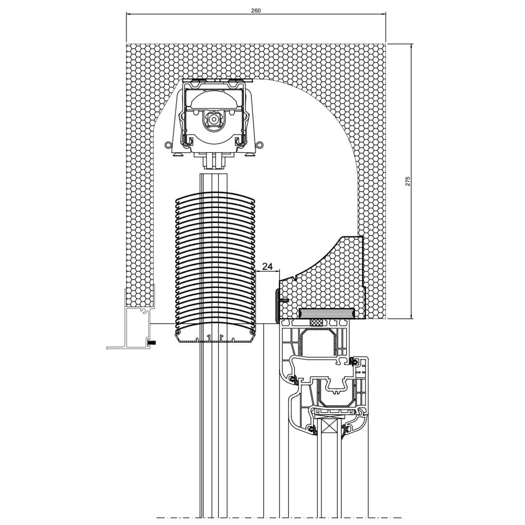
Raffstorekasten ZF-S  260 - Rahmen Iglo 5

Raffstorekasten ZF-S 260 - Rahmen Iglo 5

Raffstorekasten ZF-S  243 Klinker - Rahmen Iglo 5

Raffstorekasten ZF-S 243 Klinker - Rahmen Iglo 5

Aufsatz-Raffstore Drutex ZF-S Einzelteile

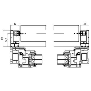
Führungsschienen für Aufsatz-Raffstore Drutex ZF-S

Raffstore Führungsschiene ZF-S

Raffstore Führungsschiene ZF-S

Raffstore Lamellen (Profile)

Raffstore Lamelle C80

Lamellentyp C80

Raffstore Lamelle C80F Flach

Lamellentyp C80F Flach

Aufsatz-Raffstore Drutex ZF-S Montagearten

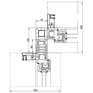
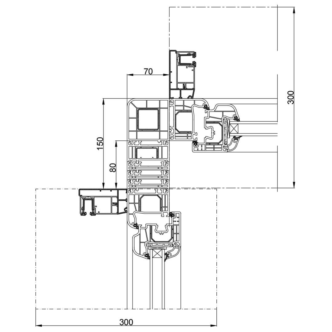
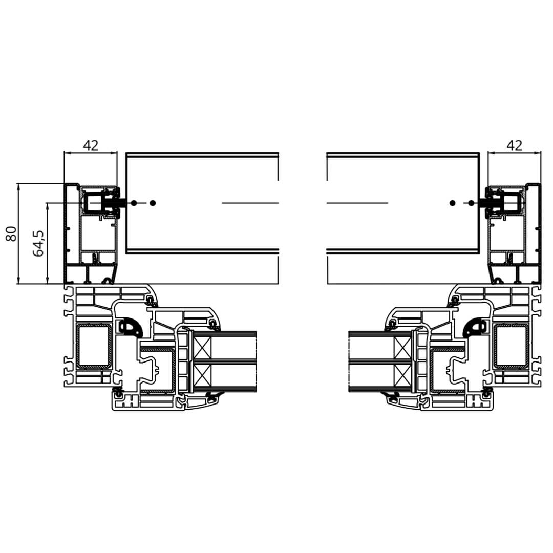
Raffstore ZF-S 300 Eckkopplung Rahmen Iglo 5 70/150

Raffstore ZF-S 300 Eckkopplung Rahmen Iglo 5 70/150

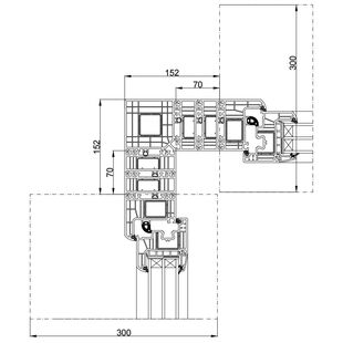
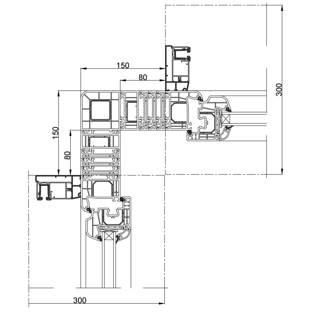
Raffstore ZF-S 300 Eckkopplung Rahmen Iglo 5 150/150

Raffstore ZF-S 300 Eckkopplung Rahmen Iglo 5 150/150

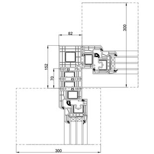
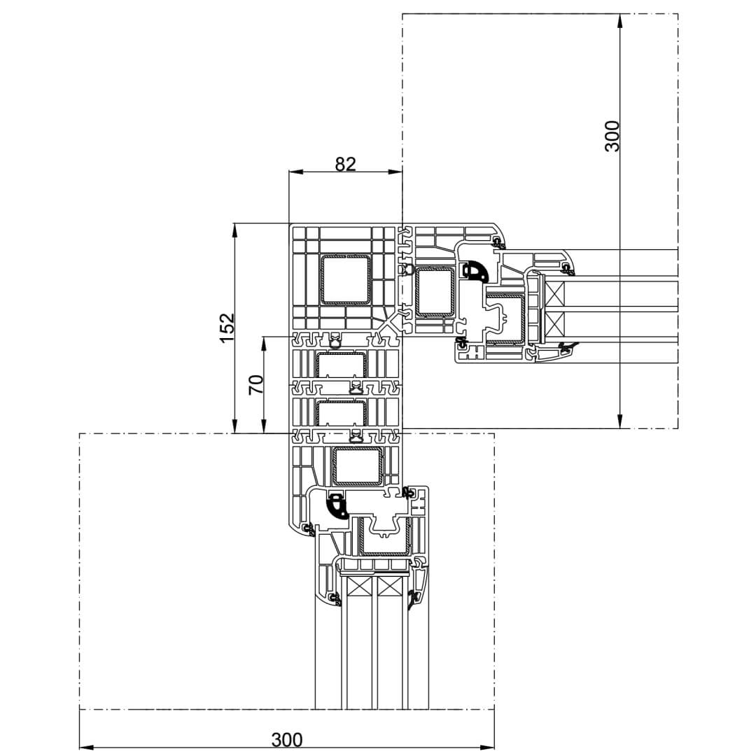
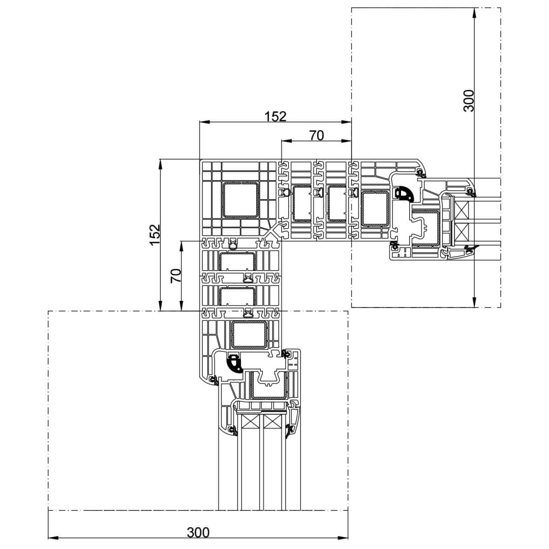
Raffstore ZF-S 300 Eckkopplung Rahmen Iglo Energy 82/152

Raffstore ZF-S 300 Eckkopplung Rahmen Iglo Energy 82/152

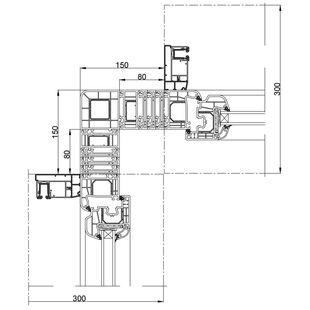
Raffstore ZF-S 300 Eckkopplung Rahmen Iglo Energy 152/152

Raffstore ZF-S 300 Eckkopplung Rahmen Iglo Energy 152/152

Buitenjaloezieën op maat configureren

Buitenjaloezieën eenvoudig en comfortabel online configureren en bestellen bij kozijnenblik.nl!

Das könnte Sie auch interessieren:

Raffstore Drutex ZF-A

Detailzeichnungen Raffstoer Drutex ZF-A 300 Iglo Energy

Raffstore-Systeme Drutex ZF-A mit optimaler Wärmedämmung.

Detailzeichnungen Raffstore Drutex ZF-A

Raffstore SKB Styroterm

Detailzeichnungen Raffstoer SKB Styroterm

Raffstore-Systeme SKB Styroterm mit optimaler Wärmedämmung.

Detailzeichnungen Raffstore SKB Styroterm