Detailzeichnungen Holzfenster Softline-68

Inhaltsverzeichnis:

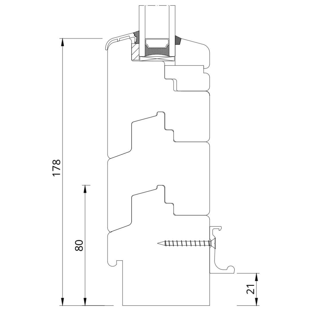
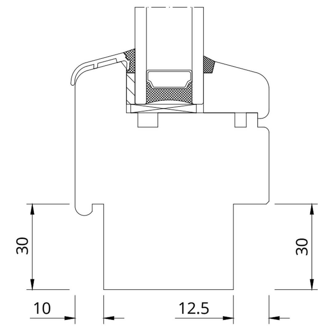
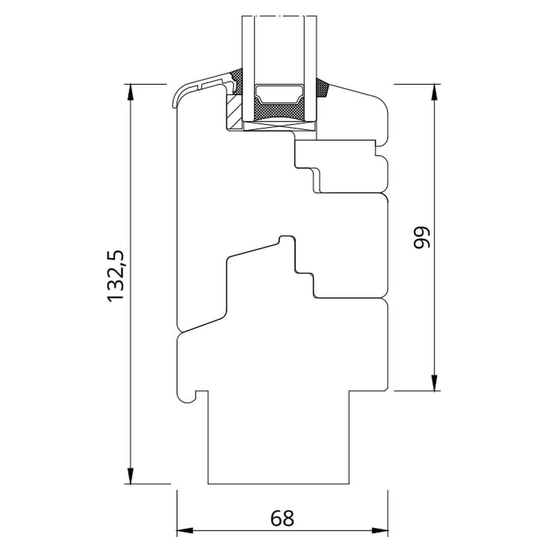
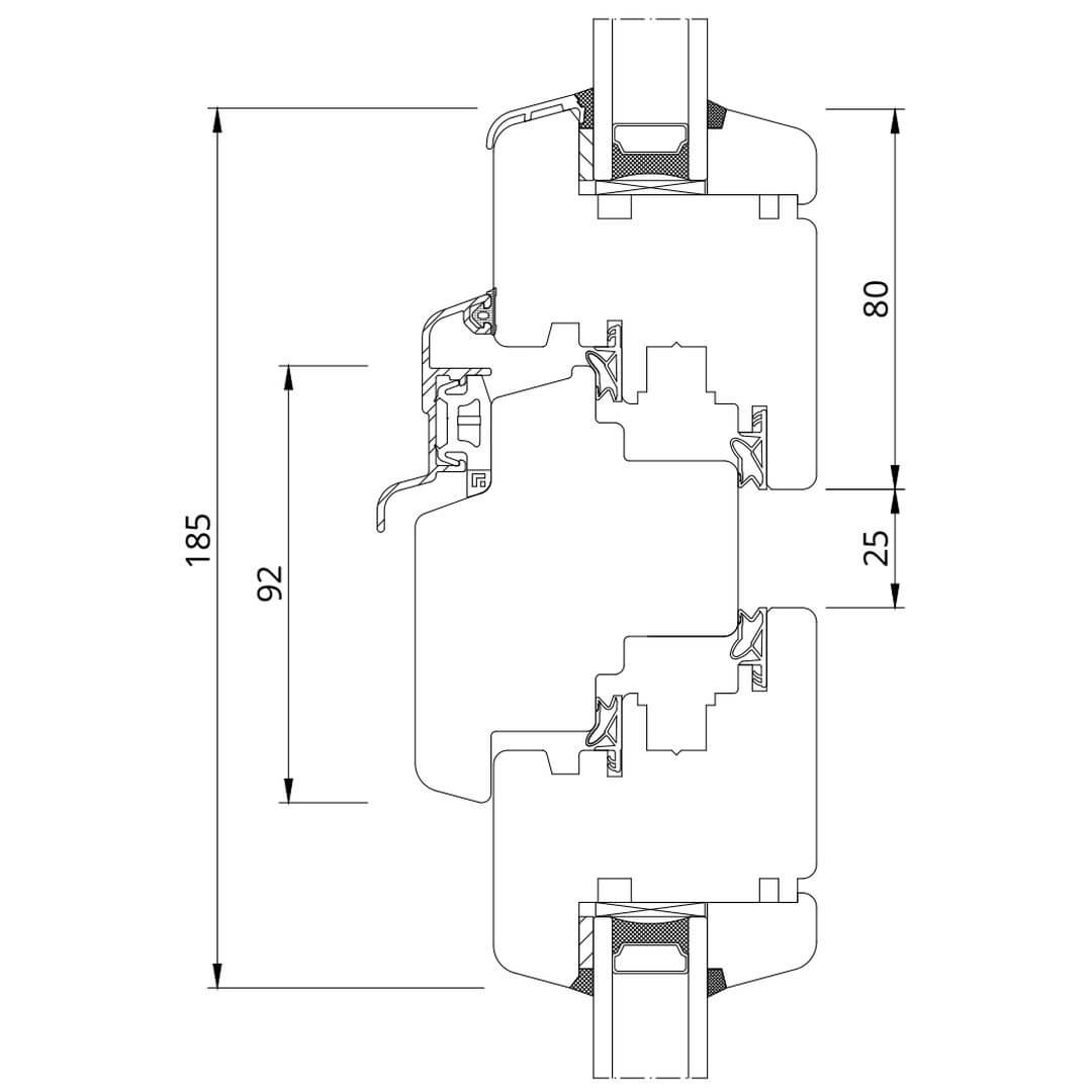
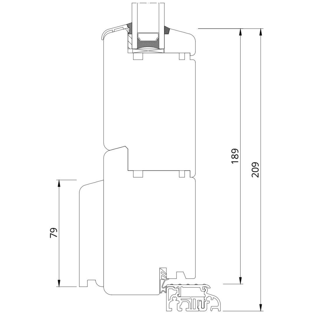
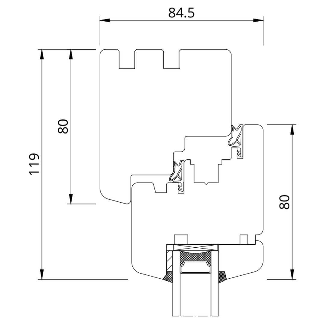
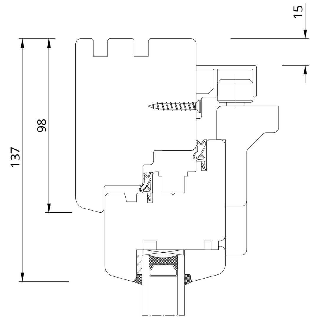
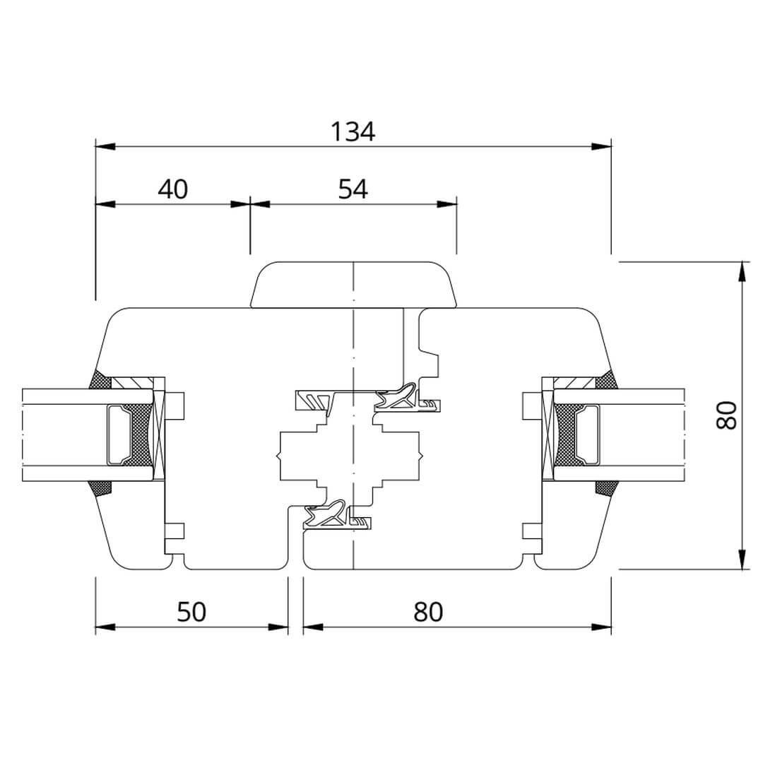
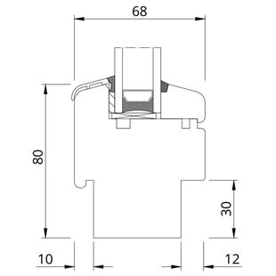
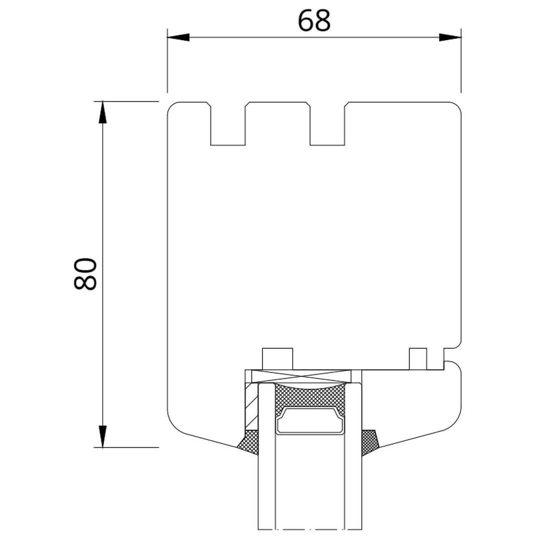
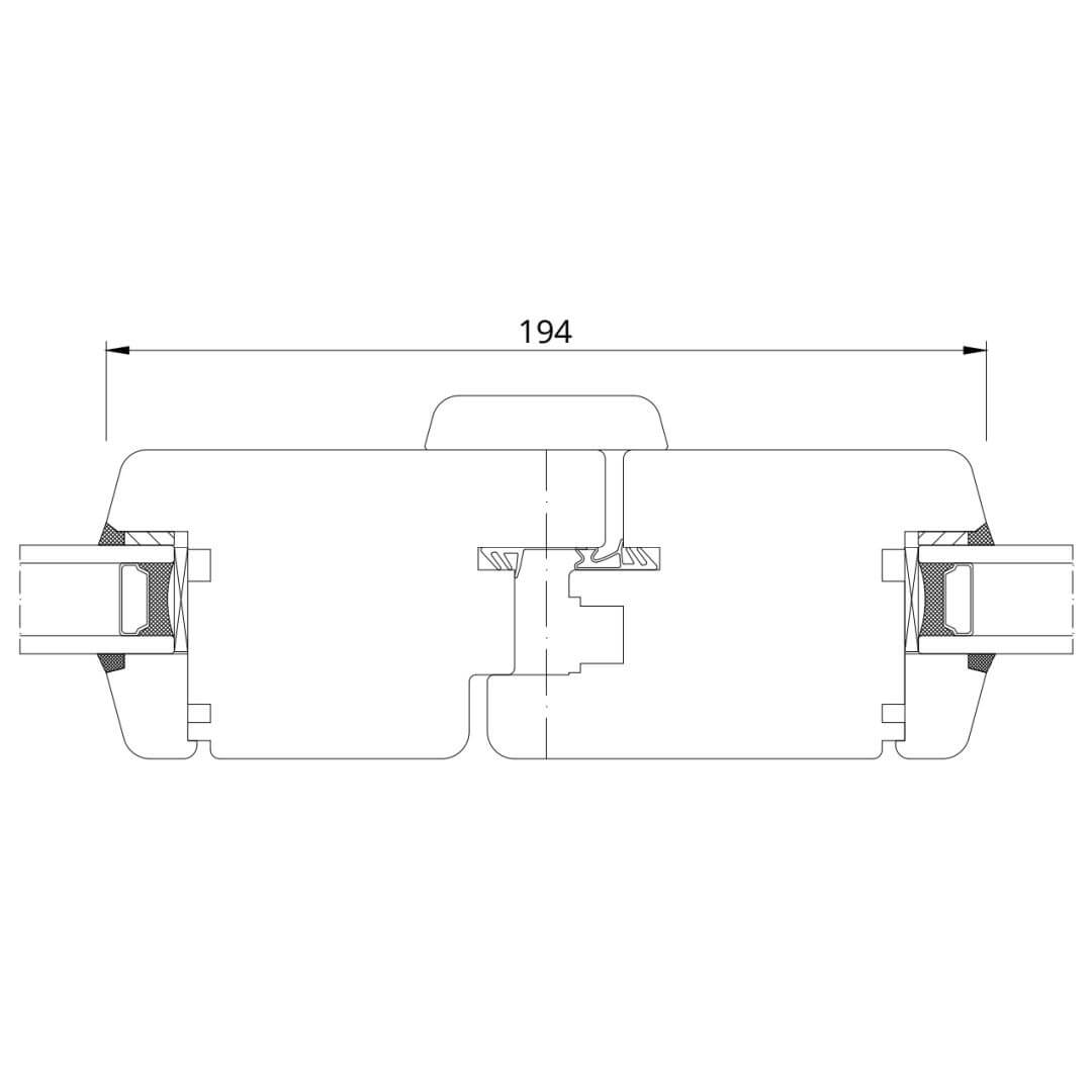
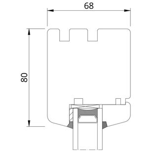
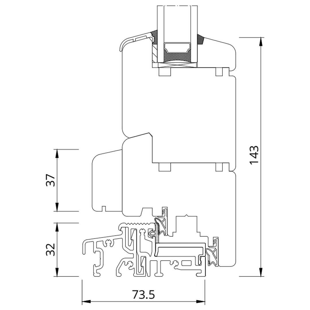
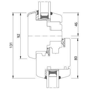
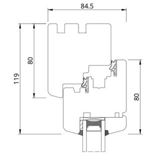
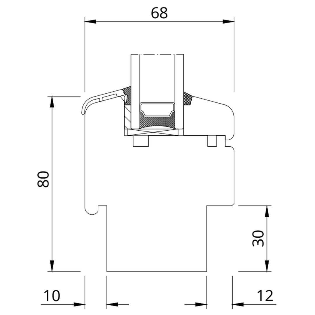
Holzfensterprofil Softline 68 Querschnitte

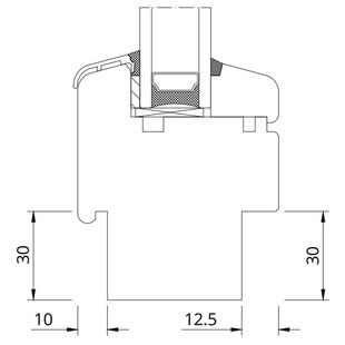
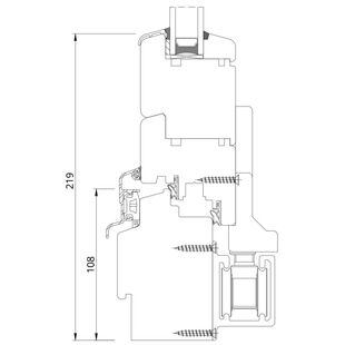
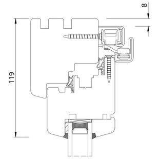
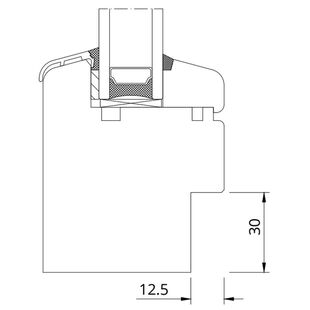
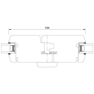
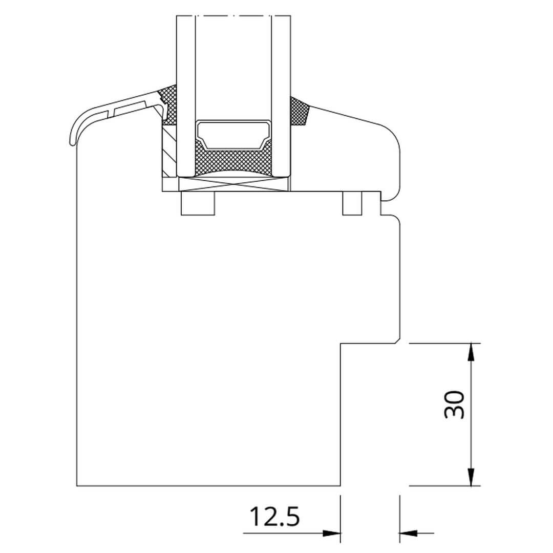
Drutex Softline 68 Festverglasung oben

Softline 68 Festverglasung oben

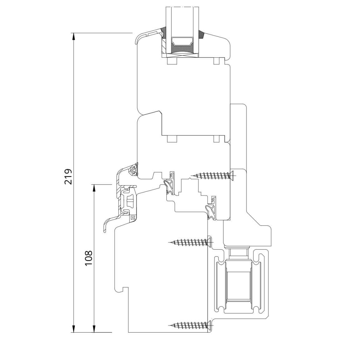
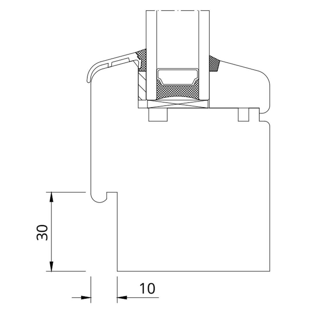
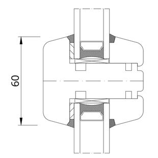
Drutex Softline 68 Festverglasung unten

Softline 68 Festverglasung unten

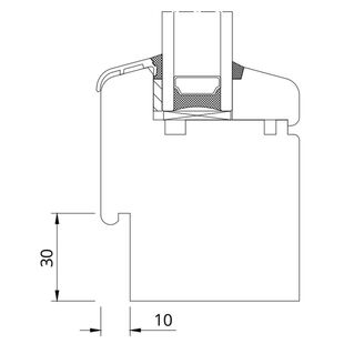
Drutex Softline 68 Festverglasung angeglichen an Flügel

Softline 68 Festverglasung angeglichen an Türflügel

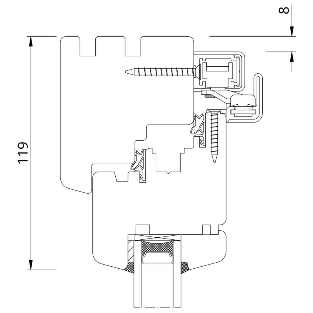
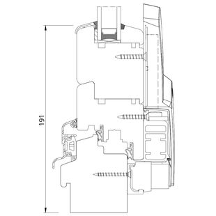
Drutex Softline 68 Fenster mit Wetterschenkel

Softline 68 Fenster mit Wetterschenkel

Drutex Softline 68 Fenster mit Wetterschenkel Retro

Softline 68 Fenster mit Wetterschenkel Retro

Drutex Softline 68 Fenster mit Wetterschenkel Donau

Softline 68 Fenster mit Wetterschenkel Donau

Drutex Softline 68 Fenster oben

Softline 68 Fenster oben

Holzfenster Softline 68 Falz (Fensterbankfräsung)

Drutex Softline 68 Festverglasung mit Standard Falz beidseitig

Softline 68 Festverglasung mit Standard Falz beidseitig

Drutex Softline 68 Festverglasung ohne Falz

Softline 68 Festverglasung ohne Falz

Drutex Softline 68 Festverglasung mit Aussenfalz

Softline 68 Festverglasung mit Aussenfalz

Drutex Softline 68 Festverglasung mit Innenfalz

Softline 68 Festverglasung mit Innenfalz

Drutex Softline 68 Festverglasung mit Falz und Federprofil

Softline 68 Festverglasung mit Falz und Federprofil

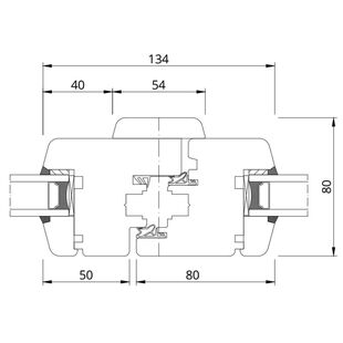
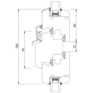
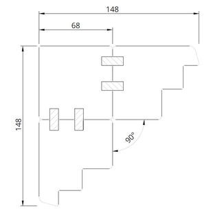
Holzfenster Softline 68 mehrflügelig mit vertikalem Pfosten oder Stulp

Drutex Softline 68 Fenster Festverglasung Dreh-Kipp

Softline 68 Fenster 2-flg. Festverglasung + Dreh-Kipp

Drutex Softline 68 Fenster Dreh-Kipp + Dreh-Kipp

Softline 68 Fenster 2-flg. Dreh-Kipp + Dreh-Kipp

Drutex Softline 68 2-flg. Fenster Dreh + Dreh-Kipp (Stulp)

Drutex Softline 68 2-flg. Fenster Dreh + Dreh-Kipp (Stulp)

Holzfenster Softline 68 Ober-/Unterlicht mit horizontalem Pfosten Festverglasung / Dreh-Kipp

Drutex Softline 68 Fenster Oberlicht Festverglasung Dreh-Kipp

Softline 68 Fenster Oberlicht Festverglasung + Dreh-Kipp

Drutex Softline 68 Fenster Oberlicht Dreh-Kipp + Dreh-Kipp

Softline 68 Fenster Oberlicht Dreh-Kipp + Dreh-Kipp

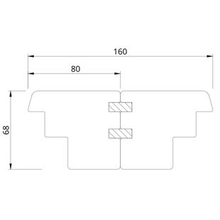
Holzfenster Softline 68 Pfosten-Unterteilungen (Kämpfer)

Drutex Softline 68 Pfosten Glasteilende Kämpfer-Sprosse 80mm

Softline 68 Kämpfer-Sprosse 80mm (Standard)

Drutex Softline 68 Pfosten Glasteilende Kämpfer-Sprosse 60mm

Softline 68 Kämpfer-Sprosse 60mm

Drutex Softline 68 Pfosten Glasteilende Kämpfer-Sprosse 105mm

Softline 68 Kämpfer-Sprosse 105mm

Drutex Softline 68 Pfosten Glasteilende Kämpfer-Sprosse 110mm

Softline 68 Kämpfer-Sprosse 110mm

Drutex Softline 68 Pfosten Glasteilende Kämpfer-Sprosse 130mm

Softline 68 Kämpfer-Sprosse 130mm

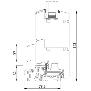
Holz Softline 68 Balkontür

Drutex Softline 68 Balkontür mit Blendrahmen

Softline 68 Balkontür mit Blendrahmen

Drutex Softline 68 Balkontür mit Schwelle 32mm

Softline 68 Balkontür mit Schwelle 32mm

Holz Softline 68 PSK Parallel-Schiebe-Kipp-Tür

Drutex Softline 68 PSK-Tür Schiebeflügel unten

Softline 68 PSK-Tür Schiebeflügel unten

Drutex Softline 68 PSK-Tür Schiebeflügel oben

Softline 68 PSK-Tür Schiebeflügel oben

Drutex Softline 68 PSK-Tür fester Rahmen unten

Softline 68 PSK-Tür fester Rahmen unten

Holz Softline 68 FST - Faltschiebetür (Faltanlage)

Drutex Softline 68 FST-Tür Schiebeflügel unten

Softline 68 FST-Tür Schiebeflügel unten

Drutex Softline 68 FST-Tür Schiebeflügel oben

Softline 68 FST-Tür Schiebeflügel oben

Holz Softline 68 Haustür

Drutex Softline 68 Haustür seitlich Rahmen innen öffnend

Softline 68 Tür innen öffnend

Drutex Softline 68 Haustür 20mm Schwelle nach innen öffnend

Softline 68 Türschwelle 20mm innen öffnend

Softline 68 Tür mit Stulp innen öffnend

Softline 68 Tür mit Stulp innen öffnend

Drutex Softline 68 Haustür seitlich Rahmen innen außen

Softline 68 Tür außen öffnend

Drutex Softline 68 Haustür 20mm Schwelle nach außen öffnend

Softline 68 Türschwelle 20mm außen öffnend

Softline 68 Tür mit Stulp außen öffnend

Softline 68 Tür mit Stulp außen öffnend

Zusatzprofile für Softline-68 Querschnitte

Holzfenster Sprossenarten - Softline-68

Innenliegende SZR Sprossen / Helima Sprossen

Drutex Softline SZR innenliegende Sprosse 8mm

Innenliegende Sprosse 8mm (SZR)

Drutex Softline SZR innenliegende Sprosse 18mm

Innenliegende Sprosse 18mm (SZR)

Drutex Softline SZR innenliegende Sprosse 26mm

Innenliegende Sprosse 26mm (SZR)

Drutex Softline SZR innenliegende Sprosse 45mm

Innenliegende Sprosse 45mm (SZR)

Aufgesetzte / Aufgeklebte Sprossen

Drutex Softline aufliegende Sprossen Wiener-Sprosse 26mm

Holz Wiener Sprossen (aufgesetzt) 26mm

Drutex Softline aufliegende Sprossen Wiener-Sprosse 36mm

Holz Wiener Sprossen (aufgesetzt) 36mm

Glasteilende Sprossen - Kämpfer

Drutex Softline 68 Pfosten Glasteilende Kämpfer-Sprosse 80mm

Softline 68 Kämpfer-Sprosse 80mm (Standard)

Drutex Softline 68 Pfosten Glasteilende Kämpfer-Sprosse 60mm

Softline 68 Kämpfer-Sprosse 60mm

Drutex Softline 68 Pfosten Glasteilende Kämpfer-Sprosse 105mm

Softline 68 Kämpfer-Sprosse 105mm

Drutex Softline 68 Pfosten Glasteilende Kämpfer-Sprosse 110mm

Softline 68 Kämpfer-Sprosse 110mm

Drutex Softline 68 Pfosten Glasteilende Kämpfer-Sprosse 130mm

Softline 68 Kämpfer-Sprosse 130mm

Holz Zierprofile und -leisten

Drutex Zierprofil Holz EKP1

EKP1 - Zierprofil Holz

Drutex Zierprofil Kopfstück Holz

Zierprofil Kopfstück Holz

Drutex Zierprofil Fussstück Holz

Zierprofil Fußstück Holz

Drutex Zierleiste Schlagleiste LP201

LP 201 - Zierleiste Schlagleiste

Drutex Zierleiste Kämpferleiste LS 101

LS 101 - Zierleiste Kämpferleiste

Holzfenster Rahmenverbreiterung

Drutex Softline 68 Rahmenverbreiterung 40mm PR 68040 (PR040)

PR68040 - Softline 68 Rahmenverbreiterung 40mm (PR040)

Drutex Softline 68 Rahmenverbreiterung 80mm PR 68080 (PR080)

PR68080 - Softline 68 Rahmenverbreiterung 80mm (PR080)

Drutex Softline 68 Rahmenverbreiterung 110mm PR 68110 (PR110)

PR68110 - Softline 68 Rahmenverbreiterung 110mm (PR110)

Drutex Softline 68 Rahmenverbreiterung 140mm PR 68140 (PR140)

PR68140 - Softline 68 Rahmenverbreiterung 140mm (PR140)

Holzfenster Kopplungen

Drutex Softline 68 Holz Federkopplung

Holz - Federkopplung (Softline-68)

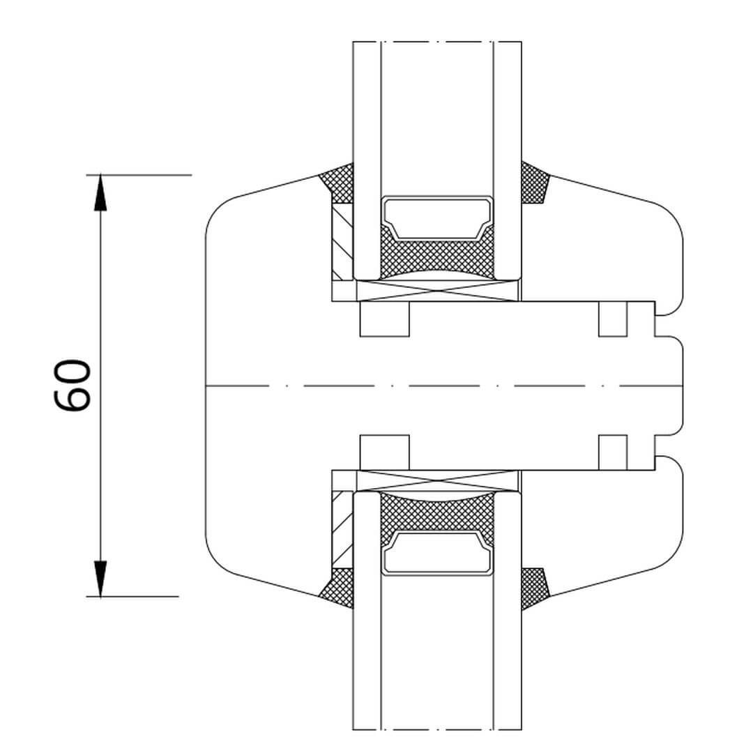
Drutex Softline 68 Statische Kopplung Pfosten PS 68038 (PS038)

PS68038 - Statische Kopplung (PS038)

Kopplung von Eck-Elementen - 90° und Variabel

Drutex Softline 68 Eckkopplung 90° Rahmen PP68090 (PP090)

PP68090 - Softline 68 Eckkopplung 90 Grad (PP090)

Drutex Softline 68 Eckkopplung 135° Rahmen PP68135 (PP135)

PP68135 - Softline 68 Eckkopplung 135 Grad (PP135)

Holz Abdeckleisten

Drutex Holz Abdeckleiste 20mm LM 020

LM 020 - Holz Abdeckleiste 20mm

Drutex Holz Abdeckleiste 50mm LM 050

LM 050 - Holz Abdeckleiste 50mm

Drutex Holz Abdeckleiste 80mm LM 080

LM 080 - Holz Abdeckleiste 80mm

Holz Abschlussleisten

Drutex Holz Abschlussleiste 20mm LW020

LW 020 - Holz Abschlussleisten 20mm

Drutex Holz Abschlussleiste 30mm LW030

LW 030 - Holz Abschlussleisten 30mm

Drutex Holz Abschlussleiste 40mm LW040

LW 040 - Holz Abschlussleisten 40mm

Drutex Holz Viertelstab LWR 015

LWR 015 - Holz Viertelstab

Holzfenster mit Aufsatzrollladen

Drutex Holz Rollladentraverse LT 120

LT 120 - Holz Aufsatzrollladen Rollladentraverse

Drutex Aufsatzrollladen Führungsschiene Holz PD110

PD 110 - Holz Aufsatzrollladen Führungsschiene

Drutex Aufsatzrollladen Führungsschiene Holz PD120

PD 1120 - Holz Aufsatzrollladen Führungsschiene

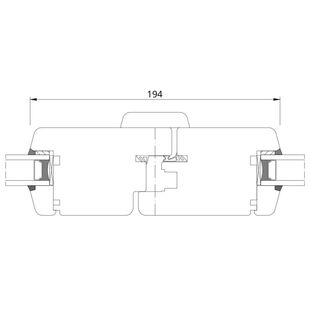
Aufsatzrollladen 225mm mit Softline 68 Profil für Holzfenster

Aufsatzrollladen 225mm mit Holzfensterprofil Softline 68

Gratis levering

Bij een bestelling van 10 ramen of meer in Nederland!

Vraag nu een offerte aan voor houten kozijnen

Das könnte Sie auch interessieren:

Holzfenster Softline-78

Detailzeichnungen Holzfenster Softline-78

Holzfenster Softline-78 besitzen eine Bautiefe (Rahmen) von 78mm.

Holzfenster Softline-88

Detailzeichnungen Holzfenster Softline-88

Holzfenster Softline-88 besitzen eine Bautiefe (Rahmen) von 88mm.