Detailzeichnungen Salamander evolutionDrive 82 HST

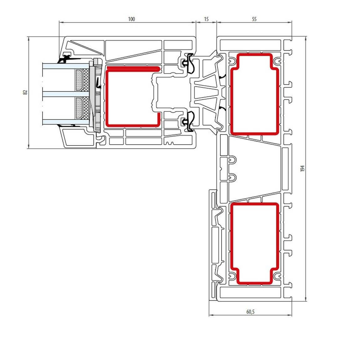
Schiebetürprofil Salamander evolutionDrive 82 HST Querschnitte

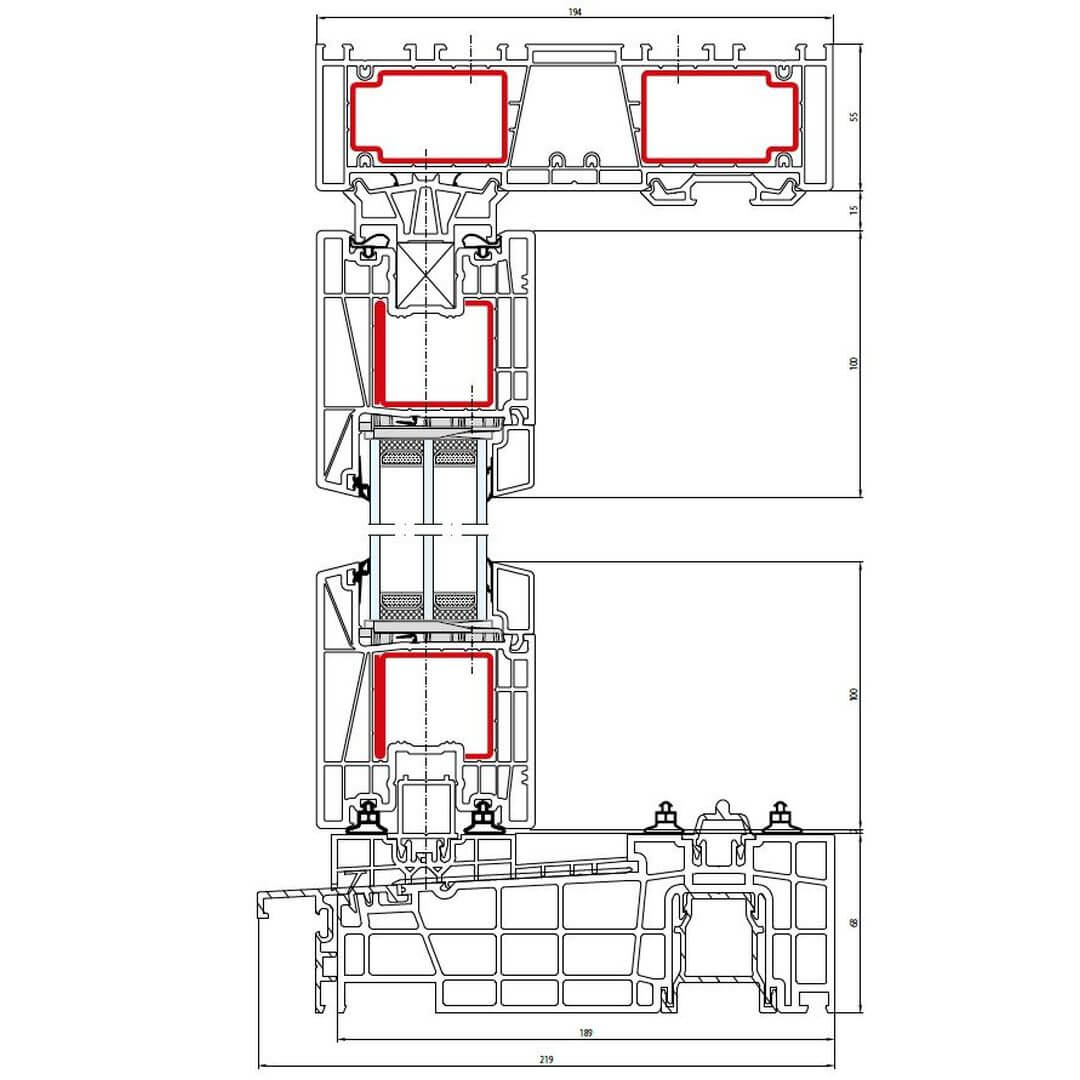
Salamander evolutionDrive 82 Schiebeflügel mit Schwelle Thermostep - Vertikal

Salamander evolutionDrive 82 Schiebeflügel mit Schwelle Thermostep - Vertikal

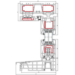
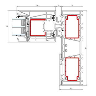
Salamander evolutionDrive 82 Flügel Fest - Vertikal

Salamander evolutionDrive 82 Flügel Fest - Vertikal

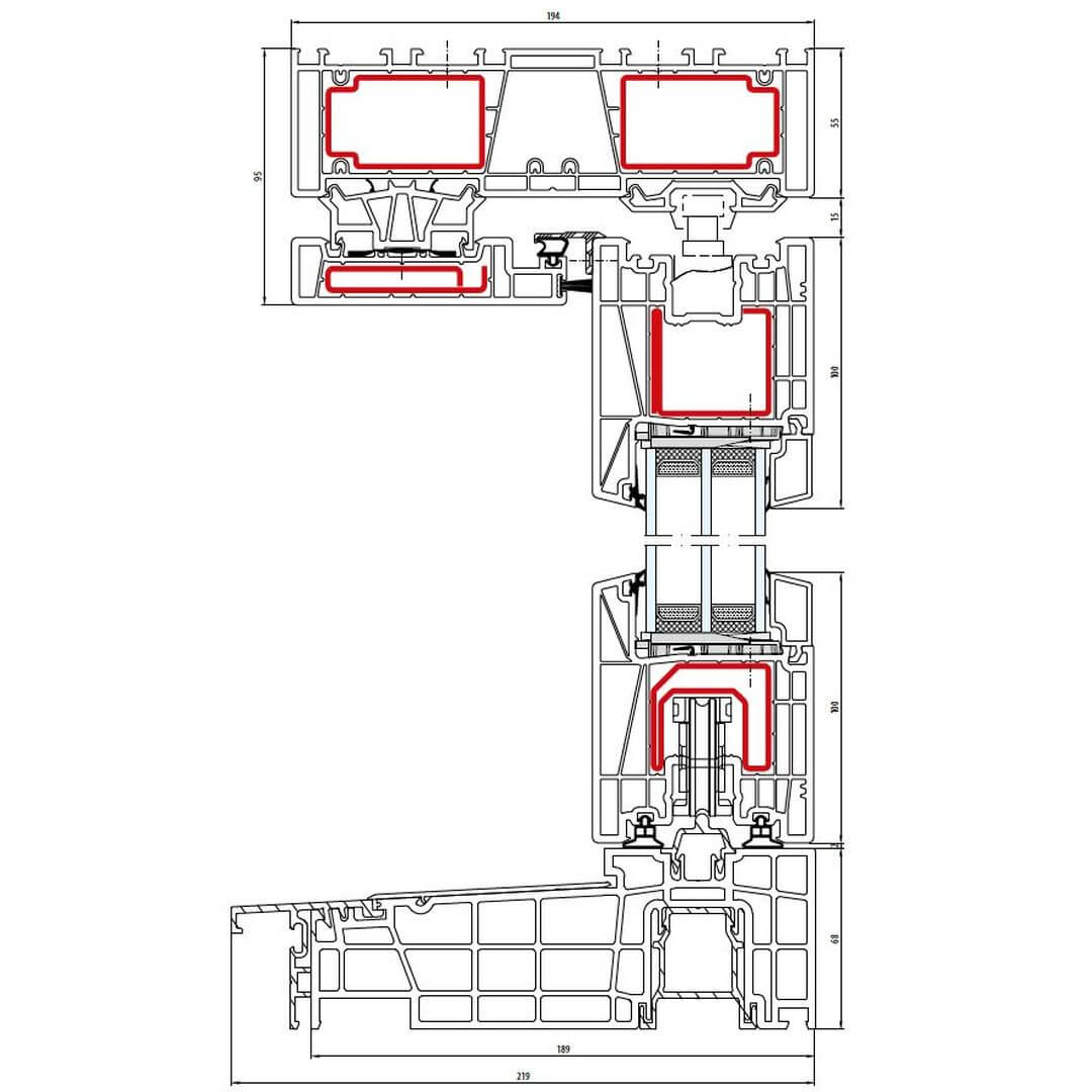
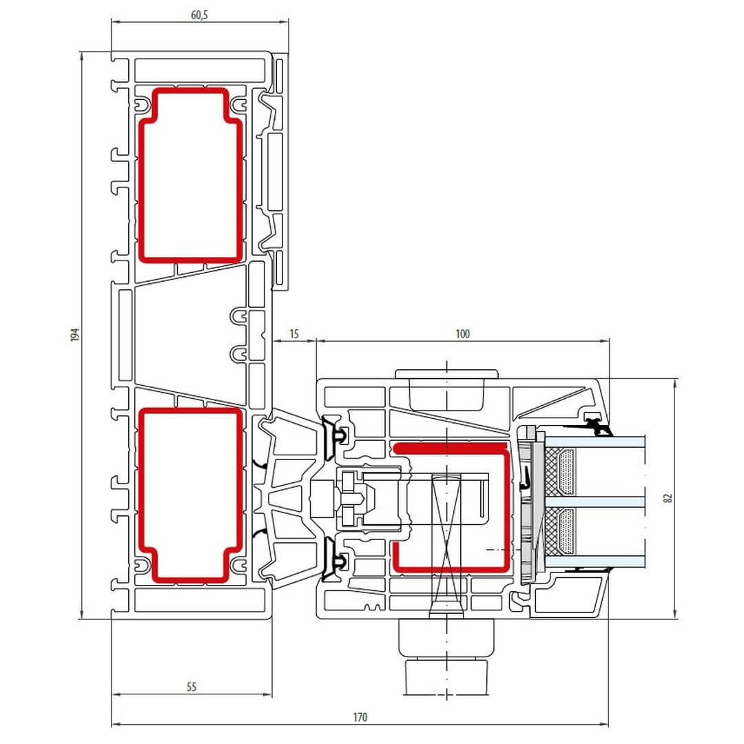
Salamander evolutionDrive 82 Flügel mit Schwelle Thermostep und Laufwagen - Vertikal

Salamander evolutionDrive 82 Flügel mit Schwelle Thermostep und Laufwagen - Vertikal

Salamander evolutionDrive 82 Schiebeflügel mit Griff - Horizontal

Salamander evolutionDrive 82 Schiebeflügel mit Griff - Horizontal

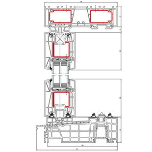
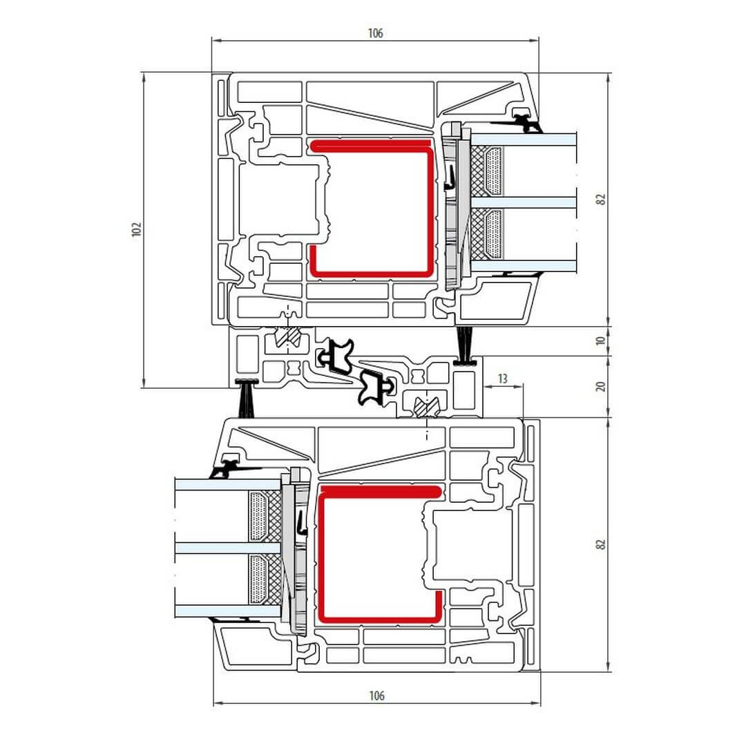
Salamander evolutionDrive 82 Flügel Treffpunkt - Horizontal

Salamander evolutionDrive 82 Flügel Treffpunkt - Horizontal

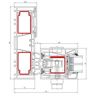
Salamander evolutionDrive 82 Flügel Fest - Horizontal

Salamander evolutionDrive 82 Flügel Fest - Horizontal

Kunststoff Hebeschiebetür Salamander evolutionDrive 82 HST Schwellen

Salamander evolutionDrive 82 Schwelle Thermostep

Salamander evolutionDrive 82 Schwelle Thermostep

Salamander evolutionDrive 82 Schwelle Flatstep

Salamander evolutionDrive 82 Schwelle Flatstep

Zusatzprofile für Salamander evolutionDrive 82 HST Querschnitte

Kunststoff Sprossenarten - Salamander evolutionDrive 82 HST

Innenliegende SZR Sprossen / Helima Sprossen

Drutex Iglo SZR Sprosse 8mm

Innenliegende Sprosse 8mm

Drutex Iglo SZR Sprosse 18mm

Innenliegende Sprosse 18mm

Drutex Iglo SZR Sprosse 26mm

Innenliegende Sprosse 26mm

Drutex Iglo SZR Sprosse 45mm

Innenliegende Sprosse 45mm

Aufgesetzte / Aufgeklebte Sprossen

Salamander 416 302 - aufgesetzte Sprossen - 27mm

416 302 - aufgesetzte Sprossen - 27mm

Salamander 416 304 - aufgesetzte Sprossen - 45mm

416 304 - aufgesetzte Sprossen - 45mm

Salamander 416 306 - aufgesetzte Sprossen - 65mm

416 306 - aufgesetzte Sprossen - 65mm

Glasteilende Sprossen - Kämpfer

Salamander bluEvolution 82 Pfosten 96mm - HO9320

bluEvolution 82 Kämpfer-Sprosse 96mm - HO9320

Kunststoff Rahmenverbreiterung - Salamander evolutionDrive 82 HST

Kunststoff Kopplungen - Salamander evolutionDrive 82 HST

Salamander NP0190 - H-Kopplung universal

NP0190 - H-Kopplung universal

Kunststoff Abdeckleisten - Salamander evolutionDrive 82 HST

Aluplast Flachleisten aus Kunststoff Auswahl 65025100, 6465050, 65025080, 65025070, 65025050, 65025040, 65025030

65025100, 6465050, 65025080, 65025070, 65025050, 65025040, 65025030 - Flachleiste aus Kunststoff Auswahl

Salamander Flachleisten mit Dichtlippe 406 312, 406 315

406 312, 406 315 - Flachleiste mit Dichtlippe Auswahl

Aluplast Deckleisten mit Hohlkammerprofil Auswahl

Hohlkammerprofil Deckleiste Auswahl

Winkelprofile aus Kunststoff 73100060, 73080050, 73060040, 73020020

73100060, 73080050, 73060040, 73020020 - Winkelprofil aus Kunststoff

Salamander Winkelprofile aus Kunststoff 406 321, 406 320, 406 319

406 321, 406 320, 406 319 - Winkelprofil aus Kunststoff

Salamander Hohlkammer Winkelprofil aus Kunststoff 406329, 406325

406329, 406325 - Hohlkammer Winkelprofil aus Kunststoff

Salamander kozijnen en deuren op maat

Configureer en bestel eenvoudig en comfortabel Aluplast ramen en deuren online bij kozijnenblik.nl

Das könnte Sie auch interessieren:

Schiebetür evolutionDrive SF

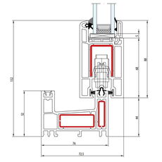
Detailzeichnungen Schiebetür Salamander evolutionDrive SF Schiebeflügel mit Laufwaagen

Schiebetüren evolutionDrive SF besitzen eine Bautiefe (Rahmen) von 76mm.

Detailzeichnungen evolutionDrive SF

Hebeschiebetür aluplast HST 85

Detailzeichnungen Hebeschiebetür aluplast HST 85 Schiebeflügel mit Laufwaagen

Hebeschiebetüren HST 85 besitzen eine Bautiefe (Rahmen) von 197mm.

Detailzeichnungen aluplast HST 85