Detailzeichnungen Raffstore PZF

Inhaltsverzeichnis:

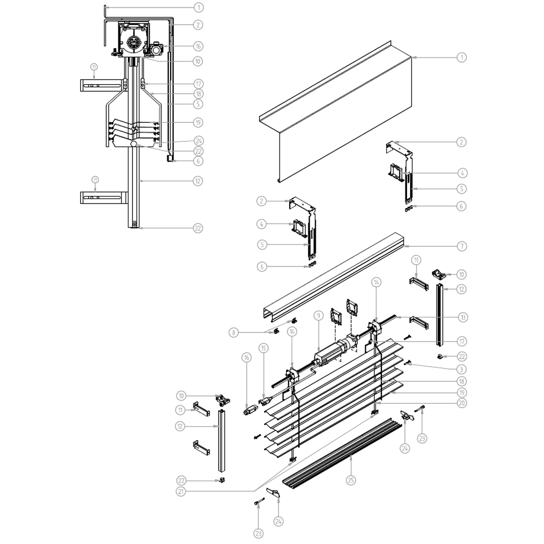
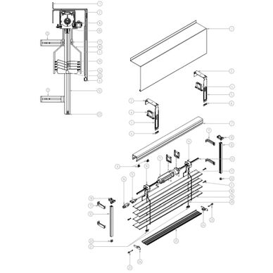
Außenjalousien Raffstore PZF Explosionszeichnung

Raffstore PZF C80 mit Stahlschnur und elektrischer Steuerung

Raffstore PZF C80 mit Stahschnur und elektrischer Steuerung Explosionszeichnung

Explosionszeichnung Raffstore PZF C80 mit Stahlschnur und elektrischer Steuerung

  1. Schutzblech
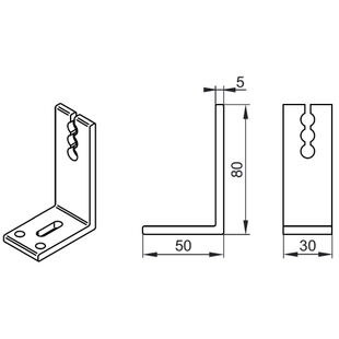
  2. Wandhalterung 120mm
  3. Stellschraube Schnurführung
  4. Halterung der Oberschiene
  5. Schutzblechverlängerung
  6. Schalldämpfelement für Schutzblechverlängerung
  7. Oberrinne
  8. Leitungshalter
  9. Elektromotor
  10. Anschlagring Schnurführung
  11. Feder Schnurführung
  12. Halterung Schnurführung
  13. Wickelohr der Außenjalousien
  1. Aufroll- und Hebeantrieb C80
  2. Steckdose
  3. Stecker
  4. Verbinder für Seilleiter und Kunststoff-Kugelkette
  5. Seilleiter für Außenjalousie
  6. Lamelle C80
  7. Wickelband der Außenjalousien
  8. Montageclip für Wickelband
  9. Schnurführungsschiene
  10. Endschienenschaft
  11. Endschienenstopfen C80
  12. Endschiene C80
  13. Halterung Schnurführungsschiene unten

Raffstore PZF C80 mit Führungsschiene und elektrischer Steuerung

Raffstore PZF C80 mit Führungsschiene und elektrischer Steuerung Explosionszeichnung

Explosionszeichnung Raffstore PZF C80 mit Führungsschiene und elektrischer Steuerung

  1. Schutzblech
  2. Wandhalterung 120mm
  3. Lamellenschaft C80
  4. Halterung der Oberschiene
  5. Schutzblechverlängerung
  6. Schalldämpfelement für Schutzblechverlängerung
  7. Oberrinne
  8. Leitungshalter
  9. Elektromotor
  10. Halterung Führungsschiene in Oberschiene
  11. Halterung Führungsschiene gerade
  12. Einzelführungsschiene
  1. Wickelohr
  2. Aufroll- und Hebeantrieb
  3. Steckdose
  4. Stecker
  5. Verbinder für Seilleiter und Kunststoff-Kugelkette
  6. Seilleiter C80
  7. Lamelle C80
  8. Wickelband der Außenjalousien
  9. Montageclip für Wickelband
  10. Führungsschienenblene
  11. Endschienenschaft
  12. Endschienenstopfen C80
  13. Endschiene C80

Raffstore PZF Z90 mit Führungsschiene und elektrischer Steuerung

Raffstore PZF Z90 mit Führungsschiene und elektrischer Steuerung Explosionszeichnung

Explosionszeichnung Raffstore PZF Z90 mit Führungsschiene und elektrischer Steuerung

  1. Schutzblech
  2. Wandhalterung 140mm
  3. Lamellenschaft Z90
  4. Halterung der Oberschiene
  5. Schutzblechverlängerung
  6. Schalldämpfelement für Schutzblechverlängerung
  7. Oberrinne
  8. Leitungshalter
  9. Elektromotor
  10. Halterung Führungsschiene in Oberschiene
  11. Halterung Führungsschiene gerade
  12. Einzelführungsschiene
  1. Wickelohr
  2. Aufroll- und Hebeantrieb
  3. Steckdose
  4. Stecker
  5. Verbinder für Seilleiter und Kunststoff-Kugelkette
  6. Seilleiter Z90
  7. Lamelle Z90
  8. Wickelband der Außenjalousien
  9. Montageclip für Wickelband
  10. Führungsschienenblene
  11. Endschienenschaft
  12. Endschienenstopfen Z90
  13. Endschiene Z90

Raffstore PZF Einzelteile

Schutzbleche für Raffstore PZF

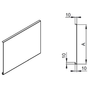
Raffstore PZF Schutzblech F-B15 Typ A

Raffstore PZF Schutzblech F-B15 Typ A

Raffstore PZF Schutzblech F-B15 Typ B

Raffstore PZF Schutzblech F-B15 Typ B

Raffstore PZF Schutzblech F-B15 Typ C

Raffstore PZF Schutzblech F-B15 Typ C

Raffstore PZF Schutzblech F-B15 Typ D

Raffstore PZF Schutzblech F-B15 Typ D

Raffstore PZF Schutzblech F-ZBB mit Seitenblende

Raffstore PZF Schutzblech F-ZBB mit Seitenblende

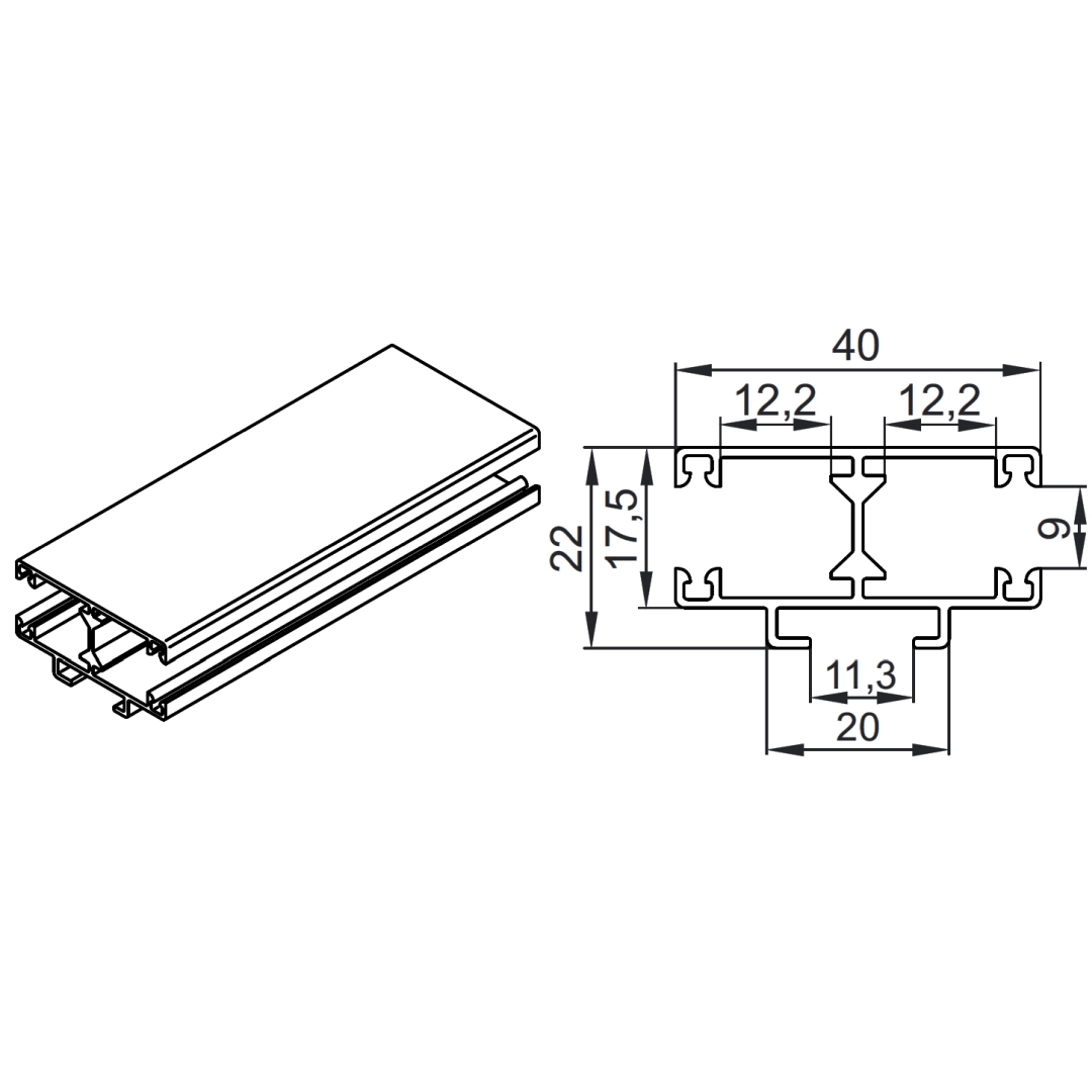
Führungsschienen für Raffstore PZF

Raffstore PZF Führungsschiene F-PP 20mm

Raffstore PZF Führungsschiene F-PP 20mm

Raffstore PZF Führungsschiene F-PPD 40mm doppelt

Raffstore PZF Führungsschiene F-PPD 40mm doppelt

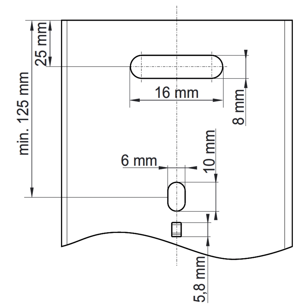
Raffstore PZF Führungsschienen Montagearten

Raffstore Führungsschiene PZF 20mm Montage Typ A

Raffstore Führungsschiene PZF 20mm Montage Typ A

Raffstore Führungsschiene PZF 20mm Montage Typ B

Raffstore Führungsschiene PZF 20mm Montage Typ B

Raffstore Führungsschiene PZF 20mm Montage Typ C

Raffstore Führungsschiene PZF 20mm Montage Typ C

Raffstore Führungsschiene PZF 20mm Wandmontage

Raffstore Führungsschiene PZF 20mm Wandmontage

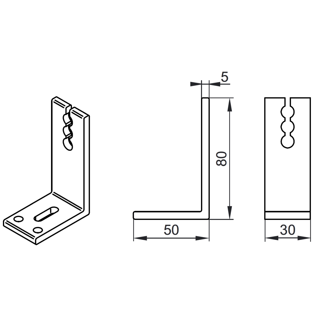
Halter Schnurführungsschiene für Raffstore PZF

Raffstore PZF Halter Schnurfuehrung F-UDPP

Raffstore PZF Halter Schnurführung F-UDPP

Raffstore PZF Halter Schnurführung F-UDPL 80

Raffstore PZF Halter Schnurführung F-UDPL 80

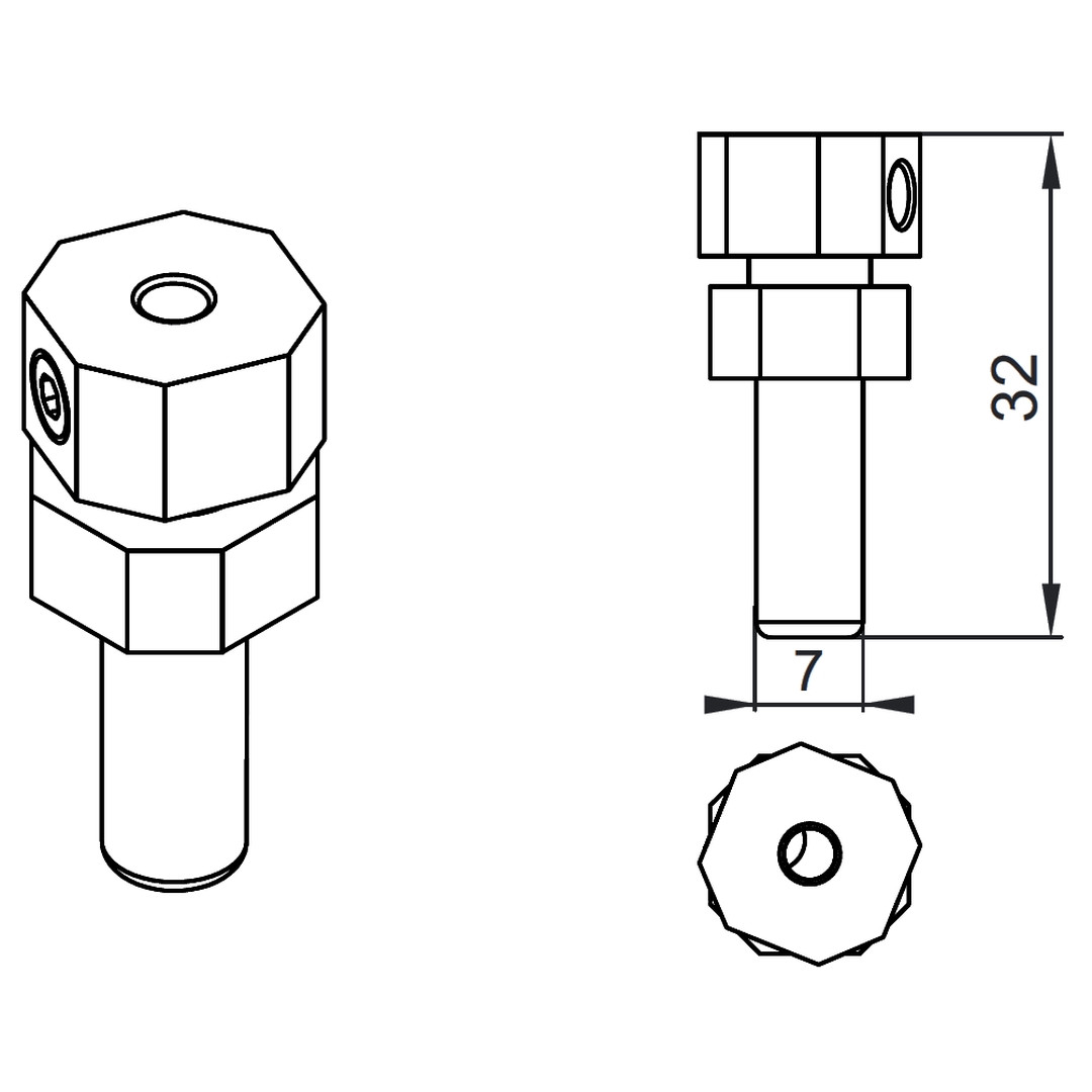
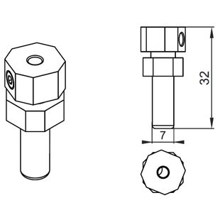
Raffstore PZF Stellschraube Schnurführung F-SR-32

Raffstore PZF Stellschraube Schnurführung F-SR-32

Raffstore PZF Schnurführungsschiene Montagearten

Raffstore Führungsschiene F-UDPL Typ 1 mit Schnur

Raffstore Führungsschiene F-UDPL Typ 1 mit Schnur

Raffstore Führungsschiene F-UDPP Typ 2 mit Schnur

Raffstore Führungsschiene F-UDPP Typ 2 mit Schnur

Lamellenformen und Typen für Raffstore

Raffstore Lamelle C80

Raffstore Lamelle C80

Raffstore Lamelle C80 Seitenansicht

Raffstore Lamelle C80 Seitenansicht

Raffstore Lamelle Z90

Raffstore Lamelle Z90

Raffstore Lamelle Z90 Seitenansicht

Raffstore Lamelle Z90 Seitenansicht

Verbindungsmöglichkeiten von Raffstore

Raffstore Zweierset Ansicht Verbinder

Raffstore Zweierset Ansicht Verbinder

Raffstore Antrieb in Mitteljalousie - Anordnung der Lager

Raffstore Antrieb in Mitteljalousie - Anordnung der Lager

Weiter zur Produktseite Raffstore PZF

Buitenjaloezieën op maat configureren

Buitenjaloezieën eenvoudig en comfortabel online configureren en bestellen bij kozijnenblik.nl!

Das könnte Sie auch interessieren:

Raffstore SKEF

Detailzeichnungen Raffstoer SKEF

Raffstore-Systeme SKEF ideal zum Nachrüsten.

Detailzeichnungen Raffstore SKEF

Raffstore CleverBox

Detailzeichnungen Aufsatz-Raffstore CleverBox

Hochstabiler Aufsatz-Raffstore CleverBox für jeden Tag.

Detailzeichnungen Raffstore CleverBox