Detailzeichnungen Vorbau-Raffstore Aluprof SKEF

Inhaltsverzeichnis:

Vorbau-Raffstore SKEF Kasten Querschnitte (Fassadenjalousie)

Raffstorekasten SKEF 180 Kastenhöhe

Raffstorekasten SKEF 180

Raffstorekasten SKEF 205 Kastenhöhe

Raffstorekasten SKEF 205

Vorbau-Raffstore Aluprof SKEF Einzelteile

Führungsschienen für Vorbau-Raffstore SKEF (Fassadenjalousie)

Raffstore Führungsschiene SKEF

Raffstore Führungsschiene SKEF

Raffstore Lamellen (Profile)

Raffstore Lamelle C80

Lamellentyp C80

Raffstore Lamelle C80F Flach

Lamellentyp C80F Flach

Arretierung von Lamellen

Raffstore Lamellen Arretierung ARET 2

Arretierung ARET 2 - Standard

Raffstore Lamellen Arretierung ARET 5

Arretierung ARET 5

Vorbau-Raffstore Aluprof SKEF Montagearten

Vorbau-Raffstore SKEF (Fassadenjalousie) - Einbaubeispiel Mauerwerk:

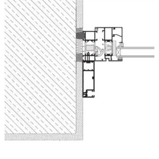
Vorbau-Raffstore SKEF Einbaubeispiel auf der Mauer

Vorbau-Raffstore SKEF Einbaubeispiel Mauerwerk

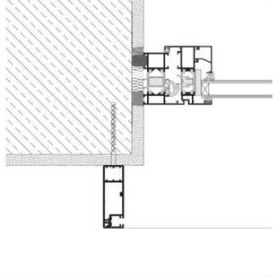
Vorbau-Raffstore SKEF Führungsschiene Mauerwerk

Vorbau-Raffstore SKEF Führungsschiene Mauerwerk

Vorbau-Raffstore SKEF (Fassadenjalousie) - Einbaubeispiel in der Laibung:

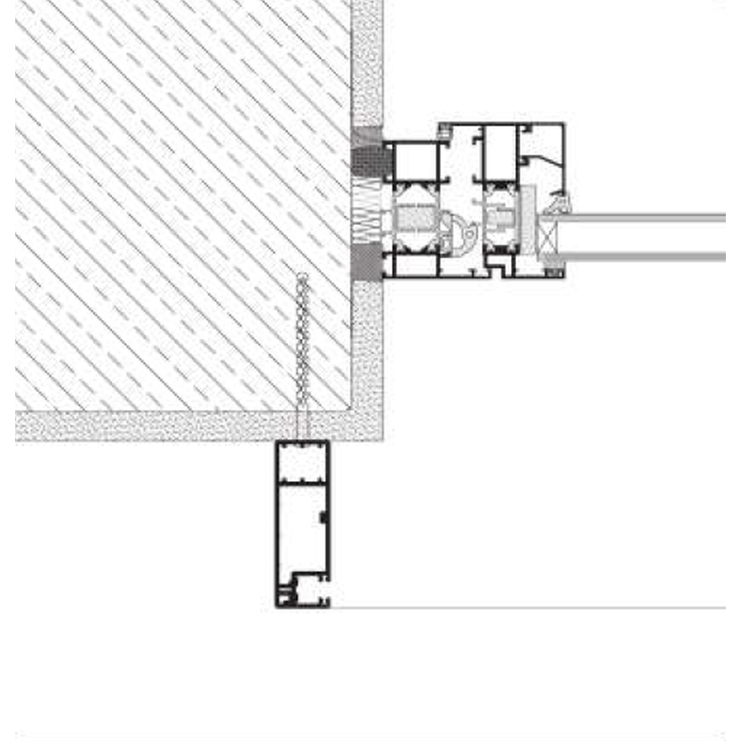
Vorbau-Raffstore SKEF Einbaubeispiel in der Laibung

Vorbau-Raffstore SKEF Einbaubeispiel in der Laibung

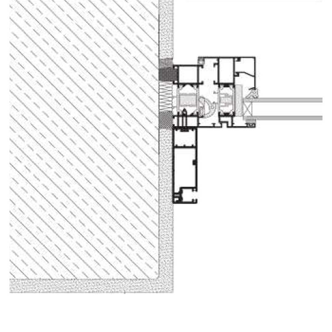
Vorbau-Raffstore SKEF Führungsschiene Fensterrahmen

Vorbau-Raffstore SKEF Führungsschiene Fensterrahmen

Weiter zur Produktseite Vorbau-Raffstore Aluprof SKEF

Buitenjaloezieën op maat configureren

Buitenjaloezieën eenvoudig en comfortabel online configureren en bestellen bij kozijnenblik.nl!

Das könnte Sie auch interessieren:

Raffstore SKB Styroterm

Detailzeichnungen Raffstoer SKB Styroterm

Raffstore-Systeme SKB Styroterm mit optimaler Wärmedämmung.

Detailzeichnungen Raffstore SKB Styroterm

Raffstore CleverBox

Detailzeichnungen Aufsatz-Raffstore CleverBox

Hochstabiler Aufsatz-Raffstore CleverBox für jeden Tag.

Detailzeichnungen Raffstore CleverBox