Detailzeichnungen Kunststofffenster Iglo Light

Kunststofffensterprofil Iglo Light Querschnitte

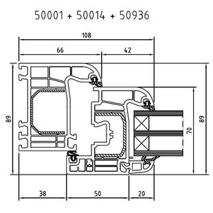
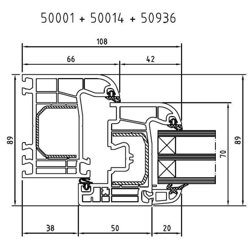
Drutex Iglo Light Festverglasung 66mm Detailzeichnung 50001 50924

Iglo Light Festverglasung 66mm

Drutex Iglo Light Festverglasung 75mm Detailzeichnung

Iglo Light Festverglasung 75mm

Drutex Iglo Light Renovationsrahmen 41mm Festelement

Iglo Light Renovationsrahmen 41mm

Drutex Iglo Light Renovationsrahmen 41mm mit Flügel

Iglo Light Renovationsrahmen 41mm mit Flügel

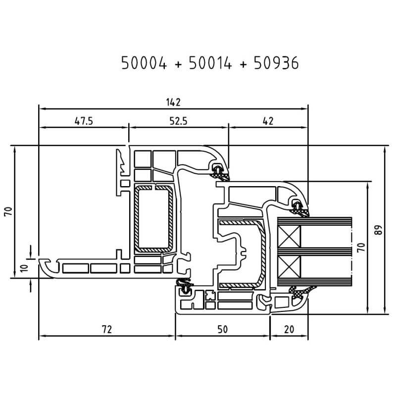
Drutex Iglo Light Renovationsrahmen 65mm Festelement

Iglo Light Renovationsrahmen 65mm

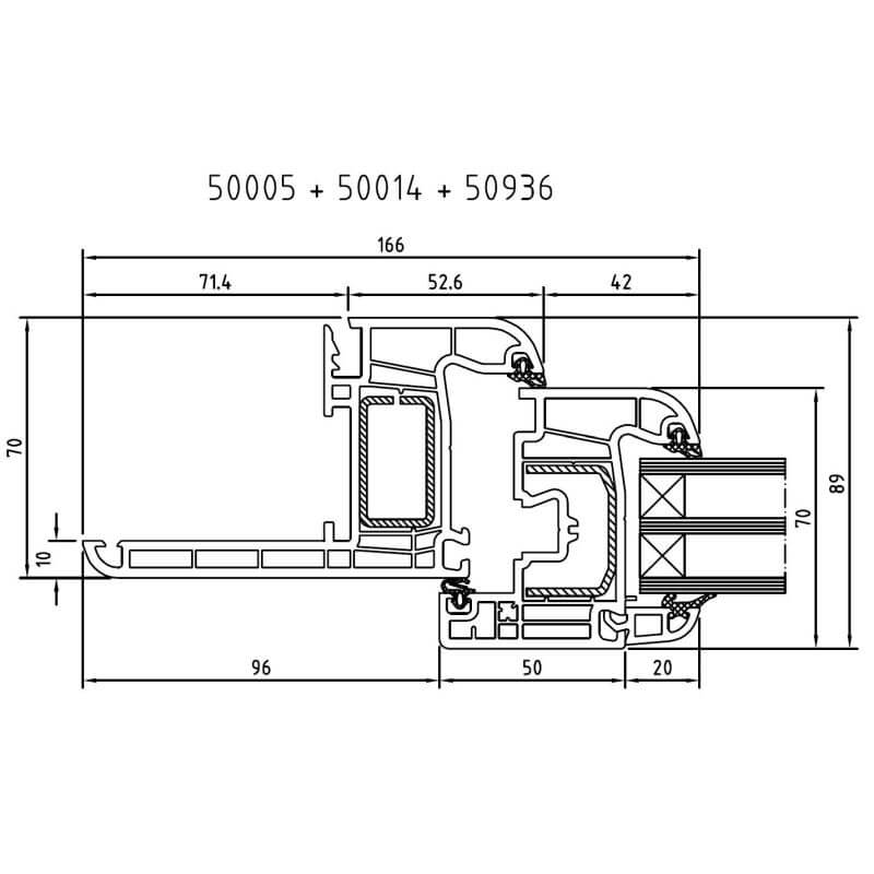
Drutex Iglo Light Renovationsrahmen 65mm mit Flügel 50005 50014 50936

Iglo Light Renovationsrahmen 65mm mit Flügel

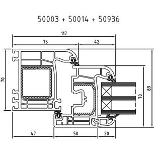
Drutex Iglo Light Rahmen 66mm mit Flügel

Iglo Light Rahmen 66mm mit Flügel

Iglo Light Rahmen 75mm mit Flügel Querschnitt

Iglo Light Rahmen 75mm mit Flügel

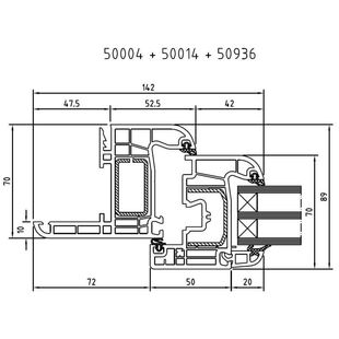
Drutex Iglo Light Flügel mit Festverglasung 50936 50014 50021

Iglo Light Flügel mit Festverglasung

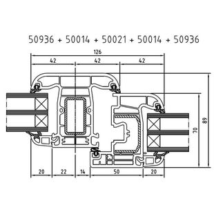
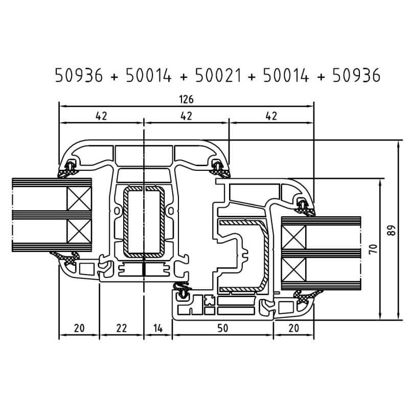
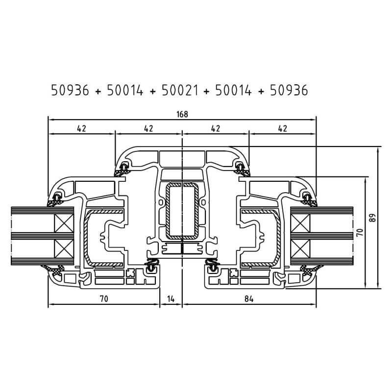
Drutex Iglo Light Pfosten mit Flügel 50936 50014 50021

Iglo Light Pfosten mit Flügel

Drutex Iglo Light Stulpfenster ohne Beschlag 50015 50027 50028 50014

Iglo Light Stulpfenster ohne Beschlag

Drutex Iglo Light Stulpfosten mit Griff

Iglo Light Stulpfosten mit Griff

Kunststofffenster Bankanschlussprofile

Drutex Iglo Light Fenster mit Bankanschluss 30mm 54123

Iglo Light Bankanschlussprofil 30mm mit Dichtung

Drutex Iglo Light Fenster mit Bankanschluss 30mm 54113

Iglo Light Bankanschluss mit Zusatzsteg

Drutex Iglo Light Fenster mit Bankanschluss 50mm 50114

Iglo Light Bankanschlussprofil 50mm

Kunststoff Steinbankanschlussprofile

Drutex Steinbankanschluss aus Kunststoff 25mm 120206

Steinbankanschluss 25mm

Drutex Steinbankanschluss aus Kunststoff 30mm 120208

Steinbankanschluss 30mm

Drutex Steinbankanschluss aus Kunststoff 40mm 120209

Steinbankanschluss 40mm

Drutex Steinbankanschluss aus Kunststoff 50mm 120210

Steinbankanschluss 50mm

Kunststoff Anschlussprofile (bündig)

Drutex Anschlussprofil 15mm 120236

Anschlussprofil 15mm

Drutex Anschlussprofil 20mm L01350200

Anschlussprofil 20mm

Drutex Anschlussprofil 30mm 50117

Anschlussprofil 30mm

Drutex Anschlussprofil 50mm L01100500

Anschlussprofil 50mm

Drutex Iglo Anschlussprofil NL 50115

Niederländisches Anschlussprofil

Kunststofffenster Rahmenverbreiterung

Drutex Iglo Light Fenster mit Rahmenverbreiterung 15mm 50103

Iglo Light Rahmenverbreiterung 15mm

Drutex Iglo Light Fenster mit Rahmenverbreiterung 35mm Stahlverstärkung 50100

Iglo Light Rahmenverbreiterung 35mm

Drutex Iglo Light Fenster mit Rahmenverbreiterung 60mm Stahlverstärkung 50101

Iglo Light Rahmenverbreiterung 60mm

Drutex Iglo Light Fenster mit Rahmenverbreiterung 100mm Stahlverstärkung 50102

Iglo Light Rahmenverbreiterung 100mm

Kunststofffenster Kopplungen

Drutex Iglo Light Fenster mit H Kopplung einteilige Koppelleiste 50110

Iglo Light H-Kopplung

Drutex Iglo Light Fenster mit Federkopplung 50119

Iglo Light Federkopplung

Drutex Iglo 5 Fenster mit Kopplung 50124

Iglo Light Kopplung - 50124

Drutex Iglo 5 Fenster mit Kopplung 50124 mit Stahl

Iglo Light Kopplung mit Stahl - 50124

Drutex Iglo 5 Fenster mit Kopplung 50124 mit Stahl + Verstärkung innen

Iglo Light Kopplung mit Stahl+Verstärkung innen - 50124

Drutex Iglo Light Fenster mit statischer Kopplung 50111

Iglo Light statische Kopplung

Drutex Iglo Light Fenster mit statischer Kopplung 50116

Iglo Light statische Kopplung

Drutex Iglo Light Fenster mit Kopplung Dehnungsprofil 70118 50924

Iglo Light Kopplungsdehnungsprofil

Drutex Iglo Light Eckverbinder 90° Eckkopplung 50122

Iglo Light Eckkopplung 90°

Drutex Iglo Light Eckverbinder Variabel 90° Eckkopplung 50121 50120 50121

Iglo Light Eckkopplung Variabel 90°

Drutex Iglo Light Eckverbinder Variabel 135° Eckkopplung 50121 50120 50121

Iglo Light Eckkopplung Variabel 135°

Kunststofffenster Sprossenarten

Innenliegende SZR Sprossen / Helima Sprossen

Drutex Iglo SZR Sprosse 8mm

Innenliegende Sprosse 8mm

Drutex Iglo SZR Sprosse 18mm

Innenliegende Sprosse 18mm

Drutex Iglo SZR Sprosse 26mm

Innenliegende Sprosse 26mm

Drutex Iglo SZR Sprosse 45mm

Innenliegende Sprosse 45mm

Aufgesetzte / Aufgeklebte Sprossen

Drutex Iglo aufliegende Sprossen 27mm

Aufgesetzte Sprossen 27mm

Drutex Iglo aufliegende Sprossen 45mm

Aufgesetzte Sprossen 45mm

Drutex Iglo aufliegende Sprosse 65mm

Aufgesetzte Sprossen 65mm

Glasteilende Sprossen - Kämpfer

Drutex Iglo Light Glasteilende Kämpfer-Sprosse 70mm

Iglo Light Kämpfer-Sprosse 70mm

Drutex Iglo Light Glasteilende Kämpfer-Sprosse 84mm

Iglo Light Kämpfer-Sprosse 84mm

Verglasungsbeispiele - Glasleisten Iglo Light

Drutex Iglo Light 2-fach Verglasung 24mm

Iglo Light Verglasungsdicke 24mm

Drutex Iglo Light 2-fach Verglasung 28mm

Iglo Light Verglasungsdicke 28mm

Drutex Iglo Light 3-fach Verglasung 32mm

Iglo Light Verglasungsdicke 32mm

Drutex Iglo Light 3-fach Verglasung 36mm

Iglo Light Verglasungsdicke 36mm

Kunststoff Abdeckleisten

Drutex Deckleisten mit Hohlkammerprofil Auswahl

Hohlkammerprofil Deckleiste Auswahl

Drutex Flachleisten mit Dichtlippe Auswahl

Flachleiste mit Dichtlippe Auswahl

Drutex Flachleisten aus Kunststoff Auswahl

Flachleiste aus Kunststoff Auswahl

Drutex Winkelprofile aus Kunststoff Auswahl

Winkelprofil aus Kunststoff Auswahl

Kunststoff Balkontür Iglo Light

Drutex Iglo Light Balkon Rahmen mit Flügel

Iglo Light Balkontür mit Blendrahmen

Drutex Iglo Light Balkontür mit flacher Aluminiumschwelle 20mm DKS 2.1.0 50014 50936

Iglo Light Balkontür mit flacher Schwelle

Drutex Iglo 5 Alu Trittschutz 24481

Aluminium Trittschutz

Kunststoff Iglo Light PSK Parallel-Schiebe-Kipp-Tür

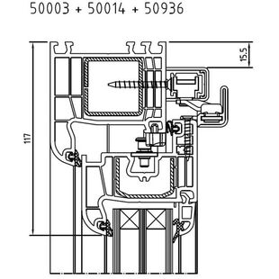
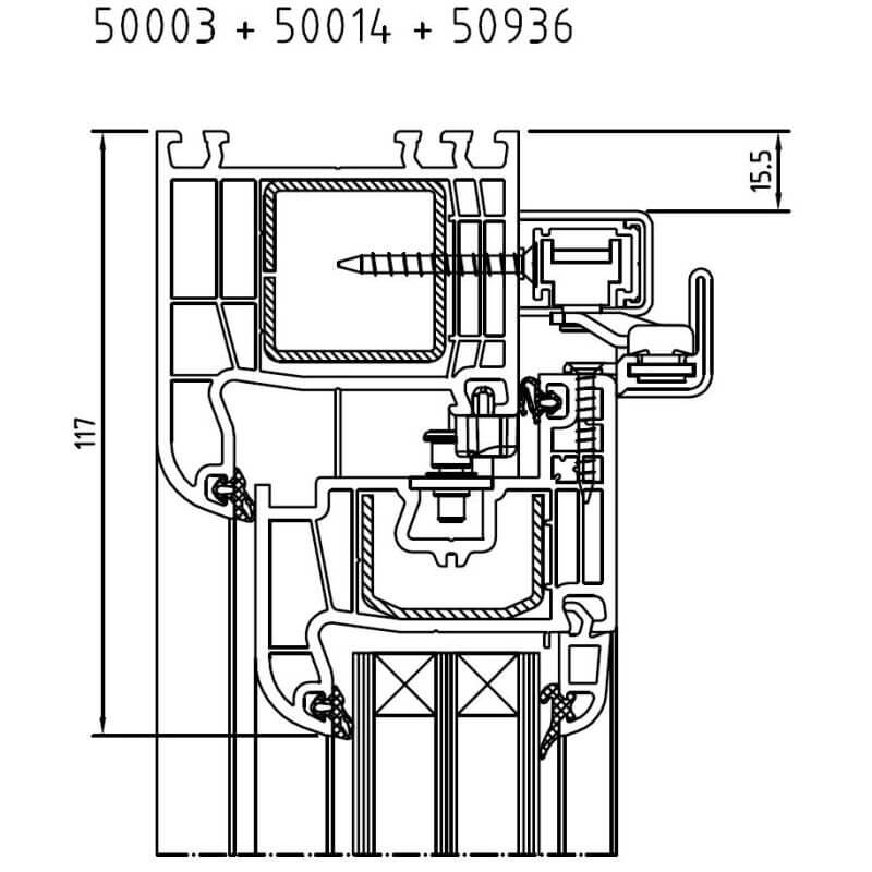
Drutex Iglo Light Parallel-Schiebe-Kipp-Tür PSK-Tür 50003 50014 50936

Iglo Light Parallel-Schiebe-Kipp-Tür

Drutex Iglo Light Parallel-Schiebe-Kipp-Tür PSK-Tür oben 50003 50014 50936

Iglo Light Parallel-Schiebe-Kipp-Tür oben

Drutex Iglo Light Parallel-Schiebe-Kipp-Tür PSK-Tür unten 50003 50014 50936

Iglo Light Parallel-Schiebe-Kipp-Tür unten

Aufsatzrollladen für Drutex Iglo 5 Parallel-Schiebe-Kipp-Tür PSK-Tür Revision Seite

Iglo 5 Parallel-Schiebe-Kipp-Tür Aufsatzrollladen Revision von der Seite

Aufsatzrollladen für Drutex Iglo 5 Parallel-Schiebe-Kipp-Tür PSK-Tür Unten

Iglo 5 Parallel-Schiebe-Kipp-Tür Aufsatzrollladen Revision von Unten

Kunststofffenster mit Aufsatzrollladen

Drutex Aufsatzrollladen 170mm seitliche Revision

Aufsatzrollladen 170mm Revision Seite

Drutex Aufsatzrollladen 170mm untere Revision

Aufsatzrollladen 170mm Revision Unten

Aufsatzrollladen 215mm mit Iglo 5 Fenster Revision von der Seite

Aufsatzrollladen 215mm Revision von der Seite

Aufsatzrollladen 215mm mit Iglo 5 Fenster Revision von Unten

Aufsatzrollladen 215mm Revision von Unten

Aufsatzrollladen 215mm mit Iglo 5 Fenster und Insektenschutz Außen

Aufsatzrollladen 215mm mit Insektenschutzgitter Außen

Aufsatzrollladen 215mm mit Iglo 5 Fenster und Insektenschutz Außen

Aufsatzrollladen 215mm mit Insektenschutzgitter Innen

Einseitige Führungsschiene am Iglo 5 Profil

Einseitige Führungsschiene für Aufsatzrollladen am Iglo 5 Profil

Einseitige Führungsschiene mit Insektenschutz am Iglo 5 Profil

Einseitige Führungsschiene mit Insektenschutz am Iglo 5 Profil

Beidseitige Führungsschiene für Aufsatzrollladen am Iglo 5 Profil

Beidseitige Führungsschiene für Aufsatzrollladen am Iglo 5 Profil

Beidseitige Führungsschiene und Insektenschutz am Iglo 5 Profil

Beidseitige Führungsschiene mit Insektenschutz am Iglo 5 Profil

Gratis levering

Bij een bestelling van 10 ramen of meer in Nederland!

Vraag nu een offerte aan voor kunststof kozijnen

Das könnte Sie auch interessieren:

Kunststofffenster Iglo 5

Detailzeichnungen Kunststofffenster Iglo 5

Kunststofffenster Iglo 5 besitzen eine Bautiefe (Rahmen) von 70mm.

Kunststofffenster Iglo Energy

Detailzeichnungen Kunststofffenster Iglo Energy

Kunststofffenster Iglo Energy besitzen eine Bautiefe (Rahmen) von 82mm.