Detailzeichnungen Aluplast IDEAL 4000 Casement

Kunststofffensterprofil IDEAL 4000 Casement

Aluplast IDEAL 4000 Casement Festverglasung 60mm - 100x55

IDEAL 4000 Casement Festverglasung 60mm - 100x55

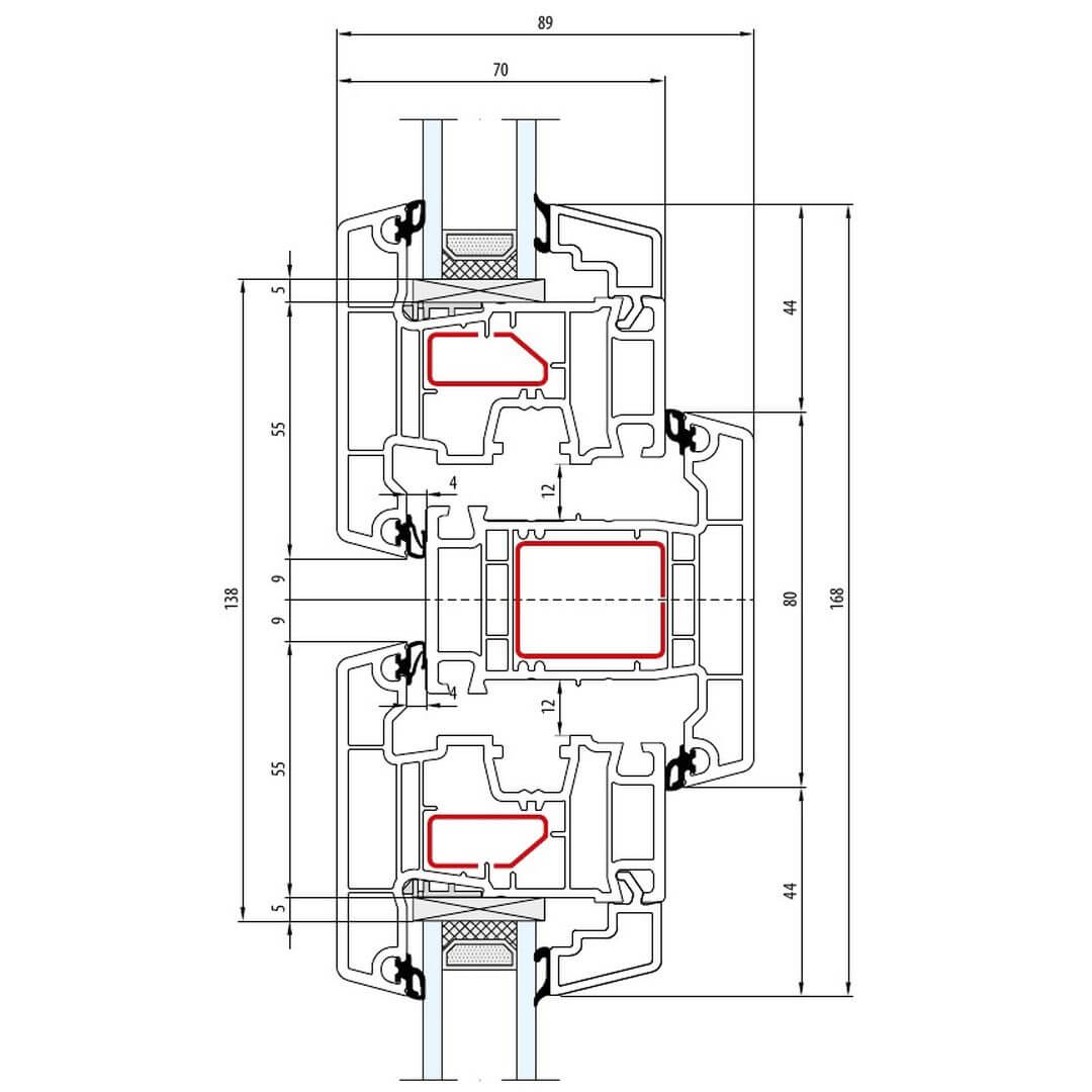
Aluplast IDEAL 4000 Casement Fenster Classic-Line 108mm - 100x53 100x55

IDEAL 4000 Casement Fenster Classic-Line 108mm - 100x53 100x55

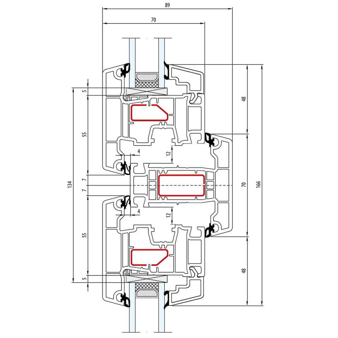
Kunststofffenster IDEAL 4000 Casement mit Pfosten 70mm und 80mm

Aluplast IDEAL 4000 Casement Pfosten 70mm - 100x56

IDEAL 4000 Casement Pfosten 70mm - 100x56

Aluplast IDEAL 4000 Casement Pfosten 70mm Fenster - 100x56 - 100x55

IDEAL 4000 Casement Pfosten 70mm Fenster - 100x56 - 100x55

Aluplast IDEAL 4000 Casement Pfosten 80mm - 100x58

IDEAL 4000 Casement Pfosten 80mm - 100x58

Aluplast IDEAL 4000 Casement Pfosten 80mm Fenster - 100x58 - 100x55

IDEAL 4000 Casement Pfosten 80mm Fenster - 100x58 - 100x55

Zusatzprofile für aluplast IDEAL 4000 Casement Querschnitte

Kunststoff Sprossenarten - Ideal 4000 Casement

Innenliegende SZR Sprossen / Helima Sprossen

Drutex Iglo SZR Sprosse 8mm

Innenliegende Sprosse 8mm

Drutex Iglo SZR Sprosse 18mm

Innenliegende Sprosse 18mm

Drutex Iglo SZR Sprosse 26mm

Innenliegende Sprosse 26mm

Drutex Iglo SZR Sprosse 45mm

Innenliegende Sprosse 45mm

Aufgesetzte / Aufgeklebte Sprossen

Aluplast 160376 - aufgesetzte Sprossen - 26mm

160376 - aufgesetzte Sprossen - 26mm

Aluplast 160378 - aufgesetzte Sprossen - 46mm

160378 - aufgesetzte Sprossen - 46mm

Aluplast 160479 - aufgesetzte Sprossen - 66mm

160479 - aufgesetzte Sprossen - 66mm

Glasteilende Sprossen - Kämpfer

Aluplast IDEAL 4000 Casement Pfosten 70mm - 100x56

IDEAL 4000 Casement Pfosten 70mm - 100x56

Aluplast IDEAL 4000 Casement Pfosten 80mm - 100x58

IDEAL 4000 Casement Pfosten 80mm - 100x58

Kunststoff Anschlussprofile - Ideal 4000 Casement

Kunststoff Bankanschlussprofile

Aluplast 144247 - Fensterbankanschluss - 30mm

144247 - Fensterbankanschluss - 30mm

Kunststoff Anschlussprofile (bündig)

Aluplast 140277 - Bankanschlussprofil - 10mm

140277 - Bankanschlussprofil - 10mm

Aluplast 120106 - Bankanschlussprofil - 20mm

120106 - Bankanschlussprofil - 20mm

Aluplast 120236 - Bankanschlussprofil - 15mm

120236 - Bankanschlussprofil - 15mm

Aluplast 120237 - Bankanschlussprofil - 30mm

120237 - Bankanschlussprofil - 30mm

Aluplast 120102 - Bankanschlussprofil - 50mm

120102 - Bankanschlussprofil - 50mm

Kunststoff Rahmenverbreiterung - Ideal 4000 Casement

Aluplast 140227 - Rahmenverbreiterung - 2mm

140227 - Rahmenverbreiterung - 2mm

Aluplast 140209 - Rahmenverbreiterung - 15mm

140209 - Rahmenverbreiterung - 15mm

Aluplast 140205 - Rahmenverbreiterung - 35mm

140205 - Rahmenverbreiterung - 35mm

Aluplast 140207 - Rahmenverbreiterung - 60mm

140207 - Rahmenverbreiterung - 60mm

Aluplast 140208 - Rahmenverbreiterung - 100mm

140208 - Rahmenverbreiterung - 100mm

Kunststoff Kopplungen - Ideal 4000 Casement

Aluplast 120116 - Federkopplung

120116 - Federkopplung

Aluplast 120224 - H - Kopplung - universal

120224 - H - Kopplung - universal

Aluplast 140203 - H - Kopplung

140203 - H - Kopplung

Aluplast 140267 - H - Federkopplung - optional - Stahl

140267 - H - Kopplung - optional - Stahl

Aluplast 120219 - Statikkopplung - 9mm

120219 - Statikkopplung - 9mm

Aluplast 140218 - Statikkopplung - 21mm

140218 - Statikkopplung - 21mm

Aluplast 120109 - Statikprofil

120109 - Statikprofil

Kopplung von Eck-Elementen - 90° und Variabel

Aluplast 140243 -140244 - Eckkopplung - variabel

140243 -140244 - Eckkopplung - variabel

Aluplast 140248 - Eckkopplung - 90 Grad

140248 - Eckkopplung - 90 Grad

Aluplast 140249 - Eckkopplung - 135 Grad

140249 - Eckkopplung - 135 Grad

Kunststoff Abdeckleisten - Ideal 4000 Casement

Aluplast Flachleisten aus Kunststoff Auswahl 65025100, 6465050, 65025080, 65025070, 65025050, 65025040, 65025030

65025100, 6465050, 65025080, 65025070, 65025050, 65025040, 65025030 - Flachleiste aus Kunststoff Auswahl

Aluplast Flachleisten mit Dichtlippe 120120, 120283

120120, 120283 - Flachleiste mit Dichtlippe Auswahl

Aluplast Deckleisten mit Hohlkammerprofil Auswahl

Hohlkammerprofil Deckleiste Auswahl

Winkelprofile aus Kunststoff 73100060, 73080050, 73060040, 73020020

73100060, 73080050, 73060040, 73020020 - Winkelprofil aus Kunststoff

Aluplast Winkelprofile aus Kunststoff 120292, 120291

120292, 120291 - Winkelprofil aus Kunststoff

Aluplast Hohlkammer Winkelprofil aus Kunststoff 120299, 120297, 120289, 120284

120299, 120297, 120289, 120284 - Hohlkammer Winkelprofil aus Kunststoff

Aluplast kozijnen en deuren op maat

Configureer en bestel eenvoudig en comfortabel Aluplast ramen en deuren online bij kozijnenblik.nl

Das könnte Sie auch interessieren:

Kunststofffenster IDEAL 4000 Monoblock

Detailzeichnungen Kunststofffenster IDEAL 4000 Monoblock 140mm

Kunststofffenster IDEAL 4000 Monoblock besitzen verschiedene Tiefen von 70mm bis 160mm.

Detailzeichnungen IDEAL 4000 Monoblock

Kunststofffenster IDEAL 4000 NL Blockprofil

Detailzeichnungen Kunststofffenster IDEAL 4000 NL Blockrpofil

Kunststofffenster IDEAL 4000 NL Blockprofil besitzen verschiedene Tiefen von 120mm.

Detailzeichnungen IDEAL 4000 NL Blockprofil